
Financing Memorandum Agreed between the European Commission and the Republic of Latvia Concerning the grant of assistance from the Instrument for Structural Policies for Pre-Accession to the following measure Improvement of Via Baltica road (Pan European Corridor I) from km 13.0 (Gauja) to km 21.2 (Lilaste) located in Latvia
The European Commission, hereinafter referred to as "the Commission", acting for and on behalf of the European Community, hereinafter referred to as "the Community" represented by the Commissioner for Regional Policy, Mr. Michel Barnier, for the Commission
on the one part, and
The Government of Latvia, hereinafter referred to as "the beneficiary "
on the other part,
have agreed as follows:
Article 1
The measure referred to in Article 2 below shall be implemented and financed out of the budgetary resources of the Community in accordance with the provisions set out in this Memorandum. The measure referred to in Article 2 below shall be implemented in line with the General Conditions annexed to the Framework Agreement signed between the Commission and the beneficiary and supplemented by the terms of this Memorandum and the provisions annexed hereto.
Article 2
Identification of the measure
The Instrument for Structural Policies for Pre-accession shall contribute, by way of a grant, towards the financing of the following measure as described in Annex I:
| Measure number: | 2000/LV/16/P/PT/001 |
| Title: | Improvement of Via Baltica |
| road (Pan European Corridor | |
| I) from km 13.0 (Gauja) to | |
| km 21.2 (Lilaste) | |
| Duration: | Start date: date of signature of |
| this financing memorandum by | |
| the Commission | |
| End date: 31 December 2003 | |
| Location: | Gauja-Lilaste, Carnikavas |
| Pagasts, Rīgas Rajons | |
| Group: | transport road corridor I |
Article 3
Commitment
(1) The rate of Community assistance granted to the measure is fixed at 75 % of total public or equivalent expenditure as indicated in the financing plan in Annex II.
(2) The maximum amount of assistance from the Instrument for Structural Policies for Pre-accession is fixed at euro 4 687 500.
(3) An amount of e 3 750 000 is committed from the 2000 budget under budgetary line B7-020. Commitments in respect of subsequent instalments shall be based on the initial or revised financing plan for the measure, subject to the state of implementation of the measure and to budgetary availability.
Article 4
Payments
(1) Community assistance shall cover payments on the measure for which legally binding commitments have been made in the beneficiary and for which the requisite finance has been specifically allocated. Theses payments must relate to the works described in Annex I.
(2) Payments made before the date of signature of this financing memorandum by the Commission shall not be eligible for assistance from the Instrument for Structural Policies for Pre-accession.
(3) The measure described in Annex I and payments by the body responsible for the implementation of the measure shall be completed no later than 31st December 2003.
The report required for the payment of the final balance should be submitted not later than 6 months after this date.
(4) The advance payment is fixed at euro 937 500, which shall be transferred as follows:
- An amount of euro 468 750 is paid out after signature of this memorandum by the beneficiary;
- The remainder is paid out following the signing of the contract indicated in the procurement under Annex Ia as "1".
(5) In accordance with Annex III. 1, Section III, point 5, the Commission will accept for this measure a total amount of advance and intermediate payments of 90 % of the total assistance granted.
Article 5
Respect of Community law and policies
The measure shall be carried out in compliance with the relevant provisions set out in the Europe Agreement and shall contribute to the achievement of Community policies, in particular those concerning transport and trans-European networks.
Article 6
Intellectual property
The Beneficiary and the authority responsible for implementation mentioned in Annex I point 3 shall ensure that they acquire all necessary intellectual property rights to studies, drawings, plans, publicity and other material made in conjunction with planning, implementation, monitoring and evaluation of the project. They shall guarantee that the Commission, or any body or person delegated by the Commission shall have access and the right to use such material. The Commission will only use such material for its own purpose.
Article 7
Permits and authorisations
Any type of permits and or authorisations required for the implementation of the measure must be provided by the competent authorities of The Beneficiary in due time and in accordance with national law.
Article 8
Specific conditions related to the measure
Without prejudice to the general conditions of Annex III, the Community grant for the measure is subject to the following conditions:
(1) Condition on the assumptions and the status of the assets:
The Commission reserves the right to revise the amount of the assistance for ISPA set out in Article 3 if, within five years of the date of the completion of works, the operating conditions (tariffs, revenues, etc.) vary significantly relative to the original assumptions made in determining the level of the grant and/or there is a substantial modification:
a) affecting the nature of the operation or its implementing conditions, or giving to a private or public body an undue advantage; and
b) resulting either from a change in the nature of the ownership of any part of the financed infrastructure, or a cessation or material change in the operating arrangements.
The beneficiary country shall inform the Commission of any such change, and shall seek the ex-ante agreement of the Commission to these changes.
(2) Condition on viability
The Community grant for the measure is subject to the authorities concerned making available sufficient resources in order to ensure the effective operation and maintenance of the assets.
Article 9
The implementation provisions described in the Annexes to this financing memorandum form an integral part of it.
Non-compliance with the conditions and implementation provisions shall be dealt with by the Commission according to the procedure stipulated in Annex III.1. Section VIII.
Article 10
The authentic text of this financing memorandum is the present document as signed hereunder.
| Done at Rīga | Done at Brussels |
| Date 19.01.2001. | Date 23.10.2000 |
| for The Recipient | for the Community |
| Name I.Sudraba | M. Barnier |
| (National Authorising | Commissioner |
| Officer or equivalent) | |
| Deputy State Secretary | |
| of the Ministry of Finance | |
| of the Republic of Latvia, | |
| as a National Authorizing Officer |
List of Annexes
| Annex I | Description of measure |
| Annex II | Financing plan |
| Annex III | |
| Annex III.1 | ISPA Financial Implementation |
| provisions | |
| Annex III.2 | Provisions governing eligibility of |
| expenditure for measures assisted by | |
| ISPA | |
| Annex III.3 | Model for Payment Claims, for |
| reporting on financial and physical | |
| progress and request for modification | |
| Annex III.4 | Agreement on minimum |
| requirements for financial control | |
| applicable to ISPA assisted measures | |
| Annex III.5 | Agreement with respect to |
| irregularities and recovery of sums | |
| wrongly received under ISPA | |
| Annex III.6 | Information and Publicity |
| requirements |
Annex I
Description of Measure
N° 2000/LV/16/P/PT/001
1. Measure title
Improvement of Via Baltica road (Pan European Corridor I) from km 13.0 (Gauja) to km 21.2 (Lilaste)
2. Authority making the application (National ISPA Co-ordinator)
| 2.1. | Name: | Mr Roberts Zīle, Minister for |
| Special Assignment for Cooperation | ||
| with International Financial Agencies | ||
| 2.2. | Address: | Smilšu iela 1, Rīga, LV - 1919 |
| Latvia | ||
| E-mail: | Andzs.Ubelis@if.gov.lv |
3. Authority responsible
for implementation
(as defined at Section II (2) of Annex III.2)
| 3.1. | Name: | Ministry of Transport |
| 3.2. | Address: | Gogoļa iela 3, Rīga, LV - 1743 |
| Latvia | ||
| E-mail: | vlegzdin@sam.gov.lv |
4. Final beneficiary
(in case it is a different body
from the authority mentioned under 3)
| 4.1. | Name: | Latvian Road Administration |
| 4.2. | Address: | Gogoļa iela 3, Rīga, LV - 1743 |
| Latvia | ||
| E-mail: | valdis@lad.lv |
5. Location
| 5.1. | Beneficiary country: | Latvia |
| 5.2. | Region: | Gauja-Lilaste, Carnikavas |
| pagasts, Rīgas rajons |
6. Description
This single project is part of the improvements of the Via Baltica road (state main road A1 between Rīga and Ainaži). This main road A1 is about 110 km in length and includes 5 sections which are planned to be upgraded before 2006. This project forms part of an overall scheme to rehabilitate and upgrade Via Baltica in accordance with Latvia's National ISPA Strategy.
The improvements on the section Gauja-Lilaste comprise: widening the existing road (from 8.2 m to 11.5 m pavement width); rebuilding 10 existing road junctions; adjusting road alignment; providing/upgrading parking lots, picnic sites and toilets; replacing an existing two span bridge at Lilaste river with a single span concrete bridge; and laying new pavement. The road is being designed in accordance with EU Directive 96/53/EC (maximum axle load of 11.5 tons). The section Gauja-Lilaste begins just north of the Gauja bridge, which is currently under reconstruction in the framework of PHARE and terminates with the Lilaste bridge, which will be rebuilt within this project.
Via Baltica is a road part of Corridor I, running from Tallinn to Warsaw, in the network identified by the TINA exercise. The objective is to create a European quality route thus facilitating trade and communications between Finland, the Baltic States and Poland and thence the other applicant countries and the European Union. The Latvian stretch runs for 240 km through the centre of the country.
7. Objectives
This project aims at improving the traffic and pedestrian safety as well as the traffic fluidity by bringing this road section in compliance with European road standards and norms. The road section is part of an access road to a popular recreational area.
| Physical Indicators | Unit | Value | |
| Road (11.5 m paved profile | |||
| within 15 m overall width), | |||
| consisting of: | linear km | 8.2 | |
| 4 cm wearing course | |||
| 6 cm base course | |||
| 40 cm cement stabilised | |||
| sub-base | |||
| Junctions, from which: | number | 10 | |
| Type 1 | number | 4 | |
| Type 2 | number | 2 | |
| Type 3 | number | 4 | |
| Parking areas | number | 2 | |
| Bridge (15.5 m overall width) | linear m | 23 |
The improvements embodied in the project are expected to reduce vehicle operating costs, road and bridge maintenance costs, travel time during peak hours and also the number of accidents (around 3 accidents a year).
8. Work schedule
| Category of work | Commencement | Completion | |
| Planning and design | 01/02/2000 | 04/06/2000 | |
| Land acquisition | - | - | |
| Construction | 01/03/2001 | 31/10/2001 | |
| Other | - | - |
9. Economic and social cost-benefit
analysis
Costs :
Do-nothing alternative: repair of Lilaste bridge within the next few years and rehabilitation of the bituminous base course on the road as the bridge and the pavement are deteriorating (repair and maintenance costs from 2000 to 2021 at about e 3 400 000).
Investment alternative: the investment costs are as follows: Lilaste bridge (e 730 000) and road works (e 5 520 000).
Benefits:
- Vehicle Operating Cost savings:
Savings on fuel consumption and maintenance due to better driving conditions, better surface quality (reduced roughness of the improved road)
- Maintenance savings:
Elimination of bridge high repair costs
Life cycle of road will increase
Lower periodic maintenance costs
- Savings in accidents:
Mainly thanks redesigned junctions, new parking areas and fences along the road
- Time value savings:
Reduced risk of congestion (especially during peak hours in the summer and during week-ends)
- Employment impact:
28 temporary direct jobs during construction phase (8 months)
A summary of results is presented below:
| Pro- | IRR | NPV | B/C | % savings | |||
| ject | (e) | Ti- | Main- | VOC | Acci- | ||
| me | tenance | dents | |||||
| 14% | 4 531 000 | 1.85 | 22% | 28% | 37% | 12% | |
It will be noted that the expected reduction in accidents plays a major role in the economic justification of the project.
10. Main elements of financial analysis
Not revenue generating.
All the expenses for maintenance will be covered by the Latvian State Road Fund, which has a cash-flow for state roads maintenance of about e 40 million per year.
11. Environmental impact analysis
The type of infrastructure investment included in the project does not fall within projects covered by Annex I of the EU Environmental Impact Assessment (EIA) Directives (85/337/EEC, as amended by 97/11/EC), for which a full EIA is required, because: even after upgrading, the section will still be categorised as an "ordinary road"; widening of the existing two lane road will not provide four or more lanes; and the realigned section of road is less than 10 km. After assessment of the project according to the selection criteria for Annex II projects, it was concluded that the project is unlikely to have any significant impacts on the environment, provided that the design and implementation of the works are carried out in accordance with good practice and in compliance with the requirements of the Lielriga Regional Environmental Board. A letter from 16.07.1999 signed by this Board confirms that no formal EIA is required.
An environmental screening was done in April 2000 to assess the possible impact of the project. Landscaping and compensatory tree-planting in accordance with tree-felling permits are included in the project. The results show that there are mainly temporary impacts associated with the construction phase (noise, traffic disruption). No additional land will be required. All of the existing road material will be recycled/reused in some form in the road widening and rehabilitations works. The future traffic will not increase due to the foreseen investments (average daily traffic 96-99 at about 6 000-7 000 vehicles, from which 25% of vehicles larger than 500 cm2).
12. Cost and assistance (in EURO)
This project will cost e 6 250 000, of which e 4 687 500 is requested from ISPA and e 1 562 500 will be met from central government resources.
| Total cost: | e 6 250 000 |
| Non Eligible cost: | e 280 000 * |
| Eligible cost: | e 6 250 000 |
| Rate of assistance: | 75% as percentage of eligible |
| cost | |
| ISPA assistance: | e 4 687 500 |
* e 280 000 have been disbursed for planning/design fees prior to the submission of the application to the European Commission.
13. Involvement of IFIs
Not involved in this project (associated with other parts of the Via Baltica).
14. Procurement plan
The works will be implemented according to the procurement plan appended as Annex Ia.
Annex Ia
Provisional Procurement Plan
| Type of contract | Provisional | |||
| Tender N° | Description of works and services to be tendered | (works or | month of launch | |
| service) | of tender | |||
| 1 | construction works | works | 09.2000 | |
| 2 | supervision during implementation | service | 12.2000 |
The specific terms for the award of contracts will be made available in the Official Journal of the European Communities and/or the Internet)
Annex II
Annex III.1
ISPA Financial Implementation Provisions
Section I
Forms and rate of assistance
(1) Community assistance under ISPA may take the form of non-repayable direct assistance, repayable assistance or any other form of assistance.
Assistance repaid to the managing authority or to another public authority shall be reapplied for the same purpose.
(2) The rate of Community assistance granted under ISPA may be up to 75% of public or equivalent expenditure, including expenditure by bodies whose activities are undertaken within an administrative or legal framework by virtue of which they are regarded as equivalent to public bodies. The Commission may propose to increase this rate to up to 85%, in particular where it considers that a rate higher than 75% is required for realising measures essential for achieving the general objectives of ISPA.
The rate of assistance and the maximum amount of the ISPA grant shall be specified in the financial memorandum relating to a measure.
Save in the case of repayable assistance or when there is a substantial Community interest, the rate of assistance shall be reduced to take into account:
(a) The availability of co-financing;
(b) The measure's capacity to generate revenues; and
(c) An appropriate application of the polluter-pays principle.
(3) Measures which generate revenues in accordance with paragraph 2(b) shall be those concerning:
(a) Infrastructure the use of which involves fees borne by users;
(b) Productive investments in the environment sector.
Guidelines for application of the polluter pays principle have been elaborated by the Commission.
(4) Preliminary studies and technical support measures may be financed exceptionally at 100% of the total cost.
(5) Measures covered by a financing memorandum are to be implemented by the beneficiary country in close collaboration with the Commission, which will retain responsibility for the utilisation of appropriations.
Section II
Commitments
(1) The Commission implements expenditure under ISPA in accordance with the Financial Regulation applicable to the general budget of the European Communities on the basis of the financing memorandum to be drawn up between the Commission and the beneficiary country.
However, annual budgetary commitments in respect of assistance granted to measures shall be carried out in one of the following two ways:
(a) Commitments in respect of the measures assisted by ISPA to be carried out over a period of two or more years shall, as a general rule and subject to point (b), be effected in annual instalments.
The commitment in respect of the first annual instalment will be made by the Commission when it signs the financing memorandum relating to the measure.
This commitment will correspond to the amount of grant mentioned in the first year indicated in the financing plan. During the period leading to full decentralisation, it should be sufficient to cover the works to be contracted in the first years.
Commitments in respect of subsequent annual instalments shall be based on the initial or revised financing plan for the measure. They will, in principle, be granted at the start of each financial year and at the latest by 1 April of the year in question, provided that the forecast expenditure for the coming year justifies it and that the progress of the works demonstrates that the project is proceeding satisfactorily towards completion and subject to budgetary availability.
(b) For measures with a duration of less than two years or for which the Community assistance does not exceed Euro 20 million a first commitment of up to 80% of the total assistance granted may take place when the Commission signs the financing memorandum relating to the measure.
The remainder will be committed provided that the progress of the works demonstrates that the project is proceeding satisfactorily towards completion and subject to budgetary availability.
(2) Except in duly justified cases, the assistance committed to a measure on which substantial work has not begun within two years from the date of the signature by the Commission of the financial memorandum relating to the measure will be cancelled.
In any case the Commission shall inform in good time the beneficiary country and the designated authority whenever there is a risk of cancellation.
Section III
Payments
(1) Payments may take the form of either advance payments, intermediate payments or payments of the final balance.
Intermediate payments and payments of the balance shall relate to expenditure actually certified and paid, which must be supported by receipted invoices or accounting documents of equivalent probative value.
(2) Advance payments
As a general rule an advance payment of up to 20% of total assistance from ISPA as initially decided shall be paid to the designated authority as defined in (9).
The advance payment is as a general rule transferred in the following ways:
- A first instalment of up to half of the advance is paid when the beneficiary country signs the financing memorandum;
- The remainder is paid out following the signing of the first contract, normally the first works contract.
Deviations from the general rule have to be approved by a Commission decision in the financing memorandum relating to the measure.
All or part of an advance payment shall be repaid by the designated authority referred to in paragraph (2) if no payment application is sent to the Commission within 12 months from the date on which the advance payment is paid. The amount of the advance to be repaid will be determined by the Commission on the basis of eligible expenditure effectively paid. Repayment of the advance does not lead to the cancellation of the Community assistance.
(3) Intermediate payments
Intermediate payments are made by the Commission to the designated authority on request and provided that the measure is progressing satisfactorily towards completion and shall be made to refund the expenditure certified and actually paid, subject to the following conditions:
- The beneficiary country has submitted a report describing the progress of the measure in terms of its physical and financial indicators and its conformity with the financing memorandum, including where appropriate any specific conditions attached to the assistance,
- The observations and recommendations of the national and/or Community inspection authorities have been acted upon,
- Any technical, financial and legal problems that have arisen and the measures taken to correct them have been indicated,
- Any departures from the original financing plan have been analysed,
- The steps taken to publicise the measure have been described.
The beneficiary country shall be informed by the Commission if one of the above mentioned conditions is not fulfilled;
The standard model provided by the Commission for payment claims and for financial and physical progress reports should be used.
(4) Beneficiary countries shall ensure that applications for payment are submitted to the Commission as a general rule three times a year, by 1 March, 1 July and 1 November at the latest.
(5) The total amount of the payments made under (2) and (3) may not exceed 80% of the total assistance granted. The Commission may increase this percentage to 90% in justified cases.
(6) Payment of the balance of Community assistance
The balance of Community assistance calculated on the basis of expenditure certified and actually paid will be paid provided that:
- The measure has been carried out according to its objectives,
- The measure has met its specific conditions as mentioned in the financing memorandum,
- The final report referred to in section V is submitted to the Commission,
- The designated authority or body referred to in paragraph 2 submits an application for payment to the Commission within six months of the deadline for completion of the work and for expenditure laid down in the financing memorandum,
- The beneficiary country certifies to the Commission that the information given in the application for payment and in the report is correct,
- The beneficiary country has sent to the Commission the declaration referred to in Annex III.4 enclosure B,
- All the information and publicity measures drawn up by the Commission under Annex III.6 have been implemented
- When the management of aid under a measure is conferred on implementing agencies in applicant countries on a decentralised basis, the beneficiary country provides the Commission with all the information necessary to verify that Community rules concerning public procurement have been complied with, in particular as regards the publication of tender notices and the submission of tender evaluation and contract award reports and that all conditions specified in the financing memorandum have been complied with.
(7) If the final report referred to above is not sent to the Commission within 6 months of the final date for completion of the works and payments as specified in the financing memorandum, that part of the assistance representing the remaining balance for the measure should be cancelled.
(8) Requests for interim and final payment presented by a beneficiary country are accompanied by a declaration of the National Authorising Officer that declared payments only relate to expenditure supported by receipted invoices or accounting documents of probative value and which comply with the provisions governing eligibility of expenditure for projects assisted by ISPA as specified in Annex III. 2.
(9) All payments of aid granted by the Commission under this financing memorandum shall be made to a central entity, the National Fund, designated by the beneficiary country to receive such payments. As a general rule, payments shall be made by the Commission to a single bank account designated by the beneficiary country no later than two months after receipt of a valid and complete application for payment. This deadline does not apply for the advance payment. The National Fund shall transfer as quickly as possible and in full the ISPA contribution to the body responsible for the implementation.
(10) The National Fund, as headed by the National Authorising Officer, is to have overall responsibility for the management of the funds within the beneficiary country concerned. This officer shall also be responsible for refunding any overpaid or unduly amounts to the Commission.
The responsibilities of the National Authorising Officer are laid down in the Memorandum of Understanding concluded between the Commission and the beneficiary countries.
Section IV
Use of the Euro
(1) The amounts in the applications for assistance, together with the relevant financing plan, shall be expressed in Euro.
(2) The amounts of assistance and the financing plans approved by the Commission shall be expressed in Euro.
(3) Declarations of expenditure in support of the corresponding payment applications shall be expressed in Euro.
The conversion rate to be used shall be the Commission's financial accounting rate applicable for the month in which the declaration of expenditures are registered in the accounting documents of the responsible authorities in charge of the financial management of the project. The monthly conversion rate is fixed according to the provision mentioned in Article 1 (2) of the Commission Regulation ( EURATOM,ECSC,EC) n° 3418/93 laying down detailed rules for the implementation of certain provisions of the Financial Regulation of 21 December 1977. The conversion rate is the rate on the penultimate working day of the month preceding that for which rates are established. The Commission will inform the responsible authorities of this rate.1
(4) Payments of financial assistance by the Commission shall be made in Euro to the authority designated by the beneficiary country to receive such payments.
Section V
The Final Report
The authority or body responsible for the measure is to submit a final report to the Commission within six months of completion of the measure. The final report will contain the following:
(a) a description of the work undertaken, accompanied by physical indicators, quantification of expenditure by category of work and the measures taken with regard to the specific clauses contained in the decision to grant assistance;
(b) certification of the conformity of the work with the decision granting assistance;
(c) a first assessment of the extent to which the expected results have been achieved, including notably:
- the effective date of implementation of the measure;
- an indication of the way in which the measure will be managed once completed;
- confirmation, if appropriate, of financial forecasts, especially as regards operating costs and expected revenues;
- confirmation of the socio-economic forecast, especially the expected costs and benefits;
- an indication of the actions taken to ensure protection of the environment and their cost including compliance with the polluter-pays principle.
- the date at which the assisted measure became operational,
(d) information relating to publicity actions.
Section VI
Amendments to financing memorandum
(1) If the public or equivalent expenditure actually incurred differs from the expenditure initially planned, the Community assistance granted will be varied to take account of this but may not exceed the maximum amount stated in the financing memorandum.
A change in the rate of community assistance from the initially granted rate or of the maximum of the grant will require a modification of the financing memorandum in accordance with the procedure described in paragraph (3).
(2) If, when the financing plan for a project is amended, the Community commitments and/or payments already made exceed the amounts entered in the amended financing plan, the Commission shall, when authorising the first financial operation (commitment or payment) after that amendment, make an adjustment to take account of the amount over-committed or over-paid.
(3). Any amendments to the financing memorandum shall be made in accordance with the following procedures:
(a) Amendments which entail a substantial change in the objectives or characteristics of the project, or a substantial change in the financing plan or schedule of expenditure, shall be made by means of a financing memorandum taken in response to a request by the beneficiary country or at the initiative of the Commission after consultation with the beneficiary country. The definition of a "substantial" change is given within the provisions governing eligibility of expenditure.
(b) In the case of other amendments, the beneficiary country shall send to the Commission a proposal for amendment. The Commission shall make its comments or signify its agreement within twenty working days of receipt of the proposal. The amendments shall be adopted when the Commission has given its agreement. The ISPA management Committee is informed of such amendments.
(c) Any change in annual expenditure of less than 25% of the total expenditure planned for the project shall not be regarded as a substantial change of the financing plan and of the schedule of expenditure.
Section VII
Financial Control
(1) Appropriate internal and external financial controls are to be carried out in accordance with internationally accepted audit standards by the competent national financial control authority, which must be independent in order to perform this function. Each year an audit plan and a summary of the findings of the audits carried out are to be sent to the Commission. Audit reports will be at the disposal of the Commission.
(2) Without prejudice to checks carried out by beneficiary countries, the Commission services and the Court of Auditors may, through their own staff or duly authorized representatives, carry out on-the-spot technical or financial audits, including sample checks and final audits.
(3) The beneficiary country is to ensure that when Commission staff or its duly authorised representatives and or the Court of Auditors perform checks, these persons have the right to inspect on-the-spot all relevant documentation and accounts pertaining to items financed under the financing memorandum. The beneficiary countries are to assist the Commission services and the Court of Auditors to carry out audits relating to the utilisation of funds granted under ISPA.
(4) The detailed implementing provisions of the principles for financial control together with arrangements for cooperation and for coordination of programming and methodology of control between the Commission and the beneficiary countries are specified in Annex III.4.
Section VIII
Recovery of undue payments
(1) If the implementation of a measure appears not to justify either a part or the whole of the assistance allocated, the Commission is to conduct an appropriate examination of the case, in particular requesting the beneficiary country to submit its comments within a specified period of time and to correct any irregularity.
(2) Following the examination referred to in paragraph 1, the Commission may reduce, suspend or cancel assistance in respect of the measures concerned if the examination reveals irregularity, an improper combination of funds or a failure to comply with one of the conditions in the financing memorandum and in particular any significant change affecting the nature or conditions of implementation of the measure for which the Commission's approval has not been sought. Any reduction or cancellation of the assistance is to give rise to recovery of the sums paid.
(3) Where the Commission considers that an irregularity has not been corrected or that all or part of an operation does not justify either all or part of the assistance granted to it, the Commission is to conduct a suitable examination of the case and request the beneficiary country to submit its comments within a specified period. After the examination, if the beneficiary country has undertaken no corrective measures, the Commission may:
(a) reduce or cancel any advance;
(b) cancel all or part of the assistance granted to the measure.
The Commission is to determine the size of a correction taking into account the nature of the irregularity and the extent of any failures in the management and control systems.
(4) Any sum wrongly paid shall be repaid to the Commission by the authority specified under section III (9). If this authority does not repay the amount due to the Community, the beneficiary country shall refund this amount to the Commission. Interest on account of late payments shall be charged on sums not repaid by applying the rules specified in the Financial Regulation governing the Community Budget.
Section IX
Management
(1) The Commission shall require the beneficiary countries:
(a) to establish as from 1 January 2000 and in any event not later than 1 January 2002, management and control systems which ensure:
- The proper implementation of the assistance granted under this Memorandum in accordance with the principles of sound financial management,
- The separation of the functions of management and control,
- That expenditure declarations presented to the Commission are accurate and emanate from accounting systems based on supporting documents which are open to verification;
(b) to verify on a regular basis that the measures financed by the Community have been properly carried out;
(c) to prevent irregularities and take action against them;
(d) to recover any amounts lost as a result of irregularity or negligence.
(2) Management and control systems of beneficiary countries are to provide a sufficient audit trail, as defined in Annex III. 4 enclosure A, in order to allow, in particular, for:
- Reconciliation of the summary accounts certified to the Commission with the accounting records and supporting documents at the various administrative levels,
- Verification of the transfers of the available Community and other funds,
- Examination of the technical and financial plans of the project, progress reports, tendering and contracting procedures at the various administrative levels.
Section X
Monitoring
The beneficiary countries and the Commission shall ensure that the implementation of the measure is monitored and evaluated in accordance with the following provisions:
(1) Monitoring committees are to be set up by arrangement between the beneficiary country concerned and the Commission. The authorities or bodies designated by the beneficiary country, the Commission and where appropriate, the EIB and/or other co-financing institution will be represented on the committees. Where regional and local authorities and private enterprises are competent for the execution of a project and where they are directly concerned by a project they will also be represented on such committees.
(2) Monitoring is to be carried out by means of jointly agreed reporting procedures, sample checks and, if appropriate by the establishment of ad hoc committees. It is to be carried out by reference to physical and financial indicators. The indicators will relate to the specific character of the project and its objectives. They will be arranged in such a way as to show the stage reached in the measure in relation to the plan and objectives originally laid down and the progress achieved on the management side and any related problems.
(3) (a) For each measure, the National ISPA Coordinator is to submit progress reports to the Commission within three months of the end of each full year of implementation.
(b) For the meetings of the monitoring committees the National ISPA Coordinator is to submit progress reports according to the standard model provided by the Commission. The report has to be in the hands of the Commission 15 working days ahead of the scheduled meeting.
(4) On the basis of the results of monitoring and taking account of the comments of the monitoring committee, the Commission is to adjust the amounts and conditions for granting assistance as initially approved, as well as the financing plan envisaged, if necessary on a proposal by the beneficiary countries.
The Commission will define the appropriate arrangements for these adjustments differentiating them according to their nature and importance.
Section XI
Transparency in the award of contracts
(1) The procedure to be followed for the award of works, supply or service contracts will respect the key principles enshrined in Title IX of the Financial Regulation applicable to the general budget of the European union.
(2) (a) Participation in tendering procedures shall be open on equal terms to all natural and legal persons coming within the scope of application of the Treaty and to all natural and legal persons in the beneficiary countries of ISPA
The specifications shall therefore require tenders to state their nationality and to present the supporting evidence normally acceptable under their own law.
(b) In duly justified cases such as co-financing with International Financing Institutions and after early examination by the ISPA Management Committee, the Commission may allow nationals of third countries to tender for contracts.
(3) (a) The beneficiary countries shall take the necessary measures to guarantee as wide a participation as possible. To this end and when required by the value of the contracts, they shall ensure an advance publication of invitation to tender in the Official Journal of the European Communities and the official gazette in the beneficiary country.
(b) They will also eliminate any discriminatory practice or technical specifications liable to hamper wide participation on equal terms by all natural or legal persons of the Member States and of beneficiary countries.
(c) In addition information has to be launched in a transparent form on Internet.
(4) Detailed procedure for tendering and contracts are laid down in the Decentralised Implementation System (DIS) manual established for Phare programmes.
Section XII
Transparency in Accounting
and project reports
The beneficiary country shall ensure that, for the measure to which the financing memorandum relates, all public or private bodies involved in the management and implementation of the operations maintain either a separate accounting system or an adequate accounting codification of all transactions concerned which will facilitate the verification of expenditure by the Community and by national control authorities. They must also ensure that all expenditure is correctly attributed to the project concerned.
The responsible authorities are to keep available all the supporting documents regarding expenditure on any project for a period of five years following the last payment in respect of a project.
Section XIII
Ex-post Evaluation
Ex-post evaluation is to cover the utilisation of resources and the effectiveness and efficiency of assistance and its impact. It is to cover the factors contributing to the success or failure of implementation of measures and the achievements and results
After the completion of measures, the Commission and the beneficiary countries will therefore evaluate the manner, including the efficient and effective use of resources, in which they have been carried out. The evaluation will also cover the actual impact of their implementation in order to assess whether the original objectives have been achieved. This evaluation will, inter alia, address the contribution made by measures to the implementation of Community policies on the environment or its contribution to extended Trans-European networks and common transport policies. They will also assess the environmental impact of the measures.
Annex III.2
Provisions governing eligibility of expenditure for measures assisted by ISPA
Section I
Domain of expenditure
The ISPA provides assistance for the following measures:
1. Environmental projects enabling the beneficiary countries to comply with the requirements of Community environmental law and with the objectives of the Accession Partnerships;
2. Transport infrastructure projects which promote sustainable mobility and in particular those that constitute projects of common interest based on the criteria of Decision N° 1692/96/EC2 and those which enable the beneficiary countries to comply with the objectives of the Accession Partnerships; this includes interconnection and interoperability of national networks as well as with the Trans-European Networks together with access to such networks;
3. Preliminary studies, appraisals, and technical support measures including information and publicity actions related to eligible projects. This includes technical and administrative assistance to the mutual benefit of the Commission and the beneficiary countries which do not fall within the standing remit of the national public administration, covering the identification, preparation, management, monitoring , audit and supervision of projects.
The rules specified in sections II to XII below relate to projects listed under items 1 and 2 above they are, however, applied by analogy to decisions for projects listed under item 3.
Section II
Basic definitions and concepts
1. Concept of project, stage of
a project and group of projects
For the purpose of this document, the following definitions shall apply:
a) a "project" shall be an economically indivisible series of works fulfilling a precise technical function and with clearly identified aims.
b) a "technically and financially independent stage" shall be a stage which can be identified as operational in its own right.
A stage may also cover preliminary, feasibility and technical studies needed for carrying out a project.
c) projects meeting the following three conditions may be grouped:
- they must be located in the same water course or catchment area or situated along the same transport corridor;
- they must be carried out under an overall plan for the water course or catchment area or corridor with clearly identified goals;
- they must be supervised by a body responsible for co-ordinating and monitoring the group of projects in cases where the projects are carried out by different competent authorities.
2. The "body responsible
for implementation"
(a) For projects assisted by ISPA the "body responsible for implementation" is the body responsible for the tenders and contracting. This body is indicated in Annex I, point 3, of the financing memorandum.
As a consequence, any change of the "body responsible for implementation" of a project has to be approved by the Commission in a financing memorandum.
This body is normally referred to as the final beneficiary of the financial assistance from ISPA. Only this body executes eligible expenditure.
(b) However this body may delegate the implementation to another body who can also execute eligible expenditure. In such cases the Commission must be informed of the type of delegation proposed and must receive a copy of the relevant documents .
3. The concept of
"public administration"
Public administration is meant to embrace the following three levels of general government:
- Central government bodies, (national level);
- Regional government bodies;
- Local government bodies.
In addition this concept may include bodies whose activities are undertaken within an administrative and legal framework by virtue of which they are regarded as equivalent to public bodies.
4. Implementation and period
of implementation of a project
(a) The implementation of a project is considered to cover all stages from preliminary planning (including the study of alternatives) to the completion of the approved project and publicity measures for an assisted project.
(b) The financing memorandum can apply to one or several of the above stages.
(c) The implementation period of a project concerns, as a general rule, the period necessary for the completion of the above stages until the point in time at which a project becomes fully operational and at which the physical object described in the financing memorandum has been completed.
5. Transparency
and documentary evidence
Any expenditure declared to the Commission should be based on legally binding agreements and/or documents. Appropriate documentary evidence is imperative.
In order to maximize transparency and to permit the audit of expenditure by the Commission and/or by the competent national financial control authority, each beneficiary country must ensure that any body involved into the management and the implementation of projects has set up a separate accounting record covering the project described in the financing memorandum.
6. Expenditure
Expenditure must relate to payments certified and actually made by the body responsible for implementation, supported by receipted invoices or accounting documents of equivalent probative value.
"Accounting document of equivalent probative value" means any document submitted by the authority defined in point 2 of this section to prove that the book entry gives a true and fair view of the actually implied transactions in accordance with standard accountancy practices. Prior agreement of the Commission is necessary when accounting document of equivalent probative value are used.
Section III
Main categories of eligible expenditure.
As a general rule expenditure relating to
- feasibility studies,
- planning and design including environmental impact assessment,
- site preparation,
- building and construction,
- plant and machinery permanently installed in the project,
- testing and training,
- project management,
- compensatory or mitigation measures of the environmental impact,
- other types of expenditure specified in a financing memorandum,
- measures undertaken pursuant to the provisions of Annex III 6 on information and publicity
are eligible subject to the qualifications specified hereafter.
Section IV
Feasibility studies,
project planning and design
1. Expenditure related to
feasibility studies, planning
and design of projects
(a) Expenditure related to feasibility studies, planning including environmental impact assessment studies, project-related expertise and design of projects are, as a general rule, eligible, provided that such expenditure is directly linked to one or several projects and specifically approved by a financing memorandum.
(b) In those cases where several projects are covered by a contract or where the body responsible for implementation is executing the above functions on its own account, costs have to be imputed by means of a transparent and separate project accounting system based on accounting documents or documents of equivalent probative value (e.g. by means of a time allocation system).
2. Involvement of public
administration
In those cases where employees from the public administration, are involved in the activities mentioned under point 1 (a) of this section, expenditure can only be accepted by the Commission as eligible in duly justified cases according to all of the following criteria:
- the employee must have temporarily left his statutory employment in the public administration;
- expenditure must be based on a contract related to one or several specified project; in the case where a contract relates to several projects, costs have to be allocated in a transparent manner (e.g. by means of time sheets);
- expenditure must be directly linked to one or more individual projects concerned;
- the contract must be limited in time and must not exceed the time limit set for the completion of the project;
- the tasks to be executed under that contract must not cover general administrative functions, as specified herein under section VIII, point 1;
- this provision must not be used to circumvent community public procurement procedures.
Section V
Site preparation and construction
(a) In those cases where the body responsible for implementation is executing site preparation or construction works, or parts thereof, on its own account, costs have to be imputed by means of a transparent and separate project accounting system based on accounting documents or documents of equivalent probative value.
In cases where public administration employees are involved the provisions specified in section IV, point 2, apply.
(b) Eligible costs shall include only costs actually borne after the dates specified in section X, point 1, and related directly to the project. Eligible cost may include all or any of the following categories:
- labour costs (gross wages and salaries);
- charges for using durable equipment during construction;
- cost of products used for the implementation of the project;
- overheads and other cost items, if specifically justified; they are to be allocated in an equitable manner, in accordance with generally recognised accounting standards.
- imputed overheads are not eligible in the case where the body mentioned under (a) above is a public administration.
(c) As a general rule, cost should be valued at market prices.
Section VI
Purchase, lease of equipment
and intangible assets
1. Durable equipment that is part
of capital expenditure of the project
(a) Expenditure on purchase or production of plant and equipment that is to be permanently installed and fixed in the project is eligible, provided that it is placed under inventory of durable equipment of the body specified under Section II (2) and that it is treated as capital expenditure in accordance with standard accounting conventions.
(b) Without prejudice to Section IX (3), the lease of such equipment is considered as part of the operation cost and is not eligible.
2. The purchase of intangible assets
The purchase and use of intangible assets, as for example patents, are eligible if they are necessary for the implementation of the project .
3. Durable equipment used
for the implementation of a project
(a) In the cases where the body responsible for implementation is executing site preparation or construction works, or parts thereof on its own account, expenditure on the purchase or production of durable equipment that is employed during the implementation phase of a project is not eligible. This concerns heavy construction machines as well as office and other types of equipment.
(b) Durable equipment that is expressly purchased or produced for implementing a project can be considered eligible if it is without economic value or scrapped after use and if so specified in the financing memorandum.
4. Durable equipment used
by public administrations
(a) Expenditure on the purchase and leasing of durable equipment used by public administration is not eligible.
(b) Without prejudice to Section VIII (2) and (3), expenditure on equipment and leasing charges for equipment used by a public administration in the pursuit of its monitoring and supervision task can be eligible with the agreement of the Commission.
Section VII
Land purchase and Value Added Tax
Land purchase and value Added tax (VAT) are not eligible.
Section VIII
Administrative expenditure
1. General principle
As a general rule, expenditure incurred by public administrations, including salaries of national, regional and local statutory employees are not eligible for assistance (including technical assistance) except for dully documented expenditure arising from the obligation to carry out financial cheeks, financial and physical monitoring, evaluation and prevention of irregularities and expenditure entered into under the obligation to recover amounts lost.
With the exception of the National Fund, costs including salaries linked to the temporary employment, at the initiative of the Commission, of staff whether temporary civil servants or staff from the private sector for work involving management, follow up, evaluation and control are eligible under the technical support measure as defined in Section I (3).
Equipment for monitoring purposes may be eligible if specifically allowed by a technical assistance measure mentioned within the financing memorandum.
2. Organisation of
Monitoring Committees
(a) Without prejudice to point 1 above expenditure incurred for the organization of statutory monitoring is eligible on presentation of documentary evidence.
(b) Allowable costs may, as general rule, include one or more of the following categories:
- interpreter services,
- lease of meeting room and ancillary arrangements,
- lease of audio-visual and other necessary electronic equipment,
- provision of documentation and related facilities,
- fees for participation of experts,
- travel expenditure.
(c ) Salaries and allowances of public administration employees incurred in this context are not eligible.
3. Meetings upon request
of the Commission
The rules specified in point 2 above may be applied by analogy for the organisation of ad hoc meetings upon the request of the Commission.
Section IX
Other types of expenditure
1. Project management
and project supervision
Expenditure related to project management and project supervision is, as a general rule, eligible. The provisions specified in Section IV (1) and (2) apply.
2. Financial charges
Any type of financial charge linked to the realization of a project is not eligible; this concerns in particular interest on interim financing, bank fees, provision fees, etc.
Bank guarantees related to bank loans used for the financing of project can be eligible with the agreement of the Commission.
3. Financing techniques
not implying an immediate
transfer of asset ownership
Without prejudice to point 2, financing techniques, which do not necessarily imply an immediate transfer of asset ownership, can be considered eligible, if justified and approved in the financing memorandum.
The beneficiary country has to demonstrate through a risk analysis that the technique used is economically more advantageous than outright acquisition of an asset.
4. Operating expenditure,
running costs of assisted projects
(a) Any type of operating cost incurred after the completion of a project is not eligible.
(b) Notwithstanding point (a) above training of operating personnel and testing of a project and of its equipment may be taken into consideration as eligible expenditure for a necessary period defined in a financing memorandum.
(c ) The principles defined in points (a) and (b) above hold also for a completed individual part of a project or a grouped project, albeit the total project has not yet been completed.
5. Publicity and information measures
Expenditure for measures undertaken pursuant to the provisions of Annex III.6. on information and publicity is eligible.
Section X
Period of Eligibility
1. Initial time limit on eligibility
The initial time limit on eligibility is assessed differently according the two following situations:
(a) when project selection, tendering and contracting by applicant countries is subject to ex-ante approval by the Commission3, expenditure is eligible for assistance from the date the financing memorandum related to this project is signed by the Commission.
In exceptional cases and when project funding is made up of a combination of loan either from the EIB or another financial institution and ISPA grant, expenditure is eligible for assistance from the date of the agreement of the EIB or of the other financial institution on the particular project. As a general rule this date should not be earlier than 6 months from the date mentioned under the first sub paragraph. The following conditions are a prerequisite:
- The works and the contracts for which the provision shall apply must be identified in the financing memorandum;
- The EIB or other financial institution certify that the provisions of Articles 108(2), 109 (2) and (3), 114 (1), 115, 117 and 118 of the Financial Regulation applicable to the general budget of the European Communities are respected;
In the above cases the Commission is, as a general rule, disposed to apply after examination by the ISPA Management Committee the provision of Article 114 (2) of the Financial Regulation applicable to the general budget of the European Communities.
(b) after the decision of the Commission to confer aid on implementing agencies in applicant countries on a decentralized basis4, expenditure is eligible for assistance from the date on which the application reaches the Commission ( ISPA service) provided that the application can be considered complete.
Payments made before the dates specified in (a) and (b) above are not eligible.
2. Modification of projects
(a) Any modification of an approved project, which equals or is above EUR 5 million or 20% of its total cost whatever is the lowest, is deemed to be a "substantial" modification of the project. Major modifications to the physical objects of a project that are such that the nature of this project is changed are also treated as " substantial".
The rules set up under paragraph 1 apply for the eligibility of expenditure related to those modifications as defined above.
(b) For any other modification of a project, expenditure related to the new additional or extended physical elements are eligible from the time at which the request for modification reaches the Commission ( ISPA service).
(c) Request for modifications and the relevant information attached to it can be presented at a Monitoring Committee. A record of the request and of the deposition of material must be made in the minutes of the meeting.
3. Final time limit on eligibility
(a) The final date of eligibility is specified, as a general rule, in Article 4, paragraph 3 of the financing memorandum.
(b) The final date relates to payments made by the body responsible for implementation.
(c) The final date of eligibility is laid down in the relevant financing memorandum. After that date has expired the beneficiary state disposes of a period of six months to submit to the Commission the final payment claim together with the final report and a statement as specified in Section III (6) of Annex III.1 and in enclosure B of Annex III. 4 to the financing memorandum.
(d) The Commission cannot extend this six -months period.
Section XI
Payment claims
Payment claims presented to the Commission by beneficiary countries are based on declarations of expenditure actually paid out as defined in section II point 6.
In the case of work undertaken by a concessionaire or equivalent body, the responsible government authority must certify the correctness of the expenditure.
Payment claims must be registered and certified by the National Authorising Officer. Claims are then forwarded to the Commission via the Commission Delegation.
Section XII
Other items not specifically specified
(1) Whenever questions arise which are not specifically dealt with in these principles governing eligibility of expenditure in the framework of projects assisted by ISPA the matter shall be discussed with the Commission. The Commission will endeavor to handle open questions in the spirit enshrined in these principles and with due reference to the principles established for the Cohesion Fund.
(2) In case of a conflict between these principles and those under national eligibility rules the above-mentioned principles shall take precedence.
1 http://europa.eu.int/comm/dg19/infoeuro/fr/index.htm
2 Decision N° 1692/96/EC of the European Parliament and the Council of 23 July 1996 on Communiy guidelines for the development of the Trans-European Transport network.
3 See Article 12, (1), of Concil Regulation (EC) n° 1266/99 of 21 June 1999.
4 See Article 12, (2), of Concil Regulation (EC) n° 1266/99 of 21 June 1999.
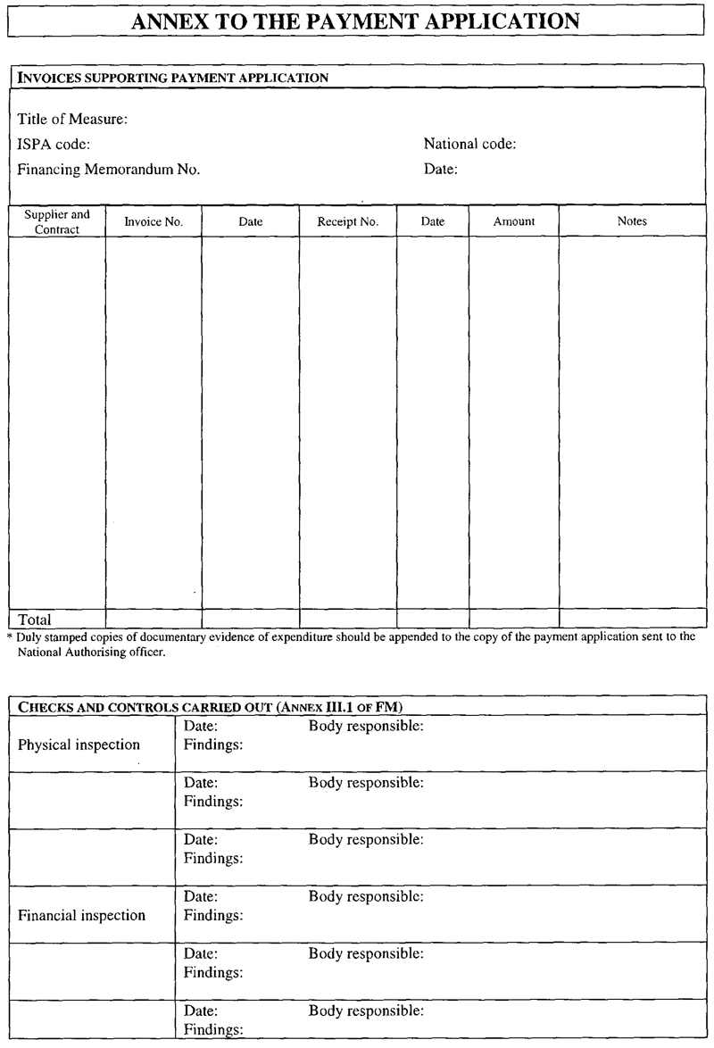
Annex III. 3 a
Annex III. 3 b
Annex III. 3 c
Annex III. 4
Agreement on Minimum Requirements for Financial Control Applicable to ISPA Assisted Measures
Section 1
The Agreement on Minimum Requirements for Financial Control Applicable for ISPA Assisted Measures (hereinafter referred to as MRFC) shall apply to financial assistance provided under the present financing memorandum and implemented by the administration of a beneficiary country.
Section 2
1. Beneficiary countries' management and control systems shall:
(a) ensure the proper implementation of the forms of assistance in accordance with the objectives of sound financial management;
(b) provide satisfactory certification of the validity of claims for intermediate and final payments based on expenditure actually incurred;
(c) provide a sufficient audit trail;
(d) specify the organisation of responsibilities and in particular the controls applied at the different levels to guarantee valid certifications;
(e) facilitate the identification of possible weaknesses or risks in the execution of actions and projects;
(f) provide for corrective measures to be taken to eliminate weaknesses, risks or irregularities identified in the course of project execution, in particular as regards financial management.
2. For the purposes of MRFC, a sufficient audit trail is one which answers to the description given in Enclosure A.
Section 3
1. Beneficiary countries shall organise controls of measures and projects (hereinafter referred to as controls) on a total or an appropriate sampling basis, designed in particular to:
(a) verify the effectiveness of the management and control systems in place;
(b) verify selectively, on the basis of risk analysis, expenditure declarations made at the various levels concerned.
2. Beneficiary countries shall seek to spread the implementation of the controls evenly over the period concerned.
3. The selection of the sample of measures and projects to be subject to controls shall take into account:
(a) the need to control an appropriate mix of types and sizes of projects;
(b) any risk factors which have been identified by national or Community controls;
(c) the concentration of projects under certain implementing authorities or certain final beneficiaries, so that the main implementing authorities and final beneficiaries are subject to the same likelihood of control before the closure of each project.
Section 4
Through the controls, the beneficiary countries shall seek to verify the following:
(a) the practical application and effectiveness of the management and control systems;
(b) for an adequate number of accounting records, the correspondence of those records with the supporting documents at the level of the final beneficiary and the intermediate authorities;
(c) the presence of a sufficient audit trail;
(d) for an adequate number of expenditure items, that the nature and timing of the relevant expenditure (commitments and payments) correspond to the Community requirements, to the approved physical characteristics of the project and to the works actually executed;
(e) that the use or intended use of the project is consistent with the use described in the application for Community co-financing;
(f) that financial contributions are within the limits provided for in the financing memorandum and are paid to final beneficiaries without any reductions or unjustified delays;
(g) that the appropriate national co-financing has in fact been made available;
(h) that the co-financed measures have been implemented in accordance with the provisions of the financing memorandum relating to the assisted measure.
Section 5
The controls shall establish whether any problems encountered are of a systemic character, carrying a risk for other; they shall also identify the causes of such situations, any further examination which may be required and the necessary corrective and preventive action.
Section 6
Each beneficiary country and the Commission shall consult at least once a year with a view to co-ordinating their programmes of controls so as to maximise the useful effect of the overall resources devoted to controls at national and Community level. These consultations shall cover the risk analysis techniques to be applied and shall take account of recent controls, reports and communications by national authorities, the Commission and the European Court of Auditors.
Section 7
1. Beneficiary countries shall ensure investigation and satisfactory treatment of apparent irregularities reported following national or Community controls.
2. If an apparent irregularity has not received satisfactory treatment within six months of being reported to the implementing authority concerned, the beneficiary country shall inform the Commission of the situation, unless it has already done so pursuant to Annex III .5
3. For the purposes of paragraphs 1 and 2, 'satisfactory treatment` shall mean the presentation, by the final beneficiary or the implementing authority to the appropriate person or organisation responsible for control in the beneficiary country, of sufficient evidence that the apparent irregularity does not exist or has been corrected.
If an irregularity is of a systemic character, satisfactory treatment shall further mean the adoption of the necessary steps for the correction of the cases which have not been individually identified by the controls and for the prevention of recurrence.
4. The evidence referred to in paragraph 3 may consist of copies of the accounting records and supporting documents or any other necessary element.
Section 8
1 No later than at the time of the request for the final payment in respect of an assisted measure, beneficiary countries shall present to the Commission a statement, of which an indicative model is given at Enclosure B drawn up by a person or organisation functionally independent of the implementing service. The statement shall summarise the conclusions of the control examinations made in the previous years and provide an overall conclusion as to the validity of the request for the final payment and the legality and regularity of the operations underlying the final declaration of expenditure.
2. If the presence of important management or control weaknesses or the high frequency of irregularities encountered does not allow the provision of a positive overall assurance as to the validity of the request for final payment, the statement shall refer to these circumstances and shall estimate the extent of the problem and its financial impact.
In such a case the Commission may ask that a further control be carried out with a view to the identification and rectification of irregularities within a specified period of time.
Section 9
Beneficiary countries shall inform the Commission by 30 June each year and for the first time by 30 June 2002 at latest of their application of the MRFC in the previous calendar year, with special reference to the requirements of Section 2 and including any necessary completion or updating of the description of their management and control systems required in Section IX of Annex III.1.
Section 10
The Commission and the beneficiary countries shall work together to ensure that the objectives of this agreement are achieved within the framework of the administrative arrangement drawn up with each beneficiary country.
Section 11
1. The persons or organisations responsible for the implementation of the Community co-financed operations shall ensure that all documents and accounting records required for the controls are supplied to the officials responsible for the controls or to the persons empowered for that purpose.
2. The officials responsible for the controls or the persons empowered for that purpose may require that extracts or copies of the documents or the accounting records referred to in paragraph 1 be supplied to them.
Section 12
Information collected in the course of the controls shall be protected by professional secrecy, in accordance with the relevant provisions of national and Community law. It may not be communicated to any persons other than those who, by reason of their duties in the beneficiary countries or in the institutions of the Community, are required to have knowledge thereof for the purposes of performing those duties.
Section 13
Commission officials shall have access to all documents prepared either with a view to or following the controls carried out under the MRFC and to the date held, including those stored in data-processing systems.
Section 14
Nothing in this agreement on MRFC shall prevent beneficiary countries applying national control rules more rigorous than those prescribed herein.
Enclosure A
Indicative Description of Information Requirements for Audit Trail
A sufficient audit trail, as referred to in Section 2 (3), is present when, for a given form of assistance:
1. Accounting records kept at the appropriate management level provide detailed information about payments made by final beneficiaries for each co-financial project, including the date of the accounting record, the amount of each expenditure item, the identification of the supporting document and the date and method of payment; the records are supported by the necessary documentary evidence (e.g. invoices).
2. In cases of expenditure items relating only partly to the Community co-financed operation, sufficient justification is present of the accuracy of the allocation of the amount between the Community co-financed and the other operations. Similar justification is present also for types of expenditure, which are recognised as eligible within limits or in proportion to other costs.
3. The technical and financial plans of the project, the progress reports, the documents concerning the grant approval, the tendering and contracting procedures, etc., are kept available at the appropriate management level.
4. In reporting payments to an intermediate authority, the information referred to in paragraph 1 is aggregated in a detailed statement of expenditure indicating for each Community co-financed project all individual expenditure items with a view to composing the total certified amount. These detailed statements of expenditure constitute the supporting documents of the accounting records of the intermediate authorities.
5. The intermediate authorities keep accounting records for each individual project and for the summary amounts of expenditure certified each time by the final beneficiaries. In reporting to the officer mentioned in Section III (9) of Annex III. , intermediate authorities present a list of the projects approved under each form of assistance, together with information for each individual project comprising at least a complete identification of the project and the final beneficiary, the date of approval of the grant, the amounts committed and paid, the expenditure period covered and the sums of expenditure by measure and by sub-programme. This information constitutes the supporting documentation of the accounting records of the designated authority and is the basis for the preparation of the declarations of expenditure to be presented to the Commission.
6. In cases of final beneficiaries reporting directly to the designated authority, the detailed statements of expenditure referred to in paragraph 4 constitute the supporting documentation of the accounting records of the designated authority, which is responsible for drawing up the list of projects referred to in paragraph 5.
7. In cases of more than one intermediate authority intervening between the final beneficiary and the designated authority, each intermediate authority for its area of responsibility requires detailed statements of the expenditure amounts processed at the lower level to be used as supporting documentation for its own accounting records of which it reports upwards at least a summary of the expenditure amounts for each individual project.
8. In cases of other models of organisation of the management and information procedures, including computerised data transfers, all authorities concerned obtain sufficient information from the lower level to justify their accounting records and the sums reported upwards, thus ensuring a satisfactory audit trail from the summary amounts certified to the Commission to the individual expenditure items and the supporting documents at the final beneficiary level.
Enclosure B
Indicative model for the statement to be attached to the final payment request
To the European Commission,
Directorate-General
REGIO
Subject: >ISPA assisted measure N° and location<
1. I, ................... (state name, title and service), have examined the final declaration of payments for ................... (indicate the measure assisted by ISPA and the period covered) together with the request to the Commission for payment of the balance of the Community aid.
SCOPE OF THE CONTROLS
2. I conducted the control examination in accordance with the provisions of the MRFC. I planned and performed the examination with a view to obtaining reasonable assurance about whether the final declaration of expenditure and the request for the payment of the balance of the Community aid are free of material misstatement ...................... (Describe briefly the practical steps taken for the execution of the control).
OBSERVATIONS
3. The scope of the control examination has been limited by the following:
(a)
(b)
(c) , etc.
(Indicate any limitations to the control examination for example systemic problems, management weaknesses, lack of audit trail, lack of supporting documentation, cases under legal proceedings, etc.; estimate the amounts of expenditure affected by these limitations and the corresponding Community aid).
4. The control examination, together with the conclusions of any other national or Community controls to which I have had access, revealed a low/high (indicate as appropriate; if high, explain) frequency of errors/irregularities. Any reported errors/irregularities have been satisfactorily treated by the management authorities and they do not appear to affect the amount of the Community aid payable, with the following exceptions:
(a)
(b)
(c) etc.
(Indicate the errors/irregularities which have not been satisfactorily treated, and for each case, the possible systemic character and extent of the problem and the amounts of Community aid which appear to be affected).
CONCLUSION
Either, if there are no limitations to the control examination, the frequency of errors found is low and all problems have been satisfactorily treated:
5 (a) In the light of the control examination and the conclusions of any other national or Community controls to which I have had access, it is my opinion that the final declaration of expenditure presents fairly, in all material respects, the expenditure made in accordance with the regulatory and the programme provisions, and the request to the Commission for the payment of the balance of the Community aid appears to be valid.
Or, if there are certain limitations to the control examination but the frequency of errors is not high, or if there are problems which have not been satisfactorily treated:
5 (b) Except for the matters referred to at point 3 above and (or) the errors/irregularities which do not appear to have been satisfactorily treated as referred to at point 4, it is my opinion, based on the control examination and the conclusions of any other national or Community controls to which I have had access, that the final declaration of expenditure presents fairly, in all material respects, the expenditure made in accordance with the regulatory and the programme provisions, and that the request to the Commission for the payment of the balance of the Community aid appears to be valid.
Or, if there are important limitations to the control examination or the frequency of errors found is high, even if the reported errors/irregularities have been satisfactorily treated:
5(c) In view of the matters referred to at point 3 and (or) given the high frequency of errors revealed at point 4, I am not in a position to express an opinion on the final declaration of expenditure and the request to the Commission for the payment of the balance of the Community aid
Annex III.5
Agreement with respect to Irregularities, Recovery of Sums Wrongly Received under ISPA and on-the-spot checks
Section 1
This agreement shall not affect the application in the beneficiary countries of rules relating to criminal proceedings or judicial co-operation between beneficiary countries, the Commission and beneficiary countries in criminal matters.
Section 2
(1) Beneficiary countries shall communicate to the Commission within 3 months of the entry in force of the Financing Memorandum:
- the provisions laid down by law, regulation or administrative action for the application of the measures assisted under ISPA;
- the list of authorities and bodies responsible for the application of the measures, the main provisions relating to the role and functioning of those authorities and bodies and to the procedures which they are responsible for applying.
(2) Beneficiary countries shall communicate forthwith to the Commission any amendments to the information supplied in pursuance of paragraph 1.
(3) The Commission shall study beneficiary countries' communications and shall inform them of the conclusions, which it intends to draw therefrom. It shall remain in contact with the beneficiary countries to the extent necessary for the application of this Section.
Section 3
"Irregularity" shall mean any infringement of a provision of the financing memorandum resulting from an act or omission by an economic operator, which has, or would have, the effect of prejudicing the general budget of the Communities, or of the relevant national law, or by an unjustified item of expenditure.
Section 4
(1) During the two months following the end of each quarter, beneficiary countries shall report to the Commission, the European anti-fraud office, any irregularities, which have been the subject of initial administrative or judicial investigations.
To this end they shall as far as possible give details concerning:
- the details of the measure assisted by ISPA,
- the provision which has been infringed,
- the nature and amount of the expenditure; in cases where no payment has been made, the amounts which would have been wrongly paid had the irregularity not been discovered, except where the error or negligence is detected before payment and does not result in any administrative or judicial penalty,
- the total amount and its distribution between the different sources of financing,
- the period during which, or the moment at which, the irregularity was committed,
- the practices employed in committing the irregularity,
- the manner in which the irregularity was discovered,
- the national authorities or bodies which drew up the official report on the irregularity,
- the financial consequences, the suspension if any of payments and the possibilities of recovery,
- the date and source of the first information leading to suspicion that an irregularity was in evidence,
- the date on which the official report on the irregularity was drawn up,
- where appropriate, the beneficiary country and the third countries involved,
- the identity of the natural and legal persons involved, save in cases where such information is of no relevance in combating irregularities on account of the character of the irregularity concerned.
(2) Where some of the information referred to in paragraph 1, and in particular that concerning the practices employed in committing the irregularity and the manner in which it was discovered, is not available, beneficiary countries shall as far as possible supply the missing information when forwarding subsequent quarterly reports of irregularities to the Commission.
(3) If national provisions provide for the confidentiality of investigations, communication of the information shall be subject to the authorisation of the competent court of tribunal.
Section 5
Each beneficiary country shall forthwith report to the Commission and, where necessary, to the member states concerned, any irregularities discovered or supposed to have occurred, where it is feared that:
- They may very quickly have repercussions outside its territory and/or,
- They show that a new mal-practice has been employed.
Section 6
During the two months following the end of each quarter, beneficiary countries shall inform the Commission, with reference back to any previous report made under Section 4, of the procedures instituted following all irregularities previously notified and of important changes resulting therefrom, including:
- the amounts, which have been, or are expected to be, recovered,
- the interim measures taken by beneficiary countries to safeguard recovery of sums wrongly paid,
- the judicial and administrative procedures instituted with a view to recovering sums wrongly paid and to imposing sanctions,
- the reasons for any abandonment of recovery procedures; the Commission shall, as far as possible, be notified before a decision is taken,
- any abandonment of criminal prosecutions.
Beneficiary countries shall notify the Commission of administrative or judicial decisions or the main points thereof, concerning the termination of these procedures.
Section 7
Should there be no irregularities to report in the reference period beneficiary countries shall inform the Commission of this fact within the same time limit as is set out in Section 4 (1).
Section 8
Where the competent authorities of a beneficiary country decide, at the express request of the Commission, to initiate or continue legal proceedings with a view to recovering amounts wrongly paid, the Commission may undertake to reimburse to the beneficiary countries all or part of the legal costs and costs arising directly from the legal proceedings, on presentation of documentary evidence, even if the proceedings are unsuccessful.
Section 9
1) The Commission shall maintain appropriate contacts with the beneficiary country concerned for the purpose of supplementing the information supplied on the irregularities referred to in Section 4, on the procedure referred to in Section 6, and, in particular, on the possibility of recovery.
2) Independently of the contacts mentioned in paragraph 1 the Commission shall inform beneficiary countries where the nature of the irregularity is such as to suggest that identical or similar practices could occur in other beneficiary countries.
3) The Commission shall organise information meetings at Community level for representatives of the beneficiary countries in order to examine with them the information obtained pursuant to Sections 4, 5 and 6, and pursuant to paragraph 1 of this Section, in particular with regard to the lessons to be learned therefrom in connection with irregularities, preventive measures and legal proceedings.
4) At the request of a beneficiary country or of the Commission, the beneficiary countries and the Commission shall consult each other for the purpose of closing any loopholes prejudicial to Community interests, which become apparent in the course of the enforcement of provisions in force.
Section 10
The Commission shall regularly inform the beneficiary countries, in the framework of fraud prevention, of the order of magnitude of the funds involved in the irregularities, which have been discovered and of the various categories of irregularity, broken down by type and counted up.
Section 11
(1) Beneficiary countries and the Commission shall take all necessary precautions to ensure that the information, which they exchange, remains confidential.
(2) The information referred to in this agreement may not, in particular, be sent to persons other than those in the beneficiary countries or within the Community institutions whose duties require that they have access to it, unless the beneficiary countries supplying it has expressly so agreed.
(3) The names of natural or legal persons may be disclosed to another beneficiary countries or Community institution only where this is necessary in order to prevent or prosecute an irregularity or to establish whether an alleged irregularity has taken place.
(4) Information communicated, or acquired in any form whatever pursuant to this agreement shall be covered by professional confidentiality and be protected in the same way as similar information is protected by the national legislation of the beneficiary countries that received it and by the corresponding provisions applicable to the Community institutions.
In addition, that information may not be used for any purposes other than those provided for in this agreement unless the authorities that have provided it have given their express consent, and provided that the provisions in force in the beneficiary countries in which the recipient authority is to be found do not prohibit such communication or use.
(5) Paragraphs 1 to 4 shall not impede the use, in any legal actions or proceedings subsequently instituted for non-compliance with Community rules in the area of pre-accession aid, of information obtained pursuant to this agreement. The competent authority of the beneficiary countries, which supplied this information, shall be informed forthwith of such use.
(6) Where a beneficiary country notifies the Commission that a natural or legal person whose name has been communicated to the Commission pursuant to this agreement proves on further inquiry not to be involved in any irregularity, the Commission shall forthwith inform all those to whom it disclosed that name pursuant to this agreement of that fact. Such person shall thereupon cease to be treated, by virtue of the earlier notification, as a person involved in the irregularity in question.
Section 12
The amounts recovered shall be shared by the beneficiary countries and the Community according to the joint co-financing rates in proportion to the expenditure already incurred by them.
Section 13
On-the-spot checks and inspections carried out in order to protect the financial interest of the Community against irregularities as defined at section 3 shall be prepared and conducted by the Commission in close co-operation with the competent authorities of the beneficiary country concerned, which shall be notified in good time of the object and purpose of the checks and inspections by reference to this Annex, so that they can provide all the requisite help. To that end, the officials of the beneficiary country concerned may participate in the on-the-spot checks and inspections.
In addition, if the beneficiary country concerned so wishes, the on-the-spot checks and inspections may be carried out jointly by the Commission and the beneficiary country's competent authorities.
Section 14
On-the-spot checks and inspections shall be carried out by the Commission on economic operators, namely the natural or legal persons and the other entities on which national confers legal capacity, where there are reasons to think that irregularities have been committed.
In order to make it easier for the Commission to carry out such checks and inspections, economic operators shall be required to grant access to premises, land, means of transport or other areas, used for business purposes.
Where strictly necessary in order to establish whether and irregularity exists, the Commission may carry out on-the-spot checks and inspections on other economic operators concerned, in order to have access to pertinent information held by those operators on facts subject to on-the-spot checks and inspections.
Section 15
(1) On-the-spot checks and inspections shall be carried out on the Commission's authority and responsibility by its officials or other servants, duly empowered by the relevant Commission regulations, hereinafter called 'Commission inspectors'. Persons placed at the disposal of the Commission by the beneficiary country as national experts on secondment may assist in such checks and inspections.
Commission inspectors shall exercise their powers on production of a written authorisation showing their identity and position, together with a document indicating the subject-matter and purpose of the on-the-spot check or inspection.
Subject to the Community law applicable, they shall be required to comply, with the rules of procedure laid down by the law of the beneficiary country concerned.
(2) Subject to the agreement of the beneficiary country concerned, the Commission may seek the assistance of officials from the beneficiary countries as observers and call on outside bodies acting under its responsibility to provide technical assistance.
The Commission shall ensure that the aforementioned officials and bodies give every guarantee as regards technical competence, independence and observance of professional secrecy.
Section 16
(1) Commission inspectors shall have access, under the same conditions as national administrative inspectors and in compliance with national legislation, to all the information and documentation on the operations concerned which are required for the proper conduct of the on-the-spot checks and inspections. They may avail themselves of the same inspection facilities as national administrative inspectors and in particular copy relevant documents.
On-the-spot checks and inspections may concern, in particular:
- professional books and documents such as invoices, lists of terms and conditions, pay slips, statements of materials used and work done, and bank statements held by economic operators,
- computer data,
- production, packaging and dispatching systems and methods,
- physical checks as to the nature and quantity of goods or completed operations,
- the taking and checking of samples,
- the progress of works and investments for which financing has been provided, and the use made of completed investments,
- budgetary and accounting documents,
- the financial and technical implementation of subsidised projects.
(2) Where necessary, it shall be for the beneficiary country, at the Commission's request, to take the appropriate precautionary measures under national law, in particular in order to safeguard evidence.
Section 17
(1) Information communicated or acquired in any form under this Annex shall be covered by professional secrecy and protected in the same way as similar information is protected by the national legislation of the beneficiary country that received it and by the corresponding provisions applicable to the Community institutions.
Such information may not be communicated to persons other than those within the Community institutions or in the beneficiary country whose functions require them to know it nor may it be used by Community institutions for purposes other than to ensure effective protection of the Communities' financial interests in all beneficiary countries. Where a beneficiary country intends to use for other purposes information obtained by officials participating under its authority as observers in on-the-spot checks and inspections, it shall seek the agreement of the beneficiary country where that information was obtained.
(2) The Commission shall report as soon as possible to the competent authority of the country within whose territory an on-the-spot check or inspection has been performed any fact or suspicion relating to an irregularity which has come to its notice in the course of the on-the-spot check or inspection. In any event the Commission shall be required to inform the aforementioned authority of the result of such checks and inspections.
(3) Commission inspectors shall ensure that in drawing up their reports account is taken of the procedural requirements laid down in the national law of the beneficiary country concerned. The material and supporting documents as referred to in Section 16 shall be annexed to the said reports. The reports thus prepared may be used as (admissible) evidence in administrative or judicial proceedings of the beneficiary country in which their use proves necessary, in the same way and under the same conditions as administrative reports drawn up by national administrative inspectors. They shall be subject to the same evaluation rules as those applicable to administrative reports drawn up by national administrative inspectors and shall be of identical value to such reports. Where an inspection is carried out jointly, the national inspectors who took part in the operation shall be asked to countersigned the report drawn up by the Commission inspectors.
Section 18
Where the economic operators referred to in Section 14 resist an on-the-spot check or inspection, the beneficiary country concerned, acting in accordance with national rules, shall give Commission inspectors such assistance as they need to allow them to discharge their duty in carrying out an on-the-spot check or inspection.
It shall be for the beneficiary country to take any necessary measures in conformity with national law.
Annex III.6
Information and publicity requirements
The rules set out in annex III.6 on information and publicity have still a provisional character. The rules agreed in this financial memorandum do not therefore prejudge the rules, which will be applied for other measures benefiting from ISPA financial assistance.
Rules on detailed Arrangements for Information and Publicity
1. Objectives and scope
Information and publicity measures concerning assistance from ISPA are intended:
- to increase public awareness and transparency of the activities of the European Community,
- to inform the potential beneficiaries and professional organisations about ISPA possibilities.
Information and publicity shall concern all projects for which ISPA provides financial assistance.
The aim of information and publicity measures shall be to inform the general public and also potential and final beneficiaries, including:
- regional, local and any other public authorities,
- the economic and social partners,
- non-governmental organisations,
- project operators and promoters,
- any other interested parties
of the opportunities offered by ISPA.
2. General principles
The body responsible for implementing an ISPA project (hereinafter defined as the "body responsible") shall be accountable for all publicity measures on the spot. Publicity shall be carried out in co-operation with the Commission departments, which shall be informed of measures taken for this purpose.
The body responsible shall take all the appropriate administrative steps to ensure the effective application of these arrangements and to collaborate with the Commission departments.
Information and publicity measures shall be taken in due time, once the assistance of ISPA is decided. The Commission reserves its right to initiate a procedure for a reduction, suspension or cancellation of the ISPA assistance, if a beneficiary country does not fulfil its obligations under the present Annex.
3. Guidelines for information and publicity activities
Notwithstanding the detailed rules laid down under point 4, the following principles shall be applied in accordance with all information and publicity measures:
3.1 The media
The body responsible shall inform the media in the most appropriate manner about actions co-financed by ISPA. European Community participation shall be fairly reflected in this information.
To this end, the formal launch of projects and important phases in their implementation shall be the subject of information measures, particularly in respect of regional media (press, radio, and television). Appropriate collaboration must be ensured with the Commission delegations in the beneficiary countries concerned.
3.2 Information events
The organisers of information events such as conferences, seminars, fairs and exhibitions in connection with the implementation of projects part-financed by ISPA shall make explicit the participation of the European Community. The opportunity should be taken of displaying the European Community flag in meeting rooms and the European Community emblem on documents. The Commission delegations in the beneficiary countries shall assist, if necessary, in the preparation and implementation of such events.
3.3 Information material
Publications (such as brochures and pamphlets) about projects or similar measures should contain on the title page a clear indication of the European Community emblem where the national, regional or local emblem is used.
Where publication includes a preface, it should be signed by both the person responsible in the beneficiary country and, for the Commission, the responsible Member of the Commission or a designated representative, to ensure that European Community participation is made clear. Such publications shall refer to the body responsible for informing interested parties.
The above-mentioned principles shall also apply to audio-visual and web-site material.
4. Obligations of the beneficiary countries
Information and publicity shall be the subject of a coherent set of measures defined by the body responsible in collaboration with the Commission for the duration of the project. Beneficiary countries shall ensure that representatives of the Commission including its delegations are duly involved in the most important public activities connected with ISPA.
When projects are implemented, the body responsible shall take the following measures to indicate the participation of ISPA in the said project:
a) Project-related information
On the spot information and publicity measures shall be taken in order to make the general public aware of European Community assistance through ISPA. The body responsible should publish the content of the projects in the most appropriate form and ensure that such documents are disseminated to the local, regional media and shall hold them available for interested parties. On the spot measures should include:
- billboards erected on the sites,
- permanent commemorative plaques for infrastructures accessible to the general public
both to be installed in accordance with the Special arrangements concerning on site information detailed hereafter.
b) General ISPA-related information
In addition to (a), the body responsible in connection with the National ISPA Co-ordinator is responsible to produce regularly a general information on ISPA assistance allocated in their country, highlighting the implementation of projects and results achieved. This general information should be produced at least once a year and be made available to the Commission for its annual report. This information will take the form of brochures of general interest, professional audio-visual material (e.g. videoclip) and news conferences at appropriate level. This information shall group projects by nature and / or focus on projects of relevant interest. It should be updated yearly and delivered to national, regional televisions and radio stations, to the Commission and, on demand, to other interested parties as defined in par. 1.
5. The work of the Monitoring
Committees
The Monitoring Committees shall ensure that there is adequate information concerning their work. To this end, each Monitoring Committee shall inform the media, as often as they consider it necessary, of the progress of the project(s), for which they are responsible. The Chairman shall be responsible for contacts with the media and shall be assisted by the Commission representative.
Appropriate arrangements shall also be made, in collaboration with the Commission and its delegations in the beneficiary countries, when important events, such as high level meetings or inaugurations, are held.
The Commission representatives in the Monitoring Committee, in collaboration with the body responsible, shall ensure compliance with the provisions adopted concerning publicity, particularly those concerning billboards and commemorative plaques (see special arrangements hereafter).
Information on publicity measures and suitable evidence such as photographs shall be submitted to the Chairman of the Monitoring Committees by the body responsible. Copies of such material shall be transmitted to the Commission.
The Chairman of the Committees shall forward to the Commission all the information needed to take into account for its annual report.
6. Final provisions
The body responsible may, in any event, carry out additional measures if it deems this appropriate.
It shall consult the Commission and inform it of the initiatives it takes so that the Commission may participate appropriately in their realisation.
In order to facilitate the implementation of these provisions, the Commission through its Delegations on the spot shall provide assistance in the form of a manual which will be prepared in the relevant national language. It will contain detailed design guidelines in electronic form (CD-ROM) and will on request by contractors concerned be available from the body responsible or from the National ISPA Co-ordinator.
Special arrangements concerning billboards and commemorative plaques
In order to assure the visibility of ISPA projects, beneficiary countries shall ensure that the following information and publicity measures are complied with
1. Billboards
Billboards shall be erected on the sites of projects assisted by ISPA. Such billboards shall include a space reserved for the indication of the European Community participation.
Billboards must be of a size which is appropriate to the scale of the operation.
The section of the billboard reserved for the European Community must meet the following criteria:
- it shall take up at least 50% of the total area of the billboard,
- it shall bear the standardised European Community emblem and the following text to be presented as in the attached table.
Where the body responsible does not erect a billboard announcing their own involvement in the financing of a project, the European Community assistance must be announced on a special billboard. In such cases, the above provisions concerning the European Community part apply by analogy.
Billboards shall be removed no later than 6 months after the completion of the work and replaced by a commemorative plaque in accordance with the provisions under point 2.
2. Commemorative plaques
Permanent commemorative plaques shall be replaced at sites accessible to the general public. In addition to the European Community emblem, such plaques must mention the European Community contribution to the project.
The following text should be used as a guideline to the contents required:
"This project has been co-financed at % by the European Community. Upon completion in ….. (state year), the total cost of the project was …. (national currency), and the total contribution of the European Community was of….. (national currency)."