
Finansu memorands "Vienošanās starp Eiropas Komisiju un Latvijas Republiku par Pirmsiestāšanās strukturālās politikas instrumenta (ISPA) palīdzības piešķiršanu pasākumam Via Baltica ceļa uzlabošana (Paneiropas koridors I) no 13.0 km (Gauja) līdz 21.2 km (Lilaste) Latvijā"
Eiropas Komisija (turpmāk - KOMISIJA), kura darbojas Eiropas Kopienas (turpmāk - KOPIENA) vārdā un kuru pārstāv Komisijas reģionālās politikas komisārs Michael Barnier,
no vienas puses, un
Latvijas valdība, (turpmāk - SAŅĒMĒJVALSTS),
no otras puses,
VIENOJAS PAR TĀLĀK MINĒTO:
1. pants
2. pantā minētais pasākums tiek īstenots un finansēts no KOPIENAS budžeta līdzekļiem saskaņā ar šī memoranda noteikumiem. 2. pantā minētais pasākums tiek īstenots saskaņā ar Vispārīgiem nosacījumiem, pievienotiem KOMISIJAS un SAŅĒMĒJVALSTS noslēgtajam Vispārējam nolīgumam ko papildina šī memoranda noteikumi un tam pievienotie noteikumi.
2. pants
PASĀKUMA IDENTIFIKĀCIJA
Pirmsiestāšanās strukturālās politikas instruments (ISPA), piešķirot dotāciju, piedalās pasākuma finansēšanā, kā tas izklāstīts I pielikumā:
| Pasākuma numurs: | 2000/LV/16/P/PT/001 |
| Nosaukums: | Via Baltica ceļa uzlabošana |
| (Paneiropas koridors I) | |
| no 13.0 km (Gauja) līdz | |
| 21.2 km (Lilaste) | |
| Ilgums: | Sākuma datums: datums, |
| kurā šo finansu memorandu | |
| paraksta Komisija | |
| Beigu datums: 2003.gada | |
| 31.decembris | |
| Vieta: | Gauja-Lilaste, Carnikavas |
| pagasts, Rīgas rajons | |
| Grupa: | I transporta ceļa koridors |
3. pants
SAISTĪBAS
(1) Saskaņā ar II pielikumu, pasākumam piešķirtās Kopienas palīdzības apjoms ir noteikts 75% apmērā no kopējiem sabiedriskiem vai tiem līdzvērtīgiem izdevumiem.
(2) Maksimālā palīdzība no Pirmsiestāšanās strukturālās politikas instrumenta ir noteikta 4 687 500 eiro apmērā.
(3) 3 750 000 eiro ir piešķirti no 2000.gada budžeta, no budžeta līnijas B7-020. Summas tiek izmaksātas, pamatojoties uz pasākuma sākotnējo vai pārstrādāto finansēšanas plānu, ņemot vērā pasākuma īstenošanas gaitu un atkarībā no budžeta līdzekļu pieejamības.
4. pants
MAKSĀJUMI
(1) Kopienas palīdzība ir piešķirta par tiem pasākumiem, par kuriem SAŅĒMĒJVALSTĪ noslēgtas juridiski saistošas saistības un kuriem konkrēti iedalīti nepieciešamie finansu līdzekļi. Šiem maksājumiem jābūt saistītiem ar I pielikumā aprakstītajiem darbiem.
(2) Maksājumi, kas veikti pirms datuma, kurā Komisija parakstījusi šo finansu memorandu, nevar pretendēt uz Pirmsiestāšanās strukturālās politikas instrumenta palīdzību.
(3) I pielikumā minētais pasākums un maksājumi, ko veic par pasākuma ieviešanu atbildīgā iestāde, ir veikti ne vēlāk kā līdz 2003. gada 31. decembrim.
Pārskats, kas nepieciešams, lai tiktu izmaksāts palīdzības atlikums, jāiesniedz ne vēlāk kā 6 mēnešus pēc iepriekš minētā datuma.
(4) Avansa maksājums ir noteikts 937 500 eiro apmērā un tiek pārskaitīts šādi:
- summa 468 750 eiro apmērā tiek izmaksāta pēc tam, kad šo memorandu ir parakstījusi SAŅĒMĒJVALSTS;
- atlikusī daļa tiek izmaksāta pēc tam, kad SAŅĒMĒJVALSTS ir parakstījusi kontraktu, kas Ia pielikuma iepirkumos norādīts ar numuru "1".
(5) Saskaņā ar III 1. pielikuma III nodaļas 5. punktu, Komisija pieņems, ka pasākumam kopējā avansa maksājuma un starpmaksājumu summa ir 90 % no kopējās piešķirtās palīdzības summas.
5. pants
KOPIENAS LIKUMU
UN POLITIKAS IEVĒROŠANA
Pasākums tiek realizēts saskaņā ar atbilstošajiem Eiropas Līguma noteikumiem un dod ieguldījumu Kopienas politikas īstenošanā, konkrēti saistībā ar transportu un Transeiropas komunikāciju tīkliem.
6. pants
INTELEKTUĀLAIS ĪPAŠUMS
SAŅĒMĒJVALSTS un minētā I pielikuma 3. punktā par pasākuma ieviešanu atbildīgā institūcija nodrošina, lai tiktu saņemtas visas nepieciešamās intelektuālā īpašuma tiesības uz pētījumiem, rasējumiem, plāniem, publicitātes un citiem materiāliem, kas sagatavoti saistībā ar projekta plānošanu, īstenošanu, uzraudzību un vērtēšanu. Tās garantē, ka Komisijai vai jebkurai Komisijas deleģētai institūcijai vai personai būs nodrošināta pieeja šiem materiāliem un tiesības tos lietot. Komisija izmantos šos materiālus tikai saviem mērķiem.
7. pants
ATĻAUJAS UN PILNVAROJUMI
SAŅĒMĒJVALSTS kompetentām institūcijām savlaicīgi un saskaņā ar vietējiem normatīvajiem aktiem jānodrošina jebkura veida atļaujas un pilnvarojumi, kas nepieciešami pasākuma īstenošanai.
8. pants
SPECIFISKI NOSACĪJUMI, KAS SAISTĪTI AR KONKRĒTU PASĀKUMU
Nekādi neierobežojot III pielikuma vispārīgos nosacījumus, Kopienas dotācijas piešķiršana attiecīgajam pasākumam ir atkarīga no šādiem nosacījumiem:
(1) Nosacījums par pieņēmumiem un aktīvu statusu:
Komisija patur tiesības pārskatīt 3. pantā minēto ISPA palīdzības summu, ja piecu gadu laikā kopš darbu pabeigšanas saimnieciskās darbības apstākļi (tarifi, ieņēmumi u.t.t.) būtiski atšķiras no pieņēmumiem, uz kā pamata tika noteikts dotācijas apjoms, un/ vai ir notikušas būtiskas izmaiņas, kas:
a) skar saimnieciskās darbības raksturu vai tās izpildes nosacījumus vai arī nodrošina nepelnītas priekšrocības kādai privātai vai valsts struktūrai;
un
b) radušās saistībā ar jebkuras finansētās infrastruktūras daļas īpašuma formu izmaiņām vai arī saimnieciskās darbības pārtraukšanas vai būtiskas pārveides dēļ.
Saņēmējvalsts par šādām izmaiņām informē Komisiju, un šādu izmaiņu veikšanai ir nepieciešama iepriekšēja Komisijas piekrišana.
(2) Nosacījums par dzīvotspēju
Komisijas dotācija pasākumam ir atkarīga no institūcijām, kas nodrošina nepieciešamos resursus efektīvai aktīvu ekspluatācijai un uzturēšanai.
9. pants
Šī finansu memoranda pielikumos ietvertie ieviešanas noteikumi ir tā neatņemama sastāvdaļa.
Nosacījumu un ieviešanas noteikumu neievērošanas gadījumos Komisija rīkosies saskaņā ar III 1. pielikuma VIII nodaļā noteikto.
10. pants
Šī finansu memoranda autentiskais teksts ir šis dokuments, kas apstiprināts ar šādiem parakstiem.
| Rīgā | Briselē |
| Datums | Datums |
| SAŅĒMĒJVALSTS vārdā | KOPIENAS vārdā |
Pielikumu saraksts
| I pielikums. | Pasākuma apraksts |
| II pielikums. | Finansēšanas plāns |
| III pielikums. | |
| III 1. pielikums. | ISPA finansiālās ieviešanas normas |
| III 2. pielikums. | Normas, kas regulē izdevumu |
| atbilstību ISPA atbalstītajiem | |
| pasākumiem | |
| III 3. pielikums. | Maksājuma pieprasījuma un |
| pārskata par finansu un fizisko | |
| progresu, un izmaiņu | |
| pieprasījuma modelis | |
| III 4. pielikums. | Līgums par minimālajām finansu |
| kontroles prasībām, kas | |
| attiecināmas uz ISPA finansētiem | |
| pasākumiem | |
| III 5. pielikums. | Līgums par neatbilstībām un |
| nepareizi saņemto summu | |
| atmaksāšanu ISPA ietvaros | |
| III 6. pielikums. | Informācijas un publicitātes |
| prasības |
I pielikums
Pasākuma apraksts
Nr. 2000/LV/16/P/PT/001
1. Pasākuma nosaukums
Via Baltica ceļa uzlabošana (I Paneiropas transporta koridors) no 13.0 km (Gauja) līdz 21.2 km (Lilaste)
2. Pieteikuma iesniedzējs
(Nacionālais ISPA koordinators)
| 2.1. | Vārds: | Roberts Zīle, Īpašu uzdevumu |
| ministrs sadarbībai ar | ||
| starptautiskajām finansu | ||
| institūcijām | ||
| 2.2. | Adrese: | Smilšu iela 1, Rīga, |
| LV - 1919, Latvija | ||
| E-pasts: | Andzs.Ubelis@if.gov.lv |
3. Par ieviešanu atbildīgā institūcija
(kā definēts III 2. pielikuma
II (2) nodaļā)
| 3.1. | Nosaukums: | Satiksmes ministrija |
| 3.2. | Adrese: | Gogoļa iela 3, Rīga, LV - 1743 |
| Latvija | ||
| E-pasts: | vlegzdin@sam.gov.lv |
4. Palīdzības gala saņēmējs
(ja tas atšķiras no 3. punktā
minētās institūcijas)
| 4.1. | Nosaukums: | Latvijas autoceļu direkcija |
| 4.2. | Adrese: | Gogoļa iela 3, Rīga, LV - 1743 |
| Latvija | ||
| E-pasts: | valdis@lad.lv |
5. Vieta
| 5.1. | Saņēmējvalsts: | Latvija |
| 5.2. | Reģions: | Gauja-Lilaste, Carnikavas |
| pagasts, Rīgas rajons |
6. Apraksts
Šis projekts ietilpst Via Baltica ceļa uzlabojumu kompleksā (A1 valsts automaģistrāle posmā no Rīgas līdz Ainažiem). Šī automaģistrāle A1 ir apmēram 110 km gara, un tajā ietilpst 5 posmi, kurus līdz 2006. gadam ir plānots modernizēt. Projekts ietilpst vispārējā pasākumu shēmā, kuru mērķis ir Via Baltica atjaunošana un modernizācija saskaņā ar Latvijas nacionālo ISPA stratēģiju.
Ceļu posma Gauja-Lilaste uzlabojumi ietver: ceļa paplašināšanu (no 8.2 m uz 11.5 m seguma platuma); 10 ceļu krustojumu pārbūvi; ceļa joslu pielīdzināšanu; stāvvietu, atpūtas vietu un tualešu izveidi/ modernizāciju divlaidumu tilta pār Lilasti nomaiņu ar vienlaiduma dzelzsbetona tiltu; un jauna asfalta uzliešanu. Ceļš tiek projektēts saskaņā ar ES Direktīvu 96/53/EC (maksimālā slodze uz asi 11.5 tonnas). Posms Gauja-Lilaste sākas tūlīt uz ziemeļiem no Gaujas tilta, kuram pašlaik tiek veikta rekonstrukcija Phare programmas ietvaros, un beidzas ar Lilastes tiltu, kurš tiks pārbūvēts šī projekta ietvaros.
Via Baltica ir I transporta koridora ceļa daļa no Tallinas līdz Varšavai, TINA ietvaros noteiktajā transporta komunikāciju tīklā. Projekta mērķis ir radīt Eiropas kvalitātei atbilstošu maģistrāli, tādējādi sekmējot tirdzniecību un sakarus starp Somiju, Baltijas valstīm un Poliju, tātad- starp kandidātvalstīm un Eiropas Savienību. Latvijas ceļa posms ir 240 km garš un iet cauri valsts vidienei.
7. Mērķi
Šī projekta mērķis ir uzlabot satiksmi un gājēju drošību, kā arī satiksmes plūsmu, nodrošinot šī ceļa posma atbilstību Eiropas ceļu standartiem un normām. Šis ceļa posms daļēji veido arī pieejas ceļu populārai atpūtas vietai.
| Fiziskie rādītāji | Vienība | Vērtība | |
| Ceļš (11.5 m asfalta segums | |||
| ar kopējo platumu 15 m), | |||
| kurā ir: | km | 8.2 | |
| 4 cm virsslānis | |||
| 6 cm pamatslānis | |||
| 40 cm cementēts | |||
| apakšslānis | |||
| Krustojumi, no kuriem: | Skaits | 10 | |
| 1. Tips | Skaits | 4 | |
| 2. Tips | Skaits | 2 | |
| 3. Tips | Skaits | 4 | |
| Stāvvietas | Skaits | 2 | |
| Tilts (15.5 m kopējais platums) | m | 23 |
Ir gaidāms, ka projekta nodrošinātie uzlabojumi palīdzēs samazināt transporta ekspluatācijas izmaksas, ceļu un tiltu uzturēšanas izmaksas, ceļā pavadīto laiku sastrēgumstundās, kā arī samazinās satiksmes negadījumu skaitu (apm. 3 negadījumi gadā).
8. Darbu grafiks
| Darba kategorija | Sākums | Beigas | |
| Plānošana un | |||
| projektēšana | 01/02/2000 | 04/06/2000 | |
| Zemes iegāde | - | - | |
| Būvniecība | 01/03/2001 | 31/10/2001 | |
| Pārējie | - | - |
9. Ekonomiskā un sociālā izmaksu-
gūtā labuma analīze
Izmaksas :
Alternatīva nedarīt neko: Lilastes tilta remonts un ceļa bituma pamatslāņa atjaunošana dažu gadu laikā, jo tilta un seguma stāvoklis pasliktinās (remonta un apkopes izdevumi laika posmā no 2000. līdz 2021. gadam apmēram 3 400 000 eiro).
Investīciju alternatīva: investīciju izmaksas ir šādas: Lilastes tilts (730 000 eiro) un ceļu remonta darbi (5 520 000 eiro).
Labumi:
- Ietaupījums uz transporta ekspluatācijas izmaksu rēķina:
Ietaupījumi uz degvielas patēriņa un mašīnu uzturēšanas rēķina, pateicoties labākiem braukšanas apstākļiem, labākai ceļu kvalitātei (uzlabotais ceļš - mazāk bedrains)
- Ietaupījumi uz ceļa uzturēšanas rēķina:
Kļūst nevajadzīgas augstās tilta remonta izmaksas
Palielinās ceļa dzīves cikls
Zemākas ceļa periodiskās uzturēšanas izmaksas
- Ietaupījumi uz satiksmes negadījumu rēķina:
Galvenokārt, pateicoties pārprojektētiem ceļu krustojumiem, jaunām stāvvietām un žogam gar ceļu
- Laika ietaupījumi:
Samazināts satiksmes sastrēgumu risks (it īpaši sastrēgumstundu laikā vasarā un nedēļas nogalēs)
- Ietekme uz apkārtējo vidi:
28 pagaidu tiešās darba vietas būvniecības laikā (8 mēneši)
Rezultātu kopsavilkums:
| Pro- | IRR | NPV | B/C | Ietaupījums % | |||
| jekts | Laiks | Uztu- | VOC | Nega- | |||
| Eiro | rēšana | dījumi | |||||
| 14% | 4 531 000 | 1.85 | 22% | 28% | 37% | 12% | |
Projekta ekonomiskajā pamatojumā ievērojamu lomu spēlē gaidāmais satiksmes negadījumu skaita samazinājums.
10. Galvenie finansu analīzes elementi
Neienes ienākumus.
Visus uzturēšanas izdevumus segs Valsts autoceļu fonds, kura valsts ceļu uzturēšanai paredzētā naudas līdzekļu plūsma gadā sasniedz aptuveni 40 miljoni eiro.
11. Ietekmes uz apkārtējo vidi analīze
Projektā iekļauto investīciju tips neatbilst projektiem, kuri apskatīti ES Ietekmes uz apkārtējo vidi novērtējuma (EIA) Direktīvas (85/337/EEC, ar grozījumiem, kas veikti 97/11/EC) I pielikumā, kuriem nepieciešams pilns EIA, tādēļ, ka pat pēc modernizācijas šis ceļa posms tiks klasificēts kā "parasts ceļš"; esošā divu joslu ceļa paplašināšana netiks veikta, izveidojot četras vai vairākas joslas; iztaisnotais ceļa posms ir mazāks par 10 km. Pēc projekta novērtēšanas saskaņā ar II pielikumā aprakstīto projektu atlases kritērijiem tika secināts, ka projektam nevarētu būt kāda būtiska ietekme uz vidi, ja vien projektēšana un darbu izpilde notiek saskaņā ar labāko praksi un atbilstoši Lielrīgas reģionālās vides pārvaldes prasībām. Šīs pārvaldes 16.07.1999. vēstule apliecina, ka formāls EIA novērtējums nav nepieciešams.
2000. gada aprīlī tika veikts ar vidi saistīto normatīvo aktu caurskatīšana, lai novērtētu projekta iespējamo ietekmi. Projektā ir iekļauti ainavu veidošanas darbi un kompensējoša koku stādīšana saskaņā ar koku izciršanas atļaujām. Rezultāti rāda, ka ietekme uz vidi galvenokārt ir pārejoša un tā saistīta ar būvniecības darbu fāzi (troksnis, satiksmes traucējumi). Papildu zeme nebūs nepieciešama. Visi esošie ceļa materiāli nonāks otrreizējā pārstrādē/ kaut kādā veidā tiks vēlreiz izmantoti ceļa paplašināšanas un atjaunošanas darbos. Nākotnē satiksmes plūsma nepalielināsies paredzamo investīciju rezultātā (96g.-99g. vidējā dienas satiksmes plūsma aptuveni 6 000-7 000 automašīnas, no kurām 25% ir lielākas par 500 cm2).
12. Izmaksas un palīdzība (EUR)
Projekta izmaksas būs 6 250 000 eiro, no kuriem 4 687 500 eiro ir pieprasīti no ISPA un 1 562 500 eiro tiks segti no centrālās valdības līdzekļiem.
| Kopējās izmaksas: | 6 250 000 eiro |
| Neattiecināmas izmaksas: | 280 000 * eiro |
| Attiecināmas izmaksas: | 6 250 000 eiro |
| Palīdzības apjoms: | 75% no attiecināmām |
| izmaksām | |
| ISPA palīdzība: | 4 687 500 eiro |
* 280 000 eiro ir izmaksāti plānošanas/ projektēšanas darba apmaksai pirms pieteikuma iesniegšanas Eiropas Komisijai.
13. Starptautisko finansu iestāžu
iesaistīšana
Nav iesaistītas projektā (saistītas ar citiem Via Baltica posmiem).
14. Pasūtījumu plāns
Darbi tiks veikti saskaņā ar Ia pielikumā pievienoto pasūtījumu plānu.
Ia pielikums
Provizoriskais pasūtījumu plāns
| Kon- | Veicamo darbu un | Līguma veids (par darbu | Provizoriskais |
| kursa | pakalpojumu apraksts | izpildi vai pakalpojumu | konkursa izsludi- |
| nr. | sniegšanu ) | nāšanas mēnesis | |
| 1 | Būvniecības darbi | Par darbu izpildi | 09.2000 |
| 2 | Darbu uzraudzība izpildes laikā | Par pakalpojumu sniegšanu | 12.2000 |
Konkrētie līgumu piešķiršanas nosacījumi tiks publicēti Eiropas kopienu oficiālajā žurnālā un/ vai internetā.
III 1. pielikums
ISPA finansiālās palīdzības īstenošanas noteikumi
I nodaļa
Palīdzības veidi un apjoms
(1) Kopienas palīdzība ISPA ietvaros var notikt neatmaksājamas tiešas palīdzības, atmaksājamas palīdzības vai jebkuras citas palīdzības veidā.
Palīdzība, kas atmaksāta vadošajai iestādei vai citai valsts institūcijai, atkārtoti jāizmanto tam pašam nolūkam.
(2) ISPA ietvaros sniegtās Kopienas palīdzības apjoms var būt līdz 75% no sabiedriskiem vai tiem līdzvērtīgiem izdevumiem, tajā skaita tādu institūciju izdevumiem, kuru darbība tiek veikta tādas administratīvās vai juridiskās bāzes ietvaros, kuras dēļ tās tiek uzskatītas par ekvivalentām valsts institūcijām. Komisija var ierosināt palielināt šo finansu apjomu līdz 85% ja tā uzskata ka ISPA vispārīgo mērķu sasniegšanai būtiski svarīgu pasākumu īstenošanai ir nepieciešama palīdzība , kuras apjoms ir lielāks par 75%.
Palīdzības apjoms un ISPA dotācijas maksimālais lielums tiek konkretizēts attiecīgā pasākuma finansu memorandā.
Izņemot atmaksājamas palīdzības gadījumus vai gadījumus, kad ir būtiska Kopienas interese, palīdzības apjoms tiek samazināts, ņemot vērā:
(a) līdzfinansējuma pieejamību;
(b) pasākuma spēju ģenerēt ieņēmumus; un
(c) principa "piesārņotājs maksā" atbilstošu izmantošanu.
(3) 2.(b) apakšpunktā minētie pasākumi ir tie pasākumi, kas attiecas uz:
(a) infrastruktūru, kuras izmantošana ietver maksas iekasēšanu no lietotājiem;
(b) produktīvām investīcijām vides sektorā.
Komisija ir izstrādājusi principa "piesārņotājs maksā" piemērošanas vadlīnijas.
(4) Iepriekšējās izpētes un tehniskās palīdzības pasākumus izņēmuma kārtā var finansēt 100% apmērā no kopējām izmaksām.
(5) Pasākumi, kurus aptver finansu memorands, Saņēmējvalstij jāīsteno ciešā sadarbībā ar Komisiju, kas atbild par asignējumu izmantošanu.
II nodaļa
Saistības
(1) Komisija īsteno izdevumus ISPA ietvaros saskaņā ar finansu nolikumu, kas piemērojams Eiropas Kopienu kopbudžetam, pamatojoties uz Komisijas un Saņēmējvalsts finansu memorandu.
Tomēr ikgadējās budžeta saistības attiecībā uz pasākumiem piešķirto palīdzību tiek pildītas vienā no šādiem veidiem:
(a) Saistības attiecībā uz ISPA atbalstītajiem pasākumiem, kuri jārealizē divu vai vairāku gadu laikā, parasti un ņemot vērā (b) apakšpunkta nosacījumus, tiek izpildītas ikgadēju maksājumu veidā.
Saistības attiecībā uz pirmo ikgadējo maksājumu Komisija uzņemas tad, kad tā paraksta pasākuma finansu memorandu.
Šīs saistības atbilst dotācijas summai, kas minēta kā finansēšanas plāna pirmā gada summa. Pārejas perioda laikā uz pilnīgu decentralizāciju šai summai jābūt pietiekamai, lai segtu darbu apmaksu, par kuriem pirmo gadu laikā tiek slēgti līgumi.
Saistības attiecībā uz turpmākajiem ikgadējiem maksājumiem pamatojas uz sākotnējo vai pārstrādāto pasākuma finansēšanas plānu. Tie tiek piešķirti katra finansu gada sākumā un vēlākais līdz attiecīgā gada 1. aprīlim ar noteikumu, ka tos pamato nākamajam gadam prognozētie izdevumi un darbu veikšanā sasniegtais progress parāda, ka projekts apmierinoši tiek realizēts, kā arī atkarībā no pieejamiem budžeta līdzekļiem.
(b) Pasākumiem, kuri ilgst mazāk par diviem gadiem vai kuriem Kopienas palīdzība nepārsniedz 20 miljonus eiro, pirmā piešķīruma summa, kas ir līdz 80% no kopējās piešķirtās palīdzības, var tikt garantēta tad, ja Komisija paraksta ar attiecīgo pasākumu saistīto finansu memorandu.
Pārējā summa tiek piešķirta ar noteikumu, ka to pamato nākamajam gadam prognozētie izdevumi un darbu veikšanā sasniegtais progress parāda, ka projekts apmierinoši tiek rezlizēts, kā arī atkarībā no pieejamiem budžeta līdzekļiem.
(2) Ja netiek sniegts pienācīgs pamatojums, palīdzība, kas piešķirta tādam pasākumam, pie kura divu gadu laikā, kopš Komisija ir parakstījusi ar šo pasākumu saistīto finansu memorandu, nav uzsākts vērā ņemams darbs, tiek anulēta.
Ja pastāv anulēšanas risks, Komisija savlaicīgi informē Saņēmējvalsti un atbildīgo iestādi.
III nodaļa
Maksājumi
(1) Maksājumi var tikt veikti avansa maksājumu, starpmaksājumu vai atlikušās summas maksājuma veidā.
Starpmaksājumi un atlikušās summas maksājumi ir saistīti ar faktiski apliecinātajiem un notikušajiem izdevumiem, kuriem jāpievieno iesniegtie rēķini vai grāmatvedības dokumenti, kas uzskatāmi par līdzvērtīgu pierādījumu.
(2) Avansa maksājumi
Saskaņā ar vispārpieņemtājiem nosacījumiem, attiecīgajai institūcijai saskaņā ar šīs nodaļas (9) punktu kā avansa maksājums tiek izmaksāti 20% no kopējās ISPA ietvaros sākotnēji piešķirtās palīdzības.
Avansa maksājums saskaņā ar vispārpieņemtājiem nosacījumiem tiek pārskaitīts šādi:
- pirmais maksājums, kas nepārsniedz pusi no visa avansa maksājuma, tiek veikts tad, kad Saņēmējvalsts paraksta finansu memorandu;
- atlikusī daļa tiek samaksāta pēc tam, kad ir parakstīts pirmais kontrakts, kas parasti ir pirmais līgums par darbu izpildi.
Jebkuru novirzi no vispārpieņemtājiem nosacījumiem apstiprina Komisijas lēmums ar šo pasākumu saistītajā finansu memorandā.
Ja 12 mēnešu laikā no avansa maksājuma izmaksāšanas datuma Komisijai nav nosūtīts maksājuma pieteikums, šīs nodaļas (2) punktā minētajai struktūrai ir jāatmaksā avansa maksājuma visa summa vai tā daļa. Avansa maksājuma atmaksājamo daļu nosaka Komisija, pamatojoties uz faktiski notikušiem izdevumiem, kuri var pretendēt uz finansējumu. Avansa maksājuma atmaksāšana nenozīmē Kopienas palīdzības anulēšanu.
(3) Starpmaksājumi
Komisija veic starpmaksājumus norādītajai struktūrai pēc pieprasījuma un ar nosacījumu, ka pasākums tiek realizēts apmierinoši. Starpmaksājumi tiek veikti, lai atmaksātu apstiprinātos un faktiski notikušos izdevumus, saskaņā ar šādiem nosacījumiem:
- Saņēmējvalsts ir iesniegusi ziņojumu par pasākuma izpildes gaitu saskaņā ar tā fiziskajiem un finansiālajiem rādītājiem un finansu memorandu, ja nepieciešams, ietverot arī jebkurus specifiskos nosacījumus, kas ir saistīti ar piešķirto palīdzību;
- ir ievēroti visi nacionālo un/ vai Kopienas pārbaudes struktūru komentāri un rekomendācijas;
- ir norādītas visas tehniskas, finansiālas un juridiskas dabas problēmas un pasākumi, kas veikti to atrisināšanai;
- ir analizētas visas novirzes no sākotnējā finansēšanas plāna;
- ir minētas visas darbības, kas veiktas, lai reklamētu šo pasākumu.
Komisija informē Saņēmējvalsti, ja kāds no iepriekšminētajiem nosacījumiem nav izpildīts.
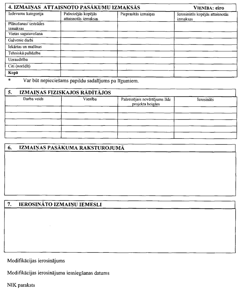
Jāizmanto Komisijas piedāvātais maksājumu pieprasījuma un finansiālā un fiziskā progresa ziņojuma standarta modelis.
(4) Saņēmējvalstis nodrošina, lai maksājumu pieteikumi tiktu iesniegti Komisijai saskaņā ar vispārpieņemtājiem nosacījumiem trīs reizes gadā, vēlākais līdz 1.martam, 1.jūlijam un 1.novembrim.
(5) Saskaņā ar šīs nodaļas (2) un (3) punktu veikto maksājumu kopējais apjoms nedrīkst pārsniegt 80% no kopējās piešķirtās palīdzības. Komisija var palielināt šo apjomu līdz 90%, ja ir pienācīgs pamatojums.
(6) Kopienas palīdzības atlikušās summas maksājumi.
Kopienas palīdzības atlikušās summas maksājumi, kas aprēķināti, pamatojoties uz apstiprinātajiem un faktiski notikušajiem izdevumiem, tiek izmaksāti ar nosacījumu, ka:
- pasākums ticis īstenots saskaņā ar tā mērķiem;
- pasākums veikts, ievērojot tā specifiskos nosacījumus, kas minēti finansu memorandā;
- V nodaļā minētais galīgais ziņojums ir iesniegts Komisijai;
- 2. punktā minētā struktūra vai institūcija iesniedz Komisijai maksājuma pieteikumu sešu mēnešu laikā no darbu pabeigšanas termiņa un par izdevumiem, kas noteikti finansu memorandā;
- Saņēmējvalsts apliecina Komisijai, ka maksājuma pieteikumā un ziņojumā sniegtā informācija ir pareiza;
- Saņēmējvalsts ir nosūtījusi Komisijai III 4. pielikuma pievienotajā materiālā B minēto deklarāciju;
- informācijas un publicitātes materiāli, ko Komisija noteikusi saskaņā ar III 6. pielikumu, ir izplatīti;
- kāda pasākuma ietvaros piešķirtās palīdzības pārvaldīšana ir decentralizētā veidā uzticēta ieviešanas aģentūrām kandidātvalstīs, Saņēmējvalsts sniedz Komisijai nepieciešamu informāciju, ka ir ievēroti Kopienas likumi attiecībā uz valsts pasūtījumu, jo īpaši attiecībā uz paziņojumu publicēšanu par piedāvājumu konkursiem un piedāvājumu konkursu novērtējuma un kontraktu piešķiršanas ziņojumu iesniegšanu, un ka ir ievēroti visi finansu memorandā nosacījumi.
(7) Ja iepriekšminētais galīgais ziņojums netiek nosūtīts Komisijai 6 mēnešu laikā no darbu un maksājumu pabeigšanai noteiktā pēdējā datuma, kas norādīts finansu memorandā, tā palīdzības daļa, kas aptver atlikušo summu attiecīgajam pasākumam, tiek anulēta.
(8) Saņēmējvalstij iesniegtajiem starpmaksājumu un galīgo maksājumu pieprasījumiem jāpievieno nacionālās atbildīgās amatpersonas deklarācija, ka deklarētie maksājumi ir saistīti vienīgi ar tādiem izdevumiem, kuriem pievienoti iesniegtie rēķini vai grāmatvedības dokumenti, kas nodrošina līdzvērtīgu pierādījumu un ir saskaņā ar normām, kuras regulē izdevumu atbilstību ISPA atbalstītajiem projektiem, kā noteikts III 2. pielikumā.
(9) Visus Komisijas piešķirtās palīdzības maksājumus saskaņā ar šo finansu memorandu saņem centrālā vienība (Nacionālais fonds), kuru Saņēmējvalsts ir norīkojusi šādu maksājumu saņemšanai. Saskaņā ar vispārpieņemtājiem nosacījumiem Komisija veic maksājumus vienotajā bankas kontā, ko norādījusi Saņemējvalsts, ne vēlāk kā divu mēnešu laikā no brīža, kad saņemts likumīgs un pilnīgs pieteikums maksājuma saņemšanai. Šis termiņš neattiecas uz avansa maksājumu. Nacionālais fonds cik vien ātri iespējams un pilnā apmērā pārskaita ISPA palīdzības līdzekļus par ieviešanu atbildīgajai institūcijai.
(10) Nacionālais fonds, ko vada nacionālā atbildīgā amatpersona, saglabā vispārēju atbildību par līdzekļu pārvaldi attiecīgajā Saņēmējvalstī. Šī amatpersona ir atbildīga arī par jebkuru pārāk lielā apmērā samaksātu vai nepelnīti saņemtu summu atmaksāšanu Komisijai.
Nacionālās atbildīgās amatpersonas pienākumi ir izklāstīti Komisijas un Saņēmējvalsts saprašanās memorandā.
IV nodaļa
Eiro izmantošana
(1) Summas, kas ietvertas palīdzības pieteikumā, kā arī atbilstošajā finansēšanas plānā izsaka eiro.
(2) Komisijas apstiprinātās palīdzības summas un finansēšanas plāni izsaka eiro.
(3) Izdevumu deklarācijas, kas tiek iesniegtas kopā ar atbilstošajiem maksājumu pieteikumiem izsaka eiro.
Izmantojamais konversijas kurss ir Komisijas finansu uzskaites kurss, kas piemērojams tajā mēnesī, kurā izdevumu deklarācijas tiek reģistrētas par projekta finansiālo vadību atbildīgo struktūru grāmatvedības dokumentos. Mēneša konversijas kurss tiek noteikts saskaņā ar Komisijas noteikumu Nr.3418/93 (EURATOM, ECSC, EC) 1.panta (2) daļu, kas izklāsta detalizētus noteikumus konkrētu 1977.gada 21.decembra finansu nolikuma normu īstenošanai. Konversijas kurss ir kurss, kas ir spēkā iepriekšējā mēneša priekšpēdējā dienā pirms mēneša, kuram tiek noteikts kurss. Komisija informē atbildīgās struktūras par šo kursu1.
(4) Komisija veic finansiālās palīdzības maksājumus eiro iestādei, kuru Saņēmējvalsts noteikusi šādu maksājumu saņemšanai.
V nodaļa
Galīgais ziņojums
Iestādei vai institūcijai, kas atbildīga par attiecīgo pasākumu, jāiesniedz Komisijai galīgais ziņojums sešu mēnešu laikā pēc pasākuma pabeigšanas. Galīgais ziņojums ietver šādu informāciju:
(a) veikto darbu apraksts, ko papildina fiziskie rādītāji, izdevumu apmēri pa darbu kategorijām un pasākumi, kas veikti saistībā ar lēmumā par palīdzības piešķiršanu ietvertajām konkrētajām normām;
(b) apliecinājums par darba atbilstību lēmumam par palīdzības piešķiršanu;
(c) pirmais novērtējums par to, cik lielā mērā ir sasniegti paredzētie rezultāti, īpaši norādot:
- faktisko pasākuma īstenošanas datumu;
- kā pasākums tiks pārvaldīts pēc tā pabeigšanas;
- ja nepieciešams, finansu prognožu apstiprinājumu, jo īpaši attiecībā uz pamatdarbības izmaksām un paredzamajiem ieņēmumiem;
- sociāli ekonomisko prognožu apstiprinājumu, īpaši paredzamās izmaksas un labumus;
- darbības, kas veiktas, lai nodrošinātu vides aizsardzību, un to izmaksas, arī principa "piesārņotājs maksā" ievērošanu;
- datumu, kurā pasākums, kam tika sniegta palīdzība, sāka darboties,
(d) informācija, kas saistīta ar publicitātes pasākumiem.
VI nodaļa
Finansu memoranda grozījumi
(1) Ja faktiski notikušie sabiedriskie vai tiem līdzvērtīgie izdevumi atšķiras no sākotnēji plānotajiem izdevumiem, Kopienas piešķirtā palīdzība tiks attiecīgi mainīta, bet tā nedrīkst pārsniegt finansu memorandā norādīto maksimālo summu.
Ja mainās Kopienas palīdzības apjoms salīdzinājumā ar sākotnēji piešķirto summu vai maksimālais dotācijas apjoms, nepieciešams izdarīt grozījumus finansu memorandā saskaņā ar šīs nodaļas (3) punktā noteikto kārtību.
(2) Ja, mainot projekta finansēšanas plānu, Kopienas saistības un/vai jau veiktie maksājumi pārsniedz summas, kas ierakstītas grozītajā finansēšanas plānā, Komisija, autorizējot pirmo finansu operāciju (saistības vai maksājumu) pēc šī grozījuma, izdara korekciju, ņemot vērā šo saistību vai maksājumu pārsniegumu.
(3) Jebkuri grozījumi finansu memorandā tiek veikti saskaņā ar šādu kārtību:
(a) Grozījumi, kuri ietver būtiskas projekta mērķu vai būtības izmaiņas vai būtiskas finansēšanas plāna vai izdevumu saraksta izmaiņas, tiek izdarīti ar finansu memorandu pēc Saņēmējvalsts lūguma vai pēc Komisijas iniciatīvas, ja tā konsultējusies ar Saņēmējvalsti. "Būtisku" izmaiņu definīcija ir sniegta noteikumos, kas regulē izdevumu atbilstību finansējuma saņemšanai.
(b) Citu grozījumu gadījumā Saņēmējvalsts nosūta Komisijai priekšlikumus par grozījumiem. Komisija sagatavo savus komentārus vai apliecina savu piekrišanu 12 darba dienu laikā no priekšlikumu saņemšanas. Grozījumi tiek apstiprināti, ja Komisija ir devusi savu piekrišanu. Par šādiem grozījumiem tiek informēta ISPA Vadības Komiteja.
(c) Jebkuras izmaiņas gada izdevumos, kas nepārsniedz 25% no kopējiem projektam plānotajiem izdevumiem, netiek uzskatītas par būtiskām izmaiņām finansēšanas plānā un izdevumu sarakstā.
VII nodaļa
Finansu kontrole
(1) Kompetentai nacionālai finansu kontroles institūcijai saskaņā ar starptautiski pieņemtajiem revīzijas standartiem jāveic atbilstoša iekšējā un ārējā finansu kontrole, un šai institūcijai ir jābūt neatkarīgai. Katru gadu Komisijai jānosūta revīzijas plāns un veiktajās revīzijās atklāto faktu kopsavilkums. Revīzijas atzinumi tiek nodoti Komisijai.
(2) Nemazinot Saņēmējvalstu veikto pārbaužu nozīmi, Komisijas dienesti un Auditoru tiesa, izmantojot savu personālu vai atbilstošā kārtībā pilnvarotus pārstāvjus, var veikt tehniskās vai finansu revīzijas konkrētā vietā, tajā skaitā paraugu pārbaudes un noslēguma revīzijas.
(3) Saņēmējvalstij jānodrošina, lai Komisijas personālam vai tās atbilstošā kārtībā pilnvarotiem pārstāvjiem un Auditoru tiesai tiktu nodrošinātas tiesības konkrētā vietā pārbaudīt visus dokumentus un kontus, kas attiecas uz pozīcijām, kas tiek finansētas saskaņā ar finansu memorandu. Saņēmējvalstīm jāpalīdz Komisijas dienestiem un Auditoru Tiesai veikt revīzijas, kas saistītas ar ISPA ietvaros piešķirto līdzekļu izlietojumu.
(4) Detalizēti finansu kontroles principu īstenošanas noteikumi kopā ar nosacījumiem par sadarbību un kontroles metodoloģiju un programmēšanas koordināciju Komisijas un Saņēmējvalsts starpā ir izklāstīti III 4. pielikumā.
VIII nodaļa
Nepamatotu maksājumu atgūšana
(1) Ja pasākuma īstenošanas gaita parāda, ka piešķirtā palīdzība pilnībā vai daļēji izrādījusies nepamatota, Komisijai ir jāveic šāda gadījuma pārbaude, pieprasot, lai Saņēmējvalsts iesniedz savus komentārus līdz noteiktam laikam un novērš jebkuru šādu neatbilstību.
(2) Pēc šīs nodaļas 1.punktā minētās pārbaudes Komisija var samazināt, apturēt vai anulēt palīdzību pasākumiem, ja šajā pārbaudē ir atklājusies neatbilstība, nepareiza līdzekļu kombinācija vai neatbilstība kādam no finansu memorandā noteiktajiem nosacījumiem un, jo īpaši, jebkāda veida nozīmīgas izmaiņas, kas ietekmē pasākuma īstenošanas būtību vai apstākļus, par kurām nav saņemta Komisijas piekrišana. Ja palīdzība tiek samazināta vai anulēta, samaksātās summas ir jāatmaksā Komisijai.
(3) Ja Komisija uzskata, ka neatbilstība nav novērsta vai kāda darbība pilnībā vai tās daļa pilnībā vai daļēji neattaisno piešķirto palīdzību, Komisijai jāveic atbilstoša šāda gadījuma pārbaude un jāpieprasa, lai Saņēmējvalsts līdz noteiktam laikam iesniegtu savus komentārus. Ja Saņēmējvalsts pēc pārbaudes nav veikusi nekādus pasākumus, lai novērstu neatbilstību, Komisija var:
(a) samazināt vai anulēt avansa maksājumu;
(b) pilnībā vai daļēji anulēt pasākumam piešķirto palīdzību.
Komisijai ir jānosaka korekcijas apjoms, ņemot vērā neatbilstības raksturu un jebkuru vadības un kontroles sistēmu nepilnību mērogu.
(4) III nodaļas (9) punktā minētā iestāde atmaksā Komisijai jebkuru nepamatoti samaksātu summu. Ja šī iestāde neatmaksā Kopienai pienākošos summu, tad šo summu Komisijai atmaksā Saņēmējvalsts. Procenti par laikus neveiktu atmaksāšanu tiek maksāti no neatmaksātajām summām, piemērojot normas, kas noteiktas Kopienas budžetu regulējošajos finansu nolikumos.
IX nodaļa
Vadība
(1) Komisija pieprasa Saņēmējvalstīm:
(a) No 2000.gada 1.janvāra un ne vēlāk kā līdz 2002.gada 1.janvārim izveidot vadības un kontroles sistēmas, kuras nodrošinātu:
- piešķirtās palīdzības īstenošanu saskaņā ar šo memorandu atbilstoši drošas un efektīvas finansu vadības principiem;
- vadības un kontroles funkciju nodalīšanu;
- to, ka Komisijai iesniegtās izdevumu deklarācijas ir precīzas un pamatojas uz grāmatvedības sistēmām, kur ir attaisnojuma dokumenti, kas ir pieejami pārbaudēm;
(b) regulāri pārbaudīt, ka Kopienas finansētie pasākumi tiek pienācīgi īstenoti;
(c) nepieļaut neatbilstības un veikt nepieciešamos pasākumus to novēršanai;
(d) atmaksāt jebkuras summas, kas zaudētas neatbilstību vai nevērības dēļ.
(2) Saņēmējvalstu vadības un kontroles sistēmām jānodrošina pietiekama revīzijas pierādījumu ķēde, kā noteikts III 4. pielikumam pievienotajā materiālā A, lai nodrošinātu iespēju veikt:
- Komisijai apstiprināto kopsavilkuma pārskatu salīdzināšanu ar grāmatvedības dokumentiem un attaisnojuma dokumentiem dažādos administratīvajos līmeņos;
- pieejamo Kopienas un citu līdzekļu pārskaitījumu pārbaudes;
- projekta tehnisko un finansu plānu, progresa ziņojumu, piedāvājumu konkursu un kontraktu piešķiršanas procedūru pārbaudi dažādos administratīvajos līmeņos.
X nodaļa
Uzraudzība
Saņēmējvalstis un Komisija nodrošina, lai pasākumu īstenošana tiktu uzraudzīta un novērtēta saskaņā ar šādām normām:
(1) Jāizveido uzraudzības komitejas saskaņā ar Saņēmējvalsts un Komisijas vienošanos. Šajās komitejās jābūt pārstāvētiem Saņēmējvalsts norādītajām iestādēm vai institūcijām, Komisijai un atbilstošos gadījumos arī EIB un/ vai citām līdzfinansējumu nodrošinošām institūcijām. Ja reģionālās un vietējās varas iestādes un privātie uzņēmumi ir kompetenti īstenot kādu projektu un ir iesaistīti projektā, arī tie ir pārstāvēti šādās komitejās.
(2) Uzraudzība tiek veikta arī ar kopīgi pieņemtas pārskatu sniegšanas kārtības, paraugu pārbaužu un atbilstošos gadījumos vienreizējo komiteju izveides palīdzību. Uzraudzību veic pēc fiziskiem un finansiāliem rādītājiem. Šie rādītāji ir atbilstoši projekta konkrētajām īpatnībām un mērķiem. Šie rādītāji ir sakārtoti tā, lai varētu konstatēt, kāda stadija sasniegta pasākuma īstenošanā salīdzinājumā ar sākotnējo plānu, mērķiem un progresu, kas sasniegts no vadības puses, kā arī jebkuras ar to saistītās problēmas.
(3) (a) Nacionālajam ISPA koordinatoram par katru pasākumu jāiesniedz Komisijai progresa ziņojums trīs mēnešu laikā no īstenošanas gada beigām.
(b) Uzraudzības komiteju sanāksmēs nacionālais ISPA Koordinators iesniedz progresa ziņojumus saskaņā ar Komisijas noteikto paraugu 15 dienu pirms ieplānotās sanāksmes.
(4) Pamatojoties uz uzraudzības rezultātiem un ņemot vērā uzraudzības komitejas komentārus, Komisijai jākoriģē sākotnēji apstiprinātās palīdzības summas un palīdzības piešķiršanas nosacījumi, kā arī paredzētos finansēšanas plānus, ja tas nepieciešams, pēc Saņēmējvalsts ierosinājuma.
Komisija definē šo korekciju izdarīšanai nepieciešamos pasākumus un diferencē tos pēc to rakstura un svarīguma pakāpes.
XI nodaļa
Atklātība kontraktu piešķiršanas procesā
(1) Darbu, piegāžu un pakalpojumu kontraktu piešķiršana notiek saskaņā ar kārtību, kurā ievēroti Eiropas Savienības kopbudžetu regulējošā finansu nolikuma IX sadaļas galvenie principi.
(2) (a) Visām fiziskām un juridiskām personām, kam piemēro Līgumu, un visām fiziskām un juridiskām personām ISPA Saņēmējvalstīs nodrošināta piedalīšanās piedāvājumu konkursos ar vienādiem noteikumiem.
Šajā sakarā piedāvājumu konkursu specifikācijās jānosaka prasība norādīt nacionālo piederību, uzrādot apliecinājumu, kas ir pieņemams saskaņā ar šīs valsts normatīvajiem aktiem.
(b) Ja ir pienācīgs pamatojums, piemēram, starptautisko finansēšanas institūciju līdzfinansējuma gadījumos un pēc ISPA vadības komitejas agrīnās pārbaudes, Komiteja var atļaut kontraktu konkursos piedalīties trešo valstu iedzīvotājiem.
(3) (a) Saņēmējvalstis veic nepieciešamos pasākumus, lai garantētu iespējami plašu piedalīšanos konkursos. Tās nodrošina, lai pirms konkursa Eiropas Kopienu oficiālajā žurnālā un Saņēmējvalsts oficiālajā laikrakstā tiktu publicēts uzaicinājums uz konkursu.
(b) Saņēmējvalstis novērš jebkura veida diskriminējošu praksi vai tehniskās specifikācijas, kas var kavēt visu dalībvalstu un Saņēmējvalstu fizisko vai juridisko personu plašu piedalīšanos konkursā ar vienādiem noteikumiem.
(c) Informācija jāievieto arī internetā.
(4) Detalizēta konkursa un līgumu slēgšanas procedūra ir izklāstīta Decentralizētās ieviešanas sistēmas (DIS) rokasgrāmatā, kas sastādīta Phare programmām.
XII nodaļa
Grāmatvedības uzskaites
un projektu ziņojumu atklātība
Saņēmējvalsts nodrošina, ka visas valsts vai privātās institūcijas, kas iesaistītas pasākuma, uz kuru attiecas finansu memorands, operāciju vadībā un īstenošanā izmantotu vai nu atsevišķu uzskaites sistēmu, vai veiktu visu veikto darījumu adekvātu kodifikāciju, kas atvieglotu Komisijai un nacionālajām kontroles iestādēm izdevumu pārbaudes. Tām jānodrošina, lai visi izdevumi tiktu pareizi attiecināti uz attiecīgo projektu.
Atbildīgajām institūcijām jānodrošina, lai visi attaisnojuma dokumenti, kas attiecas uz jebkura projekta izdevumiem, tiktu saglabāti un būtu pieejami piecus gadus pēc pēdējā maksājuma, kas veikts saistībā ar šo projektu.
XIII nodaļa
Ex-post (retrospektīvais) novērtējums
Ex-post novērtējums jāveic par resursu izmantošanu un palīdzības efektivitāti, lietderību un ietekmi. Tam jāaptver faktori, kas veicinājuši pasākuma īstenošanas izdošanos vai neizdošanos, kā arī sasniegumi un rezultāti.
Pēc pasākumu pabeigšanas Komisija un Saņēmējvalstis izvērtēs to, kā ir noritējusi šo pasākumu veikšana, tajā skaitā resursu izmantošanas efektivitāti un lietderību. Šim vērtējumam jāaptver pasākuma īstenošanas faktiskā ietekme, lai novērtētu, vai ir sasniegti sākotnējie mērķi. Šis novērtējums līdztekus citiem aspektiem aplūkos arī to, kādu ieguldījumu attiecīgie pasākumi devuši Kopienas vides aizsardzības politikas īstenošanā vai to ieguldījumu Transeiropas komunikāciju tīklu paplašināšanā un kopējās transporta politikas īstenošanā. Tiks novērtēta arī pasākumu ietekme uz vidi.
III 2. pielikums
Normas, kas regulē ISPA atbalstīto pasākumu izdevumu atbilstību
I nodaļa
Izdevumu sfēra
ISPA piešķir palīdzību šādiem pasākumiem:
1. Vides projektiem, kas palīdz Saņēmējvalstīm izpildīt Kopienas vides likumu prasības un pievienošanās partnerības dokumentu mērķus;
2. Transporta infrastruktūras projektiem, kas veicina stabilu mobilitāti un, jo īpaši tādiem projektiem, kas ietver kopīgas intereses, pamatojoties uz lēmuma Nr.1692/96/EC2 kritērijiem, kā arī palīdz Saņēmējvalstīm pildīt pievienošanās partnerības dokumentu mērķus. Tas ietver gan nacionālo komunikāciju tīklu savstarpēju savienojamību un izmantojamību, gan nacionālo komunikāciju tīklu un Transeiropas komunikāciju tīklu savstarpējo savienojamību un izmantojamību un šādu tīklu pieejamības nodrošināšanu;
3. Iepriekšējās izpētes, novērtējumi un tehniskās palīdzības pasākumiem, tajā skaitā informatīviem un publicitātes pasākumiem saistībā ar projektiem, kas var pretendēt uz palīdzību. Tas ietver nacionālās valsts pārvaldes uzdevumu lokā neietilpstošu tehnisku un administratīvu palīdzību, kas dod labumu gan Komisijai, gan Saņēmējvalstīm, tajā skaitā projektu identifikāciju, sagatavošanu, vadību, kontroli, revīziju un uzraudzību.
No II līdz XII nodaļai iekļautie noteikumi attiecas uz projektiem, kas minēti šīs nodaļas 1. un 2.punktā, bet tie tiek analoģiski piemēroti arī attiecībā uz lēmumiem par tiem projektiem, kas minēti 3.punktā.
II nodaļa
Galvenās definīcijas
un terminu skaidrojumi
1. Projekts, projekta stadijas
un projektu grupas
Dokumentā lietotie termini:
a) Projekts - ekonomiski nedalāmu darbu sērija, kas pilda precīzu tehnisko funkciju un kam ir noteikti mērķi;
b) Tehniski un finansiāli neatkarīgs posms - posms, kuru var identificēt kā atsevišķi funkcionējošu;.
Posms var būt arī projekta veikšanai nepieciešamā sākotnējā izpēte, ekonomiskā pamatojuma izpēte vai tehniskā izpēte.
c) Projektu grupā var apvienot projektus, kas atbilst šādiem trim nosacījumiem:
- tiem jābūt koncentrētiem vienā un tajā pašā ūdens tilpnē vai satecē vai gar vienu un to pašu transporta koridoru;
- tiem jātiek veiktiem saskaņā ar vienoto plānu attiecīgajai ūdens tilpnei, satecei vai transporta koridoram, kurā noteikti skaidri identificēti mērķi;
- ja šos projektus realizē dažādas kompetentās institūcijas un pārrauga struktūra, kas atbildīga par attiecīgās projektu grupas koordināciju un uzraudzību.
2. Par ieviešanu atbildīgā institūcija
(a) ISPA atbalstītajiem projektiem "par ieviešanu atbildīgā institūcija" - institūcija, kura ir atbildīga par piedāvājumu konkursiem un līgumu slēgšanu. Šī institūcija ir minēta finansu memoranda I pielikuma 3.punktā.
Ja projektam tiek nomainīta par ieviešanu atbildīgā institūcija, tad Komisijai tā jāapstiprina finansu memorandā.
Šī institūcija ir pēdējā, kas saņem finansiālo palīdzību no ISPA. Tikai šī institūcija ir tiesīga veikt nepieciešamos izdevumus.
(b) Tomēr šī institūcija var deleģēt ieviešanu citai institūcijai, kas arī var veikt attiecināmos izdevumus. Šādos gadījumos Komisiju informē par to, kāda veida deleģēšana ir ierosināta, un nodrošina to ar attiecīgo dokumentu kopijām .
3. Valsts pārvalde
Valsts pārvalde aptver trīs vispārējās valdības līmeņus:
- centrālās valdības institūcijas (valsts līmenis);
- reģionālās pašvaldību institūcijas;
- vietējo pašvaldību institūcijas.
Šis jēdziens var ietvert arī institūcijas, kuru darbība tiek veikta tādas administratīvās vai juridiskās sistēmas ietvaros, kuras rezultātā tās tiek uzskatītas par ekvivalentām valsts institūcijām.
4. Projekta īstenošana un īstenošanas periods
(a) Projekta īstenošana ietver visas stadijas no sākotnējās plānošanas (ietverot alternatīvu izpēti) līdz pat apstiprinātā projekta pabeigšanai un palīdzību saņemoša projekta publicitātes pasākumiem.
(b) Finansu memorands var attiekties uz vienu vai vairākām iepriekš minētajām stadijām.
(c) Projekta īstenošanas periods saskaņā ar vispārpieņemtajiem nosacījumiem attiecas uz laika periodu, kas nepieciešams, lai izpildītu visas stadijas līdz brīdim, kurā projekts kļūst pilnīgi darbojošs un kurā ir pabeigts finansu memorandā aprakstītais fiziskais objekts.
5. Atklātība un dokumentārie
pierādījumi
Jebkuri Komisijai deklarētie izdevumi ir jāpamato ar juridiski saistošiem līgumiem un/ vai dokumentiem. Dokumentārie pierādījumi ir obligāti.
Lai nodrošinātu maksimālu atklātību un ļautu Komisijai un/ vai kompetentai nacionālai finansu kontroles institūcijai veikt izdevumu revīziju, katrai Saņēmējvalstij jāseko, lai jebkura institūcija, kas piedalās projektu vadībā un īstenošanā, būtu izveidojusi atsevišķu grāmatvedības dokumentāciju par attiecīgo finansu memorandā aprakstīto projektu.
6. Izdevumi
Izdevumiem ir jāattiecas uz maksājumiem, kurus ir apstiprinājusi un faktiski veikusi par projekta ieviešanu atbildīgā institūcija, un tiem jāpievieno iesniegtie rēķini vai grāmatvedības dokumenti, kas uzskatāmi par līdzvērtīgu pierādījumu.
Grāmatvedības dokumenti, kas uzskatāmi par līdzvērtīgu pierādījumu ir jebkuri šīs nodaļas 2.punktā definētās institūcijas iesniegti dokumenti, kas pierāda, ka attiecīgais grāmatvedības ieraksts sniedz patiesu priekšstatu par veiktajiem darījumiem saskaņā ar standarta grāmatvedības praksi. Ja tiek izmantoti grāmatvedības dokumenti, kas uzskatāmi par līdzvērtīgu pierādījumu, to nepieciešams iepriekš saskaņot ar Komisiju.
III nodaļa
Galvenās attiecināmo izmaksu kategorijas
Saskaņā ar vispārpieņemtajiem nosacījumiem izdevumi, kas saistīti ar
- tehniski ekonomiskā pamatojuma izpēti;
- plānošanu un izstrādi, arī novērtējumu par ietekmi uz vidi;
- vietas sagatavošanu;
- celtniecības darbiem;
- iekārtām un mašīnām, kas tiek pastāvīgi uzstādītas projekta ietvaros;
- testēšanu un apmācību;
- projekta vadību;
- pasākumiem, lai kompensētu vai mazinātu ietekmi uz vidi;
- citiem izdevumu veidiem, kas norādīti finansu memorandā;
- pasākumiem, kas veikti saskaņā ar III 6. pielikuma normām par informāciju un publicitāti,
var pretendēt uz palīdzību saskaņā ar tālāk noteiktajiem ierobežojumiem.
IV nodaļa
Projekta tehniski ekonomiskā pamatojuma
izpēte, plānošana un izstrāde
1. Izdevumi, kas saistīti ar projektu
tehniski ekonomiskā pamatojuma
izpēti, plānošanu un izstrādi
(a) Izdevumi, kas saistīti ar projektu tehniski ekonomiskā pamatojuma izpēti, plānošanu, arī izpēti par paredzamo ietekmi uz vidi, ar ekspertu slēdzieniem un projektu izstrādi, saskaņā ar vispārpieņemtajiem nosacījumiem ir tiesīgi saņemt finansējumu, ja šādi izdevumi ir tiešā veidā saistīti ar vienu vai vairākiem projektiem un konkrēti apstiprināti finansu memorandā.
(b) Ja vairākus projektus aptver viens līgums vai, ja par projekta ieviešanu atbildīgā institūcija veic iepriekšminētās funkcijas, veicot maksājumus no sava konta, izmaksas atspoguļo, atsevišķā pārskatāmā projekta grāmatvedības uzskaites sistēmā, kas pamatojas uz grāmatvedības dokumentiem vai dokumentiem, kuri uzskatāmi par līdzvērtīgiem pierādījumiem (piemēram, izmantojot periodisko resursu izvietošanas sistēmu).
2. Valsts pārvaldes iesaistīšana
Ja valsts pārvaldes darbinieki ir iesaistīti šīs nodaļas 1.punkta (a) apakšpunktā minētajās darbībās, Komisija var atzīt šādus izdevumus par tiesīgiem saņemt finansējumu vienīgi atbilstoši pamatotos gadījumos saskaņā ar visiem tālāk minētajiem kritērijiem:
- šim darbiniekam uz laiku jāatstāj noteikts amats valsts pārvaldē;
- izdevumiem jāpamatojas uz līgumu, kas attiecas uz vienu vai vairākiem konkrētiem projektiem; ja līgums attiecas uz vairākiem projektiem, izmaksām jābūt sadalītām caurskatāmā veidā (piemēram, ar darba laika uzskaites lapu palīdzību);
- izdevumiem jābūt tieši saistītiem ar vienu vai vairākiem projektiem;
- līgumam jāattiecas uz ierobežotu laika periodu, un tas nedrīkst pārsniegt noteikto projekta pabeigšanas termiņu;
- saskaņā ar līgumu veicamie uzdevumi nedrīkst ietvert vispārējās pārvaldes funkcijas, saskaņā ar atbilstoši IX nodaļas 1.punkta definīcijai;
- šī norma nedrīkst tikt izmantota, lai apietu noteikto valsts pasūtījuma kārtību.
V nodaļa
Vietas sagatavošana un būvdarbi
(a) Ja par projekta ieviešanu atbildīgā institūcija sagatavošanas, būvniecības darbus vai daļu no tiem veic uz sava rēķina, attiecīgās izmaksas jānošķir pēc atklātas un atsevišķas projekta grāmatvedības uzskaites sistēmas, kas pamatojas uz grāmatvedības dokumentiem vai dokumentiem, kas uzskatāmi par līdzvērtīgiem pierādījumiem.
Ja iesaistīti valsts pārvaldes darbinieki, piemēro IV nodaļas 2.punktā noteiktās normas.
(b) Pie izmaksām, kas var pretendēt uz palīdzību, pieder vienīgi tās izmaksas, kas ir faktiski notikušas pēc XI nodaļas 1.punkta noteiktajiem datumiem un tieši attiecas uz projektu. Pie izdevumiem, kas var pretendēt uz palīdzību, var piederēt visas vai jebkuras no šīm kategorijām:
- darbaspēka izmaksas (bruto algas un atalgojumi);
- maksa par ilglaicīgi izmantojamām iekārtām celtniecības laikā;
- projekta īstenošanā izmantoto preču izmaksas;
- vispārējās izmaksas un citas izmaksas, ja tās ir konkrēti pamatotas; tās ir jāatspoguļo objektīvi saskaņā ar vispārēji atzītajiem grāmatvedības standartiem.
- vispārējās izmaksas nevar pretendēt uz palīdzību, ja (a) punktā minētā institūcija ir valsts pārvaldes institūcija.
(c) Saskaņā ar vispārpieņemtajiem nosacījumiem izmaksas jānovērtē pēc tirgus cenām.
VI nodaļa
Iekārtu un nemateriālo aktīvu
iegāde un noma
1. Ilglaicīgi izmantojamās iekārtas, kuras pieder pie projekta kapitālajiem izdevumiem
(a) Izdevumi, kas saistīti ar iekārtu un mašīnu pirkšanu vai ražošanu, kuras paredzēts pastāvīgi uzstādīt un paturēt projektā, var pretendēt uz palīdzību ar noteikumu, ka tie tiek pievienoti II nodaļas (2) punktā minētās institūcijas ilglaicīgi izmantojamo iekārtu krājumiem un tiek uzskaitīti kā kapitālie izdevumi saskaņā ar standarta grāmatvedības uzskaites praksi.
(b) Šādu iekārtu noma tiek uzskatīta par daļu no pamatdarbības izdevumiem un nevar pretendēt uz palīdzību.
2. Nemateriālo aktīvu iegāde
Izdevumi, kas saistīti ar nemateriālo aktīvu, piemēram, patentu iegādi un izmantošanu var pretendēt uz palīdzību, ja tie ir nepieciešami projekta īstenošanai .
3. Ilglaicīgi izmantojamās iekārtas,
kas tiek izmantotas projekta īstenošanai
(a) Ja par projekta ieviešanu atbildīgā institūcija uz sava rēķina veic sagatavošanas vai celtniecības darbus vai šādu darbu daļu, izdevumi, kas saistīti ar projekta īstenošanas posma laikā izmantoto ilglaicīgu izmantošanas iekārtu iegādi vai ražošanu, nevar pretendēt uz palīdzību. Tas attiecas uz smagajām celtniecības mašīnām, kā arī biroja un citām iekārtām.
(b) Izdevumi, kas saistīti ar ilglaicīgi izmantojamo iekārtu iegādi vai ražošanu tikai projekta īstenošanas vajadzībām, var tikt uzskatīti par attaisnotiem izdevumiem, ja pēc izmantošanas iekārtas ir bez ekonomiskas vērtības vai tiek norakstītas kā nederīgas un ja tas ir konkrēti norādīts finansu memorandā.
4. Ilglaicīgi izmantojamās iekārtas,
kuras izmanto valsts pārvaldes institūcijas
(a) Izdevumi, kas saistīti ar lietošanai paredzētu valsts pārvldes institūcijās ilglaicīgi izmantojamu iekārtu iegādi vai nomu, nevar pretendēt uz palīdzību.
(b) Izdevumi, kas saistīti ar iekārtam un nomas maksām par iekārtām, kuras lieto valsts pārvaldes institūcijas, veicot kontroles un uzraudzības pienākumus, var pretendēt uz palīdzību ar Komisijas piekrišanu.
VII nodaļa
Zemes iegāde
un pievienotās vērtības nodoklis
Zemes iegāde un pievienotās vērtības nodoklis (PVN) nav uzskatāmi par attaisnotiem izdevumiem.
VIII nodaļa
Administratīvie izdevumi
1. Vispārīgais princips
Saskaņā ar vispārpieņemtajiem nosacījumiem valsts pārvaldes institūciju izdevumi, tajā skaitā valsts, reģionālo un vietējo pašvaldību ierēdņu algas, nevar kandidēt uz palīdzību (arī tehnisko palīdzību), izņemot atbilstoši dokumentētos izdevumus, kas saistīti ar pienākumiem veikt finansu pārbaudes, finansiālo un fizisko kontroli, neatbilstību novērtēšanu un novēršanu un izdevumi, kas rodas sakarā ar saistībām atmaksāt zaudētās summas.
Izņemot Nacionālo fondu, izmaksas, arī algas, kas saistītas ar īslaicīgi nodarbināto ierēdņu vai privātā sektora darbinieku īslaicīgu nodarbināšanu vadības, atkārtotu pārbaužu, novērtēšanas un kontroles darbos pēc Komisijas iniciatīvas, var pretendēt uz palīdzību tehniskās palīdzības pasākumu ietvaros saskaņā ar I nodaļas (3) punktu.
Izdevumi, kas saistīti ar uzraudzībai izmantotajām iekārtām, var pretendēt uz palīdzību, ja tie saskaņā ar finansu memorandu ir atļauti tehniskās palīdzības pasākuma ietvaros.
2. Uzraudzības komiteju organizēšana
(a) Izdevumi, kas radušies sakarā ar likumā noteiktās uzraudzības organizēšanu, var pretendēt uz palīdzību, ja uzrāda dokumentārus pierādījumus.
(b) Pieļaujamie izdevumi saskaņā ar vispārpieņemtajiem nosacījumiem ietver vienu vai vairākas no šādām kategorijām:
- tulku pakalpojumi;
- telpu noma sanāksmēm un ar tām saistītie papildizdevumi;
- audiovizuālo un citu nepieciešamo elektronisko iekārtu noma;
- dokumentācijas nodrošināšanas un līdzīgi izdevumi;
- maksa par ekspertu piedalīšanos;
- komandējumu izdevumi.
(c ) Valsts pārvaldes darbinieku algas un pabalsti, kas tiek maksāti šajā sakarā, nevar pretendēt uz finansiālo palīdzību.
3. Tikšanās pēc Komisijas
pieprasījuma
2.punktā noteiktās normas var piemērot arī attiecībā uz Komisijas pieprasīto vienreizēju sanāksmju organizāciju.
IX nodaļa
Pārējie izdevumi
1. Projekta vadība un pārraudzība
Izdevumiem, kas saistīti ar projekta vadību un pārraudzību, parasti ir tiesības uz finansējumu. Tiek piemērotas IV nodaļas (1) un (2) punkta normas.
2. Finansiālās maksas
Jebkuras finansiālās maksas, kas saistītas ar projekta realizāciju, nav attiecināmas uz ISPA palīdzību. Tas īpaši skar procentu maksājumus par starpnieka finansējumu, banku maksas, finansējuma nodrošināšanas maksas u.t.t.
Banku garantijas, kas saistītas ar banku aizdevumiem, kuri izmantoti projekta finansēšanai, var tikt finansētas ar Komisijas piekrišanu.
3. Finansēšanas paņēmieni,
kam nav nepieciešama tūlītēja
īpašumtiesību pārņemšana
Var finansēt izdevumus, kas ne vienmēr prasa tūlītēju īpašumtiesību pārņemšanu, ja tie ir pamatoti un apstiprināti finansu memorandā.
Saņēmējvalstij, veicot riska analīzi, ir jāparāda, ka izmantotais finansēšanas paņēmiens ir ekonomiski izdevīgāks nekā tūlītēja īpašuma iegāde.
4. No palīdzības finansēto projektu
saimnieciskās un uzturēšanas izmaksas
(a) Nekādas saimnieciskās izmaksas, kas radušās pēc projekta pabeigšanas, nav finansējamas.
(b) Projekta personāla apmācība, projekta un tā aparatūras testēšana var tikt uzskatīta par finansējamiem izdevumiem noteiktā periodā, ko nosaka finansu memorands.
(c ) Šī punkta (a) un (b) apakšpunktos definētie principi attiecas arī uz atsevišķa projekta vai grupas projekta pabeigtām daļām, kamēr projekts vēl nav pabeigts kopumā.
5. Publicitāte un informatīvie pasākumi
Izdevumi par pasākumiem, kas veikti informācijā un publicitātē, saskaņā ar III 6. pielikumu, uzskatāmi par finansējamiem.
X nodaļa
Periods, kurā ir tiesības uz finansējumu
1. Tiesību ierobežojums
uz finansējuma sākuma laiku
Tiesību ierobežojums uz finansējuma sākuma laiku tiek novērtēts atkarībā no šādiem situāciju veidiem:
(a) ja kandidātvalstu veiktā projekta atlase, konkursa rīkošana un līguma slēgšana ir pakļauta Komisijas ex-ante apstiprinājumam3, izdevumus var finansēt no palīdzības no datuma, kurā Komisija ir parakstījusi ar šo projektu saistīto finansu memorandu.
Ja projekta finansējumu veido EIB vai citas finansu institūcijas aizdevums un ISPA dotācija, izdevumi ir tiesīgi saņemt finansējumu no datuma, kurā EIB vai kāda cita finansu institūcija ir slēgusi līgumu par projektu. Parasti šis datums nevar būt agrāks par 6 mēnešiem no (a) apakšpunktā minētā datuma. Par priekšnosacījumiem ir uzskatāmi šādi apstākļi:
- Darbi un līgumi, uz kuriem attiecināmas normas, jānosaka finansu memorandā;
- EIB vai citai finansu institūcijai ir jāapstiprina, ka tiek ievērotas finansu nolikuma 108.(2), 109.(2) un (3), 114. (1), 115., 117., 118. panta normas, kas attiecināmas uz Eiropas Kopienas kopbudžetu;
Minētajos gadījumos Komisija parasti pēc iepriekš veiktas ISPA vadības komitejas izpētes piemēro finansu nolikuma 114. (2) panta nosacījumus, kas attiecināmi uz Eiropas kopienas kopbudžetu.
(b) pēc tam, kad Komisija ir izlēmusi piešķirt palīdzību kandidātvalstu ieviešanas aģentūrām decentralizētā veidā4, izdevumiem ir tiesības uz palīdzības finansējumu, ar datumu, kurā saņem iesniegumu Komisija (ISPA dienests), ja vien iesniegums ir uzskatāms par pareizu.
Maksājumi, kas veikti pirms (a) un (b) apakšpunktā minētajiem datumiem, nav tiesīgi saņemt palīdzības finansējumu.
2. Izmaiņas projektos
(a) Jebkuras izmaiņas apstiprinātos projektos, kas vienādas vai pārsniedz 5 miljonus eiro vai 20% no tā kopējām izmaksām, ņemot vērā mazāko no summām, uzskatāmas par būtiskām projekta modifikācijām. Lielas projekta fizisko objektu modifikācijas, kas maina projekta raksturu, arī uzskatāmas par būtiskām.
1.punkta noteikumi attiecināmi uz iepriekš minēto modifikāciju izdevumu tiesībām saņemt palīdzības finansējumu.
(b) Jebkurām citām projekta izmaiņām, izdevumi, kas saistīti ar jauniem papildu vai paplašinātiem fiziskajiem elementiem, ir tiesīgi saņemt palīdzības finansējumu no laika, kurā Komisija (ISPA dienests) saņem pieprasījumu par izmaiņu veikšanu.
(c) Pieprasījums veikt izmaiņas un tam pievienota informācija var tikt iesniegta Uzraudzības komitejā. Sanāksmes protokolā jāfiksē pieprasījums un lēmums par tālāko rīcību attiecībā uz šo saņemto materiālu.
3. Tiesību ierobežojums
uz finansējuma galīgo laiku
(a) Tiesību ierobežojums uz finansējuma galīgo laiku parasti tiek noteikts finansu memoranda 4.panta 3.punktā.
(b) Galīgais datums attiecas uz maksājumiem, ko veic par projekta ieviešanu atbildīgā institūcija.
(c) Pēc šī datuma saņēmējvalstij tiek dots sešu mēnešu periods, kurā Komisijai ir jāiesniedz galīgais maksājuma pieprasījums, kā arī galīgais ziņojums un atzinums saskaņā ar finansu memoranda III 1. pielikuma, III (6) nodaļā un III 4. pielikuma klāt pievienotajā materiālā B..
(d) Šo sešu mēnešu periodu Komisija nepagarina.
XI nodaļa
Maksājuma pieprasījumi
Maksājuma pieprasījumi, ko saņēmējvalstis iesniedz Komisijai, pamatojas uz faktiski izmaksāto izdevumu deklarācijām, saskaņā ar II nodaļas 6.punktu.
Ja darbu ir veicis koncesionārs vai tam ekvivalenta institūcija, atbildīgajai valdības institūcijai ir jāapliecina izdevumu pareizība.
Maksājumu pieprasījumi jāreģistrē un jāapstiprina nacionālajai atbildīgajai amatpersonai. Tālāk pieprasījumi tiek nosūtīti Komisijai ar Komisijas delegācijas starpniecību.
XII nodaļa
Citas īpaši neizceltas pozīcijas.
(1) Ja rodas jautājumi, kas nav risināti saskaņā ar principiem, kuri nosaka izdevumu tiesības uz ISPA ietvaros saņemto palīdzību, šādi jautājumi ir apspriežami ar Komisiju. Komisija cenšas risināt jautājumus, pamatojoties uz šiem un Kohēzijas fonda principiem.
(2) Ja rodas konflikts starp šiem principiem un principiem, kas izriet no nacionālajiem noteikumiem attiecībā uz tiesībām saņemt finansējumu, par noteicošajiem uzskata pirmos iepriekš minētos principus.
1 http://europa.eu.int/comm/dg19/infoeuro/fr/index.htm
2 Eiropas parlamenta un Padomes 1996.gada 23.jūlija lemujms Nr.1692/96/EC par Kopienas norādījumiem Transeiropas Transporta tīkla attistībā.
3 Skat. Padomes noteikumu (EC) Nr.1266/99, 1999.gada 21.jūnijs, 12.(1) pantu.
4 Skat. Padomes noteikumu (EC) Nr.1266/99, 1999.gada 21.jūnijs, 12.(2) pantu.
III 3a. pielikums
III 3b. pielikums
III 3c. pielikums
III 4. pielikums
Līgums par minimālajām finansu kontroles prasībām, kas attiecināmas uz ISPA finansētiem pasākumiem
1. nodaļa
Līgums par minimālajām finansu kontroles prasībām, kas attiecināmas uz ISPA finansētiem pasākumiem (turpmāk MFKP) attiecas uz finansiālo palīdzību, ko sniedz saskaņā ar šo finansu memorandu, un ko apgūst saņēmējvalsts administrācija.
2.nodaļa
1. Saņēmējvalsts vadības un kontroles sistēmām:
(a) jānodrošina pienācīga palīdzības formu realizācija saskaņā ar drošas un efektīvas finansu vadības mērķiem;
(b) jānodrošina pietiekams apstiprinājums, ka pieprasījums veikt starpmaksājumus un galīgos maksājumus ir pamatots uz faktiskajiem izdevumiem;
(c) jānodrošina pietiekama revīzijas pierādījumu ķēde;
(d) jānorāda, kā organizēti pienākumi un kontroles, kas tiek piemērotas dažādos līmeņos, lai garantētu pamatotu apstiprinājumu;
(e) jāatvieglo iespējamo nepilnību vai risku noteikšana saistībā ar pasākumu vai projektu izpildi;
(f) jānodrošina koriģējošie pasākumi, lai novērstu nepilnības, riskus vai neatbilstības, kas noteiktas projekta īstenošanas gaitā, it īpaši attiecībā uz finansu vadību.
2. MFKP kontekstā pietiekama revīzijas pierādījumu ķēde ir tāda pierādījumu ķēde, kas atbilst klāt pievienotā materiāla A aprakstam.
3. nodaļa
1. Saņēmējvalstīm ir jāorganizē pasākumu un projektu kontroles (turpmāk - kontroles) kopumā vai izlases veidā, kas īpaši plānotas, lai:
(a) pārbaudītu esošo vadības un kontroles sistēmu efektivitāti;
(b) izlases veidā, pamatojoties uz riska analīzi, pārbaudītu dažādos līmeņos deklarēto izdevumu atbilstību.
2. Saņēmējvalstīm jācenšas sadalīt kontroļu īstenošanu vienmērīgi visa attiecīgā perioda laikā.
3. Kontrolēm pakļaujamo pasākumu un projektu atlase notiek, ņemot vērā:
(a) nepieciešamību kontrolēt atbilstošu projektu kompozīciju veidus un apjomus;
(b) jebkurus riska faktorus, ko noteikušas attiecīgās valsts vai Kopienas veiktās kontroles;
(c) projektu koncentrāciju noteiktās ieviešanas institūcijās vai noteiktus finansu palīdzības gala saņēmējus tā, lai galvenās ieviešanas institūcijas un palīdzības gala saņēmēji pirms katra projekta noslēguma tiktu pakļauti vienādai kontroles iespējamībai.
4.nodaļa
Ar kontroli saņēmējvalstīs apliecina:
(a) praktisko vadības un kontroles sistēmu pielietojumu un efektivitāti;
(b) atbilstošu grāmatvedības ierakstu skaitu, šo ierakstu atbilstību attaisnojuma dokumentiem palīdzības gala saņēmēja un starpnieka institūciju līmenī;
(c) pietiekamas revīzijas pierādījumu ķēdes posmu esamību;
(d) atbilstošu izdevumu pozīciju skaitu - vai attiecīgo izdevumu (saistības un maksājumi) raksturs un laiks atbilst Kopienas prasībām, projekta fiziskajam raksturojumam un faktiski veiktajiem darbiem;
(e) to, ka projekta izmantojums vai plānotais izmantojums ir atbilstošs izmantojumam, kas aprakstīts Kopienai iesniegtajā līdzfinansēšanas pieprasījumā;
(f) to, ka finansu maksājumi nepārsniedz finansu memorandā noteiktās robežas un tiek izmaksāti palīdzības gala saņēmējiem bez jebkādiem atvilkumiem un nepamatotas aizkavēšanās;
(g) to, ka reāli ir sagādāts un pieejams atbilstošs nacionālais līdzfinansējums;
(h) to, ka līdzfinansētie pasākumi ir īstenoti saskaņā ar finansu memoranda nosacījumiem.
5. nodaļa
Kontrolēm jānosaka, vai konstatētajām problēmām ir sistemātisks raksturs, šādu situāciju cēloņi, kāda varētu būt tālākā izpēte, kā arī nepieciešamie koriģējošie un profilaktiskie pasākumi.
6. nodaļa
Katra saņēmējvalsts un Komisija vismaz reizi gadā rīko konsultācijas, lai koordinētu savas kontroles programmas un panāktu maksimālu lietderību valsts un Kopienas līmenī izmantotajiem kopējiem kontroles resursiem. Šajās konsultācijās tiek apskatīti izmantojamie riska analīzes paņēmieni un pieņemtas zināšanai kontroles, ziņojumi un paziņojumi, ko pēdējā laikā veikušas nacionālās institūcijas, Komisija un Eiropas Auditoru tiesa.
7. nodaļa
1. Saņēmējvalstis nodrošina izmeklēšanu un apmierinošu acīmredzamo neatbilstību risināšanu, par kurām tiek ziņots pēc valsts vai Kopienas kontroles veikšanas.
2. Ja konstatētā neatbilstība sešu mēnešu laikā pēc tam, kad par to ir ziņots attiecīgajai ieviešanas institūcijai, netiek apmierinoši risināta, saņēmējvalsts informē Komisiju par esošo situāciju, ja vien tas jau nav izdarīts saskaņā ar III 5. pielikumu.
3. Šīs nodaļas 1. un 2.punkta izpratnē 'apmierinoša risināšana' nozīmē to, ka palīdzības gala saņēmējs vai ieviešanas institūcija attiecīgai personai vai organizācijai, kas atbild par kontroli saņēmējvalstī, iesniedz pietiekamus pierādījumus, ka konstatētā neatbilstība nepastāv vai ir tikusi labota.
Ja neatbilstībām piemīt sistemātisks raksturs, ar jēdzienu "atbilstoša risināšana" saprot to gadījumu koriģēšanu, ko kontroles nav atsevišķi noteikušas, un šādu gadījumu atkārtošanās novēršanu.
4. Pierādījumus, kas minēti nodaļas 3.punktā, var veidot grāmatvedības ierakstu kopijas un attaisnojuma dokumenti, vai arī jebkurš cits nepieciešamais pierādījums.
8. nodaļa
1 Ne vēlāk kā laikā, kad tiek pieprasīts galīgais maksājums saistībā ar finansēto pasākumu, saņēmējvalstīm jāiesniedz Komisijai atzinums, kura paraugs ir klāt pievienotajā materiālā B, ko sastādījusi no ieviešanas dienesta neatkarīga persona vai organizācija. Atzinumā apkopoti iepriekšējo gadu laikā veikto kontroļu atzinumi, kā arī dots vispārējs atzinums par galīgā maksājuma pieprasījuma atbilstību un to, vai darbības, kas ir galīgo deklarēto izdevumu pamatā, ir likumīgas un atbilstīgas.
2. Ja būtisku vadības vai kontroles nepilnību vai bieži konstatētu neatbilstību dēļ nav iespējams gūt pozitīvu vispārēju pārliecību par galīgā maksājuma pieprasījuma likumību, atzinums norāda uz šiem apstākļiem un novērtē problēmas apjomu un tās finansu sekas.
Šādos gadījumos Komisija var pieprasīt veikt tālāku kontroli, lai noteiktu un labotu neatbilstības konkrētā laika periodā.
9. nodaļa
Saņēmējvalstīm katru gadu vēlākais līdz 30.jūnijam un pirmo reizi - līdz 2002.gada 30.jūnijam ir jāinformē Komisija par to, kā tās iepriekšējā kalendārā gada laikā ir piemērojušas MFKP, īpaši 2.nodaļas prasības, kā arī pievienojot jebkurus nepieciešamos papildinājumus vai labojumus to vadības un kontroles sistēmu aprakstā, kas nepieciešams saskaņā ar III 1. pielikuma IX nodaļu.
10. nodaļa
Komisija un saņēmējvalsts strādā kopā, lai nodrošinātu šī līguma mērķu sasniegšanu administratīvās kārtības ietvaros, kas iedibināta ar katru konkrēto saņēmējvalsti.
11. nodaļa
1. Personas vai organizācijas, kas atbild par Kopienas līdzfinansēto darbību izpildi, nodrošina, lai visi dokumenti un grāmatvedības ieraksti, kas nepieciešami kontrolēm, tiktu nodoti par kontrolēm atbildīgajām amatpersonām vai personām, kas attiecīgi pilnvarotas šim mērķim.
2. Par kontrolēm atbildīgās amatpersonas vai personas, kas attiecīgi pilnvarotas šim mērķim, ir tiesīgas prasīt, lai tām tiktu nodrošināti dokumentu izraksti vai kopijas vai arī grāmatvedības ieraksti, kas minēti 1.punktā.
12. nodaļa
Kontroļu laikā savākto informāciju saskaņā ar attiecīgajām nacionālās un Kopienas likumu normām sargā profesionālais noslēpums. To nedrīkst izpaust nevienai personai, izņemot personas, kurām savu pienākumu dēļ saņēmējvalstīs vai Kopienas institūcijās pienākas zināt par šo informāciju, lai veiktu iepriekš minētos pienākumus.
13. nodaļa
Komisijas amatpersonām līdz noteiktajam datumam ir pieejami visi dokumenti, kas sagatavoti, lai veiktu kontroli, vai pēc kontroles, kas veikta saskaņā ar MFKP, tai skaitā dokumenti, kas glabājas datu apstrādes sistēmās.
14. nodaļa
Šī līguma par MFKP normas neliedz saņēmējvalstīm piemērot bargākus nacionālos kontroles noteikumus.
Materiāls A
Informatīvo prasību
indikatīvais apraksts
revīzijas pierādījumu ķēdei
Kā norādīts 2.(2) nodaļā, pietiekama revīzijas pierādījumu ķēde ir nodrošināta, ja palīdzībai:
1. Grāmatvedība tiek kārtota atbilstošā vadības līmenī, lai nodrošinātu detalizētu informāciju par maksājumiem, ko palīdzības gala saņēmēji veic katram līdzfinansētajam projektam, tai skaitā grāmatvedības ieraksta datums, katras izdevumu pozīcijas summa, attaisnojuma dokumenta numurs un datums, maksājuma veids; ierakstus pamato nepieciešamie dokumentārie pierādījumi (piem., rēķini).
2. Ja izdevumu pozīcijas ir tikai daļēji saistītas ar Kopienas līdzfinansētajām darbībām, pastāv pietiekams pamatojums, ka summas Kopienas līdzfinansētajām un citām darbībām ir sadalītas pareizi. Līdzīgs pamatojums pastāv arī izdevumu veidiem, kuri uzskatāmi par finansējamiem to pilnā apjomā vai proporcionāli to apjomam.
3. Projekta tehniskie un finansēšanas plāni, progresa ziņojumi, dokumenti, kas attiecas uz dotāciju apstiprinājumu, piedāvājumu konkursa rīkošanas un līgumu slēgšanas procedūrām u.t.t. ir uzglabāti un pieejami atbilstošā vadības līmenī.
4. Ziņojot par maksājumiem starpnieka institūcijai, 1.punktā minētā informācija tiek apkopota detalizētā izdevumu pārskatā, katram Kopienas līdzfinansētajam projektam norādot visas izdevumu pozīcijas tā, lai kopumā iegūtu kopējo apstiprināto summu. Šie detalizētie izdevumu pārskati uzskatāmi par attaisnojuma dokumentiem starpnieka institūciju grāmatvedības ierakstiem.
5. Starpnieka institūcijas kārto grāmatvedību par katru atsevišķo projektu un par izdevumu kopsavilkuma summām, kuras katru reizi apstiprina palīdzības gala saņēmējs. Atskaitoties III pielikuma III (9) nodaļā minētajām amatpersonām, starpnieka institūcijas iesniedz katrai palīdzības formai apstiprināto projektu sarakstu, kā arī informāciju par katru atsevišķo projektu, kas satur pilnu projekta un palīdzības gala saņēmēja nosaukumu, dotācijas apstiprināšanas datumu, piešķirtās un izmaksātās summas, aptverto izdevumu periodu un izdevumu summas pa pasākumiem un apakšprogrammām. Šī informācija ir noteiktās institūcijas grāmatvedības uzskaites attaisnojošais dokuments un kalpo par pamatu, gatavojot Komisijā iesniedzamās izdevumu deklarācijas.
6. Ja palīdzības gala saņēmējs atskaitās attiecīgi noteiktajai institūcijai, par šīs institūcijas grāmatvedības uzskaites attaisnojošiem dokumentiem uzskatāmi 4.punktā minētie detalizētie izdevumu pārskati, un šī institūcija atbild par 5.punktā minētā projektu saraksta sastādīšanu.
7. Ja starp palīdzības gala saņēmēju un attiecīgi noteikto institūciju ir vairākas starpnieka institūcijas, tad katrai starpnieka institūcijai par tās atbildības sfēru nepieciešami detalizēti izdevumu pārskati par zemākajā līmenī izlietotajām summām, kas izmantojami kā attaisnojošie dokumenti šo institūciju grāmatvedības uzskaitei, par ko šī institūcija atskaitās augstākā līmenī vismaz katra atsevišķā projekta izdevumu summu kopsavilkumā.
8. Ja pastāv citādāki vadības un informācijas procesa organizācijas modeļi, tai skaitā datorizēta datu pārsūtīšana, visas attiecīgās institūcijas iegūst pietiekamu informāciju zemākā līmenī, kas pamato to grāmatvedības uzskaiti un summas, par kurām tiek ziņots augstākam līmenim, tādējādi nodrošinot pietiekamu revīzijas pierādījumu ķēdi no Komisijai apliecinātajām kopsummām līdz atsevišķām izdevumu pozīcijām un attaisnojuma dokumentiem palīdzības gala saņēmēja līmenī.
Materiāls B
Galīgā maksājuma pieprasījumam pievienojamā atzinuma
indikatīvais modelis
Eiropas Komisijai,
Ģenerāldirektorātam
REGIO
Tēma >ISPA finansētais pasākums Nr. un vieta<
1. Es, …………….. ( vārds, amats un darba vietas nosaukums), esmu izpētījis maksājumu galīgo deklarāciju …………………… (norādīt ISPA finansēto pasākumu un apskatīto periodu) kopā ar pieprasījumu Komisijai par Kopienas finansiālās palīdzības atlikuma izmaksu.
KONTROĻU APJOMS
2. Esmu veicis kontroli saskaņā ar MFKP nosacījumiem. Izplānoju un veicu pārbaudi, lai iegūtu pietiekamu pārliecību par to, ka galīgā izdevumu deklarācijā un pieprasījumā par Kopienas piešķirtās palīdzības atlikuma izmaksu nav būtisku neatbilstību………………….(Īsumā aprakstiet praktiskās darbības, lai veiktu kontroli).
NOVĒROJUMI
3. Kontrolpārbaudes apjomu ierobežoja:
(a)
(b)
(c) , u.t.t.
(Uzskaitiet visus kontrolpārbaudes ierobežojumus, ka piemēram, sistēmu problēmas, vadības nepilnības, revīzijas pierādījumu ķēdes trūkums, attaisnojuma dokumentu trūkums, lietas, pret kurām uzsākta tiesvedība u.t.t.; novērtējiet izdevumu summas, ko ietekmē šie ierobežojumi un atbilstošo Kopienas palīdzības summu).
4. Kontrolpārbaude kopā ar citu valsts un Kopienas veikto kontroļu atzinumiem, kas man bija pieejami, atklājusi, ka kļūdu/ neatbilstību biežums ir mazs/ liels (norādiet pēc vajadzības; ja biežums ir liels, paskaidrojiet). Vadības iestādes ir atbilstoši risinājušas visas konstatētās kļūdas/ neatbilstības un šķiet, ka tās neietekmē izmaksājamās Kopienas palīdzības summu ar šādiem izņēmumiem:
(a)
(b)
(c) u.t.t.
(Norādiet kļūdas un neatbilstības, kas nav tikušas pienācīgi risinātas, un katram šādam gadījumam iespējamo problēmas sistemātisko raksturu un apjomu, kā arī Kopienas palīdzības summas, ko šķietami ietekmējušas šīs kļūdas).
SECINĀJUMS
Ja kontrolpārbaudēm nav nekādu ierobežojumu, konstatēto kļūdu biežums ir mazs un visas problēmas ir tikušas apmierinoši atrisinātas:
5 (a) Pēc kontrolpārbaudes un citu nacionālo vai Kopienas kontroļu atzinuma uzskatu, ka galīgā izdevumu deklarācija visos būtiskajos aspektos sniedz pareizu priekšstatu par izdevumiem, kas veikti saskaņā ar regulatīvajām normām un programmu nosacījumiem, un Komisijai adresētais pieprasījums par Kopienas palīdzības atlikuma izmaksu ir likumīgs.
Ja kontrolpārbaudēm ir bijuši zināmi ierobežojumi, bet kļūdu biežums nav liels, vai arī ja pastāv problēmas, kuras nav atrisinātas:
5 (b) Izņemot punktā 3 minētos jautājumus un (vai) kļūdas/neatbilstības, kuras nav apmierinoši risinātas, kā minēts 4.punktā, mans viedoklis ir, ka pamatojoties uz kontrolpārbaudes un citu nacionālo vai Kopienas kontroļu atzinumu, kas man bijuši pieejami, galīgā izdevumu deklarācija visos būtiskajos aspektos sniedz pareizu priekšstatu par izdevumiem, kas veikti saskaņā ar regulatīvajām normām un programmu nosacījumiem, un Komisijai adresētais pieprasījums par Kopienas palīdzības atlikuma izmaksu ir likumīgs.
Ja kontrolpārbaudēm ir bijuši būtiski ierobežojumi vai konstatēto kļūdu biežums ir liels, pat ja konstatētās kļūdas/ neatbilstības ir tikušas apmierinoši risinātas:
5(c) Ņemot vērā 3.punktā minētos jautājumus un (vai) lielo 4.punktā atklāto kļūdu biežumu, nevaru izteikt savu viedokli par galīgo izdevumu deklarāciju un Komisijai adresēto pieprasījumu par Kopienas palīdzības atlikuma izmaksu.
III 5.pielikums
Līgums par neatbilstībām, nepareizi saņemto summu atmaksāšanu ISPA ietvaros un fiziskajām pārbaudēm
1.nodaļa
Šis līgums neattiecas uz to, kā saņēmējvalstīs tiek piemēroti ar kriminālo tiesvedību saistītie likumi, vai uz tiesu sadarbību saņēmējvalstu starpā, Komisijas un saņēmējvalstu krimināltiesību jautājumos.
2.nodaļa
(1) Trīs mēnešu laikā pēc finansu memoranda stāšanās spēkā saņēmējvalstis informē Komisiju par:
- likumu, noteikumu, administratīvo aktu noteiktajām normām ISPA finansēto pasākumu piemērošanai;
- pilnvarotām institūcijām un organizācijām, kuras atbild par šo pasākumu piemērošanu, galvenajām normām, kas attiecas uz šo institūciju un organizāciju lomu un darbību un uz procedūrām, par kuru piemērošanu tās atbild.
(2) Saņēmējvalstīm nekavējoties jāziņo Komisijai par jebkādiem grozījumiem 1.punkta sniegtajā informācijā.
(3) Komisija izskata saņēmējvalstu ziņojumus un informē tās par saviem atzinumiem, kuri izdarīti, pamatojoties uz šo informāciju. Komisija uztur kontaktus ar saņēmējvalstīm tik, cik tas ir nepieciešams šis nodaļas nosacījumu piemērošanai.
3.nodaļa
Jēdziens "neatbilstības" apzīmē jebkuru finansu memoranda nosacījumu pārkāpumu, kas rodas saimnieciskā operatora darbības vai bezdarbības dēļ, un kam ir vai kam varētu būt nelabvēlīga ietekme uz Kopienas kopbudžetu, vai arī attiecīgā nacionālā likuma pārkāpumu, vai nepamatotu izdevumu pozīciju.
4.nodaļa
(1) Divu mēnešu laikā pēc katra ceturkšņa saņēmējvalstis sniedz pārskatu Komisijai un Eiropas Pretkorupcijas dienestam par jebkurām neatbilstībām, kas tikušas pakļautas sākotnējai administratīvai vai tiesu izmeklēšanai.
Šim nolūkam saņēmējvalstis nodrošina iespējami detalizētu informāciju par:
- ISPA finansēto pasākumu;
- izdevumu raksturu un summu; ja nav veikts maksājums - summas, kuras tiktu nepareizi samaksātas, ja neatbilstība netiktu atklāta, izņemot gadījumus, kad kļūda vai paviršība tiek atklāta pirms maksājuma un tā neizraisa nekādus administratīvus vai tiesu uzliktus sodus,
- kopējo summu un tās sadalījumu pa dažādiem finansējuma avotiem;
- periods vai brīdis, kurā notikusi neatbilstība;
- kādā veidā radās neatbilstība;
- veidu, kā tika atklāta neatbilstība;
- nacionālām institūcijām vai iestādēm, kas sastādījušas oficiālu ziņojumu par neatbilstību;
- finansiālājām sekām, maksājumu aizturēšanu, ja tādas ir, un atmaksāšanas iespējas;
- pirmo informāciju, kas radīja aizdomas par neatbilstību, datums un avots; datums, kurā tika sastādīts oficiāls ziņojums par neatbilstību; kur iespējams, iesaistītā saņēmējvalsts un trešās valstis,
- iesaistīto fizisko un juridisko personu identitāte, izņemot gadījumus, kuros šādai informācijai nav nekādas nozīmes neatbilstības likvidēšanā.
(2) Ja 1.punktā minētā informācija un it īpaši informācija par neatbilstības rašanos un atklāšanas veidu nav pieejama, saņēmējvalstis cenšas nodrošināt trūkstošo informāciju un nosūta Komisijai nākamos ceturkšņa ziņojumus par neatbilstībām.
(3) Ja nacionālās normas nosaka izmeklēšanas konfidencialitāti, informācijas izpaušanai nepieciešama atbilstoši kompetentas tribunāla tiesas atļauja.
5.nodaļa
Katra saņēmējvalsts nekavējoties ziņo Komisijai un, ja nepieciešams, attiecīgajām dalībvalstīm par visām atklātajām neatbilstībām vai neatbilstībām, par kurām ir aizdomas, ka tās ir radušās, ja pastāv bažas, ka:
- tās varētu ātri atsaukties ārpus attiecīgās teritorijas un/ vai,
- ir pierādījumi, ka šeit notikusi ļaunprātība.
6.nodaļa
Divu mēnešu laikā pēc katra ceturkšņa saņēmējvalstis informē Komisiju, atsaucoties uz iepriekšējiem ziņojumiem, kas veikti saskaņā ar 4. nodaļu, par procedūrām, kas piemērotas, lai risinātu iepriekš konstatētās neatbilstības, un par visām būtiskajām izmaiņām, kas notikušas to rezultātā, tai skaitā:
- summām, kas ir atmaksātas, vai tiks atmaksātas;
- saņēmējvalstu veiktajiem pagaidu pasākumiem, lai nodrošinātu nepareizi samaksāto summu atmaksāšanu,
- veiktajām tiesu vai administratīvajām procedūrām, lai atgūtu nepareizi samaksātās summas un piemērotu sankcijas;
- iemesliem, kāpēc nav tikušas īstenotas summu atgūšanas procedūras; ( Komisija jāinformē, pirms tiek pieņemts lēmums);
- atteikšanos no kriminālvajāšanas.
Saņēmējvalstis informē Komisiju par administratīvajiem vai tiesu lēmumiem vai arī to galvenajiem punktiem saistībā ar šādu procedūru izbeigšanu.
7.nodaļa
Ja attiecīgajā periodā nav nekādu neatbilstību, saņēmējvalstis informē Komisiju par šo faktu tādos pat termiņos, kādi noteikti 4. (1) nodaļā.
8.nodaļa
Kompetentas saņēmējvalsts iestādes saskaņā ar Komisijas pieprasījumu var uzsākt vai turpināt tiesvedību, lai atgūtu nepareizi samaksātās summas. Komisija var izlemt pilnībā vai daļēji atlīdzināt saņēmējvalstij juridiskās izmaksas un izmaksas, ko tiešā veidā izraisa tiesvedība, ja tiek iesniegti dokumentāri pierādījumi, pat ja tiesvedība ir nesekmīga.
9.nodaļa
1) Komisija uztur kontaktus ar attiecīgo saņēmējvalsti, lai papildinātu informāciju, kas sniegta par 4.nodaļā minētajām neatbilstībām, 6.nodaļā minēto procedūru un informāciju par atmaksāšanas iespējām.
2) Neatkarīgi no 1.punktā minētajiem kontaktiem Komisija sniedz informāciju saņēmējvalstīm, ja neatbilstības raksturs norāda uz to, ka identiski vai līdzīgi gadījumi var notikt citās saņēmējvalstīs.
3) Komisija organizē informatīvās sanāksmes Kopienas līmenī saņēmējvalstu pārstāvjiem, lai kopā ar tām izskatītu informāciju, kas iegūta saskaņā ar 4., 5. un 6.nodaļu, kā arī šīs nodaļas 1.punktu, it īpaši, attiecībā uz mācībām par neatbilstībām, profilaktiskajiem pasākumiem un juridisko tiesvedību.
4) Pēc saņēmējvalsts vai Komisijas lūguma saņēmējvalstis un Komisija savstarpēji konsultējas, lai novērstu jebkuras nepilnības, kas kaitē Kopienas interesēm, kuras atklājušās, pildot spēkā esošās normas.
10.nodaļa
Komisija krāpšanas novēršanas pasākumu ietvaros regulāri informē saņēmējvalstis par to, cik lielas ir neatbilstībās iesaistītās summas, kuras tikušas atklātas, un par dažādām neatbilstību kategorijām sadalījumā pa to veidiem, kā arī kopsummās.
11.nodaļa
(1) Saņēmējvalstis un Komisija veic visus nepieciešamos piesardzības pasākumus, lai nodrošinātu savstarpējās informācijas konfidencialitāti.
(2) Informāciju, uz kuru ir atsauces šai līgumā, nedrīkst nosūtīt personām, kas nav saņēmējvalstu personas vai Kopienas institūciju personas un kuru pienākumu izpildei šī informācija ir nepieciešama, ja vien saņēmējvalstis, kas sniedz šo informāciju, nav to nepārprotami atļāvušas.
(3) Fizisko vai juridisko personu nosaukumus nedrīkst atklāt citām saņēmējvalstīm vai Kopienas institūcijām, izņemot, ja tas ir nepieciešams, lai novērstu vai likvidētu neatbilstību vai noteiktu, vai neatbilstība patiešām ir reāli eksistējoša.
(4) Nodoto informāciju vai informāciju, kas ir iegūta saskaņā ar šo līgumu, sargā profesionālā konfidencialitāte. Informācijā tiek aizsargāta tāpat kā līdzīga veida informāciju saņēmējvalstīs sargā nacionālie normatīvie akti un Kopienas institūciju atbilstošās normas.
Turklāt šo informāciju drīkst izmantot tikai tiem mērķiem, kas noteikti šai līgumā, ja vien institūcijas, kas sniegušas šo informāciju, nav nepārprotami piekritušas informācijas izpaušanai, un ja normas, kas ir spēkā saņēmējvalstī, kas ir saņēmējas institūcijas mītnes zeme, neaizliedz šādas informācijas izpaušanu vai izmantošanu.
(5) Šīs nodaļas 1.-4.punkti neierobežo saskaņā ar šo līgumu iegūtās informācijas izmantošanu juridiskās darbībās vai tiesvedībā, kas vēlāk tiek uzsākta par Kopienas likumu neievērošanu pirmsiestāšanās palīdzības jomā. Kompetentas saņēmējvalstu institūcijas, kuras sniegušas šo informāciju, nekavējoties tiek informētas par šādas informācijas izmantošanu.
(6) Ja saņēmējvalsts informē Komisiju, ka tālākas izmeklēšanas rezultātā ir pierādījies, ka fiziska vai juridiska persona, kuras nosaukums ir darīts zināms Komisijai saskaņā ar šo līgumu, nav iesaistīta nekādās neatbilstībās, Komisija nekavējoties informē par šo faktu visas puses, kurām šis nosaukums ir ticis atklāts. Šādas personas vairs netiek uzskatītas par personām, kas iesaistītas iepriekš minētajās neatbilstībās.
12.nodaļa
Atmaksātās summas sadala saņēmējvalstis un Kopiena saskaņā ar kopējām līdzfinansēšanas likmēm proporcionāli faktiski veiktajiem izdevumiem.
13. nodaļa
Fiziskās pārbaudes un inspekcijas, kas tiek veiktas, lai aizsargātu Kopienas finansu intereses no definētājām 3.nodaļā neatbilstībām, sagatavo un veic Komisija ciešā sadarbībā ar attiecīgās saņēmējvalsts kompetentajām institūcijām, kuras tiek savlaicīgi informētas par pārbaužu un inspekciju priekšmetu un mērķi pēc šī pielikuma tā, lai šīs institūcijas varētu nodrošināt visu nepieciešamo palīdzību. Attiecīgās saņēmējvalsts amatpersonas var piedalīties šajās pārbaudēs un inspekcijās uz vietas.
Ja attiecīgā saņēmējvalsts vēlas, pārbaudes un inspekcijas var kopīgi veikt Komisija un saņēmējvalsts kompetentās institūcijas.
14. nodaļa
Komisija veic saimniecisko operatoru, t.i., fizisko vai juridisko personu, kurām nacionālās iestādes piešķīrušas attiecīgu tiesisko pilnvarojumu, fiziskās pārbaudes un inspekcijas, ja ir iemesli uzskatīt, ka ir notikušas neatbilstības.
Lai atvieglotu Komisijai šādu pārbaužu un inspekciju veikšanu, saimnieciskiem operatoriem tiek prasīts nodrošināt pieeju telpām, zemei, transporta līdzekļiem un citām jomām, kas tiek izmantotas saimnieciskajā darbībā.
Lai noteiktu, vai neatbilstība pastāv, Komisija var veikt citu iesaistīto saimniecisko operatoru fiziskās pārbaudes, lai iegūtu svarīgu informāciju fiziskajām kontrolēm un inspekcijām pakļautajiem faktiem.
15. nodaļa
(1) Fiziskās pārbaudes un inspekcijas Komisijas uzdevumā un pilnvarojumā veic tās amatpersonas vai darbinieki, kurus attiecīgi pilnvaro atbilstošie Komisijas noteikumi (turpmāk - Komisijas inspektori). Šādās pārbaudēs vai inspekcijās drīkst palīdzēt nacionālie eksperti, kurus deleģējusi saņēmējvalsts.
Komisijas inspektori apliecina savas pilnvaras, uzrādot rakstisku pilnvarojumu, kurā parādās to vārds, uzvārds un amats, kopā ar dokumentu, kurā noteikts fiziskās pārbaudes vai inspekcijas temats un mērķis.
Ievērojot attiecīgos Kopienas likumus, inspektoriem tiek prasīts ievērot arī attiecīgo saņēmējvalsts likumu noteikto kārtību.
(2) Saskaņā ar attiecīgo saņēmējvalstu līgumu Komisija var piesaistīt saņēmējvalstu amatpersonas novērotāju statusā, bet tās pārraudzībā darbojošās ārējas institūcijas piesaistīt tehniskās palīdzības nodrošināšanai.
Komisija nodrošina, ka iepriekšminētās amatpersonas un institūcijas sniedz visas nepieciešamās garantijas, kas saistītas ar to tehnisko kompetenci, neatkarību un profesionālo noslēpumu saglabāšanu.
16. nodaļa
(1) Komisijas inspektoriem ir pieeja uz tādiem pašiem noteikumiem kā valsts pārvaldes inspektoriem un saskaņā ar nacionālajiem normatīvajiem aktiem visai informācijai un dokumentācijai par attiecīgajām operācijām, kas nepieciešama, lai pienācīgi veiktu fiziskās pārbaudes un inspekcijas. Komisijas inspektori var izmantot tās pašas inspekcijas iespējas, ko valsts pārvaldes inspektori, un drīkst nokopēt attiecīgos dokumentus.
Fiziskajās pārbaudēs un inspekcijās konkrēti var tikt skatīti:
- saimniecisko operatoru rīcībā esošās profesionālās uzskaites grāmatas un dokumenti, piemēram rēķini, nosacījumu uzskaitījums, kvīšu pasakņi, izziņas par izmantotajiem materiāliem un paveikto darbu, bankas izraksti;
- datoru dati;
- ražošanas, iepakošanas un nosūtīšanas sistēmas un metodes;
- fiziskās pārbaudes par preču vai pabeigto operāciju saturu un daudzumu;
- paraugu ņemšana un pārbaude;
- nofinansēto darbu un investīciju gatavība un pabeigto investīciju pielietojums;
- budžeta un uzskaites dokumenti;
- subsidēto projektu finansu un tehniskā izpilde.
(2) Ja nepieciešams, saņēmējvalsts pēc Komisijas pieprasījuma veic atbilstošus piesardzības pasākumus saskaņā ar nacionālajiem normatīvajiem aktiem, lai saglabātu pierādījumus.
17. nodaļa
(1) Informāciju, kas iegūta saskaņā ar šo pielikumu, sargā profesionālais noslēpums, un tā tiek aizsargāta tāpat kā līdzīga veida informācija saņēmējvalstīs, kas to ieguvušas, sargā nacionālie normatīvie akti un Kopienu institūciju atbilstošās normas.
Šādu informāciju nedrīkst izpaust citām personām, kas nedarbojas Kopienas institūcijās vai saņēmējvalstī, kurām šī informācija nepieciešama to funkciju veikšanai, un to drīkst izmantot tikai lai nodrošinātu efektīvu Kopienas finansu interešu aizsardzību visās palīdzības saņēmējvalstīs. Ja saņēmējvalsts gatavojas izmantot informāciju, ko amatpersonas ieguvušas to pilnvarojumā kā novērotājas piedaloties fiziskās pārbaudēs un inspekcijās, tai nepieciešams iegūt tās saņēmējvalsts atļauju, kurā šī informācija tika iegūta.
(2) Komisija ziņo valsts kompetentajai institūcijai, kuras teritorijā ir veikta fiziskā pārbaude vai inspekcija, par jebkuriem faktiem vai aizdomām, kas saistīti ar neatbilstību, kas nonākusi Komisijas uzmanības lokā fiziskās pārbaudes vai inspekcijas gaitā. Jebkurā gadījumā Komisijai ir jāinformē iepriekš minētā institūcija par šādu pārbaužu vai inspekciju rezultātiem.
(3) Komisijas inspektori nodrošina, ka ziņojumos ņem vērā norādījumus par procedurām, kas noteikti attiecīgās saņēmējvalsts nacionālajos normatīvajos aktos. Iepriekš minētajiem ziņojumiem tiek pievienots 16. nodaļā minētais materiāls un attaisnojuma dokumenti. Tādā veidā sagatavotus ziņojumus drīkst izmantot kā (pieļaujamos) pierādījumus saņēmējvalsts administratīvos vai tiesu procesos, kuros to pielietojums izrādās nepieciešams, tādā pašā veidā un ar tādiem pat nosacījumiem kā administratīvos ziņojumus, ko sastādījuši valsts pārvaldes inspektori. Uz ziņojumiem attiecināmi tie paši novērtēšanas noteikumi, kā uz valsts pārvaldes inspektoru sastādītajiem ziņojumiem, un tie ir līdzvērtīgi. Ja inspekcijas tiek veiktas kopīgi, valsts inspektori, kas piedalās pārbaudē, arī paraksta Komisijas inspektoru sastādīto ziņojumu.
18. nodaļa
Ja 14. nodaļā minētie saimnieciskie operatori pretojas fiziskai pārbaudei vai inspekcijai, attiecīgajai saņēmējvalstij saskaņā ar nacionālajiem noteikumiem jāsniedz Komisijas inspektoriem nepieciešamā palīdzība, lai tiem veiktu to pienākumus saistībā ar fiziskām pārbaudēm vai inspekcijas izpildi.
Saņēmējvalsts pienākums ir veikt visus nepieciešamos pasākumus saskaņā ar nacionālajiem normatīvajiem aktiem.
III 6. pielikums
Informācijas un publicitātes prasības
Noteikumi par detalizēto kārtību informācijas un publicitātes jomā
1. Mērķi un apjoms
Ar ISPA finansētiem pasākumiem saistītās informācijas sniegšanas un publicitātes mērķis ir:
- celt sabiedrības apziņu un informētību par Eiropas Kopienas aktivitātēm;
-informēt potenciālos palīdzības saņēmējus un profesionālās organizācijas par ISPA iespējām.
Informācija un publucitāte skar visus projektus, kuriem ISPA nodrošinājusi finansu palīdzību.
Informācijas un publicitātes pasākumu mērķis ir informēt vispārējo sabiedrību, kā arī potenciālos palīdzības saņēmējus, tai skaitā:
- reģionālās, vietējās un citas valsts varas iestādes,
- ekonomiskos un sociālos partnerus,
- nevalstiskās organizācijas,
- projektu īstenotājus un sponsorus,
- citas ieinteresētās puses
par ISPA piedāvātajām iespējām.
2. Vispārīgie principi
Par ISPA projekta ieviešanu atbildīgā institūcija (turpmāk - atbildīgā institūcija) atbild par visiem publicitātes pasākumiem. Publicitāte tiek nodrošināta sadarbībā ar Komisijas departamentiem, kuri tiek informēti par veiktajiem pasākumiem.
Atbildīgā institūcija dara visu, lai efektīvi realizētu šos pasākumus un sadarbotos ar Komisijas departamentiem.
Informācijas un publicitātes pasākumi tiek veikti savlaicīgi pēc lēmuma par ISPA palīdzību pieņemšanas. Komisija patur sev tiesības uzsākt procedūru ISPA palīdzības samazināšanai, apturēšanai vai anulēšanai, ja saņēmējvalsts nepilda tās pienākumus saskaņā ar šo pielikumu.
3. Norādījumi informācijas un publicitātes aktivitātēm
Visiem informācijas un publicitātes pasākumiem tiek piemēroti šādi principi:
3.1 Masu saziņas līdzekļi
Atbildīgā institūcija informē masu saziņas līdzekļus par ISPA līdzfinansētajiem pasākumiem. Šajā informācijā tiek patiesi atspoguļota Eiropas Kopienas līdzdalība.
Oficiālā projektu un to svarīgo ieviešanas posmu uzsākšana tiek publiskota informatīvos pasākumos, it īpaši reģionā - presē, radio un televīzijā). Jānodrošina atbilstoša sadarbība ar Komisijas delegācijām attiecīgajās saņēmējvalstīs.
3.2 Informatīvie pasākumi
Daļēji no ISPA palīdzības finansētu projektu informatīvo pasākumu, piemēram, konferenču, semināru, gadatirgu un izstāžu, organizatoriem nepārprotami jānorāda uz Eiropas Kopienas līdzdalību. Jāizmanto iespēja izstādīt sanāksmju zālē Eiropas Kopienas karogu un attēlot uz dokumentiem Eiropas Kopienas emblēmu. Komisijas delegācijām saņēmējvalstīs, ja nepieciešams, ir jāpalīdz šādu pasākumu sagatavošanā un īstenošanā.
3.3 Informatīvie materiāli
Publikāciju (brošūras un lapiņas) par projektiem vai līdzīgiem pasākumiem titullapā ir jābūt skaidri saskatāmai Eiropas Kopienas emblēmai, ja tiek izmantota nacionālā, reģionālā vai vietējā emblēma.
Ja publikācijai ir priekšvārds, to paraksta gan atbildīgā saņēmējvalsts amatpersona, gan Komisijas vārdā Komisijas atbildīgais loceklis vai attiecīgi pilnvarots pārstāvis, lai nodrošinātu skaidru Eiropas Kopienas līdzdalības atspoguļojumu. Šādās publikācijās jābūt atsaucei uz institūciju, kas atbildīga par ieinteresēto pušu informēšanu.
Iepriekš minētie principi attiecas arī uz audiovizuālajiem un internetā izvietotiem materiāliem.
4. Saņēmējvalstu pienākumi
Uz informāciju un publicitāti attiecas savstarpēji saistītie pasākumi, kurus projekta darbības periodam nosaka atbildīgā institūcija sadarbībā ar Komisiju. Saņēmējvalstis nodrošina, ka Komisijas pārstāvji, arī tās delegācijas, tiek atbilstoši iesaistīti visās svarīgākajās publiskajās aktivitātēs saistībā ar ISPA.
Projektu ieviešanas gaitā atbildīgā institūcija veic šādus pasākumus, lai norādītu ISPA līdzdalību iepriekš minētajos projektos:
a) Ar projektu saistītā informācija
Tiek veikti informācijas un publicitātes pasākumi konkrētās vietās, lai informētu sabiedrību par Eiropas Kopienas palīdzību ISPA ietvaros. Atbildīgā institūcija publicē projektu saturu un nodrošina šādu dokumentu izplatīšanu vietējiem un reģionālajiem masu saziņas līdzekļiem, kā arī nodrošina to pieejamību ieinteresētām personām. Pasākumos jāizmanto:
- ziņojumu dēļi,
- piemiņas plāksnes.
kas abi uzstādāmi saskaņā ar īpašo kārtību informācijas izplatīšanai 'uz vietām', kas detalizētākā veidā izklāstīta tālāk.
b) Vispārīgā informācija saistībā ar ISPA
Papildus (a) apakšpunktā minētajam atbildīgā institūcija kopā ar nacionālo ISPA koordinatoru atbild par regulāras vispārējas informācijas sagatavošanu par valstij piešķirto ISPA palīdzību, atspoguļojot projektu ieviešanu un sasniegtos rezultātus. Šī vispārīgā informācija jāapkopo vismaz reizi gadā, un tai jābūt pieejamai Komisijai gada pārskata sastādīšanai. Šī informācija tiek sagatavota brošūru, profesionālo audiovizuālo materiālu (piem., videoklips) un attiecīgā līmenī organizētu preses konferenču veidā. Šī informācija grupē projektus pēc to rakstura un/ vai koncentrējas uz konkrētu interešu projektiem. Informācija tiek aktualizēta katru gadu un piegādāta nacionālām, reģionālām televīzijām un radio stacijām, Komisijai un pēc pieprasījuma arī citām ieinteresētām institūcijām saskaņā ar 1. punktā minēto.
5. Uzraudzības komiteju darbs
Uzraudzības komitejas nodrošina, ka ir pieejama atbilstoša informācija par to darbu. Šajā nolūkā katra Uzraudzības komiteja pēc nepieciešamības informē masu saziņas līdzekļus par savā atbildībā esošo projekta (-u) izpildes gaitu. Par kontaktiem ar masu saziņas līdzekļiem atbild priekšsēdētājs.
Sadarbībā ar Komisiju un tās delegācijām saņēmējvalstīs jāveic attiecīgas darbības, kad tiek rīkoti kādi svarīgi pasākumi, kā piemēram, augsta līmeņa tikšanās vai atklāšanas ceremonijas.
Komisijas pārstāvji Uzraudzības komitejas sadarbībā ar atbildīgo institūciju nodrošina atbilstību noteikumiem, kas pieņemti saistībā ar publicitāti, it īpaši tiem, kuri attiecas uz ziņojumu dēļiem un piemiņas plāksnēm (īpašos nosacījumus skat. tālāk).
Atbildīgā institūcija sniedz Uzraudzības komitejas priekšsēdētājam informāciju par publicitātes pasākumiem un pierādījumus, piemēram, fotogrāfijas.
Uzraudzības komitejas priekšsēdētājs nosūta Komisijai visu nepieciešamo informāciju gada pārskata sastādīšanai.
6. Noslēguma noteikumi
Atbildīgā institūcija drīkst veikt papildu pasākumus, kādus tā uzskata par nepieciešamiem.
Atbildīgā institūcija konsultējas ar Komisiju un informē to par iniciatīvām tā, lai Komisija varētu atbilstoši piedalīties to realizācijā.
Lai atvieglotu šo noteikumu izpildi, Komisija ar tās delegāciju starpniecību katrā konkrētā vietā izsniedz rokasgrāmatu valsts valodā. Rokasgrāmatā ir detalizētas projektēšanas norādes elektroniskā veidā (CD-ROM) un attiecīgie projekta izpildītāji. Pēc pieprasījuma rokasgrāmatas var saņemt no atbildīgās institūcijas vai no nacionālā ISPA koordinatora.
Īpašā kārtība attiecībā uz ziņojumu dēļiem un piemiņas plāksnēm
ISPA projektu pārskatamībai saņēmējvalstis nodrošina šādus informācijas un publicitātes pasākumus:
1. Ziņojumu dēļi
Ziņojumu dēļi ir uzstādāmi ar ISPA palīdzību veikto projektu realizācijas vietās. Uz šādiem dēļiem ir paredzēta vieta, lai norādītu Eiropas Kopienas līdzdalību.
Ziņojumu dēļiem ir jābūt atbilstošā izmērā.
Ziņojuma dēļa Eiropas Kopienai rezervētajai daļai jāatbilst sekojošiem kritērijiem:
- tā aizņem vismaz 50% no kopējās ziņojumu dēļa platības,
- tajā jāievēro Eiropas Kopienas emblēma un teksts, kāds redzams klāt pievienotajā tabulā.
Ja atbildīgā institūcija neuzstāda ziņojumu dēli, apliecinot savu līdzdalību, Eiropas Kopienas līdzdalība projekta finansēšanā jāizziņo ar speciāla ziņojumu dēļa palīdzību. Šādos gadījumos analoģiski piemērojami iepriekš minētie nosacījumi, par Eiropas Kopienai paredzēto ziņojuma dēļa daļu.
Ziņojumu dēļi tiek novākti ne vēlāk kā 6 mēnešus pēc darbu pabeigšanas, un tos aizstāj ar piemiņas plāksnēm saskaņā ar 2. punkta nosacījumiem.
2. Piemiņas plāksnes
Sabiedrībai pieejamās vietās ziņojumu dēļi tiek aizstāti ar piemiņas plāksnēm. Šādām plāksnēm jāatspoguļo Eiropas Kopienas ieguldījums dotajā projektā.
Teksts var būt sastādīts saskaņā ar šo paraugu:
"Šis projekts % apmērā ir līdzfinansēts no Eiropas Kopienas līdzekļiem. Pēc projekta pabeigšanas ….. (minēt gadu), kopējās projekta izmaksas bija …. (nacionālā valūta), un kopējais Eiropas Kopienas ieguldījums bija….. (nacionālā valūta)."