
Ministru kabineta noteikumi Nr.45
Rīgā 2011.gada 18.janvārī (prot. Nr.5 15.§)
Grozījumi Ministru kabineta 2008.gada 23.septembra noteikumos Nr.792 "Valsts un Eiropas Savienības atbalsta piešķiršanas, administrēšanas un uzraudzības kārtība pasākuma "Infrastruktūra, kas attiecas uz lauksaimniecības un mežsaimniecības attīstību un pielāgošanu" īstenošanai"
Izdoti saskaņā
ar Lauksaimniecības un lauku attīstības
likuma 5.panta ceturto un septīto daļu
Izdarīt Ministru kabineta 2008.gada 23.septembra noteikumos Nr.792 "Valsts un Eiropas Savienības atbalsta piešķiršanas, administrēšanas un uzraudzības kārtība pasākuma "Infrastruktūra, kas attiecas uz lauksaimniecības un mežsaimniecības attīstību un pielāgošanu" īstenošanai" (Latvijas Vēstnesis, 2008, 159.nr.; 2009, 167.nr.) šādus grozījumus:
1.Izteikt 4.punktu šādā redakcijā:
"4. Atbalsts tiek piešķirts meliorācijas sistēmu rekonstrukcijai un renovācijai. Jaunu meliorācijas sistēmu būvniecībai atbalsts tiek piešķirts tikai tad, ja tā paredzēta lauksaimniecībā izmantojamā zemē."
2. Izteikt 7.punktu šādā redakcijā:
"7. Vienā projektā var ietvert abas šo noteikumu 1.punktā minētās aktivitātes. Atbalsta pretendents projekta iesniegumā procentuāli nosaka ieguldāmo izmaksu sadali starp aktivitātēm."
3. Svītrot 11.punktu.
4. Izteikt 23.punktu šādā redakcijā:
"23. Ja tiek īstenots kopprojekts, ieguldījums šo noteikumu 6.1., 6.2. un 6.3.apakšpunktā minēto pretendentu jaunbūvējamās, rekonstruējamās vai renovējamās meliorācijas sistēmās ir vismaz 30 procentu apmērā no projekta kopējām attiecināmajām izmaksām."
5. Papildināt noteikumus ar 24.1 punktu šādā redakcijā:
"24.1 Valsts sabiedrība ar ierobežotu atbildību "Zemkopības ministrijas nekustamie īpašumi" attiecināmo izmaksu summu var precizēt pēc iepirkuma procedūras veikšanas, iesniedzot Lauku atbalsta dienestā attiecīgu pamatojumu grozījumu veikšanai projekta iesniegumā."
6. Izteikt 29.punkta ievaddaļu šādā redakcijā:
"29. Lai pieteiktos atbalstam, pretendents personīgi vaielektroniska dokumenta formā atbilstoši normatīvajiem aktiem par elektronisko dokumentu noformēšanu iesniedz Lauku atbalsta dienestā šādus dokumentus:".
7. Izteikt 29.1.apakšpunktu šādā redakcijā:
"29.1. projekta iesniegumu (2.pielikums) divos eksemplāros (ja projekta iesniegumu neiesniedz elektroniski). Lauku atbalsta dienests izdara atzīmi par projekta iesnieguma saņemšanu un vienu projekta iesnieguma eksemplāru atdod atbalsta pretendentam;".
8. Aizstāt 29.6.apakšpunktā vārdu "apsekošanas" ar vārdu "pārbaudes".
9. Izteikt 29.11.apakšpunktu šādā redakcijā:
"29.11. ja projekta iesnieguma iesniegšanas dienā nekustamais īpašums nav pretendenta īpašumā, – tiesisko valdījumu apliecinošus dokumentus par zemi, uz kuras notiks projektā paredzētie darbi. Ja tiek īstenots kopprojekts, minētos dokumentus iesniedz par visu kopprojekta dalībnieku tiesiskajā valdījumā esošo zemi, uz kuras notiks projektā paredzētie darbi."
10. Svītrot 30.2.apakšpunktu.
11. Izteikt 34.2.apakšpunktu šādā redakcijā:
"34.2. ar kopprojekta īstenošanu saistīto izmaksu apliecinošus dokumentus."
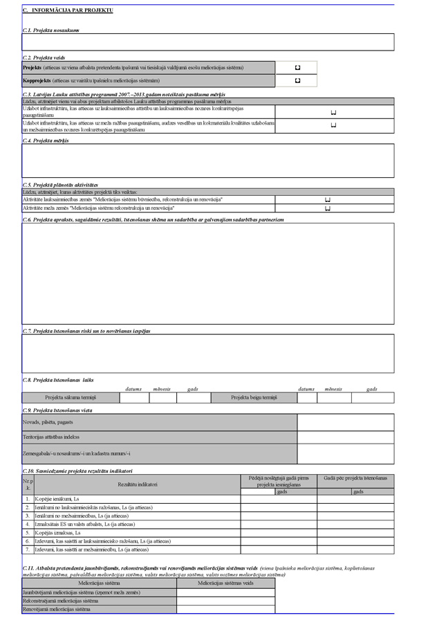
12. Izteikt 2.pielikumu jaunā redakcijā (pielikums).
Ministru prezidents V.Dombrovskis
Zemkopības ministrs J.Dūklavs
Zemkopības ministrijas iesniegtajā redakcijā
Pielikums
Ministru kabineta
2011.gada 18.janvāra
noteikumiem Nr.45
"2.pielikums
Ministru kabineta
2008.gada 23.septembra
noteikumiem Nr.792
Zemkopības ministrs J.Dūklavs