
Ministru kabineta noteikumi Nr.147
Rīgā 2010.gada 16.februārī (prot. Nr.9 32.§)
Valsts atbalsta piešķiršanas kārtība meža nozares attīstībai 2010.gadā
Izdoti saskaņā
ar Lauksaimniecības un
lauku attīstības likuma 5.panta ceturto daļu
I. Vispārīgie jautājumi
1. Noteikumi nosaka valsts atbalsta piešķiršanas kārtību meža nozares attīstībai (turpmāk – atbalsts) 2010.gadā.
2. Atbalsta kopējais apmērs ir 141 224 lati no Zemkopības ministrijas budžeta programmas 24.00.00 "Meža resursu ilgtspējības saglabāšana" apakšprogrammā 24.02.00 "Valsts atbalsta pasākumi meža nozarē" Meža attīstības fondam (turpmāk – fonds) paredzētajiem līdzekļiem.
3. Atbalsts paredzēts:
3.1. meža nozares atbalsta un attīstības programmu un projektu (turpmāk – attīstības projekti) finansēšanai 32 824 latu apmērā:
3.1.1. sabiedrības informēšanai un izglītošanai – 9824 lati;
3.1.2. pasākuma "Meža dienas 2010" norises nodrošināšanai – 10 000 latu;
3.1.3. meža nozares gada balvas "Zelta Čiekurs" balvu fondam – 13 000 latu;
3.2. zinātniskās izpētes projektu (turpmāk – izpētes projekti) finansēšanai 100 000 latu apmērā:
3.2.1. sākto ilgtermiņa projektu uzdevumu izpildei 2010.gadā – 80 000 latu;
3.2.2. prioritārās jomas projekta – Privāto mežu potenciālais devums Latvijas kokrūpniecībai 2011.–2015.gadā – novērtējumam 2010.gadā – 20 000 latu;
3.3. valsts starptautisko saistību izpildei Eiropas meža monitoringa sistēmas attīstības projekta "Further Development and Implementation of an EU-level Forest Monitoring System" (FUTMON) ieviešanā – 8000 latu;
3.4. ekspertiem par projektu iesniegumu un izpildes pārskatu vērtēšanu – 400 latu.
4. Uz atbalstu attīstības projektu īstenošanā var pieteikties fiziska vai juridiska persona (turpmāk – pretendents). Uz atbalstu izpētes projektu īstenošanā var pieteikties zinātnisko institūciju reģistrā reģistrēts pretendents.
5. Ja šo noteikumu 3.1.1., 3.1.2., 3.1.3., 3.2.1., 3.2.2., 3.3. vai 3.4.apakšpunktā minēto finansējumu neizlieto pilnā apmērā, fonda padome lemj par finansējuma pārdali un atkārtota konkursa izsludināšanu.
II. Projekta iesniegšana, vērtēšana un lēmuma pieņemšana
6. Lai īstenotu šo noteikumu 3.punktā minētos projektus, Zemkopības ministrija, pamatojoties uz fonda padomes lēmumu, izsludina konkursu, nosakot projekta iesnieguma (1.pielikums) iesniegšanas termiņu, kas nav īsāks par 14 dienām no konkursa izsludināšanas dienas laikrakstā "Latvijas Vēstnesis" un Zemkopības ministrijas tīmekļa vietnē.
7. Iesniegumu, projekta izpildes pārskatu un finanšu līdzekļu izlietojuma kopsavilkumu (2.pielikums) pretendents iesniedz Lauku atbalsta dienestā (turpmāk – dienests) vienā no šādiem veidiem:
7.1. papīra formā kopā ar identisku iesnieguma elektronisko versiju, izmantojot pieejamos elektronisko datu nesējus;
7.2. elektroniska dokumenta formā, parakstītu ar drošu elektronisko parakstu un apliecinātu ar laika zīmogu.
8. Pretendents iesniegumam pievieno šādus dokumentus:
8.1. projekta vadītāja un izpildītāju dzīves gaitas aprakstu (CV), kurā norādīta viņu izglītība un darba pieredze;
8.2. projekta vadītāja un izpildītāju apliecinājumu par gatavību strādāt projektā;
8.3. rakstisku trešās personas apliecinājumu par līdzfinansējuma pieejamību, ja attīstības projekta īstenošanai paredzēts trešās personas līdzfinansējums;
8.4. atbilstošu pilnvarojumu, ja iesniegumu parakstījusi institūcijas vadītāja pilnvarota persona.
9. Dienests piecu darbdienu laikā pēc iesniegumu iesniegšanas termiņa beigām:
9.1. izskata katra iesnieguma atbilstību šo noteikumu 3.pielikumā minētajiem administratīvajiem vērtēšanas kritērijiem;
9.2. elektroniski informē Zemkopības ministriju par iesnieguma atbilstību šo noteikumu 3.pielikumā minētajiem administratīvajiem vērtēšanas kritērijiem;
9.3. elektroniski nosūta Zemkopības ministrijai šo noteikumu 8.punktā minētos dokumentus.
10. Zemkopības ministrija šo noteikumu 7. un 8.punktā minētos dokumentus apkopo un iesniedz fonda padomē saskaņā ar normatīvajiem aktiem par Meža attīstības fonda izveidošanas, pārvaldīšanas un izlietošanas kārtību.
11. Iesniegumu izvērtē:
11.1. šo noteikumu 3.1.apakšpunktā (izņemot 3.1.3.apakšpunktu) minētajiem projektiem – fonda konsultatīvā padome (turpmāk – konsultatīvā padome) atbilstoši attīstības projektu vērtēšanas kritērijiem (4.pielikums);
11.2. šo noteikumu 3.2. un 3.3.apakšpunktā minētajiem projektiem – konsultatīvā padome un fonda padomes pieaicināti Latvijas Zinātnes padomes eksperti atbilstoši izpētes projektu vērtēšanas kritērijiem (5.pielikums). Eksperts par viena iesnieguma vērtējumu saņem 25 latus pirms normatīvajos aktos noteikto nodokļu samaksas.
12. Fonda padome mēneša laikā pēc iesnieguma iesniegšanas termiņa beigām saskaņā ar Administratīvā procesa likumu pieņem lēmumu par atbalsta piešķiršanu vai atteikumu piešķirt atbalstu un paziņo to dienestam. Ja projekta vērtējumā iegūtā punktu summa ir mazāka par 60, pieņem lēmumu par atteikumu piešķirt atbalstu.
13. Projekta izpildes pārskatu izvērtē:
13.1. šo noteikumu 3.1.apakšpunktā (izņemot 3.1.3.apakšpunktu) minētajiem projektiem – konsultatīvā padome;
13.2. šo noteikumu 3.2. un 3.3.apakšpunktā minētajiem projektiem – konsultatīvā padome un fonda padomes pieaicināti Latvijas Zinātnes padomes eksperti. Eksperts par viena projekta izpildes pārskata vērtējumu saņem 50 latu pirms normatīvajos aktos noteikto nodokļu samaksas.
14. Projektā nav attiecināmas šādas izmaksas:
14.1. pievienotās vērtības nodoklis, kā arī citi nodokļi un nodevas, ko iespējams atgūt atbilstoši normatīvajiem aktiem par nodokļiem un nodevām;
14.2. transportlīdzekļu iegādes izdevumi;
14.3. veselības, dzīvības un nelaimes gadījumu apdrošināšanas prēmijas;
14.4. citas ar projekta īstenošanu nesaistītas izmaksas;
14.5. izmaksas, kas nav pamatotas ar apliecinošiem dokumentiem.
III. Līguma slēgšana un finansēšana
15. Dienests piecu darbdienu laikā pēc šo noteikumu 12.punktā minētā fonda padomes lēmuma saņemšanas paziņo to pretendentam.
16. Pretendents 10 darbdienu laikā pēc lēmuma saņemšanas par atbalsta piešķiršanu iesniedz dienestā līguma sagatavošanai nepieciešamo informāciju (juridiska persona – reģistrācijas numuru Uzņēmumu reģistrā, juridisko adresi, bankas rekvizītus; fiziska persona – personas kodu, deklarēto dzīvesvietas adresi, bankas rekvizītus). Ja pretendents informāciju noteiktajā laikā nesniedz, dienests informē par to fonda padomi un tā ir tiesīga pārskatīt pieņemto lēmumu par atbalsta piešķiršanu.
17. Dienests 10 darbdienu laikā pēc šo noteikumu 16.punktā minētās informācijas saņemšanas ar pretendentu slēdz līgumu par projekta īstenošanu. Līgumā paredz:
17.1. pārskatu iesniegšanas kārtību un termiņus:
17.1.1. pārskatu par 2010.gada 1.pusgada uzdevumu izpildi iesniedz dienestā līdz 2010.gada 15.jūlijam;
17.1.2. projekta izpildes pārskatu, kā arī finanšu līdzekļu izlietojuma kopsavilkumu iesniedz dienestā līdz 2010.gada 8.novembrim;
17.1.3. projekta izpildes pārskata publiska prezentācija – 2010.gada IV ceturksnī;
17.2. finansēšanas kārtību un termiņus:
17.2.1. avansa maksājumu 50 procentu apmērā no projekta atbalsta summas;
17.2.2. starpmaksājumu, ja tas nepieciešams projekta izpildē, ne vairāk kā 30 procentu apmērā no projekta atbalsta summas – pēc pārskata par 2010.gada 1.pusgada uzdevumu izpildi apstiprināšanas fonda padomē;
17.2.3. gala norēķinu – pēc projekta izpildes pārskata apstiprināšanas fonda padomē;
17.2.4. līguma izpildei nepieciešamās finansējuma izmaiņas tāmē, ja tās pārsniedz 10 procentus no projekta atbalsta summas, saskaņo ar fonda padomi, bet par izmaiņām, kas nepārsniedz 10 procentus no projekta atbalsta summas, informē dienestu;
17.2.5. atbalstu izmaksā bezskaidras naudas norēķinu veidā, to pārskaitot uz projekta īstenotāja norādīto bankas kontu;
17.3. nosacījumu, ka projekta īstenotājs:
17.3.1. attīstības un izpētes projektu īstenošanas pasākumus veic 2010.gadā;
17.3.2. izplatot jebkuru informāciju par projektu, norāda atsauci uz finansētāju – Meža attīstības fondu;
17.3.3. izpētes projektu izpildes pārskatu ievieto Latvijas Lauksaimniecības universitātes zinātnes pētījumu datubāzē līdz 2011.gada 1.februārim;
17.3.4. projekta gaitā izveidotos materiālus (grāmatas, brošūras, videoierakstus) vienā eksemplārā iesniedz fonda sekretariātā;
17.4. nosacījumu, ka projekta īstenotājs informē fonda sekretariātu par projektā plānotajiem informatīvajiem pasākumiem.
18. Dienests:
18.1. piecu darbdienu laikā pēc līguma noslēgšanas izmaksā avansu projekta īstenotājam, ievērojot līguma nosacījumus;
18.2. piecu darbdienu laikā pēc projektu izpildes pārskatu iesniegšanas termiņa beigām apkopo tos un izvērtē to atbilstību šo noteikumu 3.pielikumā minētajiem administratīvajiem kritērijiem. Informāciju par projektu izpildes pārskatu apkopojumu elektroniski iesniedz Zemkopības ministrijā;
18.3. pēc fonda padomes lēmuma saņemšanas par projekta izpildes pārskata apstiprināšanu piecu darbdienu laikā veic norēķinu ar projekta īstenotāju;
18.4. pēc fonda padomes lēmuma saņemšanas par šo noteikumu 3.1.3.apakšpunktā minētās meža nozares gada balvas "Zelta Čiekurs" piešķiršanu piecu darbdienu laikā veic norēķinu ar balvas laureātiem;
18.5. pēc fonda padomes lēmuma saņemšanas piecu darbdienu laikā veic norēķinu ar šo noteikumu 3.4.apakšpunktā minētajiem ekspertiem par veikto ekspertīzi;
18.6. izlases veidā veic kontroli uz vietas pie atbalsta pretendenta ne mazāk kā 10 procentiem no kopējā īstenoto projektu skaita.
19. Fonda padome saskaņā ar normatīvajiem aktiem par Meža attīstības fondu pieņem lēmumu par finansēto projektu izpildi un piešķirto līdzekļu atmaksas apmēru.
20. Ja projekta īstenotājs ir sniedzis nepatiesu informāciju vai pārkāpis šo noteikumu vai noslēgtā līguma nosacījumus, dienests pēc fonda padomes lēmuma lauž līgumu ar projekta īstenotāju. Pēc fonda padomes lēmuma par atbalsta atmaksu dienests pieprasa projekta īstenotājam atmaksāt saņemto atbalsta summu.
Ministru prezidents V.Dombrovskis
Zemkopības ministrs J.Dūklavs
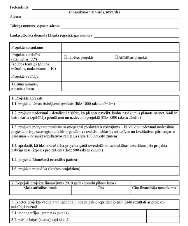
1.pielikums
Ministru kabineta
2010.gada 16.februāra
noteikumiem Nr.147
Projekta iesniegums valsts atbalsta saņemšanai 2010.gadā
Zemkopības ministrs J.Dūklavs
2.pielikums
Ministru kabineta
2010.gada 16.februāra
noteikumiem Nr.147
Finanšu līdzekļu izlietojuma kopsavilkums 2010.gadā
Zemkopības ministrs J.Dūklavs
3.pielikums
Ministru kabineta
2010.gada 16.februāra
noteikumiem Nr.147
Administratīvie vērtēšanas kritēriji
|
Nr.p.k. |
Kritērijs |
Iesniegums |
Pārskats |
| 1. | Iesniegts noteiktajā termiņā |
x |
x |
| 2. | Sagatavots datorrakstā valsts valodā |
x |
x |
| 3. | Sagatavots atbilstoši veidlapai, ir aizpildīti un iesniegti visi Ministru kabineta 2010.gada 16.februāra noteikumu Nr.147 "Valsts atbalsta piešķiršanas kārtība meža nozares attīstībai 2010.gadā" (turpmāk – noteikumi) 8.punktā minētie dokumenti |
x |
|
| 4. | Iesniegts atbilstoši noteikumu 7.punktā minētajām prasībām |
x |
x |
| 5. | Finansējums norādīts pilnos latos |
x |
x |
| 6. | Nav neatrunātu labojumu vai papildinājumu |
x |
|
| 7. | Tāme ir aritmētiski pareiza un saskan ar norādīto kopsummu |
x |
x |
| 8. | Izmaksu pozīcijās nav ietvertas noteikumu 14.punktā minētās neattiecināmās izmaksas |
x |
x |
| 9. | Dokumentus parakstījusi atbildīgā persona, kurai ir paraksta tiesības |
x |
x |
| 10. | Tāme saskan ar līgumā par projekta īstenošanu norādīto summu |
x |
Zemkopības ministrs J.Dūklavs
4.pielikums
Ministru kabineta
2010.gada 16.februāra
noteikumiem Nr.147
Meža nozares attīstības projektu vērtēšanas kritēriji
|
Nr.p.k. |
Vērtēšanas kritērijs |
Maksimālais |
| 1. | Plānoto rezultātu iegūšanas iespēja noteiktajā apjomā un termiņā |
10 |
| 1.1. | plānotos rezultātus ir iespējams iegūt noteiktajā apjomā un termiņā |
10 |
| 1.2. | plānotos rezultātus ir iespējams iegūt noteiktajā termiņā, bet nepilnā apjomā |
3 |
| 1.3. | plānotos rezultātus nav iespējams iegūt ne noteiktajā apjomā, ne termiņā |
0 |
| 2. | Projekta vadītāja pieredze un spēja kvalitatīvi īstenot pieteikto projektu un gūt plānotos rezultātus |
10 |
| 2.1. | projekta vadītājam ir pieredze un zināšanas vairāk nekā viena projekta vadībā |
10 |
| 2.2. | projekta vadītājam ir pieredze un zināšanas viena projekta vadībā |
5 |
| 2.3. | projekta vadītājam nav pieredzes projektu vadībā |
0 |
| 3. | Projekta izpildītāju pieredze un spēja kvalitatīvi īstenot pieteikto projektu un gūt plānotos rezultātus |
10 |
| 3.1. | projekta izpildītājiem ir pieredze un zināšanas projekta tēmas izpildē |
10 |
| 3.2. | pusei projekta izpildītāju ir pieredze un zināšanas projekta tēmas izpildē |
5 |
| 3.3. | projekta izpildītājiem nav pieredzes projekta tēmas izpildē |
0 |
| 4. | Piedāvātā metodika projekta īstenošanai |
10 |
| 4.1. | piedāvātā metodika atbilst projekta īstenošanai |
10 |
| 4.2. | ja metodiku precizē, ir iespējams projektu īstenot |
5 |
| 4.3. | ar piedāvāto metodiku nav iespējams projektu īstenot |
0 |
| 5. | Projekta budžeta pārskatāmība un detalizācijas pakāpe |
20 |
| 5.1. | viegli pārskatāms, smalki detalizēts |
20 |
| 5.2. | ir pārskatāms, vidēji detalizēts |
10 |
| 5.3. | grūti pārskatāms, formāli detalizēts |
1 |
| 6. | Izmaksu posteņu atbilstība plānotajiem uzdevumiem |
10 |
| 6.1. | izmaksu posteņi atbilst plānotajiem uzdevumiem |
10 |
| 6.2. | izmaksu posteņi daļēji atbilst plānotajiem uzdevumiem |
3 |
| 6.3. | izmaksu posteņi neatbilst plānotajiem uzdevumiem |
0 |
| 7. | Izmaksu posteņu samērojamība ar iegūstamajiem rezultātiem |
10 |
| 7.1. | izmaksu posteņi ir samērojami ar iegūstamajiem rezultātiem |
10 |
| 7.2. | izmaksu posteņi ir daļēji samērojami ar iegūstamajiem rezultātiem |
5 |
| 7.3. | izmaksu posteņi nav samērojami ar iegūstamajiem rezultātiem |
0 |
| 8. | Projekta izpildei piesaistītais līdzfinansējums |
15 |
| 8.1. | virs 30 % |
15 |
| 8.2. | 26–30 % |
10 |
| 8.3. | 11–25 % |
5 |
| 8.4. | līdz 10 % |
3 |
| 8.5. | līdzfinansējums nav piesaistīts |
0 |
| 9. | Dažādu nozaru, apakšnozaru institūciju vai citu sadarbības partneru iesaistīšana projekta īstenošanā |
5 |
|
KOPĀ |
100 |
|
| 10. | Pieteiktā projekta vērtējumu var samazināt, ja kāds no projekta vadītāja vadītiem Zemkopības ministrijas finansētajiem projektiem |
– 30 |
| 10.1. | nav izpildīts laikā |
– 15 |
| 10.2. | nav izpildīts atbilstoši līgumā noteiktajiem darba uzdevumiem |
– 15 |
Zemkopības ministrs J.Dūklavs
5.pielikums
Ministru kabineta
2010.gada 16.februāra
noteikumiem Nr.147
Zinātniskās izpētes projektu vērtēšanas kritēriji
|
Nr.p.k. |
Vērtēšanas kritērijs |
Maksimālais |
| 1. | Plānoto rezultātu iegūšanas iespēja noteiktajā apjomā un termiņā |
20 |
| 1.1. | plānotos rezultātus ir iespējams iegūt noteiktajā apjomā un termiņā |
20 |
| 1.2. | plānotos rezultātus ir iespējams iegūt noteiktajā termiņā, bet nepilnā apjomā |
10 |
| 1.3. | plānotos rezultātus nav iespējams iegūt ne noteiktajā apjomā, ne termiņā |
0 |
| 2. | Piedāvātā risinājuma metodiskā pieeja |
10 |
| 2.1. | piedāvātā metodika atbilst projekta īstenošanai |
10 |
| 2.2. | ja metodiku precizē, ir iespējams projektu īstenot |
5 |
| 2.3. | ar piedāvāto metodiku nav iespējams projektu īstenot |
0 |
| 3. | Projekta vadītāja un izpildītāju spēja kvalitatīvi īstenot pieteikto projektu |
20 |
| 3.1. | projekta vadītājam ir pieredze vismaz viena projekta vadībā |
5 |
| 3.2. | projekta izpildītājiem ir pieredze un zināšanas projekta tēmas izpildē |
5 |
| 3.3. | ir notikuši informatīvi pasākumi par pieteikto tēmu (piemēram, semināri, priekšlasījumi, lekcijas) |
5 |
| 3.4. | vismaz viens projekta iesnieguma 3.1.apakšpunktā minētais izdevums vai vismaz viena publikācija projekta iesnieguma 3.2.1.apakšpunktā minētajā izdevumā |
5 |
| 3.5. | projekta vadītājam nav pieredzes projektu vadībā |
0 |
| 3.6. | projekta izpildītājiem nav pieredzes projekta tēmas izpildē |
0 |
| 4. | Vairāku zinātnisko institūciju vai sadarbības partneru (vismaz trīs) iesaistīšana projekta īstenošanā |
5 |
| 5. | Starpdisciplīnu pētījums |
5 |
| 6. | Topošo zinātnieku, doktorantu iesaistīšana projekta īstenošanā |
10 |
| 6.1. | projekta īstenošanā iesaistīti vairāk nekā trīs topošie zinātnieki, doktoranti |
10 |
| 6.2. | projekta īstenošanā iesaistīti 1–3 topošie zinātnieki, doktoranti |
5 |
| 6.3. | projekta īstenošanā nav iesaistīti topošie zinātnieki, doktoranti |
0 |
| 7. | Projekta budžeta pārskatāmība un detalizācijas pakāpe |
20 |
| 7.1. | viegli pārskatāms, precīzi detalizēts |
20 |
| 7.2. | ir pārskatāms, vidēji detalizēts |
10 |
| 7.3. | grūti pārskatāms, formāli detalizēts |
1 |
| 8. | Izmaksu posteņu atbilstība plānotajiem uzdevumiem |
10 |
| 8.1. | izmaksu posteņi atbilst plānotajiem uzdevumiem |
10 |
| 8.2. | izmaksu posteņi daļēji atbilst plānotajiem uzdevumiem |
3 |
| 8.3. | izmaksu posteņi neatbilst plānotajiem uzdevumiem |
0 |
| 9. | Izmaksu posteņu samērojamība ar iegūstamajiem rezultātiem |
10 |
| 9.1. | izmaksu posteņi ir samērojami ar iegūstamajiem rezultātiem |
10 |
| 9.2. | izmaksu posteņi ir daļēji samērojami ar iegūstamajiem rezultātiem |
5 |
| 9.3. | izmaksu posteņi nav samērojami ar iegūstamajiem rezultātiem |
0 |
| 10. | Pētījumam nepieciešamais materiāltehniskais nodrošinājums zinātniskajā institūcijā |
10 |
|
KOPĀ |
100 |
|
| 11. | Pieteiktā projekta vērtējumu var samazināt, ja kāds no projekta vadītāja vadītiem un Zemkopības ministrijas finansētajiem projektiem |
– 30 |
| 11.1. | nav izpildīts laikā |
– 15 |
| 11.2. | nav izpildīts atbilstoši līgumā noteiktajiem darba uzdevumiem |
– 15 |
Zemkopības ministrs J.Dūklavs