
Ārlietu ministrijas informācija: Šajā laidienā 2 Pēdējās nedēļas laikā 1 Visi
Ārlietu ministrijas informācija
Rīgā 2019. gada 5. jūnijā
Par nolīguma grozījumu publicēšanu
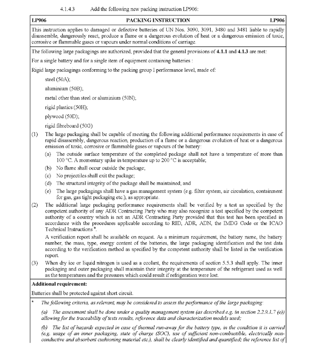
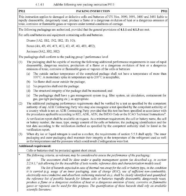
Ārlietu ministrija lūdz publicēt Eiropas valstu nolīguma par bīstamo kravu starptautiskajiem pārvadājumiem ar autotransportu (ADR) A un B pielikumu 2019. gada grozījumus angļu valodā un to tulkojumu latviešu valodā. Minētie grozījumi stājās spēkā 2019. gada 1. janvārī.
Ārlietu ministrijas
Juridiskā departamenta direktora p.i. K. Līce