
Satiksmes ministrija
Informācija Nr.4 2000.gada 28.jūlijā
Dzelzceļa signalizācijas instrukcija
Izdota saskaņā
ar Ministru kabineta 1999.gada 27.aprīļa noteikumu Nr.148
“Dzelzceļa tehniskās ekspluatācijas noteikumi” 4.2.
apakšpunktu
Nobeigums. Sākums “LV” 20.04.2001, Nr. 62
Elektriskā ritošā sastāva apstāšanās ar paceltu strāvas noņēmēju starp šiem balstiem aizliegta.
92. Kontrolstabiņi norāda vietu, līdz kurai uz ceļa, virzienā uz pārmiju vai ceļa krustojumu, drīkst novietot ritošo sastāvu (51. a,b. zīm.).
51.zīm.
93. Kontrolstabiņiem pie galvenajiem un pieņemšanas—nosūtīšanas ceļiem lieto 51. a. zīm. norādīto krāsojumu, bet pie pārējiem ceļiem — 51. b. zīm. norādīto krāsojumu.
94. Signālzīme “Stacijas robeža” ar uzrakstiem uz abām zīmes pusēm divceļu iecirkņos norāda stacijas robežu (52. zīm.).
95. Pastāvīgās gaismu atstarojošas signālzīmes “Bīstamās vietas sākums” (53. a. zīm.) un “Bīstamās vietas beigas” (53. b. zīm.) norāda iecirkņa robežas, pa kuru vilcienam jābrauc ar samazinātu ātrumu. Zem pastāvīgās signālzīmes “Bīstamās vietas sākums” novieto signālzīmi “Noteiktā ātruma rādītājs”, kas norāda maksimāli atļauto ātrumu norobežotajā iecirknī. Signālzīme “Bīstamās vietas beigas” novietota signālzīmes “Bīstamās vietas sākums” otrā pusē.
|
52.zīm. |
53.zīm. |
96. Brīdinājuma signālzīmes:
96.1.signālzīmi “S” — vēstījuma signāla padošana — uzstāda pirms tiltiem, pārbrauktuvēm u.tml. (54. zīm.);
96.2.signālzīmi “Lokomotīves apstāšanās vieta” uzstāda vietās, ko nosaka dzelzceļa infrastruktūras pārvaldītāja un pārvadātāja izveidota komisija (55. zīm.);
96.3.signālzīmi “Pirmā vagona apstāšanās vieta” (56. zīm.) uzstāda uz pasažieru platformām, kur apgrozās motorvagonu vilcieni.
97. Signālzīmi “Kontakttīkla piekares beigas” (57. zīm.) uzstāda kontakttīkla vietās, kur beidzas kontaktvada darba zona.
|
54.zīm. |
55.zīm. |
56.zīm. |
57.zīm. |
98. Vietās, kur dzelzceļa līniju šķērso naftas vai gāzes produktu cauruļvadi, 500 m attālumā pirms šīm vietām uz kontakttīkla balstiem vai uz speciāliem balstiem trīs m augstumā no sliedes galviņas virsas uzstāda signālzīmes — “GĀZE” vai “NAFTA” (58. zīm.). Šīs zīmes liek tuvoties šai vietai un braukt pa to ar paaugstinātu uzmanību (modrību).
99. Drošības posteņa signālzīme (59. zīm.) norāda, ka attiecīgā posteņa darbinieks (stacijas dežurants, pārbrauktuves dežurants u.c.) novēro braucošā vilciena tehnisko stāvokli un postenis ir aprīkots ar papildlīdzekļiem garāmbraucoša vilciena pastiprinātai kontrolei.
|
58.zīm. |
59.zīm. |
100. Signālzīmes “Bremzēšanas sākums” (60. a. zīm.), “Bremzēšanas beigas pasažieru vilcieniem” (60. b. zīm.) un “Bremzēšanas beigas kravas vilcieniem” (60. c. zīm.) norāda vilces līdzekļa vadītājam (mašīnistam) automātisko bremžu pārbaudes vietas. Bremzēšanas beigu vietu signālzīmēs norāda maksimālo ātrumu, kāds atbilst bremžu normatīvai efektivitātei.
60.zīm.
101. Šīs instrukcijas 100. punktā minēto signālzīmju uzstādīšanas kārtību nosaka pārvadātājs, saskaņojot ar dzelzceļa infrastruktūras pārvaldītāju.
8. Pagaidu signālzīmes
102. Vietās, kur elektriskais ritošais sastāvs nedrīkst braukt ar paceltu strāvas noņēmēju (gadījumos, kad bojāts kontakttīkls, veic plānotos remonta un būvdarbus, kad vilciens braucot nolaiž strāvas noņēmējus), uzstāda gaismu atstarojošas pagaidu signālzīmes, kuras signalizē:
102.1. “Gatavoties nolaist strāvas noņēmēju” (61. a. zīm.);
102.2. “Nolaist strāvas noņēmēju” (61. b. zīm.);
102.3. “Pacelt strāvas noņēmēju” (61. c. zīm.).
61.zīm.
Šo signālzīmju uzstādīšanas shēma parādīta 62. zīm.
62.zīm.
103. Ja divceļu iecirknī tiek veikti plānotie ceļa remonta un būvdarbi un vilcienus laiž pa vienu no ceļiem, ieliekot pagaidu ceļu pārejas bez kontakttīkla, tad signālzīmi “Nolaist strāvas noņēmēju” uzstāda ne tuvāk par 100 m no norobežojamā iecirkņa. Pārējās signālzīmes uzstāda saskaņā ar 62. zīm.
104. Iecirkņos, kur strādā sniegtīri, uzstāda pagaidu signālzīmes:
104.1. “Pacelt nazi, aizvērt spārnus” — pirms šķēršļa (63. zīm.);
104.2. “Nolaist nazi, atvērt spārnus” — pēc šķēršļa (64. zīm.).
105. Iecirkņos, kur strādā ātrgaitas sniegtīri, pirms signālzīmes “Pacelt nazi, aizvērt spārnus” uzstāda pagaidu signālzīmi “Gatavoties naža pacelšanai un spārnu aizvēršanai” (65. zīm.).
|
63.zīm. |
64.zīm. |
65.zīm. |
106. Signālzīmju uzstādīšanas shēmas iecirkņos, kur strādā sniegtīri, attēlotas 66. zīm., bet, kur strādā ātrgaitas sniegtīri — 67. zīm.
|
66.zīm. |
67.zīm. |
107. Ja divi šķēršļi atrodas tik tuvu viens pie otra, ka sniegtīra darbs starp tiem nav iespējams, tad uz masta novieto vienu zem otras divas signālzīmes (68. zīm.).
68.zīm.
VII. Manevru darbos lietojamie signāli
108. Manevru luksofori signalizē:
108.1. viena mēnessbalta uguns — “Atļauts izdarīt manevrus” (69. zīm.);
108.2. viena zila uguns — “Aizliegts izdarīt manevrus” (70. zīm.).
|
69.zīm. |
70.zīm. |
109. Atļauju izdarīt manevrus var padot ar vienu mēnessbaltu uguni un nodzēstu sarkano uguni izejas un maršrutu luksoforos. Atļauju braukt garām izejas un maršrutu luksoforu sarkanām ugunīm manevru rajonā var padot arī ar vienu mēnessbaltu uguni grupas manevru luksoforos.
110. Vienceļu līniju, kā arī ar divpusējo autobloķēšanu aprīkotu divceļu līniju stacijās manevru luksoforā, kas novietots uz izejas luksofora masta no stacijas puses, var lietot signālu: viena mēnessbalta uguns — “Manevru sastāvam atļauts izbraukt aiz stacijas robežas”.
111. Ar grupas manevru luksoforu, kas atļauj izdarīt manevrus noteiktā rajonā, padod signālus vienā, vai arī abos virzienos.
112. Manevru luksoforos, ja tie nav novietoti vilcienu kustības maršrutos, zilas uguns vietā drīkst lietot sarkanu uguni. Stacijās, kas aprīkotas ar pārmiju un signālu elektrisko centralizāciju, manevru luksoforos var lietot signālu: divas mēnessbaltas ugunis — “Atļauts izdarīt manevrus, ceļš, ko norobežo šis luksofors, ir brīvs”.
113. Šķirošanas uzkalnu luksofori signalizē (71. zīm.):
113.1. viena zaļa uguns — “Atļauts nolaist vagonus no uzkalna ar noteikto ātrumu”;
113.2. viena dzeltena uguns — “Atļauts nolaist vagonus no uzkalna ar samazinātu ātrumu”;
113.3. viena dzeltena un viena zaļa uguns — “Atļauts nolaist vagonus no uzkalna ar ātrumu intervālā starp noteikto un samazināto ātrumu”;
113.4. sarkana uguns — “Stāt!”;
113.5. baltas krāsas zīme “A” gaismas signālrādītājā vienlaicīgi ar sarkano uguni — “Atstumt vagonus no uzkalna atpakaļ uz pieņemšanas parka ceļiem vai uz izvilkšanas ceļa”.
71.zīm.
114. Gadījumos, kad uzkalna luksofora signāla redzamība nav nodrošināta, lai informētu vilces līdzekļa vadītāju (mašīnistu) par tā signālu, lieto atkārtotājluksoforus vai uzkalnu automātisko lokomotīvju signalizāciju. Atkārtotājluksoforiem un lokomotīvju luksoforiem jāsignalizē ar tiem pat signāliem, ar kuriem signalizē uzkalna pamatluksofors. Atkārtotājluksoforos, kas novietoti pieņemšanas parka ceļa vidū, sarkanās uguns vietā var lietot zilo uguni.
115. Uz pieņemšanas parka ceļiem, lai atļautu padot sastāvus līdz šķirošanas uzkalna luksoforam, kā arī, lai signalizētu uz piekalna ceļiem, var lietot manevru luksoforus.
116. Ja nav manevru luksoforu, tad manevros pabraukt garām izejas un maršruta luksoforiem ar sarkanu uguni drīkst ar stacijas dežuranta, vai pēc viņa rīkojuma, manevru vadītāja personīgu, vai pa radiosakariem vai divpusējiem parka skaļruņu sakariem padotu atļauju, vai ar rokas signālu.
117. Manevros signalizē ar rokas un dzirdes signāliem:
117.1. “Atļauts vilces līdzeklim braukt ar vadību uz priekšu”: dienā — rokas kustība puslokā virs galvas ar atritinātu dzeltenu karodziņu, naktī — rokas kustība puslokā virs galvas ar rokas lukturi ar dzidri baltu uguni (72. zīm.) vai vienu garu svilpes skaņu;
117.2. “Atļauts vilces līdzeklim braukt ar vadību atpakaļ”: dienā — nolaistas rokas kustība puslokā ķermeņa priekšā ar atritinātu dzeltenu karodziņu, naktī — nolaistas rokas kustība puslokā ķermeņa priekšā ar rokas lukturi ar dzidri baltu uguni (73. zīm.) vai divām garām svilpes skaņām;
|
72.zīm. |
75.zīm. |
117.3. “Lēnāk”: dienā — lēna rokas kustība augšup un lejup ar atritinātu dzeltenu karodziņu, naktī — lēna rokas kustība augšup un lejup ar rokas lukturi ar dzidri baltu uguni (74. zīm.) vai divām īsām svilpes skaņām;
117.4. “Stāt!”: dienā — riņķveida kustība ar roku, vai ar atritinātu sarkanu vai dzeltenu karodziņu, naktī — riņķveida kustība ar lukturi, neatkarīgi no tā signāla krāsas (75. zīm.), vai trīs īsas svilpes skaņas.
|
73.zīm. |
74.zīm. |
118. Dzirdes signālus manevru vadītājs padod ar rokas svilpi.
119. Manevru signālus vilces līdzekļa vadītājs (mašīnists) atkārto ar vilces līdzekļa svilpi, tā apstiprinot to pieņemšanu izpildei.
120. Rīkojumu pārmijniekam, centralizācijas posteņa dežurantam (operatoram), signālistam par pārmijas (pārmiju) pārvešanu uz kādu no ceļiem var nodot ar dažāda garuma skaņām (ar vilces līdzekļa vai manevru vadītāja svilpi) vai arī ar citiem līdzekļiem atkarībā no stacijas tehniskā aprīkojuma kārtībā, kas noteikta stacijas tehniskās rīcības aktā.
VIII. Vilcienu, vilces līdzekļu un citu ritošo vienību apzīmēšanai lietojamie signāli
121. Vilciena sākumu, braucot vienceļa iecirkņos un divceļu iecirkņos pa pareizo ceļu, dienā ar signāliem neapzīmē, naktī apzīmē ar divām dzidri baltām ugunīm buferu brusas lukturos (76. a. zīm.).
122. Vilciena sākumu, braucot pa nepareizo ceļu, dienā un naktī apzīmē: ar luktura sarkanu signālu — kreisajā pusē un ar luktura dzidri baltu uguni — labajā pusē (76. b. zīm.).
76.zīm.
123. Naktī braucošu vilces līdzekli vilciena sākumā, kā arī uz atsevišķi ejoša vilces līdzekļa priekšā vienceļa iecirkņos un pa pareizo un nepareizo ceļu divceļu iecirkņos papildus apzīmē prožektora dzidri balta uguns.
124. Dienā kravas vilciena sākumu, braucot ar vagoniem pa priekšu vienceļa iecirkņos un divceļu iecirkņos pa pareizo ceļu, ar signāliem neapzīmē, naktī apzīmē dzidri baltu uguni lukturī pie buferu brusas (77. a. zīm.).
125. Braucot ar vagoniem pa priekšu pa nepareizo ceļu, kravas vilciena sākumu apzīmē:
125.1. dienā — ar sarkanu atritinātu karodziņu, ko kreisajā pusē rāda darbinieks, kas pavada vilcienu un atrodas uz priekšējā bremzes laukuma;
125.2. naktī — ar dzidri baltu uguni lukturī pie buferu brusas un ar sarkanu uguni rokas lukturī, ko kreisajā pusē rāda darbinieks, kas pavada vilcienu (77. b. zīm.).
77.zīm.
126. Vilciena pēdējo vagonu, braucot vienceļa iecirkņos un divceļu iecirkņos pa pareizo un nepareizo ceļu apzīmē:
126.1. kravas un kravas—pasažieru vilcienam dienā un naktī — ar gaismu atstarojošu sarkanu disku pie buferu brusas labajā pusē (78. a. zīm.);
126.2. pasažieru un pasta—bagāžas vilcienam dienā un naktī — ar trim sarkanām ugunīm (78. b. zīm.).
78.zīm.
127. Ja pasažieru vai pasta—bagāžas vilciena beigās piekabināts kravas vagons, kam nav pastāvīgo signāllukturu, vilciena beigas apzīmē:
127.1.dienā — ar gaismu atstarojošu sarkanu disku vai ar atritinātu sarkanu karodziņu pie bufera brusas labajā pusē;
127.2.naktī — ar vienu sarkanu uguni lukturī pie buferu brusas labajā pusē (79. a. zīm.).
128. Vilces līdzekli, ja vilcienu stumj ar vagoniem pa priekšu, kā arī bez vagoniem ejošu vilces līdzekli, aizmugurē apzīmē dienā un naktī — ar sarkanu uguni lukturī pie buferu brusas labajā pusē (79. b. zīm.).
79.zīm.
129. Citus nenoceļamā tipa vilces līdzekļus ar signāliem apzīmē tāpat kā bez vagoniem ejošus vilces līdzekļus saskaņā ar šīs instrukcijas 128. punktu.
130. Saimniecības vilcienu, atgriežoties no divceļu posma atpakaļ uz staciju pa nepareizo ceļu, apzīmē ar tādiem pat signāliem, kādi paredzēti braucot pa nepareizo ceļu.
131. Kravas vilciena pašatkabināšanās (pārtrūkšanas) gadījumā posmā, tās vilciena daļas, ko nosūta uz staciju, pēdējo vagonu apzīmē:
131.1. dienā — ar atritinātu dzeltenu karodziņu pie buferu brusas labajā pusē (80. zīm.);
131.2. naktī — ar dzeltenu uguni lukturī (80. zīm.).
80.zīm.
132. Pēdējo vilciena daļu, ko novāc no posma, apzīmē tāpat kā kravas vilciena pēdējo vagonu.
133. Sniegtīri ar vilces līdzekli, braucot vienceļa iecirkņos un divceļu iecirkņos pa pareizo ceļu apzīmē:
133.1.ja priekšā ir sniegtīris:
133.1.1.dienā — divi atritināti dzelteni karodziņi uz sānu āķiem;
133.1.2.naktī — divas dzeltenas ugunis sānu lukturos, bet uz vilces līdzekļa pusi — divas dzidri baltas kontrolugunis (81. a. zīm.);
133.2. ja priekšā ir vilces līdzeklis:
133.2.1.dienā — divi atritināti dzelteni karodziņi pie buferu lukturiem; 133.2.2.naktī — divas dzeltenas ugunis buferu lukturos (81. b. zīm.).
134. Sniegtīri aizmugurē apzīmē tāpat kā atsevišķi bez vagoniem braucošu vilces līdzekli.
135. Sniegtīri, ja tas brauc priekšā lokomotīvei pa divceļu iecirkņa nepareizo ceļu, apzīmē:
135.1.dienā — divi dzelteni atritināti karodziņi uz sānu āķiem un sarkans atritināts karodziņš zem dzeltenā karodziņa kreisajā pusē;
135.2.naktī — divas dzeltenas un viena sarkana uguns sānu lukturos, bet uz vilces līdzekļa pusi — trīs dzidri baltas kontrolugunis (81. c. zīm.).
81.zīm.
136. Ja sniegtīra priekšā ir vilces līdzeklis, tad to apzīmē tāpat, kā priekšā braucošu sniegtīri.
137. Manevrējošu vilces līdzekli, kā arī vilciena vilces līdzekli, braucot pie vilciena sastāva un no sastāva, naktī apzīmē priekšā un aizmugurē ar vienu dzidri baltu uguni buferu brusas lukturī tajā vilces līdzekļa pusē, kurā atrodas vadības pults, no kuras tiek vadīts vilces līdzeklis.
138. Uz noceļamā tipa drezīnām un cita noceļama ritošā sastāva, tam atrodoties posmā jābūt:
138.1.vienceļa posmā vai braucot pa divceļu posma nepareizo ceļu:
138.1.1.dienā — abpusēji sarkanas krāsas taisnstūra signāltāfelei vai atritinātam sarkanam karodziņam uz kārts;
138.1.2.naktī — sarkanai ugunij rokas lukturī, kas nostiprināts uz kārts un redzams no abiem kustības virzieniem;
138.2.divceļu iecirknī, braucot pa pareizo ceļu:
138.2.1.dienā — taisnstūra signāltāfelei, kurai priekšpuse ir baltā krāsā, bet aizmugurē — sarkanā krāsā;
138.2.2.naktī — no priekšpuses dzidri baltai ugunij, aizmugurē — sarkanai ugunij rokas lukturī, kas nostiprināts uz kārts.
139. Uz noceļamiem remonttorņiem, strādājot posmā elektrificētos iecirkņos jābūt:
139.1.vienceļa iecirknī vai braucot pa divceļu iecirkņa nepareizo ceļu:
139.1.1.dienā — abās pusēs atritinātam sarkanam karodziņam;
139.1.2.naktī — priekšpusē un aizmugurē luktura sarkanai ugunij;
139.2.divceļu iecirkņos, braucot pa pareizo ceļu:
139.2.1.dienā — atritinātam sarkanam karodziņam labajā pusē;
139.2.2.naktī — priekšpusē luktura dzidri baltai ugunij, aizmugurē — luktura sarkanai ugunij.
140. Visos gadījumos signālus piestiprina noceļamā remonttorņa iezemētās joslas augšējā līmenī.
141. Noceļamos remonttorņus un truļus, braucot posmā, abpusēji norobežo ar pārnēsājamiem vai rokas sarkaniem signāliem, kurus pārvieto vienlaicīgi ar remonttorņu un truļu kustību attālumā B, kas uzrādīts šīs instrukcijas pielikuma tabulas 4. ailē, atkarībā no vadošā krituma un posmā atļautā maksimālā ātruma.
142. Strādājot stacijās:
142.1. uz noceļamiem remonttorņiem jābūt:
142.1.1.dienā — abās pusēs atritinātam sarkanam karodziņam;
142.1.2.naktī — priekšpusē un aizmugurē luktura sarkanai ugunij;
142.2.uz truļiem:
142.2.1.dienā —abpusējai sarkanas krāsas signāltāfelei vai sarkanam karodziņam uz kārts;
142.2.2. naktī — sarkanai ugunij uz abām pusēm uz kārts nostiprinātā lukturī.
143. Pārvietojoties pa stacijas ceļiem un pārmijām, noceļamais remonttornis un trulis bez tam vēl jānorobežo no abām pusēm ne tuvāk par 50 m ar pārnēsājamiem vai rokas sarkaniem signāliem, kas pārvietojami vienlaicīgi ar remonttorņa un truļa kustību.
144. Dažāda tipa noceļamo ritošo sastāvu, kuru lieto darbos, norobežo no abām pusēm dzelzceļa infrastruktūras pārvaldītāja noteiktajā kārtībā.
145. Ja divceļu iecirknī pa blakus ceļu gaidāms vilciens, tad sarkano signālu, kas norobežo noceļamo remonttorni, truli vai citu noceļamo ritošo vienību no priekšpuses, līdz vilciena pabraukšanai garām noņem.
146. Divceļu elektrificētos iecirkņos, izņemot iecirkņus, kas aprīkoti ar divpusējo autobloķēšanu, un iecirkņos, kur pasažieru vilcieni brauc ar ātrumu virs 120 km/h, atļauts noceļamos remonttorņus norobežot tikai no vilcienu kustības puses pa pareizo ceļu. Kārtību, kādā tiek organizēts noceļamo remonttorņu darbs šajos iecirkņos, nodrošinot vilcienu kustības drošību, ievērojot darba apstākļus, nosaka dzelzceļa infrastruktūras pārvaldītājs.
147. Dzelzceļa darbinieki, kuri norobežo noceļamos remonttorņus, truļus un citas noceļamas vienības, kā arī darbinieki, kas vada noceļamo vienību kustību, neskaitot pārnēsājamās signāltāfeles, rokas karodziņus un signāllukturus, jāapgādā arī ar petardēm un signāltaurēm signālu padošanai par vilcienu tuvošanos vai to apturēšanai nepieciešamības gadījumā.
IX. Dzirdes signāli
148. Dzirdes signāli vilcienu kustībā tiek padoti ar vilces līdzekļu, motorvagonu vilcienu un drezīnu svilpēm, signāltaurēm, rokas svilpēm.
|
Signāls |
Signāla nozīme |
Kas padod signālu |
|
Trīs īsi |
“Stāt!” |
Vilces līdzekļa vadītājs (mašīnists) vai viņa palīgs, vilciena konduktors, stacijas un citi darbinieki |
|
. . . |
||
|
Viens garš |
“Vilcienam uzsākt gaitu!” |
Pēc stacijas dežuranta norādījuma parka dežurants, centralizācijas posteņa dežurants (operators), pārmijnieks, vilciena konduktors; atbild priekšējā vilces līdzekļa vadītājs (mašīnists); signālu atkārto divjūga otrā vilces līdzekļa vadītājs (mašīnists). |
|
— |
||
|
Ja vilciens tiek nosūtīts no ceļa, kuram ir izejas luksofors, šo signālu padod priekšējā vilces līdzekļa vadītājs (mašīnists) pēc tam, kad izejas luksoforā ieslēgts atļaujošs signāls, atkārto divjūga otrā vilces līdzekļa vadītājs (mašīnists) |
||
|
Trīs gari |
Prasība darbiniekiem, kas apkalpo vilcienu, “Bremzēt!” |
Priekšējā vilces līdzekļa vadītājs (mašīnists); signālu atkārto divjūga otrā vilces līdzekļa vadītājs (mašīnists) |
|
— — — |
||
|
Divi gari |
Prasība darbiniekiem, kas apkalpo vilcienu, “Atlaist bremzes!” |
|
|
— — |
||
|
Trīs gari un viens īss |
Par vilciena pienākšanu stacijā nepilnā sastāvā |
Priekšējā vilces līdzekļa vadītājs (mašīnists) |
|
— — — . |
||
|
Trīs gari un divi īsi |
Vilces līdzekļa vadītāja (mašīnista) palīga, vilciena konduktora, saimniecības vilciena darbu vadītāja vai cita darbinieka izsaukums pienākt pie vilces līdzekļa |
Vilciena, kas apstājies posmā, priekšējā vilces līdzekļa vadītājs (mašīnists) |
|
— — — . . |
||
|
Braucot divjūgā |
||
|
Viens īss . |
Prasība otrā vilces līdzekļa vadītājam (mašīnistam) samazināt vilci |
Priekšējā vilces līdzekļa vadītājs (mašīnists), signālu atkārto otrā vilces līdzekļa vadītājs (mašīnists) |
|
Divi īsi .. |
Prasība otrā vilces līdzekļa vadītājam (mašīnistam) palielināt vilci |
|
|
Divi gari un divi īsi |
Prasība otrā vilces līdzekļa vadītājam (mašīnistam) nolaist strāvas noņēmēju |
|
|
— — - - |
||
|
Braucot ar palīglokomotīvi vilciena beigās |
||
|
Divi īsi .. |
Prasība sākt stumšanu |
Priekšējā vilces līdzekļa vadītājs (mašīnists); signālu atkārto palīglokomotīves vadītājs (mašīnists) |
|
Viens īss, viens garš un viens īss |
Prasība pārtraukt stumšanu, bet neatpalikt no vilciena |
|
|
. — . |
||
|
Četri gari |
Prasība pārtraukt stumšanu un atgriezties atpakaļ |
|
|
— — — — |
||
Piezīme. Vilcienam braucot divjūgā un ar palīglokomotīvi vilcienu stumjot vilciena beigās, otrā vilces līdzekļa vadītājs atkārto visus signālus pēc tam, kad tos ir padevis palīglokomotīves vadītājs.
Ja ir radiosakari, tad dzirdes signālus, braucot divjūgā un ar palīglokomotīvi vilciena beigās, var nomainīt ar radiosarunām starp vilces līdzekļu vadītājiem (mašīnistiem).
149. Vēstījuma signālu — vienu garu vilces līdzekļa svilpienu padod:
149.1. vilcienam tuvojoties stacijām, ceļa posteņiem, pasažieru pieturas punktiem, pārnēsājamiem un rokas signāliem, kas prasa ātruma samazināšanu, signālzīmēm “S”, ieraktnēm, ceļa līknēm, pārbrauktuvēm, noceļamām ritošā sastāva vienībām;
149.2.vilcienam tuvojoties darba vietai, sākot no kilometra, kas ir pirms tā kilometra, kas uzrādīts brīdinājumā, neatkarīgi no pārnēsājamo signālu esības;
149.3.uztverot rokas signālu “Nolaist strāvas noņēmēju”, ko padod signālists;
149.4.tuvojoties cilvēkiem, kas atrodas uz ceļa un citos gadījumos, kuri norādīti dzelzceļa infrastruktūras pārvaldītāja vai pārvadātāja rīkojumos un norādījumos.
149.5.vilcieniem, satiekoties divceļu posmos: pirmo signālu — tuvojoties pretīmbraucošajam vilcienam, otro signālu — tuvojoties pretīmbraucošā vilciena beigu daļai.
150. Miglā, sniegputenī un citos nelabvēlīgos laika apstākļos, kas samazina redzamību, vēstījuma signāls atkārtojams vairākas reizes, bet braucot pa nepareizo ceļu vēstījuma signālu padod ar vienu garu, vienu īsu un vienu garu svilpienu.
151. Vilcienu sastādītāji, kas ir pārtraukuši manevrus sakarā ar vilciena pieņemšanu, signālisti un pārmijnieki pēc vēstījuma signāla padošanas katrs savā darba iecirknī pārbauda, vai pieņemamā vilciena kustības drošība ir nodrošināta.
152. Vēstījuma signālu par nepāra vilciena tuvošanos padod ar vienu garu skaņas signālu, pāra vilciena — ar diviem gariem skaņas signāliem. Šos signālus par vilciena tuvošanos padod:
152.1.posmā — sliežu ceļu un inženiertehnisko būvju apgaitnieki, pārbrauktuvju dežuranti, darbu vadītāji vai darbinieki, kas pavada noceļamos remonttorņus un truļus;
152.2.stacijās — signālisti un ieejas pārmiju posteņa pārmijnieki.
153. Signālisti un izejas pārmiju posteņa pārmijnieki, izdzirdot vilciena nosūtīšanas signālu, padod vienu garu skaņas signālu.
154. Modrības signālu padod ar vienu īsu un vienu garu vilces līdzekļa svilpienu un periodiski atkārto:
154.1.tuvojoties garāmejas luksoforam, kurā deg sarkana uguns, kam ir nosacīti atļaujošs signāls, un braucot tālāk pa blokposmu;
154.2.braucot garām garāmejas luksoforam, pēc apstāšanās pirms šī luksofora kurā deg sarkans signāls, kā arī ar nesaprotamu signālu vai nodzisušām ugunīm, un braucot tālāk pa blokposmu;
154.3.tuvojoties ieejas luksoforam ar aicinājuma signāla dzidri baltu mirgojošu uguni un visos citos gadījumos pieņemot vilcienu stacijā ar ieejas luksofora aizliedzošu signālu vai nodzisušām pamatugunīm;
154.4.pieņemot vilcienu pa nepareizo ceļu (ja uz šī ceļa nav ieejas luksofora).
Modrības signālu padod arī braucot tālāk pa stacijas pārmijkopu.
155. Stacijās un posmos, kas atrodas lielu pilsētu un apdzīvotu vietu robežās, pēc dzelzceļa infrastruktūras pārvaldītāja noteiktā saraksta, vilces līdzekļa vadītāji (mašīnisti)dzirdes signālus padod ar mazā skaļuma svilpēm, izņemot gadījumus, kad rodas draudi uzbraukt cilvēkiem vai šķērslim, kā arī, kad jāpadod modrības signāls.
156. Šajās stacijās saskaņā ar šīs instrukcijas 155.punktu signālus ar vilces līdzekļa svilpi nepadod nosūtot vilcienus, pārbaudot bremzes un braucot pa depo ceļiem.
X. Trauksmes signāli un speciālie rādītāji
157. Trauksmes signālus padod ar vilces līdzekļu svilpēm, sirēnām, signāltaurēm.
158. Signālu “Vispārējā trauksme” padod grupā —viena gara un trīs īsas skaņas (—…—…—… ) šādos gadījumos:
158.1.ja uz ceļa ir atrasts bojājums, kas apdraud kustības drošību;
158.2.ja vilciens apstājies sniega sanesumā, avārijas dēļ un citos gadījumos, kad ir nepieciešama palīdzība.
Šo signālu nepieciešamības gadījumā padod jebkurš dzelzceļa darbinieks.
159. Signālu “Ugunsgrēka trauksme” padod grupā — viena gara un divas īsas skaņas ( —..—.. ) Šo signālu nepieciešamības gadījumā padod jebkurš dzelzceļa darbinieks.
160. Signālu “Radiācijas briesmas” vai “Ķīmiskā trauksme” posmos padod vilces līdzekļa vadītājs (mašīnists) 2—3 minūtes ilgi ar vilces līdzekļu svilpēm grupā — viena gara un viena īsa skaņa (— . — . — . ).
161. Stacijās un citos dzelzceļa objektos norādījumu padot signālu “Radiācijas briesmas” vai “Ķīmiskā trauksme” dod attiecīgās stacijas vai dzelzceļa objekta vadītājs. Ja ir dzelzceļa radiotranslācijas tīkls, tad par radiācijas vai ķīmiskām briesmām pa šo tīklu nodod paziņojumu.
162. Par to, ka radiācijas vai ķīmiskās saindēšanās draudi ir beigušies, dzelzceļa darbiniekiem un pasažieriem paziņo:
162.1. stacijās un citos dzelzceļa objektos — pēc attiecīgās stacijas vai dzelzceļa objekta vadītāja rīkojuma, kā arī pa radiotranslācijas tīklu un citiem sakaru līdzekļiem, ieskaitot arī ziņnešus;
162.2. pasažieru vilcienos — pēc vilciena priekšnieka (vecākā pavadoņa) norādījuma darbinieks, kas apkalpo vilcienu, kā arī pa vilciena radiotranslācijas tīklu;
162.3. kravas–pasažieru, pasta–bagāžas un kravas vilcienos — pēc stacijas dežuranta norādījuma.
163. Lai brīdinātu vilces līdzekļu brigādes un citus darbiniekus, kas apkalpo vilcienu, ka vilciens iebrauc saindētā iecirknī, kā arī lai novērstu cilvēku ieiešanu šai iecirknī bez individuāliem aizsardzības līdzekļiem (gāzmaskām, aizsargkostīmiem u.c.), šādu iecirkni norobežo ar speciālu rādītāju “Saindēts” (82. zīm.).
82.zīm.
164. Rādītājus “Saindēts” — lukturus uz kārtīm ar uzrakstiem no abām pusēm — stacijās un posmos uzstāda ne tālāk par 50 m no saindētā iecirkņa robežām. Posmus no abām saindētā iecirkņa pusēm 1200 m attālumā no pirmajiem rādītājiem norobežo ar otriem tādiem pašiem rādītājiem, kurus uzstāda kustības virziena labajā pusē. Rādītājus “Saindēts” uzstāda zemes klātnes malā vai ceļu atstarpē. Pirms pirmā vilciena kustības virzienā uzstādītā rādītāja “Saindēts” vai pirms vietas, kas norādīta paziņojumā, kurš saņemts no stacijas dežuranta par saindētā iecirkņa esamību (neatkarīgi no tā, vai šis iecirknis ir norobežots, vai nē) priekšējā vilces līdzekļa vadītājs (mašīnists) padod signālu “Radiācijas briesmas” vai “Ķīmiskā trauksme” un brauc pa saindēto iecirkni ar noteikto ātrumu.
Satiksmes ministrs A.Gorbunovs
Dzelzceļa departamenta direktors J.Veidemanis
Pielikums
Norobežojuma signālzīmju izmantošanas kārtība un petaržu izvietojuma shēmas
1. Ātruma samazināšanas vietu norobežošana
Vietas, kurās saskaņā ar dzelzceļa infrastruktūras pārvaldītāja rīkojumu nepieciešama pastāvīga ātruma samazināšana, norobežo no abām pusēm 50 m attālumā no bīstamās vietas robežas ar pastāvīgām signālzīmēm “Bīstamās vietas sākums” un “Bīstamās vietas beigas”. No šīm signālzīmēm attālumā “A”, kas norādīts Pielikuma tabulas 3. ailē1 atkarībā no vadošā krituma un maksimāli posmā pieļautā vilcienu kustības ātruma, uzstāda pastāvīgos ātruma samazināšanas signāli.
1 Pielikuma tabulā, kā arī uz visām citām shēmām, kas ievietotas šajā pielikumā, attālumi uzrādīti metros
Pielikuma tabula
|
Vadošais kritums posmā, ? |
Maksimāli pieļaujamais vilcienu kustības ātrums posmā, km/h |
Attālums “A” no signālzīmēm “Bīstamās vietas sākums” un “Bīstamās vietas beigas” līdz ātruma samazināšanas signāliem, m |
Attālums “B” no pārnēsājamiem sarkaniem signāliem un no vietas, kur pēkšņi radies šķērslis, līdz pirmajai petardei, m |
|
līdz 6 |
kravas vilcieniem – līdz 80, pasažieru |
||
|
vilcieniem – līdz 100 |
800 |
1000 |
|
|
pasažieru vilcieniem – no 100 līdz 140 |
1000 |
1200 |
|
|
kravas vilcieniem no 80 līdz 90 |
1100 |
1300 |
|
|
no 6 |
kravas vilcieniem – līdz 80, |
||
|
līdz 10 |
pasažieru vilcieniem – līdz 100 |
1000 |
1200 |
|
pasažieru vilcieniem – no 100 līdz 140 |
1100 |
1300 |
|
|
kravas vilcieniem no 80 līdz 90 |
1300 |
1500 |
|
|
vairāk |
kravas vilcieniem – līdz 80, pasažieru |
||
|
par 10 |
vilcieniem – līdz 100 |
1100 |
1300 |
Pastāvīgo ātrumu samazināšanas signāldisku un signālzīmju “Bīstamās vietas sākums” un “Bīstamās vietas beigas” uzstādīšanas shēma vienceļa iecirknī parādīta P.1. a. zīm., uz viena divceļu iecirkņa ceļa — P.1. b. zīm., uz abiem divceļu iecirkņa ceļiem — P.1. c. zīm.
P.1.zīm.
2. Šķēršļa vilcienu kustībai un darba vietas norobežošana posmā
2.1. Jebkuru šķērsli posmā vilcienu kustībai norobežo ar apstāšanās signāliem neatkarīgi no tā, vai vilciens gaidāms vai nē.
Darba vietu posmā, kur nepieciešama apstāšanās, norobežo tāpat kā šķērsli.
Šķērsli posmā norobežo no abām pusēm ar sarkaniem pārnēsājamiem signāliem 50 m attālumā no bīstamās vietas robežas. No šiem signāliem attālumā “B”, kas norādīts pielikuma tabulas 4. ailē atkarībā no vadošā krituma un maksimāli pieļaujamā vilcienu kustības ātruma, uzliek pa trīs petardēm, bet 200 m attālumā no pirmās darba vietai tuvākās petardes (virzienā no darba vietas) uzstāda pārnēsājamos ātruma samazināšanas signālus.
Šķēršļa vai darbu veikšanas vietu norobežošanas shēma vienceļa iecirknī parādīta P.2. a. zīm., uz viena no ceļiem divceļu iecirknī — P.2. b. zīm., uz abiem divceļu iecirkņa ceļiem — P.2. c. zīm.
Pārnēsājamos ātruma samazināšanas signālus un petardes apsargā signālisti, kuri ar sarkaniem rokas signāliem stāv 20 m attālumā no pirmās petardes darba vietas virzienā. Pārnēsājamos sarkanos signālus uzrauga darbu vadītājs.
Veicot izvērstu darbu (vairāk par 200 m), darba vietu norobežo kārtībā, kas parādīta P.2. d. zīm.
P.2.zīm.
Pārnēsājamos sarkanos signālus, kas uzstādīti 50 m attālumā no norobežojamā ceļa gabala robežas, apsargā signālisti ar sarkaniem rokas signāliem.
Ja šķēršļa vai darba vieta posmā atrodas tuvu stacijai un to norobežot noteiktā kārtībā nav iespējams, tad no posma puses to norobežo kā norādīts iepriekš, bet no stacijas puses pārnēsājamo sarkano signālu uzstāda sliežu ceļa vidū pretī ieejas luksoforam (vai signālzīmei “Stacijas robeža”) un uzliek trīs petardes, kuras apsargā signālisti (P.3. zīm.). Ja šķēršļa vai darba vieta atrodas tuvāk par 60 m no ieejas signāla (vai signālzīmes “Stacijas robeža”), tad petardes no stacijas puses nav jāliek. Šķēršļa norobežošanas shēma pirms ieejas signāla parādīta P.3. zīm.
P.3.zīm.
Vilcienam tuvojoties pārnēsājamajam dzeltenajam signālam, vilces līdzekļa vadītājs (mašīnists) padod vienu garu skaņas signālu ar vilces līdzekļa svilpi, bet, tuvojoties signālistam ar sarkanu rokas signālu — padod apstāšanās signālu un aptur vilcienu, nepabraucot garām sarkanajam signālam.
Signālisti, lai viņus atšķirtu no citiem dzelzceļa transporta darbiniekiem, nēsā galvassegas ar dzeltenu virsmu.
2.2. Visos gadījumos uzliek trīs petardes: divas uz labās sliedes vilciena kustības virzienā un vienu uz kreisās sliedes. Attālums starp petardēm ir 20 m ( P.4. zīm.).
2.3. Ja šķērslis vilciena kustībai radies pēkšņi un vajadzīgo pārnēsājamo signālu nav, tad šķēršļa vietā nekavējoties uzstāda apstāšanās signālu (P.4. zīm.): dienā — sarkanu karodziņu, naktī — signāllukturi ar sarkanu uguni un uz abām pusēm no šķēršļa attālumā “B”, kas norādīts pielikuma tabulas 4. ailē, atkarībā no vadošā krituma un posmā pieļaujamā maksimālā vilcienu kustības ātruma uzliek pa 3 petardēm.
P.4.zīm.
Petardes apsargā dzelzceļa darbinieki, kuri ar sarkaniem rokas signāliem stāv 20 m attālumā no pirmās petardes šķēršļa virzienā.
Signālus vispirms uzstāda no tās puses, no kuras gaidāms vilciens. Ja nav zināms, no kuras puses gaidāms vilciens, tad vienceļa iecirkņos signālus vispirms uzstāda no tās puses, kur ir kritums bīstamās vietas virzienā, bet līdzenumā — no ceļa līknes vai ieraktnes puses.
2.4. Vietas, pār kurām var braukt tikai ar pavadoni (ar ātrumu mazāku par 15 km/h), norobežo tāpat kā šķēršļi, tikai bez petaržu uzlikšanas. Par šo signālu uzstādīšanu vilcieniem izdod rakstiskus brīdinājumus.
Ja ir nepieciešams pārlaist vilcienu ar pavadoni, kam nav izdots brīdinājums, petaržu uzlikšana ir obligāta. Ja vilcienu kustība ar pavadoni tiek noteikta uz ilgāku laiku, tad pārnēsājamos sarkanos signālus var nomainīt ar aizsegluksoforiem aizliedzošā stāvoklī. Pirms tiem uzstāda brīdinājuma luksoforus (P.5. zīm.).
P.5.zīm.
Par šādu aizsegluksoforu uzstādīšanu izziņo ar dzelzceļa infrastruktūras pārvaldītāja rīkojumu. Šādā gadījumā brīdinājumi vilcieniem nav jāizsniedz.
Ja norobežojamās vietas abas pusēs tiek atvērti ceļa posteņi, tad vilcienu kustība starp šiem posteņiem notiek ar vienu no pieņemtajiem signalizācijas un sakaru līdzekļiem, bez pavadoņa. Atsevišķos gadījumos, lai uzraudzītu vilcienu kustību pa norobežojamo vietu ar noteikto ātrumu, var nozīmēt arī pavadoni.
2.5. Pārnēsājamos ātruma samazināšanas signālus un signālzīmes “Bīstamās vietas sākums” un “Bīstamās vietas beigas” uzstāda pēc shēmām, kas parādītas P.1. zīm.
Ja vieta posmā, kur nepieciešama ātruma samazināšana, atrodas tuvu stacijai un šo vietu norobežot noteiktā kārtībā nav iespējams, tad no posma puses to norobežo kā norādīts šī pielikuma 2.1.–2.3. punktā, bet no stacijas puses — kārtībā, kas parādīta P.6. zīm.
P.6.zīm.
Vilcienam tuvojoties pārnēsājamam dzeltenajam signālam, vilces līdzekļa vadītājs (mašīnists) dod vienu garu skaņas signālu ar vilces līdzekļa svilpi un brauc ar vilcienu tā, lai ar signālzīmēm “Bīstamās vietas sākums” (53. a. zīm.) un “Bīstamās vietas beigas” (53. b. zīm.) norobežoto vietu pārbrauktu ar ātrumu, kāds norādīts brīdinājumā, bet, ja brīdinājuma nav — ar ātrumu ne lielāku par 25 km/h.
Pārnēsājamos ātruma samazināšanas signālus un signālzīmes “Bīstamās vietas sākums” un “Bīstamās vietas beigas” uz stacijas ceļiem un dzelzceļu posmos var novietot uz saīsinātām kārtīm.
2.6. Vietas, kur notiek ceļa darbi un kur nav nepieciešama to norobežošana ar apstāšanās vai ātruma samazināšanas signāliem, bet, kur nepieciešams brīdināt strādājošos par vilciena tuvošanos, norobežojamas ar pārnēsājamām signālzīmēm “S” vēstījuma signāla padošanai. Šīs signālzīmes uzstāda pie ceļa, uz kura notiek ceļa darbi un pie katra galvenā ceļa, kas atrodas blakus šim ceļam (P.7. zīm.).
Tādā pat kārtībā pārnēsājamās signālzīmes “S” uzstāda pie posma galvenajiem blakus esošajiem ceļiem arī tad, ja veicamo ceļa darbu vieta norobežota ar apstāšanās signāliem (P.2. b. zīm. un P.3. zīm.)vai ar ātruma samazināšanas signāliem.
Posmos, kur ir apgrozībā vilcieni ar ātrumu vairāk nekā 120 km/h, pārnēsājamās signālzīmes “S” uzstāda 800 – 1500 m attālumā no darbu vietas robežas.
3. Šķēršļa vilcienu kustībai un darba vietas norobežošana stacijās
3.1. Ikvienu vilcienu kustības šķērsli uz staciju ceļiem un pārmijām norobežo ar apstāšanās signāliem neatkarīgi no tā, ir vai nav gaidāms vilciens (manevru sastāvs).
Ja šķēršļa vai ceļa darbu vietu uz stacijas ceļiem norobežo ar apstāšanās signāliem, visas pārmijas, kas ved uz šo vietu, pārliek tādā stāvoklī, lai ritošais sastāvs nevarētu tur nokļūt. Pārmijas šādā stāvoklī noslēdz vai aizkabo. Pašā šķēršļa vai ceļa darbu vietā uz ceļa ass uzstāda pārnēsājamo sarkano signālu (P.7. a. zīm.).
Ja pārmiju asmeņi vērsti uz šķēršļa vai ceļa darbu vietu, un kustībai bīstamu vietu nav iespējams izolēt ar pārmijas (pārmiju) pārvešanu stāvoklī, lai ritošais sastāvs nevarētu tur nokļūt, tad tādu vietu no abām pusēm norobežo ar pārnēsājamiem sarkaniem signāliem, kas uzstādāmi 50 m attālumā no šķēršļa vai ceļa darbu vietas robežas (P.7. b. zīm.).
P.7.zīm.
Ja gadījumā pārmiju asmeņi atrodas tuvāk par 50 m no šķēršļa vai ceļa darbu vietas, tad starp katras šādas pārmijas asmeņiem uzstāda pārnēsājamo sarkano signālu (P.8. c. zīm.).
P.8.zīm.
Ja šķēršļa vai ceļa darbu vietu uz pārmijas norobežo ar pārnēsājamiem sarkaniem signāliem, tad signālus uzstāda: no krusteņa puses — pretī kontrolstabiņam uz abu pie pārvedas saejošo ceļu asīm; no pretējās puses — 50 m attālumā no pārmijas asmeņiem (P.9. a. zīm.).
Ja pārmijas, kuru nepieciešams norobežot, tuvumā atrodas cita pārmija, kuru var pārvest tādā stāvoklī, ka ritošais sastāvs nevar nokļūt uz bojātās vai remontējamās pārmijas, tad šo pārmiju tādā stāvoklī noslēdz vai aizkabo. Šādā gadījumā pārnēsājamo sarkano signālu no šādas izolējošas pārmijas puses neliek (P.9. b. zīm.).
Ja pārmiju šādā stāvoklī pārlikt nevar, tad 50 m attālumā no šķēršļa vai darbu vietas šīs pārmijas virzienā uzstāda pārnēsājamo sarkano signālu (P.9. a. zīm.).
Ja šķēršļa vai ceļa darbu vieta atrodas uz ieejas pārmijas, tad no posma puses to norobežo ar ieslēgtu ieejas luksoforā aizliedzošu signālu, bet no stacijas puses ar pārnēsājamiem sarkaniem signāliem, kurus uzstāda iepretī kontrolstabiņam uz katra ceļa ass, kas ved uz pārmiju (P.9. c. zīm.).
Ja šķēršļa vai ceļa darbu vieta atrodas starp ieejas pārmiju un ieejas luksoforu, tad no posma puses to norobežo ar ieslēgtu ieejas luksoforā aizliedzošu signālu, bet no stacijas puses — ar pārnēsājamo sarkano signālu, kuru uzstāda starp ieejas pārmijas asmeņiem (P.9. d. zīm.).
Ja ieejas luksoforā nav iespējams ieslēgt aizliedzošu signālu, vai arī, ja ieejas luksofora nav (P.9. c. un d. zīm.), staciju norobežo, uzstādot iepretī ieejas luksofora ordinātai pārnēsājamu sarkanu signālu (25. a. zīm.).
P.9.zīm.
Pārmijnieks vai cits darbinieks, kas konstatējis, ka uz pārmijas ir šķērslis, nekavējoties uzstāda šķēršļa vietā vienu pārnēsājamu sarkano signālu (līdz remonta darbu sākumam) un ziņo stacijas dežurantam.
3.2. Vietu uz stacijas galvenā ceļa, kur nepieciešama ātruma samazināšana, norobežo ar pārnēsājamiem ātruma samazināšanas signāliem un ar signāliem “Bīstamās vietas sākums” un “Bīstamās vietas beigas”, kā tas parādīts P.10. zīm. un P.11. zīm.
P.10.zīm.
P.11.zīm.
Ja vieta, kur nepieciešama ātruma samazināšana, atrodas uz pārējiem stacijas ceļiem, to norobežo tikai ar pārnēsājamiem ātruma samazināšanas signāliem, kurus uzstāda pret pārmijas, kas ved uz šo ceļu, asmens sākumu (P.12. a. zīm.).
Ja ceļu atstarpe starp blakus ceļu asīm ir mazāka par 5,45 m, kā dēļ pārnēsājamo ātruma samazināšanas signālu nevar uzstādīt ceļa labajā pusē, to uzstāda ceļa kreisajā pusē (P.12. b. zīm.). Šādā gadījumā signāla kārts garums ir trīs metri.
P.12.zīm.
4. Ritošā sastāva norobežošana uz stacijas ceļiem
Ja jānorobežo ar sprāgstvielām, saspiestām un sašķidrinātām gāzēm krautus vagonus, kas novietoti uz atsevišķiem stacijas ceļiem, tad visas pārmijas, kas ved uz šiem ceļiem, pārliek tādā stāvoklī, lai ritošais sastāvs nevarētu tur nokļūt un noslēdz. Ja norobežošana ar pārmijām nav iespējama, tad minētos vagonus, kā arī vagonus, kurus remontē uz stacijas ceļiem, norobežo ar pārnēsājamiem sarkaniem signāliem, kurus uzstāda uz ceļa ass ne tuvāk par 50 m (uz caurbraucamajiem ceļiem — no abām pusēm, uz strupceļiem — no pārmijas puses).
Ja malējais vagons atrodas tuvāk par 50 m no kontrolstabiņa, tad pārnēsājamo sarkano signālu uzstāda uz ceļa ass pretī kontrolstabiņam.
Kārtību, kādā norobežojami sastāvi vai atsevišķas vagonu grupas, veicot tehnisko apkopi, nosaka stacijas tehniskās rīcības aktā.
Vagonu tehniskās apkopes un remonta darbu vietu norobežošanai var lietot arī luksoforus.
5. Vilcienu norobežošana, tiem piespiedu apstājoties posmā
5.1. Ja posmā piespiedu apstājies pasažieru vilciens, tā norobežošanu pēc vilces līdzekļa vadītāja (mašīnista) norādījuma izdara pēdējā vagona pavadonis šādos gadījumos:
5.1.1.ja ir izsaukts palīdzības vai ugunsdzēsības vilciens, vai arī palīglokomotīve un, ja šī palīdzība gaidāma no vilciena pēdējā vagona puses;
5.1.2.ja vilciens nosūtīts divceļu posmā pa pareizo ceļu vai vienceļa posmā, kad bija pārtraukta visu noteikto signalizācijas un sakaru līdzekļu darbība un vilcienam bija izdots rakstisks paziņojums, ka iepakaļ brauc otrs vilciens.
Pēdējā pasažieru vagona pavadonis, kas norobežo apstājušos vilcienu, iedarbina rokas bremzes, 800 m attālumā no vilciena pēdējā vagona uzliek petardes, pēc tam, atejot no petardēm 20 m uz vilciena pusi, rāda sarkano rokas signālu posma virzienā (P.13. zīm.).
P.13.zīm.
Ja posmā piespiedu apstājušies citi vilcieni, tos norobežo tikai gadījumos, ja šie vilcieni nosūtīti divceļu posmā pa pareizo ceļu vai vienceļa posmā, kad bija pārtraukta visu noteikto signalizācijas un sakaru līdzekļu darbība un vilcienam bija izdots rakstisks paziņojums, ka iepakaļ brauc otrs vilciens. Vilcienu norobežo vilces līdzekļa vadītāja (mašīnista) palīgs, kurš pēc vilciena apstāšanās nekavējoties iet līdz vilciena pēdējam vagonam, pārbauda, vai uz tā ir signāls, uzmanīgi novēro posmu un, ja parādās iepakaļ ejošais vilciens, veic pasākumus tā apturēšanai.
Ja vilcienam, kas apstājies posmā, palīdzību sniedz no vilciena priekšpuses, tad, tuvojoties palīdzības (ugunsdzēsības) vilcienam vai palīglokomotīvei, vilces līdzekļa vadītājs (mašīnists) padod vispārējās trauksmes signālu; naktī un sliktas redzamības apstākļos arī dienā ieslēdz prožektoru.
5.2. Vagona pavadonis, kas norobežo posmā apstājušos pasažieru vilcienu no pēdējā vagona puses, drīkst atgriezties pie sastāva tikai pēc palīdzības (ugunsdzēsības) vilciena vai palīglokomotīves pienākšanas un apstāšanās, vai arī tad, ja vilciena norobežošanu šajā vietā veic cits darbinieks. Vilces līdzekļa vadītāja (mašīnista) palīgs, kas atrodas pie vilciena, kuru nosūtīja, kad bija pārtraukta visu noteikto signalizācijas un sakaru līdzekļu darbība, pēdējā vagona, var atgriezties uz vilces līdzekļa tikai pēc iepakaļ ejošā vilciena pienākšanas un apstāšanās, vai arī pēc vilces līdzekļa vadītāja (mašīnista) padotā dzirdes signāla, ja norobežošana vairs nav nepieciešama.
5.3. Ja ar autobloķēšanu aprīkota iecirkņa posmā apstājies pasažieru vilciens, pēdējā pasažieru vagona pavadonis pārbauda astes signālu redzamību, uzmanīgi novēro posmu un, ja parādās iepakaļ braucošais vilciens, veic pasākumus tā apturēšanai.
5.4. Ja divceļu posmā vilciens piespiedu apstājies vilciena ritošā sastāva no sliedēm nobraukšanas dēļ, kā arī sadursmes vai kravas izjukšanas dēļ u.tml., kad ir nepieciešams norobežot radušos šķēršļa vietu uz blakusceļa, vilces līdzekļa vadītājs (mašīnists) padod vispārējās trauksmes signālu.
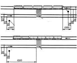
Ja ir apstājies pasažieru vilciens, tad no priekšpuses to norobežo vilces līdzekļa vadītāja (mašīnista) palīgs, bet no beigām — pēdējā pasažieru vilciena vagona pavadonis, uzliekot petardes 1000 m attālumā no vilciena sākuma un beigām, kā tas parādīts P.14. a. zīm.
Ja ir apstājušies pārējie vilcieni, to norobežošanu veic vilces līdzekļa vadītāja (mašīnista) palīgs, uzliekot petardes uz blakusceļa no gaidāmā (pa šo ceļu) vilciena puses 1000 m attālumā no šķēršļa vietas (P.14. b. zīm.). Ja vilciena sākums no šķēršļa vietas atrodas tālāk par 1000 m, tad petardes uz blakusceļa uzliekamas pretī vilces līdzeklim.
P.14.zīm.
Ja vilces līdzekļa vadītājs (mašīnists) ir saņēmis ziņu, ka pa blakusceļu nosūtīts vilciens nepareizā virzienā, viņš ar radiosakaru vai ar dzirdes signāla palīdzību izsauc vilces līdzekļa vadītāja (mašīnista) palīgu, lai petardes uzliktu arī šķēršļa pretējā pusē tādā pat attālumā.
Iecirkņos, kur pasažieru vilcieni apgrozās ar ātrumu, kas lielāks par 120 km/h, petardes uzliek 1600 m attālumā no šķēršļa vietas.
Pēc petaržu uzlikšanas vilces līdzekļa vadītāja (mašīnista) palīgs un vagona pavadonis atiet no petaržu uzlikšanas vietas 20 m uz vilciena pusi un rāda sarkanu signālu vilciena varbūtējās tuvošanās virzienā.
5.5. Vilciena, kas piespiedu apstājies posmā, norobežošanai, kā arī šķēršļu vietas norobežošanai uz blakusceļa divceļu posmā, pēc priekšējā vilces līdzekļa vadītāja (mašīnista) norādījuma nozīmē vilces līdzekļa vadītāja (mašīnista) palīgu, pasažieru vagonu pavadoņus un citus dzelzceļa speciālistus (darbiniekus).
Dzelzceļa departamenta direktors J.Veidemanis