
Valsts meža dienesta rīkojums Nr. 77
Rīgā 2003. gada 28. aprīlī
Par apliecinājumu, pieteikumu un pārskatu veidlapu paraugu apstiprināšanu
Lai izpildītu Meža likuma 29. panta pirmajā daļā un 39. pantā paredzētās prasības, pamatojoties uz 2003. gada 15. aprīļa Ministru kabineta noteikumu Nr. 169 “Meža valsts reģistra informācijas aprites noteikumi” 25. punktu, apstiprinu:
1) apliecinājumu veidlapas saimnieciskajai darbībai meža zemēs šādiem darbības veidiem: koku ciršanai (1. pielikums), meža reproduktīvā materiāla (MRM) ievākšanai (2. pielikums), minerālmēslu, pesticīdu lietošanai meža zemēs (3. pielikums), meliorācijas sistēmu vai citu būvju celšanai vai rekonstrukcijai (4. pielikums), uzņēmumu (mežsaimniecību) ceļu būvei (5. pielikums);
2) pieteikumu veidlapas saimnieciskajai darbībai meža zemēs šādiem darbības veidiem: koku ciršanai (6. pielikums), meliorācijas sistēmu vai citu būvju celšanai vai rekonstrukcijai, uzņēmumu (mežsaimniecību) ceļu būvei (7. pielikums), minerālmēslu, pesticīdu lietošanai meža zemēs (8. pielikums), meža reproduktīvā materiāla (MRM) ievākšanai (9. pielikums);
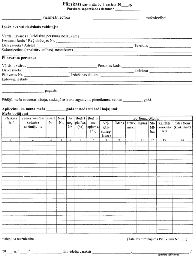
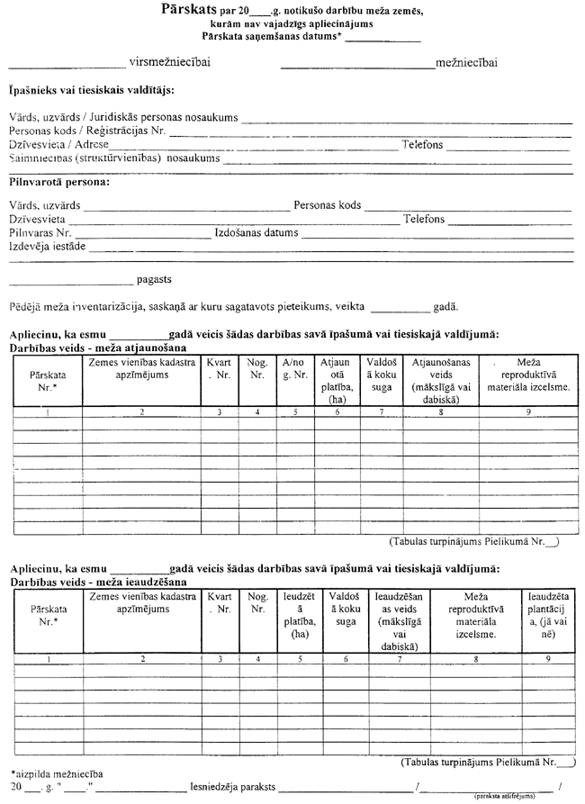
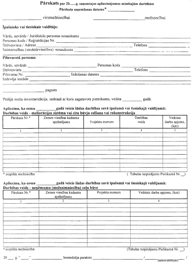
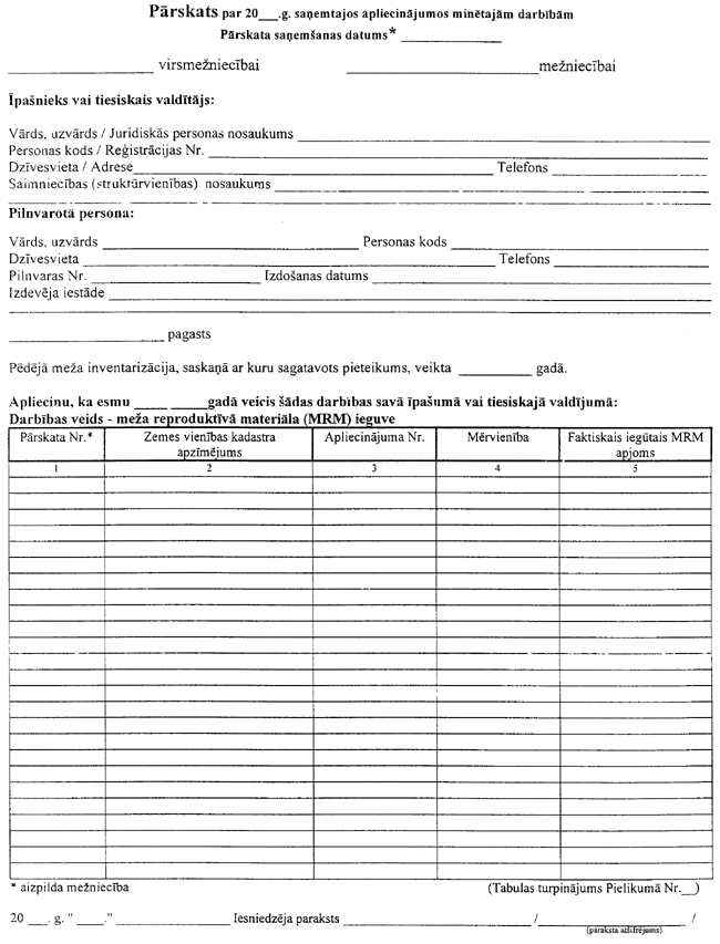
3) pārskatu veidlapas saņemtajos apliecinājumos minētajām darbībām: koku ciršanai (10. pielikums), meža reproduktīvā materiāla (MRM) ievākšanai (11. pielikums), minerālmēslu, pesticīdu lietošanai meža zemēs (12. pielikums), meliorācijas sistēmu vai citu būvju celšanai vai rekonstrukcijai, uzņēmumu (mežsaimniecību) ceļu būvei (13. pielikums), kā arī meža zemēs notikušajām darbībām, kurām nav vajadzīgs apliecinājums: meža atjaunošanai, meža ieaudzēšanai (14. pielikums), jaunaudžu kopšanai (15. pielikums) un informācijai par meža bojājumiem (16. pielikums).
Uzdodu:
1. Visiem virsmežziņiem:
1.1. iepazīstināt visus darbiniekus ar veidlapu paraugiem;
1.2. nodrošināt veidlapu aizpildīšanu, ievērojot noteikto kārtību.
Atceļu:
Valsts meža dienesta 2000. gada 22. decembra rīkojumu Nr. 338 “Par apliecinājumu, pieteikumu un pārskatu veidlapu paraugu apstiprināšanu”.
Valsts meža dienesta ģenerāldirektors O.Žvagiņš
1. pielikums
2. pielikums
3. pielikums
4. pielikums
5. pielikums
6. pielikums
7. pielikums
8. pielikums
9. pielikums
10. pielikums
11. pielikums
12. pielikums
13. pielikums
14. pielikums
15. pielikums
16. pielikums