
Ministru kabineta rīkojums Nr. 519
Rīgā 1998.gada 27.oktobrī (prot. Nr.58, 8.§)
Par zemesgabalu nodošanu privatizācijai
1. Saskaņā ar likumu "Par valsts un pašvaldību īpašuma objektu privatizāciju" nodot privatizācijai šī rīkojuma 1.pielikumā minētos zemesgabalus, kas ierakstīti zemesgrāmatā uz valsts vārda (zemesgabalu robežas norādītas šī rīkojuma 2., 3., 4., 5., 6., 7., 8., 9 ., 10., 11., 12., 13. un 14.pielikumā).
2. Privatizācijas aģentūrai pārņemt savā valdījumā, sagatavot privatizācijai un privatizēt šī rīkojuma 1.pielikumā minētos zemesgabalus.
Ministru prezidents G.Krasts
Ekonomikas ministrs L.Strujevičs
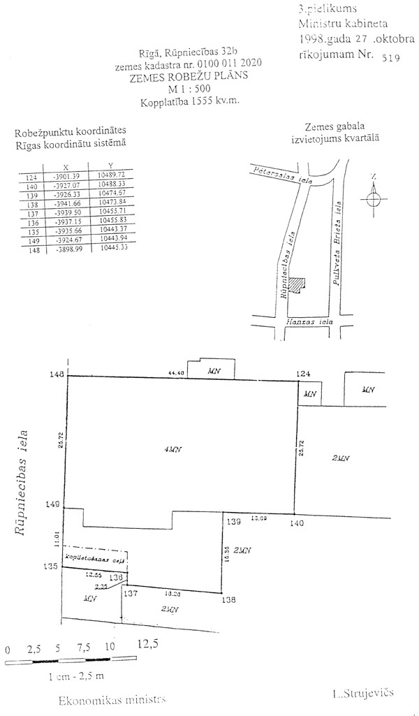
1.pielikums
Ministru kabineta
1998.gada 27.oktobra rīkojumam Nr. 519
Privatizācijai nododamie zemesgabali
|
Nr.p.k. |
Adrese |
Zemes kadastra Nr. |
Platība (m2) |
Ēku un būvju ieguvējs |
|
1. |
Rīga |
0100 011 2021 |
114 |
Sabiedrība ar ierobežotu atbildību "Pēterparks" |
|
2. |
Rīga |
0100 011 2020 |
1555 |
Sabiedrība ar ierobežotu atbildību "Pēterparks" |
|
3. |
Rīga |
0100 014 0164 |
11919 |
Sabiedrība ar ierobežotu atbildību tirdzniecības komercfirma "Latekss" |
|
4. |
Rīga |
0100 014 0166 |
1018 |
Andrejs Švaronoks |
|
5. |
Rīga |
0100 121 2090 |
1046 |
Energobūvmontāžas akciju |
|
|
Ļaudonas iela 1 |
|
|
sabiedrība "REMUS" |
|
6.
|
Rīga |
0100 063 0229 |
4400 |
Akciju sabiedrība "Rīgas grunts krāsas" |
|
7. |
Limbažu rajons |
6676 004 0059 |
3500 |
Sabiedrība ar ierobežotu atbildību "SK DEGVIELA" |
|
8. |
Rīga |
0100 124 0285 |
615 |
Sabiedrība ar ierobežotu atbildību "RIPO-1" |
|
9. |
Rīga |
0100 038 0194 |
1050 |
Antoņjans Vačagans |
|
10. |
Rīga |
0100 075 2020 |
9221 |
Sabiedrība ar ierobežotu atbildību "EURO-AUTO" |
|
11. |
Rīga |
0100 060 0017 |
4879 |
Sabiedrība ar ierobežotu atbildību "Delfa" |
|
12. |
Rīga |
0100 117 2016 |
5265 |
Sabiedrība ar ierobežotu atbildību "Trīs plus viens" |
|
13. |
Jūrmala, Dzintari |
1300 008 1109 |
3371 |
Sabiedrība ar ierobežotu atbildību "PILSĒTAS TORŅI" |
Ekonomikas ministrs L.Strujevičs