
Ministru kabineta rīkojums Nr.448
Rīgā 1998.gada 16.septembrī (prot. Nr. 50, 13.§)
Par zemesgabalu nodošanu privatizācijai
1. Saskaņā ar likumu "Par valsts un pašvaldību īpašuma objektu privatizāciju" nodot privatizācijai šī rīkojuma 1.pielikumā minētos zemesgabalus, kas ierakstīti zemesgrāmatā uz valsts vārda (zemesgabalu robežas norādītas šī rīkojuma 2., 3., 4., 5., 6., 7., 8., 9., 10., 11., 12., 13., 14., 15., 16., 17., 18. un 19.pielikumā).
2. Privatizācijas aģentūrai pārņemt savā valdījumā, sagatavot privatizācijai un privatizēt šī rīkojuma 1.pielikumā minētos zemesgabalus.
Ministru prezidenta vietā - vides aizsardzības un reģionālās attīstības ministrs, Ministru prezidenta biedrs A.Gorbunovs
Ekonomikas ministrs L.Strujevičs
1.pielikums
Ministru kabineta
1998.gada 16septembra rīkojumam Nr.448
Privatizācijai nododamie zemesgabali
|
Nr. |
Adrese | Zemes kadastra Nr. | Platība (m2) | Ēku un būvju ieguvējs |
|
1 |
2 | 3 | 4 | 5 |
|
1. |
Rīga
Velmes iela 1 |
0100 094 0115 | 1205 | Tatjana Meļehova |
|
2. |
Rīga
Ganību dambis 30a |
0100 014 2002 | 3228 | Sabiedrība ar ierobežotu atbildību firma "Dunte-ALS" |
|
3. |
Jelgava
Aviācijas iela 2 |
0900 014 0067 | 3333 | Sabiedrība ar ierobežotu atbildību "ROMA" |
|
4. |
Rīga
Daugavgrīvas šoseja 6 |
0100 097 0117 | 14529 | Sabiedrība ar ierobežotu atbildību "Komiss" |
|
5. |
Rīga
Miera iela 3 |
0100 023 0117 | 729 | Akciju sabiedrība "Parekss Banka" |
|
6. |
Rīga
Baznī cas iela 39a |
0100 020 0014 | 334 | Sabiedrība ar ierobežotu atbildību "Latio" |
|
7. |
Cēsu rajons
Drabešu pagasts "Cēsu būvnieks" |
4246 002 0122 | 168000 | Sabiedrība ar ierobežotu atbildību "Katrīnkalns" |
|
8. |
Bauskas rajons, Mežotnes pagasts
"LielMežotnes ražošanas objekti" Dispečeru punkts |
4072 004 0137 | 300 | Sabiedrība ar ierobežotu atbildību "Lielmežotne" |
|
9. |
Bauskas rajons, Mežotnes pagasts
"LielMežotnes ražošanas objekti" Darbnīcas |
4072 004 0138 | 28900 | Sabiedrība ar ierobežotu atbildību "Lielmežotne" |
|
10. |
Bauskas rajons, Mežotnes pagasts
"LielMežotnes ražošanas objekti" Vecā kalte |
4072 004 0139 | 7100 | Sabiedrība ar ierobežotu atbildību "Lielmežotne" |
|
11. |
Bauskas rajons, Mežotnes pagasts
"LielMežotnes ražošanas objekti" Jaunā kalte |
4072 004 0140 | 21900 | Sabiedrī ba ar ierobežotu atbildību "Lielmežotne" |
|
12. |
Bauskas rajons, Mežotnes pagasts
"LielMežotnes ražošanas objekti" Cukurbiešu sēklu noliktava |
4072 004 0141 | 900 | Sabiedrība ar ierobežotu atbildību "Lielmežotne" |
|
13. |
Bauskas rajons, Mežotnes pagasts
"LielMežotnes ražošanas objekti" Galdniecība |
4072 004 0142 | 3000 | Sabiedrība ar ierobežotu atbildību "Lielmežotne" |
|
14. |
Bauskas rajons, Mežotnes pagasts
"LielMežotnes ražošanas objekti" Priežu ferma |
4072 007 0142 | 51300 | Sabiedrība ar ierobežotu atbildību "Lielmežotne" |
|
15. |
Bauskas rajons, Mežotnes pagasts
"LielMežotnes ražošanas objekti" LielMežotnes ferma |
4072 004 0143 | 26700 | Sabiedrība ar ierobežotu atbildī bu "Lielmežotne" |
|
16. |
Bauskas rajons, Mežotnes pagasts
"LielMežotnes ražošanas objekti" Siltumnī cas |
4072 004 0144 | 19400 | Sabiedrība ar ierobežotu atbildību "Lielmežotne" |
|
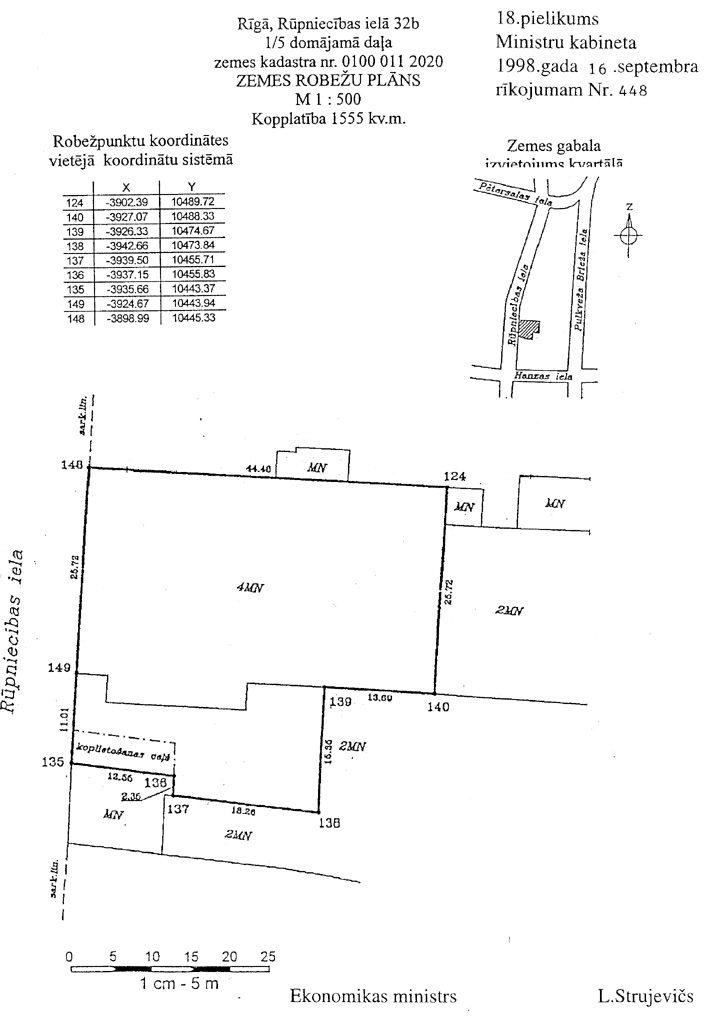
17. |
Rīga
Rūpniecības iela 32 (1/5 domājamā daļa) |
0100 011 2020 | 1555 | Akciju sabiedrība "Druva" |
|
18. |
Rīga
Krustpils iela 12 |
0100 121 2212 | 8439 | Sabiedrība ar ierobežotu atbildību "LETO-AUTO" |
Ekonomikas ministrs L.Strujevičs