
prezidents izsludina šādu likumu:
The Contracting Governments,
DESIRING to establish uniform principles and rules with respect to the determination of tonnage of ships engaged on international voyages;
CONSIDERING that this end may best be achieved by the conclusion of a Convention;
HAVE AGREED as follows:
Article 1
General Obligation under the Convention
The Contracting Governments undertake to give effect to the provisions of the present Convention and the Annexes hereto which shall constitute an integral part of the present Convention. Every reference to the present Convention constitutes at the same time a reference to the Annexes.
Article 2
Definitions
For the purpose of the present Convention, unless expressly provided otherwise:
(1) "Regulations" means the Regulations annexed to the present Convention;
(2) "Administration" means the Government of the State whose flag the ship is flying;
(3) "international voyage" means a sea voyage from a country to which the present Convention applies to a port outside such country, or conversely. For this purpose, every territory for the international relations of which a Contracting Government is responsible or for which the United Nations are the administering authority is regarded as a separate country;
(4) "gross tonnage" means the measure of the overall size of a ship determined in accordance with the provisions of the present Convention;
(5) "net tonnage" means the measure of the useful capacity of a ship determined in accordance with the provisions of the present Convention;
(6) "new ship" means a ship the keel of which is laid, or which is at a similar stage of construction, on or after the date of coming into force of the present Convention;
(7) "existing ship" means a ship which is not a new ship;
(8) "length" means 96 per cent of the total length on a waterline at 85 per cent of the least moulded depth measured from the top of the keel, or the length from the fore side of the stem to the axis of the rudder stock on that waterline, if that be greater. In ships designed with a rake of keel the waterline on which this length is measured shall be parallel to the designed waterline;
(9) "Organization" means the Inter-Governmental Maritime Consultative Organization.
Article 3
Application
(1) The present Convention shall apply to the following ships engaged on international voyages:
(a) ships registered in countries the Governments of which are Contracting Governments;
(b) ships registered in territories to which the present Convention is extended under Article 20; and
(c) unregistered ships flying the flag of a State, the Government of which is a Contracting Government.
(2) The present Convention shall apply to:
(a) new ships;
(b) existing ships which undergo alterations or modifications which the Administration deems to be a substantial variation in their gross tonnage;
(c) existing ships if the owner so requests; and
(d) all existing ships, twelve years after the date on which the Convention comes into force, except that such ships, apart from those mentioned in (b) and (c) of this paragraph, shall retain their then existing tonnages for the purpose of the application to them of relevant requirements under other existing International Conventions.
(3) Existing ships to which the present Convention has been applied in accordance with sub-paragraph (2)(c) of this Article shall not subsequently have their tonnages determined in accordance with the requirements which the Administration applied to ships on international voyages prior to the coming into force of the present Convention.
Article 4
Exceptions
(1) The present Convention shall not apply to:
(a) ships of war; and
(b) ships of less than 24 metres (79 feet) in length.
(2) Nothing herein shall apply to ships solely navigating:
(a) the Great Lakes of North America and the River St. Lawrence as far east as a rhumb line drawn form Cap des Rosiers to West Point, Anticosti Island, and, on the north side of Anticosti Island, the meridian of longitude 63 degrees W;
(b) the Caspian Sea; or
(c) the Plate, Parana and Uruguay Rivers as far east as a rhumb line drawn between Punta Rasa (Cabo San Antonio), Argentina, and Punta del Este, Uruguay.
Article 5
Force Majeure
(1) A ship which is not subject to the provision of the present Convention at the time of its departure on any voyage shall not become subject to such provisions on account of any deviation from its intended voyage due to stress of weather or any other cause of force majeure.
(2) In applying the provisions of the present Convention, the Contracting Governments shall give due consideration to and deviation or delay caused to any ship owing to stress of weather or any other cause of force majeure.
Article 6
Determination of Tonnages
The determination of gross and net tonnage shall be carried out by the Administration which may, however, entrust such determination either to persons or organizations recognized by it. In every case the Administration concerned shall accept full responsibility for the determination of gross and net tonnages.
Article 7
Issue of Certificate
(1) An International Tonnage Certificate (1969) shall be issued to every ship, the gross and net tonnages of which have been determined in accordance with the present Convention.
(2) Such certificate shall be issued by the Administration or by any person or organization duly authorized by it. In every case, the Administration shall assume full responsibility for the certificate.
Article 8
Issue of Certificate by another Government
(1) A Contracting Government may, at the request of another Contracting Government, determine the gross and net tonnages of a ship and issue or authorize the issue of an International Tonnage Certificate (1969) to the ship in accordance with the present Convention.
(2) A copy of the certificate and a copy of the calculations of the tonnages shall be transmitted as early as possible to the requesting Government.
(3) A certificate so issued shall contain a statement to the effect that it has been issued at the request of the Government of the State whose flag the ship is or will be flying and it shall have the same validity and receive the same recognition as a certificate issued under Article 7.
(4) No International Tonnage Certificate (1969) shall be issued to a ship which is flying the flag of a State the Government of which is not a Contracting Government.
Article 9
Form of Certificate
(1) The certificate shall be drawn up in the official language or languages of the issuing country. If the language used is neither English nor French, the text shall include a translation into one of these languages.
(2) The form of the certificate shall correspond to that of the model given in Annex 2.
Article 10
Cancellation of Certificate
(1) Subject to any exceptions provided in the Regulations, an International Tonnage Certificate (1969) shall cease to be valid and shall be cancelled by the Administration if alterations have taken place in the arrangement, construction, capacity, use of spaces, total number of passengers the ship is permitted to carry as indicated in the ship's passenger certificate, assigned load line or permitted draught of the ship, such as would necessitate an increase in gross tonnage or net tonnage.
(2) A certificate issued to a ship by an Administration shall cease to be valid upon transfer of such a ship to the flag of another State, except as provided in paragraph (3) of this Article.
(3) Upon transfer of a ship to the flag of another State the Government of which is a Contracting Government, the International Tonnage Certificate (1969) shall remain in force for a period not exceeding three months, or until the Administration issues another International Tonnage Certificate (1969) to replace it, whichever is the earlier. The Contracting Government of the State whose flag the ship was flying hitherto shall transmit to the Administration as soon as possible after the transfer takes place a copy of the certificate carried by the ship at the time of transfer and a copy of the relevant tonnage calculations.
Article 11
Acceptance of Certificate
The certificate issued under the authority of a Contracting Government in accordance with the present Convention shall be accepted by the other Contracting Governments and regarded for all purposes covered by the present Convention as having the same validity as certificates issued by them.
Article 12
Inspection
(1) A ship flying the flag of a State the Government of which is a Contracting Government shall be subject, when in the ports of other Contracting Government, to inspection by officers duly authorized by such Governments. Such inspection shall be limited to the purpose of verifying:
(a) that the ship is provided with a valid International Tonnage Certificate (1969); and
(b) that the main characteristics of the ship correspond to the data given in the certificate.
(2) In no case shall the exercise of such inspection cause any delay to the ship.
(3) Should the inspection reveal that the main characteristics of the ship differ from those entered on the International Tonnage Certificate (1969) so as to lead to an increase in the gross tonnage or the net tonnage, the Government of the State whose flag the ship is flying shall be informed without delay.
Article 13
Privileges
The privileges of the present Convention may not be claimed in favour of any ship unless it holds a valid certificate under the Convention.
Article 14
Prior Treaties, Conventions and Arrangements
(1) All other treaties, conventions and arrangements relating to tonnage matters at present in force between Governments Parties to the present Convention shall continue to have full and complete effect during the terms thereof as regards:
(a) ships to which the present Convention does not apply; and
(b) ships to which the present Convention applies, in respect of matters for which it has not expressly provided.
(2) To the extent, however, that such treaties, conventions or arrangements conflict with the provisions of the present Convention, the provisions of the present Convention shall prevail.
Article 15
Communication of Information
The Contracting Governments undertake to communicate to and deposit with the Organization:
(a) a sufficient number of specimens of their certificates issued under the provisions of the present Convention for circulation to the Contracting Governments;
(b) the text of the laws, orders, decrees, regulations and other instruments which shall have been promulgated on the various matters within the scope of the present Convention; and
(c) a list of non-governmental agencies which are authorized to act in their behalf in matters relating to tonnages for circulation to the Contracting Governments.
Article 16
Signature, Acceptance and Accession
(1) The present Convention shall remain open for signature for six months from 23 June 1969, and shall thereafter remain open for accession. Governments of States Members of the United Nations, or of any of the Specialized Agencies, or of the International Atomic Energy Agency, or parties to the Statute of the International Court of Justice may become Parties to the Convention by:
(a) signature without reservation as to acceptance;
(b) signature subject to acceptance followed by acceptance; or
(c) accession.
(2) Acceptance or accession shall be effected by the deposit of an instrument of acceptance or accession with the Organization. The Organization shall inform all Governments which have signed the present Convention or acceded to it of each new acceptance or accession and of the date of its deposit. The Organization shall also inform all Governments which have already signed the Convention of any signature effected during the six months from 23 June 1969.
Article 17
Coming into Force
(1) The present Convention shall come into force twenty-four month after the date on which not less than twenty-five Governments of States the combined merchant fleets of which constitute not less than sixty-five per cent of the gross tonnage of the world's merchant shipping have signed without reservation as to acceptance or deposited instruments of acceptance or accession in accordance with Article 16. The Organization shall inform all Governments which have signed or acceded to the present Convention of the date on which it comes into force.
(2) For Governments which have deposited an instrument of acceptance of or accession to the present Convention during the twenty-four months mentioned in paragraph (1) of this Article, the acceptance or accession shall take effect on the coming into force of the present Convention or three months after the date of deposit of the instrument of acceptance or accession, whichever is the later date.
(3) For Governments which have deposited an instrument of acceptance of or accession to the present Convention after the date on which it comes into force, the Convention shall come into force three months after the date of the deposit of such instrument.
(4) After the date on which all the measures required to bring an amendment to the present Convention into force have been completed, or all necessary acceptances are deemed to have been given under sub-paragraph (b) of paragraph (2) of Article 18 in case of amendment by unanimous acceptance, any instrument of acceptance or accession deposited shall be deemed to apply to the Convention as amended.
Article 18
Amendments
(1) The present Convention may be amended upon the proposal of a Contracting Government by any of the procedures specified in this Article.
(2) Amendment by unanimous acceptance:
(a) Upon the request of a Contracting Government, any amendment proposed by it to the present Convention shall be communicated by the Organization to all Contracting Governments for consideration with a view to unanimous acceptance.
(b) Any such amendment shall enter into force twelve months after the date of its acceptance by all Contracting Governments unless an earlier date is agreed upon. A Contracting Government which does not communicate its acceptance or rejection of the amendment to the Organization within twenty-four months of its first communication by the latter shall be deemed to have accepted the amendment.
(3) Amendment after consideration in the Organization:
(a) Upon the request of a Contracting Government, any amendment proposed by it to the present Convention will be considered in the Organization. If adopted by a majority of two-thirds of those present and voting in the Maritime Safety Committee of the Organization, such amendment shall be communicated to all Members of the Organization and all Contracting Governments at least six months prior to its consideration by the Assembly of the Organization.
(b) If adopted by a two-thirds majority of those present and voting in the Assembly, the amendment shall be communicated by the Organization to all Contracting Governments for their acceptance.
(c) Such amendment shall come into force twelve months after the date on which it is accepted by two-thirds of the Contracting Governments. The amendment shall come into force with respect to all Contracting Governments except those which, before it comes into force, make a declaration that they do not accept the amendment.
(d) The Assembly, by a two-thirds majority of those present and voting, including two-thirds of the Governments represented on the Maritime Safety Committee and present and voting in the Assembly, may propose a determination at the time of its adoption that an amendment is of such an important nature that any Contracting Government which makes declaration under sub-paragraph (c) of this paragraph and which does not accept the amendment within a period of twelve months after it comes into force, shall cease to be a party to the present Convention upon the expiry of that period. This determination shall be subject to the prior acceptance of two-thirds of the Contracting Governments.
(e) Nothing in this paragraph shall prevent the Contracting Government which first proposed action under this paragraph on an amendment to the present Convention from taking at any time such alternative action as it deems desirable in accordance with paragraphs (2) or (4) of this Article.
(4) Amendment by a conference:
(a) Upon the request of a Contracting Government, concurred in by at least one-third of the Contracting Governments, a conference of Governments will be convened by the Organization to consider amendments to the present Convention.
(b) Every amendment adopted by such a conference by a two-thirds majority of those present and voting of the Contracting Governments shall be communicated by the Organization to all Contracting Governments for their acceptance.
(c) Such amendment shall come into force twelve months after the date on which it is accepted by two-thirds of the Contracting Governments. The amendment shall come into force with respect to all Contracting Governments except those which, before it comes into force, make a declaration that they do not accept the amendment.
(d) By a two-thirds majority of those present and voting, a conference convened under sub-paragraph (a) of this paragraph may determine at the time of its adoption that an amendment is of such an important nature that any Contracting Government which makes a declaration under sub-paragraph (c) of this paragraph, and which does not accept the amendment within a period of twelve months after it comes into force, shall cease to be a party to the present Convention upon the expiry of that period.
(5) The Organization shall inform all Contracting Governments of an amendments which may come into force under this Article, together with the date on which each such amendment will come into force.
(6) Any acceptance or declaration under this Article shall be made by the deposit of an instrument with the Organization which shall notify all Contracting Governments of the receipt of the acceptance or declaration.
Article 19
Denunciation
(1) The present Convention may be denounced by any Contracting Government at any time after the expiry of five years from the date on which the Convention comes into force for that Government.
(2) Denunciation shall be effected by the deposit of an instrument with the Organization which shall inform all the other Contracting Governments of any such denunciation received and of the date of its receipt.
(3) A denunciation shall take effect one year, or such longer period as may be specified in the instrument of denunciation, after its receipt by the Organization.
Article 20
Territories
(1) (a) The United Nations, in cases where they are the administering authority for a territory, or any Contracting Government responsible for the international relations of a territory, shall as soon as possible consult with such territory or take such measures as may be appropriate in an endeavour to extend the present Convention to that territory and may at any time by notification in writing to the Organization declare that the present Convention shall extend to such territory.
(b) The present Convention shall, from the date of receipt of the notification or from such other date as may be specified in the notification, extend to the territory named therein.
(2) (a) The United Nations, or any Contracting Government which has made a declaration under sub-paragraph (a) of paragraph (1) of this Article at any time after the expiry of a period of five years from the date on which the Convention has been so extended to any territory, may by notification in writing to the Organization declare that the present Convention shall cease to extend to any such territory named in the notification.
(b) The present Convention shall cease to extend to any territory mentioned in such notification one year, or such longer period as may be specified therein, after the date of receipt of the notification by the Organization.
(3) The Organization shall inform all the Contracting Governments of the extension of the present Convention to any territories under paragraph (1) of this Article, and of the termination of any such extension under the provisions of paragraph (2) stating in each case the date from which the present Convention has been or will cease to be so extended.
Article 21
Deposit and Registration
(1) The present Convention shall be deposited with the Organization and the Secretary-General of the Organization shall transmit certified true copies thereof to all Signatory Governments and to all Governments which accede to the present Convention.
(2) As soon as the present Convention comes into force, the text shall be transmitted by the Secretary-General of the Organization to the Secretariat of the United Nations for registration and publication, in accordance with Article 102 of the Charter of the United Nations.
Article 22
Languages
The present Convention in established in a single copy in English and French languages, both texts being equally authentic. Official translations in the Russian and Spanish languages shall be prepared and deposited with the signed original.
IN WITNESS WHEREOF the undersigned being duly authorized by their respective Governments for that purpose have signed the present Convention.
DONE at London this twenty-third day of June 1969.
(Further follow the signatures of the Representatives.)
Regulation 1
General
(1) The tonnage of a ship shall consist of gross tonnage and net tonnage.
(2) The gross tonnage and the net tonnage shall be determined in accordance with the provisions of these Regulations.
(3) The gross tonnage and the net tonnage of novel types of craft whose constructional features are such as to render the application of the provisions of these Regulations unreasonable or impracticable shall be as determined by the Administration. Where the tonnage is so determined, the Administration shall communicate to the Organization details of the method used for that purpose, for circulation to the Contracting Governments for their information.
Regulation 2
Definitions of Terms used in the Annexes
(1) Upper Deck
The upper deck is the uppermost complete deck exposed to weather and sea, which has permanent means of weathertight closing of all openings in the weather part thereof, and below which all openings in the sides of the ship are fitted with permanent means of watertight closing. In a ship having a stepped upper deck, the lowest line of the exposed deck is taken as the upper deck.
(2) Moulded Depth
(a) The moulded depth is the vertical distance measured from the top of the keel to the underside of the upper deck at side. In wood and composite ships the distance is measured from the lower edge of the keel rabbet. Where the form at the lower part of the midship section is of hollow character, or where thick garboards are fitted, the distance is measured from the point where the line of the flat of the bottom continued inwards cuts the side of the keel.
(b) In ships having rounded gunwales, the moulded depth shall be measured to the point of intersection of the moulded lines of the deck and side shell plating, the lines extending as though the gunwales were of angular design.
(c) Where the upper deck is stepped and the raised part of the deck extends over the point at which the moulded depth is to be determined, the moulded depth shall be measured to a line of reference extending from the lower part of the deck along a line parallel with the raised part.
(3) Breadth
The breadth is the maximum breadth of the ship, measured amidships to the moulded line of the frame in a ship with a metal shell and to the outer surface of the hull in a ship with a shell of any other material.
(4) Enclosed spaces
Enclosed spaces are all those spaces which are bounded by the ship's hull, by fixed or portable partitions or bulkheads, by decks or coverings other than permanent or movable awnings. No break in a deck, nor any opening in the ship's hull, in a deck or in a covering of a space, or in the partitions or bulkheads of a space, nor the absence of a partition or bulkhead, shall preclude a space from being included in the enclosed space.
(5) Excluded Spaces
Notwithstanding the provisions of paragraph (4) of this Regulation, the spaces referred to in subparagraphs (a) to (e) inclusive of this paragraph shall be called excluded spaces and shall not be included in the volume of enclosed spaces, except that any such space which fulfils at least one of the following three conditions shall be treated as an enclosed space:
- the space is fitted with shelves or other means for securing cargo or stores;
- the openings are fitted with any means of closure;
- the construction provides any possibility of such openings being closed;
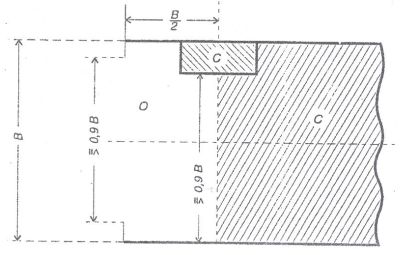
(a) (i) A space within an erection opposite an end opening extending from deck to deck except for a curtain plate of a depth not exceeding by more than 25 millimetres (one inch) the depth of the adjoining deck beams, such openings having a breadth equal to or greater than 90 per cent of the breadth of the deck at the line of the opening at a distance from the opening equal to one half of the width of the deck at the line of the opening (Figure 1 in Appendix 1).
(ii) Should the width of the space because of any arrangement except by convergence of the outside plating, become less than 90 per cent of the breadth of the deck, only the space between the line of the opening and a parallel line drawn through the point where the athwartships width of the space becomes equal to, or less than, 90 per cent of the breadth of the deck shall be excluded from the volume of enclosed spaces (Figures 2, 3 and 4 in Appendix 1).
(iii) Where an interval which is completely open except for bulwarks or open rails separate any two spaces, the exclusion of one or both of which is permitted under sub-paragraphs (a) (i) and/or (a) (ii), such exclusion shall not apply if the separation between the two spaces is less than the least half breadth of the deck in way of the separation (Figures 5 and 6 in Appendix 1).
(b) A space under an overhead deck covering open to the sea and weather, having no other connexion on the exposed sides with the body of the ship than the stanchions necessary for its support. In such a space, open rails or a bulwark and curtain plate may be fitted or stanchions fitted at the ship's side, provided that the distance between the top of the rails or the bulwark and the curtain plate is not less than 0.75 metres (2.5 feet) or one-third of the height of the space, whichever is the greater (Figure 7 in Appendix 1).
(c) A space in a side-to-side erection directly in way of opposite side openings not less in height than 0,75 metres (2,5 feet) or one-third of the height of the erection, whichever is the greater. If the opening in such an erection is provided on one side only, the space to be excluded from the volume of enclosed spaces shall be limited inboard from the opening to a maximum of one-half of the breadth of the deck in way of the opening (Figure 8 in Appendix 1).
(d) A space in an erection immediately below an uncovered opening in the deck overhead, provided that such an opening is exposed to the weather and the space excluded from enclosed spaces is limited to the area of the opening (Figure 9 in Appendix 1).
(e) A recess in the boundary bulkhead of an erection which is exposed to the weather and the opening of which extends from deck to deck without means of closing, provided that the interior width is not greater than the width at the entrance and its extension into the erection is not greater than twice the width of its entrance (Figure 10 in Appendix 1).
(6) Passenger
A passenger is every person other than:
(a) the master and the members of the crew or other persons employed or engaged in any capacity on board a ship on the business of that ship; and
(b) a child under one year of age.
(7) Cargo Spaces
Cargo spaces to be included in the computation of net tonnage are enclosed spaces appropriated for the transport of cargo which is to be discharged from the ship, provided that such spaces have been included in the computation of gross tonnage. Such cargo spaces shall be certified by permanent marking with the letters CC (cargo compartment) to be so positioned that they are readily visible and not to be less than 100 millimetres (4 inches) in height.
(8) Weathertight
Weathertight means that in any sea conditions water will not penetrate into the ship.
Regulation 3
Gross Tonnage
The gross tonnage (GT) of a ship shall be determined by the following formula:
GT = K1 V
where: V = Total volume of all enclosed spaces of the ship in cubic metres
K1 = 0,2 + 0,2 log10V (or as tabulated in Appendix 2).
Regulation 4
Net Tonnage
(1) The net tonnage (NT) of a ship shall be determined by the following formula:
,
in which formula:
(a) the
factor shall not be taken as
greater than unity;
(b) the term
shall not be taken as less than
0,25 GT; and
(c) NT shall not be taken as less than 0,30 GT; and in which:
Vc = total volume of cargo spaces in cubic metres,
K2 = 0,2 + 0,02 log10Vc (or as tabulated in Appendix 2),
K3 =
D = moulded depth amidships in metres as defined in Regulation 2(2),
d = moulded draught amidships in metres as defined in paragraph (2) of this Regulation,
N1 = number of passengers in cabins with not more than 8 berths,
N2 = number of other passengers,
N1 + N2 = total number of passengers the ship is permitted to carry as indicated in the ship's passenger certificate;
when N1 + N2 is less than 13, N1 and N2 shall be taken as zero,
GT = gross tonnage of the ship as determined in accordance with the provisions of Regulation 3.
(2) The moulded draught (d) referred to in paragraph (1) of this Regulation shall be one of the following draughts:
(a) for ships to which the International Convention on Load Lines in force applies, the draught corresponding to the Summer Load Line (other than timber load lines) assigned in accordance with that Convention;
(b) for passenger ships, the draught corresponding to the deepest subdivision load line assigned in accordance with the International Convention for the Safety of Life at Sea in force or other international agreement where applicable;
(c) for ships to which the International Convention on Load Lines does not apply but which have been assigned a load line in compliance with national requirements, the draught corresponding to the summer load line so assigned;
(d) for ships to which no load line has been assigned but the draught of which is restricted in compliance with national requirements, the maximum permitted draught;
(e) for other ships, 75 per cent of the moulded depth amidships as defined in Regulation 2(2).
Regulation 5
Change of Net Tonnage
(1) When the characteristics of a ship, such as V, Vc, d, N1 or N2as defined in Regulations 3 and 4, are altered and where such an alteration results in an increase in its net tonnage as determined in accordance with the provisions of Regulations 4, the net tonnage of the ship corresponding to the new characteristics shall be determined and shall be applied without delay.
(2) A ship to which load lines referred to in sub-paragraphs (2)(a) and (2)(b) of Regulation 4 are concurrently assigned shall be given only one net tonnage as determined in accordance with the provisions of Regulation 4 and that tonnage shall be the tonnage applicable to the appropriate assigned load line for the trade in which the ship is engaged.
(3) When the characteristics of a ship such as V, Vc, d, N1or N2 as defined in Regulations 3 and 4 are altered or when the appropriate assigned load line referred to in paragraph (2) of this Regulation is altered due to the change of the trade in which the ship is engaged, and where such an alteration results in a decrease in its net tonnage as determined in accordance with the provisions of Regulation 4, a new International Tonnage Certificate (1969) incorporating the net tonnage so determined shall not be issued until twelve months have elapsed from the date on which the current Certificate was issued; provided that this requirement shall not apply:
(a) if the ship is transferred to the flag of another State, or
(b) if the ship undergoes alterations or modifications which are deemed by the Administration to be of a major character, such as the removal of a superstructure which requires an alteration of the assigned load line, or
(c) to passenger ships which are employed in the carriage of large numbers of unberthed passengers in special trades, such, for example, as the pilgrim trade.
Regulation 6
Calculation of Volumes
(1) All volumes included in the calculation of gross and net tonnages shall be measured, irrespective of the fitting of insulation or the like, to the inner side of the shell or structural boundary plating in ships constructed of metal, and to the outer surface of the shell or to the inner side of structural boundary surfaces in ships constructed of any other material.
(2) Volumes of appendages shall be included in the total volume.
(3) Volumes of spaces open to the sea may be excluded from the total volume.
Regulation 7
Measurement and Calculation
(1) All measurement used in the calculation of volumes shall be taken to the nearest centimetre or one-twentieth of a foot.
(2) The volumes shall be calculated by generally accepted methods for the space concerned and with an accuracy acceptable to the Administration.
(3) The calculation shall be sufficiently detailed to permit easy checking.
Appendix 1
Figures Referred to in Regulation 2 (5)
In the following figures:
O = excluded space,
C = enclosed space,
I = space to be considered as an enclosed space.
Hatched in parts to be included as enclosed spaces.
B = breadth of the deck in way of the opening. In ships with rounded gunwales the breadth is measured as indicated in Figure 11.
Reg. 2(5) (a)(i)
Fig. 1
Reg. 2(5) (a)(ii)
Fig. 2
Reg. 2(5) (a)(ii)
Fig. 3
Reg. 2(5) (a)(ii)
Fig. 4
Reg. 2(5) (a)(iii)
Fig. 5
Reg. 2(5) (a)(iii)
Fig. 6
Reg. 2(5) (b)
Fig. 7
Reg. 2(5) (c)
Fig. 8
Reg. 2(5) (d)
Fig. 9
Reg. 2(5) (e)
Fig. 10
Fig. 11
Appendix 2
Coefficients K1 and K2, referred to in Regulations 3 and 4 (1)
V or Vc = Volume in cubic metres
Coefficients K1 and K2 intermediate values of V or Vc shall be obtained by linear interpolation.
INTERNATIONAL TONNAGE CERTIFICATE (1969)
The following are the recommendations adopted by the Conference:
Recommendation 1. Acceptance of the International Convention on Tonnage Measurement of Ships, 1969
The Conference recommends that Governments should accept the International Convention on Tonnage Measurement of Ships, 1969, at as early a date as possible.
Recommendation 2. Uses Gross and Net Tonnage
The Conference recommends that the gross tonnage and the net tonnage as determined in accordance with the provisions of the International Convention on Tonnage Measurement of Ships, 1969, should be accepted as the parameters referred to where those terms are used in conventions, laws and regulations, and also as the basis for statistical data relating to the overall size or useful capacity of merchant ships. In addition, recognizing that the transition from existing tonnage measurement systems to the new system provided in the Convention should cause the least possible impact on the economics of merchant shipping and port operations, the Conference recommends that Contracting Governments, port authorities, and all other agencies which use tonnage as a basis for charges should carefully consider which parameter is most appropriate for their use in the light of their present practice.
Recommendation 3. Uniform Interpretation of Definition of Terms
The Conference, recognizing that the definitions of certain terms used in the International Convention on Tonnage Measurement of Ships, 1969, such as "length", "breadth", "passenger" and "weathertight", are identical to those contained in other conventions of which the Inter-Governmental Maritime Consultative Organization is depositary, recommends that Contracting Governments should take steps to ensure that identical definitions of terms used in such conventions are interpreted in a uniform and consistent manner.
Līgumslēdzējas Valdības,
VĒLOTIES izveidot vienotus principus un noteikumus, lai noteiktu tilpību kuģiem, kuri veic starptautiskus reisus,
UZSKATOT, ka šo mērķi vislabāk var sasniegt, noslēdzot Konvenciju,
VIENOJĀS par sekojošo:
1. pants
Vispārējas saistības saskaņā ar Konvenciju
Līgumslēdzējas Valdības apņemas realizēt šīs Konvencijas un tās Pielikumu nosacījumus, kuri ir neatņemama šīs Konvencijas daļa. Jebkura atsaukšanās uz šo Konvenciju vienlaicīgi nozīmē atsaukšanos uz Pielikumiem.
2. pants
Definīcijas
Šajā Konvencijā, ja nav noteikts citādi:
1) "Noteikumi" nozīmē šai Konvencijai pievienotos noteikumus;
2) "Administrācija" nozīmē kuģa karoga valsts valdību;
3) "starptautisks reiss" nozīmē jūras reisu no valsts, uz kuru attiecas šī Konvencija, uz ostu ārpus šīs valsts robežas vai pretēji. Šajā nozīmē katra teritorija, par kuras starptautiskām attiecībām ir atbildīga Līgumslēdzēja Valdība vai kurai Apvienoto Nāciju Organizācija ir valdošā vara, ir jāaplūko kā atsevišķa valsts;
4) "bruto tilpība" nozīmē kuģa vislielāko apjomu, kas noteikts saskaņā ar šīs Konvencijas noteikumiem;
5) "neto tilpība" nozīmē kuģa derīgā tilpuma lielumu, kas noteikts saskaņā ar šīs Konvencijas noteikumiem;
6) "jauns kuģis" nozīmē kuģi, kuram ir ielikts ķīlis, vai kuģi, kurš ir līdzīgas būvniecības posmā dienā, kurā Konvencijas stājas spēkā vai pēc šīs dienas;
7) "esošais kuģis" nozīmē kuģi, kurš nav jauns kuģis;
8) " garums" nozīmē garumu, kas ir 96% no pilnā kuģa garuma pa ūdenslīniju ar iegrimi, kas ir 85% no teorētiskā borta augstuma, kas tiek mērīts no ķīļa augšējās malas, vai kuģa garums no kuģa priekšvadņa priekšējās malas līdz stūres vārpstas asij uz tās pašas ūdenslīnijas, skatoties, kurš ir lielāks. Kuģiem, kuri projektēti ar galsveri, ūdenslīnijai, pēc kuras tiek mērīts garums, jābūt paralēlai konstruktīvai ūdenslīnijai;
9) "Organizācija" nozīmē Starpvaldību Jūras Konsultatīvo Organizāciju.
3. pants
Pielietošana
1. Šo Konvenciju pielieto šādiem kuģiem, kuri veic starptautiskos reisus:
a) kuģiem, kuri piereģistrēti valstīs, kuru valdības ir Līgumslēdzējas Valdības;
b) kuģiem, kuri piereģistrēti teritorijās, uz kurām saskaņā ar 20. pantu pielietojama šī Konvencija; un
c) nepiereģistrētiem kuģiem, kura karoga valsts valdība ir Līgumslēdzēja Valdība.
2. Šo Konvenciju pielieto:
a) jauniem kuģiem;
b) esošiem kuģiem, kuri pakļauti pārbūvei vai modernizācijai, kas pēc Administrācijas uzskatiem būtiski izmainīs kuģu brutto tilpību;
c) esošiem kuģiem pēc kuģa īpašnieka lūguma; un
d) visiem esošiem kuģiem 12 gadus pēc šīs Konvencijas spēkā stāšanās dienas, izņemot kuģus, kas jau minēti šā punkta b) un c) apakšpunktos, kuri pēc šī termiņa saglabās savu tajā laikā esošo tilpību ar mērķi pielietot tiem atbilstošas citu Starptautisku konvenciju prasības.
3. Esošo kuģu tilpība, kuriem šī Konvencija jau tika pielietota saskaņā ar šī panta 2. punkta c) apakšpunktu, vairs netiek mērīta saskaņā ar prasībām, kuras Administrācija pielietoja kuģiem, kuri veica starptautiskos reisus līdz Konvencijas spēkā stāšanās dienai.
4. pants
Izņēmumi
1. Šī Konvencija nav pielietojama:
a) kara kuģiem; un
b) kuģiem, kuru garums nepārsniedz 24 metrus (79 pēdas).
2. Nekas šajā Konvencijā nav pielietojams kuģiem, kuri brauc tikai un vienīgi:
a) pa Lielajiem Ziemeļamerikas ezeriem un Sv. Labrenča upi līdz taisnajai līnijai Austrumos, kas novilkta no Rosiera zemesraga līdz Antikosti salas Vestpointai, un tālāk uz Antikosti salas 63° rietumu meridiāna Ziemeļu virzienā;
b) Kaspijas jūrā; vai
c) pa Plates, Paranas un Urugvajas upēm līdz taisnajai līnijai, kas novilkta starp Punta Rasa (Kabo San Antonio) Argentīnā un Punta del Este Urugvajā.
5. pants
Nepārvarama vara
1. Uz kuģi, uz kuru neattiecas šīs Konvencijas noteikumi brīdī, kad tas dodas jebkurā reisā, noteikumi neattieksies arī jebkurā gadījumā, kuģim novirzoties no kursa nelabvēlīgu laika apstākļu dēļ vai citas nepārvaramas varas gadījumā.
2. Pielietojot šīs Konvencijas prasības, Līgumslēdzējām Valdībām jāpievērš pienācīga uzmanība jebkuram kuģa novirzīšanās no kursa vai aizkavēšanās gadījumam, kam par iemeslu ir nelabvēlīgi laika apstākļi vai cits nepārvaramas varas gadījums.
6. pants
Tilpības noteikšana
Bruto un neto tilpības noteikšanu veic Administrācija, kura tomēr var arī uzticēt kuģa tilpības noteikšanu atsevišķām, tās atzītām personām vai organizācijām. Katrā gadījumā attiecīgā Administrācija uzņemas pilnu atbildību par bruto un neto tilpības noteikšanu.
7. pants
Apliecības izsniegšana
1. Starptautiskā tilpības apliecība (1969) ir jāizsniedz katram kuģim, kura bruto un neto tilpība ir noteikta saskaņā ar šo Konvenciju.
2. Šādu apliecību izsniedz Administrācija vai cita, attiecīgi pilnvarota persona vai organizācija. Katrā gadījumā Administrācija uzņemas pilnu atbildību par apliecību.
8. pants
Apliecības izsniegšana, ko veic cita valdība
1. Jebkura Līgumslēdzēja Valdība saskaņā ar šo Konvenciju pēc citas Līgumslēdzējas Valdības lūguma var noteikt kuģa bruto un neto tilpību un izsniegt vai pilnvarot Starptautiskās tilpības apliecības (1969) izsniegšanu kuģim.
2. Apliecības kopija un tilpības aprēķinu kopija pēc iespējas ātrāk jānogādā Valdībai, kura to lūgusi.
3. Šādi izsniegtajā apliecībā jābūt ierakstam par to, ka tā izsniegta pēc kuģa pašreizējās un nākamās karoga valsts valdības lūguma, un šai apliecībai ir tāds pats likumīgs spēks un tā atzīstama tāpat kā apliecība, kura izsniegta saskaņā ar 7. pantu.
4. Starptautisko tilpības apliecību (1969) nedrīkst izsniegt kuģim, kura karoga valsts valdība nav Līgumslēdzēja Valdība.
9. pants
Apliecības forma
1. Apliecība tiek sastādīta izdevējas valsts oficiālajā valodā vai valodās. Ja tā nav sastādīta angļu vai franču valodā, tekstā jāiekļauj tulkojums vienā no šīm valodām.
2. Apliecības formai jāatbilst 2. pielikumā sniegtajam paraugam.
10. pants
Apliecības anulēšana
1. Ievērojot Konvencijai pievienotajos noteikumos paredzētos izņēmumus, Starptautiskā tilpības apliecība (1969) nav derīga un Administrācija to anulē, ja ir notikušas izmaiņas kuģa uzbūvē, konstrukcijā, apjomā, telpu izmantošanā, kuģa pasažieru kopējā skaitā, ko bija atļauts pārvadāt saskaņā ar kuģa pasažiera apliecību, noteiktās kravas markas vai atļautās kuģa iegrimes izmaiņas, kuras izraisa kuģa neto un bruto tilpības palielināšanos.
2. Apliecība, kuru kuģim izsniegusi Administrācija, vairs nav derīga, ja kuģis tiek nodots citai karoga valstij, izņemot šā panta 3. punktā paredzēto gadījumu.
3. Pēc kuģa nodošanas citai valstij, kuras valdība ir Līgumslēdzēja Valdība, Starptautiskā tilpības apliecība (1969) ir derīga ne ilgāk kā trīs mēnešus vai līdz tam laikam, kamēr Administrācija izsniegs citu Starptautisko tilpības apliecību (1969) iepriekšējās vietā, atkarībā no tā, kas notiks agrāk. Kuģa karoga valsts Līgumslēdzējai Valdībai, kur a s kuģis ir nodots citai valstij, cik vien ātri iespējams pēc kuģa nodošanas, ir jānodod Administrācijai kuģa apliecības kopija, kura tai bija nodošanas brīdī, un attiecīgo tilpības aprēķinu kopija.
11. pants
Apliecības atzīšana
Saskaņā ar šo Konvenciju Līgumslēdzējas Valdības vārdā izsniegta apliecība jāatzīst citai Līgumslēdzējai Valdībai un šīs Konvencijas mērķu īstenošanā tā ir derīga tikpat lielā mērā kā tā, kuru izdevusi Līgumslēdzēja Valdība.
12. pants
Kontrole
1. Kuģis, kurš kuģo zem tādas valsts karoga, kuras valdība ir Līgumslēdzēja Valdība, citu Līgumslēdzēju Valdību ostās tiek pakļauts šo valdību pilnvarotu personu kontrolei. Šādai kontrolei jāaprobežojas ar to, lai konstatētu:
a) vai kuģim ir derīga Starptautiskā tilpības apliecība (1969); un
b) vai kuģa galvenie raksturlielumi atbilst apliecībā sniegtajiem datiem.
2. Šāda kontrole nekādā gadījumā nedrīkst būt kuģa aizkavēšanas iemesls.
3. Ja kontroles rezultātā tiek atklāts, ka kuģa galvenie raksturlielumi atšķiras no Starptautiskajā tilpības apliecībā (1969) ierakstītajiem, un tas rada bruto vai neto tilpības palielināšanos, kuģa karoga valsts valdība tiek bez vilcināšanās informēta.
13. pants
Privilēģijas
Kuģis, kuram nav saskaņā ar Konvenciju izsniegtas derīgas apliecības, nevar pretendēt uz Konvencijā paredzētajām privilēģijām.
14. pants
Agrākie līgumi, konvencijas un vienošanās
1. Visi citi līgumi, konvencijas un vienošanās, kas attiecas uz tilpības mērīšanas jautājumiem un kas pašreiz ir spēkā starp valdībām - šīs Konvencijas Pusēm, turpina būt spēkā tik ilgi, līdz beidzas to darbības termiņš attiecībā uz:
a) kuģiem, kuri nepielieto šo Konvenciju; un
b) kuģiem, kuri šo Konvenciju pielieto, bet tādos jautājumos, kuri tajā nav īpaši paredzēti.
2. Tomēr tādos gadījumos, kad šādi līgumi, konvencijas vai vienošanās ir pretrunā ar šo Konvenciju, noteicošie ir šīs Konvencijas noteikumi.
15. pants
Informācijas izplatīšana
Līgumslēdzējas Valdības apņemas nosūtīt un deponēt Organizācijai:
a) pietiekamu, saskaņā ar šīs Konvencijas noteikumiem izsniedzamo apliecību paraugu skaitu izsūtīšanai Līgumslēdzējām Valdībām;
b) likumu, pavēļu, dekrētu, noteikumu un citu instrumentu tekstus, kuri tiek izdoti par dažādiem šīs Konvencijas jautājumiem; un
c) nevalstisko aģentūru sarakstu, kuras ir pilnvarotas to vārdā nodarboties ar jautājumiem, kas attiecas uz kuģu tilpību, nosūtīšanai Līgumslēdzējām Valdībām.
16. pants
Parakstīšana, akceptēšana un pievienošanās
1. Šī Konvencija ir atklāta parakstīšanai sešus mēnešus no 1969. gada 23. jūnija un pēc tam paliek atklāta, lai tai pievienotos. Apvienoto Nāciju Organizācijas vai jebkuras tās specializētās aģentūras dalībvalstu, vai Starptautiskās Atomenerģijas Aģentūras dalībvalstu, vai Starptautiskās Tiesas Statūtu pušu valdības var kļūt par šīs Konvencijas Pusēm:
a) parakstot ar atrunu par akceptēšanu;
b) parakstot ar atrunu par akceptēšanu; ar tai sekojošu akceptēšanu; vai
c) pievienojoties.
2. Akceptēšana vai pievienošanās notiek, deponējot Organizācijai akceptēšanas vai pievienošanās instrumentu. Organizācija informē visas valdības, kuras ir parakstījušas šo Konvenciju vai pievienojušās tai, par katru jaunu akceptēšanas vai pievienošanās instrumentu un tā deponēšanas datumu. Organizācija informē arī visas tās valdības, kuras jau ir parakstījušas Konvenciju, par jebkuru parakstīšanu, kas veikta sešu mēnešu laikā pēc 1969. gada 23. jūnija.
17. pants
Stāšanās spēkā
1. Šī Konvencija stājas spēkā pēc divdesmit četriem mēnešiem, skaitot no dienas, kad ne mazāk kā divdesmit piecu valstu valdības, kuru apvienotā jūras tirdzniecības flote sastāda ne mazāk kā sešdesmit piecus procentus no apvienotās pasaules tirdzniecības flotes bruto tilpības, ir parakstījušas bez atrunas par akceptēšanu vai deponējušas akceptēšanas vai pievienošanās instrumentus, saskaņā ar 16. pantu. Organizācija informē visas valdības, kuras ir parakstījušas šo Konvenciju vai pievienojušās tai, par datumu, kurā tā stājas spēkā.
2. Valdībām, kuras šā panta 1. punktā minēto divdesmit četru mēnešu laikā ir deponējušas Organizācijai instrumentu par šīs Konvencijas akceptēšanu vai pievienošanos tai, akceptēšana vai pievienošanās stājas spēkā līdz ar Konvencijas spēkā stāšanās datumu vai pēc trīs mēnešiem, skaitot no datuma, kurā tika deponēts akceptēšanas vai pievienošanās instruments, atkarībā no tā, kurš notikums iestājas vēlāk.
3. Valdībām, kuras Konvencijas akceptēšanas vai pievienošanās instrumentu deponē pēc tās spēkā stāšanās datuma, Konvencija stājas spēkā pēc trim mēnešiem, skaitot no šā instrumenta deponēšanas datuma.
4. Pēc datuma, kad ir izpildīti visi nepieciešamie pasākumi, lai stātos spēkā šīs Konvencijas grozījums, vai saskaņā ar 18. panta 2. punkta b) apakšpunktu ir saņemti visi nepieciešamie apstiprinājumi, lai grozījumu pieņemtu vienbalsīgi, jebkurš deponētais akceptēšanas vai pievienošanās instruments jāattiecina uz grozīto Konvenciju.
18. pants
Grozījumi
1. Šī Konvencija var tikt grozīta pēc jebkuras Līgumslēdzējas Valdības lūguma saskaņā ar jebkuru šajā pantā norādīto procedūru.
2. Vienbalsīgi pieņemts grozījums:
a) pēc Līgumslēdzējas Valdības lūguma, katru piedāvāto šīs Konvencijas grozījumu Organizācija izsūta izskatīšanai visām Valdībām nolūkā to vienbalsīgi akceptēt;
b) jebkurš šāds grozījums stājas spēkā pēc divpadsmit mēnešiem, skaitot no datuma, kad to akceptējušas visas Līgumslēdzējas Valdības, ja nav vienošanās par īsāku spēkā stāšanās termiņu. Ja Līgumslēdzēja Valdība divdesmit četru mēnešu laikā, kopš izsūtīts pirmais paziņojums, nav paziņojusi Organizācijai savu viedokli par ierosinātā grozījuma akceptēšanu vai noraidījumu, tiek uzskatīts, ka Līgumslēdzēja Valdība šo grozījumu ir pieņēmusi.
3. Grozījums pēc tā izskatīšanas Organizācijā:
a) pēc Līgumslēdzējas Valdības lūguma jebkurš tās ierosinātais šīs Konvencijas grozījums tiek izskatīts Organizācijā. Šāds grozījums, ja to pieņem Organizācijas Jūrniecības Drošības komiteja ar klātesošo un balsojušo divu trešdaļu balsu vairākumu, tiek nosūtīts visām Organizācijas dalībvalstīm un visām Līgumslēdzējām Valdībām vismaz sešus mēnešus pirms tā izskatīšanas Organizācijas Asamblejā;
b) ja Asamblejā grozījums tiek pieņemts ar klātesošo un balsojušo divu trešdaļu balsu vairākumu, Organizācija grozījumu nosūta visām Līgumslēdzējām Valdībām tā akceptēšanai;
c) šāds grozījums stājas spēkā pēc divpadsmit mēnešiem, skaitot no datuma, kad to akceptējušas divas trešdaļas Līgumslēdzēju Valdību. Grozījums stājas spēkā attiecībā uz visām Līgumslēdzējām Valdībām, izņemot tās, kuras līdz tā spēkā stāšanās brīdim paziņo par grozījuma noraidīšanu;
d) Asambleja ar divu trešdaļu klātesošo un balsojušo balsu vairākumu, ieskaitot arī Jūrniecības Drošības komitejā pārstāvēto un Asamblejā klātesošo un balsojušo valdību divu trešdaļu balsu vairākumu, var grozījuma pieņemšanas brīdī ierosināt noteikt, ka tam ir tik svarīga nozīme, ka jebkura Līgumslēdzēja Valdība, kura izdarījusi paziņojumu saskaņā ar šā punkta c) apakšpunktu un kura nav akceptējusi šo grozījumu divpadsmit mēnešu laikā, skaitot no datuma, kad tas stājies spēkā, pēc šā termiņa beigām pārstāj būt šīs Konvencijas dalībvalsts. Šāds noteikums stājas spēkā, ja to akceptē divas trešdaļas Līgumslēdzēju Valdību;
e) nekas šajā pantā neliedz Līgumslēdzējai Valdībai, kura saskaņā ar šo punktu ir izvēlējusies noteiktu procedūru šīs Konvencijas grozījuma iesniegšanai, jebkurā laikā izvēlēties citu procedūru, kādu tā uzskatīs par vēlamāku saskaņā ar šā panta 2. vai 4. punktu.
4. Konferencē pieņemts grozījums:
a) pēc Līgumslēdzējas Valdības lūguma, kuru atbalsta vismaz viena trešdaļa Līgumslēdzēju Valdību, Organizācija sasauc Valdību konferenci, lai izskatītu šās Konvencijas grozījumus;
b) jebkuru grozījumu, kas šādā konferencē pieņemts ar Līgumslēdzēju Valdību klātesošo un balsojušo divu trešdaļu balsu vairākumu, Organizācija nosūta visām Līgumslēdzējām Valdībām tā akceptēšanai;
c) šāds grozījums stājas spēkā pēc divpadsmit mēnešiem, skaitot no dienas, kad to akceptējušas divas trešdaļas Līgumslēdzēju Valdību. Grozījums stājas spēkā attiecībā uz visām Līgumslēdzējām Valdībām, izņemot tās, kuras pirms tā spēkā stāšanās dienas paziņojušas, ka tās grozījumu neakceptē;
d) konference, kas sasaukta saskaņā ar šā punkta a) apakšpunktu, ar divu trešdaļu klātesošo un balsojušo balsu vairākumu var grozījuma pieņemšanas brīdī noteikt, ka tam ir tik svarīga nozīme, ka jebkura Līgumslēdzēja Valdība, kura izdarījusi paziņojumu saskaņā ar šā punkta c) apakšpunktu un kura nav akceptējusi šo grozījumu divpadsmit mēnešu laikā, skaitot no datuma, kad tas stājies spēkā, pēc šā termiņa beigām pārstāj būt šīs Konvencijas dalībvalsts.
5. Organizācija informē visas Līgumslēdzējas Valdības par grozījumiem, kas var stāties spēkā saskaņā ar šo pantu, vienlaicīgi paziņojot datumus, kurā katrs no šādiem grozījumiem stāsies spēkā.
6. Jebkura akceptēšana vai saskaņā ar šo pantu izdarīts paziņojums, tiek instrumenta veidā deponēts Organizācijā, kura paziņo visām Līgumslēdzējām Valdībām par akcepta vai paziņojuma saņemšanu.
19. pants
Denonsēšana
1. Jebkura Līgumslēdzēja Valdība var denonsēt šo Konvenciju jebkurā laikā pēc pieciem gadiem no dienas, kad Konvencija stājusies spēkā attiecībā uz šo valdību.
2. Denonsēšana tiek veikta, deponējot attiecīgu instrumentu Organizācijai, kura informē visas citas Līgumslēdzējas Valdības par katru šādu denonsēšanas instrumentu un tā saņemšanas datumu.
3. Denonsēšana stājas spēkā pēc viena gada, skaitot no dienas, kad Organizācija saņēmusi deponēšanās instrumentu, vai pēc ilgāka laika, kāds var tikt noteikts šajā instrumentā.
20. pants
Teritorijas
1. a) Apvienoto Nāciju Organizācija, ja tā pārstāv kādas teritorijas administratīvo varu, vai jebkura Līgumslēdzēja Valdība, kas ir atbildīga par kādas teritorijas starptautiskajām attiecībām, cik ātri vien iespējams konsultējas ar šo teritoriju vai veic nepieciešamos pasākumus, cenšoties paplašināt šīs Konvencijas darbību attiecībā uz šo teriotoriju, un jebkurā laikā, nosūtot Organizācijai rakstisku paziņojumu, var deklarēt, ka šī Konvencija attiecas uz šo teritoriju.
b) ar datumu, kad saņemts šāds paziņojums vai ar kādu citu datumu, kāds var būt noteikts paziņojumā, šī Konvencija pielietojama paziņojumā minētajā teritorijā.
2. a) Apvienoto Nāciju Organizācija vai jebkura Līgumslēdzēja Valdība, kas izdarījusi paziņojumu saskaņā ar šā panta 1. punktu, var jebkurā laikā pēc piecu gadu termiņa izbeigšanās, sākot ar dienu, kad Konvencija tādējādi tika attiecināta uz kādu teritoriju, nosūtot Organizācijai rakstisku paziņojumu, var deklarēt, ka šī Konvencija šajā teritorijā pārstāj darboties.
b) šī Konvencija pārstāj darboties jebkurā šajā paziņojumā minētajā teritorijā pēc viena gada vai paziņojumā noteikta ilgāka laika, skaitot no dienas, kad Organizācija saņēmusi attiecīgo paziņojumu.
3. Organizācija informē visas Līgumslēdzējas Valdības par šīs Konvencijas pielietošanu jebkurā teritorijā saskaņā ar šā panta 1. punktu un par tās pielietošanas izbeigšanu saskaņā ar šā panta 2. punktu, katrā gadījumā uzrādot datumu, kurā šī Konvencija sāk vai beidz darboties.
21. pants
Deponēšana un reģistrācija
1. Šīs Konvencijas depozitārijs ir Organizācija un Organizācijas Ģenerālsekretārs Konvencijas apstiprinātas kopijas nosūta visām valdībām, kuras ir parakstījušas Konvenciju, kā arī valdībām, kuras tai pievienojušās.
2. Tiklīdz šī Konvencija stājas spēkā, Organizācijas Ģenerālsekretārs saskaņā ar Apvienoto Nāciju Organizācijas Statūtu 102. pantu nosūta tās tekstu Apvienoto Nāciju Organizācijas Sekretariātam reģistrēšanai un publicēšanai.
22. pants
Valodas
Šī Konvencija ir sastādīta vienā eksemplārā angļu un franču valodā, turklāt abi teksti ir vienlīdz autentiski. Tiks sagatavoti tās oficiālie tulkojumi krievu un spāņu valodā un deponēti kopā ar parakstīto oriģinālu.
TO APLIECINOT, apakšā parakstījušies savu valdību pienācīgi pilnvaroti pārstāvji ir parakstījuši šo Konvenciju.
Parakstīts Londonā 1969. gada divdesmit trešajā jūnijā.
(Seko delegāciju paraksti)
1. noteikums
Vispārīgie noteikumi
1. Kuģa tilpība sastāv no bruto tilpības un neto tilpības.
2. Bruto tilpība un neto tilpība jāmēra saskaņā ar šiem noteikumiem.
3. Jauna tipa kuģiem, kuru konstruktīvo īpatnību dēļ šo noteikumu pielietošana ir neiespējama vai nelietderīga, bruto un neto tilpību nosaka pēc Administrācijas ieskatiem. Šajā gadījumā Administrācijas pienākums ir paziņot Organizācijai precīzas ziņas par pielietoto aprēķināšanas metodi, lai informētu Līgumslēdzējas Valdības.
2. noteikums
Pielikumā lietoto terminu definīcijas
1. Augšējais klājs:
Augšējais klājs ir pats augstākais nepārtrauktais klājs, kas pakļauts jūras un laika apstākļu iedarbībai, kam atklātajās daļās ir jūras iedarbībā ūdens necaurlaidīgas visu atveru pastāvīgas aizveres, un zemāk par kuru visas atveres kuģa bortos apgādātas ar pastāvīgām ierīcēm ūdens necaurlaidīgai aizvēršanai.
Uz kuģiem, kuru augšējam klājam ir pakāpiens, par augšējo klāju tiek pieņemta pati zemākā atklātā klāja līnija un tās turpinājums paralēli klāja augšējai daļai.
2. Teorētiskais borta augstums:
a) teorētiskais borta augstums ir vertikālais attālums, kas tiek mērīts no ķīļa augšējās malas līdz augšējā klāja zemākajai malai pie borta. Uz koka vai kompozītkuģiem šo attālumu mēra no zemākās ķīļa rievas malas. Ja kuģa mideļa zemākās daļas forma ir ieliekta vai arī ir biezas rievu joslas, tad borta augstumu mēra no dibena plakanās daļas turpinājuma un ķīļa sānu malas krustpunkta;
b) kuģiem, kuriem ir ieapaļš klāja un borta savienojums, teorētiskais borta augstums jāmēra līdz klāja līnijas un borta apšuvuma teorētiskā turpinājuma krustpunktam;
c) gadījumā, ja augšējam klājam ir pakāpiens un klāja paaugstinātā daļa atrodas virs teorētiskā borta augstuma mērāmā punkta, tad teorētiskā borta augstums jāmēra līdz nosacītai līnijai, kas ir klāja zemākās daļas turpinājums paralēli paaugstinātai daļai.
3. Platums:
Platums ir vislielākais kuģa platums, kas tiek mērīts kuģa garuma vidusdaļā starp brangu ārējām malām kuģiem ar metāla apšuvumu un starp korpusa ārējām virsmām kuģiem, kuru apšuvums ir no cita materiāla.
4. Slēgtās telpas:
Slēgtās telpas ir visas telpas, kuras ierobežo kuģa korpuss, pastāvīgās vai izjaucamās šķērssienas vai arī starpsienas, klāji vai segumi, izņemot pastāvīgās vai pārvietojamās audekla nojumes. Pārtraukumi klājā, atveres kuģa korpusā, klājā vai kādas telpas pārsegā jebkādās starpsienu telpās vai telpu starpsienās, kā arī barjeru vai starpsienu trūkums nevar būt par iemeslu, lai šo telpu nevarētu uzskatīt par slēgtu telpu.
5. Neiekļautās telpas:
Neatkarīgi no šā noteikuma 4. punkta, telpas, kas ir norādītas šā punkta a), b), c), d), e) apakšpunktos, jāuzskata par neiekļautajām telpām un tās nedrīkst ieskaitīt slēgto telpu tilpumā, izņemot gadījumu, kad šāda telpa atbilst vismaz vienam no trim apstākļiem, lai šo telpu uzskatītu par slēgtu telpu:
- telpa aprīkota ar plauktiem (sastatnēm) vai citām ierīcēm kravas un apgādes novietošanai un nostiprināšanai;
- atver es ir aprīkotas ar jebkuriem aizvēršanas līdzekļiem;
- konstrukcija paredz iespēju aizvērt šādas atveres;
a) (i) telpa būves iekšpusē, pretī gala atverei, kas plešas no klāja līdz klājam (neskaitot piekaramo plāksni, kuras augstums nepārsniedz 25 mm klāja šķērssijas augstumu), ja šīs atveres platums vienāds vai lielāks par 90 % no klāja atveres līnijas. Šos nosacījumus jāpielieto tā, lai izslēgtu no slēgtām telpām tikai to telpu, kura atrodas starp faktisko gala atveri un līniju, kas ir paralēla līnijai vai atveres plaknei attālumā no atveres, kas vienāds pusei no klāja platuma pa šo atveres līniju (1. pielikuma 1. zīm.);
a) (ii) ja telpas platums kļūst mazāks par 90% no klāja platuma izvietojuma īpatnību dēļ, izņemot ārējā apšuvuma sašaurināšanos, tad no slēgtām telpām jāizslēdz tikai telpa, kura atrodas starp atveres līniju un paralēlo līniju, kura novilkta caur krustpunktu, kur garenvirziena šķērsgriezumā atveres platums kļūst vienāds vai mazāks par 90% no klāja platuma (1. pielikuma 2., 3., 4. zīm.);
a) (iii) ja divas telpas, kuru neiekļaušana atļauta saskaņā ar a) (i) vai a) (ii) apakšpunktiem, ir atdalītas ar atklātu atstarpi (netiek ņemts vērā falšborts vai margas), tad šādu izņēmumu nedrīkst veikt, ja atstarpe starp divām telpām ir mazāka par pusi no klāja platuma šādas atstarpes zonā (1. pielikuma 5., 6. zīm.);
b) telpa, kura pakļauta jūras un laika apstākļu iedarbībai zem augstāk izvietotiem klāja segumiem, kuriem nav cita savienojuma ar kuģa korpusu no ārpuses, izņemot statņus, kas ir nepieciešami tā atbalstīšanai. Šādās telpās var būt uzstādītas margas vai falšborts un piekaramā plātne vai arī uzstādītas statnes gar kuģa bortiem ar nosacījumu, ka attālums starp virsmu un piekaramo plātni ir lielāks par 0.75 m (2,5 pēdas) vai vienu trešdaļu telpas augstuma, skatoties, kas ir lielāks (1. pielikuma 7. zīm.);
c) telpa būvē, kas plešas no borta līdz bortam un kas atrodas tieši pretī atverēm, kuru augstums ir lielāks par 0.75 m (2,5 pēdas) vai vienu trešdaļu būves augstuma, skatoties kas ir lielāks. Ja šādai būvei ir atvere tikai vienā bortā, tad telpai, kuru neiekļauj slēgto telpu tilpumā, jābūt ierobežotai virzienā no atveres uz diametrālo plakni ne vairāk kā par pusi no klāja platuma šīs atveres zonā (1. pielikuma 8. zīm.);
d) telpa būvēs, kas atrodas tieši zem augstāk izvietotā klāja atveres, ja šī atvere ir pakļauta laika apstākļu iedarbībai un telpa, kuru neiekļauj aizvērto telpu tilpumā, ir ierobežota ar atveres laukumu (1. pielikuma 9. zīm.);
e) padziļinājums būves robežstarpsienā, kas tiek pakļauts laika apstākļu ietekmei un kura atveres plešas no klāja līdz klājam bez aizvēršanas līdzekļiem, ja padziļinājuma iekšējais platums ir mazāks par tā ieejas platumu un dziļums montāžas iekšienē ir mazāks par tā divkāršo platumu pie ieejas (1. pielikuma 10. zīm.).
6. Pasažieris:
Pasažieris ir jebkura persona, izņemot:
a) kuģa kapteini vai apkalpes locekļus vai citas personas, kuras strādā vai kurām ir jebkura veida nodarbošanās, kas saistīta ar šā kuģa darbu;
b) bērns, kura vecums ir mazāks par vienu gadu.
7. Kravas telpas:
Kravas telpas, kuras pieskaita, aprēķinot neto tilpību, ir slēgtās telpas, kas piemērotas kravas pārvadāšanai, kuru izkrauj no kuģa, ar noteikumu, ka šīs telpas bija pieskaitītas, aprēķinot bruto tilpību, tām ir patstāvīgs marķējums CC (cargo comparment), kuru izvieto redzamā vietā un burtu augstumam jābūt ne mazākam par 100 mm (4 collas).
8. Necaurlaidība jūras ietekmē:
Necaurlaidība jūras ietekmē nozīmē, ka jebkuros jūras apstākļos ūdens neiekļūst kuģa iekšpusē.
3. noteikums
Bruto tilpība
Kuģa bruto tilpību (GT) nosaka pēc šādas formulas:
GT = K1V
kur, V = kuģa visu slēgto telpu kopējais tilpums kubikmetros
K1 = 0,2 + 0,02log10V
(vai tiek ņemts no 1. pielikuma 2. papildinājuma tabulas).
4. noteikums
Neto tilpība
1. Kuģa neto tilpību (NT) nosaka pēc šādas formulas:
,
kur,
a) koeficientu
nedrīkst ņemt lielāku par vienību;
b) nedrīkst ņemt mazāku par 0,25 GT; un
c) NT nedrīkst ņemt mazāku par 0,30 GT un kurā:
Vc = kravas telpu kopējais tilpums kubikmetros (m3),
K2 = 0,2 + 0,02 log10Vc
(vai tiek ņemts no 1. pielikuma 2. papildinājuma tabulas)
K3 = ,
D = kuģa teorētiskā borta augstums kuģa garuma vidusdaļā, kā to nosaka 2. noteikuma 2. punkts,
d = kuģa teorētiskā iegrime kuģa garuma vidusdaļā, kā to nosaka šā noteikuma 2. punkts,
N1 = pasažieru skaits kajītēs, kurās ir ne vairāk kā astoņas gultas vietas,
N2 = pārējo pasažieru skaits,
N1 + N2 = kopējais pasažieru skaits, kādu kuģim ir atļauts pārvadāt, kā tas ir norādīts kuģa pasažieru sertifikātā; ja N1 + N2 ir mazāk par 13, tad N1 un N2 jāņem vienādi ar 0,
GT = kuģa bruto tilpība, kas noteikta saskaņā ar 3. noteikuma nosacījumiem.
2. Kuģa teorētiskā iegrimei (d), kas minēta šā noteikuma 1. punktā, jābūt vienai no šādām iegrimēm:
a) kuģiem, uz kuriem attiecas spēkā esošā Starptautiskā konvencija par kravas zīmi — iegrime, kas atbilst vasaras kravas zīmei (ne koka kravas zīmei), kas noteikta saskaņā ar šo Konvenciju;
b) pasažieru kuģiem — iegrime, kas atbilst pašai dziļākajai kravas zīmes atzīmei, kas noteikta saskaņā ar spēkā esošo Starptautisko konvenciju par cilvēka dzīvības drošību uz jūras (SOLAS) vai citu starptautisko vienošanos, kur tas pielietojams;
c) kuģiem, uz kuriem neattiecas Starptautiskā konvencija par kravas zīmi, bet kuriem kravas zīme ir noteikta saskaņā ar nacionālajām prasībām, - iegrime, kas atbilst šādā veidā noteiktai vasaras kravas zīmei;
d) maksimālā atļautā iegrime kuģiem, kuriem nav noteikta kravas zīme, bet kuru iegrime ir ierobežota saskaņā ar nacionālajām prasībām;
e) citiem kuģiem — 75 % no teorētiskā borta augstuma kuģa garuma vidusdaļā, kā to nosaka 2. noteikuma 2. punkts.
5. noteikums
Neto tilpības izmaiņas
1. Ja kuģi raksturojošie lielumi, tādi kā V, Vc, d, N1 vai N2, kā definēts 3. un 4. noteikumā, ir izmainījušies un, ja šīs izmaiņas palielina neto tilpību, kas noteikta atbilstoši 4. noteikuma prasībām, kuģa neto tilpība atbilstoši šiem jaunajiem kuģi raksturojošiem lielumiem ir nekavējoši jānosaka un jāpielieto.
2. Kuģim, uz kuru vienlaicīgi nozīmētas kravas zīmes, kas norādītas 4. noteikuma 2.a) un 2.b) punktos, jānosaka tikai viena neto tilpība, kas noteikta atbilstoši 4. noteikumam un tāda tilpība būs tilpība, kas pielietojama atbilstošai noteiktai kravas zīmei pārvadājumiem, kuros šis kuģis ir iesaistīts.
3. Ja kuģi raksturojošie lielumi, tādi kā V, Vc, d, N1 vai N2, kuri definēti 3. un 4. noteikumā, ir izmainījušies vai, ja atbilstošā noteiktā kravas zīme, kas norādīta šā noteikuma 2. punktā, ir izmainījusies sakarā ar izmaiņām pārvadājumos, ko veic kuģis un šīs izmaiņas samazina tā neto tilpību, kas noteikta atbilstoši 4. noteikumam, tad jaunu Starptautiskās tilpības apliecību (1969), kas norāda tādā veidā noteikto neto tilpību, ir jāizsniedz ne ātrāk kā pēc divpadsmit mēnešiem, skaitot no dienas, kad tika izsniegta iepriekšējā apliecība; tomēr šī prasība nav jāievēro:
a) ja kuģi pārreģistrē zem citas valsts karoga vai,
b) ja kuģis pēc Administrācijas domām tiek lielā mērā pakļauts konstruktīvām izmaiņām vai modifikācijai, tādām kā virsbūves noņemšana, kas prasa kravas zīmes izmaiņas, vai
c) attiecībā uz pasažieru kuģiem, kuri speciālos pārvadājumos tiek nodarbināti, lai pārvadātu lielu daudzumu pasažieru bez gultas vietām, piemēram svētceļotājus.
6. noteikums
Apjomu aprēķināšana
1. Visi apjomi, kas iekļauti neto tilpības un bruto tilpības aprēķinos, ir jāmēra, neatkarīgi no izolācijas vai tamlīdzīgām lietām, līdz korpusa apšuvuma vai konstruktīvā ierobežojošā apšuvuma iekšpusei uz kuģiem, kas būvēti no metāla un līdz korpusa sienas ārpusei vai konstruktīvās apdares sienas iekšpusei kuģos, kas būvēti no citiem materiāliem.
2. Izvirzīto daļu apjomi ir jāiekļauj kopējā apjomā.
3. Telpu apjomi, kas atklāti jūras iedarbībai, var tikt izslēgti no kopējā apjoma.
7. noteikums
Mērīšana un aprēķins
1. Visi mērījumi, kas tiek veikti, aprēķinot apjomus, jāveic ar precizitāti līdz tuvākajam centimetram vai pēdas divdesmitajai daļai.
2. Apjoms ir jāaprēķina ar vispārpieņemtām aprēķināšanas metodēm un precizitāti atbilstoši telpai, kas apmierina Administrāciju.
3. Aprēķinam ir jābūt pietiekami detalizētam, lai būtu iespējams to viegli pārbaudīt.
1. pielikums
1.
pielikuma
1. papildinājums
Zīmējumi, kas attiecas uz noteikumiem 2.5
Apzīmējumi:
O = neiekļaujamās telpas
C = slēgtās telpas
I = telpas, kas jāuzskata par slēgtajām telpām
Svītrotās daļas ir jāuzskata par slēgtām telpām.
B = klāja platums atveres vietā. Uz kuģiem ar ieapaļu klāja un borta savienojumu, platums mērāms, kā tas norādīts 11. zīmējumā.
Noteikums 2.5. a) i)
1. zīm.
Noteikums 2.5. a)ii)
2. zīm.
Noteikums 2.5. a)ii)
3. zīm.
Noteikums 2.5. a)ii)
4. zīm.
Noteikums 2.5. a)iii)
5. zīm.
6. zīm.
Noteikums 2.5. b)
7. zīm.
Noteikums 2.5. c)
8. zīm.
Noteikums 2.5. d)
9. zīm.
Noteikums 2.5. e)
10. zīm.
11. zīm.
1. pielikuma
2. papildinājums
Koeficienti K1 un K2, kas attiecas uz 3. un 4.1. noteikumiem
Starptautiskā tilpības apliecība (1969)
Konference pieņēma šādas rekomendācijas:
1. rekomendācija. 1969. gada Starptautiskās konvencijas par kuģu tilpības mērīšanu pieņemšana
Konference rekomendē, lai valdības pēc iespējas īsā laikā pieņem 1969. gada Starptautisko konvenciju par kuģu tilpības mērīšanu.
2. rekomendācija. Bruto un neto tilpības pielietošana
Konference rekomendē, lai bruto un neto tilpība, kas noteiktas atbilstoši 1969. gada Starptautiskās konvencijas par kuģa tilpības mērīšanu prasībām, tiktu pieņemtas kā parametri visos gadījumos, kur tās tiek pieminētas konvencijās, likumos un noteikumos, kā arī kā pamats statistiskiem datiem attiecībā uz tirdzniecības kuģu kopējo un izmantojamo ietilpību. Turklāt atzīstot, ka pārejai no esošām tilpības mērīšanas sistēmām uz jaunu sistēmu, kas noteikta šajā Konvencijā, vajadzētu pēc iespējas mazāk skart tirdzniecības kuģošanas un ostu darbības ekonomiku, konference rekomendē, lai Līgumslēdzējvalstu valdības, ostu pārvaldes un visi citi dienesti, kas izmanto tilpību kā pamatu nodevu aprēķināšanai, rūpīgi apsvērtu, kurš parametrs tiem ir vispieņemamākais, ņemot vērā esošo praksi.
3. rekomendācija. Terminu definīciju nemainīga interpretācija
Konference, atzīstot, ka dažu terminu definīcijas, kas izmantotas 1969. gada Starptautiskajā konvencijā par kuģa tilpības mērīšanu, tādas kā "garums", "platums", "pasažieris", "necaurlaidība jūras ietekmē", ir identiski to definīcijām citās konvencijās, kuru depozitārijs ir Starpvaldību Jūras Konsultatīvā Organizācija, rekomendē Līgumslēdzējvalstu valdībām veikt nepieciešamās darbības, lai nodrošinātu, ka identiskās terminu definīcijas, kas tiek izmantotas šajās konvencijās, tiktu atbilstoši un nemainīgi interpretētas.