
Latvijas Republikas valdības un Krievijas
Federācijas valdības
VIENOŠANĀS
par Latvijas Republikas vēstniecības Krievijas Federācijā un
Krievijas Federācijas vēstniecības Latvijas Republikā
izvietošanas nosacījumiem
Latvijas Republikas valdība un Krievijas Federācijas valdība, turpmāk tekstā sauktas par Pusēm,
vēloties nodrošināt atbilstošus uzturēšanās un darba apstākļus Latvijas Republikas vēstniecībai Krievijas Federācijā un Krievijas Federācijas vēstniecībai Latvijas Republikā,
ņemot vērā 1961.gada 18.aprīļa Vīnes konvencijas par diplomātiskajām attiecībām normas,
ir vienojušās par sekojošo.
1.pants
1.1. Krievijas Federācijas vēstniecības Latvijas Republikā izvietošanas vajadzībām Latvijas Puse nodod Krievijas Federācijai īpašumā ēkas un būves:
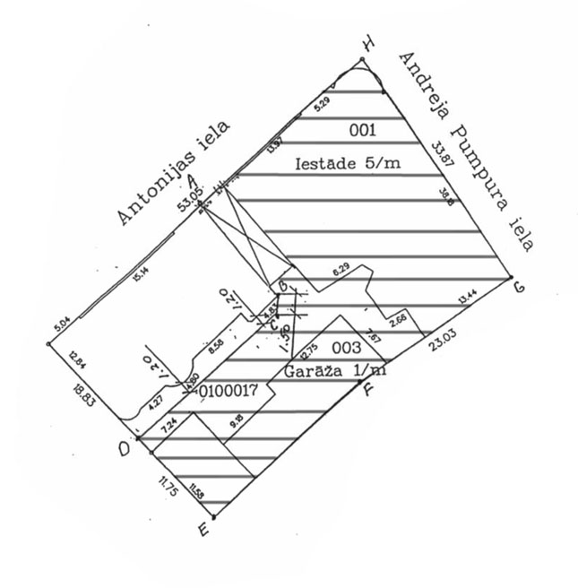
- adrese: Rīgā, Pumpura ielā 1 (Antonijas ielā 6), ēkas daļu 001, ar kopējo platību 3132,1 m² un garāžu 003, ar kopējo platību 212,7 m² (1.pielikums);
- adrese: Rīgā, Ezermalas ielā 34, visu ēku 001, ar kopējo platību 2507,5 m², sūkņu staciju 002, ar kopējo platību 43,2 m² (2.pielikums).
1.2. Latvijas Puse nodod Krievijas Federācijai nomā uz 99 gadiem ar nomas maksu 1 lats gadā zemes gabalus, uz kuriem atrodas šā panta 1.1. punktā minētās ēkas un būves:
- adrese: Rīgā, Pumpura ielā 1 (Antonijas ielā 6), zemes gabala ar kadastra numuru 01000100017 „B” daļa 1170,0 m² platībā (3.pielikums);
- adrese: Rīgā, Ezermalas ielā 34, kadastra numurs 01000842029, platība 4470 m² (4.pielikums);
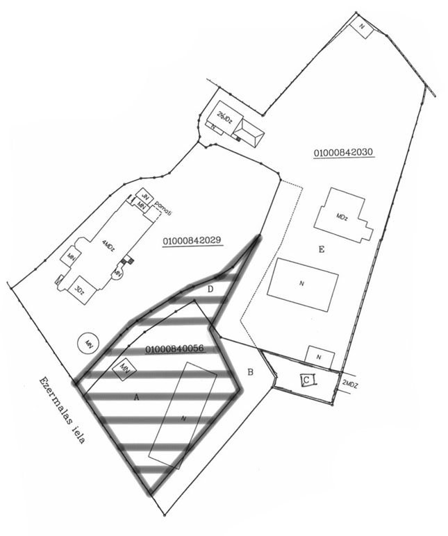
- adrese: Rīgā, Ezermalas ielā 34a, zemes gabala ar kadastra numuru 01000840056 „A” un „D” daļas 2845,0 m² platībā, pēc piebraucamā ceļa izbūves („B”) zemes gabals Ezermalas ielā 34a tiks apvienots ar zemes gabalu Ezermalas ielā 34 (5.pielikums).
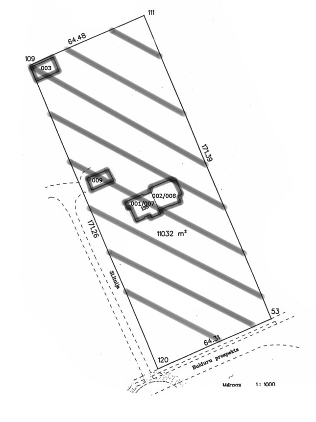
1.3. Krievijas Federācijas vēstnieka rezidences vajadzībām Latvijas Puse nodod Krievijas Federācijai nomā uz 99 gadiem ar nomas maksu 1 lats gadā ēkas un būves šādā adresē: Jūrmalā, Bulduru prospektā 135, ēka 001, ēka 002, pirts 003, pagrabs 007, pagrabs 008 un garāža 009, ar kopējo platību 1060,9 m² un zemes gabalu ar kadastra numuru 13000042801, 11032,0 m² platībā (6.pielikums).
Pēc Vienošanās spēkā stāšanās Pušu atbildīgās institūcijas iespējami īsā laikā noslēgs atbilstošus nododamo zemes gabalu nomas līgumus.
2.pants
2.1. Krievijas Puse nodod Latvijas Republikai īpašumā ēkas un būves, kas tiek izmantotas Latvijas Republikas vēstniecības Krievijas Federācijā vajadzībām, Maskavā, Čapligina ielā 3, ēka Nr.1, ēka Nr.2, ēka Nr.4, ēka Nr.6, ar kopējo platību 7832,8 m² (7.pielikums).
2.2. Krievijas Puse nodod Latvijas Republikai nomā uz 99 gadiem ar nomas maksu 1 rublis gadā zemes gabalu ar kopējo platību 9181,3 m², uz kura izvietotas 2.1.punktā minētās ēkas un būves (8.pielikums).
Pēc Vienošanās spēkā stāšanās Pušu atbildīgās institūcijas iespējami īsā laikā noslēgs atbilstošu nododamā zemes gabala nomas līgumu.
3.pants
Pēc Vienošanās stāšanās spēkā Puses iespējami īsā laikā savstarpēji saskaņotos termiņos atbilstoši katras valsts normatīvajiem aktiem nodrošinās īpašumtiesību un nomas tiesību noformēšanu bez maksas uz šīs Vienošanās 1.panta 1.1., 1.2., 1.3. punktos un 2.panta 2.1. un 2.2. punktos minētajām ēkām, būvēm un zemi.
4.pants
4.1. Ja Vienošanās 1.panta 1.1.punktā un 2.panta 2.1.punktā minētās ēkas un būves tiek pārdotas, tad Pusei, kuras valsts teritorijā tās atrodas, ir pirmpirkuma tiesības.
Vienošanās 1.panta 1.1.punktā un 2.panta 2.1.punktā minēto ēku un būvju pārdošana iespējama vienīgi pēc saskaņošanas ar Pusi, kuras valsts teritorijā tās atrodas.
Vienošanās darbība automātiski tiek pārtraukta attiecībā uz pārdotajām ēkām un būvēm.
4.2. Vienošanās 1.panta 1.1.punktā un 2.panta 2.1.punktā minēto ēku un būvju nodošana nomā trešajai pusei iespējama vienīgi pēc saskaņošanas ar Pusi, kuras valsts teritorijā tās atrodas.
Uz ēkām, būvēm vai to daļu, kas nodotas nomā, uz visu nomas termiņu netiek attiecinātas privilēģijas un imunitātes, kuras noteiktas 1961.gada 18.aprīļa Vīnes konvencijā par diplomātiskajām attiecībām. Izbeidzot nomas līgumu un atsākot minētā nekustamā īpašuma izmantošanu diplomātiskajām vajadzībām, minētās privilēģijas un imunitātes atkal tiek attiecinātas uz šo īpašumu.
4.3. Zemes gabalu, uz kuriem atrodas pārdošanai vai nomai piedāvātie nekustamie īpašumi, lietošanas tiesības tiek noformētas Pusēm savstarpēji saskaņojot, atbilstoši tās Puses, kuras valsts teritorijā tie atrodas, normatīvajiem aktiem.
5.pants
Puses garantē, ka Vienošanās 1. un 2.pantā minētie nekustamie īpašumi nav apgrūtināti ar parādiem vai citiem apgrūtinājumiem un pret tiem nevar tikt vērstas trešo pušu pretenzijas.
6.pants
Saskaņā ar 1961.gada 18.aprīļa Vīnes konvencijas par diplomātiskajām attiecībām 23.panta pirmo punktu Vienošanās 1. un 2.pantā minētie nekustamie īpašumi ir atbrīvoti no to aplikšanas ar jebkura veida valsts vai pašvaldības nodokļiem un nodevām, izņemot maksu par noteiktiem pakalpojumu veidiem.
7.pants
7.1. Maksājumus par komunālajiem pakalpojumiem (elektrību, apkuri, karstā un aukstā ūdens padevi, gāzi un citiem), ēkās ierīkotajām sakaru ierīcēm, kā arī Vienošanās 1. un 2.pantā minēto ēku un būvju kārtējo remontu un ēku un būvju uzturēšanu, veic Puse, kuras īpašumā ir šīs ēkas un būves, atbilstoši normām un tarifiem, kas ir spēkā valstī, kuras teritorijā atrodas nekustamais īpašums.
7.2. Maksājumus par komunālajiem pakalpojumiem (elektrību, apkuri, karstā un aukstā ūdens padevi, gāzi un citiem), ēkās ierīkotajām sakaru ierīcēm, kā arī Vienošanās 1.panta 1.3.punktā minēto ēku un būvju kārtējo remontu un ēku un būvju uzturēšanu, veic Puse, kura nomā šīs ēkas un būves, atbilstoši normām un tarifiem, kas ir spēkā valstī, kuras teritorijā atrodas nekustamais īpašums.
8.pants
8.1. Vienošanās 1.panta 1.1.punktā un 2.panta 2.1. punktā minēto ēku un būvju rekonstrukciju veic Puse, kuras īpašumā tās nodotas un atbilstoši projektiem, kas saskaņoti, ievērojot tās valsts normatīvos aktus, kuras valsts teritorijā atrodas nekustamais īpašums.
8.2. Vienošanās 1.panta 1.3.punktā minēto ēku un būvju rekonstrukciju, kā arī jaunu ēku un būvju celtniecība uz zemesgabaliem, kas minēti Vienošanās 1.panta punktos 1.2., 1.3. un 2.panta punktā 2.2., veic Puse, kura nomā ēkas, būves un zemes gabalus un atbilstoši projektiem, kas saskaņoti, ievērojot tās valsts normatīvos aktus, kuras valsts teritorijā atrodas nekustamais īpašums.
8.3. Puse, kura nodod Vienošanās 1. un 2.pantā minētos nekustamos īpašumus, atļauj ievest rekonstrukcijai un celtniecībai nepieciešamos materiālus un iekārtas, kā arī tos izvest saskaņā ar noteikumiem, kādi paredzēti 1961.gada 18.aprīļa Vīnes konvencijā par diplomātiskajām attiecībām, atbrīvojot no muitas nodevām, nodokļiem un ar tiem saistītiem maksājumiem, izņemot samaksu par glabāšanu, pārvadāšanu un tamlīdzīgiem pakalpojumiem.
8.4. Puse, kuras valsts saņem īpašumā Vienošanās 1. un 2.pantā minētos nekustamos īpašumus, var nosūtīt uz savas valsts vēstniecību rekonstrukcijas un celtniecības sagatavošanai nepieciešamo tehnisko personālu un celtniekus, par viņu iespējamo skaitu iepriekš savlaicīgi informējot otru Pusi.
9.pants
Vienošanās var tikt grozīta vai papildināta Pusēm par to vienojoties rakstveidā.
10.pants
Ar Vienošanās izpildi un interpretāciju saistītie strīdīgie jautājumi starp Pusēm tiks risināti diplomātiskā ceļā.
11.pants
Vienošanās stājas spēkā pēdējā pa diplomātiskiem kanāliem saņemtā rakstiskā paziņojuma saņemšanas datumā par to, ka Puses izpildījušas nepieciešamās iekšējās procedūras, lai Vienošanās varētu stāties spēkā.
Parakstīta Maskavā, 2010.gada 20.decembrī divos eksemplāros, katrs latviešu un krievu valodā, abiem tekstiem ir vienāds spēks.
| LATVIJAS REPUBLIKAS VALDĪBAS VĀRDĀ | KRIEVIJAS FEDERĀCIJAS VALDĪBAS VĀRDĀ |
| Edgars Skuja | Sergejs Lavrovs (Sergey Lavrov) |
| Latvijas Republikas ārkārtējais un pilnvarotais vēstnieks Krievijas Federācijā | Krievijas Federācijas ārlietu ministrs |
1.pielikums
Latvijas Republikas valdības un Krievijas Federācijas
valdības
vienošanās par Latvijas Republikas vēstniecības Krievijas
Federācijā
un Krievijas Federācijas vēstniecības Latvijas Republikā
izvietošanas nosacījumiem
Būves novietnes shēma
Rīga, Pumpura iela 1 (Antonijas iela 6)
2.pielikums
Latvijas Republikas valdības un Krievijas Federācijas
valdības
vienošanās par Latvijas Republikas vēstniecības Krievijas
Federācijā
un Krievijas Federācijas vēstniecības Latvijas Republikā
izvietošanas nosacījumiem
Rīga, Ezermalas iela 34
3.pielikums
Latvijas Republikas valdības un Krievijas Federācijas
valdības
vienošanās par Latvijas Republikas vēstniecības Krievijas
Federācijā
un Krievijas Federācijas vēstniecības Latvijas Republikā
izvietošanas nosacījumiem
Rīga, Pumpura iela1 (Antonijas iela 6)
4.pielikums
Latvijas Republikas valdības un Krievijas Federācijas
valdības
vienošanās par Latvijas Republikas vēstniecības Krievijas
Federācijā
un Krievijas Federācijas vēstniecības Latvijas Republikā
izvietošanas nosacījumiem
Rīga, Ezermalas iela 34
5.pielikums
Latvijas Republikas valdības un Krievijas Federācijas
valdības
vienošanās par Latvijas Republikas vēstniecības Krievijas
Federācijā
un Krievijas Federācijas vēstniecības Latvijas Republikā
izvietošanas nosacījumiem
Rīga, Ezermalas iela 34a
6.pielikums
Latvijas Republikas valdības un Krievijas Federācijas
valdības
vienošanās par Latvijas Republikas vēstniecības Krievijas
Federācijā
un Krievijas Federācijas vēstniecības Latvijas Republikā
izvietošanas nosacījumiem
Jūrmala, Bulduru prospekts 135
7.pielikums
Latvijas Republikas valdības un Krievijas Federācijas
valdības
vienošanās par Latvijas Republikas vēstniecības Krievijas
Federācijā
un Krievijas Federācijas vēstniecības Latvijas Republikā
izvietošanas nosacījumiem
Maskava, Čapligina iela 3
8.pielikums
Latvijas Republikas valdības un Krievijas Federācijas
valdības
vienošanās par Latvijas Republikas vēstniecības Krievijas
Federācijā
un Krievijas Federācijas vēstniecības Latvijas Republikā
izvietošanas nosacījumiem
Maskava, Čapligina iela 3