
Ministru kabineta noteikumi Nr.202
Rīgā 2011.gada 15.martā (prot. Nr.16 32.§)
Grozījumi Ministru kabineta 2008.gada 7.jūlija noteikumos Nr.514 "Valsts un Eiropas Savienības atbalsta piešķiršanas kārtība kompensāciju maksājumu veidā zivsaimniecības attīstības pasākumam "Sociāli ekonomiskie pasākumi""
Izdoti saskaņā ar Lauksaimniecības un lauku
attīstības likuma
5.panta ceturto daļu
Izdarīt Ministru kabineta 2008.gada 7.jūlija noteikumos Nr.514 "Valsts un Eiropas Savienības atbalsta piešķiršanas kārtība kompensāciju maksājumu veidā zivsaimniecības attīstības pasākumam "Sociāli ekonomiskie pasākumi"" (Latvijas Vēstnesis, 2008, 106.nr.; 2009, 30., 170., 203.nr.) šādus grozījumus:
1. Aizstāt 2.punktā vārdus "veicināt zvejniecības efektivitāti un konkurētspēju, kā arī piedāvāt iespēju priekšlaicīgi pensionēties gados veciem zvejniekiem" ar vārdiem "kompensācijas izmaksa zvejniekiem".
2. Izteikt 5.punktu šādā redakcijā:
"5. Pasākums paredz kompensācijas izmaksu zvejas kuģu apkalpes locekļiem (zvejniekiem) pēc pilnīgas zvejas darbību pārtraukšanas (turpmāk – kompensācija)."
3. Svītrot 9.punktu.
4. Svītrot 9.1 punktā vārdus "(ja saņem kompensāciju) vai pilnībā pārtrauc saimniecisko darbību vai darba tiesiskās attiecības zvejniecībā (ja saņem pirmstermiņa pensiju)".
5. Izteikt 10.1.apakšpunktu šādā redakcijā:
"10.1. projekta iesniegumu (pielikums) divos eksemplāros, no kuriem vienu atbalsta pretendents saņem atpakaļ ar Lauku atbalsta dienesta atzīmi par saņemšanu (neattiecas, ja projekta iesniegumu iesniedz elektroniska dokumenta formā);".
6. Papildināt noteikumus ar 10.5.apakšpunktu šādā redakcijā:
"10.5. atbalsta pretendenta deklarāciju saskaņā ar normatīvajiem aktiem par valsts un Eiropas Savienības atbalsta piešķiršanu lauku un zivsaimniecības attīstībai."
7. Svītrot 11. un 16.punktu.
8. Izteikt 17.punktu šādā redakcijā:
"17. Šo noteikumu 8.1., 8.2., 8.3. un 10.3.apakšpunktā minētos termiņus rēķina, sākot ar dienu, kad atbalsta pretendents pārtraucis darba tiesiskās attiecības uz kuģa, ar kuru pilnīgi pārtraukta zvejas darbība. Darba attiecību pārtraukšanas periods nepārsniedz trīs mēnešus no dienas, kad Lauku atbalsta dienestā iesniegts iesniegums par zvejas kuģa pilnīgu zvejas darbību pārtraukšanu."
9. Svītrot 18.punktu.
10. Izteikt 19.punktu šādā redakcijā:
"19. Pēc kompensācijas saņemšanas uz atkārtotu atbalstu var pretendēt ne agrāk kā pēc trijiem gadiem."
11. Izteikt 20.2.apakšpunktu šādā redakcijā:
"20.2. Valsts sociālās apdrošināšanas aģentūra sniedz informāciju par atbalsta pretendenta vai atbalsta saņēmēja aprēķinātajām valsts sociālās apdrošināšanas obligātajām iemaksām un valsts sociālās apdrošināšanas iemaksu objektu."
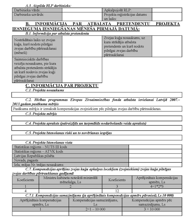
12. Izteikt pielikumu jaunā redakcijā (pielikums).
Ministru prezidents V.Dombrovskis
Zemkopības ministrs J.Dūklavs
Zemkopības ministrijas iesniegtajā redakcijā
Pielikums
Ministru kabineta
2011.gada 15.marta
noteikumiem Nr.202
"Pielikums
Ministru kabineta
2008.gada 7.jūlija
noteikumiem Nr.514
Projekta iesnieguma veidlapa
Zemkopības ministrs J.Dūklavs