
Kultūras ministrijas rīkojums Nr.2.1.-1/176
Rīgā 2010.gada 29.jūlijā
Grozījums Kultūras ministrijas 1998.gada 29.oktobra rīkojumā Nr.128 "Par Valsts aizsargājamo kultūras pieminekļu sarakstu"
Izdots saskaņā
ar Ministru kabineta 2003.gada 29.aprīļa
noteikumu Nr.241 "Kultūras ministrijas nolikums" 9.11.punktu
Pamatojoties uz likuma "Par kultūras pieminekļu aizsardzību" 14.panta otro daļu un Ministru kabineta 2003.gada 26.augusta noteikumu Nr.473 "Kārtība, kādā kultūras pieminekļi iekļaujami valsts aizsargājamo kultūras pieminekļu sarakstā un izslēdzami no valsts aizsargājamo kultūras pieminekļu saraksta" (turpmāk – Noteikumi Nr.473) 9.punktu un izvērtējot Valsts kultūras pieminekļu aizsardzības inspekcijas (turpmāk – Inspekcija) iesniegto Valsts aizsargājamo kultūras pieminekļu saraksta (turpmāk – Pieminekļu saraksts) grozījumu projektu, Kultūras ministrija ir konstatējusi:
1. Inspekcija ir iesniegusi Kultūras ministrijā rīkojuma projektu par interjera dekoratīvās apdares un 3 krāšņu Rīgā, Torņa ielā 11, (būves kadastra apzīmējums 0100 008 0101 001) (turpmāk – Objekti) iekļaušanu Pieminekļu sarakstā. Rīkojuma projektam klāt pievienoti šādi dokumenti:
1.1. Latvijas Arhitektu savienības 2010.gada 22.aprīļa vēstule Nr.53/1-3;
1.2. Izraksts no Inspekcijas Kultūras pieminekļu uzskaites komisijas 2010.gada 6.aprīļa sanāksmes protokola Nr.6/2010;
1.3. Informācija par Objektu nosaukumu;
1.4. Informācija par Objektu atrašanās vietu;
1.5. Objektu atrašanās vietas shēma topogrāfiskajā plānā;
1.6. Objektu apraksts;
1.7. Objektu fotofiksācijas materiāli;
1.8. Ziņas par Objektu īpašnieku;
1.9. Pamatojums Objektu iekļaušanai Pieminekļu sarakstā.
2. Saskaņā ar Noteikumu Nr.473 3.punktu Inspekcija ir izvērtējusi Objektu atbilstību kultūras pieminekļa statusam un ierosina tos iekļaut Pieminekļu sarakstā. Objektu īpašnieks – Latvijas Arhitektu savienība, reģ.Nr.40008005792, saskaņā ar likuma "Par kultūras pieminekļu aizsardzību" 14.panta pirmo daļu un Administratīvā procesa likuma 62.panta pirmo daļu informēts par ierosinājumu un 2010.gada 22.aprīļa vēstulē Nr.53/1-3 pausta piekrišana noteikt Objektiem valsts aizsargājama kultūras pieminekļa statusu.
3. Saskaņā ar likuma "Par kultūras pieminekļu aizsardzību" 1.pantu kultūras pieminekļi ir kultūrvēsturiskā mantojuma daļa – kultūrvēsturiskas ainavas un atsevišķas teritorijas, kā arī atsevišķi kapi, ēku grupas un atsevišķas ēkas, mākslas darbi, iekārtas un priekšmeti, kuriem ir vēsturiska, zinātniska, mākslinieciska vai citāda kultūras vērtība un kuru saglabāšana nākamajām paaudzēm atbilst Latvijas valsts un tautas, kā arī starptautiskajām interesēm. Saskaņā ar Ministru kabineta 2003.gada 26.augusta noteikumu Nr.474 "Noteikumi par kultūras pieminekļu uzskaiti, aizsardzību, izmantošanu, restaurāciju, valsts pirmpirkuma tiesībām un vidi degradējoša objekta statusa piešķiršanu" (turpmāk – Noteikumi Nr.474) 8.1.punktā noteikto Pieminekļu sarakstā kā valsts nozīmes mākslas pieminekli var iekļaut objektus ar izcilu zinātnisku, kultūrvēsturisku vai izglītojošu nozīmi – mākslas darbus vai to daļas, kuri pārstāv vēsturisko stilu mākslu un kuriem piemīt augsta mākslinieciskā vērtība (līdz 19.gadsimtam ieskaitot).
4. Objektu kultūrvēsturiskā vērtība atbilst Noteikumu Nr.474 8.1.punktā noteiktajiem kritērijiem. Krāsnis 1.stāva Sv.Jirgena torņa telpā un 2.stāva Torņa zālē ir labi saglabājušies un mākslinieciski augstvērtīgi 18.gadsimta interjera elementu paraugi, kas sniedz priekšstatu par lietišķās mākslas tendencēm Latvijā baroka periodā.
Interjera dekoratīvā apdare 2.stāva zālē ir mākslinieciski augstvērtīga liecība par 20.gadsimta 50.gados Latvijā izplatīto eklektisma stilistiku interjeru dekoratīvajā apdarē, kurā līdztekus klasicisma dekoratīvajiem elementiem tika izmantoti arī stilizēti etnogrāfiski motīvi.
Krāsns 2.stāva telpā ir labi saglabājies un mākslinieciski augstvērtīgs 18.gadsimta interjera priekšmeta paraugs, kas sniedz priekšstatu par lietišķās mākslas tendencēm Latvijā 18.gadsimta II pusē – vēlīnā baroka periodā.
5. Pamatojoties uz likuma "Par kultūras pieminekļu aizsardzību" 14.panta otro daļu un Ministru kabineta 2003.gada 26.augusta noteikumu Nr.473 "Kārtība, kādā kultūras pieminekļi iekļaujami valsts aizsargājamo kultūras pieminekļu sarakstā un izslēdzami no valsts aizsargājamo kultūras pieminekļu saraksta" 9.punktu, kā arī uz augstāk minēto konstatējumu, Kultūras ministrija nolemj:
izdarīt ar Kultūras ministrijas 1998.gada 29.oktobra rīkojuma Nr.128 "Par valsts aizsargājamo kultūras pieminekļu sarakstu" 2.punktu apstiprinātajā Valsts aizsargājamo kultūras pieminekļu sarakstā grozījumus un iekļaut Valsts aizsargājamo kultūras pieminekļu sarakstā šādus objektus:
|
8744 |
Valsts nozīmes |
Māksla |
Krāsnis (2) |
Rīga, Torņa iela 11 1.stāva Sv. Jirgena torņa telpā, 2.stāva Torņa zālē |
18.gs. I.p. |
|
8745 |
Valsts nozīmes |
Māksla |
Interjera dekoratīvā apdare (II.stāva zālē) |
Rīga, Torņa iela 11 2.stāva zālē |
1953. – 1956. |
|
8746 |
Valsts nozīmes |
Māksla |
Krāsns |
Rīga, Torņa iela 11 2.stāva telpā |
18.gs. II.p. |
6. Lēmuma pamatojums: likuma "Par kultūras pieminekļu aizsardzību" 1.pants un 14.panta otrā daļa, Administratīvā procesa likuma 13.pants, 62.panta pirmā daļa, 66.panta pirmā daļa, Ministru kabineta 2003.gada 26.augusta noteikumu Nr.474 "Noteikumi par kultūras pieminekļu uzskaiti, aizsardzību, izmantošanu, restaurāciju, valsts pirmpirkuma tiesībām un vidi degradējoša objekta statusa piešķiršanu" 8.1.punkts, Ministru kabineta 2003.gada 26.augusta noteikumu Nr.473 "Kārtība, kādā kultūras pieminekļi iekļaujami valsts aizsargājamo kultūras pieminekļu sarakstā un izslēdzami no valsts aizsargājamo kultūras pieminekļu saraksta" 3., 5. un 9.punkts, Ministru kabineta 2003.gada 29.aprīļa noteikumu Nr.241 "Kultūras ministrijas nolikums" 9.11.punkts.
7. Mēneša laikā no šī rīkojuma publicēšanas laikrakstā "Latvijas Vēstnesis" to var pārsūdzēt saskaņā ar Administratīvā procesa likuma 76.panta otro daļu un 188.panta pirmo daļu Administratīvās rajona tiesas Rīgas tiesu namā (Rīga, Antonijas iela 6, LV–1010).
Pielikumā: Objektu atrašanās vietas plāns.
Kultūras ministrs I.Dālderis
Pielikums
Kultūras ministrijas
2010.gada 29.jūlija
rīkojumam Nr.2.1.-1/176
Valsts nozīmes mākslas pieminekļu: "Krāsnis (2)", "Interjera dekoratīvā apdare (II.stāva zālē)" un "Krāsns" Rīgā, Torņu ielā 11, atrašanās vieta
Ēkas Rīgā, Torņa ielā 11, pirmā stāva plāns – "Krāsnis (2)" (valsts aizsardzības Nr.8744) Sv.Jirgena torņa telpā
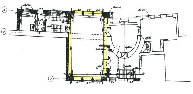
Ēkas Rīgā, Torņa ielā 11, otrā stāva plāns – "Krāsnis (2)" (valsts aizsardzības Nr.8744) Torņa zālē
Ēkas Rīgā, Torņa ielā 11, otrā stāva plāns – "Interjera dekoratīvā apdare (II.stāva zālē)" (valsts aizsardzības Nr.8745) 2.stāva zālē
Ēkas Rīgā, Torņa ielā 11, otrā stāva plāns – "Krāsns" (valsts aizsardzības Nr.8746) 2.stāva telpā