
Ministru kabineta noteikumi Nr.1185
Rīgā 2009.gada 13.oktobrī (prot. Nr.69 47.§)
Grozījumi Ministru kabineta 2008.gada 23.septembra noteikumos Nr.792 “Valsts un Eiropas Savienības atbalsta piešķiršanas, administrēšanas un uzraudzības kārtība pasākuma “Infrastruktūra, kas attiecas uz lauksaimniecības un mežsaimniecības attīstību un pielāgošanu” īstenošanai”
Izdoti saskaņā ar Lauksaimniecības un lauku attīstības likuma 5.panta ceturto un septīto daļu
Izdarīt Ministru kabineta 2008.gada 23.septembra noteikumos
Nr.792 “Valsts un Eiropas Savienības atbalsta piešķiršanas,
administrēšanas un uzraudzības kārtība pasākuma “Infrastruktūra,
kas attiecas uz lauksaimniecības un mežsaimniecības attīstību un
pielāgošanu” īstenošanai” (Latvijas Vēstnesis, 2008, 159.nr.)
šādus grozījumus:
1. Svītrot 2.punktā vārdus “atklātu projektu iesniegumu konkursu veidā”.
2. Izteikt 12.punktu šādā redakcijā:
“12. Izmaksu sadali, norēķinu kārtību starp kopprojekta dalībniekiem un saistības, kas izriet no projekta īstenošanas, nosaka kopprojekta līgumā.”
3. Svītrot 14.punktu.
4. Svītrot 15.5.apakšpunktu.
5. Papildināt II nodaļu ar 16.1 punktu šādā redakcijā:
“16.1 Valsts sabiedrības ar ierobežotu atbildību “Zemkopības ministrijas nekustamie īpašumi” projektu iesniegumus Lauku atbalsta dienests pieņem bez kārtu izsludināšanas šo noteikumu 22.punktā noteiktā finansējuma apmērā.”
6. Aizstāt 22.punktā skaitli “20 000 000” ar skaitli “17 900 000”.
7. Aizstāt 24.2.apakšpunktā skaitli “12 %” ar skaitli “15 %”.
8. Izteikt 29. un 30.punktu šādā redakcijā:
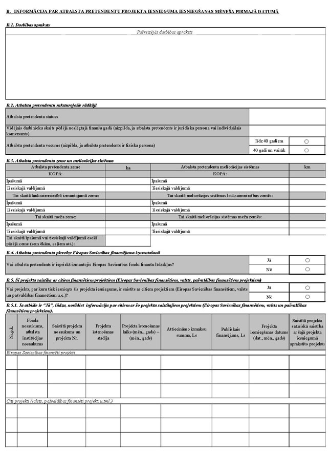
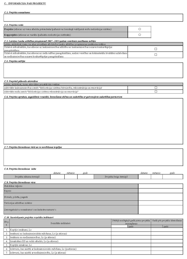
“29. Lai pieteiktos atbalstam, juridiska persona atbilstoši tās juridiskajai adresei, bet fiziska persona un valsts sabiedrība ar ierobežotu atbildību “Zemkopības ministrijas nekustamie īpašumi” atbilstoši projekta īstenošanas adresei Lauku atbalsta dienesta reģionālajā lauksaimniecības pārvaldē personīgi vai elektroniska dokumenta formā (saskaņā ar Elektronisko dokumentu likuma prasībām) iesniedz šādus dokumentus:
29.1. projekta iesniegumu (2.pielikums) divos eksemplāros (izņemot gadījumu, ja projekta iesniegumu iesniedz elektroniski). Lauku atbalsta dienests pēc atzīmes par projekta iesnieguma saņemšanu izdarīšanas vienu projekta iesnieguma eksemplāru atdod atbalsta pretendentam;
29.2. parakstītu atbalsta pretendenta deklarāciju saskaņā ar normatīvajiem aktiem par valsts un Eiropas Savienības atbalsta piešķiršanas kārtību lauku un zivsaimniecības attīstībai;
29.3. iepirkuma procedūru apliecinošus dokumentus saskaņā ar normatīvajiem aktiem par iepirkuma procedūras piemērošanu. Būvniecības iepirkuma dokumentus (tai skaitā par būvniecības vispārējām izmaksām) iesniedz kopā ar projekta iesniegumu vai gada laikā pēc lēmuma pieņemšanas Lauku atbalsta dienestā par projekta iesnieguma apstiprināšanu;
29.4. akceptētu tehnisko projektu vai tā kopiju (uzrādot oriģinālu) kopā ar projekta iesniegumu vai gada laikā pēc lēmuma pieņemšanas Lauku atbalsta dienestā par projekta iesnieguma apstiprināšanu;
29.5. būvatļaujas kopiju (uzrādot oriģinālu) kopā ar projekta iesniegumu vai gada laikā pēc lēmuma pieņemšanas Lauku atbalsta dienestā par projekta iesnieguma apstiprināšanu;
29.6. meliorācijas sistēmu un hidrotehnisko būvju tehniskās apsekošanas atzinuma kopiju (uzrādot oriģinālu), ja projekta iesniegumam nav pievienots tehniskais projekts. Atzinumā norāda šo noteikumu 9.1. un 9.2.apakšpunktā minēto informāciju;
29.7. plānošanas un arhitektūras uzdevuma kopiju (uzrādot oriģinālu), ja projekta iesniegumam nav pievienots tehniskais projekts;
29.8. ja projektam ir veikts ietekmes uz vidi novērtējums, iesniedz Vides pārraudzības valsts biroja atzinuma kopiju par ietekmes uz vidi novērtējuma noslēguma ziņojumu vai atzinuma kopiju par ietekmes uz Natura 2000 teritoriju novērtējuma ziņojumu, kā arī noslēguma vai novērtējuma ziņojuma kopiju;
29.9. projektiem, kuriem ir veikts sākotnējais ietekmes uz vidi novērtējums, bet ietekmes uz vidi novērtējuma vai ietekmes uz Natura 2000 teritoriju novērtējuma procedūra nav jāpiemēro, pievieno lēmuma kopiju par ietekmes uz vidi novērtējuma vai ietekmes uz Natura 2000 teritoriju novērtējuma procedūras nepiemērošanu;
29.10. Dabas aizsardzības pārvaldes izsniegtu apliecinājumu par paredzētās darbības atbilstību īpaši aizsargājamo dabas teritoriju dabas aizsardzības plānam, ja meliorācijas sistēmu būvniecību, rekonstrukciju vai renovāciju veic īpaši aizsargājamās dabas teritorijās;
29.11. zemesgrāmatu nodaļas izdota nostiprinājuma uzraksta vai zemesgrāmatu apliecības kopiju (uzrādot oriģinālu) vai tiesisko valdījumu apliecinoša dokumenta kopiju (uzrādot oriģinālu) par zemi, uz kuras tiks veikti projektā paredzētie darbi. Ja tiek īstenots kopprojekts, minētos dokumentus iesniedz par visu kopprojekta dalībnieku īpašumā vai tiesiskajā valdījumā esošo zemi, uz kuras tiks veikti projektā paredzētie darbi.
30. Ja pretendents ir šo noteikumu 6.1., 6.2. un 6.4.apakšpunktā minētā persona (izņemot valsts sabiedrību ar ierobežotu atbildību “Zemkopības ministrijas nekustamie īpašumi”), Lauku atbalsta dienesta reģionālajā lauksaimniecības pārvaldē papildus šo noteikumu 29.punktā minētajiem dokumentiem iesniedz šādus dokumentus:
30.1. izziņu no kredītiestādes vai krājaizdevumu sabiedrības par gatavību izskatīt kredīta piešķiršanu, ja projekta īstenošanai tiks ņemts kredīts. Izziņā norāda kredītdevēja un kredītņēmēja rekvizītus un kredīta summu. Ja projekta īstenošanā plānots ieguldīt privātos vai kādus citus naudas līdzekļus, atbalsta pretendents iesniedz dokumentus, kas pierāda naudas līdzekļu pieejamību;
30.2. pretendents, kas saskaņā ar normatīvajiem aktiem par gada pārskatu sagatavošanu nesniedz gada pārskatus, – gada ienākumu deklarācijas pielikuma “Ieņēmumi no saimnieciskās darbības” kopiju (uzrādot oriģinālu) par pēdējo noslēgto gadu pirms projekta iesniegšanas saskaņā ar normatīvajiem aktiem par iedzīvotāju gada ienākumu deklarāciju (ar Valsts ieņēmumu dienesta atzīmi par saņemšanu).”
9. Svītrot 31.1.apakšpunktā vārdu “(padomes)”.
10. Svītrot 33.1.apakšpunktā vārdus “slēgt līgumu ar Lauku atbalsta dienestu”.
11. Izteikt 33.2.apakšpunktu šādā redakcijā:
“33.2. nosaka, ka kopprojekta dalībnieki piecus gadus pēc pēdējā maksājuma atbalsta saņēmējam ievēros normatīvajos aktos par valsts un Eiropas Savienības atbalsta piešķiršanas kārtību lauku un zivsaimniecības attīstībai ietvertos nosacījumus, kuri attiecas uz projektu tā uzraudzības laikā.”
12. Papildināt noteikumus ar 35. un 36.punktu šādā redakcijā:
“35. Atbalsta saņēmējs kopā ar pēdējo maksājuma pieprasījumu Lauku atbalsta dienestā iesniedz pārskatu par projekta īstenošanas rezultātiem (3.pielikums) un pārskatu par atbalsta saņēmēja saimnieciskās darbības rādītājiem par iepriekšējo kalendāra gadu (4.pielikums).
36. Sākot ar nākamo gadu pēc projekta īstenošanas atbalsta saņēmējs katru gadu līdz 30.aprīlim piecu gadu periodā Lauku atbalsta dienestā iesniedz pārskatu par atbalsta saņēmēja saimnieciskās darbības rādītājiem par iepriekšējo kalendāra gadu.”
13. Izteikt 1.pielikumu šādā redakcijā:
“1.pielikums
Ministru kabineta
2008.gada 23.septembra noteikumiem Nr.792
Meliorācijas sistēmu būvniecības, rekonstrukcijas un renovācijas būvdarbu maksimālās attiecināmās izmaksas atbalsta apmēra aprēķināšanai
|
Nr.p.k. |
Būvdarbu veids |
Izmaksas par vienību bez PVN |
|
1. |
Meliorācijas sistēmu rekonstrukcija, renovācija un jaunu meliorācijas sistēmu būvniecība: |
|
|
1.1. |
gultnes (izrokamās grunts apjoms) |
6 Ls/m3 |
|
1.2. |
drenu sistēmas |
10 Ls/m |
|
1.3. |
caurtekas diametrā līdz 0,6 m (ieskaitot) |
500 Ls/m |
|
1.4. |
caurtekas diametrā virs 0,6 m |
2000 Ls/m |
|
2. |
Aizsargdambju rekonstrukcija, renovācija un jaunu aizsargdambju būvniecība |
12 Ls/m3” |
14. Izteikt 2.pielikumu jaunā redakcijā (pielikums).
15. Papildināt noteikumus ar 3.pielikumu šādā redakcijā:
“3.pielikums
Ministru kabineta
2008.gada 23.septembra noteikumiem Nr.792
Pārskats par projekta Nr. _____________ īstenošanas rezultātiem
16. Papildināt noteikumus ar 4.pielikumu šādā redakcijā:
“4.pielikums
Ministru kabineta
2008.gada 23.septembra noteikumiem Nr.792
Pārskats pēc projekta īstenošanas
Ministru prezidents V.Dombrovskis
Zemkopības ministrs J.Dūklavs
Redakcijas piebilde: noteikumi stājas spēkā ar 2009.gada 22.oktobri.
Zemkopības ministrijas iesniegtajā redakcijā
Pielikums
Ministru kabineta
2009.gada 13.oktobra noteikumiem Nr.1185
“2.pielikums
Ministru kabineta
2008.gada 23.septembra noteikumiem Nr.792
Zemkopības ministrs J.Dūklavss