
Ministru kabineta noteikumi Nr.87
Rīgā 2009.gada 27.janvārī (prot. Nr.7 71.§)
Grozījumi Ministru kabineta 2008.gada 1.aprīļa noteikumos Nr.241 “Kārtība, kādā piešķir valsts un Eiropas Savienības atbalstu zivsaimniecības attīstībai atklātu projektu iesniegumu konkursu veidā pasākumam “Zvejas un akvakultūras produktu apstrāde””
Izdoti saskaņā ar Lauksaimniecības un lauku attīstības likuma 5.panta ceturto daļu
1. Izdarīt Ministru kabineta 2008.gada 1.aprīļa noteikumos Nr.241 “Kārtība, kādā piešķir valsts un Eiropas Savienības atbalstu zivsaimniecības attīstībai atklātu projektu iesniegumu konkursu veidā pasākumam “Zvejas un akvakultūras produktu apstrāde”” (Latvijas Vēstnesis, 2008, 55.nr.) šādus grozījumus:
1.1. izteikt 10.3.1.10.apakšpunktu šādā redakcijā:
“10.3.1.10. plānotā ražošanas procesa un tehnoloģisko procesu apraksts, kurā ietverts telpu plāns ar iekārtu izvietojumu pēc projekta īstenošanas;”;
1.2. izteikt 10.3.1.14.apakšpunktu šādā redakcijā:
“10.3.1.14. finanšu informācija par ražošanas apjomiem, izmaksām, pamatlīdzekļiem un kreditoriem, norādot peļņas vai zaudējumu aprēķinu, bilanci par pēdējo noslēgto gadu, turpmākajiem gadiem līdz projekta īstenošanas beigām un par trijiem gadiem pēc projekta īstenošanas, kā arī naudas plūsmas pārskats pa mēnešiem projekta iesnieguma iesniegšanas gadā, turpmākajos gados līdz projekta īstenošanas beigām un gadā pēc projekta īstenošanas, bet par diviem turpmākajiem gadiem iesniedz naudas plūsmas pārskatu pa gadiem. Naudas plūsmā naudas atlikumam katra mēneša un gada beigās ir jābūt pozitīvam;”;
1.3. izteikt 11.1.9.apakšpunktu šādā redakcijā:
“11.1.9. plānotā ražošanas procesa un tehnoloģisko procesu apraksts, kurā ietverts telpu plāns ar iekārtu izvietojumu pēc projekta īstenošanas;”;
1.4. papildināt noteikumus ar 12.1 punktu šādā redakcijā:
“12.1 Attiecīgajā projektu iesniegumu pieņemšanas kārtā atbalsta pretendents iesniedz ne vairāk kā vienu projekta iesniegumu.”;
1.5. papildināt 14.1.apakšpunktu ar otru teikumu šādā redakcijā:
“Publiskā finansējuma apmērs vispārējām izmaksām, kas tieši saistītas ar projekta sagatavošanu vai īstenošanu, minētajiem uzņēmumiem ir 40 %;”;
1.6. izteikt 16.punktu šādā redakcijā:
“16. 2007.–2013.gada plānošanas periodā vienam atbalsta pretendentam (izņemot šo noteikumu 6.3.apakšpunktā minēto atbalsta pretendentu) attiecināmo izmaksu summa pasākuma ietvaros nepārsniedz trīs miljonus latu. Turklāt:
16.1. šo noteikumu 6.1. un 6.2.apakšpunktā minētajam atbalsta pretendentam attiecināmo izmaksu summa viena projekta ietvaros nepārsniedz:
16.1.1. 400 000 latu – atbalsta pretendentam, kas atbilst sīkā (mikro) uzņēmuma statusam;
16.1.2. 1 000 000 latu – atbalsta pretendentam, kas atbilst mazā uzņēmuma statusam;
16.2. šo noteikumu 6.4. un 6.5.apakšpunktā minētā komersanta statusā projektu var īstenot vienu reizi, un attiecināmo izmaksu summa pasākuma ietvaros nepārsniedz:
16.2.1. 200 000 latu – šo noteikumu 6.4.apakšpunktā minētajam atbalsta pretendentam;
16.2.2. 70 000 latu – šo noteikumu 6.5.apakšpunktā minētajam atbalsta pretendentam.”;
1.7. papildināt II nodaļu ar 16.1 punktu šādā redakcijā:
“16.1 Šo noteikumu 6.3.apakšpunktā minētajam atbalsta pretendentam attiecināmo izmaksu summa pasākuma ietvaros 2007.–2013.gada plānošanas periodā nepārsniedz 400 000 latu.”;
1.8. svītrot 19.punktu;
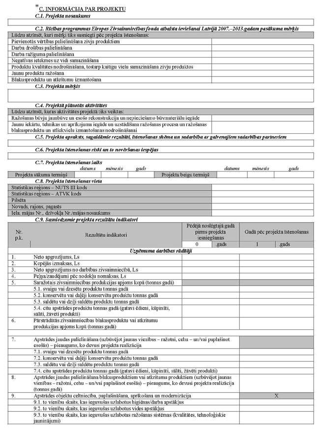
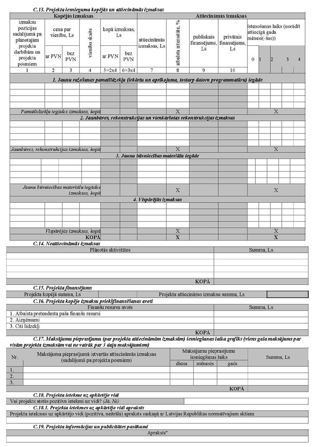
1.9. izteikt 1.pielikuma C daļu “Informācija par projektu” šādā redakcijā:
1.10. izteikt 1.pielikuma E daļu “Atbalsta pretendenta deklarācija” šādā redakcijā:
1.11. izteikt 3.pielikuma tabulas ceturto aili šādā redakcijā:
|
“Rekonstrukcija |
|
400 |
|
350 |
|
45” |
2. Šajos noteikumos minētās prasības neattiecas uz projektu iesniegumiem, kas iesniegti līdz šo noteikumu spēkā stāšanās dienai.
Ministru prezidents I.Godmanis
Zemkopības ministrs M.Roze
Redakcijas piebilde: noteikumi stājas spēkā ar 2009.gada 5.februāri.