
Ministru kabineta noteikumi Nr.68
Rīgā 2009.gada 27.janvārī (prot. Nr.7 64.§)
Grozījumi Ministru kabineta 2008.gada 1.aprīļa noteikumos Nr.240 “Kārtība, kādā piešķir valsts un Eiropas Savienības atbalstu zivsaimniecības attīstībai atklātu projektu iesniegumu konkursu veidā pasākumam “Investīcijas akvakultūras uzņēmumos””
Izdoti saskaņā ar Lauksaimniecības un lauku attīstības likuma 5.panta ceturto daļu
1. Izdarīt Ministru kabineta 2008.gada 1.aprīļa noteikumos Nr.240 “Kārtība, kādā piešķir valsts un Eiropas Savienības atbalstu zivsaimniecības attīstībai atklātu projektu iesniegumu konkursu veidā pasākumam “Investīcijas akvakultūras uzņēmumos”” (Latvijas Vēstnesis, 2008, 54.nr.) šādus grozījumus:
1.1. izteikt 6.1.apakšpunktu šādā redakcijā:
“6.1. komersants, kam saskaņā ar normatīvajiem aktiem par veterinārajām prasībām akvakultūras dzīvniekiem, no tiem iegūtiem produktiem un to apritei, kā arī atsevišķu akvakultūras dzīvnieku infekcijas slimību profilaksei un apkarošanai ir Pārtikas un veterinārajā dienestā atzīts vai līdz minēto normatīvo aktu spēkā stāšanās dienai reģistrēts akvakultūras nozares uzņēmums;”;
1.2. izteikt 10.3.1.14.apakšpunktu šādā redakcijā:
“10.3.1.14. finanšu informācija par ražošanas apjomiem, izmaksām, pamatlīdzekļiem un kreditoriem, norādot peļņas vai zaudējumu aprēķinu, bilanci par pēdējo noslēgto gadu, turpmākajiem gadiem līdz projekta īstenošanas beigām un par trijiem gadiem pēc projekta īstenošanas, kā arī naudas plūsmas pārskats pa mēnešiem projekta iesnieguma iesniegšanas gadā, turpmākajos gados līdz projekta īstenošanas beigām un gadā pēc projekta īstenošanas; par diviem turpmākajiem gadiem – naudas plūsmas pārskats pa gadiem. Naudas plūsmā naudas atlikumam katra mēneša beigās ir jābūt pozitīvam;”;
1.3. izteikt 12.5.apakšpunktu šādā redakcijā:
“12.5. Pārtikas un veterinārā dienesta izsniegtas akvakultūras uzņēmuma atzīšanas vai reģistrācijas apliecības apliecinātu kopiju, ja atbalsta pretendents ir šo noteikumu 6.1.apakšpunktā minētais komersants;”;
1.4. izteikt 12.10. un 12.11.apakšpunktu šādā redakcijā:
“12.10. ja projektā paredzētas investīcijas dīķsaimniecībā, – nekustamā īpašuma valsts kadastra informācijas sistēmā reģistrēta zemes robežu plāna vai situācijas plāna kopiju, kurā redzams esošo dīķu izvietojums ar eksplikācijā norādīto zemes un dīķu platību;
12.11. iegādājoties pamatlīdzekļus, – zemesgrāmatu nodaļas izdota nostiprinājuma uzraksta vai zemesgrāmatas apliecības, vai zemesgrāmatā reģistrēta ilgtermiņa nomas līguma apliecinātu kopiju (uzrāda oriģinālu) – par nekustamo īpašumu, kurā, īstenojot projektu, paredzēts uzstādīt pamatlīdzekļus. Ilgtermiņa nomas līgumā minētais nomas termiņš nav mazāks par septiņiem gadiem no projekta iesnieguma iesniegšanas dienas;”;
1.5. izteikt 12.12.1.apakšpunktu šādā redakcijā:
“12.12.1. zemesgrāmatu nodaļas izdota nostiprinājuma uzraksta vai zemesgrāmatas apliecības, vai zemesgrāmatā reģistrēta ilgtermiņa nomas līguma apliecinātu kopiju (uzrāda oriģinālu) – par nekustamo īpašumu, kurā, īstenojot projektu, paredzēta būvniecība. Ilgtermiņa nomas līgumā minētais nomas termiņš nav mazāks par septiņiem gadiem no projekta iesnieguma iesniegšanas dienas;”;
1.6. papildināt noteikumus ar 12.12.8.apakšpunktu šādā redakcijā:
“12.12.8. dokumenta kopiju, kas apliecina žoga būvniecības saskaņojumu ar attiecīgo būvvaldi, ja projektā paredzēta žoga izbūve un attiecīgie darbi nav iekļauti būvprojektā;”;
1.7. izteikt 14.3.2.apakšpunktu šādā redakcijā:
“14.3.2. šo noteikumu 6.1.apakšpunktā minētajiem Pārtikas un veterinārajā dienestā atzītajiem akvakultūras nozares uzņēmumiem, lai veiktu zemes darbus esošo dīķu rekonstrukcijai bez dīķu platības paplašināšanas, ja dīķi izveidoti vismaz divus gadus pirms projekta iesnieguma iesniegšanas dienas (saskaņā ar iesniegto nekustamā īpašuma valsts kadastra informācijas sistēmā reģistrēto robežu plānu vai situācijas plānu), – 60 % apmērā no attiecīgajiem darbiem plānotajām attiecināmajām izmaksām;”;
1.8. papildināt noteikumus ar 14.1 punktu šādā redakcijā:
“14.1 Publiskā atbalsta apmērs vispārējām izmaksām, kas tieši saistītas ar projekta sagatavošanu vai īstenošanu, šo noteikumu 14.1. un 14.3.apakšpunktā (izņemot 14.3.1.apakšpunktu) minētajā gadījumā ir 40 %.”;
1.9. svītrot 19.5.apakšpunktu;
1.10. izteikt 19.7.apakšpunktu šādā redakcijā:
“19.7. ne vairāk kā viena ar zivju barotavu aprīkota peldlīdzekļa vai airu laivas iegāde atbilstoši projekta mērķim, ja atbalsta pretendents akvakultūras dzīvniekus audzē jau esošos dīķos;”;
1.11. izteikt 30.punktu šādā redakcijā:
“30. Ja atbalsta pretendents ir Pārtikas un veterinārajā dienestā reģistrēts akvakultūras uzņēmums, šo noteikumu 6.2. vai 6.3.apakšpunktā minētais uzņēmums vai komersants, tas maksājumu saņem pēc pilnīgas projekta īstenošanas un akvakultūras nozares uzņēmuma atzīšanas procedūras veikšanas, ko apliecina Pārtikas un veterinārā dienesta izsniegta akvakultūras nozares uzņēmuma atzīšanas apliecība.”;
1.12. papildināt noteikumus ar 31.punktu šādā redakcijā:
“31. Ja, īstenojot projektu, ir izveidots dziļurbums, atbalsta pretendents kopā ar maksājuma pieprasījumu iesniedz saskaņā ar normatīvajiem aktiem par zemes dzīļu izmantošanu izdotas ūdens ieguves urbuma pases kopiju.”;
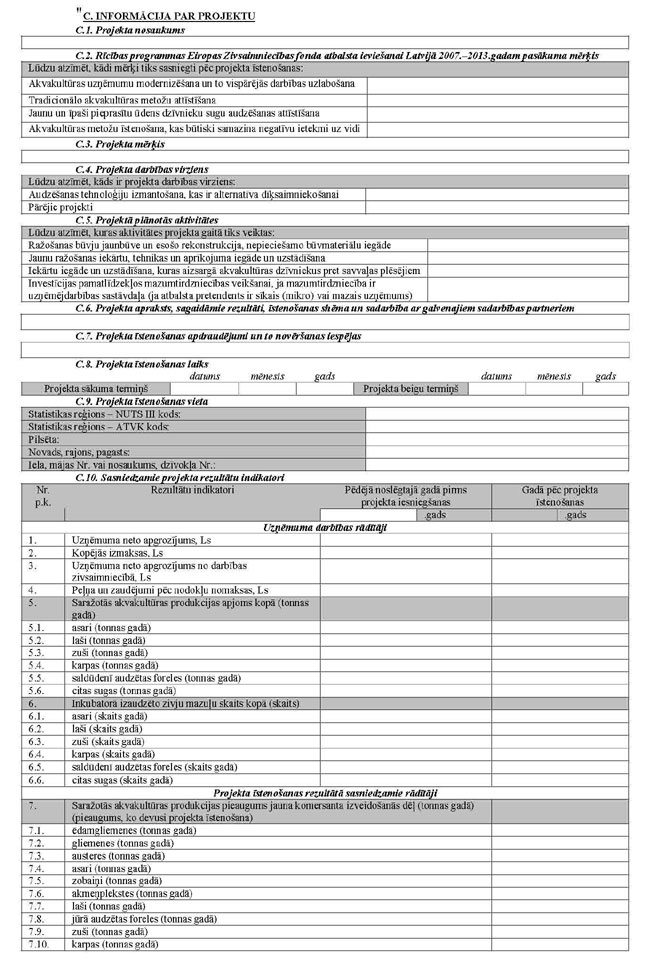
1.13. izteikt 2.pielikuma C daļu “Informācija par projektu”, D daļu “Pavaddokumenti” un E daļu “Atbalsta pretendenta deklarācija” šādā redakcijā:
1.14. izteikt 4.pielikuma 1.punktu šādā redakcijā:
|
“1. |
Ražošanas būve vai administratīvā ēka |
Ls/m2* |
400 |
355 |
215” |
1.15. izteikt 4.pielikuma 5.punktu šādā redakcijā:
|
“5. |
Zemes darbi dīķu un tiem piegulošās infrastruktūras izveidošanai (tai skaitā rakšana, zemes līdzināšana) |
Ls par m3 izraktās zemes |
1,50 |
1,50 |
–” |
2. Šajos noteikumos minētās prasības neattiecas uz projektu iesniegumiem, kas iesniegti līdz šo noteikumu spēkā stāšanās dienai.
Ministru prezidents I.Godmanis
Zemkopības ministrs M.Roze
Redakcijas piebilde: noteikumi stājas spēkā ar 2009.gada 31.janvāri.