
Ministru kabineta noteikumi Nr.846
Rīgā 2008.gada 13.oktobrī (prot. Nr.73 16.§)
Kārtība, kādā piešķir valsts un Eiropas Savienības atbalstu zivsaimniecības attīstībai pasākumam “Jaunu noieta tirgu sekmēšana un reklāmas kampaņas”
Izdoti saskaņā ar Lauksaimniecības un lauku attīstības likuma 5.panta ceturto daļu
I. Vispārīgie jautājumi
1. Noteikumi nosaka kārtību, kādā piešķir valsts un Eiropas Savienības atbalstu atklātu projektu iesniegumu konkursu veidā zivsaimniecības attīstībai pasākumam “Jaunu noieta tirgu sekmēšana un reklāmas kampaņas” (turpmāk – pasākums).
2. Pasākuma mērķis ir veicināt Latvijā saražoto zivsaimniecības produktu patēriņa pieaugumu un produkcijas noieta tirgu paplašināšanos.
3. Lauku atbalsta dienests pēc saskaņošanas ar Zemkopības ministriju laikrakstā ‘’Latvijas Vēstnesis” mēnesi iepriekš izsludina datumu, kad tiks uzsākta projektu iesniegumu pieņemšana, piešķirto publiskā finansējuma apmēru un projektu īstenošanas beigu termiņu. Projektu iesniegumus pieņem visu gadu un apkopo kārtās. Kārtas noslēdz katra mēneša piecpadsmitajā datumā.
4. Ja projektu iesniegumu pieņemšanas gadā projekta iesniegumi ir iesniegti par mazāku summu nekā pieejamais publiskais finansējums, atlikušo finansējuma daļu pārceļ uz nākamo gadu.
5. Pieteikšanās kārtība, projektu iesniegumu atlase un vērtēšana, lēmuma pieņemšana, paziņošana un līguma slēgšana, un publiskā finansējuma pieprasīšana notiek saskaņā ar normatīvajiem aktiem par valsts un Eiropas Savienības atbalsta piešķiršanas kārtību lauku un zivsaimniecības attīstībai atklātu projekta iesniegumu konkursu veidā, ciktāl tie nav pretrunā ar šiem noteikumiem.
6. Lēmumu par projekta iesnieguma apstiprināšanu vai noraidīšanu Lauku atbalsta dienests pieņem ne vēlāk kā triju mēnešu laikā pēc tās kārtas beigām, kurā projekta iesniegums iesniegts izvērtēšanai.
7. Atbalsta pretendents ir:
7.1. biedrība, kas vismaz trīs gadus pirms projekta iesnieguma iesniegšanas reģistrēta saskaņā ar Biedrību un nodibinājumu likumu, un vismaz piecu tās biedru komercdarbības joma ir zvejniecība, akvakultūra vai zivju, vēžveidīgo un mīkstmiešu pārstrāde un konservēšana;
7.2. pašvaldība;
7.3. valsts pārvaldes iestāde vai atvasināta publiskā persona.
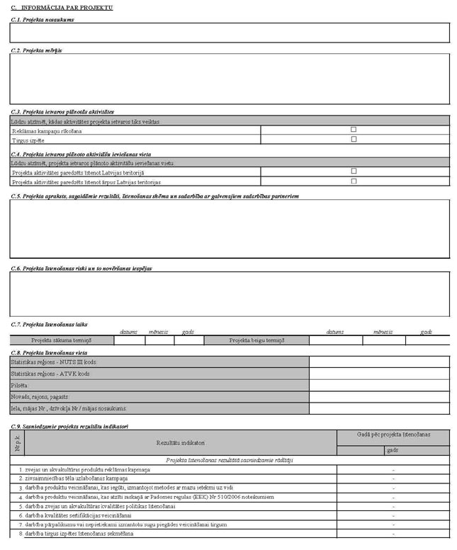
8. Pasākuma ietvaros atbalsta šādas aktivitātes:
8.1. reklāmas kampaņu rīkošanu;
8.2. tirgus izpēti.
9. Atbalsta pretendents, īstenojot projektu, sasniedz pasākuma mērķi.
II. Atbalsta saņemšanas nosacījumi
10. Lai pieteiktos atbalsta saņemšanai, atbalsta pretendents Lauku atbalsta dienestā personīgi vai elektroniski (saskaņā ar normatīvajiem aktiem par elektronisko dokumentu noformēšanu) iesniedz šādus dokumentus:
10.1. projekta iesniegumu (1.pielikums), tajā skaitā vienkāršotu biznesa plānu divos eksemplāros (arī elektroniski) atbilstoši šo noteikumu 13. un 14.punktam;
10.2. iepirkuma procedūru apliecinošus dokumentus saskaņā ar normatīvajiem aktiem par iepirkuma procedūras piemērošanu;
10.3. izvērstu izdevumu tāmi;
10.4. ja projektā paredzēta šo noteikumu 8.2.apakšpunktā minētā tirgus izpēte, pētījuma veicēja apliecinājumu par pieredzi tirgus izpētē, norādot veikto pētījumu nosaukumus un jomas.
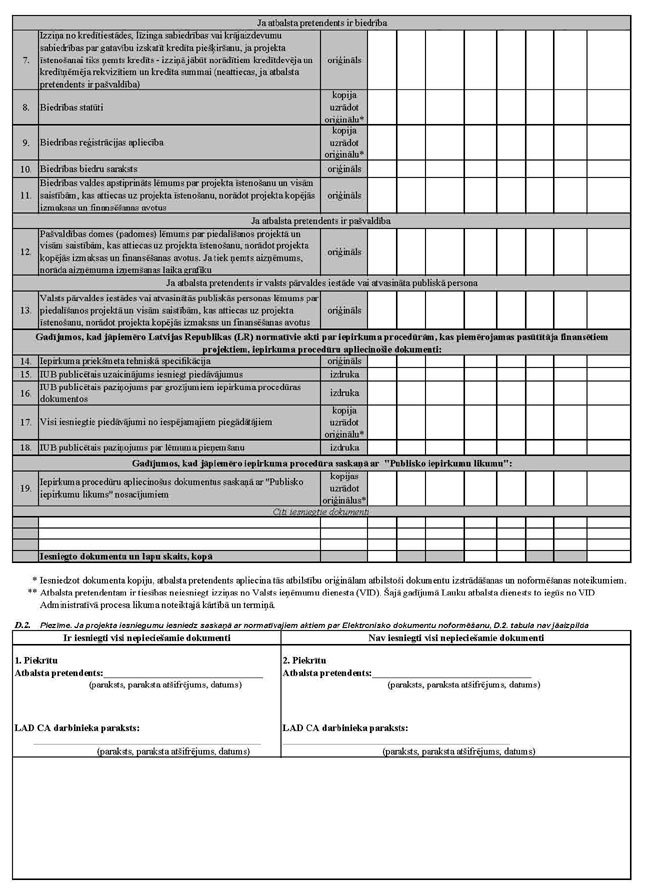
11. Papildus šo noteikumu 10.punktā minētajiem dokumentiem iesniedz:
11.1. ja uz atbalstu pretendentē šo noteikumu 7.1.apakšpunktā minētais atbalsta pretendents:
11.1.1. biedrības statūtu apliecinātu kopiju (uzrādot oriģinālu);
11.1.2. biedrības reģistrācijas apliecības apliecinātu kopiju (uzrādot oriģinālu);
11.1.3. biedrības biedru sarakstu;
11.1.4. biedrības valdes apstiprinātu lēmumu par projekta īstenošanu un visām saistībām, kas attiecas uz projekta īstenošanu, norādot projekta kopējās izmaksas un finansēšanas avotus;
11.1.5. izziņu no kredītiestādes, līzinga sabiedrības vai krājaizdevu sabiedrības par gatavību izskatīt kredīta piešķiršanu, ja projekta īstenošanai paredzēts ņemt kredītu (izziņā norāda kredītdevēja un kredītņēmēja rekvizītus un kredīta summu). Ja projekta īstenošanā plāno ieguldīt privātos vai kādus citus naudas līdzekļus, tad atbalsta pretendents iesniedz pamatojošus dokumentus, kas pierāda naudas līdzekļu pieejamību;
11.1.6. saskaņā ar Biedrību un nodibinājumu likumu sastādītu gada pārskatu (pilns komplekts) par pēdējo noslēgto gadu (apliecinātu kopiju, uzrādot oriģinālu), uz kura ir Valsts ieņēmumu dienesta atzīme vai apliecinājums par saņemšanu;
11.2. ja uz atbalstu pretendē šo noteikumu 7.2.apakšpunktā minētais atbalsta pretendents, – pašvaldības domes (padomes) lēmumu par piedalīšanos projektā un visām saistībām, kas attiecas uz projekta īstenošanu, norādot projekta kopējās izmaksas un finansēšanas avotus. Ja tiek ņemts aizņēmums, norāda aizņēmuma izņemšanas laika grafiku;
11.3. ja uz atbalstu pretendē šo noteikumu 7.3.apakšpunktā minētais atbalsta pretendents:
11.3.1. attiecīgās institūcijas lēmumu par piedalīšanos projektā un visām saistībām, kas attiecas uz projekta īstenošanu, norādot projekta kopējās izmaksas un finansēšanas avotus;
11.3.2. saskaņā ar Likumu par budžetu un finanšu vadību sastādītu gada pārskatu (pilns komplekts) par pēdējo noslēgto gadu (apliecinātu kopiju, uzrādot oriģinālu), uz kura ir Valsts ieņēmumu dienesta atzīme vai apliecinājums par saņemšanu.
12. Ja šo noteikumu 7.1.apakšpunktā minētais atbalsta pretendents neiesniedz Valsts ieņēmumu dienesta izziņu par nodokļu samaksu, kas izsniegta ne agrāk kā mēnesi pirms projekta iesnieguma iesniegšanas, Lauku atbalsta dienests minēto izziņu saņem Administratīvā procesa likumā noteiktajā kārtībā.
13. Lai saņemtu atbalstu, atbalsta pretendents projekta iesniegumam pievieno vienkāršotu biznesa plānu, kurā iekļauj šādu informāciju:
13.1. nozares analīze un nākotnes perspektīvas;
13.2. projekta mērķis un detalizēts tā sasniegšanas apraksts (aprakstīt katru paredzēto darbību);
13.3. labuma guvēji;
13.4. rezultāts, ko dos projekta īstenošana;
13.5. saistība ar citiem projektiem;
13.6. projekta īstenošanai nepieciešamie resursi un to pamatojums.
14. Ja uz atbalstu pretendē šo noteikumu 7.1.apakšpunktā minētais atbalsta pretendents, papildus šo noteikumu 13.punktā minētajai informācijai biznesa plānā iekļauj šādu informāciju:
14.1. biedrības pašreizējās darbības apraksts (arī biedru darbības apraksts), papildus norādot katra biedra komercdarbības jomu;
14.2. biedrības sadarbība ar partneriem;
14.3. naudas plūsmas pārskats pa mēnešiem projekta iesnieguma iesniegšanas gadā, turpmākajos gados līdz projekta īstenošanas beigām un gadā pēc projekta īstenošanas. Naudas atlikumam katra mēneša beigās jābūt pozitīvam, apliecinot iespēju projektu īstenot un sasniegt mērķi;
14.4. naudas plūsmas ieņēmumu un izdevumu posteņu pamatojums.
15. Šo noteikumu 8.2.apakšpunktā minētā tirgus izpēte ietver statistikas datus un vismaz šādas sadaļas:
15.1. kopsavilkums;
15.2. izmantotā metodoloģija;
15.3. pētījuma mērķis;
15.4. tirgus apraksts;
15.5. tirgus pieejamība;
15.6. tirdzniecības veicināšana;
15.7. tirgus perspektīva;
15.8. izmantotie datu avoti un izmantotās literatūras saraksts.
16. Lauku atbalsta dienests projekta iesniegumus sarindo pēc projektu atlases kritērijiem (2.pielikums).
III. Publiskā finansējuma veids un apmērs
17. Publiskā finansējuma apmēru diferencē atkarībā no veicamās aktivitātes:
17.1. šo noteikumu 8.1.apakšpunktā minētajai aktivitātei – 90 % no projekta attiecināmajām izmaksām;
17.2. šo noteikumu 8.2.apakšpunktā minētajai aktivitātei – 50 % no projekta attiecināmajām izmaksām.
18. Vienam atbalsta pretendentam 2007.–2013.gada plānošanas periodā kopējo attiecināmo izmaksu summu nosaka, ņemot vērā veicamo aktivitāti, un tā nepārsniedz:
18.1. šo noteikumu 8.1.apakšpunktā minētajai aktivitātei – 400 000 latu;
18.2. šo noteikumu 8.2.apakšpunktā minētajai aktivitātei:
18.2.1. Baltijas valstu tirgus izpētei – 5 000 latu;
18.2.2. pārējo valstu tirgus izpētei – 30 000 latu.
19. Atbalsts šo noteikumu 8.2.apakšpunktā minētajai aktivitātei vienam atbalsta pretendentam 2007.–2013.gada plānošanas periodā var tikt piešķirts vienu reizi par Baltijas valstu tirgus izpēti un vienu reizi par pārējo valstu tirgus izpēti.
IV. Attiecināmās un neattiecināmās izmaksas
20. Publisko finansējumu piešķir tikai par projekta iesniegumā ietvertajām šajos noteikumos minētajām attiecināmajām izmaksām. Projekta ietvaros paredzētās attiecināmās izmaksas atbilst reālajai tirgus situācijai.
21. Pasākuma ietvaros ir šādas attiecināmās izmaksas:
21.1. reklāmas kampaņu rīkošanā:
21.1.1. reklāmas laukuma pirkšana vai īrēšana reklāmas kampaņas norises laikam;
21.1.2. nepieciešamo reklāmas materiālu izgatavošana;
21.2. dalībai starptautiskā izstādē:
21.2.1. organizatora noteiktā reģistrācijas un dalības maksa par piedalīšanos starptautiskajā izstādē, kura notiek ārpus Latvijas teritorijas;
21.2.2. stenda platības, stenda konstrukcijas, nepieciešamā tehniskā (audiovizuālas iekārtas) aprīkojuma izmaksas vienam projekta iesniedzējam vienai izstādei (līdz 10 000 latiem, no kuriem audiovizuālās iekārtas nomai līdz 100 latiem par dienu):
21.2.2.1. nomas maksa par ekspozīcijas laukumu;
21.2.2.2. nomas maksa par stenda konstrukciju (apbūvēts ekspozīcijas laukums ar standartaprīkojumu, tajā skaitā nepieciešamo tehnisko (audiovizuālās iekārtas) aprīkojumu);
21.2.2.3. stenda apdrošināšanas izmaksas (transportēšanas un ekspozīcijas laikā), ja to nosaka stenda nomas līgums;
21.2.3. ne vairāk kā divu darbinieku komandējuma (darba brauciena) izmaksas saskaņā ar normatīvajos aktos noteiktajām normām:
21.2.3.1. dienas nauda;
21.2.3.2. viesnīcas izdevumi, kas saistīti ar komandējumu;
21.2.4. ceļa (transporta) izdevumi:
21.2.4.1. bagāžas, tai skaitā ekspozīcijas transportēšanas izdevumi līdz starptautiskās izstādes vietai un atpakaļ līdz pastāvīgajai darba vietai;
21.2.4.2. ekonomiskās klases sabiedriskā transporta izmaksas līdz starptautiskās izstādes norises vietai un atpakaļ līdz pastāvīgajai darba vietai;
21.2.4.3. vietējā transporta izmaksas, lai nokļūtu starptautiskās izstādes norises vietā (sabiedriskais transports, taksometrs, autotransporta noma);
21.2.4.4. degvielas izmaksas, ja tiek izmantots personiskais vai dienesta autotransports vai transportlīdzeklis tiek nomāts starptautiskās izstādes norises vietā;
21.2.5. atļauju izmaksas (līdz 2000 latiem), lai apliecinātu produkcijas atbilstību mērķa tirgus prasībām, ja projektā ir paredzēta dalība starptautiskā izstādē, kas notiek ārpus Eiropas Savienības;
21.2.6. materiālu, bukletu un katalogu sagatavošana, tulkošana, maketēšana, iespiešana un pavairošana, ja informācijas materiāli tiek izplatīti papīra formā un elektroniski;
21.2.7. reklāmas ievietošana starptautiskās izstādes katalogā;
21.3. tirgus izpētē, kā arī patērētāju aptauju veikšanā iesaistīto pakalpojumu sniedzēju izmaksas.
22. Šo noteikumu 21.punktā minētās izmaksas ir attiecināmas, pamatojoties uz līgumiem ar trešajām personām, kas atbildīgas par darbu veikšanu.
23. Pasākuma ietvaros ir šādas neattiecināmās izmaksas:
23.1. atbalsta saņēmēju darbības izmaksas;
23.2. izmaksas, kas saistītas ar noteiktu uzņēmumu, tirdzniecības un preču zīmju, izcelsmes reģionu vai valstu reklamēšanu, izņemot gadījumus, ja produkti ir atzīti atbilstoši Padomes 2006.gada 20.marta Regulai (EK) Nr.510/2006 par lauksaimniecības produktu un pārtikas produktu ģeogrāfiskās izcelsmes norāžu un cilmes vietu nosaukumu aizsardzību;
23.3. procentu maksājumi, maksa par naudas pārskaitījumiem, valūtas maiņas komisijas maksājumi un valūtas svārstību radītie zaudējumi;
23.4. naudas sodi, līgumsodi, nokavējuma procenti un tiesāšanās izdevumi;
23.5. tādu apakšlīgumu slēgšana, kas palielina projekta izmaksas, bet nepievieno projektam attiecīgu vērtību, un kuros samaksa ir noteikta procentos no kopējām projekta izmaksām;
23.6. izmaksas, kas saistītas ar jebkuru piegādi, pakalpojumu vai darbu, par kuru nav veikta atbilstoša iepirkuma procedūra saskaņā ar normatīvajiem aktiem par iepirkuma procedūras piemērošanu;
23.7. esošo būvju uzturēšanas izmaksas;
23.8. tehniskās apkopes, rezerves daļu un ekspluatācijas izdevumi;
23.9. atlīdzība personālam;
23.10. pamatlīdzekļu iegāde;
23.11. īpašuma vai kapitāldaļu iegāde;
23.12. suvenīri, dāvanas, apģērbs un jebkuri citi mārketinga materiāli, kas netiek izplatīti papīra formā un elektroniski;
23.13. citas izmaksas, kas nav attiecināmas saskaņā ar Padomes 2006.gada 27.jūlija Regulu (EK) Nr.1198/2006 par Eiropas Zivsaimniecības fondu un Komisijas 2007.gada 26.marta Regulu (EK) Nr.498/2007, ar ko paredz sīki izstrādātus noteikumus par to, kā īstenot Padomes Regulu (EK) Nr.1198/2006 par Eiropas Zivsaimniecības fondu.
V. Pēc projekta īstenošanas iesniedzamie dokumenti
24. Pēc tirgus izpētes atbalsta saņēmējs pētījumu iesniedz Lauku atbalsta dienestā papīra formā un elektroniski un nodrošina tā publisku pieejamību (piemēram, pētījuma publicēšana projekta iesniedzēja mājaslapā internetā). Lauku atbalsta dienests saņemto pētījumu publicē Lauku atbalsta dienesta mājaslapā.
25. Pēc reklāmas kampaņas rīkošanas atbalsta saņēmējs reklāmas bukletus vai citus reklāmas (uzskates) materiālus, kas saistīti ar attiecīgā projekta īstenošanu, iesniedz Lauku atbalsta dienestā.
Ministru prezidents I.Godmanis
Zemkopības ministrs M.Roze
Redakcijas piebilde: noteikumi stājas spēkā ar 2008.gada 18.oktobri.
| PDF 320kb |
Zemkopības ministrijas iesniegtajā redakcijā
1.pielikums
Ministru kabineta
2008.gada 13.oktobra noteikumiem Nr.846
Zemkopības ministrs M.Roze
2.pielikums
Ministru kabineta
2008.gada 13.oktobra noteikumiem Nr.846
Projektu atlases kritēriji
|
Nr. p.k. |
Kritēriju grupa |
Kritērijs |
Kritēriju punktu skaits |
|
1. |
Projekta darbības virziens |
Projekta aktivitātes paredzētas ārpus Latvijas teritorijas |
20 |
|
Projekta aktivitātes paredzētas Latvijas teritorijā |
5 |
||
|
2. |
Atbalsta pretendents |
Biedrība |
1* |
|
Pašvaldība, valsts pārvaldes iestāde vai atvasināta publiskā persona |
10 |
||
|
3. |
Starpība starp maksimāli pieļaujamo publisko finansējumu un projektam pieprasīto publisko finansējumu |
Par katru pilnu procentu 1 punkts |
– |
Piezīme. *Par katru biedrības biedru 1 punkts. Maksimālais punktu skaits – 20 punkti.
Zemkopības ministrs M.Roze