
Ministru kabineta noteikumi Nr.828
Rīgā 2008.gada 6.oktobrī (prot. Nr. 71 27.§)
Kārtība, kādā piešķir valsts un Eiropas Savienības atbalstu zivsaimniecības attīstībai atklātu projektu iesniegumu konkursu veidā pasākumam “Zveja iekšējos ūdeņos”
Izdoti saskaņā ar Lauksaimniecības un lauku attīstības likuma 5.panta ceturto daļu
I. Vispārīgie jautājumi
1. Noteikumi nosaka kārtību, kādā piešķir valsts un Eiropas Savienības atbalstu zivsaimniecības attīstībai atklātu projektu iesniegumu konkursu veidā pasākumam “Zveja iekšējos ūdeņos” (turpmāk – pasākums).
2. Pasākuma mērķis ir zvejas attīstība iekšējos ūdeņos un konkurētspējas veicināšana, modernizējot zvejas infrastruktūru un iekārtas, uzlabojot zvejas produktu kvalitāti un samazinot negatīvo ietekmi uz vidi.
3. Atbalsta pretendentu pieteikšanās kārtību, projektu iesniegumu atlasi un vērtēšanu, lēmuma pieņemšanu, paziņošanu, līguma slēgšanu un publiskā finansējuma pieprasīšanu nosaka normatīvie akti par valsts un Eiropas Savienības atbalsta piešķiršanas kārtību lauku un zivsaimniecības attīstībai atklātu projekta iesniegumu konkursu veidā.
II. Pieteikšanās kārtība
4. Pasākuma īstenošanas vieta ir Latvijas teritorijas iekšējie ūdeņi, kuros veic komerciālo zveju, izņemot ostas un ostu iekšējos ūdeņos ietilpstošās daļas. Ja pasākumu īsteno pašvaldība, tad tā īstenošanas vieta ir iekšējie ūdeņi, kuros zvejas tiesības pieder valstij un kuros attiecīgā pašvaldība pārzina zivju resursus, vai iekšējie ūdeņi, kuri ir pašvaldības īpašumā.
5. Atbalsta pretendents ir:
5.1. iekšējās ūdenstilpes vai tās daļas īpašnieks vai nomnieks, kuram izsniegta speciālā atļauja (licence) komercdarbībai zvejniecībā un kuram pieder rūpnieciskās zvejas tiesības vai kurš ir pilnvarots tās izmantot vai kurš tās nomā;
5.2. pašvaldība.
6. Pasākuma ietvaros atbalsta investīcijas krastā bāzētas infrastruktūras būvniecībai, rekonstrukcijai un aprīkošanai, tai skaitā iekārtu un tehnikas iegādei un uzstādīšanai, lai veiktu zveju iekšējos ūdeņos komerciālos nolūkos.
7. Atbalsta pretendents, īstenojot projektu, sasniedz šā pasākuma mērķi.
8. Šo noteikumu 5.1.apakšpunktā minētais atbalsta pretendents vismaz pēdējos trīs gadus pirms projekta iesnieguma iesniegšanas ir nodarbojies ar komercdarbību zvejniecībā iekšējos ūdeņos un vismaz piecus gadus pēc pēdējā maksājuma saņemšanas uzņemas saistības veikt komercdarbību zvejniecībā iekšējā ūdenstilpē, par kuru tiks saņemts atbalsts.
III. Atbalsta saņemšanas nosacījumi
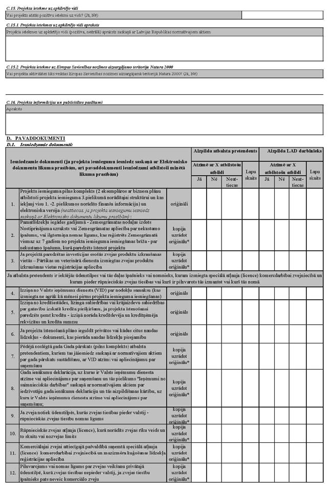
9. Lai pieteiktos atbalsta saņemšanai, atbalsta pretendents Lauku atbalsta dienesta reģionālajā lauksaimniecības pārvaldē personīgi vai elektroniskā dokumenta formā saskaņā ar normatīvajiem aktiem par elektronisko dokumentu noformēšanu iesniedz šādus dokumentus:
9.1. projekta iesniegumu (1.pielikums) divos eksemplāros, tajā skaitā vienkāršotu biznesa plānu atbilstoši šo noteikumu 11.punktam (arī elektroniski);
9.2. iepirkuma procedūru apliecinošus dokumentus saskaņā ar normatīvajiem aktiem par iepirkuma procedūras piemērošanu. Ja paredzēta būvniecība vai rekonstrukcija, būvniecības un iepirkuma dokumentus iesniedz kopā ar projekta iesniegumu vai sešu mēnešu laikā pēc līguma noslēgšanas starp Lauku atbalsta dienestu un atbalsta pretendentu;
9.3. ja investīcijas paredzētas esošajās zvejas produktu izkraušanas vietās, – Pārtikas un veterinārā dienesta izsniegtas zvejas produktu izkraušanas vietas reģistrācijas apliecības apliecinātu kopiju (uzrāda oriģinālu);
9.4. ja iegādājas pamatlīdzekļus, – zemesgrāmatu nodaļas izdota nostiprinājuma uzraksta apliecinātu kopiju (uzrāda oriģinālu) vai zemesgrāmatas apliecības par nekustamo īpašumu apliecinātu kopiju (uzrāda oriģinālu), vai zemesgrāmatā reģistrēta ilgtermiņa nomas līguma apliecinātu kopiju (uzrāda oriģinālu), kurā minētais nomas termiņš nav īsāks par septiņiem gadiem no projekta iesnieguma iesniegšanas dienas, – par nekustamo īpašumu, kurā paredzēts īstenot projektu;
9.5. ja paredzēta jauna būvniecība vai rekonstrukcija, papildus iesniedz:
9.5.1. zemesgrāmatu nodaļas izdota nostiprinājuma uzraksta apliecinātu kopiju (uzrāda oriģinālu) vai zemesgrāmatas apliecības par zemi vai ēku (būvi), kur paredzēts veikt būvniecību, apliecinātu kopiju (uzrāda oriģinālu), vai zemesgrāmatā reģistrēta ilgtermiņa zemes nomas līguma apliecinātu kopiju (uzrāda oriģinālu), kurā minētais nomas termiņš nav īsāks par septiņiem gadiem no projekta iesnieguma iesniegšanas dienas;
9.5.2. plānošanas un arhitektūras uzdevuma apliecinātu kopiju (uzrāda oriģinālu) un Vides valsts dienesta izsniegtu tehnisko noteikumu apliecinātu kopiju (uzrāda oriģinālu), ja tehniskie noteikumi nepieciešami atbilstoši normatīvajiem aktiem par kārtību, kādā reģionālā vides pārvalde izdod tehniskos noteikumus paredzētajai darbībai, kurai nav nepieciešams ietekmes uz vidi novērtējums, ja iesniegšanas dienā nav apstiprināta tehniskā projekta;
9.5.3. ja paredzēta vienkāršota rekonstrukcija, kopā ar projekta iesniegumu iesniedz apliecinājuma kartes un ieceres dokumentācijas apliecinātas kopijas (uzrāda oriģinālus). Ieceres dokumentācija izstrādāta atbilstoši būvniecību reglamentējošajiem normatīvajiem aktiem un attiecīgās pašvaldības saistošajiem noteikumiem;
9.5.4. iegādājoties būvmateriālus, – akceptētu būvprojektu tehniskā projekta stadijā vai tā apliecinātu kopiju (uzrāda oriģinālu), bet, ja paredzēta vienkāršota rekonstrukcija, – atbalsta pretendenta sagatavotu tāmi;
9.5.5. akceptētu būvprojektu tehniskā projekta stadijā vai apliecinātu tā kopiju (uzrāda oriģinālu), ja iesniegšanas dienā ir tehniskais projekts;
9.5.6. būvatļaujas apliecinātu kopiju (uzrāda oriģinālu), ja iesniegšanas dienā ir tehniskais projekts;
9.5.7. ja projekts paredzēts Eiropas Savienības nozīmes aizsargājamā teritorijā Natura 2000, – Vides pārraudzības valsts biroja atzinuma apliecinātu kopiju (uzrāda oriģinālu) par ietekmes uz vidi novērtējuma noslēguma ziņojumu vai lēmuma apliecinātu kopiju (uzrāda oriģinālu) par ietekmes uz vidi novērtējuma procedūras nepiemērošanu, vai atzinuma apliecinātu kopiju (uzrāda oriģinālu) par paredzēto darbību ietekmi uz Eiropas Savienības nozīmes īpaši aizsargājamo dabas teritoriju (NATURA 2000), kuru īstenošanai nav jānovērtē ietekme uz vidi.
10. Papildus šo noteikumu 9.punktā minētajiem dokumentiem iesniedz:
10.1. ja uz atbalstu pretendē šo noteikumu 5.1.apakšpunktā minētais atbalsta pretendents:
10.1.1. rūpnieciskās zvejas tiesību nomas līguma apliecinātu kopiju (uzrāda oriģinālu), ja zveja notiek ūdenstilpēs, kurās zvejas tiesības pieder valstij;
10.1.2. rūpnieciskās zvejas atļaujas (licences) apliecinātu kopiju, kurā norādīts zvejas rīku veids un to skaita vai nozvejas limits (uzrāda oriģinālu);
10.1.3. komerciālajai zvejai attiecīgajā pašvaldībā saņemtās speciālās atļaujas (licences) apliecinātu kopiju komercdarbībai zvejniecībā un mazizmēra kuģošanas līdzekļa reģistrācijas apliecības apliecinātu kopiju (uzrāda oriģinālus);
10.1.4. pilnvarojuma vai nomas līguma kopiju (uzrāda oriģinālu) par zvejas veikšanu privātajā ūdenstilpē, kurā zvejas tiesības nepieder valstij, ja zvejas tiesību īpašnieks pats neveic komerciālo zveju;
10.1.5. Valsts ieņēmumu dienesta izziņu par nodokļu samaksu (izsniegta ne agrāk kā mēnesi pirms projekta iesnieguma iesniegšanas). Ja atbalsta pretendents minēto izziņu neiesniedz, tad Lauku atbalsta dienests to saņem Administratīvā procesa likumā noteiktajā kārtībā;
10.1.6. gada pārskata (pilns komplekts) apliecinātu kopiju (uzrāda oriģinālu) par pēdējo noslēgto gadu saskaņā ar Gada pārskatu likumu vai gada ienākumu deklarācijas un tās pielikuma ‘’Ieņēmumi no saimnieciskās darbības” apliecinātu kopiju (uzrāda oriģinālu) saskaņā ar normatīvajiem aktiem par iedzīvotāju gada ienākumu deklarāciju un tās aizpildīšanas kārtību (uz gada pārskata vai gada ienākumu deklarācijas jābūt Valsts ieņēmumu dienesta atzīmei vai apliecinājumam par saņemšanu);
10.1.7. izziņu no kredītiestādes, līzinga sabiedrības vai krājaizdevu sabiedrības par gatavību izskatīt kredīta piešķiršanu, ja projekta īstenošanai paredzēts ņemt kredītu (izziņā norāda kredītdevēja un kredītņēmēja rekvizītus un kredīta summu). Ja projekta īstenošanā plāno ieguldīt privātos vai kādus citus naudas līdzekļus, tad atbalsta pretendents iesniedz pamatojuma dokumentus, kas apliecina naudas līdzekļu pieejamību;
10.2. ja uz atbalstu pretendē šo noteikumu 5.2.apakšpunktā minētais atbalsta pretendents:
10.2.1. attiecīgās ūdenstilpes zvejnieku sarakstu, kuriem ir izsniegtas licences komercdarbībai zvejniecībā un ir piešķirts zvejas limits (zvejas rīku veids un to skaits vai nozvejas apjoms un zvejā izmantojamā mazizmēra kuģošanas līdzekļa reģistrācijas numurs), uz projekta iesnieguma iesniegšanas dienu;
10.2.2. pašvaldības domes (padomes) lēmumu par piedalīšanos projektā un visām ar projekta īstenošanu saistītajām saistībām, norādot projekta kopējās izmaksas un finansēšanas avotus. Ja tiks ņemts aizņēmums, norāda aizņēmuma izņemšanas laika grafiku.
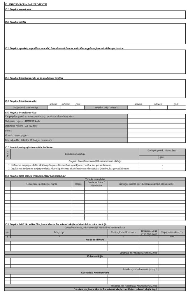
11. Šo noteikumu 9.1.apakšpunktā minētajā vienkāršotajā biznesa plānā iekļauj šādu informāciju:
11.1. nozares analīze, tajā skaitā iekšējo ūdeņu zvejai nepieciešamā krastā bāzētā infrastruktūra un tehniskais nodrošinājums;
11.2. stipro un vājo pušu, iespēju un draudu analīze;
11.3. projekta īstenošanas termiņi (sadalījumā pa posmiem);
11.4. saistība ar citiem projektiem;
11.5. projekta īstenošanai nepieciešamie resursi un to pamatojums;
11.6. projekta naudas plūsmas pārskats pa mēnešiem projekta iesnieguma iesniegšanas gadā, turpmākajos gados līdz projekta īstenošanas beigām un gadā pēc projekta īstenošanas. Naudas plūsmā naudas atlikums katra mēneša beigās ir pozitīvs. Projekta iesniegumam pievienotā naudas plūsma projekta iesnieguma iesniegšanas gadā, visos īstenošanas gados un gadā pēc projekta īstenošanas liecina par iespēju projektu īstenot un sasniegt mērķi;
11.7. naudas plūsmas ieņēmumu un izdevumu posteņu pamatojums.
12. Lauku atbalsta dienests pēc Valsts zivsaimniecības pārvaldes sniegtās informācijas projekta iesniegumus sakārto atbilstoši projektu atlases kritērijam (2.pielikums). Ja par atbilstību projektu atlases kritērijam saņemts vienāds punktu skaits, priekšrocības saņemt publisko finansējumu ir atbalsta pretendentam, kurš projektu īsteno pašvaldībā ar zemāku teritorijas attīstības indeksu uz attiecīgās projektu iesniegumu pieņemšanas kārtas atvēršanas dienu. Teritorijas attīstības indeksu nosaka atbilstoši normatīvajiem aktiem par teritorijas attīstības indeksa aprēķināšanas un piemērošanas kārtību.
IV. Publiskā finansējuma veids un apmērs
13. Publiskā finansējuma apmērs:
13.1. šo noteikumu 5.1.apakšpunktā minētajam atbalsta pretendentam – 60 % no projekta attiecināmajām izmaksām;
13.2. šo noteikumu 5.2.apakšpunktā minētajam atbalsta pretendentam – 90 % no projekta attiecināmajām izmaksām.
14. 2007.–2013.gada plānošanas periodā vienam atbalsta pretendentam kopējā attiecināmo izmaksu summa pasākuma ietvaros nepārsniedz:
14.1. 20 000 latu – šo noteikumu 5.1.apakšpunktā minētajam atbalsta pretendentam;
14.2. 40 000 latu – šo noteikumu 5.2.apakšpunktā minētajam atbalsta pretendentam.
V. Attiecināmās un neattiecināmās izmaksas
15. Publisko finansējumu piešķir tikai par projekta iesniegumā ietvertajām šajos noteikumos minētajām attiecināmajām izmaksām. Projekta ietvaros paredzētās attiecināmās izmaksas atbilst reālajai tirgus situācijai.
16. Pasākuma ietvaros ir šādas attiecināmās izmaksas:
16.1. krastā bāzētās infrastruktūras būvniecības un rekonstrukcijas izmaksas, pamatojoties uz līgumiem ar trešajām personām, kas atbildīgas par darbu veikšanu:
16.1.1. būves izkrauto zivju uzglabāšanai;
16.1.2. piestātnes vai zivju izkraušanas vietas būvniecība vai rekonstrukcija;
16.1.3. laivu novietnes būvniecība vai rekonstrukcija;
16.1.4. zvejas aprīkojuma uzglabāšanas vietas būvniecība vai rekonstrukcija;
16.2. jaunas tehnikas, iekārtu un aprīkojuma iegāde un uzstādīšana un ar šo darbu veikšanu saistīto materiālu iegāde:
16.2.1. ūdensapgādes iekārtas un sistēmas;
16.2.2. elektropadeves iekārtas un sistēmas;
16.2.3. zivju taras iegāde;
16.2.4. ledus izgatavošanas iekārtas, aukstuma iekārtas, agregāti un aprīkojums;
16.2.5. konteineri dzīvu zivju uzglabāšanai;
16.2.6. pontonu piestātne, kura stacionāri nostiprināta attiecīgajā ūdenstilpē;
16.2.7. iekārtas atkritumu glabāšanai un apsaimniekošanai;
16.3. jaunu būvmateriālu iegāde saskaņā ar būvprojektu (tehniskā projekta stadijā), kas izstrādāts šo noteikumu 16.1.apakšpunktā minētajiem būvniecības vai rekonstrukcijas darbiem;
16.4. vispārējas izmaksas, tajā skaitā arhitektu, inženieru, konsultantu un juridiskie pakalpojumi, tehniski ekonomiskie pamatojumi, patentu un licenču izmaksas, kas tieši saistītas ar projekta sagatavošanu vai īstenošanu un nepārsniedz 8 % no izmaksām, kas minētas šo noteikumu 16.1., 16.2. un 16.3.apakšpunktā.
17. Ja atbalsta pretendents neparedz publisko finansējumu iekārtu uzstādīšanai, tās uzstāda un nodod ekspluatācijā atbilstoši normatīvajiem aktiem par iekārtu uzstādīšanas un lietošanas kārtību. Publisko finansējumu par iekārtām saņem tikai pēc to nodošanas ekspluatācijā un attiecīgu minēto faktu apliecinošu dokumentu iesniegšanas Lauku atbalsta dienestā.
18. Attiecināmas ir tikai tās būvprojekta tāmes pozīcijas un būvmateriāli, kas tieši saistīti ar attiecīgā pasākuma mērķa sasniegšanu.
19. Par attiecināmajām izmaksām uzskata šādas tieši ar ražošanu nesaistītas izmaksas, ja to summa nepārsniedz 30 % no būvniecības attiecināmo izmaksu kopsummas:
19.1. administratīvo telpu būvniecība vai rekonstrukcija;
19.2. apsardzes signalizācijas ierīkošana, ieskaitot videonovērošanas sistēmas;
19.3. personāla atpūtas telpu ierīkošana;
19.4. palīgtelpu ierīkošana, pamatojot to funkcionālo izmantošanu;
19.5. teritorijas labiekārtošana, kas ietver teritorijas asfaltēšanu vai cita klājuma izveidošanu, zāliena ierīkošanu, ārējo apgaismošanu un žoga izbūvi.
20. Publisko finansējumu piešķir tikai par atbalsta pretendenta īpašumā esošajām precēm. Ja preces pērk uz nomaksu, par tām publisko finansējumu izmaksā tikai tad, kad tās ir kļuvušas par atbalsta pretendenta īpašumu.
21. Pasākuma ietvaros ir šādas neattiecināmās izmaksas:
21.1. bankas procentu maksājumi, maksa par finanšu transakcijām, valūtas maiņas komisijas maksājumi un valūtas svārstību radītie zaudējumi;
21.2. naudas sodi, līgumsodi, nokavējuma procenti un tiesāšanās izdevumi;
21.3. tādu apakšlīgumu slēgšana, kuri palielina projekta izmaksas, bet nepievieno projektam vērtību un kuros samaksa ir noteikta procentos no kopējām projekta izmaksām;
21.4. izmaksas, kas saistītas ar jebkuru piegādi, pakalpojumu vai darbu, par kuru nav veikta atbilstoša iepirkuma procedūra saskaņā ar normatīvajiem aktiem par iepirkuma procedūras piemērošanu;
21.5. būvju uzturēšanas izmaksas;
21.6. tehniskās apkopes, rezerves daļu un ekspluatācijas izdevumi;
21.7. atlīdzība personālam;
21.8. vispārīgas nozīmes transportlīdzekļu izmaksas;
21.9. īpašuma vai pamatkapitāla daļu vai akciju iegāde;
21.10. izmaksas, kas pārsniedz tirgus cenu, un nepabeigtu darbu izmaksas;
21.11. citas izmaksas, kas nav attiecināmas saskaņā ar Padomes 2006.gada 27.jūlija Regulu (EK) Nr.1198/2006 par Eiropas Zivsaimniecības fondu un Komisijas 2007.gada 26.marta Regulu (EK) Nr.498/2007, ar ko paredz sīki izstrādātus noteikumus par to, kā īstenot Padomes Regulu (EK) Nr.1198/2006 par Eiropas Zivsaimniecības fondu.
VI. Dokumenti, kas iesniedzami pēc projekta īstenošanas
22. Pēc projekta īstenošanas atbalsta pretendents Lauku atbalsta dienestā iesniedz Pārtikas un veterinārā dienesta izziņu par projekta atbilstību minimālajām higiēnas prasībām (ja attiecināms).
23. Ja investīcijas veiktas jaunas zvejas produktu izkraušanas vietas izveidošanai, pirms publiskā finansējuma saņemšanas atbalsta pretendents Lauku atbalsta dienestā iesniedz Pārtikas un veterinārā dienesta izsniegtu zvejas produktu izkraušanas vietas reģistrācijas apliecības apliecinātu kopiju (uzrāda oriģinālu).
24. Pēc Lauku atbalsta dienesta pieprasījuma Valsts zivsaimniecības pārvalde sniedz informāciju:
24.1. par šo noteikumu 5.1.apakšpunktā minētā atbalsta pretendenta nozveju komerciālā zvejā;
24.2. par zvejnieku nozveju komerciālā zvejā šo noteikumu 5.2.apakšpunktā minētā atbalsta pretendenta ūdenstilpē, kurā veiktas investīcijas.
25. Šo noteikumu 5.2.apakšpunktā minētais atbalsta pretendents Lauku atbalsta dienestā iesniedz rūpnieciskās zvejas tiesību nomas līgumam pievienotā protokola apliecinātu kopiju (uzrāda oriģinālu), kurā norādīts nomniekam iedalīto zvejas rīku skaits vai zvejas limits iepriekšējā gadā ūdenstilpē, kurā veiktas investīcijas.
Ministru prezidents I.Godmanis
Zemkopības ministra vietā – vides ministrs R.Vējonis
Redakcijas piebilde: noteikumi stājas spēkā ar 2008.gada 16.oktobri.
| PDF 355 kb |
Zemkopības ministrijas iesniegtajā redakcijā
1.pielikums
Ministru kabineta
2008.gada 6.oktobra noteikumiem Nr.828
Zemkopības ministra vietā – vides ministrs R.Vējonis
2.pielikums
Ministru kabineta
2008.gada 6.oktobra noteikumiem Nr.828
Projektu atlases kritērijs
|
Kritēriju grupa |
Kritērijs |
Kritēriju punktu skaits |
|
Vidējais pēdējo triju gadu nozvejas apjoms ūdenstilpē vai ūdenstecē (komerciālajā zvejā) |
Par katriem nozvejotajiem 100 kilogramiem |
1 |
Zemkopības ministra vietā – vides ministrs R.Vējonis