
Ministru kabineta noteikumi Nr.182
Rīgā 2007.gada 20.martā (prot. Nr.19 4.§)
Noteikumi par nekustamā īpašuma objekta noteikšanu
Izdoti saskaņā ar Nekustamā īpašuma valsts kadastra likuma 22.pantu un 43.panta otro daļu
1. Vispārīgie jautājumi
1. Noteikumi nosaka:
1.1. dokumentus, kādus Nekustamā īpašuma valsts kadastra likuma 24.panta pirmās daļas 1., 3., 4., 5., 6.punktā un otrās daļas 1.punktā minētās personas (turpmāk – ierosinātājs) iesniedz Valsts zemes dienestam, lai uzsāktu nekustamā īpašuma objekta vai zemes vienības daļas noteikšanas procesu;
1.2. Valsts zemes dienesta rīcībā esošo dokumentu izmantošanu;
1.3. noteikšanas darba uzdevuma saturu, sagatavošanas un izsniegšanas kārtību un termiņus;
1.4. nekustamā īpašuma objekta un zemes vienības daļas kadastrālās uzmērīšanas kārtību, raksturojošos datus, to precizitāti, pieļaujamo nesaisti, raksturojošo datu grozīšanas kārtību, kadastrālās uzmērīšanas dokumentu saturu un saskaņošanas kārtību;
1.5. nekustamā īpašuma objekta apgrūtinājuma noteikšanas un aktualizācijas kārtību;
1.6. nekustamā īpašuma lietu un citu kadastra dokumentu glabāšanas kārtību;
1.7. termiņu, kurā jāveic kadastrālā uzmērīšana un kadastrālās uzmērīšanas dokumenti jāiesniedz reģistrācijai Nekustamā īpašuma valsts kadastra informācijas sistēmā (turpmāk – kadastra informācijas sistēma).
2. Nekustamā īpašuma objekta vai zemes vienības daļas noteikšanu ierosinātājs ierosina tajā Valsts zemes dienesta teritoriālajā struktūrvienībā, kuras darbības teritorijā atrodas nekustamais īpašums. Ierosinātājs uzrāda personu apliecinošu dokumentu un iesniedz iesniegumu par konkrētu nekustamā īpašuma objektu vai zemes vienības daļas noteikšanu. Iesniegumam pievieno šajos noteikumos noteiktos dokumentus. Iesniedzot dokumenta kopiju, uzrāda dokumenta oriģinālu vai dokumenta kopijai jābūt apliecinātai.
3. Valsts zemes dienests veic nekustamā īpašuma objekta vai zemes vienības daļas noteikšanu, pārbaudot informāciju:
3.1. kadastra informācijas sistēmā;
3.2. Valsts vienotajā datorizētajā zemesgrāmatā;
3.3. Valsts zemes dienesta rīcībā esošajā vietējās pašvaldības iesniegtajā teritorijas plānojumā, detālplānojumā vai zemes ierīcības projektā;
3.4. ierosinātāja iesniegtajos dokumentos.
4. Uzsākot nekustamā īpašuma objekta noteikšanas procesu, ievēro šādus nosacījumus:
4.1. pie dzīvokļa īpašumiem piederošo kopīpašumā esošo daudzdzīvokļu mājas un zemes daļu nesadala reālās daļās;
4.2. sadalot kopīpašumā esošus nekustamā īpašuma objektus, katrs jaunais nekustamā īpašuma objekts līdz īpašuma tiesību nostiprināšanai zemesgrāmatā ir kopīpašums, kas pieder visiem kopīpašniekiem tādās pašās domājamās daļās kā sadalāmais nekustamā īpašuma objekts;
4.3. ja uz kopīpašumā esošas zemes vienības atrodas zemes īpašniekiem piederoša kopīpašumā esoša būve un ja kopīpašnieki vienojas par tādu kopīpašuma reālās sadales veidu, kas saistīts arī ar būves sadali, šādu kopīpašumu reāli sadala tā, lai zemes sadales līnija sakristu ar būves sadales līniju, ko zemes virsmas līmenī veido pirmā stāva sadales vertikālā plakne, un katra atdalītā būve pilnībā atrastos atdalītās zemes vienības robežās;
4.4. apvieno:
4.4.1. tikai viena veida nekustamā īpašuma objektus – zemes vienību ar zemes vienību, būvi ar būvi, telpu grupu ar telpu grupu;
4.4.2. blakus esošus zemesgrāmatā ierakstītus nekustamā īpašuma objektus, izveidojot vienu nekustamā īpašuma objektu;
4.4.3. vairākiem īpašniekiem piederošus blakus esošus zemesgrāmatā ierakstītus nekustamā īpašuma objektus, izveidojot kopīpašumā esošu nekustamā īpašuma objektu;
4.5. nekustamā īpašuma objektus apvieno, ja zemes vienībām ir kopīgs vismaz viens robežu posms, būvēm ir kopīga vismaz viena ārējā plakne (siena), telpu grupas atrodas vienā būvē un telpu grupu norobežojošās plaknes (sienas vai pārsegumi) savstarpēji robežojas horizontālā vai vertikālā plaknē;
4.6. telpu nevar pievienot blakus esošai telpu grupai;
4.7. nekustamā īpašuma objekta noteikšana atbilst vietējās pašvaldības apstiprinātajiem apbūves noteikumiem.
5. Ja nekustamā īpašuma objekta vai zemes vienības daļas noteikšana ir pretrunā ar Nekustamā īpašuma valsts kadastra likumā, šajos noteikumos vai būvniecības, reģionālās un telpiskās plānošanas normatīvajos aktos noteiktajām prasībām vai Valsts vienotajā datorizētajā zemesgrāmatā ir konstatēta pretrunīga informācija, Valsts zemes dienests pieņem ierosinātāja iesniegumu un 10 darbdienu laikā sagatavo pamatotu atteikumu. Lēmumu par atteikumu ierosinātājs ir tiesīgs apstrīdēt Nekustamā īpašuma valsts kadastra likumā noteiktajā kārtībā.
2. Valsts zemes dienestā iesniedzamie dokumenti
6. Pēc kadastrālās uzmērīšanas vai ierosinot datu aktualizāciju (ja netiek veikta kadastrālā uzmērīšana), ierosinātājs Valsts zemes dienestā iesniedz:
6.1. vietējās pašvaldības lēmumu par:
6.1.1. adreses piešķiršanu, anulēšanu vai maiņu, ja zemes vienība ir adresācijas objekts un ja adrese nav reģistrēta Valsts adrešu reģistrā;
6.1.2. nekustamā īpašuma lietošanas mērķu un lietošanas mērķiem piekrītošo zemes platību noteikšanu;
6.2. zemes kadastrālās uzmērīšanas lietu, ja to nav iesniegusi zemes kadastrālajā uzmērīšanā sertificēta persona (turpmāk – mērnieks).
7. Lai uzsāktu uzbūvētas, rekonstruētas vai renovētas ēkas, jaunbūves vai telpu grupas noteikšanas procesu, ierosinātājs Valsts zemes dienestā:
7.1. uzrāda vienu no likumā “Par nekustamā īpašuma ierakstīšanu zemesgrāmatās” noteiktā būves tiesisku iegūšanu apliecinoša dokumenta oriģinālu vai tā atvasinājumu;
7.2. uzrāda būvniecību regulējošajos normatīvajos aktos noteiktajā kārtībā apstiprinātu būvprojektu un izsniegtu būvatļauju;
7.3. uzrāda aktu par būves pieņemšanu ekspluatācijā, ja būve ir pieņemta ekspluatācijā;
7.4. ja būve ir patstāvīgs nekustamā īpašuma objekts, papildus šo noteikumu 7.1., 7.2. un 7.3.apakšpunktā minētajiem dokumentiem uzrāda zemes nomas līgumu, kas noslēgts uz laiku, ne mazāku par 10 gadiem, un kurā ir paredzētas tiesības celt uz iznomātās zemes būves kā patstāvīgus īpašuma objektus;
7.5. iesniedz pašvaldības lēmumu par adreses piešķiršanu, anulēšanu vai maiņu, ja būve vai telpu grupa ir adresācijas objekts un ja adrese nav reģistrēta Valsts adrešu reģistrā.
8. Lai uzsāktu inženierbūves noteikšanas procesu, ierosinātājs Valsts zemes dienestā uzrāda:
8.1. vienu no likumā “Par nekustamā īpašuma ierakstīšanu zemesgrāmatās” noteiktā būves tiesisku iegūšanu apliecinoša dokumenta oriģinālu vai tā atvasinājumu;
8.2. aktu par būves pieņemšanu ekspluatācijā, ja būve ir pieņemta ekspluatācijā;
8.3. ja būve ir patstāvīgs nekustamā īpašuma objekts – zemes nomas līgumu, kas noslēgts uz laiku, ne mazāku par 10 gadiem, un kurā ir paredzētas tiesības uz iznomātās zemes celt būves kā patstāvīgus īpašuma objektus;
8.4. būvniecību regulējošajos normatīvajos aktos noteiktajā kārtībā apstiprinātu būvprojektu;
8.5. būvniecību regulējošajos normatīvajos aktos noteiktajā kārtībā izsniegtu būvatļauju;
8.6. inženierbūves pasi vai inženierbūves tehnisko pasi;
8.7. inženierbūves izpildrasējumus;
8.8. inženierbūves reģistrācijas apliecību, ja reģistrācija paredzēta būvniecību regulējošajos normatīvajos aktos;
8.9. nozīmīgo konstrukciju un segto darbu pieņemšanas aktus pazemes un zemūdens inženierbūvēm.
9. Lai uzsāktu zemes vienības daļas noteikšanas procesu, ierosinātājs Valsts zemes dienestā iesniedz zemes robežu plāna kopiju, kurā attēlotas zemes vienības daļas robežas un norādīta iznomājamās zemes vienības daļas platība. Atsevišķo zemes vienības daļu platību summa nedrīkst pārsniegt zemes vienības platību. Zemes vienības daļas kadastrālo uzmērīšanu veic pēc ierosinātāja pieprasījuma.
10. Lai uzsāktu noteikšanas procesu nekustamā īpašuma objektam, kas nodrošina vairāku īpašumu apsaimniekošanu vai kuru kopīgi izmanto vairāki tā īpašnieki uz kopīpašuma tiesības pamata, ierosinātājs Valsts zemes dienestā iesniedz īpašnieku notariāli apliecinātu savstarpēju vienošanos, kurā ir skaitliski norādīts katra īpašnieka domājamās daļas apmērs. Domājamo daļu apmēra noteikšanai īpašnieki izmanto zemesgrāmatā reģistrētos datus vai kadastrālās uzmērīšanas datus.
11. Lai uzsāktu noteikšanas procesu, kurā no kopīpašumā esoša nekustamā īpašuma objekta nodalīto reālo daļu nosaka par jaunu nekustamā īpašuma objektu, ierosinātājs Valsts zemes dienestā iesniedz kopīpašnieku vienošanos apliecinošu dokumentu vai tiesas nolēmumu par kopīpašuma reālu sadali, kura atbilst teritorijas plānošanas, būvniecību un zemes ierīcību regulējošajos normatīvajos aktos noteiktajā kārtībā izstrādātajam un apstiprinātajam detālplānojumam vai zemes ierīcības projektam.
12. Lai uzsāktu noteikšanas procesu, kurā no zemes vienības atdalītu daļu, to nenosakot par jaunu zemes vienību, pievieno blakus esošai zemes vienībai, ierosinātājs Valsts zemes dienestā iesniedz īpašnieku noslēgtu darījuma līgumu, kurā norādītā atdalītās daļas platība atbilst teritorijas plānošanas un zemes ierīcību regulējošajos normatīvajos aktos noteiktajā kārtībā izstrādātajam un apstiprinātajam detālplānojumam vai zemes ierīcības projektam.
3. Noteikšanas darba uzdevuma saturs, sagatavošanas un izsniegšanas kārtība un termiņi
13. Lai informētu par noteikšanas procesā obligāti veicamajām un ieteicamajām darbībām, Valsts zemes dienests sagatavo un vienas darbdienas laikā izsniedz ierosinātājam noteikšanas darba uzdevumu atbilstoši šo noteikumu 1.pielikumam.
14. Noteikšanas darba uzdevumu pēc ierosinātāja pieprasījuma sagatavo, ja nepieciešams:
14.1. sadalīt vai apvienot nekustamā īpašuma objektus;
14.2. reģistrēt jaunu nekustamā īpašuma objektu;
14.3. konstatēt būves neesības faktu;
14.4. pievienot blakus esošai zemes vienībai no zemes vienības atdalītu daļu;
14.5. sadalīt kopīpašumā esošu nekustamā īpašuma objektu reālās daļās;
14.6. noteikt nomas vajadzībām zemes vienības daļu;
14.7. grozīt dzīvokļa īpašumu regulējošajos normatīvajos aktos noteiktajā kārtībā dzīvokļa īpašumos esošās kopīpašuma domājamās daļas;
14.8. aktualizēt kadastra datus par nekustamā īpašuma objektu vai zemes vienības daļu.
15. Noteikšanas darba uzdevumu sagatavo divos eksemplāros. Vienu eksemplāru izsniedz ierosinātājam (kopīpašuma tiesību gadījumā noteikšanas darba uzdevumu sagatavo izsniegšanai katram ierosinātājam), bet otru eksemplāru glabā Valsts zemes dienestā.
16. Ja nosaka zemes vienību vai būvi, noteikšanas darba uzdevumā ierosinātājam norāda šādas ieteicamās darbības:
16.1. ceļa servitūta un attiecīgā nekustamā īpašuma objekta apgrūtinājuma nodibināšanu, lai nodrošinātu piekļūšanas iespējas;
16.2. ūdensvada servitūta un attiecīgā nekustamā īpašuma objekta apgrūtinājuma nodibināšanu, lai nodrošinātu ūdensapgādes un kanalizācijas izmantošanas iespējas;
16.3. servitūta virszemes vai pazemes komunikāciju (piemēram, elektroapgādes, gāzes apgādes) būvniecību un attiecīgā nekustamā īpašuma objekta apgrūtinājuma nodibināšanu.
17. Noteikšanas darba uzdevumā norādītās ieteicamās darbības veic normatīvajos aktos (Civillikumā) noteiktajā kārtībā uz savstarpējās vienošanās pamata starp kadastra subjektu un citām personām vai uz tiesas nolēmuma pamata.
4. Zemes kadastrālā uzmērīšana
4.1. Vispārīgie jautājumi
18. Zemes kadastrālās uzmērīšanas darbības ir šādas:
18.1. uzmērīšanas pamattīkla un (vai) sabiezinošā uzmērīšanas tīkla ierīkošana;
18.2. nepieciešamās informācijas pieprasīšana un saņemšana;
18.3. zemes īpašnieku un pierobežnieku uzaicināšana;
18.4. iepriekš noteikto robežu apsekošana un (vai) atjaunošana apvidū;
18.5. detālplānojuma un (vai) zemes ierīcības projekta izlikšana apvidū;
18.6. robežu saskaņošana;
18.7. robežu nostiprināšana;
18.8. robežu uzmērīšana apvidū;
18.9. apvidus objektu uzmērīšana;
18.10. transformētās meža zemes robežu uzmērīšana;
18.11. transformētās lauksaimniecībā izmantojamās zemes robežu uzmērīšana;
18.12. zemes vienības daļas uzmērīšana;
18.13. zemes uzmērīšana būvju ierakstīšanai zemesgrāmatā;
18.14. platību aprēķināšana;
18.15. zemes kadastrālās uzmērīšanas lietas sakārtošana.
19. Veicot zemes kadastrālo uzmērīšanu, mērnieks izmanto vietējās pašvaldības apstiprināto vietējās pašvaldības teritorijas plānojumu, detālplānojumu vai zemes ierīcības projektu, vai informāciju no vietējās pašvaldības teritorijas plānojuma, detālplānojuma vai zemes ierīcības projekta par uzmērāmo zemes vienību (papīra un digitālā formā), kā arī ievēro šajos noteikumos noteikto zemes kadastrālās uzmērīšanas un raksturojošo datu grozīšanas kārtību un nodrošina zemes vienības vai zemes vienības daļas raksturojošo datu iegūšanu, to precizitāti, pieļaujamo nesaisti un zemes kadastrālās uzmērīšanas dokumentu saturu un saskaņošanas kārtību.
20. Zemes kadastrālo uzmērīšanu veic mērnieks, lai apvidū iegūtu datus par zemes vienības vai zemes vienības daļas robežām, virszemes un (vai) apakšzemes apvidus objektiem uzmērīšanas dienā un sastādītu kadastrālās uzmērīšanas dokumentus (2.pielikums). Zemes kadastrālajā uzmērīšanā iegūtos tehniskos datus iesniedz reģistrācijai kadastra informācijas sistēmā. Zemes kadastrālās uzmērīšanas lietu un datus iesniedz reģistrācijai kadastra informācijas sistēmā divu gadu laikā pēc tam, kad no kadastra informācijas sistēmas saņemta informācija par uzmērāmo objektu un blakus esošajām zemes vienībām. Pēc minētā termiņa iegūtie dati kadastra informācijas sistēmā netiek reģistrēti.
21. Ja zemes vienības robežas iepriekš noteiktas, izmantojot grafiskās metodes, un nepieciešams sadalīt zemes vienību, zemes kadastrālo uzmērīšanu veic atdalāmajai daļai, bet paliekošās daļas zemes kadastrālo uzmērīšanu veic tikai pēc ierosinātāja pieprasījuma. Ja nepieciešams sadalīt zemes vienību, kas atrodas pilsētas, ciema, vasarnīcu vai dārzkopības apbūves teritorijā, zemes kadastrālo uzmērīšanu veic arī paliekošajai daļai. Apvienojot zemes vienības, kuru robežas iepriekš noteiktas ar vienādu precizitāti, zemes kadastrālo uzmērīšanu veic tikai pēc ierosinātāja pieprasījuma. Ja apvieno zemes vienības, kuru robežas iepriekš noteiktas ar atšķirīgu precizitāti (veikta to instrumentāla uzmērīšana, un robežas noteiktas, izmantojot grafiskās metodes), jaunajai (apvienotajai) zemes vienībai veic zemes kadastrālo uzmērīšanu.
22. Šo noteikumu 21.punktā minētajos gadījumos atdalītajai vai apvienotajai zemes vienībai un paliekošajai daļai sastāda zemes robežu plānu, situācijas plānu un apgrūtinājumu plānu. Paliekošajai daļai informāciju atbilstoši jaunajām zemes vienības robežām pārnes no iepriekš izgatavotajiem attiecīgajiem plāniem, izmantojot grafiskās metodes.
23. Zemes kadastrālajā uzmērīšanā apvidū iegūtos raksturojošos datus var izmantot dažādu tematisko plānu, shēmu un citu informatīvu grafisko materiālu izgatavošanai.
24. Ja robežposmi starp blakus esošajām zemes vienībām ir kopēji, zemes kadastrālajā uzmērīšanā saglabā uz robežlīnijas esošo iepriekš uzmērīto zemes vienību robežpunktu koordinātas un punktu numurus. Ja blakus esošā zemes vienība instrumentāli uzmērīta citā koordinātu sistēmā, iepriekš uzmērīto zemes vienību robežpunktu koordinātas vispirms pārrēķina Latvijas ģeodēzisko koordinātu sistēmā LKS-92 (turpmāk – LKS-92 koordinātu sistēma).
25. Zemes vienības platību, kas aprēķināta, izmantojot grafiskās metodes, zemes kadastrālās uzmērīšanas dokumentos un kadastra informācijas sistēmā aktualizē atbilstoši zemes kadastrālajā uzmērīšanā noteiktajai platībai.
26. Zemes kadastrālās uzmērīšanas rezultāts ir:
26.1. apvidū noteiktas, nostiprinātas un koordinētas zemes vienības vai zemes vienības daļas robežzīmes;
26.2. sastādīta un Valsts zemes dienesta arhīvā iesniegta zemes kadastrālās uzmērīšanas lieta;
26.3. ierosinātājam izsniegti zemes kadastrālās uzmērīšanas kartogrāfiskie materiāli (plāni) un citi nepieciešamie dokumenti (akti).
27. Ja var nodrošināt pārskatāmu plāna elementu attēlošanu un ierosinātājs rakstiski to ir pieprasījis, tad zemes robežu plānu var apvienot ar situācijas plānu un apgrūtinājumu plānu. Titullapā izdara uzrakstu “Zemes vienības robežu, situācijas un apgrūtinājumu plāns”.
28. Zemes kadastrālās uzmērīšanas darbiem izvēlas tādus ģeodēziskos vai mērniecības instrumentus, kas nodrošina šajos noteikumos minētās mērījumu vai novērojumu precizitātes prasības.
29. Mērnieks ne retāk kā reizi gadā nodrošina šo noteikumu 28.punktā minēto zemes kadastrālās uzmērīšanas instrumentu (kopā ar palīgierīcēm) pārbaudi un, ja nepieciešams, kalibrēšanu. Globālās pozicionēšanas instrumentus kalibrē un verificē ražotāja noteiktajos termiņos.
4.2. Zemes kadastrālās uzmērīšanas precizitāte
30. Zemes kadastrālo uzmērīšanu veic atbilstoši šo noteikumu 3.pielikumā noteiktajām zemes kadastrālās uzmērīšanas precizitātes prasībām.
31. Precizitātes prasības attiecina uz:
31.1. mērījumiem;
31.2. novērojumiem, kas iegūti, izmantojot globālās pozicionēšanas metodi;
31.3. uzmērīšanas tīklu izveidošanu un izlīdzināšanu;
31.4. robežpunktu koordinātām.
32. Uzmērīšanas tīkla izveidošanai un zemes kadastrālajai uzmērīšanai atkarībā no ierīkojamo punktu un zemes vienības atrašanās vietas ir šādas precizitātes prasības:
32.1. pilsētā – 1.precizitātes kategorija;
32.2. ciema, vasarnīcu vai dārzkopības apbūves teritorijā – 2.precizitātes kategorija;
32.3. lauku apvidū – 3.precizitātes kategorija.
33. Zemes kadastrālās uzmērīšanas noteiktības rādītāji (precizitātes prasības mērījumiem un novērojumiem, kas iegūti, izmantojot globālās pozicionēšanas metodi, uzmērīšanas tīklu izveidošanai un izlīdzināšanai, robežpunktu, tajā skaitā dabīgo robežu pagriezienu punktu, kā arī uz esošas robežlīnijas papildu robežpunkta ierīkošanai) norādīti šo noteikumu 3.pielikumā.
34. Noteikšanas precizitāti aprēķina attiecībā pret tiem punktiem, no kuriem veikta punkta koordinēšana:
34.1. uzmērīšanas pamattīkla punktiem – attiecībā pret valsts ģeodēziskā tīkla punktiem;
34.2. sabiezinošā uzmērīšanas tīkla punktiem – attiecībā pret uzmērīšanas pamattīkla vai valsts ģeodēziskā tīkla punktiem;
34.3. robežpunktiem un dabīgo robežu pagrieziena punktiem – attiecībā pret uzmērīšanas vai valsts ģeodēziskā tīkla punktiem.
35. Par zemes vienības vai zemes vienības daļas robežu uzmērīšanas precizitātes rādītāju izmanto punktu noteikšanas precizitāti. Precizitātes rādītājus iegūst novērojumu izlīdzināšanā kā izlīdzināto koordinātu vērtību vidējās kvadrātiskās novirzes.
4.3. Zemes kadastrālajai uzmērīšanai nepieciešamais uzmērīšanas tīkls
4.3.1. Uzmērīšanas tīklu veidi
36. Zemes kadastrālo uzmērīšanu veic, izmantojot kādu no šādiem tīkliem:
36.1. valsts ģeodēzisko tīklu;
36.2. uzmērīšanas pamattīklu;
36.3. sabiezinošo uzmērīšanas tīklu.
37. Uzmērīšanas pamattīklu un (vai) sabiezinošo uzmērīšanas tīklu ierīko, ja valsts horizontālā ģeodēziskā tīkla punktu blīvums nenodrošina zemes kadastrālās uzmērīšanas prasību izpildi.
4.3.2. Valsts ģeodēziskā tīkla punktu izmantošana
38. Lai iegūtu zemes kadastrālajai uzmērīšanai vai uzmērīšanas tīkla ierīkošanai nepieciešamo informāciju par valsts ģeodēziskā tīkla punktiem, mērnieks izmanto vienu no šādiem informācijas avotiem:
38.1. vienoto ģeogrāfisko pamatdatu informācijas sistēmu;
38.2. Latvijas Republikas ģeodēzisko punktu koordinātu katalogus;
38.3. noteiktā kārtībā pieņemtos un apstiprinātos ģeodēziskā tīkla izveidošanas tehniskos pārskatus.
39. Zemes kadastrālajā uzmērīšanā izmanto valsts ģeodēziskos punktus, kas veido:
39.1. valsts ģeodēzisko pamattīklu;
39.2. valsts ģeodēzisko aizpildošo tīklu;
39.3. valsts ģeodēzisko sabiezinošo tīklu;
39.4. poligonometrijas tīklu;
39.5. triangulācijas tīklu.
40. Ja mērnieks izmantojis šo noteikumu 38.2. vai 38.3.apakšpunktā minēto informāciju, viņš sagatavo un pievieno uzmērīšanas pamattīkla lietai vai zemes kadastrālās uzmērīšanas lietai valsts ģeodēzisko punktu datu izrakstu.
4.3.3. Uzmērīšanas pamattīkla ierīkošana
41. Lai nodrošinātu zemes kadastrālo uzmērīšanu, mērnieks ierīko uzmērīšanas pamattīklu.
42. Uzmērīšanas pamattīklu ierīko vienas vai vairāku zemes vienību kadastrālajai uzmērīšanai kā:
42.1. atsevišķus instrumentālus gājienus vai instrumentālu gājienu sistēmas ar mezglu punktiem vai bez tiem;
42.2. vienotu leņķu un (vai) līniju kombinētu tīklu;
42.3. globālās pozicionēšanas tīklu.
43. Uzmērīšanas pamattīklu ierīko, lai tā punktu blīvums nodrošinātu sabiezinošā uzmērīšanas tīkla veidošanu.
44. Uzmērīšanas pamattīklu veido un uzmēra no vismaz trim horizontālā valsts ģeodēziskā tīkla punktiem.
45. Uzmērīšanas pamattīkla punktus nostiprina apvidū ar pastāvīgām ģeodēziskajām zīmēm.
46. Visiem uzmērīšanas pamattīkla punktiem, kā arī robežpunktiem ierīkošanas laikā sastāda piesaistes abrisus (4.pielikums). Piesaistes abrisā attēlo ģeodēziskās zīmes materiālu un formu.
47. Uzmērīšanas pamattīkla mērījumus un (vai) novērojumus izlīdzina, izmantojot metodes un licencētas datorprogrammas, kas ļauj aprēķināt nosakāmo punktu izlīdzināto koordinātu vidējās kvadrātiskās novirzes (3.pielikuma 1. un 2.tabula).
48. Uzmērīšanas pamattīkls ir izveidots, ja apvidū ir ierīkotas un koordinētas ģeodēziskās zīmes un ir sakārtota uzmērīšanas pamattīkla lieta. Uzmērīšanas pamattīkla lietā iekļauj šo noteikumu 5.pielikumā noteikto obligāto informāciju.
49. Uzmērīšanas pamattīkla izveidošanas dokumentus iešuj zemes kadastrālās uzmērīšanas lietā.
4.3.4. Sabiezinošā uzmērīšanas tīkla ierīkošana
50. Sabiezinošais uzmērīšanas tīkls nepieciešams zemes vienības, zemes vienības daļas robežpunktu un apvidus situācijas objektu uzmērīšanā.
51. Mērnieks sabiezinošo uzmērīšanas tīklu ierīko:
51.1. pamatojoties uz uzmērīšanas pamattīklu un (vai) valsts ģeodēzisko tīklu;
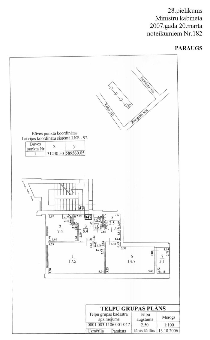
51.2. vienlaikus ar zemes kadastrālo uzmērīšanu vai atsevišķi.
52. Sabiezinošais uzmērīšanas tīkls sastāv no atsevišķiem instrumentāliem gājieniem vai instrumentālu gājienu sistēmām vai arī to veido kā leņķu un (vai) līniju kombinētu tīklu.
53. Instrumentālu gājienu ierīko, pievienojoties (veicot līniju mērīšanu) vismaz diviem valsts ģeodēziskā tīkla un (vai) uzmērīšanas pamattīkla punktiem. Vismaz vienā no sabiezinošā uzmērīšanas tīkla punktiem obligāti jāmēra pieslēgleņķis uz valsts ģeodēziskā tīkla un (vai) uzmērīšanas pamattīkla punktiem. Ja pieslēgleņķus izmērīt nav iespējams, pievienojas, veicot līniju mērīšanu vismaz trijiem valsts ģeodēziskā tīkla un (vai) uzmērīšanas pamattīkla punktiem.
54. Sabiezinošā uzmērīšanas tīkla gājienu punktus apvidū nostiprina tādā veidā, lai tie saglabātos līdz zemes kadastrālās uzmērīšanas darbu pabeigšanai.
55. Ierīkojot sabiezinošo uzmērīšanas tīklu, leņķus mēra ar pilnu paņēmienu.
56. Sabiezinošā uzmērīšanas tīkla novērojumus izlīdzina, izmantojot licencētas datorprogrammas, kas sniedz noteiktības novērtējumu. Sabiezinošo uzmērīšanas tīklu izvērtē pēc tīkla punktu koordinātu vidējām kvadrātiskajām novirzēm. Novirzēm jāatbilst šo noteikumu 3.pielikuma 1. un 3.tabulā noteiktajām prasībām.
57. Sabiezinošo uzmērīšanas tīklu var papildināt ar karātnes gājieniem, kuros katrā ir ne vairāk kā trīs no jauna ierīkojamie sabiezinošā uzmērīšanas tīkla punkti.
58. Karātnes gājiena garums nedrīkst pārsniegt 200 metrus, un karātnes gājiena orientēšanai izmantotās līnijas garums nedrīkst būt mazāks par 50 metriem. Vietās, kur šo prasību nav iespējams izpildīt, minētos attālumus var samazināt, lai karātnes gājiena garums pret karātnes gājiena orientēšanai izmantotās līnijas garumu veidotu attiecību 4:1, bet karātnes gājiena orientēšanai izmantotās līnijas garums nebūtu mazāks par 10 metriem. Ja karātnes gājiens ir īsāks par 70 metriem, atļauts ierīkot tikai vienu sabiezinošā uzmērīšanas tīkla punktu.
59. Sabiezinošā uzmērīšanas tīkla izveidošanas rezultāts ir apvidū ierīkotie un koordinētie sabiezinošā uzmērīšanas tīkla punkti, iegūtie un izlīdzinātie ģeodēziskie dati un sabiezinošā uzmērīšanas tīkla shēma. Ja zemes kadastrālā uzmērīšana vienlaikus veikta vairākām zemes vienībām vai to daļām, sabiezinošā uzmērīšanas tīkla ģeodēziskos datus un shēmu pievieno katrai zemes kadastrālās uzmērīšanas lietai.
4.4. Zemes kadastrālajai uzmērīšanai nepieciešamās informācijas pieprasīšana un saņemšana
60. Mērnieks informāciju par uzmērāmo objektu pieprasa un saņem no:
60.1. ierosinātāja;
60.2. Valsts zemes dienesta;
60.3. Latvijas ģeotelpiskās informācijas aģentūras;
60.4. vietējās pašvaldības.
61. Ierosinātājs mērniekam iesniedz šādu dokumentu oriģinālus vai to atvasinājumus:
61.1. līgumu vai tiesas nolēmumu kopā ar grafiskajiem pielikumiem, uz kuru pamata noteikts (nodibināts) nekustamā īpašuma objekta apgrūtinājums, ja tas nav iekļauts detālplānojumā vai zemes ierīcības projektā;
61.2. vietējās pašvaldības lēmumu par adreses piešķiršanu apbūvei paredzētajai zemes vienībai vai lēmumu par adreses anulēšanu, ja adrese nav reģistrēta Valsts adrešu reģistrā;
61.3. meža inventarizācijas dokumentus;
61.4. meliorācijas pasi;
61.5. citus normatīvajos aktos noteiktos dokumentus, kas nepieciešami zemes kadastrālajai uzmērīšanai.
62. Valsts zemes dienests mērniekam nodrošina iespēju iepazīties ar arhīvā glabātajiem zemes kadastrālās uzmērīšanas dokumentiem un vietējās pašvaldības teritorijas plānojumiem vai detālplānojumiem par uzmērāmo objektu un blakus esošajām zemes vienībām, kā arī veikt nepieciešamos izrakstus. Valsts zemes dienests pēc mērnieka pieprasījuma sagatavo dokumentu kopijas un izsniedz:
62.1. kadastra informācijas sistēmas informāciju par uzmērāmo objektu un par blakus esošajām zemes vienībām, to adresēm, kā arī pierobežniekiem;
62.2. informāciju par administratīvo teritoriju robežām;
62.3. topogrāfiskos datus mērogā 1:1000, 1:500 un 1:250 un iepriekš veiktās zemes kadastrālās uzmērīšanas datus vektordatu formātā, ja tādi ir;
62.4. no arhīvā glabātajām lietām zemes robežu noteikšanas aktu, zemes robežu plānu, abrisu un zemes robežu atjaunošanas aktu kopijas par uzmērāmo objektu un par blakus esošajām zemes vienībām.
63. Latvijas ģeotelpiskās informācijas aģentūra pēc mērnieka pieprasījuma izsniedz valsts ģeodēziskā tīkla punktu koordinātu izrakstu ar punktu piesaistes abrisiem. Ja īpašuma robežas jānosaka vai jāuzmēra pa normālo ūdensstāvokļa līniju, izsniedz valsts ģeodēziskā vertikālā atbalsta tīkla punktu informāciju.
64. Vietējā pašvaldība pēc mērnieka pieprasījuma izsniedz par maksu vektordatu formā LKS-92 koordinātu sistēmā šādus dokumentus (papīra vai digitālā veidā):
64.1. apstiprinātos topogrāfiskās uzmērīšanas materiālus, kas sastādīti detālplānojuma izstrādāšanai;
64.2. spēkā esošo vietējās pašvaldības teritorijas plānojumu vai detālplānojumu.
65. Mērnieks izvērtē no Valsts zemes dienesta saņemtos dokumentus. Ja mērnieks konstatē, ka tos nevar izmantot zemes kadastrālajā uzmērīšanā vai robežu atjaunošanā, viņš sastāda darba pārtraukšanas aktu (6.pielikums) un norāda darba pārtraukšanas iemeslus. Darba pārtraukšanas aktu sastāda trijos eksemplāros. Vienu eksemplāru glabā mērnieks, otru nosūta ierosinātājam, trešo iesniedz Valsts zemes dienestā.
66. Valsts zemes dienests 30 dienu laikā pēc darba pārtraukšanas akta saņemšanas izvērtē aktā minētos darba pārtraukšanas iemeslus (ja nepieciešams, veic pārbaudi apvidū) un sagatavo rakstisku atzinumu. Ja darba pārtraukšanas aktā minētie iemesli neapstiprinās, Valsts zemes dienests atzinumu nosūta ierosinātājam un mērniekam zemes kadastrālās uzmērīšanas vai robežu atjaunošanas darbu turpināšanai. Ja darba pārtraukšanas aktā minētie iemesli apstiprinās, Valsts zemes dienests atzinumā norāda trūkumu novēršanas iespējamo risinājumu un atzinumu nosūta ierosinātājam un mērniekam. Darba pārtraukšanas akta sastādīšanas faktu ierosinātājs var apstrīdēt Valsts zemes dienestā.
4.5. Zemes īpašnieku un pierobežnieku uzaicināšana
67. Ne vēlāk kā 10 kalendāra dienas iepriekš uz robežu noteikšanu, apsekošanu vai atjaunošanu uzaicina ierosinātāju un pierobežniekus (arī tos pierobežniekus, kuru īpašumi atrodas robežojošajā administratīvajā teritorijā). Uzaicinot personīgi, ierosinātājam un pierobežniekam izsniedz pavēsti, kas noformēta atbilstoši šo noteikumu 7.pielikumam. Ierosinātājs un pierobežnieks pavēstes saņemšanu apliecina, parakstot pavēstes pasakni.
68. Ja ierosinātājs ir viens no kopīpašniekiem, uz robežu noteikšanu uzaicina visus kopīpašniekus.
69. Pierobežniekus, kuru īpašumiem robežas jau ir noteiktas zemes robežu noteikšanas aktā, uz robežu noteikšanu neuzaicina, ja:
69.1. uz kopējiem robežposmiem netiek ierīkotas jaunas robežzīmes;
69.2. ir veikta zemes robežu apsekošana un, ja nepieciešams, atjaunošana.
70. Zemes robežu stāvoklis atbilst tehniskajām prasībām, ja:
70.1. robežzīmes nav pārvietotas vai iznīcinātas un to izvietojums apvidū atbilst zemes robežu plānam;
70.2. robežzīmju nostiprinājuma veids atbilst aprakstam zemes robežu noteikšanas aktā;
70.3. pa aizaugušām vietām ir izveidotas un uzturētas līdz vienam metram platas robežstigas uz katru pusi no robežlīnijas, kas nodrošina redzamību starp blakus esošajiem uz robežlīnijas izvietotajiem robežpunktiem.
71. Uzsākot robežu noteikšanas, apsekošanas vai atjaunošanas darbus apvidū, uzaicinātās personas vai to pilnvarotās personas mērniekam uzrāda personu apliecinošu dokumentu.
72. Uzaicināto personu pilnvarotās personas papildus šo noteikumu 71.punktā minētajam dokumentam uzrāda:
72.1. fiziskā persona – notariāli apstiprinātu pilnvaru (iesniedz tās kopiju);
72.2. juridiskā persona – pilnvaru vai dokumentu, kas apliecina tiesības bez īpaša pilnvarojuma pārstāvēt attiecīgo juridisko personu (iesniedz tā kopiju).
73. Par neierašanos ierosinātājs brīdina mērnieku vismaz četras darbdienas iepriekš vai arī lūdz pārcelt robežu noteikšanu, apsekošanu vai atjaunošanu uz citu laiku. Ja mērnieks ir saņēmis ierosinātāja rakstisku atteikumu ierasties uz robežu noteikšanu, apsekošanu vai atjaunošanu, zemes kadastrālās uzmērīšanas darbības neveic.
74. Ja uz zemes vienības robežu noteikšanu, apsekošanu vai atjaunošanu neierodas pierobežnieks vai pierobežnieki vai uz kopīpašumā esošas zemes vienības robežu noteikšanu, apsekošanu vai atjaunošanu neierodas uzaicinātais kopīpašnieks vai kopīpašnieki (izņemot ierosinātāju), zemes kadastrālās uzmērīšanas darbības veic bez to klātbūtnes.
75. Ja ir saņemts ierosinātāja vai vismaz viena kopīpašnieka (kopīpašuma gadījumā) rakstisks lūgums pārcelt robežu noteikšanu, apsekošanu vai atjaunošanu uz citu laiku, mērnieks par to informē uzaicinātās personas, nosaka robežu noteikšanas, apsekošanas vai atjaunošanas galīgo datumu un atkārtoti šo noteikumu 67.punktā noteiktajā kārtībā uzaicina uz robežu noteikšanu, apsekošanu vai atjaunošanu.
4.6. Iepriekš noteikto robežu apsekošana un atjaunošana apvidū
76. Iepriekš noteikto zemes robežu apsekošanu veic šādos gadījumos:
76.1. izliekot apvidū detālplānojumu vai zemes ierīcības projektu;
76.2. uzmērot iepriekš noteiktās zemes robežas;
76.3. kā atsevišķu darbību pēc ierosinātāja pieprasījuma.
77. Zemes robežu apsekošana un, ja nepieciešams, atjaunošana apvidū ir neatņemama zemes kadastrālās uzmērīšanas sastāvdaļa, lai noskaidrotu, vai robežas atbilst šo noteikumu 70.punktā minētajām tehniskajām prasībām. Robežu apsekošanu veic vizuāli un, ja nepieciešams, izdara mērījumus iepriekš sastādītajā zemes robežu plānā un atbilstošos instrumentālos mērījumus apvidū.
78. Apsekošanu veic tiem robežu posmiem, kuri ir kopēji uzmērāmajai zemes vienībai un blakus esošajām zemes vienībām ar iepriekš noteiktajām robežām.
79. Robežu apsekošanu organizē un veic mērnieks, pieaicinot ierosinātāju un pierobežniekus.
80. Apsekojot robežas, mērnieks sastāda robežu apsekošanas aktu. Ja robežas tiek atjaunotas, mērnieks sastāda robežu atjaunošanas aktu. Ja minētos darbus veic vienlaikus, sastāda zemes robežu apsekošanas un atjaunošanas aktu atbilstoši šo noteikumu 8.pielikumam. Zemes robežu apsekošanas aktu, zemes robežu atjaunošanas aktu un zemes robežu apsekošanas un atjaunošanas aktu sastāda tik eksemplāros, lai pa vienam eksemplāram izsniegtu katrai uzaicinātajai personai un vienu eksemplāru pievienotu zemes kadastrālās uzmērīšanas lietai.
81. Ja zemes robežu apsekošanas akta atzinumā norādīts, ka robežzīmes nav jāatjauno, mērnieks un uzaicinātās personas paraksta aktu. Ja zemes robežu apsekošanas akta atzinumā norādīts, ka robežzīmes jāatjauno, mērnieks organizē un apvidū veic robežzīmju atjaunošanu, pieaicinot ierosinātāju un ieinteresētos pierobežniekus.
82. Zemes vienībai, kurai atjauno iepriekš ar grafiskajām metodēm noteiktās apvidū neesošās robežzīmes, to atjaunošanai izmanto attiecīgo zemes robežu plānu kopā ar zemes robežu noteikšanas aktu.
83. Lai atjaunotu zemes vienības robežzīmes, kā palīgmateriālu pēc izvērtēšanas izmanto:
83.1. robežojošo zemes vienību zemes robežu plānus un zemes robežu noteikšanas aktus;
83.2. zemes robežu noteikšanas procesā sastādītos abrisus un fotoplānu.
84. Lai atjaunotu iepriekš instrumentāli uzmērītās apvidū neesošās robežzīmes, izmanto:
84.1. zemes robežu plānā ierakstītās robežpunktu koordinātas;
84.2. zemes robežu noteikšanas aktu un abrisu.
85. Apvidū neesošās robežzīmes un robežstigas pēc mērnieka norādījuma atjauno ierosinātājs kopā ar pierobežniekiem. Pēc robežzīmju un robežstigu atjaunošanas mērnieks papildina zemes robežas apsekošanas un atjaunošanas aktu ar informāciju atbilstoši šo noteikumu 8.pielikumam vai sastāda zemes robežu atjaunošanas aktu.
86. Ja kāda no uzaicinātajām klātesošajām personām neparaksta šo noteikumu 80.punktā minētos aktus, jo pamatoti nepiekrīt aktā norādītajiem faktiem, mērnieks apvidū atjaunojamos robežpunktus nostiprina ar pagaidu robežzīmēm un sastāda robežpunktu piesaistes abrisu. Sastādīto aktu un abrisu izsniedz uzaicinātajām klātesošajām personām. Zemes kadastrālās uzmērīšanas darbus pārtrauc un sastāda darba pārtraukšanas aktu. Ierosinātājs un (vai) pierobežnieki var pieaicināt citu mērnieku, kas veiks atkārtotu zemes robežu apsekošanu un atjaunošanu. Ja iebildumu pamatojums neattiecas uz aktā norādītajiem faktiem, zemes kadastrālās uzmērīšanas darbus nepārtrauc.
87. Ja zemes vienības robežu apsekošanu un atjaunošanu nav iespējams veikt arī atbilstoši otra mērnieka norādījumiem, jo uzaicinātās klātesošās personas neparaksta šo noteikumu 80.punktā minētos aktus, ierosinātājs un (vai) pierobežnieki jautājumu par zemes vienību robežu apsekošanu un atjaunošanu apvidū risina tiesas ceļā.
4.7. Detālplānojuma un zemes ierīcības projekta izlikšana apvidū un robežu saskaņošana
88. Zemes vienības robežas apvidū nosaka atbilstoši detālplānojumam un (vai) zemes ierīcības projektam pa sauszemes līnijām no robežpunkta uz robežpunktu vai pa dabīgiem apvidus situācijas elementiem.
89. Izliekot robežas apvidū, nosaka robežzīmju ierīkošanas vietas:
89.1. ja robežlīnijas posms ir taisna līnija, – ne tālāk kā 500 m vienu no otras, nodrošinot savstarpēju redzamību starp blakus uz robežlīnijas izvietotām robežzīmēm;
89.2. ja robežlīnijas posms ir lauzta līnija, – robežu pagriezienu punktos atbilstoši detālplānojumā un (vai) zemes ierīcības projektā norādītajām koordinātām;
89.3. ja robežlīnijas posms ir līkne, to transformē par lauztu līniju, kas maksimāli sakrīt ar līkni, lai katrā lauztās līnijas posmā attālums starp līkni un robežlīniju lauku apvidos nepārsniegtu 1,00 m, pilsētās – 0,20 m.
90. Veicot robežu izlikšanu apvidū, mežos un ar krūmiem aizaugušās teritorijās, ierosinātājs mērnieka norādītajās vietās izveido līdz 1 m platas vizūrstigas, kas iezīmē noteiktās robežlīnijas apvidū.
91. Nosakot apvidū robežas jaunizveidotai zemes vienībai vai uz iepriekš noteiktajām robežām ierīkojot jaunas robežzīmes, mērnieks sastāda zemes robežu noteikšanas aktu tik eksemplāros, lai pa vienam eksemplāram izsniegtu katram ierosinātājam un vienu pievienotu zemes kadastrālās uzmērīšanas lietai. Zemes robežu noteikšanas aktu pēc pieprasījuma izsniedz arī pierobežniekam.
92. Zemes robežu noteikšanas akts (9.pielikums) sastāv no aprakstošās daļas un robežu shēmas.
93. Zemes robežu noteikšanas aktu nesastāda, ja veic ar grafiskajām metodēm noteiktu robežu instrumentālu uzmērīšanu un uz iepriekš noteiktajiem robežposmiem neierīko jaunas robežzīmes.
94. Iepriekš uzmērītajiem robežpunktiem saglabā piešķirtos numurus. No jauna uz zemes vienības robežām ierīkotos robežpunktus numurē pulksteņa rādītāja kustības virzienā. Vienam robežpunktam piešķir pirmo kārtas numuru, pārējos numurē secīgi tā, lai numuri neatkārtotos.
95. Apvidū nostiprinātajām robežzīmēm robežpunktu nostiprinājuma veida aprakstam aktos lieto šādus apzīmējumus (apzīmējumam pievieno burtu “k”, ja akta sastādīšanas laikā ap robežzīmi izveidots aprakums (kupica), vai burtu “z”, ja zīme atrodas zem zemes (slēptā robežzīme)):
95.1. vģz – valsts ģeodēziskā zīme;
95.2. a – krustakmens;
95.3. dzs – dzelzsbetona stabs;
95.4. mrs – mūra stabs;
95.5. ks – koka stabs;
95.6. mc – metāla caurule;
95.7. ms – metāla stienis;
95.8. bs – būves stūris;
95.9. np – nenostiprināts punkts;
95.10. pz – pagaidu zīme.
96. Uzaicinātās klātesošās personas parakstās zemes robežu noteikšanas aktā, apliecinot, ka 30 dienu laikā veiks:
96.1. kupicu aprakšanu (minētajā termiņā neieskaita nelabvēlīgu laiku, kad grunts ir sasalusi);
96.2. robežstigu ierīkošanu, nodrošinot redzamību starp blakus esošajiem uz robežlīnijas izvietotajiem robežpunktiem.
97. Ja uzaicinātās personas uz robežu noteikšanu atsakās ierasties, nav ieradušās vai atsakās parakstīt zemes robežas noteikšanas aktu, mērnieks zemes robežas noteikšanas akta paraksta zonā izdara attiecīgu atzīmi.
4.8. Zemes vienības robežu nostiprināšana
98. Zemes vienības robežas nostiprina apvidū ar pastāvīgām robežzīmēm, kuras ierīko:
98.1. robežu pagriezienu punktos;
98.2. vietās, kur robežas pievienojas vai atzarojas no ūdenstecēm un (vai) ūdenstilpēm;
98.3. valsts autoceļu un pagastu ceļu nodalījuma joslas pagriezienu punktos ceļa posmos caur ciemu, vasarnīcu un dārzkopības apbūves teritorijām un vietās, kur autoceļa nodalījuma joslai ir paplatinājumi vai sašaurinājumi;
98.4. dzelzceļa nodalījuma joslas pagriezienu punktos.
99. Ja robežzīmes ierīkošanas vietā ierīkota valsts ģeodēziskā zīme, par robežzīmi apvidū nosaka valsts ģeodēzisko zīmi.
100. Robežzīmes neierīko un nenostiprina robežu pagriezienu punktos:
100.1. gar ūdensteču un (vai) ūdenstilpju krastiem;
100.2. ūdenstecēs un (vai) ūdenstilpēs;
100.3. zem būvēm, būvju stūros, purvos un citās nepieejamās vietās.
101. Par robežzīmēm atbilstoši šo noteikumu 10.pielikumam izmanto:
101.1. krustakmeņus – vismaz 60 kg smagus laukakmeņus ar 6 cm garu un 0,5 cm dziļu krustveida iekalumu robežzīmes centrā;
101.2. dzelzsbetona stabus – 130 cm garus stabus ar minimālo šķērsgriezumu 10 x 10 cm un staba apakšā cilpā ievietotu šķērsi;
101.3. koka stabus – 130 cm garus stabus ar diametru 15–20 cm un apakšgalā piestiprinātu šķērsi;
101.4. metāla caurules, stieņus – 80 cm garas caurules un stieņus ar diametru līdz 3 cm un apakšgalā piestiprinātu šķērsi;
101.5. metāla stieņus un tapas cietajā segumā (piemēram, flīzes, asfaltbetons, cementbetons), kuru garums ir 8–50 cm;
101.6. metāla caurules, stieņus un tapas gruntī, kuru garums ir 50–80 cm;
101.7. žoga stabus – neatkarīgi no to izmēriem;
101.8. būves stūrus.
102. Ierīkojot robežzīmes, ap krustakmeņiem, dzelzsbetona stabiem, mūra un koka stabiem, metāla caurulēm un stieņiem rok riņķveida grāvīti, kura iekšmala atrodas 110 cm attālumā no robežzīmes centra. Grāvīša dziļums – 30 cm, platums zemes virsmas līmenī – 50 cm, grāvīša dibena platums – 20 cm. Ap robežzīmi veido 30 cm augstu grunts uzbērumu. Pilsētu, ciemu, vasarnīcu un dārzkopības apbūves teritorijā robežzīmi var nostiprināt ar kupicu, kuras diametrs ir 1 m (10.pielikums).
103. Mežos un ar krūmiem aizaugušās teritorijās uz katru pusi no robežlīnijām ierosinātājs, vienojoties ar pierobežnieku, ierīko līdz 1 m platas robežstigas, kurām jānodrošina redzamība starp divām blakus esošām robežzīmēm.
104. Apvidū robežzīmju vietas ierāda un robežlīnijas nosprauž mērnieks, robežzīmes mērnieka klātbūtnē nostiprina zemes īpašnieks vai ierosinātājs. Zemes robežu apsekošanas, atjaunošanas un noteikšanas aktā norādītajā termiņā zemes īpašnieks vai ierosinātājs ierīko kupicas atbilstoši šo noteikumu 102.punktam un atbrīvo robežstigu no apauguma attiecīgajā teritorijā.
105. Robežzīmju atrašanās vietas apvidū parāda robežpunktu piesaistes abrisos (4.pielikums). Abrisus sastāda robežzīmju ierīkošanas laikā. Sastādītā abrisa kopiju izsniedz ierosinātājam. Ar kupicām noformētām robežzīmēm, kā arī skaidri un precīzi identificējamiem apvidus objektiem, kuri izvēlēti par robežzīmēm, abrisus var nesastādīt.
106. Abrisā ieraksta robežpunkta numuru, sniedz nostiprinājuma un ārējā noformējuma aprakstu, sastāda piesaistes zīmējumu (orientē pret debess pusēm), ieraksta instrumentāli izmērītos attālumus līdz pastāvīgajiem apvidus objektiem, kā arī norāda virzienus uz blakus esošajiem robežpunktiem.
4.9. Robežu uzmērīšana apvidū
107. Zemes kadastrālajā uzmērīšanā izmanto šādas horizontālās uzmērīšanas metodes:
107.1. teodolīta gājienu metodi;
107.2. polāro metodi;
107.3. globālās pozicionēšanas metodi;
107.4. krustojumu un līniju metodi.
108. Papildus šo noteikumu 107.punktā minētajām metodēm var izmantot arī citas horizontālās uzmērīšanas metodes, kas nodrošina precizitātes prasības atbilstoši šiem noteikumiem.
109. Līnijas un leņķus uzmēra instrumentālajos gājienos, kas izveidoti:
109.1. robežu uzmērīšanai;
109.2. robežu uzmērīšanas gājienu piesaistei valsts ģeodēziskā tīkla, uzmērīšanas pamattīkla vai sabiezinošā uzmērīšanas tīkla punktiem;
109.3. zemes vienībai par labu nodibināto reālservitūtu aizņemto teritoriju robežpunktu uzmērīšanai, kurus apvidū nenostiprina.
110. Ja robežlīnijas nav ietvertas robežu uzmērīšanas gājienos, to garumu aprēķina pēc robežpunktu koordinātām.
111. Robežu uzmērīšana sastāv no robežpunktu un dabīgo robežu uzmērīšanas. Robežpunktu uzmērīšanu un datu apstrādi var veikt vienlaikus ar sabiezinošā uzmērīšanas tīkla veidošanu.
112. Robežpunktus uzmēra ar instrumentiem, kas nodrošina šo noteikumu 3.pielikuma 1.tabulā minēto rezultātu precizitāti.
113. Vizūru garumi uz robežpunktiem nedrīkst pārsniegt trīskāršu orientēšanai izmantotās līnijas garumu.
114. Ja zemes kadastrālajā uzmērīšanā izmanto:
114.1. elektroniskos instrumentus, izmērītajos attālumos izdara labojumus attiecībā uz atmosfēras spiedienu, temperatūru un līnijas garuma reducēšanu projekcijas plaknē;
114.2. mērlenti (mērsloksni), izmērītajos attālumos izdara labojumus attiecībā uz mēra garumu, atmosfēras spiedienu, temperatūru, mērlentes slīpumu un līnijas garuma reducēšanu projekcijas plaknē.
115. Lai kontrolētu robežpunktu uzmērīšanu, ja iespējams, veic papildu mērījumus, piesaistoties citiem redzamiem uzmērīšanas tīkla punktiem. Ja robežpunktu koordinātas noteiktas atkārtoti, piesaistoties atšķirīgiem uzmērīšanas tīkla punktiem, koordinātu atšķirību pieļaujamie lielumi nedrīkst pārsniegt šo noteikumu 3.pielikuma 4.tabulā noteiktos.
116. Mērījumus starp robežpunktiem kopā ar pārējiem mērījumiem izlīdzina, izmantojot kombinēto ģeodēzisko tīklu izlīdzināšanas datorprogrammu. Robežpunktu izlīdzināto koordinātu vidējās kvadrātiskās novirzes nedrīkst pārsniegt šo noteikumu 3.pielikuma 1.tabulā noteiktās.
117. Ja robežas noteiktas pa ceļa nodalījuma joslas malu, uzmēra ceļa ass pagrieziena punktus, ņemot vērā nodalījuma joslas platumu, un aprēķina nodalījuma joslas malas pagriezienu punktu koordinātas.
118. Ja robežas noteiktas pa ūdensteces viduslīniju, abos krastos uzmēra ūdens līmeņa līniju normālā ūdens stāvoklī un aprēķina ūdensteces viduslīnijas pagriezienu punktu koordinātas. Ūdens līmeņa līniju normālā ūdens stāvoklī nosaka, veicot robežposma topogrāfisko uzmērīšanu.
119. Dabīgās robežas uzmēra no sabiezinošā uzmērīšanas tīkla punktiem, izmantojot horizontālās uzmērīšanas metodes, ar tiem pašiem instrumentiem, kas tika lietoti robežpunktu uzmērīšanā. Leņķus mēra vienā loka stāvoklī, attālumus – vienā virzienā. Dabīgo robežu pagriezienu punktu novirzes nedrīkst pārsniegt šo noteikumu 3.pielikuma 1.tabulā noteiktos lielumus.
120. Ja vienlaikus ar robežu uzmērīšanu netiek uzmērīti apvidus objekti, kas nepieciešami situācijas plāna sastādīšanai, tad uzmēra:
120.1. būves;
120.2. apvidus objektus, pa kuriem noteiktas robežas.
121. Mērnieks neveic zemes kadastrālās uzmērīšanas darbus un sastāda darba pārtraukšanas aktu (6.pielikums), uzrādot darba pārtraukšanas iemeslu, ja ierosinātājs:
121.1. atsakās piedalīties iepriekš noteikto robežu apsekošanā un atjaunošanā;
121.2. atsakās piedalīties robežu noteikšanā;
121.3. nenodrošina vizūrstigu un robežzīmju ierīkošanu vai brīvu pārvietošanos pa teritoriju.
122. Darba pārtraukšanas aktu paraksta mērnieks un uzaicinātās personas. Vienu akta eksemplāru ierakstītā vēstulē nosūta ierosinātājam, otru eksemplāru pievieno zemes kadastrālās uzmērīšanas lietai.
123. Zemes kadastrālās uzmērīšanas darbus turpina, kad no ierosinātāja saņemts rakstisks paziņojums, ka darba pārtraukšanas iemesli ir novērsti. Paziņojumu pievieno zemes kadastrālās uzmērīšanas lietai.
124. Veicot zemes kadastrālās uzmērīšanas darbus, mērnieks apvidū izvērtē mērījumu un novērojumu atbilstību šajos noteikumos noteiktajām zemes kadastrālās uzmērīšanas datu precizitātes prasībām. Lauku apvidū instrumentāli uzmērītu un ar grafiskajām metodēm noteiktu zemes vienības robežpunktu savstarpējā stāvokļa atšķirības nedrīkst pārsniegt:
124.1. atklātā apvidū 10 m;
124.2. aizklātā apvidū (piemēram, krūmājs, mežs, purvs) 20 m.
4.10. Zemes robežu plāna sastādīšana
125. Zemes robežu plāns ir abpusīgi noformēts dokuments, ko sastāda zemes vienības ierakstīšanai zemesgrāmatā. Zemes robežu plāns sastāv no titullapas A4 formātā un robežu grafiskā attēlojuma A4 vai A3 formātā, ko izgatavo, pamatojoties uz kadastrālajā uzmērīšanā iegūtajiem tehniskajiem datiem. Ja zemes robežu plānu nav iespējams izgatavot uz vienas A3 formāta lapas, robežu grafisko attēlojumu izvieto uz vairākām lapām vai pēc ierosinātāja pieprasījuma – uz A2 vai A1 formāta lapas. Robežu grafiskajā attēlojumā pēc ierosinātāja pieprasījuma atļauts attēlot teritoriju, uz kuru ar līgumu vai tiesas nolēmumu var nodibināt servitūtus.
126. Katrai zemes vienībai izgatavo atsevišķu zemes robežu plānu. Pēc ierosinātāja pieprasījuma vienā zemes robežu plānā var attēlot vairākas zemes vienības vai zemes vienības daļas. Par zemes robežu plāna izgatavošanas datumu uzskatāms ar mērnieka parakstu apliecinātais zemes robežu plāna sagatavošanas datums.
127. Zemes robežu plāna titullapu un robežu grafisko attēlojumu sastāda atbilstoši šo noteikumu 11. un 12.pielikumā noteiktajām prasībām un sniegtajiem apzīmējumiem.
128. Robežu grafisko attēlojumu konstruē pēc zemes vienības robežpunktu koordinātām šādos mērogos:
128.1. pilsētā 1 : 500;
128.2. ciema, vasarnīcas un dārzkopības apbūves teritorijā 1 : 1000 vai 1 : 2000;
128.3. lauku apvidū 1 : 5000 vai 1 : 10000.
129. Ja nepieciešams plānā uzskatāmi attēlot visus attiecīgos elementus, robežu grafiskā attēlojuma mērogu var palielināt vai samazināt, kā arī atsevišķus plāna fragmentus attēlot palielinātā mērogā iznesumu veidā. Nosakot plāna mērogu, nedrīkst pazemināt uzmērāmo punktu noteikšanas precizitāti, kas atbilst šo noteikumu 3.pielikuma 1.tabulā noteiktajām prasībām.
130. Zemes robežu plānu izgatavo tik oriģinālos eksemplāros, lai:
130.1. pa diviem eksemplāriem izsniegtu katram ierosinātājam;
130.2. divus eksemplārus (no kuriem viens ir saskaņots ar normatīvajos aktos noteiktajām institūcijām) pievienotu zemes kadastrālās uzmērīšanas lietai.
131. Ja robežu grafiskais attēlojums ir izgatavots uz vairākām lapām, papildus izgatavo vienu kopēju titullapu, kurā norāda lapu skaitu. Minētos dokumentus caurauklo un numurē.
132. Ja tiek sadalīta zemes vienība, zemes robežu plānu sastāda atsevišķi atdalītajai (atdalītajām) un paliekošajai daļai.
133. Mērnieks zemes robežu plāna un apgrūtinājumu plāna vienu eksemplāru (izņemot šo noteikumu 140.punktā minētos plānus) normatīvajos aktos noteiktajā kārtībā iesniedz vietējā pašvaldībā nodibināto nekustamā īpašuma objekta apgrūtinājumu saskaņošanai. Vietējā pašvaldība vai tās pilnvarota persona saskaņo apgrūtinājumus, izdarot uz zemes robežu plāna un apgrūtinājumu plāna attiecīgu atzīmi.
134. Ja daļu no zemes vienības pievieno blakus esošai zemes vienībai, to nenosakot par jaunu zemes vienību (turpmāk – zemesgabals), izgatavo:
134.1. zemes robežu plānu zemes vienībai, no kuras nodalīta daļa;
134.2. zemes robežu plānu zemes vienībai, kurai pievienota daļa.
135. Šo noteikumu 134.punktā minētos zemes robežu plānus sastāda atbilstoši šo noteikumu 125., 126., 127., 128., 129., 130., 131., 132. un 133.punktam.
136. Zemes vienībai, no kuras nodalīts zemesgabals, zemes robežu plānā papildus sniedz šādas ziņas:
136.1. zemes robežu plāna titullapā ieraksta šādu norādi: “No zemes vienības nodalīts zemesgabals ar platību ___ ha, kas pievienots zemes vienībai ar kadastra apzīmējumu Nr. ________________________”;
136.2. zemes robežu plānā attēlo pēc zemesgabala nodalīšanas izmainītās zemes vienības robežas;
136.3. zemes robežu plānā sastāda shēmu, kurā uzskatāmi attēlo blakus esošās zemes vienības un nodalīto zemesgabalu.
137. Zemes vienībai, kurai pievienots zemesgabals, zemes robežu plānā papildus sniedz šādas ziņas:
137.1. zemes robežu plāna titullapā ieraksta šādu norādi: “Zemes vienībai pievienots zemesgabals ar platību ____ ha, kas nodalīts no zemes vienības ar kadastra apzīmējumu Nr. ________________________”;
137.2. zemes robežu plānā attēlo pēc zemesgabala pievienošanas izmainītās zemes vienības robežas;
137.3. zemes robežu plānā sastāda shēmu, kurā uzskatāmi attēlo blakus esošās zemes vienības un pievienoto zemesgabalu.
138. Ja līdz zemes kadastrālās uzmērīšanas uzsākšanai nav nodibināti vai aktualizēti noteikšanas darba uzdevumā minētie reālservitūti vai nekustamā īpašuma lietošanas apgrūtinājumi, ierosinātājs mērniekam iesniedz rakstisku iesniegumu ar lūgumu izgatavot zemes robežu plānu bez konkrētiem reālservitūtiem vai nekustamā īpašuma lietošanas tiesību apgrūtinājumiem.
139. Ja sadalāmās zemes vienības robežas noteiktas ar grafiskajām metodēm un ierosinātājs nav pieprasījis zemes vienības paliekošās daļas zemes kadastrālo uzmērīšanu:
139.1. gadījumos, ja zemes robežu plānā ir attēlota viena zemes vienība:
139.1.1. paliekošajai daļai sastāda zemes robežu plānu. Plānu noformē atbilstoši šajos noteikumos noteiktajām prasībām, ievērojot šādus izņēmumus:
139.1.1.1. robežpunktus, kas atrodas uz sadalošās robežlīnijas, attēlo atbilstoši noteiktajām koordinātām;
139.1.1.2. zemes vienības robežu posmus, kas noteikti, izmantojot grafiskās metodes, attēlo, konstruējot pēc robežlīniju garumiem (mēra ar precizitāti līdz 0,2 mm plānā);
139.1.1.3. robežlīniju garumus, kas noteikti, izmantojot grafiskās metodes, nepieraksta;
139.2. gadījumos, ja zemes robežu plānā ir attēlotas vairākas zemes vienības, izmanto vienu no šādām iespējām:
139.2.1. katrai paliekošajai zemes vienībai sastāda atsevišķu zemes robežu plānu atbilstoši šo noteikumu 139.1.1.2.apakšpunktā noteiktajām prasībām;
139.2.2. pēc ierosinātāja pieprasījuma visas paliekošās zemes vienības attēlo vienā zemes robežu plānā, to robežas pārnesot no iepriekš izgatavotā zemes robežu plāna atbilstoši šo noteikumu 139.1.1.2.apakšpunktā noteiktajām prasībām.
140. Ja vairākas zemes vienības, kas kopā veido īpašumu, ir attēlotas vienā zemes robežu plānā un no īpašuma atdala veselu zemes vienību, katrai zemes vienībai (gan atdalāmajai, gan paliekošajai (paliekošajām)) izgatavo atsevišķu zemes robežu plānu, neveicot kadastrālo uzmērīšanu, atbilstoši šo noteikumu 139.1.1.2. un 139.1.1.3.apakšpunktā noteiktajām prasībām. Pēc ierosinātāja pieprasījuma visas paliekošās zemes vienības var attēlot vienā zemes robežu plānā.
141. Kadastra informācijas sistēmā aktualizē zemes vienības vai zemes vienības daļas platību, ja konstatē atšķirību starp šādām platībām (platību atšķirība nedrīkst būt lielāka vai mazāka par šo noteikumu 142.punktā un 3.pielikuma 5.tabulā norādīto):
141.1. starp zemes kadastrālajā uzmērīšanā aprēķināto platību un platību, kas norādīta dokumentos, kuriem atbilstoši veikta zemes kadastrālā uzmērīšana;
141.2. starp zemes kadastrālajā uzmērīšanā aprēķināto platību un platību, kas noteikta, izmantojot grafiskās metodes.
142. Pieļaujamā platību atšķirība nedrīkst pārsniegt:
142.1. pilsētā – šo noteikumu 3.pielikuma 5.tabulā noteikto;
142.2. ciema, vasarnīcu un dārzkopības apbūves teritorijā, lauku apvidū:
142.2.1. atšķirību, kas noteikta, izmantojot formulu ± 0,1 (P – zemes vienības vai vienības daļas platība (ha)), ja platība nav lielāka par 1,0 ha;
142.2.2. atšķirību, kas noteikta, izmantojot formulu ± 0,25 (P – zemes vienības vai vienības daļas platība (ha)), ja platība ir lielāka par 1,0 ha;
142.2.3. atšķirību, kas noteikta, izmantojot formulu ± 0,3 (P – zemes vienības vai vienības daļas platība (ha)), ja platība ir lielāka par 200 ha.
143. Atkārtotā zemes kadastrālajā uzmērīšanā aprēķinātā zemes vienības vai zemes vienības daļas platība aktualizētajā zemes robežu plānā nedrīkst atšķirties no anulētajā zemes robežu plānā ierakstītās platības. Ja zemes vienība tiek sadalīta, visu nodalīto zemes vienību platību summa nedrīkst atšķirties no sadalāmās zemes vienības platības noteiktības robežās. Noapaļojot radušās platību atšķirības izlīdzina.
144. Ja mērnieks konstatē, ka zemes vienības platība pārsniedz pieļaujamo platību atšķirību, bet zemes kadastrālā uzmērīšana veikta atbilstoši šajos noteikumos noteiktajām prasībām, mērnieks izgatavo zemes robežu plānu un sastāda platību neatbilstības aktu. Aktā norāda neatbilstības iemeslus.
145. Zemes kadastrālajā uzmērīšanā aprēķinātā zemes vienības platība un platība, kas noteikta, izmantojot grafiskās metodes, drīkst atšķirties pieļaujamās platību atšķirības robežās. Ja zemes kadastrālajā uzmērīšanā aprēķinātā zemes vienības platība pārsniedz pieļaujamo platību atšķirību un ierosinātājs piekrīt zemes kadastrālajā uzmērīšanā aprēķinātajai zemes vienības platībai, ierosinātājs nostiprinājuma lūgumā lūdz izdarīt attiecīgus grozījumus zemesgrāmatas ierakstos. Ja ierosinātājs nepiekrīt atšķirībai starp zemes kadastrālajā uzmērīšanā aprēķināto zemes vienības platību un platību, kas noteikta, izmantojot grafiskās metodes, jautājumu risina, ceļot prasību tiesā.
4.11. Apvidus objektu uzmērīšana
146. Zemes vienības teritorijā vai zemes vienības daļas teritorijā:
146.1. nosaka zemes lietošanas veidus un uzmēra to robežas;
146.2. uzmēra šādus apvidus objektus:
146.2.1. būves un būvju daļas (arī virszemes inženierbūves);
146.2.2. ceļus;
146.2.3. ūdensteces un ūdenstilpes;
146.2.4. dabīgos un mākslīgos reljefa elementus (piemēram, gravas, kraujas, bedres).
147. Pazemes inženierbūvju (inženierkomunikāciju) uzmērīšanu veic pēc ierosinātāja pieprasījuma, ja ierosinātājs ir nodrošinājis objektu atrašanās vietas apvidū viennozīmīgu identificēšanu. Ja nepieciešams, zemes kadastrālās uzmērīšanas darbos iesaista pazemes inženierkomunikāciju turētājus.
148. Ja attiecīgajā teritorijā ir veikta topogrāfiskā uzmērīšana mērogā 1 : 250, 1 : 500 vai 1 : 1000 un attiecīgie dati atbilst šajos noteikumos noteiktajām prasībām, kā arī ir pieejami digitālā teksta vai digitālā vektordatu formā LKS-92 koordinātu sistēmā, atkārtota apvidus objektu uzmērīšana situācijas plāna sastādīšanai nav obligāta.
149. Situācijas uzmērīšanā ievēro šādus nosacījumus:
149.1. būves un būvju daļas uzmēra cokola līmenī pa ārējo perimetru, uzmērot visus izvirzījumus, kas lielāki par 10 cm;
149.2. pagalmu un ūdenstilpju robežas uzmēra neatkarīgi no to aizņemtās platības;
149.3. apvidus objekta (izņemot ēkas un inženierbūves ar ēku pazīmēm) mazākā teritorija un (vai) zemes lietošanas veida platība, kuru uzmēra un attēlo, ir:
149.3.1. mērogā 1 : 500 – 2,5 m2;
149.3.2. mērogā 1 : 1000 – 10 m2;
149.3.3. mērogā 1 : 2000 – 40 m2;
149.3.4. mērogā 1 : 5000 – 250 m2;
149.3.5. mērogā 1 : 10000 – 1000 m2.
150. Situācijas uzmērīšanā uzmēra visas būves neatkarīgi no to aizņemtās platības.
151. Situācijas plāna aktualizācijai mērnieks uzmēra apvidū notikušās izmaiņas vai pārnes no topogrāfiskajiem materiāliem mērogā 1 : 250, 1 : 500 vai 1 : 1000, ja mērnieks konstatē to atbilstību situācijai apvidū.
152. Zemes kadastrālajā uzmērīšanā nosaka zemes lietošanas veidus atbilstoši normatīvajiem aktiem, kas regulē zemes lietošanas veidu noteikšanu.
153. Zemes lietošanas veidu platību kopsavilkumu (eksplikāciju) attēlo tabulas veidā. Tabulā ieraksta zemes lietošanas veidus un to aizņemtās platības. Atsevišķā tabulas ailē norāda kopējo lauksaimniecībā izmantojamās zemes platību attiecīgajā zemes vienībā.
154. Ja zemes vienības robežās ar ceļu krustojas ūdensteces un ūdenstilpes, zemes lietošanas veidu robežas noteikšanā un uzmērīšanā ievēro šādu secību:
154.1. ūdensteces un ūdenstilpes;
154.2. dzelzceļi;
154.3. pilsētas sliežu ceļi;
154.4. autoceļi (sākot ar augstākas kategorijas autoceļu);
154.5. ielu un ceļu brauktuves.
155. Meža kā zemes lietošanas veida noteikšanā izmanto meža inventarizācijas dokumentus, ja tādi ir. Mērnieks izvērtē tajos attēlotā meža kā zemes lietošanas veida robežas un platības atbilstību faktiskajam stāvoklim apvidū.
156. Apvidus objektus uzmēra no sabiezinošā uzmērīšanas tīkla punktiem, izmantojot horizontālās uzmērīšanas metodes.
157. Apvidus objektu (izņemot ēkas un inženierbūves ar ēku pazīmēm) uzmērīšanas kļūda nedrīkst pārsniegt plāna grafisko noteiktību – ar skaidri izteiktām kontūrām 0,3 mm, ar neskaidri izteiktām kontūrām 1,5 mm izmantotā plāna mērogā.
158. Būvju uzmērīšanas kļūda nedrīkst pārsniegt zemes vienības robežpunktu noteikšanas precizitāti, kas noteikta šo noteikumu 3.pielikuma 1.tabulā.
4.12. Situācijas plāna sastādīšana
159. Situācijas plāns ir abpusīgi noformēts dokuments, ko sastāda zemes vienībai vai zemes vienības daļai. Tas sastāv no titullapas A4 formātā un situācijas grafiskā attēlojuma A4 vai A3 formātā, ko izgatavo, pamatojoties uz kadastrālajā uzmērīšanā iegūtajiem tehniskajiem datiem. Situācijas plānā attēlo zemes vienības vai zemes vienības daļas robežas, apvidus objektus (situācijas elementus), zemes lietošanas veidu robežas, to platības un eksplikāciju. Pēc ierosinātāja pieprasījuma robežu grafisko attēlojumu ir atļauts izgatavot A2 vai A1 formātā.
160. Katrai zemes vienībai vai zemes vienības daļai izgatavo atsevišķu situācijas plānu. Pēc ierosinātāja pieprasījuma vienā situācijas plānā var attēlot vairākas zemes vienības vai zemes vienības daļas. Par situācijas plāna izgatavošanas datumu uzskatāms ar mērnieka parakstu apliecinātais situācijas plāna sagatavošanas datums.
161. Situācijas plānu zemes vienībai vai zemes vienības daļai sastāda:
161.1. pirmreizējai reģistrācijai vai datu aktualizācijai kadastra informācijas sistēmā;
161.2. zemes lietošanas veidu transformācijai.
162. Pēc zemes vienības daļas situācijas plāna sastādīšanas vienlaikus aktualizē zemes vienības situācijas plānu, izdarot attiecīgās izmaiņas.
163. Situācijas plāna titullapu un situācijas grafisko attēlojumu sastāda atbilstoši šo noteikumu 12. un 13.pielikumā noteiktajām prasībām un sniegtajiem apzīmējumiem.
164. Situācijas grafisko attēlojumu izvieto titullapas otrā pusē, izmantojot zemes robežu plānā attēlotās zemes vienības vai zemes vienības daļas robežas. Situācijas plāna mērogs atbilst zemes robežu plāna mērogam. Lai uzskatāmi parādītu visus situācijas elementus, situācijas plānu var attēlot lielākā vai mazākā mērogā vai uz atsevišķas lapas (lapām).
165. Sastādot situācijas plānu, var:
165.1. izmantot Valsts zemes dienesta izsniegtos topogrāfiskās uzmērīšanas materiālus mērogā 1 : 250, 1 : 500 vai 1 : 1000, ja tie atbilst faktiskajam stāvoklim apvidū;
165.2. izdarīt skaidrojošus ierakstus par zemes lietošanas veidiem, ja šo noteikumu 12.pielikumā nav norādīts to apzīmējums.
166. Situācijas plānā mērnieks attēlo attiecīgi:
166.1. meža kā zemes lietošanas veida robežas un platību atbilstoši meža inventarizācijas dokumentiem, ja tajos norādītā informācija atbilst faktiskajam stāvoklim apvidū;
166.2. mērnieka noteiktās meža kā zemes lietošanas veida robežas, ja meža inventarizācijas dati neatbilst faktiskajam stāvoklim apvidū.
167. Ja ūdensteces un ūdenstilpes ar ceļu krustojas divos vai vairākos līmeņos, otrā un pārējo līmeņu objektus par zemes lietošanas veidiem nenosaka, bet zemes robežu plānā attēlo kā būves.
168. Situācijas plānu izgatavo tik oriģinālos eksemplāros, lai:
168.1. pa vienam eksemplāram izsniegtu katram ierosinātājam;
168.2. vienu plānu pievienotu zemes kadastrālās uzmērīšanas lietai.
169. Ja ierosinātājs pieprasa aktualizēt situācijas plānu, mērnieks:
169.1. apseko situāciju apvidū un salīdzina to ar iepriekš sastādīto situācijas plānu;
169.2. uzmēra situācijas elementu izmaiņas;
169.3. sastāda jaunu situācijas plānu un labo zemes lietošanas veidu eksplikāciju.
4.13. Transformējamās meža zemes robežu uzmērīšana
170. Transformējot meža zemi:
170.1. apvidū nosaka, ar pagaidu zīmēm (10.pielikums) nostiprina un uzmēra transformējamās meža zemes robežas;
170.2. izgatavo transformējamās meža zemes izvietojuma plānu;
170.3. izgatavo aktualizētu zemes vienības situācijas plānu.
171. Transformējamās meža zemes robežas uzmēra atbilstoši apvidus objektu uzmērīšanas prasībām, pamatojoties uz rakstisku iesniegumu un tam pievienoto grafisko pielikumu.
172. Par iesnieguma grafisko pielikumu var izmantot zemes robežu plāna vai situācijas plāna kopiju, kurā attēlotas transformējamās meža zemes robežas.
173. Transformējamās meža zemes izvietojuma plānam titullapu nenoformē. Plānu sastāda atbilstoši šo noteikumu 12.pielikumā sniegtajiem apzīmējumiem un 14.pielikumā noteiktajām prasībām. Par transformējamās meža zemes izvietojuma plāna izgatavošanas datumu uzskatāms ar mērnieka parakstu apliecinātais transformējamās meža zemes izvietojuma plāna sagatavošanas datums.
174. Pēc plānoto meža zemes transformācijas darbību pabeigšanas apvidū, pamatojoties uz ierosinātāja rakstisku iesniegumu, aktualizē zemes vienības situācijas plānu. Minēto plānu izgatavo tik oriģinālos eksemplāros, lai:
174.1. pa vienam eksemplāram izsniegtu katram ierosinātājam;
174.2. vienu eksemplāru pievienotu zemes kadastrālās uzmērīšanas lietai.
4.14. Transformētās lauksaimniecībā izmantojamās zemes robežu uzmērīšana
175. Lauksaimniecībā izmantojamās zemes transformācijas atļaujas saņemšanai un iesniegšanai Lauku atbalsta dienesta reģionālajā struktūrvienībā pēc transformācijas ierosinātāja pieprasījuma izgatavo zemes robežu plāna vai situācijas plāna kopiju, kurā attēlotas transformējamās lauksaimniecībā izmantojamās zemes ārējās robežas un norādīta transformējamās zemes platība.
176. Pēc visu ar zemes transformāciju saistīto darbību pabeigšanas, pamatojoties uz transformācijas ierosinātāja rakstisku iesniegumu, apvidū uzmēra transformēto teritoriju un izgatavo transformētās lauksaimniecībā izmantojamās zemes izvietojuma plānu. To iesniedz Lauku atbalsta dienesta reģionālajā struktūrvienībā un Valsts zemes dienesta teritoriālajā struktūrvienībā datu aktualizācijai kadastra informācijas sistēmā.
177. Transformētās lauksaimniecībā izmantojamās zemes izvietojuma plānam titullapu nenoformē. Plānu sastāda atbilstoši šo noteikumu 12.pielikumā sniegtajiem apzīmējumiem un 15.pielikumā noteiktajām prasībām. Par transformētās lauksaimniecībā izmantojamās zemes izvietojuma plāna izgatavošanas datumu uzskatāms ar mērnieka parakstu apliecinātais transformētās lauksaimniecībā izmantojamās zemes izvietojuma plāna sagatavošanas datums.
178. Pamatojoties uz transformācijas ierosinātāja rakstisku iesniegumu, vienlaikus ar transformētās lauksaimniecībā izmantojamās zemes izvietojuma plānu izgatavo zemes vienības aktualizēto situācijas plānu.
179. Transformētās lauksaimniecībā izmantojamās zemes izvietojuma plānu izgatavo tik oriģinālos eksemplāros, lai:
179.1. vienu eksemplāru iesniegtu Lauku atbalsta dienesta reģionālajā struktūrvienībā;
179.2. vienu eksemplāru pievienotu zemes kadastrālās uzmērīšanas lietai;
179.3. vienu eksemplāru izsniegtu transformācijas ierosinātājam.
4.15. Apgrūtinājumu plāna sastādīšana
180. Apgrūtinājumu plāns ir abpusīgi noformēts dokuments, ko sastāda zemes vienībai vai zemes vienības daļai. Tas ir zemes robežu plāna neatņemama sastāvdaļa. Apgrūtinājumu plāns sastāv no titullapas A4 formātā un nekustamā īpašuma objektu apgrūtinājumu grafiskā attēlojuma A4 vai A3 formātā. Pēc ierosinātāja pieprasījuma robežu grafisko attēlojumu ir atļauts izgatavot A2 vai A1 formātā.
181. Nekustamā īpašuma objektu apgrūtinājumus ieraksta apgrūtinājumu plānā atbilstoši normatīvajos aktos noteiktajā kārtībā apstiprinātajai nekustamā īpašuma objektu apgrūtinājumu klasifikācijai.
182. Apgrūtinājumu plāna izgatavošanā izmanto:
182.1. zemesgrāmatas un kadastra informāciju par reģistrētajiem apgrūtinājumiem;
182.2. spēkā esošo vietējās pašvaldības teritorijas plānojumu;
182.3. ierosinātāja iesniegto detālplānojuma vai zemes ierīcības projekta informāciju;
182.4. savstarpēju vienošanos (līgumu) vai tiesas nolēmumu, uz kura pamata nodibināts nekustamā īpašuma objekta apgrūtinājums;
182.5. normatīvajos aktos noteiktos apgrūtinājumus.
183. Apgrūtinājumu plāna titullapu un nekustamā īpašuma objektu apgrūtinājumu grafisko attēlojumu sastāda atbilstoši šo noteikumu 12.pielikumā sniegtajiem apzīmējumiem un 16.pielikumā noteiktajām prasībām.
184. Nekustamā īpašuma objektu apgrūtinājumu grafisko attēlojumu izvieto titullapas otrā pusē, izmantojot zemes robežu plānā attēlotās zemes vienības vai zemes vienības daļas robežas. Apgrūtinājumu plāna mērogs atbilst zemes robežu plāna mērogam.
185. Apgrūtinājumu plānā kā laukumus attēlo tos apgrūtinājumus, kuru:
185.1. mazākā aizņemtā zemes platība ir:
185.1.1. mērogā 1 : 500 – 2,5 m2;
185.1.2. mērogā 1 : 1000 – 10 m2;
185.1.3. mērogā 1 : 2000 – 40 m2;
185.1.4. mērogā 1 : 5000 – 250 m2;
185.1.5. mērogā 1 : 10000 – 1000 m2;
185.2. aizņemtā teritorija ap vai gar līnijveida objektiem veido izstieptu laukumu, un tā minimālais platums ir:
185.2.1. mērogā 1 : 500 – 1 m;
185.2.2. mērogā 1 : 1000 – 2 m;
185.2.3. mērogā 1 : 2000 – 4 m;
185.2.4. mērogā 1 : 5000 – 10 m;
185.2.5. mērogā 1 : 10000 – 20 m.
186. Apgrūtinājumus, kurus nav iespējams attēlot kā laukumus, apgrūtinājumu plānā attēlo ar apzīmējumiem, kas norādīti šo noteikumu 12.pielikumā. Apgrūtinājumu plānā var izdarīt skaidrojošus ierakstus par nekustamā īpašuma objekta apgrūtinājumiem, ja šo noteikumu 12.pielikumā nav norādīts to apzīmējums.
187. Ja apgrūtinājumu aizņemtās teritorijas pārklājas, apgrūtinājumus attēlo tā, lai viennozīmīgi un nepārprotami vizualizētu katru apgrūtinājuma aizņemto teritoriju un norādītu katra apgrūtinājuma aizņemto platību. Ja nepieciešams, apgrūtinājuma grafisko attēlojumu izgatavo uz vairākām lapām.
188. Ja nekustamā īpašuma objektu apgrūtinājumu grafiskais attēlojums ir sagatavots uz vairākām lapām, izgatavo vienu kopēju titullapu, kurā norādīts lapu skaits. Minētos dokumentus caurauklo un numurē. Katrā lapā attēlo:
188.1. robežpunktus, ierakstot to numurus, un robežlīnijas;
188.2. apgrūtinājumu aizņemto teritoriju robežas, ierakstot apgrūtinājuma kārtas numuru;
188.3. būves, ja tās ir nekustamā īpašuma objekta apgrūtinājums, ierakstot būvju kadastra apzīmējumus.
189. Katrā lapā izveido rakstlaukumu, kurā paredz vietu mērnieka vārdam, uzvārdam, parakstam un apgrūtinājumu plāna izgatavošanas datumam. Par apgrūtinājumu plāna izgatavošanas datumu uzskatāms ar mērnieka parakstu apliecinātais apgrūtinājumu plāna sagatavošanas datums.
190. Apgrūtinājumu plānu izgatavo tik oriģinālos eksemplāros, lai:
190.1. pa diviem eksemplāriem izsniegtu katram ierosinātājam;
190.2. divus eksemplārus (no kuriem viens ir saskaņots ar normatīvajos aktos noteiktajām institūcijām) pievienotu zemes kadastrālās uzmērīšanas lietai.
4.16. Zemes vienības daļas kadastrālā uzmērīšana
191. Zemes vienības daļas kadastrālajā uzmērīšanā:
191.1. uzmēra zemes vienības daļas robežas;
191.2. sastāda zemes vienības daļas robežu plānu;
191.3. sastāda zemes vienības daļas situācijas plānu;
191.4. sastāda zemes vienības daļas apgrūtinājumu plānu.
192. Zemes vienības daļas robežas nosaka atbilstoši ierosinātāja iesniegtajai zemes robežu plāna kopijai ar tajā attēlotām zemes vienības daļas robežām.
193. Katrai zemes vienības daļai izgatavo atsevišķu zemes vienības daļas robežu plānu. Pēc ierosinātāja pieprasījuma vienā zemes vienības daļas robežu plānā var attēlot vairākas zemes vienības daļas.
194. Zemes vienības daļas robežas uzmēra atbilstoši zemes vienības uzmērīšanas prasībām. Robežzīmes apvidū nostiprina ar pagaidu zīmēm vai robežzīmēm (10.pielikums).
195. Zemes vienības daļas robežu plāns ir abpusīgi noformēts dokuments, kas sastāv no titullapas A4 formātā un zemes vienības un zemes vienības daļas robežu grafiskā attēlojuma A4 vai A3 formātā. Pēc ierosinātāja pieprasījuma robežu grafisko attēlojumu var izgatavot A2 vai A1 formātā. Zemes vienības daļas robežu plāna titullapu un zemes vienības daļas robežu grafisko attēlojumu sastāda atbilstoši šo noteikumu 12.pielikumā sniegtajiem apzīmējumiem un 17.pielikumā noteiktajām prasībām.
196. Lai zemes vienības daļas robežu plānā uzskatāmi attēlotu visus nepieciešamos elementus, tā mērogu var palielināt vai samazināt, kā arī atsevišķus plāna fragmentus attēlot palielinātā mērogā iznesumu veidā.
197. Zemes vienības daļas robežu plānu, situācijas plānu un apgrūtinājumu plānu sastāda tāpat kā zemes robežu plānu, situācijas plānu un apgrūtinājumu plānu, veicot attiecīgas izmaiņas titullapas noformējumā.
198. Pēc ierosinātāja pieprasījuma (ja var nodrošināt pārskatāmu plāna elementu attēlošanu) zemes vienības daļas robežu plānu var apvienot ar zemes vienības daļas situācijas plānu un apgrūtinājumu plānu. Titullapā izdara uzrakstu “Zemes vienības daļas robežu, situācijas un apgrūtinājumu plāns”.
199. Zemes vienības daļas robežu plānu izgatavo tik oriģinālos eksemplāros, lai:
199.1. pa trim eksemplāriem izsniegtu katram ierosinātājam;
199.2. vienu eksemplāru pievienotu zemes kadastrālās uzmērīšanas lietai.
200. Ja zemes vienības daļas robežu plāns ir izgatavots uz vairākām lapām, izgatavo vienu kopēju titullapu, kurā norādīts lapu skaits. Minētos dokumentus caurauklo un numurē. Par zemes vienības daļas robežu plāna izgatavošanas datumu uzskatāms ar mērnieka parakstu apliecinātais zemes vienības daļas robežu plāna sagatavošanas datums.
4.17. Zemes uzmērīšana būves (būvju) ierakstīšanai zemesgrāmatā
201. Lai ierakstītu būvi (būves) zemesgrāmatā, sastāda robežu plānu. Robežu plānu sastāda, ja būve (būves) atrodas uz zemes, kas nav ierakstīta zemesgrāmatā. Robežu plāns ir abpusīgi noformēts dokuments. Tas sastāv no titullapas A4 formātā un zemes vienību robežu grafiskā attēlojuma A4 vai A3 formātā, ko izgatavo, pamatojoties uz kadastrālajā uzmērīšanā iegūtajiem datiem. Pēc ierosinātāja pieprasījuma robežu grafisko attēlojumu var izgatavot A2 vai A1 formātā. Robežu plāna titullapu un zemes vienību robežu grafisko attēlojumu sastāda atbilstoši šo noteikumu 12.pielikumā sniegtajiem apzīmējumiem un 18.pielikumā noteiktajām prasībām.
202. Būves (būvju) ierakstīšanai zemesgrāmatā paredzētās zemes robežas apvidū nosaka atbilstoši attiecīgās institūcijas lēmuma grafiskajam pielikumam.
203. Robežu plāna sastādīšanai nepieciešamos tehniskos datus iegūst, instrumentāli uzmērot:
203.1. zemesgrāmatā ierakstāmo būvi (būves);
203.2. zemesgabala robežas atbilstoši šo noteikumu 202.punktā minētajam grafiskajam pielikumam, ja nav veikta robežu kadastrālā uzmērīšana.
204. Ja nomas vajadzībām nepieciešams izgatavot zemes vienības daļas plānu, mērnieks, papildus uzmērot, iegūst zemes vienības daļas plāna sastādīšanai nepieciešamos tehniskos datus. Zemes vienības daļas plānu izgatavo pēc zemes īpašnieka pieprasījuma.
205. Ja būve atrodas uz vairākām zemes vienībām:
205.1. robežu plānā attēlo visas zemes vienības neatkarīgi no tā, vai zeme ir vai nav ierakstīta zemesgrāmatā;
205.2. robežu plāna titullapā ieraksta šo noteikumu 18.pielikumā minēto informāciju par visām zemes vienībām.
206. Ja būve atrodas gan uz zemesgrāmatā ierakstītām, gan zemesgrāmatā neierakstītām zemes vienībām:
206.1. robežu plānā attēlo visas zemes vienības, uz kurām atrodas zemesgrāmatā ierakstāmā būve;
206.2. robežu plāna titullapā papildus šo noteikumu 18.pielikumā minētajai informācijai ieraksta datumu, kad attiecīgā zemes vienība nostiprināta zemesgrāmatā, un zemesgrāmatas nodalījuma numuru.
207. Zemes vienību robežu grafisko attēlojumu konstruē pēc zemes vienību robežpunktu koordinātām titullapas otrā pusē vai uz atsevišķas lapas (lapām). Ja kadastra karte nodrošina nepieciešamo robežu uzmērīšanas precizitāti, zemes vienību robežu grafiskā attēlojuma sastādīšanai var izmantot digitālo grafisko informāciju no kadastra kartes.
208. Zemes vienību robežu grafisko attēlojumu sastāda šādos mērogos:
208.1. pilsētā – 1 : 500;
208.2. lauku apvidū – 1 : 5000 vai 1 : 10000;
208.3. ciema, vasarnīcu un dārzkopības apbūves teritorijā – 1 : 1000 vai 1 : 2000.
209. Ja nepieciešams robežu plānā uzskatāmi attēlot visus attiecīgos elementus, robežu plāna mērogu var palielināt vai samazināt, kā arī atsevišķus plāna fragmentus attēlot palielinātā mērogā iznesumu veidā.
210. Robežu plānu izgatavo tik oriģinālos eksemplāros, lai:
210.1. pa diviem eksemplāriem izsniegtu katram ierosinātājam;
210.2. vienu eksemplāru pievienotu zemes kadastrālās uzmērīšanas lietai.
211. Ja robežu plāns ir izgatavots uz vairākām lapām, izgatavo vienu kopēju titullapu, kurā norādīts lapu skaits. Minētos dokumentus caurauklo un numurē. Par robežu plāna izgatavošanas datumu uzskatāms ar mērnieka parakstu apliecinātais robežu plāna sagatavošanas datums.
4.18. Platības aprēķināšana
212. Platību aprēķina:
212.1. zemes vienībai;
212.2. zemes vienības daļai;
212.3. zemes lietošanas veida teritorijai;
212.4. nekustamā īpašuma objekta apgrūtinājuma teritorijai.
213. Platību aprēķina analītiski:
213.1. zemes vienībai vai zemes vienības daļai – izmantojot robežpunktu koordinātas;
213.2. zemes lietošanas veida teritorijai – izmantojot zemes lietošanas veida robežu uzmērīto punktu koordinātas;
213.3. nekustamā īpašuma objekta apgrūtinājuma teritorijai – izmantojot:
213.3.1. apgrūtinājumu robežu pagriezienu punktu koordinātas, ko izsniedzis Valsts zemes dienests, lai varētu veikt zemes kadastrālo uzmērīšanu;
213.3.2. apgrūtinājumu robežu pagriezienu punktu koordinātas, kas iegūtas, apgrūtinājumu robežas pārnesot no vietējās pašvaldības teritorijas plānojuma vai detālplānojuma digitālā materiāla;
213.3.3. apgrūtinājumu robežu pagriezienu punktu koordinātas, kas iegūtas, apgrūtinājumu robežas pārnesot no līguma par apgrūtinājuma nodibināšanu, tiesas sprieduma grafiskā pielikuma.
214. Aprēķinot platību, no tās izslēdz LKS-92 koordinātu sistēmā plaknes projekcijas sagrozījumus, ko aprēķina, izmantojot šādu formulu:
Pk
P = ––––, kur:
m2
P – nosakāmās teritorijas platība;
Pk – teritorijas platība projekcijas plaknē;
m – projekcijas mērogs.
215. Platības aprēķina ar šādu noteiktību:
215.1. pilsētas, ciema, vasarnīcu un dārzkopības apbūves teritorijā – 0,0001 ha;
215.2. lauku apvidū:
215.2.1. teritorijām līdz 1,0 ha (ieskaitot) – 0,0001 ha, bet, ja robežas noteiktas pa situācijas elementiem, – 0,01 ha;
215.2.2. teritorijām, kas lielākas par 1,0 ha, – 0,01 ha.
216. Zemes lietošanas veidu platību aprēķināšanai izmanto sastādīto situācijas plāna kopiju, kurā secīgi numurē zemes lietošanas veidu teritorijas.
217. Aprēķinātās zemes lietošanas veidu platības ieraksta platību sarakstā. Zemes lietošanas veidu platību summai jāsakrīt ar zemes vienības platību. Ja zemes lietošanas veidu platību summa nesakrīt ar zemes vienības platību, aprēķina pieļaujamo nesaisti.
218. Pieļaujamo nesaisti aprēķina, izmantojot šādu formulu:
m
fp = ± 0,1 √P x _________, kur:
10000
fp – pieļaujamā nesaiste;
P – zemes vienības platība;
m – plāna skaitliskā mēroga saucējs.
219. Ja atšķirība starp zemes lietošanas veidu platību summu un zemes vienības platību nepārsniedz aprēķināto pieļaujamo nesaisti, nesaisti izlīdzina proporcionāli zemes lietošanas veidu platībām, lai zemes lietošanas veidu platību summa sakristu ar zemes vienības platību.
220. Platības noapaļo atbilstoši precizitātei, ar kādu noteikta zemes vienības vai zemes vienības daļas platība. Noapaļojot decimāldaļskaitļus, ievēro šādus nosacījumus:
220.1. ja decimāldaļskaitļa atmetamā daļa ir mazāka par 0,5, to pieņem par 0;
220.2. ja decimāldaļskaitļa atmetamā daļa ir lielāka par 0,5, to pieņem par 1;
220.3. ja decimāldaļskaitļa atmetamā daļa ir vienāda ar 0,5, to noapaļo līdz tuvākajam pāra skaitlim.
4.19. Zemes kadastrālās uzmērīšanas lietas sagatavošana
221. Zemes kadastrālajā uzmērīšanā sastādītos, uzmērīšanai saņemtos un ierosinātāja iesniegtos dokumentus sakārto zemes kadastrālās uzmērīšanas lietā. Zemes kadastrālās uzmērīšanas lietu iekārto katram nekustamajam īpašumam un izgatavo vienā eksemplārā.
222. Zemes kadastrālās uzmērīšanas lietas vākos iešuj šādus dokumentus:
222.1. ierosinātāja iesniegumu par zemes kadastrālās uzmērīšanas veikšanu (norāda uzmērāmo zemes vienību skaitu un citu informāciju);
222.2. sagatavošanas darbu laikā saņemtos dokumentus;
222.3. darba pārtraukšanas aktu;
222.4. zemes robežu apsekošanas aktu, zemes robežu atjaunošanas aktu, zemes robežu apsekošanas un atjaunošanas aktu;
222.5. pierobežnieku uzaicinājuma dokumentus;
222.6. zemes robežu noteikšanas aktu;
222.7. ierosinātāja vai tā pilnvarotas personas rakstisku atteikumu ierasties uz robežu noteikšanu, apsekošanu vai atjaunošanu;
222.8. pilnvaroto pārstāvju pilnvaras;
222.9. robežpunktu piesaistes abrisus;
222.10. tehniskos pārskatus un izrakstu no ģeodēzisko punktu koordinātu kataloga par ģeodēziskā tīkla punktiem (izrakstu var nepievienot, ja punktu koordinātu saraksta datorizdrukā ir norādīts pilns koordinātu datu avota – kataloga vai tehniskā pārskata – nosaukums) vai uzmērīšanas pamattīkla lietu;
222.11. ierīkotā uzmērīšanas tīkla shēmu;
222.12. mērījumu datus (piemēram, mērīšanas žurnālu ieraksti, instrumenta lauka reģistratora atmiņas izdrukas);
222.13. uzmērīšanas abrisu;
222.14. aprēķinus (uzmērīšanas tīkla izlīdzināšana, uzmērīšanas tīkla punktu un robežpunktu koordinātu aprēķins, kopplatības aprēķins, ja tā aprēķināta manuāli);
222.15. aprēķinu rezultātus (uzmērīšanas tīkla punktu un robežpunktu koordinātu katalogs, koordinātu noteiktības novērtējums, kopplatības aprēķina rezultāts, ja tā aprēķināta manuāli);
222.16. zemes lietošanas veidu platību aprēķinu plānu;
222.17. zemes lietošanas veidu platību sarakstu (aprēķinu);
222.18. zemes robežu plānus;
222.19. zemes vienības daļas robežu plānu;
222.20. situācijas plānu;
222.21. apgrūtinājumu plānus;
222.22. transformētās lauksaimniecībā izmantojamās zemes izvietojuma plānu;
222.23. robežu plānu būvju ierakstīšanai zemesgrāmatā;
222.24. aktu par ierīkoto robežstigu un kupicu pieņemšanu;
222.25. mērniecības darbu kvalitātes apliecinājumu.
223. Mērniecības darbu kvalitātes apliecinājumā mērnieks (ja zemes kadastrālo uzmērīšanu veic komercsabiedrība – attiecīgais mērnieks un komercsabiedrības vadītājs) izdara šādu uzrakstu: “Apliecinu, ka zemes kadastrālā uzmērīšana ir veikta atbilstoši 2007.gada 20.marta Ministru kabineta noteikumiem Nr. 182 “Noteikumi par nekustamā īpašuma objekta noteikšanu”, kā arī dokumentu izstrādāšanas, noformēšanas un glabāšanas prasībām.”
224. Pēc ierosinātāja pieprasījuma izgatavo zemes kadastrālās uzmērīšanas lietas papildu eksemplāru. Papildu eksemplāru kopā ar zemes robežu plānu izsniedz ierosinātājam.
225. Zemes kadastrālās uzmērīšanas lietas vākus un apliecinājumu noformē atbilstoši šo noteikumu 19.pielikumam.
226. Ja zemes kadastrālās uzmērīšanas datus aktualizē, mērnieks sagatavo jaunu zemes kadastrālās uzmērīšanas lietu.
227. Neaktuālos kadastrālās uzmērīšanas dokumentus pēc jaunu zemes kadastrālās uzmērīšanas datu reģistrācijas kadastra informācijas sistēmā Valsts zemes dienesta darbinieks anulē ar spiedoga atzīmi (20.pielikums).
228. Zemes kadastrālās uzmērīšanas lietā sakārtotajiem dokumentiem jāatbilst dokumentu noformēšanas prasībām. Dokumentu kopijām, uz kuru pamata veikta zemes kadastrālā uzmērīšana, jābūt apliecinātām. Dokumentu kopijas zemes kadastrālajai uzmērīšanai var apliecināt mērnieks. Ja dokuments satur koordinātas vai koordinātu labojumus, norāda koordinātu sistēmu un datorprogrammu, kas izmantota datu apstrādē.
229. Ja zemes kadastrālā uzmērīšana veikta, izmantojot iepriekš izveidotu uzmērīšanas pamattīklu, zemes kadastrālās uzmērīšanas dokumentos izdara norādi uz attiecīgo uzmērīšanas pamattīkla ierīkošanas lietu (tehnisko pārskatu).
230. Pēc ierīkoto robežstigu un kupicu pieņemšanas apvidū mērnieks zemes kadastrālās uzmērīšanas lietu iesniedz Valsts zemes dienesta teritoriālajā struktūrvienībā. Kopā ar zemes kadastrālās uzmērīšanas lietu digitālā veidā vektordatu formātā iesniedz:
230.1. zemes robežu plānu;
230.2. apgrūtinājumu plānu;
230.3. situācijas plānu;
230.4. transformētās lauksaimniecībā izmantotās zemes izvietojuma plānu;
230.5. robežu plānu būvju ierakstīšanai zemesgrāmatā;
230.6. zemes vienības daļas robežu plānu.
231. Ja zemes kadastrālajā uzmērīšanā izgatavots zemes robežu plāns vai zemes vienības daļas robežu plāns, kopā ar zemes kadastrālās uzmērīšanas lietu papildus iesniedz speciāli sakārtotu datni, kurā digitālā veidā vektordatu formātā iekļauj informāciju par:
231.1. zemes vienības vai zemes vienības daļas robežām;
231.2. zemes vienības kadastra apzīmējumu;
231.3. zemes vienības vai zemes vienības daļas robežpunktiem;
231.4. būvju ārējām kontūrām;
231.5. būvju kadastra apzīmējumiem.
232. Informācijai datnē jāatbilst šādām kadastra kartes specifikācijas prasībām:
232.1. robežas veido noslēgtu kontūru;
232.2. robežlīnijas lūzuma punkta koordinātas atbilst robežpunkta koordinātām;
232.3. robežpunkta koordinātas atbilst tā punkta koordinātām, pie kura piesaistīts robežpunkta numurs vai nosaukums;
232.4. dati ir sakārtoti šādos datu līmeņos:
232.4.1. zemes vienību robežas – 30.datu līmenī;
232.4.2. zemes vienības daļu robežas – 15.datu līmenī;
232.4.3. zemes vienību kadastra apzīmējumi – 59.datu līmenī;
232.4.4. zemes vienības daļu kadastra apzīmējumi – 14.datu līmenī;
232.4.5. zemes vienību un zemes vienības daļu robežpunkti – 10.datu līmenī;
232.4.6. būvju ārējās kontūras – 42.datu līmenī;
232.4.7. būvju kadastra apzīmējumi – 41.datu līmenī.
233. Valsts zemes dienests:
233.1. veicot zemes vienību un zemes vienības daļu reģistrāciju kadastra informācijas sistēmā, izvērtē zemes kadastrālās uzmērīšanas rezultātus;
233.2. nodrošina zemes kadastrālās uzmērīšanas mērnieku darbības uzraudzību attiecībā uz šajos noteikumos noteikto prasību izpildi.
4.20. Zemes kadastrālajā uzmērīšanā iesaistīto personu tiesības un pienākumi
4.20.1. Zemes kadastrālās uzmērīšanas ierosinātāja tiesības un pienākumi
234. Zemes kadastrālās uzmērīšanas ierosinātājam ir šādas tiesības:
234.1. saņemt šo noteikumu prasībām atbilstošu profesionālu un kvalitatīvu pakalpojumu;
234.2. saņemt no mērnieka ar normatīvajiem aktiem, kas regulē zemes vienības vai zemes vienības daļas kadastrālo uzmērīšanu, pamatotu informāciju par zemes vienības vai zemes vienības daļas kadastrālās uzmērīšanas darbu norisi, kā arī par veicamo darbu termiņiem;
234.3. pretenziju gadījumā apstrīdēt zemes kadastrālās uzmērīšanas rezultātus var Valsts zemes dienestam vai civiltiesiskā kārtībā.
235. Zemes kadastrālās uzmērīšanas ierosinātājam ir šādi pienākumi:
235.1. nodrošināt mērniekam iekļūšanu zemes vienības vai zemes vienības daļas teritorijā;
235.2. piedalīties robežu noteikšanā;
235.3. piedalīties iepriekš noteikto robežu apsekošanā un, ja nepieciešams, atjaunošanā;
235.4. parakstīt zemes kadastrālajā uzmērīšanā sastādītos šajos noteikumos noteiktos dokumentus;
235.5. mērnieka norādītajās vietās ierīkot robežzīmes un robežstigas, izveidot kupicas, kā arī likvidēt robežzīmes;
235.6. periodiski attīrīt robežstigas no apauguma, nepieļaujot to aizaugšanu;
235.7. uz vienošanās pamata ar pierobežniekiem segt robežzīmju atjaunošanas izdevumus;
235.8. saglabāt ierīkotās robežzīmes;
235.9. pretenziju gadījumā par apstrīdētajiem zemes kadastrālās uzmērīšanas rezultātiem iesniegt ekspertu atzinumu, kas apliecina pretenziju pamatotību.
4.20.2. Pierobežnieku tiesības un pienākumi
236. Pierobežniekiem ir šādas tiesības:
236.1. saņemt no mērnieka informāciju par kopējo robežposmu veicamo zemes kadastrālās uzmērīšanas darbu norisi un termiņiem;
236.2. pretenziju gadījumā rakstiski apstrīdēt kopējo robežposmu apsekošanas, atjaunošanas un noteikšanas rezultātus.
237. Pierobežniekiem ir pienākums:
237.1. parakstīt zemes kadastrālajā uzmērīšanā sastādītos šajos noteikumos noteiktos dokumentus;
237.2. atļaut atrasties tiem piederošā īpašuma teritorijā mērniekam, kurš veic zemes kadastrālo uzmērīšanu blakus esošajā zemes vienībā.
4.20.3. Mērnieka tiesības un pienākumi
238. Mērniekam ir šādas tiesības:
238.1. apsekot zemes vienības vai zemes vienības daļas robežas un teritoriju, veikt citus zemes kadastrālajai uzmērīšanai nepieciešamos pasākumus;
238.2. veicot zemes kadastrālo uzmērīšanu, atrasties uz blakus esošās zemes vienības, par paredzētajām darbībām informējot attiecīgo blakus esošā īpašuma īpašnieku, tiesisko valdītāju vai lietotāju;
238.3. pieaicināt tiesībaizsardzības vai kārtību sargājošo institūciju pārstāvjus, ja tiek traucēta zemes kadastrālā uzmērīšana.
239. Mērniekam ir pienākums:
239.1. nodrošināt zemes kadastrālās uzmērīšanas darbu atbilstību šo noteikumu prasībām;
239.2. 30 dienu laikā sniegt rakstisku atbildi uz ierosinātāja izvirzītajām pretenzijām par zemes kadastrālās uzmērīšanas rezultātiem;
239.3. pirms zemes kadastrālās uzmērīšanas lietas iesniegšanas reģistrācijai Valsts zemes dienesta teritoriālajā struktūrvienībā kontrolēt un pieņemt apvidū ierīkotās robežstigas un kupicas, sastādot aktu par to atbilstību šo noteikumu prasībām;
239.4. informēt ierosinātāju par zemes kadastrālās uzmērīšanas darbībām;
239.5. paziņot Latvijas ģeotelpiskās informācijas aģentūrai par zemes kadastrālajā uzmērīšanā konstatētām iznīcinātām vai bojātām valsts ģeodēziskajām zīmēm;
239.6. Valsts zemes dienesta teritoriālās struktūrvienības izsniegtajā veidlapā aizpildīt informāciju par būvēm, kuras nav reģistrētas kadastra informācijas sistēmā, un iesniegt to Valsts zemes dienesta teritoriālajā struktūrvienībā. Par attiecīgo būvi norāda:
239.6.1. apbūves laukumu kvadrātmetros;
239.6.2. vai tā ir dzīvojamā vai nedzīvojamā būve, ja to iespējams konstatēt;
239.6.3. virszemes stāvu skaitu, ja to iespējams konstatēt;
239.7. nodrošināt:
239.7.1. Valsts zemes dienesta lēmumā par kadastra objekta reģistrācijas vai datu aktualizācijas atlikšanu vai atteikumu norādīto nepilnību novēršanu;
239.7.2. atkārtotu kadastrālās uzmērīšanas dokumentu iesniegšanu Valsts zemes dienestā;
239.8. pēc Valsts zemes dienesta uzaicinājuma piedalīties zemes kadastrālās uzmērīšanas pārbaudē un noteiktajā termiņā iesniegt pieprasītos paskaidrojumus;
239.9. norādīt, kuras apvidū esošās robežzīmes ir jālikvidē, un pārbaudīt to likvidāciju;
239.10. saskaņot zemes vienības noteikšanas vai atjaunošanas darbības un robežpunktu koordinātu datus ar mērnieku, kurš blakus esošajā zemes vienībā veic zemes vienības noteikšanu vai atjaunošanu.
240. Ja zemes kadastrālo uzmērīšanu veic komercsabiedrība, tās vadītājam ir pienākums nodrošināt zemes kadastrālās uzmērīšanas darbu izpildes kontroli un atbilstību šo noteikumu prasībām.
241. Citas zemes kadastrālajā uzmērīšanā iesaistītās institūcijas atbilstoši kompetencei nodrošina mērniekam sniegtās informācijas patiesumu.
5. Būves kadastrālā uzmērīšana
5.1. Vispārīgie jautājumi
242. Būves kadastrālās uzmērīšanas darbības ir šādas:
242.1. ēkas kadastrālā uzmērīšana;
242.2. ēkas apjoma rādītāju aprēķināšana;
242.3. ēkas fiziskā stāvokļa noteikšana;
242.4. ēkas galvenā lietošanas veida norādīšana un maiņa;
242.5. telpu grupu kadastrālā uzmērīšana;
242.6. telpu grupas un ēkas kadastrālās uzmērīšanas datu aktualizācija;
242.7. inženierbūvju kadastrālā uzmērīšana;
242.8. inženierbūvju elementu uzmērīšana;
242.9. inženierbūvju fiziskā stāvokļa noteikšana;
242.10. būves punkta koordinātu noteikšana;
242.11. patvaļīgas būvniecības pazīmes konstatēšana un dzēšana;
242.12. būves lietas sakārtošana.
243. Veicot būves kadastrālo uzmērīšanu, ievēro būves kadastrālās uzmērīšanas un raksturojošo datu grozīšanas kārtību, kā arī nodrošina ēkas, telpu grupas vai inženierbūves raksturojošu datu iegūšanu, to precizitāti, pieļaujamo nesaisti un šiem noteikumiem atbilstošu būves kadastrālās uzmērīšanas dokumentu saturu un saskaņošanas kārtību.
244. Būves kadastrālās uzmērīšanas mērķis ir iegūt aktuālus datus par būvi un tajā ietilpstošajām telpu grupām, kā arī būvi raksturojošiem rādītājiem – apjomu, fizisko stāvokli, lietošanas veidu, būvniecībā izmantotajiem materiāliem – būves kadastrālās uzmērīšanas dienā.
245. Kadastrāli neuzmēra:
245.1. dzelzceļa transporta signalizācijas, centralizācijas un bloķēšanas līnijas, iekārtas kustības drošības garantēšanai, pārmiju stāvokļa un signālu regulēšanai, luksoforus, signālrādītājus un signālzīmes;
245.2. elektronisko sakaru tīklus, kabeļus un antenas, kā arī torņus un mastus, kas atrodas uz ēku jumtiem;
245.3. dažādas antenas un to fīderu līnijas;
245.4. transporta būvju elektroapgādes gaisvadu un kabeļu līnijas, kontakttīklus un to balstus;
245.5. atklātās transformatoru apakšstacijas un citas ar elektroenerģijas pārvadi un sadali saistītās iekārtas un ierīces;
245.6. meliorācijas būves bez ēkas pazīmēm;
245.7. mākslīgi izveidoto ūdenskrātuves krasta nostiprinājumus pirms aizsprostiem;
245.8. autoceļu žogus, ceļa zīmes un transparentus, signālstabiņus, ceļu joslu atdalošās barjeras;
245.9. tiltu celtņu sliežu ceļus;
245.10. sporta, atpūtas, atrakciju un bērnu rotaļu laukumu aprīkojumu;
245.11. inženierbūves pamatus un pamatnes, ja nav izbūvēti vai ir sagruvuši pārējie inženierbūves konstruktīvie elementi.
246. Būves kadastrālajai uzmērīšanai izmanto normatīvajos aktos noteikto būvju iedalījumu ēkās un inženierbūvēs.
247. Telpu grupām, kas atrodas ēkās, kurām būvju kadastrālā uzmērīšana (būvju tehniskā inventarizācija) veikta pēc 1999.gada 15.decembra, telpu grupu kadastrālās uzmērīšanas lietu pēc ierosinātāja iesnieguma sagatavo, izmantojot ēkas kadastrālās uzmērīšanas lietu, ja ierosinātājs rakstiski apliecina, ka nav mainīts:
247.1. logu vai durvju aiļu izvietojums vai to izmēri;
247.2. telpu grupu iekšējo sienu izvietojums;
247.3. telpu sadalījums telpu grupā.
248. Uzmērot būves sadalīšanā atdalīto atsevišķo būvi, būvi sadala, pamatojoties uz būvprojektu un konstruktīvajām izmaiņām. Būves sadales līniju nosaka pa vienu vertikālu plakni visas būves augstumā vai pa vairākām vertikālām plaknēm, kas atbilst katra stāva augstumam.
249. Ja kadastrālās uzmērīšanas darbs netiek pārtraukts šo noteikumu noteiktajā kārtībā, būves kadastrālo uzmērīšanu veic šādos termiņos (no pasūtījuma pieņemšanas datuma):
249.1. telpu grupai – 30 dienas;
249.2. ēkai ar kopējo būvtilpumu līdz 5000 m3 – 30 dienas;
249.3. ēkai, kuras būvtilpums ir lielāks par 5000 m3, – 60 dienas;
249.4. inženierbūvēm par izpildes termiņu vienojas ar ierosinātāju, bet tas nedrīkst būt ilgāks par 60 dienām.
250. Būvi raksturojošos datus iegūst:
250.1. apvidū, veicot būves un (vai) telpu grupas kadastrālo uzmērīšanu;
250.2. no dokumentiem, kas sastādīti būvniecību reglamentējošajos normatīvajos aktos noteiktajā kārtībā.
251. Būvju un telpu grupu kadastrālajā uzmērīšanā iegūtos datus izmanto:
251.1. valsts pārvaldes institūciju un kadastra subjektu nodrošināšanai ar aktuālu informāciju;
251.2. pieņemšanai ekspluatācijā;
251.3. ierakstīšanai vai aktualizācijai zemesgrāmatā;
251.4. kadastrālās vērtības noteikšanai;
251.5. būvprojektu izstrādei;
251.6. patvaļīgas būvniecības pazīmju konstatēšanai;
251.7. pašvaldību būvniecību pārraugošo institūciju informēšanai;
251.8. valsts drošības interešu aizsardzībai;
251.9. valsts statistiskās informācijas sagatavošanai;
251.10. teritorijas apbūves plānošanai;
251.11. uzskaitei;
251.12. nomas vai īres līguma slēgšanai;
251.13. apsaimniekošanai.
252. Būvju un telpu grupu kadastrālās uzmērīšanas rezultātu atbilstību šo noteikumu prasībām un faktiskajai situācijai kadastrālās uzmērīšanas dienā kontrolē un nodrošina Valsts zemes dienests. Ierosinātājs triju mēnešu laikā pēc būves vai telpu grupas kadastrālās uzmērīšanas apvidū nodrošina Valsts zemes dienesta kontroles veicēju iekļūšanu visās būvēs vai telpu grupās esošajās telpās.
253. Ja kadastra subjekts ierosina būvju un telpu grupu kadastrālās uzmērīšanas rezultātu pārbaudi par to atbilstību šo noteikumu prasībām, Valsts zemes dienests datu pārbaudē konstatētās neatbilstības un kļūdas novērš par saviem līdzekļiem. Ja pārbaudē datu neatbilstību nekonstatē, pārbaudes izdevumus sedz pārbaudes ierosinātājs.
254. Būves kadastrālās uzmērīšanas procesā pieļaujamās mērījumu nesasaites nedrīkst pārsniegt:
254.1. +/– 0,02 m mērījumiem līdz astoņiem metriem;
254.2. +/– 0,25 % mērījumiem, kas lielāki par astoņiem metriem.
5.2. Ēku kadastrālā uzmērīšana
255. Ēkas kadastrālajā uzmērīšanā izmanto:
255.1. ierosinātāja iesniegtos dokumentus;
255.2. datus no kadastra informācijas sistēmas;
255.3. Valsts zemes dienesta arhīva dokumentus.
256. Ēkas kadastrālajā uzmērīšanā veic ēkas ārējo un iekšējo apsekošanu un uzmērīšanu, sastādot apbūves skici un telpu izvietojuma skici. Ēkas iekšējās kontūras robežās un uz ēkas jumtiem esošām iekārtām kadastrālo uzmērīšanu neveic.
257. Ēkas ārējā apsekošanā konstatē:
257.1. ēkas virszemes stāvu skaitu;
257.2. ēkas pamatu, ārsienu un jumta seguma materiālu, piemērojot materiālu klasifikatoru (21.pielikums);
257.3. ēkas pamatu, ārsienu un jumta seguma fiziskā nolietojuma pazīmes;
257.4. patvaļīgas būvniecības pazīmes.
258. Ēkas virszemes stāvu skaitā ietilpst visi virszemes stāvi, kā arī cokols, mansards, tehniskais stāvs un jumta stāvs. Virszemes stāvu skaitā neietilpst pagrabstāvs un bēniņi.
259. Ja ēkas daļām ir atšķirīgs virszemes stāvu skaits, ņem vērā lielāko stāvu skaitu.
260. Pamatu, ārsienu, pārseguma un jumta seguma materiālu un ēkas galveno konstruktīvo elementu fiziskā nolietojuma pazīmes nosaka vizuāli. Ēkas pirmā stāva telpu izvietojuma skicē ieraksta:
260.1. galveno konstruktīvo elementu materiālu atbilstoši materiālu klasifikatoram (21.pielikums);
260.2. ēkas galveno konstruktīvo elementu fiziskā nolietojuma pazīmes atbilstoši fiziskā nolietojuma pazīmju aprakstam (22.pielikums).
261. Ja pamatu, ārsienu, pārseguma un jumta materiālu vizuāla noteikšana ir apgrūtināta, to nosaka atbilstoši projekta dokumentācijā, aktā par būves pieņemšanu ekspluatācijā, iepriekšējās tehniskās inventarizācijas lietā vai arhīva izziņā norādītajam materiālam.
262. Ēkas ārējā uzmērīšanā mēra šādus attālumus:
262.1. ēkas ārsienu un to izvirzīto daļu garumus, mērot pa ēkas ārējo perimetru cokola līmenī;
262.2. uz kolonnām izvietotu ēku vai tās daļu ārsienu un to izvirzīto daļu garumus, mērot attālumus pa ēkas perimetru starp kolonnu ārējām malām vai to veidotajām pieskarēm;
262.3. caurbrauktuves laukumu kā tāda laukuma projekciju, kuru veido virs tās esošās ēkas daļas ārējais perimetrs;
262.4. laukumus zem lieveņiem, terasēm un ārējām kāpnēm;
262.5. ēkas pirmajam stāvam – attālumus, pēc kuriem var attēlot logu un durvju aiļu atrašanās vietu ārsienās;
262.6. vienstāva ēkām bez pārseguma vertikālā virzienā – katras ārsienas augstumu:
262.6.1. ēkas stūros no pamatu virsmas līmeņa līdz jumta seguma un ārsienas turpinājuma krustpunktam;
262.6.2. no pamatu virsmas līmeņa līdz jumta korei.
263. Ja ēkai nav ārsienu un ēkas jumtu balsta kolonnas, apbūves laukumu mēra kā laukumu, kuru veido kolonnu ārējās malas un to savienojošās taisnes.
264. Apbūves skicē attēlo visu zemes vienības teritorijā esošo būvju savstarpējo izvietojumu. Ja kadastrāli uzmērāmā būve atrodas uz vairākām zemes vienībām, apbūves skicē attēlo visu būvju savstarpējo izvietojumu, kas atrodas attiecīgo zemes vienību teritorijās. Apbūves skicē pilnībā attēlo arī tās būves, kas daļēji atrodas attiecīgās zemes vienības teritorijā un kam neveic kadastrālo uzmērīšanu.
265. Apbūves skicei izmanto no kadastra informācijas sistēmas izsniegtu ar ortofoto karti savietotas kadastra kartes izkopējuma kopiju (turpmāk – kadastra kartes kopija), kas izgatavota mērogā 1 : 500, 1 : 1000 vai 1 : 2000, izdrukāta A4 vai A3 formātā un kurā atkarībā no zemes kadastrālās uzmērīšanas veida ir:
265.1. zemes vienības teritorijā esošo būvju ārējās kontūras;
265.2. būves kadastra apzīmējumi;
265.3. zemes vienības adrese, ja pašvaldība tādu piešķīrusi;
265.4. būvju adreses, ja pašvaldība tādas piešķīrusi.
266. Apbūves skices sastādīšanai par palīgmateriālu drīkst izmantot:
266.1. zemes robežu plāna kopiju;
266.2. agrāk sastādīto tehniskās inventarizācijas lietu grafiskos materiālus;
266.3. ēkas projekta sastāvā esošo plānu kopijas.
267. Ja uzmērītājs konstatē ēkas, kas nav attēlotas kadastra kartē vai reģistrētas kadastra informācijas sistēmas teksta daļā (turpmāk – neuzmērīta ēka), apbūves skicē attēlo šo ēku ārējās kontūras un norāda:
267.1. nepieciešamos attālumus starp neuzmērīto ēku un pārējām ēkām, kas nodrošina neuzmērītās ēkas attēlošanu skicē;
267.2. neuzmērīto ēku ārsienu ārējo horizontālo malu garumus;
267.3. neuzmērīto ēku ārējās kontūras un kārtas numurus (numurē pieaugošā secībā, sākot ar 1);
267.4. virszemes stāvu skaitu, ja to iespējams konstatēt;
267.5. tās dienas datumu, kurā pabeigta apbūves skices sastādīšana;
267.6. uzmērītāja vārdu, uzvārdu un parakstu.
268. Ēkas iekšējā apsekošanā un uzmērīšanā:
268.1. veic telpu uzmērīšanu un par katru stāvu sastāda telpu izvietojuma skici;
268.2. nosaka pārsegumu materiālu, piemērojot materiālu klasifikatoru (21.pielikums) un tā fiziskā nolietojuma pazīmes atbilstoši fiziskā nolietojuma pazīmju aprakstam (22.pielikums);
268.3. nosaka ēkas labiekārtojumu (23.pielikums);
268.4. konstatē patvaļīgas būvniecības pazīmes.
269. Ēkas kadastrālajā uzmērīšanā kā telpu uzmēra konstruktīvi ar sienām norobežotu ēkas daļu, kurai ir izeja uz citu telpu vai āru. Atkarībā no konstruktīvā risinājuma telpas iedala iekštelpās un ārtelpās. Ārtelpām – balkoniem, lodžijām, lieveņiem un terasēm – par norobežojumu nosaka sienas un (vai) norobežojošo konstrukciju iekšējās virsmas. Nojumei par norobežojumu nosaka sienas un (vai) norobežojošo konstrukciju iekšējās virsmas vai jumta ārējās kontūras projekciju horizontālā plaknē.
270. Ēkas iekšējā uzmērīšanā uzmēra:
270.1. telpu sienu iekšējo malu garumus starp būvniecības procesā pabeigtu sienu virsmām pa telpas perimetru un izvirzījumu un (vai) nišu izmērus pa izvirzījumu vai nišu perimetru horizontālā virzienā 1,6 m augstumā no grīdas līmeņa;
270.2. attālumus, pēc kuriem attēlo logu un durvju aiļu atrašanās vietu telpu sienās;
270.3. telpu augstumus:
270.3.1. ēkām ar pārsegumiem – no grīdas līdz griestiem;
270.3.2. ēkām bez pārsegumiem – no grīdas līdz jumta konstrukcijas apakšējai malai;
270.4. atšķirīgos telpu augstumus (sākot no 15 cm) un attālumus, pēc kuriem var attēlot šo telpas augstuma izmaiņu vietu;
270.5. pārsegumu biezumus;
270.6. sienu un starpsienu biezumus logu un durvju ailu atrašanās vietās;
270.7. stacionāro krāšņu, kamīnu, sildmūru un pavardu kontūras grīdas līmenī;
270.8. kolonnu malu garumus horizontālā virzienā un perpendikulāros attālumus no kolonnas malas līdz tuvākajai sienai, kā arī attālumus starp vienā rindā esošām kolonnām 1,6 m augstumā no grīdas līmeņa.
271. Telpu izvietojuma skicei izmanto:
271.1. ēkas projekta sastāvā esošo plānu kopijas;
271.2. iepriekšējā uzmērīšanā sastādīto stāvu plānu kopijas.
272. Telpu izvietojuma skici sastāda uz vienas vai vairākām A4 vai A3 formāta lapām. Skicē apkopo grafisko un teksta informāciju. Grafisko informāciju – ēkas iekšējā uzmērīšanā iegūtos rezultātus – attēlo par katru stāvu, norādot stāva numuru. Ārējā uzmērīšanā iegūtos rezultātus attēlo tikai pirmā stāva telpu izvietojuma skicē. Par būvi kopumā norāda šādu teksta informāciju:
272.1. ēkas adresi, ja pašvaldība tādu ir piešķīrusi;
272.2. būves kadastra apzīmējumu, ja tāds ir piešķirts, vai apbūves skicē norādīto attiecīgās būves numuru;
272.3. ēkas galveno konstruktīvo elementu (pamatu, ārsienu, pārseguma, jumta) materiālus un šo elementu fizisko nolietojumu procentos, kā arī aprakstu;
272.4. ēkas labiekārtojumu;
272.5. patvaļīgas būvniecības pazīmes, ja tādas konstatētas;
272.6. uzmērīšanas datumu, norādot konkrēto telpu izvietojuma skices sastādīšanas datumu;
272.7. uzmērītāja vārdu, uzvārdu un parakstu.
5.3. Stāva plāna un apbūves plāna sastādīšana
273. Izmantojot ēkas apsekošanā un uzmērīšanā iegūtos datus, digitālā veidā sastāda šādus grafiskos materiālus:
273.1. stāva plānu;
273.2. apbūves plānu.
274. Stāva plānu sastāda atbilstoši šo noteikumu 24.pielikumam, izmantojot ēkas telpu izvietojuma skices datus. Stāva plānu noformē uz lapas, kuras formāts nav mazāks par A4. Stāva plānu sastāda mērogā 1 : 50, 1 : 100 vai 1 : 200, nodrošinot pietiekamu izšķiršanas spēju.
275. Telpas apvieno telpu grupās, veidojot konstruktīvi norobežotus telpu kopumus, kas sastāv no vienas vai vairākām telpām ar kopēju izeju uz koplietošanas telpu vai āru. Konstruktīvi norobežotā telpu grupa ar durvju ailu vai durvju ailām nevar būt savienota ar citu telpu grupu.
276. Telpu grupām piešķir kārtas numurus, tās secīgi numurējot. Numurēšanu sāk ar 001 pieaugošā secībā no ēkas pirmā virszemes stāva kreisās malējās kāpņu telpas vai ieejas.
277. Koplietošanā esošās telpas telpu grupās neapvieno, tās numurē pieaugošā secībā, sākot ar 1, no ēkas pirmā virszemes stāva malējās kāpņu telpas vai ieejas.
278. Telpu grupā ietilpstošās telpas stāva plānā numurē pieaugošā secībā, sākot ar 1, pulksteņa rādītāja kustības virzienā. Vispirms numurē iekštelpas, pēc tam – ārtelpas.
279. Apbūves plānu sastāda digitālā veidā A3 vai A4 formātā atbilstoši šo noteikumu 25.pielikumam mērogā 1 : 500, 1 : 1000 vai 1 : 2000, nodrošinot pietiekamu grafiskās informācijas izšķiršanas spēju un izmantojot apbūves skicē ierakstītos datus.
5.4. Ēkas apjoma rādītāju aprēķināšana
280. Izmantojot ēkas kadastrālajā uzmērīšanā iegūtos datus, aprēķina šādus ēkas apjoma rādītājus:
280.1. apbūves laukumu (arī neuzmērītām ēkām);
280.2. būvtilpumu;
280.3. kopējo platību.
281. Ēkas apbūves laukumu aprēķina kā tāda laukuma projekciju cokola līmenī, kuru ierobežo ēkas ārējais perimetrs. Apbūves laukumā ieskaita laukumu zem ēkas vai tās daļas, kas izvietota uz stabiem, caurbrauktuves laukumu zem ēkas un laukumu zem lieveņa, terases un ārējām kāpnēm. Ēkas apbūves laukumu aprēķina kvadrātmetros ar noteiktību līdz 0,1 kvadrātmetram.
282. Ēkas būvtilpums ir tilpums starp ēkas un tās daļu norobežojošo konstrukciju ārējām virsmām. Ēkas būvtilpumu aprēķina kubikmetros ar noteiktību līdz 1 kubikmetram.
283. Ēkas būvtilpumā neieskaita gaisa telpas tilpumu zem ēkas vai tās daļas, kas būvēta uz stabiem, caurbrauktuves tilpumu, ārējo atklāto kāpņu, lieveņu un terašu tilpumu. Ārējo segto kāpņu, lieveņu un terašu tilpumu ieskaita ēkas būvtilpumā.
284. Ēkas būvtilpumu aprēķina, summējot ēkas:
284.1. virszemes daļas (izņemot bēniņus) tilpumu;
284.2. pazemes daļas (arī pagrabstāva) tilpumu.
285. Ēkas kopējo platību aprēķina, summējot visu iekštelpu un ārtelpu platības. Iekštelpu un ārtelpu platībā neieskaita logu un durvju ailu platību neatkarīgi no sienas vai starpsienas biezuma, kurā tās atrodas. Telpu platības aprēķina būvniecības normatīvajos aktos noteiktajā kārtībā.
286. Ēkas kopējās platības sadalīšanai pa platību veidiem un šo platību aprēķināšanai katrai telpai tiek norādīts telpas veids. Telpas veidu norāda atkarībā no tās telpu grupas lietošanas veida, kurā ietilpst attiecīgā telpa.
287. Ja telpa ietilpst telpu grupā, kuras lietošanas veids atbilstoši šo noteikumu 26.pielikumam ir “1110 – Dzīvojamo telpu grupa”, tai norāda kādu no šādiem telpu veidiem:
287.1. dzīvojamā telpa;
287.2. dzīvokļa palīgtelpa;
287.3. dzīvokļa ārtelpa.
288. Pārējām telpām, kas ietilpst telpu grupā, kuras lietošanas veids atbilst šo noteikumu 26.pielikumā noteiktajam (izņemot “1110 – Dzīvojamo telpu grupa”), norāda kādu no šādiem telpu veidiem:
288.1. nedzīvojamā iekštelpa;
288.2. nedzīvojamā ārtelpa.
289. Koplietošanas telpai norāda kādu no šādiem telpu veidiem:
289.1. koplietošanas iekštelpa;
289.2. koplietošanas ārtelpa.
290. Ēkas kopējā platība sastāv no:
290.1. lietderīgās platības;
290.2. koplietošanas palīgtelpu platības.
291. Lietderīgā platība sastāv no:
291.1. dzīvokļu kopējās platības;
291.2. nedzīvojamo telpu platības.
292. Koplietošanas palīgtelpu platība sastāv no:
292.1. koplietošanas iekštelpu platības;
292.2. koplietošanas ārtelpu platības.
293. Dzīvokļu kopējā platība sastāv no:
293.1. dzīvokļu platības, kura sastāv no:
293.1.1. dzīvojamo telpu platības;
293.1.2. dzīvokļu palīgtelpu platības;
293.2. dzīvokļu ārtelpu platības.
294. Nedzīvojamo telpu platība sastāv no:
294.1. nedzīvojamo iekštelpu platības;
294.2. nedzīvojamo ārtelpu platības.
295. Ēkas platības aprēķina kvadrātmetros ar noteiktību līdz 0,1 kvadrātmetram.
296. Ēkas kopējās platības sadalījumu pēc tajā esošajiem platību veidiem ieraksta ēkas eksplikācijā. Ēkas apbūves laukumu un būvtilpuma aprēķinu ieraksta apbūves skicē.
5.5. Ēkas fiziskā stāvokļa noteikšana
297. Ēkas fizisko stāvokli nosaka procentos atbilstoši ēkas kadastrālajā uzmērīšanā konstatētajām galveno konstruktīvo elementu fiziskā nolietojuma pazīmēm, ņemot vērā trūkstošo konstruktīvo elementu īpatsvaru ēkā.
298. Ēkas fiziskā stāvokļa noteikšanā izmanto:
298.1. ēku kadastrālajā uzmērīšanā konstatētos galveno konstruktīvo elementu fiziskā nolietojuma pazīmju raksturojošos rādītājus;
298.2. šo noteikumu 22.pielikumā norādītos nolietojuma rādītājus ar precizitāti līdz pieciem procentiem;
298.3. apstiprinātos ēku konstruktīvo elementu īpatsvara rādītājus saskaņā ar šo noteikumu 27.pielikumu.
299. Ēkām, kurām daļēji saglabājušies vai nav izbūvēti kādi no konstruktīvajiem elementiem, nosaka ēkas konstruktīvā elementa koriģēto īpatsvaru. To nosaka procentos atkarībā no konstruktīvo elementu vai to daļu īpatsvara un apjoma ēkā.
300. Ēkas fizisko stāvokli nosaka procentos atkarībā no ēkas galveno konstruktīvo elementu – pamatu, sienu, pārsegumu un jumta – fiziskā stāvokļa uzmērīšanas datumā, ievērojot šo elementu īpatsvaru ēkā.
301. Ēkas galveno konstruktīvo elementu fizisko stāvokli nosaka:
301.1. ņemot vērā pamatu esību un fizisko stāvokli;
301.2. sienām – ņemot vērā ārsienu, iekšsienu, logu, durvju, inženierkomunikāciju esību un fizisko stāvokli atbilstoši to īpatsvaram ēkā;
301.3. pārsegumiem – ņemot vērā grīdu esību un to fizisko stāvokli atbilstoši to īpatsvaram ēkā;
301.4. jumtiem – ņemot vērā jumta nesošās konstrukcijas (spāru, latojuma) un jumta seguma esību un to fizisko stāvokli.
302. Ēkas kopējo fizisko stāvokli atkarībā no tās konstruktīvo elementu nolietojuma un to esības ēkā nosaka šādā secībā:
302.1. nosaka ēkas konstruktīvā elementa koriģēto īpatsvaru (procentos), izmantojot šādu formulu:
Vkor = KEV x Kes, kur
Vkor – ēkas konstruktīvā elementa koriģētais īpatsvars (procentos);
KEV – ēkas konstruktīvā elementa īpatsvars (procentos);
Kes – ēkas konstruktīvā elementa esības koeficients ar precizitāti līdz 0,1 (koeficients robežās no nulles līdz vienam atkarībā no tā, vai konkrētais konstruktīvais elements ir pilnā apjomā, daļēji vai tā nav vispār);
302.2. nosaka ēkas konstruktīvā elementa fiziskā stāvokļa daļu (procentos) no ēkas kopējā fiziskā stāvokļa, izmantojot šādu formulu:
KEND = (Vkor x KEN)/100, kur
KEND – ēkas konstruktīvā elementa fiziskā stāvokļa daļa (procentos) no ēkas kopējā fiziskā stāvokļa;
Vkor – ēkas konstruktīvā elementa koriģētais īpatsvars (procentos);
KEN – ēkas konstruktīvā elementa nolietojums (procentos);
302.3. nosaka ēkas kopējo fizisko stāvokli, izmantojot šādu formulu:
ĒN = ΣKEND, kur
ĒN – ēkas kopējais fiziskais stāvoklis (procentos);
ΣKEND – ēkas konstruktīvā elementa fiziskā stāvokļa daļa (procentos) no ēkas fiziskā stāvokļa.
303. Ja esošajām konstrukcijām pēc būvniecības pārtraukšanas nav veikti nepieciešamie būvkonstrukciju un būvelementu iekonservēšanas darbi, noteikto ēkas kopējo fiziskā stāvokļa procentu palielina par 10 procentiem, tas ir, minētajā kārtībā noteiktajam fiziskā stāvokļa procentam pieskaita 10 procentus.
304. Ēkai ar neizbūvētiem vai sagruvušiem konstruktīvajiem elementiem apbūves skicē ieraksta būvtilpumu un kopējo platību no būvprojekta vai anulētās ēkas kadastrālās uzmērīšanas lietas, ko papildus ieraksta kadastra informācijas sistēmā.
305. Būves fiziskā stāvokļa datu aktualizāciju var ierosināt kā atsevišķu kadastrālās uzmērīšanas darbību, izgatavojot būves kadastrālās uzmērīšanas lietu un uzrādot būves atkārtotas apsekošanas datumu.
5.6. Ēkas galvenā lietošanas veida norādīšana
306. Veicot jaunbūves, renovētas vai rekonstruētas ēkas kadastrālo uzmērīšanu, ēkas galveno lietošanas veidu atbilstoši normatīvajos aktos apstiprinātajai klasifikācijai aprēķina Valsts zemes dienests saskaņā ar ierosinātāja iesniegto projekta dokumentāciju vai aktu par būves pieņemšanu ekspluatācijā. Būves, kas tiek projektētas vai izmantotas vairākiem mērķiem, iekļauj vienā noteiktā klasifikācijas pozīcijā atbilstoši normatīvajos aktos noteiktajai klasificēšanas kārtībai pēc to galvenā lietošanas veida, aprēķinot kopējās izmantojamās platības procentuālo sadalījumu telpu grupām pa atsevišķiem lietošanas veidiem saskaņā ar šo noteikumu 26.pielikumu.
307. Vienkāršotās rekonstrukcijas gadījumā ēkas galveno lietošanas veidu aprēķina atbilstoši vienkāršotās rekonstrukcijas apliecinājuma kartei.
308. Veicot ēku kadastrālo uzmērīšanu, ēkas tipus piemēro atbilstoši normatīvajos aktos noteiktajā kārtībā apstiprinātajai klasifikācijai.
5.7. Telpu grupas kadastrālā uzmērīšana
309. Telpu grupas kadastrālo uzmērīšanu veic būvniecību reglamentējošajos normatīvajos aktos noteiktajā kārtībā uzbūvētai, pārplānotai vai pārbūvētai telpu grupai, ja ir izbūvēti būves konstruktīvie elementi – ārsienas, sienas, pārsegumi –, kas atdala telpu grupu no citām būvē esošām telpu grupām, vai ja telpu grupa ir pārbūvēta tā, ka izveidojas vairākas atsevišķas telpu grupas un neveidojas koplietošanas telpas:
309.1. pēc būves kadastrālās uzmērīšanas vai vienlaikus ar būves kadastrālo uzmērīšanu;
309.2. ja ēkā pēc konstruktīvām izmaiņām ir likvidētas telpu grupas vai izveidotas jaunas telpu grupas;
309.3. aktualizējot datus par telpu grupu dzīvokļa īpašumā.
310. Telpu grupas kadastrālajā uzmērīšanā:
310.1. apseko telpu grupas;
310.2. sastāda telpu izvietojuma skices;
310.3. uzmēra telpu grupas;
310.4. sastāda telpu grupas plānu;
310.5. izgatavo telpu grupas kadastrālās uzmērīšanas lietu.
311. Ja ēka nav sadalīta dzīvokļa īpašumos, vienlaikus ar telpu grupas kadastrālo uzmērīšanu veic pārējo šajā ēkā esošo telpu grupu un koplietošanas telpu apsekošanu. Ja apsekošanā konstatētas konstruktīvas izmaiņas, veic pārējo šajā ēkā esošo telpu grupu un koplietošanas telpu kadastrālo uzmērīšanu.
312. Veicot telpu grupas kadastrālo uzmērīšanu, telpu grupas lietošanas veidu saskaņā ar šo noteikumu 26.pielikumu norāda atbilstoši ierosinātāja uzrādītajai projekta dokumentācijai vai aktam par telpu grupas nodošanu ekspluatācijā.
313. Vienkāršotās rekonstrukcijas gadījumā, ja apliecinājuma kartē ir norādīts, ka telpu grupai ir mainīts lietošanas veids, telpu grupas lietošanas veidu norāda vai maina atbilstoši vienkāršotās rekonstrukcijas apliecinājuma kartei.
314. Telpu grupas kadastrālajā uzmērīšanā uzmēra:
314.1. telpu sienu iekšējo malu garumus starp būvniecības procesā pabeigtu sienu virsmām pa telpas perimetru un izvirzījumu un (vai) nišu izmērus pa izvirzījumu vai nišu perimetru horizontālā virzienā 1,6 m augstumā no grīdas līmeņa;
314.2. attālumus, pēc kuriem attēlo logu un durvju ailu atrašanās vietu telpu sienās;
314.3. telpu augstumus ēkām ar pārsegumiem – no grīdas līdz griestiem;
314.4. atšķirīgos telpu augstumus (sākot no 15 cm) un attālumus, pēc kuriem var attēlot šo telpas augstuma izmaiņu vietu;
314.5. sienu un starpsienu biezumus logu un durvju ailu atrašanās vietās;
314.6. stacionāro krāšņu, kamīnu, sildmūru un pavardu kontūras grīdas līmenī;
314.7. kolonnu malu garumus horizontālā virzienā un perpendikulāros attālumus no kolonnas malas līdz tuvākajai sienai, kā arī attālumus starp vienā rindā esošām kolonnām 1,6 m augstumā no grīdas līmeņa.
315. Mērījumu rezultātus attēlo un ieraksta telpu grupas skicē, kuras datus izmanto ēkas stāva plānu aktualizēšanai.
316. Telpu grupas plānu sastāda atbilstoši šo noteikumu 28.pielikumam, izmantojot digitālā veidā sastādītā aktualizētā ēkas stāva plāna informāciju.
317. Telpu grupas plānu izdrukā uz lapas, kuras formāts nav mazāks kā A4. Stāva plānu izdrukā mērogā 1 : 50, 1 : 100 vai 1 : 200, nodrošinot pietiekamu grafiskās informācijas izšķiršanas spēju.
318. Informācija telpu grupas plānā atbilst informācijai par attiecīgo telpu grupu ēkas stāva plānā.
5.8. Būvju lietas sagatavošana
319. Katram nekustamajam īpašumam, kura sastāvā ir būves, izveido būvju lietu, kurā ietilpst:
319.1. ēkas kadastrālās uzmērīšanas lietas;
319.2. inženierbūves kadastrālās uzmērīšanas lietas;
319.3. telpu grupas kadastrālās uzmērīšanas lietas;
319.4. kadastrālajā uzmērīšanā izgatavoto un izmantoto dokumentu lietas;
319.5. anulēto dokumentu lietas;
319.6. apliecinājuma lapa atbilstoši šo noteikumu 403.punktā noteiktajām prasībām.
320. No kadastra informācijas sistēmas uz A4 formāta lapām divos eksemplāros (pēc ierosinātāja pieprasījuma var sagatavot vairākus eksemplārus) sagatavo:
320.1. ēkas kadastrālās uzmērīšanas lietu (lietas saturs norādīts šo noteikumu 29.pielikumā);
320.2. inženierbūves kadastrālās uzmērīšanas lietu (lietas saturs norādīts šo noteikumu 30.pielikumā);
320.3. telpu grupas kadastrālās uzmērīšanas lietu (lietas saturs norādīts šo noteikumu 31.pielikumā).
321. Ēkas kadastrālās uzmērīšanas lietas, inženierbūves kadastrālās uzmērīšanas lietas vai telpu grupas kadastrālās uzmērīšanas lietas vienu eksemplāru izsniedz ierosinātājam, otru ievieto būvju lietā.
322. Ierosinātājam izsniedzamo šo noteikumu 321.punktā minēto lietu eksemplāru caurauklo un uz pēdējās lappuses diegu galus nostiprina ar papīra uzlīmi, uz kuras norāda lapu skaitu dokumentā, ēkas kadastrālās uzmērīšanas lietas izgatavotāja amatu, vārdu, uzvārdu, parakstu un lietas iekārtošanas datumu.
5.9. Telpu grupas kadastrālās uzmērīšanas datu aktualizācija
323. Pēc telpu grupas kadastrālās uzmērīšanas aktualizē:
323.1. ēku raksturojošos datus;
323.2. telpu grupu raksturojošos datus.
324. Telpu grupas kadastrālās uzmērīšanas datus aktualizē, ja:
324.1. veicot konstruktīvās izmaiņas, ir:
324.1.1. mainījies telpu vai telpu grupu norobežojošo konstrukciju savstarpējais izvietojums;
324.1.2. iebūvēti elementi (piemēram, stacionārās krāsnis, kamīni, pavardi, sildmūri, kolonnas), kas ietekmē telpu grupas kopējo platību;
324.1.3. apvienotas vai sadalītas telpas vai telpu grupas;
324.2. mainīts telpu grupas lietošanas veids;
324.3. nepieciešams konstatēt patvaļīgas būvniecības pazīmes vai to neesību;
324.4. ierosinātājs vēlas pārliecināties par telpu grupas kadastrālās uzmērīšanas datu atbilstību faktiskajam stāvoklim.
325. Ja telpu grupas kadastrālās uzmērīšanas dati tiek aktualizēti:
325.1. izmantojot telpu izvietojuma skices datus, aktualizē telpu grupas datus, telpu grupas plānu un attiecīgos ēkas kadastrālās uzmērīšanas datus;
325.2. papildina telpu grupas kadastrālās uzmērīšanas lietu ar jauniem dokumentiem, ar spiedoga atzīmi anulējot iepriekš sastādītos telpu grupas attiecīgos kadastrālās uzmērīšanas dokumentus.
5.10. Ēkas datu aktualizācija
326. Ēkas kadastrālās uzmērīšanas datus aktualizē, ja:
326.1. konstruktīvo izmaiņu rezultātā ir:
326.1.1. mainījies ēkas apbūves laukums vai būvtilpums;
326.1.2. mainījies telpu vai telpu grupu norobežojošo konstrukciju savstarpējais izvietojums;
326.1.3. iebūvēti elementi (piemēram, stacionārās krāsnis, kamīni, pavardi, sildmūri, kolonnas), kas ietekmē ēkas kopējo platību;
326.1.4. apvienotas vai sadalītas telpas vai telpu grupas;
326.2. mainīts ēkas galvenais lietošanas veids atbilstoši projekta dokumentācijai;
326.3. rekonstrukcijā (vienkāršotā rekonstrukcija) vai renovācijā mainīto telpu grupu lietošanas veidu (26.pielikums) īpatsvars ēkā ietekmē iepriekš noteikto ēkas galveno lietošanas veidu;
326.4. mainījušies ēkas pamatu, ārsienu, pārseguma un jumta seguma materiāli;
326.5. nepieciešams konstatēt:
326.5.1. patvaļīgas būvniecības pazīmes vai to neesību;
326.5.2. ēkas neesības faktu;
326.6. ierosinātājs vēlas pārliecināties par ēkas kadastrālās uzmērīšanas datu atbilstību faktiskajam stāvoklim.
327. Ja ēkas kadastrālās uzmērīšanas lieta sastādīta digitālā veidā un ēkas kadastrālās uzmērīšanas dati tiek aktualizēti:
327.1. izmantojot telpu izvietojuma skices datus, aktualizē ēkas kadastrālās uzmērīšanas datus;
327.2. papildina ēkas kadastrālās uzmērīšanas lietu ar jauniem dokumentiem, ar spiedoga atzīmi anulējot iepriekš sastādītos attiecīgos ēkas kadastrālās uzmērīšanas dokumentus.
328. Ja ēkas kadastrālās uzmērīšanas dokumenti sastādīti manuālā veidā un:
328.1. tiek veikta kadastrālā uzmērīšana visai ēkai, izmantojot telpu izvietojuma skices datus, aktualizē ēkas kadastrālās uzmērīšanas datus, grafiskos materiālus sastādot digitālā veidā;
328.2. tiek veikta kadastrālā uzmērīšana atsevišķai telpu grupai:
328.2.1. digitālā veidā sastāda telpu grupas kadastrālās uzmērīšanas lietu;
328.2.2. papildina par ēku sastādīto būvju lietu ar aktualizētu telpu grupas kadastrālās uzmērīšanas lietu.
329. Ja rekonstrukcijā (vienkāršotā rekonstrukcija) vai renovācijā mainīto telpu grupu lietošanas veidu platību īpatsvars ēkā ietekmē iepriekš noteikto ēkas galveno lietošanas veidu, Valsts zemes dienests kadastra informācijas sistēmā maina ēkas galveno lietošanas veidu un ēkas tipu atbilstoši normatīvajos aktos apstiprinātajai klasifikācijai.
330. Aktualizējot ēkas kadastrālās uzmērīšanas datus, uzmērītājs papildina būvju lietu, lietas beigās iešujot:
330.1. atsevišķu lapu, kurā norāda:
330.1.1. būvju lietas aktualizēšanas datumu;
330.1.2. aktualizāciju veikušā uzmērītāja vārdu, uzvārdu, parakstu, uzmērīšanas datumu;
330.2. ierosinātāja iesniegumu par būves vai telpu grupas kadastrālās uzmērīšanas veikšanu;
330.3. sagatavošanas darbu laikā saņemtos dokumentus;
330.4. sagatavotos aktuālos kadastrālās uzmērīšanas dokumentus.
331. Neaktuālos kadastrālās uzmērīšanas dokumentus anulē ar spiedoga atzīmi atbilstoši šo noteikumu 20.pielikumam.
5.11. Inženierbūves kadastrālā uzmērīšana
332. Inženierbūves ir ar zemi saistītas būves, kas kā virszemes, pazemes vai zemūdens inženierbūves ir būvētas no būvmateriāliem, sastāv no inženierbūvju elementiem un netiek klasificētas kā ēkas.
333. Būvju kadastrālās uzmērīšanas vajadzībām inženierbūves iedala:
333.1. lineāras formas (horizontāli novietotas) inženierbūvēs:
333.1.1. ielas un autoceļi;
333.1.2. dzelzceļi;
333.1.3. pilsētas sliežu ceļi (turpmāk – tramvaju ceļi);
333.1.4. lidlauku skrejceļi;
333.1.5. tilti un estakādes;
333.1.6. tuneļi;
333.1.7. naftas un gāzes cauruļvadi;
333.1.8. ūdens cauruļvadi;
333.1.9. sakaru līnijas;
333.1.10. elektroenerģijas pārvades līnijas;
333.1.11. gāzapgādes cauruļvadi;
333.1.12. ūdensapgādes cauruļvadi;
333.1.13. notekūdeņu cauruļvadi;
333.1.14. elektrokabeļi un sakaru kabeļi;
333.2. punktveida inženierbūvēs (piemēram, torņi, masti, ostu būves, dambji, elektrostaciju būves, sporta un atpūtas būves, rezervuāri, bunkuri, silosi).
334. Inženierbūvju elementi ir atšķirīgas konstrukcijas vai materiāla inženierbūves nedalāmā daļa, kas nodrošina inženierbūves funkciju veikšanu.
335. Inženierbūves kadastrālajā uzmērīšanā izmanto:
335.1. ierosinātāja iesniegtos dokumentus;
335.2. datus no kadastra informācijas sistēmas;
335.3. Valsts zemes dienesta arhīva dokumentus.
336. Inženierbūves kadastrālajā uzmērīšanā iegūtos būvi raksturojošos datus (izņemot fotografēšanā iegūtos datus) ieraksta inženierbūves novietojuma skicē.
337. Inženierbūves nosaukumu norāda uzmērītājs, pamatojoties uz īpašuma tiesību apliecinošiem dokumentiem un projekta dokumentāciju.
338. Inženierbūves kadastrālā uzmērīšana ietver:
338.1. apsekošanu;
338.2. uzmērīšanu;
338.3. inženierbūves novietojuma skices sastādīšanu;
338.4. informācijas iegūšanu par būvi;
338.5. fotografēšanu;
338.6. inženierbūves plāna sastādīšanu;
338.7. inženierbūves kadastrālās uzmērīšanas lietas izgatavošanu;
338.8. būvju lietas izgatavošanu.
339. Pazemes un zemūdens inženierbūvei būvniecībā izmantotos konstruktīvo elementu materiālus nosaka pēc šādiem ierosinātāja iesniegtiem dokumentiem:
339.1. būvprojekta;
339.2. akta par būves pieņemšanu ekspluatācijā;
339.3. būvprojektā paredzēto inženierkomunikāciju izpilduzmērījumiem;
339.4. nozīmīgo konstrukciju un segto darbu pieņemšanas aktiem;
339.5. inženierbūves reģistrācijas apliecības;
339.6. inženierbūves pases.
340. Inženierbūvei, kurai ir pazemes vai zemūdens daļa un kurai bez konstrukcijas atsegšanas to nevar uzmērīt, uzmēra tikai virszemes daļas.
341. Apsekojot inženierbūvi, kurai ir ēkas pazīmes, piemēro ēku kadastrālās uzmērīšanas prasības.
342. Inženierbūvju kadastrālajā uzmērīšanā nodrošina šajos noteikumos noteiktās precizitātes prasībām atbilstošus mērījumus, kas nepieciešami inženierbūves un tās elementus raksturojošo apjoma rādītāju iegūšanai:
342.1. laukums;
342.2. būvtilpums;
342.3. augstums;
342.4. garums un platums;
342.5. diametrs;
342.6. šķērsgriezuma laukums;
342.7. skaits;
342.8. ietilpība.
343. Inženierbūves un inženierbūves elementu augstumu, diametru, šķērsgriezuma vai garengriezuma kontūru uzmēra, ja tas nepieciešams inženierbūves vai tās elementa tipa noteikšanai un apjoma aprēķinam.
5.12. Inženierbūves ārējās kontūras, sastāva noteikšana un uzmērīšana apvidū
344. Apsekojot inženierbūvi, precizē informāciju par:
344.1. inženierbūves un tās elementu ārējo kontūru un sastāvu;
344.2. inženierbūvi sadalošo inženierbūvju un (vai) ēku atrašanās vietu.
345. Virszemes inženierbūvei uzmēra un nosaka tās ārējās kontūras vertikālās projekcijas atrašanās vietu horizontālā plaknē.
346. Virszemes, pazemes un zemūdens inženierbūvei vai inženierbūves virszemes, pazemes vai zemūdens daļai ārējās kontūras atrašanās vietu nosaka pēc ierosinātāja iesniegtā noteiktā kārtībā akceptētā būvprojektā esošās informācijas.
347. Ja ierosinātājs nevar iesniegt noteiktā kārtībā akceptētu būvprojektu, virszemes, pazemes un zemūdens inženierbūves vai inženierbūves virszemes, pazemes vai zemūdens daļas ārējās kontūras vertikālās projekcijas atrašanās vietu horizontālā plaknē nosaka atbilstoši ierosinātāja iesniegtajos un attiecīgās būvvaldes akceptētajos izpilduzmērījumos norādītajai būves ārējai kontūrai.
348. Ja kadastrāli uzmērāmās inženierbūves kontūras robežās atrodas cita inženierbūve, par kuru nav iesniegts ierosinātāja pieprasījums tās kadastrālajai uzmērīšanai, kadastrālo uzmērīšanu šai inženierbūvei neveic. Ēkas iekšējās kontūras robežās un uz ēkas jumtiem esošām iekārtām kadastrālo uzmērīšanu neveic. Ēkas un inženierbūves atdalošā robeža ir ēkas ārējās sienas ārējā mala.
349. Ja lineāras formas inženierbūve izvietota vairākās administratīvajās teritorijās, to pa administratīvās teritorijas robežu sadala atsevišķi uzmērāmās inženierbūvēs un kadastrālo uzmērīšanu katrai inženierbūvei veic atsevišķi.
350. Autoceļus, dzelzceļus, ielas, tramvaju ceļus, ja to turpinājums ir tilts, viadukts vai ceļa pārvads, pa tilta, viadukta vai ceļa pārvada galējo krasta balstu ārējo malu sadala atsevišķi uzmērāmās inženierbūvēs un kadastrālo uzmērīšanu katrai inženierbūvei veic atsevišķi.
351. Ja lineāras formas inženierbūves savstarpēji krustojas vienā vai vairākos līmeņos, katru inženierbūvi uzmēra kā vienlaidus būvi.
352. Kuģojamo kanālu ārējo kontūru nosaka, uzmērot krasta nostiprinājumu virszemes daļas krasta līnijas un piestātņu krasta līnijas ārējās kontūras.
353. Autoceļa, dzelzceļa un ielas ārējo kontūru nosaka, uzmērot ceļa, dzelzceļa vai ielas klātnes ārējās kontūras.
354. Cauruļvadiem, elektroenerģijas pārvades līnijām un sakaru līnijām ārējo kontūru nenosaka, bet uzmēra attiecīgās inženierbūves viduspunktu atrašanās vietu.
355. Punktveida inženierbūvēm ārējo kontūru nosaka, uzmērot attiecīgās inženierbūves ārējās kontūras, ieskaitot torņu un mastu atsaišu atrašanās vietu.
356. Tiltam, viaduktam vai ceļa pārvadam ārējo kontūru nosaka, uzmērot laidumu ārējo malu vertikālās projekcijas horizontālā plaknē atrašanās vietu, ko atdala no autoceļa, dzelzceļa vai ielas galējo balstu ārējās malas.
357. Tramvaja ceļam ārējo kontūru nosaka, uzmērot tramvaja ceļa klātnes seguma atrašanās vietu. Ja tramvaja ceļa klātne ir no tāda paša materiāla kā ceļa vai ielas brauktuve, tramvaja ceļa klātnes ārējo kontūru pieņem 0,5 m platumā no sliežu ārējās malas.
358. Inženierbūves sastāvu nosaka, apkopojot ierosinātāja iesniegtajos dokumentos un uzmērīšanā iegūto informāciju par inženierbūves konstruktīvajiem elementiem – pamatiem, sienām, laidumiem, balstiem, stumbriem, sijām, pārsegumiem, jumtiem, virsbūvēm, segumiem vai pārklājumu – un tos raksturojošiem rādītājiem.
359. Lineāras formas inženierbūvēm:
359.1. uzmēra:
359.1.1. inženierbūves garumu;
359.1.2. attālumus, pēc kuriem var attēlot inženierbūves elementu savstarpējo izvietojumu;
359.1.3. attālumus, pēc kuriem var noteikt inženierbūves elementu materiāla maiņas vietas;
359.1.4. platumu inženierbūvei, kurai nosaka ārējo kontūru, – sākumā, beigās un vietās, kur platums mainās vairāk nekā par 10 procentiem, salīdzinot ar iepriekšējo mērījumu;
359.2. nosaka rādītājus, pēc kuriem piemēro inženierbūves tipus.
360. Punktveida inženierbūvēm uzmēra inženierbūves ārējo kontūru pa inženierbūves perimetru un nosaka inženierbūves augstumu, diametru un šķērsgriezuma ārējās vai iekšējās kontūras izmērus, ja tos izmanto inženierbūves tipa piemērošanai atbilstoši normatīvajos aktos noteiktajā kārtībā apstiprinātajai inženierbūvju tipu klasifikācijai.
361. Inženierbūves elementu uzmērīšanu veic, piemērojot inženierbūves kadastrālās uzmērīšanas kārtību.
362. Inženierbūves elementus konkrētajā inženierbūvē numurē ar cipariem intervālā no 0001 līdz 9999. Aktualizējot inženierbūves datus, saglabā iepriekš piešķirtos inženierbūves elementu numurus.
363. Informāciju par inženierbūves elementiem ieraksta un attēlo inženierbūves novietojuma skicē un inženierbūves plānā.
364. Veicot inženierbūves kadastrālo uzmērīšanu, inženierbūvju tipus piemēro atbilstoši normatīvajos aktos noteiktajā kārtībā apstiprinātajai klasifikācijai.
5.13. Inženierbūves kadastrālās uzmērīšanas grafisko materiālu sastādīšana
365. Inženierbūves kadastrālajā uzmērīšanā sastāda:
365.1. inženierbūves novietojuma skici;
365.2. inženierbūves plānu.
366. Inženierbūves novietojuma skicē attēlo kadastrāli uzmērāmās inženierbūves ārējo kontūru un tajā esošos inženierbūves elementus. Skici sastāda uz vienas vai vairākām A3 vai A4 formāta lapām.
367. Inženierbūves novietojuma skici sastāda uz:
367.1. topogrāfiskās kartes izdrukas kopijas, ja inženierbūve atrodas uz vairākām zemes vienībām;
367.2. kadastra kartes kopijas (kadastra kartes izdruka, kas savietota ar ortofoto karti);
367.3. zemes robežu plāna kopijas vai situācijas plāna kopijas, ja inženierbūve pilnībā atrodas zemes vienības robežās.
368. Inženierbūves novietojuma skices sastādīšanai papildus drīkst izmantot šādus materiālus:
368.1. būves projekta kopijas;
368.2. pilsētā un citā apdzīvotā vietā – topogrāfiskos plānus, inženiertīklu plānus (kopijas) M 1 : 500 – 1 : 2000;
368.3. lauku teritorijā – topogrāfiskos plānus, inženiertīklu plānus (kopijas) M 1 : 500 – 1 : 5000.
369. Inženierbūves novietojuma skicē attēlo:
369.1. inženierbūves ārējo kontūru vai inženierbūves atrašanās vietu, izmantojot apzīmējumus atbilstoši šo noteikumu 12.pielikumam;
369.2. inženierbūves elementu kontūru;
369.3. shematiski augšējā labajā stūrī – inženierbūves izvietojumu administratīvajā teritorijā vai zemes vienības robežās.
370. Ja inženierbūve atrodas uz vairākām zemes vienībām, inženierbūves novietojuma skicē papildus šo noteikumu 369.punktā minētajai informācijai, ierakstot to nosaukumus, attēlo inženierbūves tuvumā esošos:
370.1. upes un ezera krasta posmus;
370.2. dzelzceļus un autoceļus;
370.3. apdzīvoto vietu teritorijās – ielas.
371. Inženierbūves novietojuma skicē norāda:
371.1. būves kadastra apzīmējumu;
371.2. inženierbūves nosaukumu;
371.3. inženierbūves elementa numuru;
371.4. inženierbūves elementa nosaukumu;
371.5. inženierbūves un inženierbūves elementu izmērus;
371.6. inženierbūves un inženierbūves elementu materiālu;
371.7. patvaļīgas būvniecības pazīmes;
371.8. aprēķinu rezultātus;
371.9. administratīvo vienību nosaukumus.
372. Lineāras formas vai liela apjoma inženierbūvēm ar sarežģītu plānojumu (vairāki neregulāru daudzstūru vai lokveida ārējo kontūru formas inženierbūves elementi) inženierbūves novietojuma skici sastāda vairākās daļās, lai nodrošinātu pietiekamu izšķiršanas spēju, un parāda inženierbūves shematisku sadalījumu daļās.
373. Inženierbūves apsekošanā inženierbūvi fotografē tā, lai fotogrāfijā ietvertu:
373.1. punktveida inženierbūves kopskatu, ja to ir iespējams uzskatāmi vizualizēt vienā fotogrāfijā;
373.2. autoceļu, dzelzceļu, ielas un pazemes pārejas kopskatu;
373.3. autoceļu, dzelzceļu un ielu šķērsojošās estakādes kopskatu;
373.4. vietu, kurā lineārai inženierbūvei noteiktas būves piesaistes punktu koordinātas.
374. Inženierbūves plānu sastāda digitālā veidā (32.pielikums), izmantojot inženierbūves novietojuma skicē attēloto inženierbūves kadastrālajā uzmērīšanā iegūto un šo noteikumu 369. un 370.punktā, kā arī 371.1., 371.3. un 371.5.apakšpunktā noteikto informāciju. Rakstlaukumā ietver arī uzmērīšanas datumu, uzmērītāja vārdu, uzvārdu un parakstu.
375. Inženierbūves plānu sastāda mērogā 1 : 500, 1 : 1000, 1 : 2000, 1 : 5000 vai 1 : 10000 uz vienas vai vairākām A4 vai A3 formāta lapām, izvēloties atbilstošu mērogu, kas nodrošina nepieciešamo grafiskās informācijas izšķiršanas spēju.
376. Lai plānā uzskatāmi attēlotu visus nepieciešamos elementus, inženierbūves plāna mērogu var palielināt, kā arī atsevišķus plāna fragmentus attēlot palielinātā mērogā iznesumu veidā. Nosakot plāna mērogu, nedrīkst pazemināt uzmērāmo punktu noteikšanas precizitāti.
5.14. Uzmērījumu precizitāte
377. Veicot inženierbūvju kadastrālo uzmērīšanu, nodrošina mērījumu un apjomu rādītāju precizitāti līdz 0,5 procentiem.
378. Mērījumus un apjomu rādītājus pieraksta ar šādu precizitāti:
378.1. ārējās kontūras izmērus – līdz 0,1 m;
378.2. inženierbūves garumu un platumu – līdz 0,1 m;
378.3. inženierbūves augstumu – līdz 0,5 m;
378.4. inženierbūves diametru – līdz 0,05 m;
378.5. inženierbūves laukumu – līdz 1 m2;
378.6. inženierbūves ietilpību un būvtilpumu – līdz 1 m3;
378.7. inženierbūves fizisko stāvokli – līdz 5 %;
378.8. inženierbūvei ar ēku pazīmēm ievēro ēku kadastrālajā uzmērīšanā noteikto precizitāti.
5.15. Inženierbūves fiziskā stāvokļa noteikšana
379. Inženierbūves fiziskā stāvokļa procents raksturo inženierbūves vērtības samazinājumu procentos.
380. Inženierbūvēm, kurām ir ēku pazīmes (33.pielikums), fiziskā stāvokļa procentu nosaka tāpat kā ēkām.
381. Inženierbūvēm fiziskā stāvokļa procentu nosaka, pamatojoties uz inženierbūves un tās elementu vidējo normatīvo kalpošanas ilgumu gados atbilstoši Ministru kabineta apstiprinātajiem būvju tipiem, kā arī aktam par būves pieņemšanu ekspluatācijā. Vidējo normatīvo kalpošanas ilgumu nosaka, pamatojoties uz inženierbūvē izmantotajiem materiāliem un konstruktīvajiem risinājumiem.
382. Inženierbūvei, kurai piemērots viens inženierbūves tips, fizisko stāvokli nosaka, izmantojot šādu formulu:
F
I = ––– x 100, kur
N
I – inženierbūves fiziskā stāvokļa procents;
F – inženierbūves faktiskais kalpošanas ilgums gados no būves pieņemšanas ekspluatācijā līdz kadastrālās uzmērīšanas datumam;
N – inženierbūves vidējais normatīvais kalpošanas ilgums gados.
383. Inženierbūves faktisko kalpošanas ilgumu gados nosaka, no inženierbūves kadastrālās uzmērīšanas gadskaitļa atņemot gadskaitli, kad inženierbūve pieņemta ekspluatācijā.
384. Ja inženierbūves fiziskais stāvoklis aprēķināts lielāks par 90 %, pieņem, ka inženierbūves fiziskais stāvoklis ir 90 %.
385. Ja nav akta par būves pieņemšanu ekspluatācijā, par inženierbūves faktisko kalpošanas ilgumu gados pieņem inženierbūves vidējo normatīvo kalpošanas ilgumu.
386. Jaunbūvēm, rekonstruētām un renovētām inženierbūvēm par būves ekspluatācijā pieņemšanas gadu uzskata noteiktā kārtībā akceptētas būvatļaujas derīguma termiņa izbeigšanās gadu vai kadastrālās uzmērīšanas gadu, ja tas ir mazāks par būvatļaujas derīguma termiņa izbeigšanās gadu.
387. Inženierbūvei, kurai piemēroti vairāki inženierbūves elementu tipi, būves fiziskā stāvokļa procentu nosaka kā inženierbūvē ietilpstošo inženierbūves elementu nolietojumu, ņemot vērā katra inženierbūves elementa īpatsvaru inženierbūves kopējā vērtībā:
387.1. nosaka katra inženierbūves apjoma rādītāja kopējo vērtību, izmantojot šādu formulu:
Vizm = Vien.daudz x Mervizm, kur
Vizm – atsevišķa inženierbūves apjoma rādītāja kopējā vērtība;
Vien.daudz – atsevišķa inženierbūves apjoma rādītāja vienību daudzums;
Merv.izm – atsevišķam inženierbūves apjoma rādītājam noteikta inženierbūves elementa vērtība;
387.2. nosaka katra inženierbūves apjoma rādītāja īpatsvaru, izmantojot šādu formulu:
Vizm x
100
Izmipatsv = –––––––––––––, kur
ΣVizm
Izmipatsv – atsevišķa inženierbūves apjoma rādītāja īpatsvars;
Vizm – atsevišķa inženierbūves apjoma rādītāja kopējā vērtība;
ΣVizm – atsevišķo inženierbūves apjoma rādītāju kopējo vērtību summa;
387.3. nosaka katra inženierbūves apjoma rādītāja vidējo normatīvo kalpošanas ilguma kopējo laika daļu, izmantojot šādu formulu:
Izmipatsv x N1
Nlaikad = –––––––––––––, kur
100
Nlaikad – atsevišķa inženierbūves apjoma rādītāja vidējā normatīvā kalpošanas ilguma kopējā laika daļa;
Izmipatsv – atsevišķa inženierbūves apjoma rādītāja kopējā vērtība;
N1 – inženierbūves tipa vidējais normatīvais kalpošanas ilgums;
387.4. nosaka inženierbūves normatīvo kalpošanas ilgumu, izmantojot šādu formulu:
N = ΣNlaikad, kur
N – inženierbūves normatīvais kalpošanas ilgums;
ΣNlaikad – atsevišķo inženierbūves apjoma rādītāju vidējo normatīvo kalpošanas ilgumu kopējā laika daļu summa;
387.5. nosaka visas inženierbūves fizisko stāvokli, izmantojot šādu formulu:
F
I = ––––– x 100, kur
N
I – inženierbūves fiziskā stāvokļa procents;
F – inženierbūves faktiskais kalpošanas ilgums gados no būves pieņemšanas ekspluatācijā līdz kadastrālās uzmērīšanas brīdim;
N – inženierbūves normatīvais kalpošanas ilgums gados.
5.16. Būves punkta koordinātu noteikšana
388. Būvi un tajā esošās telpu grupas piesaista LKS-92 koordinātu sistēmai, nosakot būves punkta koordinātas. Būves punkts ir ēkas, inženierbūves ar ēkas pazīmēm un punktveida inženierbūves apbūves laukuma kontūras iekšpusē brīvi izvēlēts punkts, kuram nosaka koordinātas. Lineāras formas inženierbūvei koordinātas nosaka inženierbūves sākumā un beigās.
389. Būves punkta koordinātu noteikšanai šādā hierarhiskā secībā izmanto:
389.1. kadastra karti;
389.2. topogrāfisko karti;
389.3. ortofoto karti.
5.17. Dabā neesošu būvju fakta konstatēšana
390. Ja kadastra informācijas sistēmā vai zemesgrāmatā reģistrētas būves ārējā apsekošanā konstatē, ka nav saglabājies neviens būves konstruktīvais elements vai ir saglabājušās tikai atsevišķu konstruktīvo elementu daļas, pēc kurām nav iespējams noteikt būves apjoma rādītājus, kadastrālās uzmērīšanas darbu veicējs sastāda aktu par būves neesību (34.pielikums). Aktu par būves neesību paraksta kadastrālās uzmērīšanas darbu veicējs un ierosinātājs.
391. Aktu par būves neesību sastāda divos eksemplāros. Vienu ievieto būvju lietā, bet otru izsniedz ierosinātājam.
392. Ja ierosinātājs nav parakstījis aktu par būves neesību, tā abus eksemplārus ievieto būvju lietā.
5.18. Darba pārtraukšanas kārtība
393. Būves un telpu grupas kadastrālās uzmērīšanas darbus pārtrauc šādos gadījumos:
393.1. ja ierosinātājs uzmērītājam nenodrošina iekļūšanu objektā un netraucētu kadastrālās uzmērīšanas darbu veikšanu;
393.2. ja uzmērītājs apsekošanas laikā konstatē, ka:
393.2.1. nav saglabājušies konstruktīvie elementi, pēc kuriem nosaka uzmērāmā objekta apjoma rādītājus;
393.2.2. uzmērāmā objekta stāvoklis neatbilst normatīvajos aktos noteiktajām drošības tehnikas un (vai) sanitārajām normām;
393.3. ja ierosinātājs nav iesniedzis virszemes, pazemes vai zemūdens inženierbūves vai inženierbūves virszemes, pazemes vai zemūdens daļas kadastrālajai uzmērīšanai noteiktā kārtībā akceptētu būvprojektu vai izpilduzmērījumus.
394. Ja būves un telpu grupas kadastrālās uzmērīšanas darbi tiek pārtraukti, uzmērītājs sastāda darba pārtraukšanas aktu (35.pielikums), kurā norāda darbu pārtraukšanas iemeslu. Aktu paraksta uzmērītājs un ierosinātājs. Vienu akta eksemplāru izsniedz ierosinātājam, otru ievieto būves un (vai) telpu grupas kadastrālās uzmērīšanas lietā.
395. Ja ierosinātājs nenodrošina iekļūšanu objektā un netraucētu kadastrālās uzmērīšanas darbu veikšanu vai neparaksta darbu pārtraukšanas aktu, Valsts zemes dienests nosūta darbu pārtraukšanas aktu ierosinātājam ierakstītā vēstulē uz ierosinātāja iesniegumā norādīto adresi.
396. Pēc tam kad sastādīts akts par darbu pārtraukšanu, būves kadastrālo uzmērīšanu pārtrauc.
5.19. Patvaļīgas būvniecības pazīmju konstatēšana un dzēšana
397. Patvaļīgas būvniecības pazīmes konstatē:
397.1. būvei vai telpu grupai, kas uzbūvēta vai tiek būvēta, rekonstruēta vai renovēta bez akceptēta būvprojekta un būvatļaujas vai vienkāršotas rekonstrukcijas vai vienkāršotas renovācijas dokumentācijas;
397.2. ja ar atkāpēm no saskaņotā būvprojekta, vienkāršotas rekonstrukcijas vai vienkāršotas renovācijas dokumentācijas vai bez būvniecību uzraugošās institūcijas saskaņojuma (atļaujas) veiktajā pārbūvē mainīts:
397.2.1. logu vai durvju ailu izvietojums vai to izmēri;
397.2.2. ēkas apbūves laukums (vairāk par 5 %);
397.2.3. ēkas stāvu skaits;
397.2.4. telpu grupu iekšējo sienu izvietojums;
397.2.5. telpu sadalījums pa telpu grupām.
398. Lai konstatētu patvaļīgas būvniecības pazīmes, salīdzina būves (ēkas un inženierbūves) vai telpu grupas uzmērīšanā iegūtos datus ar iepriekšējā kadastrālajā uzmērīšanā (tehniskajā inventarizācijā) iegūtajiem datiem vai būvniecību pārraugošās pašvaldības institūcijas apstiprināto būvprojektu, vai normatīvajos aktos, kas regulē būvniecību, noteiktajā kartībā izsniegtu dokumentu. Ja dati nesakrīt, izdara attiecīgu atzīmi telpu izvietojuma skicē, norādot, kāda veida un kurā telpu grupā vai telpā ir konstatētas patvaļīgas būvniecības pazīmes. Ja būve ir nonākusi īpašumā, pamatojoties uz dokumentiem, kas minēti likuma “Par nekustamā īpašuma ierakstīšanu zemesgrāmatās” 28.panta 6. un 8.punktā, un būve ir uzbūvēta līdz 1993.gada 5.aprīlim, patvaļīgas būvniecības pazīmes netiek norādītas.
399. Patvaļīgas būvniecības pazīmes norāda ēkas, inženierbūves vai telpu grupas kadastrālās uzmērīšanas lietā, ar spiedoga atzīmi sarkanā krāsā (20.pielikums) norādot, kāda veida un kurā telpu grupā vai telpā ir konstatētas patvaļīgas būvniecības pazīmes.
400. Ja telpu grupas kadastrālās uzmērīšanas lietā ir norādīta patvaļīgas būvniecības pazīme, attiecīgās ēkas kadastrālās uzmērīšanas lietā norāda konkrētās telpu grupas, kurām ir konstatēta patvaļīgas būvniecības pazīme.
401. Pēc attiecīgo saskaņojumu saņemšanas no būvniecību pārraugošās pašvaldības institūcijas Valsts zemes dienesta arhīva un ierosinātāja ēkas vai telpu grupas kadastrālās uzmērīšanas lietā ar spiedoga atzīmi (20.pielikums) anulē patvaļīgas būvniecības pazīmi.
6. Nekustamā īpašuma lietas sakārtošana un glabāšana
402. Nekustamā īpašuma lietu par konkrētu nekustamo īpašumu veido nekustamā īpašuma objekta noteikšanā izveidoto lietu kopums:
402.1. zemes kadastrālās uzmērīšanas lieta;
402.2. būvju lieta;
402.3. kadastra lieta.
403. Zemes kadastrālās uzmērīšanas lietu, būvju lietu un kadastra lietu sakārto katra procesa izpildītājs atbilstoši šo noteikumu un dokumentu noformēšanu regulējošo normatīvo aktu prasībām – dokumentus iešuj vākos, lapas numurē, sastāda lietā esošo dokumentu satura rādītāju. Būvju lietā apliecinājuma lapā papildus ietver lietas sagatavotāja amatu, vārdu, uzvārdu, parakstu un lietas iekārtošanas datumu.
404. Valsts zemes dienests, saskaņojot ar Latvijas Valsts arhīvu, nosaka glabāšanas termiņus citiem kadastra dokumentiem, kas sakārtoti atbilstoši dokumentu noformēšanu un glabāšanu regulējošo normatīvo aktu prasībām.
405. Valsts zemes dienesta arhīvs lietām piešķir arhīva numurus.
406. Ja lietā esošiem dokumentiem konstatē bojājumus:
406.1. sastāda aktu par dokumentu bojājumiem. Aktā norāda bojātos dokumentus un bojājumu apmēru, aktu paraksta Valsts zemes dienesta teritoriālās struktūrvienības vadītājs un arhīva darbinieks;
406.2. izgatavo bojātā dokumenta dublikātu, uz tā izdara atzīmi par oriģināldokumenta un dublikāta izgatavošanas laiku un akta sastādīšanas datumu un numuru.
7. Noslēguma jautājumi
407. Līdz Zemes ierīcības likumā minēto Ministru kabineta noteikumu pieņemšanai, veicot zemes vienības kadastrālo uzmērīšanu, zemes vienības sadalīšanas gadījumā zemes ierīcības projektu aizvieto vietējās pašvaldības saskaņotais zemes vienības sadales projekts.
408. Nekustamā īpašuma valsts kadastra likuma pārejas noteikumu 11., 14. un 15.punktā minētās personas (ierosinātājs) nekustamā īpašuma objekta vai zemes vienības daļas noteikšanu ierosina tajā Valsts zemes dienesta teritoriālajā struktūrvienībā, kuras darbības teritorijā atrodas nekustamais īpašums.
409. Nekustamā īpašuma valsts kadastra likuma pārejas noteikumu 15.punktā minētais zemes īpašnieks, kura zemes īpašumtiesības ir ierakstītas zemesgrāmatā, ierosinot nekustamā īpašuma objekta noteikšanu attiecībā uz būvi ar nenoskaidrotu īpašuma piederību, kas atrodas uz viņa zemes, Valsts zemes dienesta teritoriālajā struktūrvienībā uzrāda personu apliecinošu dokumentu un iesniedz iesniegumu, kurā norāda veicamo darbību.
410. Nekustamā īpašuma valsts kadastra likuma pārejas noteikumu 15.punktā minētajam zemes īpašniekam, kura zemes īpašumtiesības nav ierakstītas zemesgrāmatā, Valsts zemes dienests atsaka veikt nekustamā īpašuma objekta noteikšanu attiecībā uz būvi ar nenoskaidrotu īpašuma piederību, kas atrodas uz viņa zemes, līdz zemes īpašumtiesību ierakstīšanai zemesgrāmatā.
411. Ja būve ir uzbūvēta līdz 1993.gada 5.aprīlim un nonākusi īpašumā, pamatojoties uz dokumentiem, kas minēti likuma “Par nekustamā īpašuma ierakstīšanu zemesgrāmatās” 28.panta 6. un 8.punktā, būves noteikšanas procesa uzsākšanai un ēkas galvenā lietošanas veida noteikšanai ierosinātājs Valsts zemes dienestā neiesniedz šo noteikumu 7.2. un 7.3.apakšpunktā minētos dokumentus, bet iesniedz kādu no piederību apliecinošiem dokumentiem:
411.1. administratīvā kārtībā pieņemtu valdības vai pašvaldības aktu par ēku (būvju) nodošanu īpašumā citam tiesību subjektam, arī par to iekļaušanu uzņēmuma (uzņēmējsabiedrības) pamatlīdzekļu sastāvā;
411.2. pamatlīdzekļu novērtēšanas aktu, kas apliecina ēku (būvju) iekļaušanu uzņēmējsabiedrības sastāvā.
412. Šo noteikumu 411.punktā minētajā gadījumā ēkas galveno lietošanas veidu un tipu Valsts zemes dienests nosaka atbilstoši piederību apliecinošajos dokumentos norādītajam nosaukumam un tehniskajiem rādītājiem.
413. Zemes kadastrālās uzmērīšanas noteikumu prasības ir saistošas personām, kuras veic zemes kadastrālās uzmērīšanas darbus.
414. Ja līdz zemes pirmreizējai ierakstīšanai zemesgrāmatā kāda no uzaicinātajām klātesošajām personām iebilst pret noteiktajām robežām un neparaksta zemes robežu noteikšanas aktu:
414.1. mērnieks sastāda iebildumu aktu (36.pielikums), izsniedz to klātesošajām personām un vienu tā eksemplāru ievieto zemes kadastrālās uzmērīšanas lietā;
414.2. mērnieks iebildumu aktu piecu darbdienu laikā iesniedz Valsts zemes dienesta teritoriālās struktūrvienības zemes robežstrīdu komisijā;
414.3. līdz iebildumu izskatīšanai un lēmuma pieņemšanai Valsts zemes dienesta teritoriālās struktūrvienības zemes robežstrīdu komisijā zemes kadastrālo uzmērīšanu neveic.
415. Ja līdz zemes pirmreizējai ierakstīšanai zemesgrāmatā zemes robežstrīdu komisijas lēmums nav pārsūdzēts Centrālajā zemes komisijā vai tiesā, zemes kadastrālās uzmērīšanas darbus turpina. Ja līdz zemes pirmreizējai ierakstīšanai zemesgrāmatā zemes robežstrīdu komisijas lēmums ir pārsūdzēts Centrālajā zemes komisijā vai tiesā, zemes kadastrālās uzmērīšanas darbus neveic līdz strīda galīgai atrisināšanai.
416. Veicot zemes kadastrālo uzmērīšanu, nosaka zemes lietošanas veidus atbilstoši šādām pazīmēm:
416.1. aramzeme – zeme, ko sistemātiski apstrādā, vai agrāk apstrādātā zeme, kura pēc savām dabiskajām īpašībām izmantojama lauksaimniecības kultūraugu sējumiem;
416.2. augļu dārzs – zeme, kura apstādīta ar augļu kokiem un ogulājiem, kā arī augļu koku un ogulāju stādu audzētavas;
416.3. pļava – zeme, kura pēc savām dabiskajām īpašībām izmantojama zāles pļaušanai;
416.4. ganības – zeme, kuru izmanto mājlopu ganīšanai un kura nav aramzeme vai pļavas;
416.5. krūmājs – ar kokaugiem, kuri parasti neveido stumbru (kārkli, krūkļi, sausserži, irbenes, segliņi, korintes, lazdas, paegļi, pīlādži, ievas), vienmērīgi aizaugusi zeme;
416.6. purvs – mitra lauksaimniecībā neizmantojama zeme ar kūdras augsnēm, kura nav meža zeme;
416.7. zeme zem ūdeņiem – zeme, kuru aizņem upes, strauti, ezeri, dīķi, ūdensnotekas un citas ūdenstilpes, kā arī piekrastes ūdeņi;
416.8. zeme zem zivju dīķiem – zeme, kuru aizņem mākslīgi ierīkotas ūdenstilpes zivju audzēšanai;
416.9. pagalms – zeme, kuru aizņem ēkas, būves un pagalmi, ēku un būvju uzturēšanai nepieciešamā zeme;
416.10. ceļš – zeme, kuru aizņem ielas, autoceļi un dzelzceļa līnijas, kā arī to nodalījuma joslas;
416.11. pārējā zeme – zeme, kuru aizņem smiltāji, lauces, gravas, kraujas, nogāzes, un zeme, kuru izmanto derīgo izrakteņu ieguvei, kā arī citām nelauksaimnieciskām vajadzībām.
417. Mežu kā zemes lietošanas veidu nosaka, izmantojot meža raksturojumu atbilstoši Meža likumam un tam pakārtotajos normatīvajos aktos noteiktajām definīcijām un lielumiem.
418. Lauksaimniecībā izmantojamā zeme ir aramzeme, augļu dārzi, pļavas un ganības.
419. Sakņu dārzi un zeme zem visu veidu siltumnīcām, izņemot oranžērijas, klasificējama kā aramzeme.
420. Šo noteikumu 416., 417., 418. un 419.punktā minētie nosacījumi ir spēkā līdz attiecīgu Ministru kabineta noteikumu pieņemšanai, kuru izdošana paredzēta Zemes ierīcības likumā.
421. Līdz zemes pirmreizējai ierakstīšanai zemesgrāmatā ierosinātājs mērniekam iesniedz dokumentu oriģinālus vai to atvasinājumus – attiecīgās institūcijas lēmumu par zemes piešķiršanu lietošanā vai par īpašuma tiesību atjaunošanu. Dokumentiem pievieno lēmuma grafisko pielikumu, kurā attēlotas zemes vienības robežas.
422. Līdz zemes pirmreizējai ierakstīšanai zemesgrāmatā zemes kadastrālās uzmērīšanas sagatavošanas darbu laikā mērnieks papildus pieprasa un saņem informāciju par uzmērāmo objektu:
422.1. no vietējās pašvaldības – lēmumu par adreses piešķiršanu, ja uzmērāmais objekts ir adresācijas objekts un ja adrese nav reģistrēta Valsts adrešu reģistrā;
422.2. no Valsts autoceļu reģistra – informāciju par autoceļu iedalījumu, nosaukumiem, tehniskajām kategorijām, zemes nodalījuma joslu un ceļa aizsargjoslu parametriem;
422.3. no publiskās dzelzceļa infrastruktūras pārvaldītāja – informāciju par sliežu ceļu (dzelzceļu) zemes nodalījuma joslām;
422.4. no Lauku atbalsta dienesta – informāciju par meliorētajām platībām un to robežām;
422.5. no ierosinātāja, komunikāciju īpašniekiem (turētājiem) vai vietējās pašvaldības, ja to rīcībā ir apakšzemes komunikāciju izpildshēmas vai izpildmērījumi, – informāciju par apakšzemes komunikācijām.
423. Lauku atbalsta dienests sniedz mērniekam šādu informāciju:
423.1. lauku apvidos – par meliorētās lauksaimniecībā izmantojamās zemes robežām, ja zemes vienībā ir lauksaimniecībā izmantojamā zeme;
423.2. pilsētās – par meliorētās lauksaimniecībā izmantojamās zemes robežām, ja lauksaimniecībā izmantojamā zeme zemes vienībā ir meliorēta.
424. Ja uzmērītajā zemes vienībā ir lauksaimniecībā izmantojamā zeme, mērnieks:
424.1. situācijas plānā attēlo meliorēto teritoriju robežas, izmantojot Lauku atbalsta dienesta informāciju;
424.2. aprēķina meliorētās lauksaimniecībā izmantojamās zemes platību, ko norāda zemes lietošanas veidu platību kopsavilkuma (eksplikācijas) atsevišķā papildu ailē.
425. Situācijas plāna kopiju mērnieks nosūta Lauku atbalsta dienestam. Lauku atbalsta dienests 10 dienu laikā rakstiski paziņo mērniekam par situācijas plāna saskaņošanu vai par konkrētām iebildēm. Ja ir iebildumi par neprecīzu meliorēto teritoriju robežu attēlošanu situācijas plānā, mērnieks novērš norādītos trūkumus un nosūta situācijas plānu Lauku atbalsta dienestam atkārtotai saskaņošanai.
426. Šo noteikumu 423., 424. un 425.punktā minētie nosacījumi ir spēkā līdz 2007.gada 31.decembrim.
427. Valsts zemes dienests mērniekam pēc pieprasījuma sniedz informāciju par valsts ģeodēziskajiem vai uzmērīšanas tīkla punktiem. Šis nosacījums ir spēkā līdz vienotās ģeogrāfisko pamatdatu informācijas sistēmas izveidošanai, bet ne ilgāk kā līdz 2010.gada 31.decembrim.
428. Ēku kadastrālās uzmērīšanas lieta, inženierbūves kadastrālās uzmērīšanas lieta, telpu grupu kadastrālās uzmērīšanas lieta šo noteikumu izpratnē ir arī būvju un (vai) telpu grupu tehniskās inventarizācijas lieta.
429. Ja līdz 2005.gada 14.septembrim ir veikta būves vai tās daļas funkcijas (lietošanas veida) maiņa bez pārbūves, ierosinātājs līdz 2008.gada 31.decembrim par to informē būvniecību pārraugošo vietējās pašvaldības institūciju. Ar 2009.gadu būvniecību pārraugošā vietējās pašvaldības institūcija reizi gadā, bet ne vēlāk kā līdz 1.martam nosūta apkopoto sarakstu Valsts zemes dienestam. Valsts zemes dienests mēneša laikā pēc sarakstu saņemšanas veic lietošanas veida maiņu.
430. Līdz būves klasifikācijas un telpu grupu lietošanas veidu klasifikācijas apstiprināšanai saskaņā ar Valsts statistikas likumu būves galveno lietošanas veidu nosaka un maina atbilstoši šo noteikumu 26. un 37.pielikumam.
431. Valsts zemes dienests triju mēnešu laikā pēc šo noteikumu spēkā stāšanās veic ēkas galvenā lietošanas veida maiņu visos gadījumos, kad kadastra informācijas sistēmā telpu grupu lietošanas veidu platību īpatsvars un iepriekš noteiktais ēkas galvenais lietošanas veids neatbilst šo noteikumu 37.pielikumā noteiktajam. Ēkām, kurām mainīts ēkas galvenais lietošanas veids, atbilstoši normatīvo aktu prasībām pārskata ēku tipus. Par pārskatītajiem ēku tipiem Valsts zemes dienests sastāda sarakstus un nosūta attiecīgajai pašvaldībai.
432. Ēkas kadastrālās uzmērīšanas lietas, inženierbūves kadastrālās uzmērīšanas lietas un telpu grupu kadastrālās uzmērīšanas lietas, kas izgatavotas pirms 1999.gada 15.decembra un neatbilst kadastra dokumenta nosacījumiem, ir neaktuālas. Šādos gadījumos jāveic būvju vai telpu grupu kadastrālā uzmērīšana atbilstoši šo noteikumu prasībām.
433. Kadastrālās uzmērīšanas dokumenti, kas sagatavoti pirms šo noteikumu spēkā stāšanās dienas, ir spēkā. Pēc šo noteikumu spēkā stāšanās kadastrālās uzmērīšanas dokumentus noformē atbilstoši šo noteikumu prasībām.
434. Apgrūtinājumu plāna titullapā zemes reformas laikā noteiktajiem nekustamā īpašuma objekta apgrūtinājumiem par dokumenta nosaukumu, uz kā pamata tas noteikts, drīkst norādīt “Nekustamā īpašuma objekta apgrūtinājums noteikts, pamatojoties uz zemes reformas likumiem”.
435. Noteikumi stājas spēkā ar 2007.gada 1.maiju.
Ministru prezidents A.Kalvītis
Tieslietu ministrs G.Bērziņš
Redakcijas piebilde: noteikumi stājas spēkā ar 2007.gada 1.maiju.
Tieslietu ministrs G.Bērziņš
2.pielikums
Ministru kabineta
2007.gada 20.marta noteikumiem Nr.182
Zemes kadastrālās uzmērīšanas dokumenti
1. Zemes robežu plāns.
2. Situācijas plāns.
3. Apgrūtinājumu plāns.
4. Transformētās lauksaimniecībā izmantojamās zemes izvietojuma plāns.
5. Transformējamās meža zemes izvietojuma plāns.
6. Robežu plāns būvju ierakstīšanai zemesgrāmatā.
7. Zemes vienības daļas robežu plāns.
8. Zemes robežu apsekošanas un atjaunošanas akts.
9. Pierobežnieku uzaicinājuma dokumenti.
10. Zemes robežu noteikšanas akts.
11. Robežpunktu piesaistes abriss.
12. Ierīkotā uzmērīšanas tīkla shēma.
13. Mērījumu datu pieraksti (mērīšanas žurnāli, instrumenta lauka reģistratora atmiņas izdrukas).
14. Uzmērīšanas abriss.
15. Aprēķinu pieraksti (uzmērīšanas tīkla izlīdzināšana, uzmērīšanas tīkla punktu un robežpunktu koordinātu aprēķini).
16. Aprēķinu rezultāti (uzmērīšanas tīkla punktu un robežpunktu koordinātu saraksts, koordinātu noteiktības novērtējums, kopplatības aprēķinu rezultāti, ja tā aprēķināta manuāli).
17. Zemes lietošanas veidu platību aprēķinu plāns ar numurētām zemes lietošanas veidu platībām.
18. Aprēķināto zemes lietošanas veidu platību saraksts.
19. Mērniecības darbu kvalitātes apliecinājums.
20. Zemes kadastrālās uzmērīšanas kartogrāfiskie materiāli. Sastādot zemes kadastrālās uzmērīšanas kartogrāfiskos materiālus (plānus):
20.1. kā vienpusīgu dokumentu, lapai atstāj šādas brīvās malas:
20.1.1. augšējā mala – 0,5 cm;
20.1.2. apakšējā mala – 0,5 cm;
20.1.3. kreisā mala – 2,0 cm;
20.1.4. labā mala – 0,5 cm;
20.2. kā abpusīgu dokumentu, titullapai ievēro šī pielikuma 20.1.apakšpunktā noteiktās prasības, bet dokumenta otrā pusē atstāj šādas brīvās malas:
20.2.1. augšējā mala – 0,5 cm;
20.2.2. apakšējā mala – 0,5 cm;
20.2.3. kreisā mala – 0,5 cm;
20.2.4. labā mala – 2,0 cm.
Tieslietu ministrs G.Bērziņš
3.pielikums
Ministru kabineta
2007.gada 20.marta noteikumiem Nr.182
Zemes kadastrālās uzmērīšanas noteiktības rādītāji
Tieslietu ministrs G.Bērziņš
5.pielikums
Ministru kabineta
2007.gada 20.marta noteikumiem Nr.182
Uzmērīšanas pamattīkla lieta
1. Uzmērīšanas pamattīkla lietā iekļaujami šādi dokumenti:
1.1. titullapa un lietā esošo dokumentu saraksts (satura rādītājs);
1.2. paskaidrojuma raksts ar informāciju:
1.2.1. par izmantotajiem, apsekotajiem valsts ģeodēziskā tīkla punktiem;
1.2.2. par ģeodēziskajiem instrumentiem un to precizitātes tehniskajiem rādītājiem, kas izmantoti, nosakot ierīkoto uzmērīšanas pamattīkla punktu koordinātas;
1.2.3. par iegūto mērījumu un (vai) novērojumu precizitāti, lielākajām un mazākajām kļūdām un labojumiem, to atbilstību precizitātes kritērijiem;
1.2.4. par mērījumu rezultātu izlīdzināšanā izmantoto datorprogrammu, ja tāda lietota;
1.2.5. par globālās pozicionēšanas novērojumu sesiju ilgumu un izlīdzināšanā lietoto vektoru skaitu;
1.3. izraksts no Latvijas Republikas ģeodēzisko punktu koordinātu kataloga vai noteiktā kārtībā pieņemtajiem un apstiprinātajiem ģeodēziskā tīkla izveidošanas tehniskajiem pārskatiem;
1.4. ierīkotā uzmērīšanas pamattīkla shēma papīra un digitālā veidā;
1.5. uzmērīšanas pamattīkla punktu piesaistes abrisi;
1.6. leņķu un līniju mērījumu datorizdrukas vai žurnāli;
1.7. leņķu un līniju izlīdzināšanas labojumu saraksts;
1.8. uzmērīšanas pamattīkla punktu koordinātu saraksts.
2. Ja uzmērīšanas pamattīkls uzmērīts ar globālās pozicionēšanas metodi, kopā ar zemes kadastrālās uzmērīšanas lietu datu reģistrācijai iesniedz uzmērīšanas datnes digitālā veidā kopā ar antenu augstumiem stāvpunktos, ja tie nav ievadīti novērojumu failā.
Tieslietu ministrs G.Bērziņš
7.pielikums
Ministru kabineta
2007.gada 20.marta noteikumiem Nr.182
Tieslietu ministrs G.Bērziņš
8.pielikums
Ministru kabineta
2007.gada 20.marta noteikumiem Nr.182
Zemes robežu apsekošanas un atjaunošanas akta saturs
1. Zemes robežu apsekošanas un atjaunošanas aktā ietver:
1.1. uzrakstu: “Zemes robežu apsekošanas un atjaunošanas akts”;
1.2. akta sastādīšanas datumu;
1.3. zemes vienības kadastra apzīmējumu un adresi, ja vietējā pašvaldība tādu ir piešķīrusi;
1.4. mērnieka vārdu, uzvārdu, sertifikāta numuru un derīguma termiņu;
1.5. to zemes vienību kadastra apzīmējumus, ar kurām apsekotais robežu posms ir kopīgs;
1.6. tabulu, kurā ieraksta:
1.6.1. uz robežu apsekošanu un atjaunošanu uzaicināto personu vārdus, uzvārdus;
1.6.2. atbilstošo zemes vienību kadastra apzīmējumus;
1.6.3. uzaicinājuma veidu, norādot to nosūtīšanas vai izsniegšanas datumu;
1.7. uzrakstu “Apsekošanas laikā konstatētais zemes robežu stāvoklis”;
1.8. šādus ierakstus:
1.8.1. zemes robežu plānā ierakstītie vai izmērītie malu garumi;
1.8.2. robežu apsekošanā apvidū izmērītie attālumi, ja tādi veikti;
1.9. robežu posma shēmu, kurā:
1.9.1. attēlo:
1.9.1.1. apsekoto robežu posmu;
1.9.1.2. robežojošo zemes vienību maiņas vietas (ar lielajiem alfabēta burtiem un virziena bultiņām);
1.9.2. ieraksta:
1.9.2.1. robežpunktu numurus;
1.9.2.2. robežpunktu nostiprinājuma veida apzīmējumu;
1.9.2.3. pie robežlīnijas (iekavās) apvidū izmērītos attālumus, ja tādi veikti;
1.9.3. ar krusteniskām līnijām pārsvītro robežpunktu, kurš apvidū nav konstatēts;
1.10. uzrakstu “ATZINUMS”. Atzinumā norāda robežu atbilstību Ministru kabineta 2007.gada 20.marta noteikumu Nr.182 “Noteikumi par nekustamā īpašuma objekta noteikšanu” 70.punktā noteiktajām tehniskajām prasībām, ierakstot konkrēti veicamo darbību;
1.11. mērnieka apliecinājumu, ka robežas apsekotas saskaņā ar Ministru kabineta 2007.gada 20.marta noteikumiem Nr.182 “Noteikumi par nekustamā īpašuma objekta noteikšanu”.
2. Ja veikta zemes robežu atjaunošana, zemes robežu apsekošanas un atjaunošanas aktā papildus ietver:
2.1. uzrakstu: “Robežzīmju atjaunošana”;
2.2. attālumus apvidū starp esošo un atjaunojamo robežzīmi;
2.3. atjaunoto robežzīmju aprakstā ieraksta atjaunotās robežzīmes atbilstību zemes robežu plānam, robežzīmes veidu un norāda, vai ir izveidots aprakums (kupica);
2.4. atjaunoto robežu posma shēmu, kurā:
2.4.1. attēlo:
2.4.1.1. atjaunoto robežu posmu;
2.4.1.2. robežojošo zemes vienību maiņas vietas (ar lielajiem alfabēta burtiem un virziena bultiņām);
2.4.2. ieraksta:
2.4.2.1. robežpunktu numurus;
2.4.2.2. robežu punktu nostiprinājuma veida apzīmējumu;
2.4.2.3. pie robežlīnijas (iekavās) apvidū izmērītos attālumus, ja tādi veikti;
2.5. uzaicināto personu apliecinājumu, ka viņas ir informētas par atjaunotās robežzīmes atrašanās vietu apvidū;
2.6. tabulu, kurā paredz vietu:
2.6.1. uzaicināto personu vārdam, uzvārdam un attiecīgo zemes vienību kadastra apzīmējumiem;
2.6.2. parakstiem (ja uzaicinātā persona nav ieradusies, paraksta vietā mērnieks ieraksta “NEIERADĀS”);
2.7. mērnieka apliecinājumu, ka robežas atjaunotas saskaņā ar Ministru kabineta 2007.gada 20.marta noteikumiem Nr.182 “Noteikumi par nekustamā īpašuma objekta noteikšanu”;
2.8. mērnieka parakstu un tā atšifrējumu;
2.9. ja uzaicinātā persona nepiekrīt atjaunotās robežzīmes atrašanās vietai apvidū vai neatļauj mērniekam to atjaunot:
2.9.1. zemes robežu apsekošanas un atjaunošanas aktā izdara atzīmi “ATTEICĀS PARAKSTĪT”, bet uzaicinātā persona iebildumus pamato ar Ministru kabineta 2007.gada 20.marta noteikumu Nr.182 “Noteikumi par nekustamā īpašuma objekta noteikšanu” prasībām;
2.9.2. mērnieks pārtrauc robežu uzmērīšanu un sastāda darba pārtraukšanas aktu.
3. Zemes robežu apsekošanas un (vai) atjaunošanas aktā, ja nepieciešams, izdara šādus ierakstus:
3.1. līdz _____.gada ___. ________ apņemos veikt kupicu rakšanu un robežstigu izciršanu;
3.2. apņemos nodrošināt savam īpašumam ierīkoto robežzīmju saglabāšanu un nepieļaut robežzīmju pārvietošanu vai iznīcināšanu.
Tieslietu ministrs G.Bērziņš
Zemes robežu noteikšanas akta saturs
1. Zemes robežu noteikšanas akta aprakstošajā daļā norāda:
1.1. zemes vienības kadastra apzīmējumu;
1.2. zemes vienības adresi, ja tāda piešķirta ar vietējās pašvaldības lēmumu;
1.3. tā dokumenta pilnu nosaukumu, izdevējiestādi, datumu un numuru, kas pamatojis robežu noteikšanu;
1.4. robežu aprakstu;
1.5. mērnieka, zemes īpašnieka (īpašnieku) un uzaicināto pierobežnieku vārdus un uzvārdus vai juridisko personu pilnvaroto personu vārdus un uzvārdus;
1.6. uzaicināto personu sarakstu.
2. Apvidū noteiktās robežas attēlo zemes robežu noteikšanas akta robežu shēmā, kurā norāda:
2.1. robežlīnijas un robežpunktus;
2.2. robežpunktu numurus;
2.3. robežpunktu nostiprinājuma veidu;
2.4. robežpunktus, kuros mainās robežojošās zemes;
2.5. robežojošo zemes vienību kadastra apzīmējumus.
3. Robežu aprakstā konkrēti norāda, pa kuru apvidus objekta vietu (pa viduslīniju, ārējo vai iekšējo malu) robežas ir noteiktas.
4. Robežpunktus, kuros saskaras robežojošās zemes vienības, apzīmē ar lielajiem alfabēta burtiem un virziena bultiņām.
5. Uzaicināto personu sarakstā paraksta zonā parakstās uzaicinātās klātesošās personas, apliecinot, ka apņemas veikt darbības, kas noteiktas Ministru kabineta 2007.gada 20.marta noteikumu Nr.182 “Noteikumi par nekustamā īpašuma objekta noteikšanu” 96.punktā, – nodrošināt ierīkoto robežzīmju saglabāšanu un nepieļaut robežzīmju pārvietošanu vai iznīcināšanu.
6. Atzīme par ierosinātājam izsniegto robežpunktu piesaistes abrisu izsniegšanu.
Tieslietu ministrs G.Bērziņš
Zemes robežu plāna saturs
1. Zemes robežu plāna titullapā ietver:
1.1. šādus uzrakstus:
1.1.1. Latvijas Republika;
1.1.2. Zemes robežu plāns;
1.2. zemes vienības kadastra apzīmējumu un adresi, ja vietējā pašvaldība tādu piešķīrusi;
1.3. tā dokumenta pilnu nosaukumu, datumu un numuru, kas pamato zemes vienības kadastrālo uzmērīšanu;
1.4. robežu uzmērīšanas datumu un plāna mērogu;
1.5. zemes vienības platību, izteiktu hektāros;
1.6. mērnieka vārdu, uzvārdu, sertifikāta numuru un tā derīguma termiņu, zīmoga nospiedumu (mērnieka vai uzņēmuma);
1.7. rakstlaukumu, kurā:
1.7.1. uzņēmuma vadītājs ar parakstu apliecina, ka izpildītie zemes kadastrālās uzmērīšanas darbi veikti atbilstoši normatīvo aktu prasībām;
1.7.2. mērnieks ar parakstu apliecina, ka zemes kadastrālās uzmērīšanas darbi izpildīti atbilstoši Ministru kabineta 2007.gada 20.marta noteikumiem Nr.182 “Noteikumi par nekustamā īpašuma objekta noteikšanu”;
1.7.3. ierosinātājs ar parakstu apliecina, ka ir informēts par zemes kadastrālās uzmērīšanas darbībām un rezultātiem.
2. Zemes robežu grafiskajā attēlojumā:
2.1. attēlo robežpunktus, to numurus un robežlīnijas;
2.2. ieraksta robežlīniju garumus metros (ar precizitāti līdz centimetram) bez projekcijas mēroga labojumiem;
2.3. attēlo valsts ģeodēziskos punktus, kuri atrodas zemes vienības teritorijā, pierakstot to numurus vai nosaukumus;
2.4. attēlo koordinātu tīkla krustpunktus;
2.5. attēlo ezeru un upju krasta līniju posmus, pa kuriem noteiktas dabīgās robežas;
2.6. attēlo upju, strautu un grāvju posmus, pa kuru viduslīnijām noteiktas dabīgās robežas;
2.7. attēlo visas zemes vienības teritorijā esošās būves, ja zemes vienības robežas šķērso būvi, būves ārējo kontūru zemes robežu plānā attēlo 10 milimetrus aiz zemes vienības robežām;
2.8. ieraksta zemes vienības kadastra apzīmējumu, lietojot saīsinājumu “z.v. kad. apz.”;
2.9. ieraksta būvju kadastra apzīmējumus kadastra informācijas sistēmā reģistrētām būvēm, lietojot saīsinājumu “būv. kad. apz.”;
2.10. izveido tabulu, kurā ieraksta:
2.10.1. koordinātu sistēmas nosaukumu;
2.10.2. projekcijas mēroga koeficientu;
2.10.3. robežpunktu numurus un koordinātas metros (ar precizitāti līdz centimetram), atzīmējot ar “*” robežpunktu numurus, kas apvidū nav nostiprināti;
2.11. attēlo zemes vienībai par labu nodibinātos reālservitūtus, to aizņemto teritoriju robežas. Reālservitūtu robežpunktus numurē pieaugošā secībā un pieraksta šādi “Rs-1”;
2.12. izveido tabulu, kurā ieraksta reālservitūtu robežpunktu numurus un koordinātas;
2.13. izveido reālservitūtu aizņemto teritoriju sarakstu un ieraksta to aizņemtās platības;
2.14. attēlo robežojošo zemes vienību maiņas vietas (ar lielajiem alfabēta burtiem un virziena bultiņām) un izveido robežojošo zemes vienību sarakstu, norādot to kadastra apzīmējumus;
2.15. ieraksta zemes vienības platību hektāros atbilstoši platības aprēķināšanas noteiktības prasībām;
2.16. sastāda zemes vienības izvietojuma shēmu, kurā parāda zemes vienības atrašanās vietu;
2.17. ieraksta plāna mērogu, ja nepieciešams, plāna atsevišķo daļu mērogus;
2.18. ieraksta pie zemes vienības robežām esošo ielu nosaukumus;
2.19. izveido rakstlaukumu, kurā paredz vietu:
2.19.1. mērnieka parakstam, vārdam, uzvārdam un zemes robežu plāna izgatavošanas datumam;
2.19.2. saskaņojumam – tās personas vārdam, uzvārdam un parakstam, kura veic saskaņojumu, saskaņošanas datumam, organizācijas un amata nosaukumam (saskaņojumu izdara uz viena zemes robežu plāna eksemplāra, pārējos eksemplāros mērnieks ieraksta tās personas vārdu un uzvārdu, kas veikusi saskaņošanu, saskaņošanas datumu, organizācijas un amata nosaukumu, bet paraksta vietā ieraksta vārdu “paraksts”).
Tieslietu ministrs G.Bērziņš
Situācijas plāna saturs
1. Situācijas plāna titullapā ietver:
1.1. uzrakstus:
1.1.1. Latvijas Republika;
1.1.2. Situācijas plāns;
1.2. zemes vienības vai zemes vienības daļas kadastra apzīmējumu un adresi, ja vietējā pašvaldība tādu piešķīrusi;
1.3. situācijas elementu uzmērīšanas datumu un plāna mērogu;
1.4. zemes vienības vai zemes vienības daļas platību, izteiktu hektāros;
1.5. mērnieka vārdu, uzvārdu, sertifikāta numuru un derīguma termiņu, zīmoga nospiedumu (mērnieka vai uzņēmuma);
1.6. rakstlaukumu, kurā:
1.6.1. uzņēmuma vadītājs ar parakstu apliecina, ka izpildītie zemes kadastrālās uzmērīšanas darbi veikti atbilstoši normatīvo aktu prasībām;
1.6.2. mērnieks ar parakstu apliecina, ka zemes kadastrālās uzmērīšanas darbi izpildīti atbilstoši Ministru kabineta 2007.gada 20.marta noteikumiem Nr.182 “Noteikumi par nekustamā īpašuma objekta noteikšanu”;
1.6.3. ierosinātājs ar parakstu apliecina, ka ir informēts par zemes kadastrālās uzmērīšanas darbībām un rezultātiem.
2. Situācijas grafiskajā attēlojumā:
2.1. attēlo:
2.1.1. zemes vienības robežpunktus, norādot to numurus, un robežlīnijas;
2.1.2. valsts ģeodēziskos punktus, norādot to numurus vai nosaukumus;
2.1.3. koordinātu tīkla krustpunktus;
2.1.4. uzmērītos apvidus objektus;
2.1.5. zemes lietošanas veidu robežas un to platības;
2.1.6. zemes lietošanas veidu apzīmējumus;
2.2. ieraksta:
2.2.1. zemes lietošanas veidu eksplikāciju;
2.2.2. situācijas plāna mērogu;
2.3. izveido rakstlaukumu, kurā paredz vietu mērnieka parakstam, vārdam, uzvārdam un situācijas plāna izgatavošanas datumam.
Tieslietu ministrs G.Bērziņš
Transformējamās meža zemes izvietojuma plāna saturs
1. Transformējamās meža zemes izvietojuma plānā attēlo:
1.1. zemes vienības robežas, robežpunktus, to numurus;
1.2. transformējamās meža zemes robežlīnijas un robežpunktus, kurus numurē pieaugošā secībā un pieraksta šādi “Tr-1”;
1.3. valsts ģeodēziskos punktus, norādot to numurus vai nosaukumus;
1.4. koordinātu tīkla krustpunktus;
1.5. zemes lietošanas veidu robežas un to platības;
1.6. zemes lietošanas veidu apzīmējumus.
2. Transformējamās meža zemes izvietojuma plānā ieraksta:
2.1. nosaukumu “Transformējamās meža zemes izvietojuma plāns”;
2.2. zemes vienības kadastra apzīmējumu;
2.3. Latvijas ģeodēzisko koordinātu sistēmā (LKS-92) noteiktās transformējamās meža zemes robežpunktu koordinātas (saraksta veidā) un mēroga koeficientu;
2.4. transformējamā zemes lietošanas veida meža platību, izteiktu hektāros;
2.5. zemes lietošanas veidu eksplikāciju;
2.6. transformējamās meža zemes plāna mērogu, iznesumu mērogus;
2.7. “Transformējamās zemes robežas ir apvidū noteiktas, instrumentāli uzmērītas un ierosinātājam ierādītas. Iebildumu nav”. Ierakstu ierosinātājs apliecina ar parakstu, norādot parakstīšanas datumu.
3. Transformējamās meža zemes izvietojuma plānā izveido rakstlaukumu, kurā paredz vietu:
3.1. uzņēmuma vadītāja parakstam, vārdam, uzvārdam, zīmoga nospiedumam;
3.2. mērnieka parakstam, vārdam, uzvārdam, sertifikāta numuram un tā derīguma termiņam, transformējamās meža zemes plāna izgatavošanas datumam.
Tieslietu ministrs G.Bērziņš
Transformētās lauksaimniecībā izmantojamās zemes izvietojuma plāna saturs
1. Transformētās lauksaimniecībā izmantojamās zemes izvietojuma plānā attēlo:
1.1. zemes vienības robežas, robežpunktus, to numurus;
1.2. transformētās lauksaimniecībā izmantojamās zemes robežas un to pagrieziena punktus, kurus numurē pieaugošā secībā un pieraksta šādi "Tr-1";
1.3. valsts ģeodēziskos punktus, norādot to numurus vai nosaukumus;
1.4. koordinātu tīkla krustpunktus;
1.5. transformētās lauksaimniecībā izmantojamās zemes robežās – zemes lietošanas veidu robežas un to platības;
1.6. zemes lietošanas veidu apzīmējumus.
2. Transformētās lauksaimniecībā izmantojamās zemes izvietojuma plānā pieraksta:
2.1. plāna nosaukumu "Transformētās lauksaimniecībā izmantojamās zemes izvietojuma plāns";
2.2. zemes vienības kadastra apzīmējumu;
2.3. transformētās lauksaimniecībā izmantojamās zemes platību, izteiktu hektāros;
2.4. zemes vienības zemes lietošanas veidu eksplikāciju pirms transformācijas uzsākšanas un pēc transformācijas pabeigšanas;
2.5. transformētās lauksaimniecībā izmantojamās zemes izvietojuma plāna mērogu;
2.6. lauksaimniecībā izmantojamās zemes transformācijas atļaujas izsniegšanas datumu un numuru.
3. Transformētās lauksaimniecībā izmantojamās zemes izvietojuma plānā izveido rakstlaukumu, kurā paredz vietu:
3.1. uzņēmuma vadītāja parakstam, vārdam, uzvārdam, zīmoga nospiedumam;
3.2. mērnieka parakstam, vārdam, uzvārdam, sertifikāta numuram un tā derīguma termiņam, transformētās lauksaimniecībā izmantojamās zemes izvietojuma plāna izgatavošanas datumam.
Tieslietu ministrs G.Bērziņš
Apgrūtinājumu plāna titullapas saturs
1. Apgrūtinājumu plāna titullapā ietver:
1.1. šādus uzrakstus:
1.1.1. Latvijas Republika;
1.1.2. Apgrūtinājumu plāns;
1.2. zemes vienības vai zemes vienības daļas kadastra apzīmējumu un adresi, ja vietējā pašvaldība tādu piešķīrusi;
1.3. sarakstu, kurā ierakstīts apgrūtinājuma kārtas numurs, apgrūtinājuma kods, apraksts un (vai) objekta nosaukums, aizņemtā platība, izteikta hektāros, un dokumenta nosaukums, uz kura pamata nodibināts apgrūtinājums. Ja saraksts ir par garu, lai to izvietotu uz titullapas, to sastāda uz atsevišķas lapas un caurauklo kopā ar citām plāna lapām;
1.4. apgrūtinājumu plāna sastādīšanas datumu un plāna mērogu;
1.5. zemes vienības vai zemes vienības daļas platību, izteiktu hektāros;
1.6. mērnieka vārdu, uzvārdu, sertifikāta numuru un tā derīguma termiņu, zīmoga nospiedumu (mērnieka vai uzņēmuma);
1.7. norādi uz cik caurauklotām un aizzīmogotām lapām apgrūtinājuma plāns noformēts, ja to noformē uz vairākām lapām.
2. Apgrūtinājumu plāna titullapas rakstlaukumā:
2.1. uzņēmuma vadītājs ar parakstu apliecina, ka izpildītie zemes kadastrālās uzmērīšanas darbi veikti atbilstoši normatīvo aktu prasībām;
2.2. mērnieks ar parakstu apliecina, ka zemes kadastrālās uzmērīšanas darbi izpildīti atbilstoši Ministru kabineta 2007.gada 20.marta noteikumiem Nr.182 "Noteikumi par nekustamā īpašuma objekta noteikšanu";
2.3. ierosinātājs ar parakstu apliecina, ka ir informēts par zemes kadastrālās uzmērīšanas darbībām un rezultātiem.
3. Apgrūtinājumu plāna grafiskā attēlojuma rakstlaukumā paredz vietu:
3.1. mērnieka parakstam, vārdam, uzvārdam un apgrūtinājumu plāna izgatavošanas datumam;
3.2. saskaņojumam – tās personas vārdam, uzvārdam un parakstam, kura veic saskaņojumu, saskaņošanas datumam, organizācijas un amata nosaukumam (saskaņojumu izdara uz viena apgrūtinājumu plāna eksemplāra, pārējos eksemplāros mērnieks ieraksta tās personas vārdu un uzvārdu, kas veikusi saskaņošanu, saskaņošanas datumu, organizācijas un amata nosaukumu, bet paraksta vietā ieraksta vārdu "paraksts").
Tieslietu ministrs G.Bērziņš
Zemes vienības daļas robežu plāna saturs
1. Zemes vienības daļas robežu plāna titullapā ietver:
1.1. šādus uzrakstus:
1.1.1. Latvijas Republika;
1.1.2. Zemes vienības daļas robežu plāns;
1.2. zemes vienības daļas kadastra apzīmējumu;
1.3. zemes vienības kadastra apzīmējumu un adresi, ja vietējā pašvaldība tādu piešķīrusi;
1.4. zemes vienības daļas robežu uzmērīšanas datumu un plāna mērogu;
1.5. zemes vienības daļas platību, izteiktu hektāros;
1.6. mērnieka parakstu, vārdu, uzvārdu, sertifikāta numuru un tā derīguma termiņu, zīmoga nospiedumu (mērnieka vai uzņēmuma).
2. Zemes vienības daļas robežu grafiskajā attēlojumā:
2.1. zemes vienības daļas robežpunktus numurē pieaugošā secībā un pieraksta šādi "z.v.d. 1";
2.2. zemes vienības daļas izvietojumu parāda:
2.2.1. zemes vienības robežās;
2.2.2. zemes vienības daļas izvietojuma shēmā.
Tieslietu ministrs G.Bērziņš
Robežu plāna saturs
1. Robežu plāna titullapā ietver:
1.1. šādus uzrakstus:
1.1.1. Latvijas Republika;
1.1.2. Robežu plāns būvju ierakstīšanai zemesgrāmatā;
1.2. būves kadastra apzīmējumu;
1.3. kadastra informācijas sistēmā reģistrētās zemes vienības (uz kuras atrodas būves):
1.3.1. kadastra apzīmējumu;
1.3.2. adresi, ja vietējā pašvaldība tādu piešķīrusi;
1.3.3. likumos noteiktās institūcijas lēmumu, norādot izdevējiestādi, lēmuma pieņemšanas datumu un numuru:
1.3.3.1. par zemes īpašuma tiesību atjaunošanu;
1.3.3.2. par zemes piešķiršanu īpašumā par samaksu;
1.3.4. platību, izteiktu hektāros;
1.3.5. būves un (vai) zemes vienības robežu uzmērīšanas datumu un plāna mērogu;
1.4. nosaukumu dokumentam, uz kā pamata veikta uzmērīšana;
1.5. platību atbilstoši Ministru kabineta 2007.gada 20.marta noteikumu Nr.182 "Noteikumi par nekustamā īpašuma objekta noteikšanu" 202.punktā minētā institūcijas lēmuma grafiskajā pielikumā attēlotajai teritorijai;
1.6. mērnieka parakstu, vārdu, uzvārdu, sertifikāta numuru un tā derīguma termiņu, zīmoga nospiedumu (mērnieka vai uzņēmuma);
1.7. rakstlaukumu, kurā:
1.7.1. uzņēmuma vadītājs ar parakstu apliecina, ka izpildītie zemes kadastrālās uzmērīšanas darbi veikti atbilstoši normatīvo aktu prasībām;
1.7.2. mērnieks ar parakstu apliecina, ka zemes kadastrālās uzmērīšanas darbi izpildīti atbilstoši Ministru kabineta 2007.gada 20.marta noteikumiem Nr.182 "Noteikumi par nekustamā īpašuma objekta noteikšanu";
1.7.3. būves īpašnieks ar parakstu apliecina, ka ir informēts par zemes kadastrālās uzmērīšanas darbībām un rezultātiem.
2. Zemes vienību robežu grafiskajā attēlojumā:
2.1. attēlo:
2.1.1. zemes vienību robežpunktus, to numurus un robežlīnijas;
2.1.2. attēlo koordinātu tīkla krustpunktus;
2.1.3. zemesgrāmatā ierakstāmo būvi;
2.1.4. būves izvietojuma shēmu;
2.2. ieraksta:
2.2.1. zemes vienību kadastra apzīmējumus;
2.2.2. tekstu "ierakstīta zemesgrāmatā", ja zemes vienība ir ierakstīta zemesgrāmatā;
2.2.3. tekstu "nav ierakstīta zemesgrāmatā", ja zemes vienība nav ierakstīta zemesgrāmatā;
2.2.4. būves kadastra apzīmējumu;
2.2.5. plāna mērogu, ja nepieciešams, plāna atsevišķo daļu mērogus;
2.2.6. pie zemes vienības robežām esošu ielu nosaukumus;
2.3. izveido rakstlaukumu, kurā paredz vietu mērnieka parakstam, vārdam, uzvārdam un robežu plāna izgatavošanas datumam.
Tieslietu ministrs G.Bērziņš
1. Uz zemes kadastrālās uzmērīšanas lietas vāka ir paredzēta vieta:
1.1. mērnieka vārdam, uzvārdam, sertifikāta numuram un tā derīguma termiņam, zīmoga nospiedumam;
1.2. administratīvās teritorijas nosaukumam (rajons, pilsēta, novads, pagasts, pilsētas lauku teritorija);
1.3. uzrakstam "Zemes kadastrālās uzmērīšanas lieta";
1.4. uzrakstam "zemes vienības kadastra apzīmējums";
1.5. zemes vienības kadastra apzīmējumam (ja kadastrālā uzmērīšana veikta būves īpašuma formēšanas vajadzībām, pieraksta būves kadastra apzīmējumu);
1.6. uzrakstam "glabāt pastāvīgi";
1.7. lietas noformēšanas datumam.
2. Uz zemes kadastrālās uzmērīšanas lietas aizmugurējā vāka:
2.1. norādīts lietas izgatavotāja vārds, uzvārds un amats;
2.2. vietā, kur diegu gali pielīmēti pie vāka aizmugures ar papīra strēmeli, uz kuras pierakstīts lietā iešūto lapu skaits, ir paredzēta vieta zīmoga nospiedumam un lietas izgatavotāja parakstam.
Tieslietu ministrs G.Bērziņš
21.pielikums
Ministru kabineta
2007.gada 20.marta noteikumiem Nr.182
Materiālu klasifikators
1. Akmens.
2. Ar bitumu apstrādāta grants.
3. Asfaltbetons.
4. Asfalts.
5. Azbestcementa loksnes.
6. Azbestcements.
7. Betons.
8. Cits materiāls.
9. Čuguns.
10. Dolomīts.
11. Dzelzsbetons.
12. Dzelzsbetons/betons.
13. Granīts.
14. Grants.
15. Gumijotie lokšņu materiāli/ruberoīds.
16. Kārniņi.
17. Keramika.
18. Koks.
19. Koks/mūris.
20. Ķieģeļi/paneļi.
21. Ķieģeļu mūris.
22. Laukakmeņu mūris.
23. Metāla konstrukcijas.
24. Metāla loksnes.
25. Niedres.
26. Plastmasa.
27. Polietilēns.
28. Smilts.
29. Stikla konstrukcijas.
30. Tenisits.
31. Tērauds.
32. Vieglbetons.
Tieslietu ministrs G.Bērziņš
22.pielikums
Ministru kabineta
2007.gada 20.marta noteikumiem Nr.182
Ēku konstruktīvo elementu nolietojuma pazīmes
I. Pamati
|
Nr. p.k. |
Nolietojuma procents |
Pazīmes |
|
|
Pieejami apskatei |
Nav pieejami tiešai apskatei |
||
|
Nr. p.k. |
Nolietojuma procents |
Pazīmes |
|
|
Pieejami apskatei |
Nav pieejami tiešai apskatei |
||
|
1. |
0–10 |
Deformāciju nav, mūrējums pareizs. Cokolā novirzes nav konstatējamas. Pagrabs sauss. |
Cokols bez novirzes un plaisām. Sienu mūrējums bez horizontāliem izliekumiem pārsedzēs, palodzēs, jostās un dzegās. Nosēšanās nav. |
|
2. |
11–20 |
Senas nenozīmīgas deformācijas, vietām sīki izlauzumi, kas neietekmē konstrukcijas izturību. Mūrējums pareizs. Cokolā nenozīmīgas novirzes un senas plaisas. Pagrabs sauss. |
Cokolā nenozīmīgas novirzes un senas plaisas. Sienu horizontālajām līnijām visumā pareizs veids. Zem pirmā stāva logiem sīkas plaisas. Pārsedzē un dzegā nenozīmīgas plaisas. Vietām bojāts cokola un sienu apmetums. Nosēšanās turpināšanās nav novērojama. Plaisas fasādes galējo logu pārsedzēs radušās tādēļ, ka nosēdusies blakus māja, kura uzcelta vēlākos gados. |
|
3. |
21–30 |
Nevienmērīgas nosēšanās pazīmes, nenozīmīgas plaisas. Mūrējums pietiekami pareizs. Cokolā ievērojams daudzums plaisu un noviržu, kas nav bīstamas. Pagraba grīda mitra, sienas sausas. |
Cokolā senas nenozīmīgas plaisas un novirzes. Sienās horizontālās līnijas vietām ievērojami izliekušās; vietām ievērojamas senas plaisas. Nevienmērīgas nosēšanās turpināšanās pazīmes nav novērotas. |
|
4. |
31–40 |
Ievērojami lielas, taču ēku neapdraudošas, nevienmērīgas nosēšanās plaisas. Mūrējums nepareizām kārtām. Cokolā novirzes un vertikālas plaisas. Sienas nav pasargātas no mitruma iesūkšanās. Pagraba sienas atsevišķos posmos izspiedušās, nevienmērīgi nosēdušās. |
Cokola virszemes daļā ievērojamas plaisas, novirzes, atšķēlumi, izkrituši atsevišķi akmeņi. Sienās daudz senu plaisu. Horizontālās līnijas daudzās vietās izliekušās. Nevienmērīgu nosēšanās turpināšanās pazīmju nav, nav arī sabrukšanas pazīmju. |
|
5. |
41–60 |
Mūrējums bojāts, ar ievērojamām plaisām, atsevišķu stabu novirze. Cokols ievērojami izliecies un izspiedies, caurejošas plaisas cokolā ar tendenci attīstīties visā ēkas augstumā. Pagraba grīdas un sienas izspiedušās. Nosēšanās turpināšanās pazīmes. Neatjaunošanas gadījumā celtnei draud sabrukšana. |
Cokolā ievērojamas plaisas un novirzes. Sienās daudz plaisu. Plaisas ir arī sienu salaidumu vietās. Fasādes horizontālās līnijas ievērojami izliektas. Sienas ar novirzījumiem. Deformācija nerada tiešus sabrukšanas draudus. Nosēšanās nevienmērīga. |
|
6. |
61–80 81–100 |
Mūrējums sagruvis. Remonts neracionāls. |
Sienu deformācija cokolā tik liela, ka sagaidāma mūrējuma pilnīga sairšana un sabrukšana. Sienu horizontālās līnijas izliekušās, durvju un logu ailes sašķiebušās, cokols pilnīgi sabrucis. Masveida progresējošas caurejošas plaisas visā ēkas augstumā. |
II. Mūra sienas
|
Nr. p.k. |
Nolietojuma procents |
Pazīmes |
|
|
Pieejamas apskatei |
Nav pieejamas tiešai apskatei (apmestas vai apšūtas) |
||
|
1. |
0–10 |
Sienās plaisu nav. Fasādes horizontālo līniju (cokola, joslu, logu, dzegu) izliekumu nav. Noviržu no vertikāles nav. Sienas sausas. |
Fasāžu horizontālajās līnijās (cokola, joslu, logu, dzegu) izliekumu nav. Sienu apmetums vai apšuvums pilnīgā kārtībā. Sienu mūrējums bez horizontāliem izliekumiem pārsedzēs, palodzēs, jostās un dzegās. |
|
2. |
11–20 |
Plaisas pārsedzēs un robežlīnijā, kas atdala sienas ar dažādām slodzēm (dažāds stāvu skaits). Nenozīmīgs fasādes horizontālo līniju izliekums. Noviržu no vertikāles nav. Sienas sausas. |
Fasāžu horizontālajās līnijās izliekumu nav. Apšuvums vietām saplaisājis. Apmetumā vai apšuvumā nenozīmīgas plaisas. |
|
3. |
21–30 |
Neievērojamas plaisas pārsedzēs un atšķirīgu stāvu skaita robežlīnijās. Jāizlabo ne vairāk kā 5 % no pārsedzēm. Vietām nenozīmīgi mūrējuma bojājumi, galvenokārt pie ūdens notekcaurulēm. Nenozīmīgs horizontālo līniju izliekums agrāk notikušas nosēšanās dēļ. Nevienmērīgas nosēšanās turpināšanās pazīmes nav novērojamas. Novirzes no vertikāles nenozīmīgas (ne vairāk par 1/10 sienas biezuma. Materiālu kvalitāte pilnīgi apmierinoša. Vietām nenozīmīgs sienu mitrums. |
Apšuvums vietām bojāts un atdalījies. Apmetumā ir plaisas un sienu apakšējā daļā (cokolā) ievērojami bojājumi. Sienās horizontālās līnijas ievērojami izliekušās; vietām ievērojamas plaisas. |
|
4. |
31–40 |
Plaisas pārsedzēs un daļēji stabos. Jāizlabo ap 10 % no pārsedzēm. Dažādās vietās nenozīmīgs mūrējuma sagruvums. Nevienmērīgas nosēšanās dēļ daudzās vietās redzams horizontālo līniju izliekums. Nosēšanās turpināšanās nav novērojama. Novirze no vertikāles līdz 1/6 no sienas biezuma. Daudzās vietās vērojams sienu mitrums. |
Cokolā ievērojamas plaisas. Sienās daudz plaisu. Horizontālās līnijas daudzās vietās izliekušās. Apšuvumā vai apmetumā novērojama neliela izspiešanās. Sienas nav pasargātas no mitruma iesūkšanās. |
|
5. |
41–60 |
Ievērojamas plaisas, kuras jāizlabo, citādi ēkas saglabāšana nav iespējama. Nepieciešami steidzami labojumi. Nenozīmīgs fasādes horizontālo līniju izliekums, kas norāda uz nosēšanās turpināšanos. Novirze no vertikāles līdz 1/6 no sienas biezuma. Sienas mitras. |
Cokolā ievērojamas plaisas. Sienās daudz plaisu, plaisas ir arī sienu salaidumu vietās. Fasādes horizontālās līnijas ievērojami izliektas. Apmetums vietām atlobījies. Deformācija nerada tiešus sabrukšanas draudus. Nosēšanās nevienmērīga. |
|
6. |
61–80 |
Jāpārmūrē līdz 25 % no sienas laukuma. |
Sienu deformācija cokolā ir tik liela, ka sagaidāma mūrējuma pilnīga sairšana un sabrukšana. Apmetums atlobījies. |
|
7. |
81–100 |
Ievērojamas deformācijas, kas var radīt sabrukšanu. |
Mūrējums sagruvis. Remonts neracionāls. Nepieciešama sienas pārmūrēšana. |
III. Koka sienas
|
Nr. p.k. |
Nolietojuma procents |
Pazīmes |
|
|
Sienas pieejamas apskatei |
Sienas nav pieejamas apskatei (apmestas vai apšūtas) |
||
|
Nr. p.k. |
Nolietojuma procents |
Pazīmes |
|
|
Sienas pieejamas apskatei |
Sienas nav pieejamas apskatei (apmestas vai apšūtas) |
||
|
1. |
0–10 |
Koka materiāls pilnīgi saglabājies. Satrunējumu nav. Deformāciju nav. |
Fasāžu horizontālajās līnijās (cokola, joslu, logu, dzegu) izliekumu nav. Sienu apmetums vai apšuvums pilnīgā kārtībā. |
|
2. |
11–20 |
Koka materiāls pilnīgi saglabājies. Satrunējumu nav. Ir deformācijas, taču bez būtiskas nozīmes. |
Fasāžu horizontālajās līnijās izliekumu nav. Apšuvums vietām saplaisājis. Apmetumā vai apšuvumā nenozīmīgas plaisas. |
|
3. |
21–30 |
Kokam vietām žuvuma plaisas. Apakšējos vainagos redzami neievērojami bojājumi un satrunējuma pēdas. Vainaga maiņa nav nepieciešama. Redzamas nenozīmīgas deformācijas (sašķiebšanās) durvju un logu ailēs un dzegās. |
Nenozīmīgi fasādes horizontālo līniju izliekumi. Apšuvums vietām bojāts un atdalījies, apmetumā ir plaisas un sienu apakšējā daļā (cokolā) ievērojami bojājumi. Apšuvumā pie cokola redzamas satrunējuma pēdas. Nepieciešams apšuvuma vai apmetuma remonts. |
|
4. |
31–40 |
Konstrukcija neizturīga. Koka materiālā daudz plaisu, atšķēlumu un saspiedumu. Daļa vainagu satrunējusi un nepieciešama apmaiņa līdz 15 %. Ir ievērojamas deformācijas izliekumi, ieliekumi, sienu izspiešanās un nevienmērīga nosēšanās. |
Daudzās vietās redzami horizontālo līniju izliekumi un aplodu sašķiebšanās. Apšuvumā vai apmetumā novērojama neliela izspiešanās. Deformācijas mitruma un satrunējuma pazīmes. |
|
5. |
41–60 |
Koka materiāls daudzās vietās stipri bojāts. Ievērojami bojājumi no satrunējuma, nepieciešama vainaga maiņa līdz 30 %. Stipra sienu izspiešanās un ieliekšanās, nevienmērīga nosēšanās, logu un durvju aplodas sašķiebušās. |
Bīstamas deformācijas. Lieli trupes bojājumi. Nepieciešama vainaga maiņa līdz 30 %. |
|
6. |
61–80 |
Konstrukcija atrodas sabrukšanas stāvoklī. Sienas stipri satrunējušas un bojātas māju sēnītes dēļ. |
Konstrukcija atrodas sabrukšanas stāvoklī. Sienas stipri satrunējušas un bojātas māju sēnītes dēļ. |
|
7. |
81–100 |
Konstrukcija daļēji vai pilnīgi sabrukusi, koka materiāls satrunējis, nepieciešama nojaukšana. |
Konstrukcija daļēji vai pilnīgi sabrukusi, koka materiāls satrunējis, nepieciešama nojaukšana. |
IV. Pārsegumi
|
Nr. p.k. |
Nolietojuma procents |
Pazīmes |
|
1. |
0–10 |
Ieliekumu nav. Griestu apmetumā sīkas plaisas. Grīdā plaisu nav. Nav atdalījušos apdares elementu. Šuvēs starp plātnēm plaisas. |
|
2. |
11–20 |
Ieliekumu nav. Griestu apmetumā neievērojamas plaisas. Grīdas ar niecīgām plaisām. Atdalījušies daži apdares elementi. Deformācijas dēļ plātnes nenozīmīgi pārvietojušās augstuma attiecībā vienai pret otru; šuvju aizpildījuma izlīdzinošā kārta atslāņojusies. |
|
3. |
21–30 |
Nenozīmīgs siju izliekums. Griestu apmetumā daudz plaisu, kas nav bīstamas. Sanitārajos mezglos neievērojamas mitruma pēdas. Grīdās plaisas. Atdalījušies daži apdares elementi. Mitrās vietās neliela satrunējuma pazīmes. Plātnēs plaisas šķērsām laidumam vai daudz nosēduma plaisu. Plātnes pārvietojušās augstuma attiecībā vienai pret otru; plātņu atbalsta vietās uz ārējām sienām caurtecējuma pēdas. |
|
4. |
31–40 |
Redzams siju ieliekums, nepieciešama dažu siju nomaiņa. Griestu apmetumā daudz plaisu, tas vietām nokritis. Nepieciešama apmetuma atjaunošana. Grīdas vietām nosēdušās ar lielām plaisām. Atdalījušies daudzi apdares elementi. Ievērojamu mitruma pēdu vietā neliela satrunējuma pazīmes. Plātņu laidumos un piekļāvuma vietās pie ārējām sienām plaisas. Uz sienām atbalsta vietās caurtecējuma pēdas vai caursalumi. |
|
5. |
41–60 |
Sijas ievērojami ieliekušās, nepieciešama daļēja apmaiņa un nostiprināšana ar pasijām. Griestu apmetums daudzās vietās nokritis. Nepieciešams jauns apmetums. Grīdas stipri nosēdušās un satrunējušas. Lielas mitruma pēdas. Bojājumus radījušas pelējuma un trupes izraisītājas mājas sēnes. Plātnēs gareniskas plaisas un šķērsplaisas, ieliekums. Plātņu atbalsta vietās plaisas ar tendenci palielināties. Plātnēm nokritusi aizsargkārta, atsedzot armatūru. |
|
6. |
61–100 |
Pārsegumi uz sabrukšanas robežas vai jau ir sabrukuši. Sabrukšanu radījušas pelējuma un trupes izraisītājas mājas sēnes. Plātnēs visur dziļas plaisas; plātnes nobīdījušās no plaknes un ievērojami ieliekušās. Plātnēm vietām atslāņojies un nokritis betons. |
V. Jumta segums
|
Nr. p.k. |
Nolietojuma procents |
Pazīmes |
|
1. |
0–10 |
Jumta segums bez bojājumiem. |
|
2. |
11–20 |
Jumta segums ar nelieliem virskārtas bojājumiem. Jumta segumā un salaiduma vietās ar vertikālajām virsmām atsevišķi sīki bojājumi un caurumi; notekūdeņu teknes ieliektas. |
|
3. |
21–30 |
Jumta segumā redzami bojājuma plankumi, jumts apsūnojis. Atsevišķi jumta ieseguma elementi bojāti. Jumta seguma augšējā kārtā uzpūstas virsmas, plaisas, pārrāvumi, nepieciešams nomainīt segumu līdz 30 % no virsmas laukuma. |
|
4. |
31–40 |
Jumta segumā bojājuma plankumi vairāk par 30 %. Atsevišķi jumta ieseguma elementi stipri bojāti, var būt zemjumta satecējumi. Sienu teknes un norobežojošie režģi stipri sarūsējuši un ievērojami bojāti; piekļāvumu vietās ar vertikālajām virsmām caurtecējumi. Bojātas ūdens pieņemšanas ierīces. |
|
5. |
41–60 |
Atsevišķas loksnes trūkst, atšķēlumi un plaisas, caurtecējumi un sniega sanesumi, lokšņu stiprinājums pie latojuma vietām atslābis. Sienu teknes vai ūdens pieņemšanas ietaišu pārkares sarūsējušas un sairušas, jumtā vietām caurtecējumi; masveidīgi bojāti norobežojošie režģi. Nepieciešama jumta seguma maiņa par 50 %. |
|
6. |
61–80 |
Masveida caurtecējumi, segums atslāņojies no pamatnes. Seguma elementi atdalījušies un bojāti. Daudz ielāpu, daļa sienu tekņu un pārkaru trūkst. Nepieciešama jumta seguma maiņa par 80 %. |
|
7. |
81–100 |
Jumta seguma nav vai daļēji nav. |
Tieslietu ministrs G.Bērziņš
23.pielikums
Ministru kabineta
2007.gada 20.marta noteikumiem Nr.182
Ēkas labiekārtojums
Labiekārtojuma veids:
1. Aukstā ūdens apgāde.
2. Centrālā apkure.
3. Elektroapgāde.
4. Gāzes apgāde.
5. Kanalizācija.
6. Karstā ūdens apgāde.
7. Kravas lifts.
8. Lietus ūdens kanalizācija.
9. Pasažieru lifts.
10. Savietotā sanitārtehniskā telpa.
11. Speciālā kanalizācija.
12. Tehnoloģiskie cauruļvadi.
13. Tualetes telpa.
14. Vannas (dušas) telpa.
15. Vietējā centralizētā apkure.
16. Vietējā krāsns apkure.
Tieslietu ministrs G.Bērziņš
24.pielikums
Ministru kabineta
2007.gada 20.marta noteikumiem Nr.182
PARAUGS
Stāva plāna saturs
1. Stāva plānā:
1.1. attēlo:
1.1.1. sienas, starpsienas un tajās esošās ailas;
1.1.2. starpsienas, kas nesniedzas līdz griestiem;
1.1.3. lodžijas, balkonus, terases, lieveņus;
1.1.4. telpās esošos izvirzījumus, nišas, ja to augstums no grīdas vienāds ar 1,60 metriem vai mazāks;
1.1.5. stacionāro krāšņu, kamīnu, pavardu, sildmūru un kolonnu pamatnes kontūras;
1.1.6. lifta, citu šahtu, ārējo un iekšējo kāpņu laida kontūras un pakāpienus, norādot kāpņu augšupejošo virzienu;
1.1.7. santehnikas ierīču izvietojumu telpā (atbilstoši Ministru kabineta 2007.gada 20.marta noteikumu Nr.182 “Noteikumi par nekustamā īpašuma objekta noteikšanu” 12.pielikumam);
1.2. ieraksta:
1.2.1. katras telpas kontūras iekšienē (daļskaitļa veidā) telpas numuru (skaitītājs) un platību (saucējs) ar noteiktību 0,1 m2, pēc iespējas to izvietojot kontūras centrā;
1.2.2. tikai pirmā stāva ēkas ārsienu un to izvirzīto daļu garumus;
1.2.3. Ministru kabineta 2007.gada 20.marta noteikumu Nr.182 “Noteikumi par nekustamā īpašuma objekta noteikšanu” 270.punktā minētos mērījumus, izņemot logu un durvju ailu horizontālos izmērus un attālumus, pēc kuriem nosaka to atrašanās vietu telpu sienās, kā arī sienu un pārseguma biezumus un telpu augstumus;
1.3. izveido rakstlaukumu, kurā ietver:
1.3.1. stāva numuru;
1.3.2. stāva augstumu ar precizitāti 0,05 metri;
1.3.3. būves kadastra apzīmējumu;
1.3.4. stāva plāna mērogu;
1.3.5. apsekošanas datumu;
1.3.6. uzmērītāja vārdu, uzvārdu un parakstu.
2. Pie izejas uz koplietošanas telpām vai uz āru stāva plānā ieraksta:
2.1. telpu grupas kadastra apzīmējuma pēdējos trīs ciparus;
2.2. telpu grupai piešķirto numuru – adreses elementu.
Tieslietu ministrs G.Bērziņš
25.pielikums
Ministru kabineta
2007.gada 20.marta noteikumiem Nr.182
Apbūves plāna saturs
1. Apbūves plānā:
1.1. attēlo:
1.1.1. būves punktu, pierakstot tā koordinātas, noapaļotas līdz centimetram, un numuru;
1.1.2. zemes vienības robežas – pilsētā, ciemā, dārzkopības apbūves teritorijā;
1.1.3. zemes vienībai piegulošās ielas un to nosaukumus;
1.1.4. visu zemes vienības teritorijā esošo būvju ārējās kontūras;
1.2. visām ēkām ieraksta:
1.2.1. būves kadastra apzīmējuma pēdējos trīs ciparus vai būves kadastra apzīmējumu, ja būves kadastra apzīmējuma pirmie 11 cipari atšķiras no zemes vienības kadastra apzīmējuma;
1.2.2. adresi, ja tā atšķiras no zemes vienības adreses;
1.2.3. ārsienu horizontālo malu garumus;
1.3. zemes vienības teritorijā esošajām ēkām, kurām neveic kadastrālo uzmērīšanu, norāda:
1.3.1. ārsienu horizontālo malu garumus;
1.3.2. stāvu skaitu, ja tas ir noteikts;
1.3.3. apbūves laukumu;
1.4. izveido rakstlaukumu, kurā norāda:
1.4.1. zemes vienības kadastra apzīmējumu;
1.4.2. plāna mērogu;
1.4.3. uzmērīšanas datumu;
1.4.4. uzmērītāja vārdu, uzvārdu un parakstu.
Tieslietu ministrs G.Bērziņš
26.pielikums
Ministru kabineta
2007.gada 20.marta noteikumiem Nr.182
Telpu grupu lietošanas veidi
|
Nr. p.k. |
Kods |
Nosaukums |
|
1. |
1101 |
Dzīvojamo māju palīgēkas telpu grupa |
|
2. |
1110 |
Viena dzīvokļa mājas dzīvojamo telpu grupa |
|
3. |
1121 |
Divu dzīvokļu mājas dzīvojamo telpu grupa |
|
4. |
1122 |
Triju un vairāku dzīvokļu mājas dzīvojamo telpu grupa |
|
5. |
1130 |
Dažādu sociālo grupu kopdzīvojamās mājas dzīvojamo telpu grupa |
|
6. |
1201 |
Nedzīvojamo ēku palīgēkas telpu grupa |
|
7. |
1211 |
Viesnīcas telpu grupa |
|
8. |
1212 |
Citas īslaicīgas apmešanās telpu grupa |
|
9. |
1220 |
Biroja telpu grupa |
|
10. |
1230 |
Vairumtirdzniecības un mazumtirdzniecības telpu grupa |
|
11. |
1241 |
Sakaru, stacijas, termināla telpu grupa |
|
12. |
1242 |
Garāžas telpu grupa |
|
13. |
1251 |
Rūpnieciskās ražošanas telpu grupa |
|
14. |
1252 |
Rezervuāra, bunkura, silosa, noliktavas telpu grupa |
|
15. |
1261 |
Plašizklaides pasākumu telpu grupa |
|
16. |
1262 |
Muzeja vai bibliotēkas telpu grupa |
|
17. |
1263 |
Izglītības iestāžu telpu grupa |
|
18. |
1264 |
Ārstniecības vai veselības aprūpes iestāžu telpu grupa |
|
19. |
1265 |
Sporta telpu grupa |
|
20. |
1271 |
Lauku saimniecību nedzīvojamās ēkas telpu grupa |
|
21. |
1272 |
Kulta telpu grupa |
|
22. |
1273 |
Vēsturiska vai aizsargājama pieminekļa telpu grupa |
|
23. |
1274 |
Cita iepriekš neklasificēta telpu grupa |
|
24. |
1900 |
Koplietošanas telpu grupa |
Tieslietu ministrs G.Bērziņš
27.pielikums
Ministru kabineta
2007.gada 20.marta noteikumiem Nr.182
Ēku konstruktīvo elementu īpatsvars
|
Nr. p.k. |
Ēkas tipa nosaukums |
Konstruktīvo elementu īpatsvars (%) |
|||||||||
|
pamati |
sienas |
pārsegums |
jumts |
||||||||
|
sienas |
ailas (logi, durvis |
apdare |
Speciālie darbi (elektrotehniskie, santehniskie) |
kopā |
pārsegums |
grīdas |
kopā |
||||
|
1. |
Dārza mājas ar kopējo platību līdz 40 m2 (ieskaitot) |
13,0 |
26,0 |
8,0 |
14,0 |
11,0 |
59,0 |
8,0 |
12,0 |
20,0 |
8,0 |
|
2. |
Individuālās dzīvojamās mājas un vasarnīcas ar koka ārsienām un dārza mājas ar platību, lielāku par 40 m2 |
8,0 |
25,0 |
9,0 |
15,0 |
16,0 |
65,0 |
7,0 |
13,0 |
20,0 |
7,0 |
|
3. |
Individuālās dzīvojamās mājas un vasarnīcas ar mūra un mūra-koka ārsienām |
13,0 |
27,0 |
10,0 |
15,0 |
9,0 |
61,0 |
10,0 |
10,0 |
20,0 |
6,0 |
|
4. |
Dvīņu, rindu un atsevišķu divdzīvokļu mājas ar koka ārsienām |
10,0 |
25,0 |
10,0 |
16,0 |
14,0 |
65,0 |
8,0 |
11,0 |
19,0 |
6,0 |
|
5. |
Dvīņu, rindu un atsevišķu divdzīvokļu mājas ar mūra un mūra-koka ārsienām |
14,0 |
25,0 |
9,0 |
14,0 |
13,0 |
61,0 |
9,0 |
10,0 |
19,0 |
6,0 |
|
6. |
Daudzdzīvokļu mājas ar koka ārsienām |
12,0 |
24,0 |
11,0 |
15,0 |
13,0 |
63,0 |
9,0 |
11,0 |
20,0 |
5,0 |
|
7. |
Daudzdzīvokļu mājas ar mūra-koka ārsienām |
11,0 |
27,0 |
9,0 |
19,0 |
11,0 |
66,0 |
7,0 |
13,0 |
20,0 |
3,0 |
|
8. |
Daudzdzīvokļu vienstāva un divstāvu mājas ar mūra ārsienām |
14,0 |
25,0 |
11,0 |
15,0 |
11,0 |
62,0 |
9,0 |
10,0 |
19,0 |
5,0 |
|
9. |
Daudzdzīvokļu 3–5 stāvu mājas ar mūra ārsienām |
10,0 |
30,0 |
10,0 |
14,0 |
12,0 |
66,0 |
10,0 |
11,0 |
21,0 |
3,0 |
|
10. |
Daudzdzīvokļu 6–9 stāvu mājas ar mūra ārsienām |
8,0 |
34,0 |
8,0 |
7,0 |
17,0 |
66,0 |
12,0 |
11,0 |
23,0 |
3,0 |
|
11. |
Daudzdzīvokļu 10 un vairāk stāvu mājas ar mūra ārsienām |
7,0 |
29,0 |
8,0 |
15,0 |
16,0 |
68,0 |
13,0 |
9,0 |
22,0 |
3,0 |
|
12. |
Dažādu sociālo grupu kopdzīvojamās mājas (piemēram, dienesta viesnīcas, veco ļaužu pansionāti) |
11,0 |
31,0 |
10,0 |
10,0 |
13,0 |
64,0 |
9,0 |
10,0 |
19,0 |
6,0 |
|
13. |
Viesnīcu ēkas |
8,0 |
33,0 |
12,0 |
9,0 |
11,0 |
65,0 |
10,0 |
11,0 |
21,0 |
6,0 |
|
14. |
Moteļu ēkas |
11,0 |
26,0 |
11,0 |
11,0 |
10,0 |
58,0 |
14,0 |
9,0 |
23,0 |
8,0 |
|
15. |
Dažādas īslaicīgas apmešanās ēkas, izņemot viesnīcu un moteļu ēkas |
8,0 |
23,0 |
11,0 |
6,0 |
20,0 |
60,0 |
14,0 |
9,0 |
23,0 |
9,0 |
|
16. |
Restorāni un citas sabiedriskās ēdināšanas ēkas, izņemot vasaras kafejnīcas, bufetes un bārus ar vaļējām verandām |
9,0 |
24,0 |
12,0 |
7,0 |
18,0 |
61,0 |
11,0 |
10,0 |
21,0 |
9,0 |
|
17. |
Vasaras kafejnīcas, bufetes un bāri ar vaļējām verandām |
4,0 |
32,0 |
11,0 |
4,0 |
24,0 |
71,0 |
5,0 |
9,0 |
14,0 |
11,0 |
|
18. |
Banku iestāžu ēkas |
6,0 |
29,0 |
12,0 |
11,0 |
11,0 |
63,0 |
12,0 |
13,0 |
25,0 |
6,0 |
|
19. |
Konferenču, biroju un projektēšanas iestāžu ēkas |
9,0 |
33,0 |
12,0 |
8,0 |
14,0 |
67,0 |
8,0 |
9,0 |
17,0 |
7,0 |
|
20. |
Tirdzniecības, atsevišķi novietotas veikalu un aptieku ēkas, izņemot tirdzniecības kioskus, segtos stendus un noliktavas |
7,0 |
27,0 |
13,0 |
6,0 |
18,0 |
64,0 |
13,0 |
6,0 |
19,0 |
10,0 |
|
21. |
Tirdzniecības kioski un segtie stendi |
6,0 |
36,0 |
5,0 |
10,0 |
10,0 |
61,0 |
10,0 |
6,0 |
16,0 |
17,0 |
|
22. |
Tirdzniecības noliktavas |
10,0 |
32,0 |
5,0 |
4,0 |
9,0 |
50,0 |
16,0 |
12,0 |
28,0 |
12,0 |
|
23. |
Automobiļu tehniskās apkopes un remonta ēkas |
12,0 |
25,0 |
6,0 |
3,0 |
25,0 |
59,0 |
9,0 |
7,0 |
16,0 |
13,0 |
|
24. |
Automobiļu kopējās lietošanas degvielas uzpildes staciju ēkas |
8,0 |
32,0 |
12,0 |
9,0 |
11,0 |
64,0 |
11,0 |
11,0 |
22,0 |
6,0 |
|
25. |
Automobiļu kopējās lietošanas degvielas uzpildes staciju nojumes |
5,0 |
8,0 |
3,0 |
0 |
3,0 |
14,0 |
0 |
24,0 |
24,0 |
57,0 |
|
26. |
Sadzīves pakalpojumu ēkas |
9,0 |
28,0 |
9,0 |
9,0 |
19,0 |
65,0 |
9,0 |
10,0 |
19,0 |
7,0 |
|
27. |
Azartspēļu ēkas |
6,0 |
22,0 |
7,0 |
10,0 |
26,0 |
65,0 |
13,0 |
8,0 |
21,0 |
8,0 |
|
28. |
Valsts un pašvaldību administratīvās, tiesu un muitu ēkas |
8,0 |
33,0 |
11,0 |
10,0 |
14,0 |
68,0 |
7,0 |
10,0 |
17,0 |
7,0 |
|
29. |
Muitas nojumes |
5,0 |
8,0 |
3,0 |
0 |
3,0 |
14,0 |
0 |
24,0 |
24,0 |
57,0 |
|
30. |
Pirmsskolas vecuma bērnu iestāžu paēnas nojumes |
8,0 |
46,0 |
0 |
2,0 |
0 |
48,0 |
35,0 |
3,0 |
38,0 |
6,0 |
|
31. |
Kinoteātri, mūzikas, deju un citu plašizklaides pasākumu ēkas |
8,0 |
24,0 |
6,0 |
7,0 |
27,0 |
64,0 |
13,0 |
7,0 |
20,0 |
8,0 |
|
32. |
Cirka ēkas |
8,0 |
23,0 |
1,0 |
7,0 |
33,0 |
64,0 |
16,0 |
7,0 |
23,0 |
5,0 |
|
33. |
Apjumtas vasaras estrādes |
21,0 |
40,0 |
0,0 |
6,0 |
6,0 |
52,0 |
0,0 |
16,0 |
16,0 |
11,0 |
|
34. |
Zooloģisko un botānisko dārzu ēkas |
18,0 |
41,0 |
7,0 |
4,0 |
4,0 |
56,0 |
11 |
4,0 |
15,0 |
11,0 |
|
35. |
Teātri, koncertzāles, klubi un tautas nami |
6,0 |
27,0 |
11,0 |
11,0 |
15,0 |
64,0 |
12,0 |
12,0 |
24,0 |
6,0 |
|
36. |
Muzeji, arhīvi un bibliotēkas |
7,0 |
29,0 |
12,0 |
11,0 |
14,0 |
66,0 |
12,0 |
10,0 |
22,0 |
5,0 |
|
37. |
Izglītības un zinātniskās pētniecības iestāžu ēkas |
7,0 |
30,0 |
12,0 |
8,0 |
14,0 |
64,0 |
13,0 |
11,0 |
24,0 |
5,0 |
|
38. |
Hidrometeoroloģiskās un aeroloģiskās stacijas |
7,0 |
35,0 |
11,0 |
6,0 |
17,0 |
69,0 |
8,0 |
9,0 |
17,0 |
7,0 |
|
39. |
Ārstniecības un veselības aprūpes iestāžu ēkas |
7,0 |
28,0 |
10,0 |
10,0 |
17,0 |
65,0 |
12,0 |
9,0 |
21,0 |
7,0 |
|
40. |
Sporta ēkas, izņemot piepūšamās angāra tipa sporta ēkas |
8,0 |
31,0 |
10,0 |
10,0 |
13,0 |
64,0 |
13,0 |
8,0 |
21,0 |
7,0 |
|
41. |
Piepūšamās angāra tipa sporta ēkas |
16,0 |
84,0 |
||||||||
|
42. |
Kulta ēkas |
10,0 |
35,0 |
9,0 |
14,0 |
6,0 |
64,0 |
11,0 |
6,0 |
17,0 |
9,0 |
|
43. |
Ugunsdzēsības posteņu un depo ēkas |
12,0 |
26,0 |
12,0 |
5 |
8,0 |
51,0 |
10,0 |
16,0 |
26,0 |
11,0 |
|
44. |
Soda izciešanas iestāžu ēkas, aizsardzības spēku, policijas un ugunsdzēsības dienestu ēkas un kazarmas |
8,0 |
24,0 |
11,0 |
6,0 |
16,0 |
57,0 |
12,0 |
9,0 |
21,0 |
14,0 |
|
45. |
Kūdras ieguves un apstrādes ēkas |
12,0 |
24,0 |
8,0 |
6,0 |
20,0 |
58,0 |
20,0 |
4,0 |
24,0 |
6,0 |
|
46. |
Pārtikas un kombinētās lopbarības ražošanas un pārstrādes ēkas un elevatori |
12,0 |
31,0 |
7,0 |
6,0 |
14,0 |
58,0 |
15,0 |
7,0 |
22,0 |
8,0 |
|
47. |
Tekstilizstrādājumu, apģērbu un ādas izstrādājumu ražošanas ēkas |
10,0 |
21,0 |
6,0 |
4,0 |
21,0 |
52,0 |
20,0 |
9,0 |
29,0 |
9,0 |
|
48. |
Kokapstrādes ēkas |
11,0 |
27,0 |
9,0 |
4,0 |
11,0 |
51,0 |
16,0 |
9,0 |
25,0 |
13,0 |
|
49. |
Celulozes un papīra ražošanas ēkas |
11,0 |
24,0 |
7,0 |
5,0 |
13,0 |
49,0 |
18,0 |
10,0 |
28,0 |
12,0 |
|
50. |
Poligrāfijas un kinofilmu uzņemšanas uzņēmumu ražošanas ēkas |
12,0 |
29,0 |
8,0 |
5,0 |
16,0 |
58,0 |
19,0 |
7,0 |
26,0 |
4,0 |
|
51. |
Farmaceitisko, medicīnisko un ķīmisko izstrādājumu ražošanas ēkas |
12,0 |
29,0 |
8,0 |
5,0 |
18,0 |
60,0 |
13,0 |
7,0 |
20,0 |
8,0 |
|
52. |
Būvmateriālu un sanitārtehnisko iekārtu ražošanas ēkas |
17,0 |
30,0 |
7,0 |
5,0 |
10,0 |
52,0 |
18,0 |
5,0 |
23,0 |
8,0 |
|
53. |
Metāla izstrādājumu, mašīnu un iekārtu ražošanas un remonta ēkas |
12,0 |
33,0 |
8,0 |
4,0 |
12,0 |
57,0 |
12,0 |
10,0 |
22,0 |
9,0 |
|
54. |
Gāzapgādes uzņēmumu ēkas |
18,0 |
29,0 |
6,0 |
4,0 |
17,0 |
56,0 |
9,0 |
5,0 |
14,0 |
12,0 |
|
55. |
Rūpniecības, transporta un citu uzņēmumu noliktavas, izņemot lauksaimniecības un tirdzniecības noliktavas |
17,0 |
26,0 |
7,0 |
3,0 |
5,0 |
41,0 |
23,0 |
10 |
33,0 |
9,0 |
|
56. |
Dažādu uzņēmumu saldētavu ēkas, izņemot lauksaimniecības saldētavas |
10,0 |
37,0 |
7,0 |
4,0 |
6,0 |
54,0 |
17,0 |
12,0 |
29,0 |
7,0 |
|
57. |
Dažādu ražošanas uzņēmumu nojumes, izņemot lauksaimniecības nojumes |
11,0 |
20,0 |
0,0 |
2,0 |
3,0 |
25,0 |
30,0 |
17,0 |
47,0 |
17,0 |
|
58. |
Vertikālie cilindriskie virszemes rezervuāri (ar tilpumu 5000 m3 un vairāk) amonjaka, naftas, šķidro ķīmisko un naftas produktu uzglabāšanai, būvēti līdz 1995.gadam (ieskaitot) |
100,0 |
|||||||||
|
59. |
Vertikālie cilindriskie virszemes rezervuāri (ar kupolveida jumta konstrukciju un tilpumu 5000 m3 un vairāk) amonjaka, naftas, šķidro ķīmisko un naftas produktu uzglabāšanai, būvēti pēc 1995.gada |
100,0 |
|||||||||
|
60. |
Lauksaimnieciskās ražošanas produkcijas noliktavas un glabātavas, izņemot arkveida un angārveida noliktavas un glabātavas |
11,0 |
46,0 |
5,0 |
5,0 |
6,0 |
62,0 |
15,0 |
3,0 |
18,0 |
9,0 |
|
61. |
Lauksaimniecības šķūņi |
28,0 |
28,0 |
6,0 |
4,0 |
4,0 |
42,0 |
0,0 |
6,0 |
6,0 |
24,0 |
|
62. |
Pagrabi ar kopējo platību, lielāku par 40 m2 |
37,0 |
27,0 |
6,0 |
2,0 |
1,0 |
36,0 |
6,0 |
5,0 |
11,0 |
16,0 |
|
63. |
Lauksaimniecības nojumes |
12,0 |
39,0 |
0,0 |
1,0 |
0,0 |
40,0 |
1,0 |
5,0 |
6,0 |
42,0 |
|
64. |
Lauksaimniecības arkveida un angārveida noliktavas un glabātavas |
18,0 |
0,0 |
7,0 |
2,0 |
2,0 |
11,0 |
58,0 |
7,0 |
65,0 |
6,0 |
|
65. |
Lauksaimniecības nozares uzņēmumu saldētavas un leduspagrabi |
10,0 |
41,0 |
6,0 |
5,0 |
13,0 |
65,0 |
6,0 |
14,0 |
20,0 |
5,0 |
|
66. |
Kūtis ar kopējo platību, lielāku par 60 m2, lopkopības, putnkopības un zvērkopības ēkas |
18,0 |
42,0 |
7,0 |
4,0 |
4,0 |
57,0 |
11,0 |
3,0 |
14,0 |
11,0 |
|
67. |
Stiklotas siltumnīcas |
18,0 |
31,0 |
8,0 |
7,0 |
2,0 |
48,0 |
1,0 |
0,0 |
1,0 |
33,0 |
|
68. |
Siltumnīcas ar polietilēna plēvi apvilktām karkasa sienām |
21,0 |
30,0 |
9,0 |
6,0 |
0,0 |
45,0 |
0,0 |
0,0 |
0,0 |
34,0 |
|
69. |
Siltumnīcu apkalpes ēkas |
9,0 |
26,0 |
8,0 |
6,0 |
28,0 |
68,0 |
8,0 |
5,0 |
13,0 |
10,0 |
|
70. |
Graudu, sēklu, dārzeņu un augļu pirmapstrādes ēkas |
18,0 |
38,0 |
5,0 |
2,0 |
5,0 |
50,0 |
12,0 |
12,0 |
24,0 |
8,0 |
|
71. |
Lauksaimniecības mašīnu un tehnikas garāžas |
10,0 |
39,0 |
10,0 |
2,0 |
1,0 |
52,0 |
5,0 |
8,0 |
13,0 |
25,0 |
|
72. |
Zivsaimniecības ēkas |
13,0 |
26,0 |
9,0 |
6,0 |
12,0 |
53,0 |
17,0 |
10,0 |
27,0 |
7,0 |
|
73. |
Zivju audzētavu baseinu nojumes |
19,0 |
22,0 |
0,0 |
0,0 |
2,0 |
24,0 |
0,0 |
45 |
45,0 |
12,0 |
|
74. |
Autostaciju un ūdenstransporta staciju ēkas |
9,0 |
34,0 |
15,0 |
6,0 |
12,0 |
67,0 |
9,0 |
6,0 |
15,0 |
9,0 |
|
75. |
Vaļējie autobusu pieturu paviljoni |
12,0 |
40,0 |
0,0 |
0,0 |
0,0 |
40,0 |
1,0 |
6,0 |
7,0 |
41,0 |
|
76. |
Slēgtie autobusu pieturu paviljoni |
14,0 |
23,0 |
17,0 |
6,0 |
7,0 |
53,0 |
4,0 |
20,0 |
24,0 |
9,0 |
|
77. |
Lidostu termināļi, lidmašīnu
tehniskās apkopes un citas lidostu |
11,0 |
23,0 |
11,0 |
6,0 |
10,0 |
50,0 |
21,0 |
9,0 |
30,0 |
9,0 |
|
78. |
Lidmašīnu angāri |
8,0 |
16,0 |
7,0 |
2,0 |
5,0 |
30,0 |
42,0 |
8,0 |
50,0 |
12,0 |
|
79. |
Dzelzceļa transporta ēkas, izņemot pasažieru staciju ēkas |
11,0 |
30,0 |
10,0 |
7,0 |
15,0 |
62,0 |
12,0 |
7,0 |
19,0 |
8,0 |
|
80. |
Dzelzceļa pasažieru staciju ēkas |
10,0 |
25,0 |
12,0 |
7,0 |
16,0 |
60,0 |
14,0 |
8,0 |
22,0 |
8,0 |
|
81. |
Pasta, sakaru nodaļu, radiostaciju un televīziju centru un studiju ēkas |
7,0 |
27,0 |
12,0 |
11,0 |
12,0 |
62,0 |
12,0 |
13,0 |
25,0 |
6,0 |
|
82. |
Telefona centrāļu un līniju pastiprināšanas punktu ēkas |
16,0 |
26,0 |
4,0 |
5,0 |
19,0 |
54,0 |
16,0 |
7,0 |
23,0 |
7,0 |
|
83. |
Automobiļu un rūpniecībā nodarbinātās motorizētās tehnikas garāžas |
14,0 |
25,0 |
5,0 |
2,0 |
27,0 |
59,0 |
8,0 |
6,0 |
14,0 |
13,0 |
|
84. |
Automobiļu pazemes garāžas |
37,0 |
27,0 |
6,0 |
2,0 |
1,0 |
36,0 |
6,0 |
5,0 |
11,0 |
16,0 |
|
85. |
Automobiļu daudzstāvu virszemes garāžas |
15,0 |
33,0 |
14,0 |
8,0 |
4,0 |
59,0 |
16,0 |
6,0 |
22,0 |
4,0 |
|
86. |
Vieglo automobiļu garāžas ar atsevišķām bloķētām telpām |
15,0 |
34,0 |
14,0 |
8,0 |
3,0 |
59,0 |
16,0 |
6,0 |
22,0 |
4,0 |
|
87. |
Katlumājas |
14,0 |
28,0 |
10,0 |
7,0 |
16,0 |
61,0 |
12,0 |
5,0 |
17,0 |
8,0 |
|
88. |
Elektroenerģijas apgādes ēkas, izņemot elektrostaciju un transformatoru staciju ēkas |
17,0 |
31,0 |
10,0 |
4,0 |
13,0 |
58,0 |
10 |
6,0 |
16,0 |
9,0 |
|
89. |
Maģistrālo naftas vadu sūkņu stacijas |
15,0 |
28,0 |
3,0 |
5,0 |
30,0 |
66,0 |
0,0 |
4,0 |
4,0 |
15,0 |
|
90. |
Maģistrālo gāzes vadu kompresoru stacijas |
14,0 |
37,0 |
9,0 |
2,0 |
14,0 |
62,0 |
15,0 |
5,0 |
20,0 |
4,0 |
|
91. |
Ūdensapgādes sūkņu stacijas |
13,0 |
43,0 |
3,0 |
2,0 |
14,0 |
62,0 |
13,0 |
5,0 |
18,0 |
7,0 |
|
92. |
Kanalizācijas un meliorācijas sūkņu stacijas |
18,0 |
38,0 |
11,0 |
7,0 |
4,0 |
60,0 |
0,0 |
4,0 |
4,0 |
18,0 |
|
93. |
Dzīvojamo un nedzīvojamo māju apbūvē esošās saimniecības ēkas ar koka ārsienām |
16,0 |
36,0 |
8,0 |
6,0 |
9,0 |
59,0 |
10,0 |
7,0 |
17,0 |
8,0 |
|
94. |
Dzīvojamo un nedzīvojamo māju apbūvē esošās saimniecības ēkas ar mūra ārsienām |
20,0 |
32,0 |
10,0 |
8,0 |
9,0 |
59,0 |
10,0 |
4,0 |
14,0 |
7,0 |
|
95. |
Atsevišķi novietotas individuālās garāžas |
11,0 |
33,0 |
7,0 |
11,0 |
5,0 |
56,0 |
22,0 |
7,0 |
29,0 |
4,0 |
|
96. |
Piebūvētas individuālās garāžas |
15,0 |
34,0 |
14,0 |
8,0 |
3,0 |
59,0 |
16,0 |
6,0 |
22,0 |
4,0 |
|
97. |
Dzīvojamo un nedzīvojamo māju apbūvē esošie šķūņi |
21,0 |
39,0 |
10,0 |
1,0 |
0,0 |
50,0 |
0,0 |
7,0 |
7,0 |
22,0 |
|
98. |
Piebūvētas vai atsevišķi novietotas ēkas ar stiklota karkasa nesošajām sienām, izņemot siltumnīcas |
18,0 |
31,0 |
9,0 |
8,0 |
0,0 |
48,0 |
0,0 |
0,0 |
0,0 |
34,0 |
|
99. |
Dzīvojamo un nedzīvojamo māju apbūvē esošie pagrabi ar kopējo platību līdz 40 m2 (ieskaitot) |
10,0 |
33,0 |
11,0 |
6,0 |
19,0 |
69,0 |
10,0 |
6,0 |
16,0 |
5,0 |
|
100. |
Dzīvojamo un nedzīvojamo māju apbūvē esošās kūtis ar kopējo platību līdz 60 m2 (ieskaitot) |
37,0 |
27,0 |
6,0 |
2,0 |
1,0 |
36,0 |
6,0 |
5,0 |
11,0 |
16,0 |
|
101. |
Citas iepriekš neklasificētas nojumes |
5,0 |
12,0 |
0,0 |
0,0 |
2,0 |
14,0 |
0,0 |
24,0 |
24,0 |
57,0 |
|
102. |
Caurlaides punktu un apsardzes ēkas |
7,0 |
24,0 |
11,0 |
6,0 |
17,0 |
58,0 |
12,0 |
9,0 |
21,0 |
14,0 |
|
103. |
Atsevišķi novietotas publisko tualešu ēkas |
14,0 |
38,0 |
3,0 |
4,0 |
5,0 |
50,0 |
12,0 |
10,0 |
22,0 |
14,0 |
|
104. |
Automobiļu svaru ēkas |
6,0 |
18,0 |
6,0 |
3,0 |
9,0 |
36,0 |
6,0 |
17,0 |
23,0 |
35,0 |
|
105. |
Ražošanas ēku virszemes pārejas galerijas |
20,0 |
29,0 |
3,0 |
6,0 |
4,0 |
42,0 |
25,0 |
5,0 |
30,0 |
8,0 |
Tieslietu ministrs G.Bērziņš
Telpu grupas plāna saturs
1. Telpu grupas plānu izgatavo, izmantojot digitālā veidā sastādītā aktualizētā ēkas stāva plāna informāciju.
2. Telpu grupas plānā attēlo būves punktu, pierakstot tā koordinātas, noapaļotas līdz centimetram, un numuru.
3. Telpu grupas plāna rakstlaukumā ietver:
3.1. telpu grupas kadastra apzīmējumu;
3.2. mērogu;
3.3. telpu grupā ietilpstošo telpu augstumu;
3.4. uzmērīšanas datumu;
3.5. uzmērītāja vārdu, uzvārdu un parakstu.
Tieslietu ministrs G.Bērziņš
29.pielikums
Ministru kabineta
2007.gada 20.marta noteikumiem Nr.182
Ēkas kadastrālās uzmērīšanas lietas saturs
1. Ēkas kadastrālās uzmērīšanas lietā apkopo ēkas kadastrālajā uzmērīšanā iegūtos datus.
2. Uz ēkas kadastrālās uzmērīšanas lietas vāka ir:
2.1. Valsts zemes dienesta teritoriālās struktūrvienības nosaukums;
2.2. uzraksts “Ēkas kadastrālās uzmērīšanas lieta”;
2.3. būves kadastra apzīmējums;
2.4. ēkas nosaukums;
2.5. ēkas adrese, ja vietējā pašvaldība tādu ir piešķīrusi;
2.6. atzīme par patvaļīgās būvniecības pazīmi;
2.7. ēkas kadastrālās uzmērīšanas datums;
2.8. Valsts zemes dienesta teritoriālās struktūrvienības zīmoga nospiedums un teritoriālās struktūrvienības pilnvarotās personas paraksts.
3. Ēkas kadastrālās uzmērīšanas lietā iekļauj šādu informāciju par būvi:
3.1. ēkas galvenais lietošanas veids un tā kods;
3.2. ēkas tips un tā kods;
3.3. pirmreizējais ekspluatācijā pieņemšanas gads;
3.4. ēkā esošo telpu grupu skaits;
3.5. ēkas virszemes un pazemes stāvu skaits;
3.6. ēkas fiziskais stāvoklis;
3.7. konstruktīvie elementi, to materiāli;
3.8. apjoma rādītāji, apjoms un mērvienība;
3.9. labiekārtojums, tā veidi un apjoms;
3.10. ēkas eksplikācija – ēkas kopējās platības sadalījums pēc tajā esošajiem platību veidiem;
3.11. telpu grupas nosaukums;
3.12. telpu grupas kadastra apzīmējuma pēdējie trīs cipari;
3.13. telpu grupai piešķirtais numurs – adreses elements;
3.14. telpu grupas lietošanas veids un tā kods;
3.15. telpu grupas novietojums ēkā, norādot ēkas stāvu vai stāvus;
3.16. telpu grupas eksplikācija:
3.16.1. telpas numuri telpu grupā;
3.16.2. telpas nosaukumi, ja projekta dokumentācijā tādi ir norādīti;
3.16.3. telpas veids;
3.16.4. telpas platība un tās sadalījums pēc platību veidiem;
3.16.5. telpas augstums;
3.16.6. patvaļīgas būvniecības pazīmes;
3.16.7. telpu grupas un atsevišķu platību veidu kopējā platība.
4. Ēkas kadastrālās uzmērīšanas lietā iekļauj:
4.1. aktu par ēkas neesību, ja būve dabā nav atrodama;
4.2. apbūves plānu;
4.3. stāvu plānus.
Tieslietu ministrs G.Bērziņš
30.pielikums
Ministru kabineta
2007.gada 20.marta noteikumiem Nr.182
Inženierbūves kadastrālās uzmērīšanas lietas saturs
1. Inženierbūves kadastrālās uzmērīšanas lietā apkopo inženierbūves kadastrālajā uzmērīšanā iegūtos datus.
2. Uz inženierbūves kadastrālās uzmērīšanas lietas vāka ir:
2.1. Valsts zemes dienesta teritoriālās struktūrvienības nosaukums;
2.2. uzraksts “Inženierbūves kadastrālās uzmērīšanas lieta”;
2.3. būves kadastra apzīmējums;
2.4. inženierbūves nosaukums;
2.5. atzīme par patvaļīgas būvniecības pazīmi;
2.6. inženierbūves kadastrālās uzmērīšanas datums;
2.7. Valsts zemes dienesta teritoriālās struktūrvienības zīmoga nospiedums un teritoriālās struktūrvienības pilnvarotās personas paraksts.
3. Inženierbūves kadastrālās uzmērīšanas lietā iekļauj šādu informāciju par būvi:
3.1. inženierbūves lietošanas veids un tā kods;
3.2. inženierbūves tips un tā kods;
3.3. pirmreizējais ekspluatācijā pieņemšanas gads;
3.4. inženierbūves fiziskais stāvoklis;
3.5. konstruktīvie elementi, to materiāli;
3.6. apjoma rādītāji un apjoms;
3.7. labiekārtojums, tā veidi un apjoms;
3.8. informācija par inženierbūves elementiem, norādot to numuru, nosaukumu, materiālu, apjomu un mērvienību.
4. Inženierbūves kadastrālās uzmērīšanas lietā iekļauj:
4.1. patvaļīgas būvniecības pazīmju raksturojumu;
4.2. aktu par inženierbūves neesību;
4.3. inženierbūves plānu;
4.4. inženierbūves fotogrāfijas.
Piezīme.
Ja telpā ir atšķirīgi augstumi (sākot no 15 cm), stāva plānā grafiski attēlo augstuma maiņas vietu, tajā pierakstot attiecīgos augstumus.
Tieslietu ministrs G.Bērziņš
31.pielikums
Ministru kabineta
2007.gada 20.marta noteikumiem Nr.182
Telpu grupas kadastrālās uzmērīšanas lietas saturs
1. Telpu grupas kadastrālās uzmērīšanas lietā apkopo telpu grupas kadastrālajā uzmērīšanā iegūtos datus.
2. Uz telpu grupas kadastrālās uzmērīšanas lietas vāka ir:
2.1. Valsts zemes dienesta teritoriālās struktūrvienības nosaukums;
2.2. uzraksts “Telpu grupas kadastrālās uzmērīšanas lieta”;
2.3. telpu grupas kadastra apzīmējums;
2.4. telpu grupas nosaukums;
2.5. telpu grupas lietošanas veids un tā kods;
2.6. telpu grupas adrese, ja vietējā pašvaldība tādu ir piešķīrusi;
2.7. atzīme par patvaļīgās būvniecības pazīmi;
2.8. telpu grupas kadastrālās uzmērīšanas datums;
2.9. Valsts zemes dienesta teritoriālās struktūrvienības zīmoga nospiedums un teritoriālās struktūrvienības pilnvarotās personas paraksts.
3. Telpu grupas kadastrālās uzmērīšanas lietā iekļauj šādu informāciju par būvi:
3.1. būves nosaukums;
3.2. būves galvenais lietošanas veids un tā kods;
3.3. būves tips un tā kods;
3.4. būves ārsienu materiāls un tā kods;
3.5. būves virszemes un pazemes stāvu skaits;
3.6. apjoma rādītāji, apjoms un mērvienība;
3.7. telpu grupu skaits;
3.8. pirmreizējais ekspluatācijā pieņemšanas gads;
3.9. būves kadastrālās uzmērīšanas datums;
3.10. būves fiziskais stāvoklis.
4. Informācijā par telpu grupu norāda informāciju no ēkas kadastrālās uzmērīšanas lietas par konkrēto telpu grupu, papildus ierakstot telpu grupas labiekārtojumu atbilstoši Ministru kabineta 2007.gada 20.marta noteikumu Nr.182 “Noteikumi par nekustamā īpašuma objekta noteikšanu” 21.pielikumam.
5. Telpu grupas kadastrālās uzmērīšanas lietā iekļauj:
5.1. aktu par telpu grupas neesību;
5.2. telpu grupas plānu.
Tieslietu ministrs G.Bērziņš
32.pielikums
Ministru kabineta
2007.gada 20.marta noteikumiem Nr.182
PARAUGS
Piezīme.
Papildus inženierbūves plānā attēlo būves punktu, pierakstot tā koordinātas, noapaļotas līdz centimetram, un numuru.
Tieslietu ministrs G.Bērziņš
33.pielikums
Ministru kabineta
2007.gada 20.marta noteikumiem Nr.182
Inženierbūvju tipu, kam ir ēku pazīmes, konstruktīvo elementu izmaksu īpatsvars
|
Nr. p.k. |
Ēkas tipa nosaukums |
Konstruktīvo elementu īpatsvars (%) |
|||||||||
|
pamati |
sienas |
pārsegums |
jumts |
||||||||
|
sienas |
ailas (logi, durvis) |
apdare |
Speciālie darbi (elektrotehniskie, santehniskie) |
kopā |
pārsegums |
grīdas |
kopā |
||||
|
Nr. p.k. |
Ēkas tipa nosaukums |
Konstruktīvo elementu īpatsvars (%) |
|||||||||
|
pamati |
sienas |
pārsegums |
jumts |
||||||||
|
sienas |
ailas (logi, durvis) |
apdare |
Speciālie darbi (elektrotehniskie, santehniskie) |
kopā |
pārsegums |
grīdas |
kopā |
||||
|
1. |
Labības pieņemšanas punktu automobiļu svari ar celtspēju 25 t |
6 |
18 |
6 |
3 |
9 |
36 |
6 |
17 |
23 |
35 |
|
2. |
Kabeļu līniju pastiprināšanas punktu pazemes būve |
37 |
27 |
6 |
2 |
1 |
36 |
6 |
5 |
11 |
16 |
|
3. |
Radio releju līniju metāla karkasa tipa kabīnes K-24AM ar alumīnija paneļu sienām |
11 |
23 |
11 |
6 |
10 |
50 |
21 |
9 |
30 |
9 |
|
4. |
Radio releju līniju metāla karkasa tipa kabīnes K-40M ar alumīnija paneļu sienām |
8 |
16 |
7 |
2 |
5 |
30 |
42 |
8 |
50 |
12 |
|
5. |
Toņfrekvences transformatoru kiosku un kabeļu būves |
7 |
24 |
11 |
6 |
17 |
58 |
12 |
9 |
21 |
14 |
|
6. |
Kuģu ceļu bākas ar augstumu, lielāku par 3,5 m |
21 |
45 |
4 |
5 |
7 |
61 |
8 |
2 |
10 |
8 |
|
7. |
Kuģu ceļu bākas ar augstumu līdz 3,5 m |
21 |
45 |
4 |
5 |
7 |
61 |
8 |
2 |
10 |
8 |
|
8. |
Atklātās stāvvietās novietoto kravas automobiļu gaisa sasildīšanas kaloriferu apakšzemes kameras |
37 |
27 |
6 |
2 |
1 |
36 |
6 |
5 |
11 |
16 |
|
9. |
Keramikas rūpnīcu izejvielu pieņemšanas ietaišu būves |
47 |
20 |
4 |
2 |
1 |
27 |
20 |
3 |
23 |
3 |
|
10. |
Keramikas un ģipša rūpnīcu transportieru galerijas |
18 |
22 |
3 |
0 |
1 |
26 |
46 |
4 |
50 |
6 |
|
11. |
Galerijas no ģipšakmens noliktavām līdz ģipša ražošanas ēkām |
18 |
22 |
3 |
0 |
1 |
26 |
46 |
4 |
50 |
6 |
|
12. |
Cementa rūpnīcu un kaļķu ražotņu transportieru galerijas |
18 |
22 |
3 |
0 |
1 |
26 |
46 |
4 |
50 |
6 |
|
13. |
Šķembu, grants un smilts ražotņu virszemes transportieru galerijas ar azbestcementa loksnēm apšūtu metāla karkasu vai ar ķieģeļu sienām |
18 |
22 |
3 |
0 |
1 |
26 |
46 |
4 |
50 |
6 |
|
14. |
Šķembu, grants un smilts ražotņu virszemes transportieru galerijas ar koka konstrukcijas sienām |
3 |
46 |
0 |
0 |
2 |
48 |
42 |
7 |
49 |
0 |
|
15. |
Pazemes transportieru galerijas |
3 |
46 |
0 |
0 |
2 |
48 |
42 |
7 |
49 |
0 |
|
16. |
Šķembu, grants un smilts ražotņu pazemes transportieru galerijas |
3 |
46 |
0 |
0 |
2 |
48 |
42 |
7 |
49 |
0 |
|
17. |
Kaļķu ražotņu pazemes galerijas |
3 |
46 |
0 |
0 |
2 |
48 |
42 |
7 |
49 |
0 |
|
18. |
Sarkano ķieģeļu rūpnīcu ražotņu savienojošās galerijas |
18 |
22 |
3 |
0 |
1 |
26 |
46 |
4 |
50 |
6 |
|
19. |
Dzelzceļu elektroapgādes centrālo sadales punktu (6–10 kW) būves ar sadales ierīcēm un iekšējiem transformatoriem |
21 |
25 |
23 |
2 |
7 |
57 |
11 |
5 |
16 |
6 |
|
20. |
Koplietošanas dzelzceļu dezinficēšanas un mazgāšanas laukumu un staciju transformatoru apakšstaciju būves, savienotas ar reaģentu glabātavām |
19 |
25 |
7 |
2 |
7 |
41 |
21 |
5 |
26 |
14 |
|
21. |
Dažādu ekonomiskās darbības uzņēmumu transformatoru apakšstaciju būves ar būvtilpumu līdz 200 m3 |
19 |
25 |
7 |
2 |
7 |
41 |
21 |
5 |
26 |
14 |
|
22. |
Dažādu ekonomiskās darbības uzņēmumu transformatoru apakšstaciju būves ar būvtilpumu no 200 līdz 500 m3 |
19 |
23 |
14 |
2 |
12 |
51 |
15 |
8 |
23 |
7 |
|
23. |
Dažādu ekonomiskās darbības uzņēmumu transformatoru apakšstaciju būves ar būvtilpumu, lielāku par 500 m3 |
18 |
27 |
5 |
1 |
23 |
56 |
12 |
5 |
17 |
9 |
|
24. |
Galerijas starp graudu kaltēšanas un attīrīšanas torņiem un graudu noliktavām |
18 |
22 |
3 |
0 |
1 |
26 |
46 |
4 |
50 |
6 |
|
25. |
Caurbrauktuves tipa ietaises pie graudu noliktavām graudu pieņemšanai no autotransporta |
20 |
39 |
6 |
3 |
6 |
54 |
15 |
6 |
21 |
5 |
|
26. |
Caurbrauktuves tipa ietaises pie graudu noliktavām savienojošās galerijas starp pieņemšanas ietaisēm un noliktavām |
20 |
39 |
6 |
3 |
6 |
54 |
15 |
6 |
21 |
5 |
|
27. |
Augšējās atklātās savienojošās transportieru galerijas uz metāla balstiem |
18 |
22 |
3 |
0 |
1 |
26 |
46 |
4 |
50 |
6 |
|
28. |
Augšējās slēgtās savienojošās galerijas (caurstaigājamās) uz metāla balstiem |
18 |
22 |
3 |
0 |
1 |
26 |
46 |
4 |
50 |
6 |
|
29. |
Graudu kaltes pie elevatoru darba torņiem |
100 |
|||||||||
|
30. |
Ietaišu būves pie elevatoriem graudu pieņemšanai no autotransporta |
20 |
39 |
6 |
3 |
6 |
54 |
15 |
6 |
21 |
5 |
|
31. |
Ietaišu būves pie elevatoriem graudu pieņemšanai no autotransporta ar divām līdz trim caurbrauktuvēm jucekņu attīrītāju un pārsviešanas telpas |
20 |
39 |
6 |
3 |
6 |
54 |
15 |
6 |
21 |
5 |
|
32. |
Ietaišu būves pie elevatoriem graudu pieņemšanai no autotransporta ar divām līdz trim caurbrauktuvēm savienojošā galerija starp jucekņu attīrītāju un pieņemšanu |
20 |
39 |
6 |
3 |
6 |
54 |
15 |
6 |
21 |
5 |
|
33. |
Atvieglotu konstrukciju ietaišu telpas pie elevatoriem graudu pieņemšanai no autotransporta ar divām caurbrauktuvēm |
100 |
|||||||||
|
34. |
Šķērstipa ietaises pa dzelzceļu pienākošo graudu pieņemšanai ar tvertnēm un galeriju, kas pieņemšanas ietaises savieno ar darba torņiem. Ietaises sastāv no dzelzsbetona pazemes daļas, ķieģeļu gala sienām, metāla garensienām, kas apšūtas ar azbestcementa loksnēm |
20 |
39 |
6 |
3 |
6 |
54 |
15 |
6 |
21 |
5 |
|
35. |
Pa dzelzceļu atvesto graudu garentipa pieņemšanas ietaišu galerijas, kas pieņemšanas ietaises savieno ar darba torņiem |
20 |
39 |
6 |
3 |
6 |
54 |
15 |
6 |
21 |
5 |
|
36. |
Dzelzsbetona izstrādājumu rūpnīcu atklātās pildvielu noliktavas ar transportieru galerijām, pārbēršanas ēkām, sasildīšanas bunkuriem, pieņemšanas un izkraušanas ierīcēm vai krānu ceļiem, kas paredzēti portāla krāniem |
30 |
26 |
4 |
2 |
9 |
41 |
17 |
4 |
21 |
8 |
|
37. |
Dzelzsbetona izstrādājumu rūpnīcu vēdekļveida pildvielu noliktavas ar lentveida transportieru galerijām, pieņemšanas ierīcēm, drupināšanas un šķirošanas nodaļām un zemkrānu estakādēm, tilta krāniem |
30 |
26 |
4 |
2 |
9 |
41 |
17 |
4 |
21 |
8 |
|
38. |
Dzelzsbetona izstrādājumu rūpnīcu cementa noliktavas, kas sastāv no silosveida dzelzsbetona tvertnēm ar virsējo sadales galeriju, padeves sistēmām un pieņemšanas ietaišu būves ar dzelzsbetona bunkuriem |
30 |
26 |
4 |
2 |
9 |
41 |
17 |
4 |
21 |
8 |
|
39. |
Ģipša rūpnīcu ģipšakmens noliktavas ar pieņemšanas un izkraušanas ietaisēm, pazemes un virszemes galerijām un drupināšanas ietaisēm |
30 |
26 |
4 |
2 |
9 |
41 |
17 |
4 |
21 |
8 |
|
40. |
Ģipša rūpnīcu silosveida
ģipša noliktavas ar sausā ģipša maisījuma un iepakošanas
cehu ēkām ar kompresoru stacijām un transformatoru |
30 |
26 |
4 |
2 |
9 |
41 |
17 |
4 |
21 |
8 |
|
41. |
Cementa dzirnavu bunkurveida etažeres ar ķieģeļu sienām, metāla bunkuriem un kāpnēm |
38 |
41 |
2 |
1 |
6 |
50 |
6 |
3 |
9 |
3 |
|
42. |
Cementa rūpnīcu izejvielu miltu maisīšanas silosi |
38 |
41 |
2 |
1 |
6 |
50 |
6 |
3 |
9 |
3 |
|
43. |
Šķembu rūpnīcu dzelzsbetona bunkuri šķembu iekraušanai dzelzceļa vagonos ar virsbunkuru galeriju un dzelzsbetona bunkuri atbirumiem |
46 |
17 |
1 |
0 |
32 |
50 |
0 |
0 |
0 |
4 |
|
44. |
Grants un smilts pārstrādes rūpnīcu pieņemšanas bunkuri ar dzelzsbetona karkasa konstrukcijām un būvtilpumu līdz 1200 m3 |
8 |
68 |
1 |
1 |
18 |
88 |
1 |
1 |
2 |
2 |
|
45. |
Grants un smilts pārstrādes rūpnīcu iekraušanas bunkuri un atbirumu bunkuri ar dzelzsbetona karkasa konstrukcijām un būvtilpumu līdz 700 m3 |
6 |
80 |
3 |
2 |
3 |
88 |
2 |
1 |
3 |
3 |
|
46. |
Stikla ražošanas rūpnīcu beramo materiālu noliktavas ar astoņām silosveida dzelzsbetona tvertnēm 12 m diametrā, 32,6 m augstumā, ar dzelzsbetona kolonnām, ķieģeļu un paneļu sienām un pieņemšanas ietaisēm |
22 |
68 |
1 |
1 |
3 |
73 |
1 |
3 |
4 |
1 |
|
47. |
Kaļķu rūpnīcu bunkuru tipa kaļķu noliktavas |
10 |
71 |
1 |
0 |
6 |
78 |
6 |
1 |
7 |
5 |
|
48. |
Kaļķu rūpnīcu bunkuru tipa nemalto kaļķu noliktavas |
10 |
74 |
0 |
1 |
3 |
78 |
6 |
1 |
7 |
5 |
|
49. |
Kaļķu rūpnīcu bunkuru tipa kaļķu karbonāta noliktavas |
9 |
72 |
1 |
1 |
4 |
78 |
4 |
3 |
7 |
6 |
|
50. |
Silikāta ķieģeļu rūpnīcu malto kaļķu bunkurveida noliktavu būves |
24 |
65 |
1 |
0 |
2 |
68 |
4 |
1 |
5 |
3 |
|
51. |
Keramzīta ražotņu gatavās produkcijas noliktavas ar saliekamā dzelzsbetona un tērauda karkasa konstrukcijām, ķieģeļu sienām un dzelzsbetona silosiem |
24 |
54 |
6 |
3 |
5 |
68 |
4 |
1 |
5 |
3 |
|
52. |
Kokmateriālu sagatavošanas ražotņu atkritumu bunkuri ar koka karkasa konstrukcijām pie lentes transportieru estakādēm |
12 |
36 |
5 |
5 |
3 |
49 |
30 |
1 |
31 |
8 |
|
53. |
Kokapstrādes rūpnīcu bunkuru ietaises ar dzelzsbetona karkasiem, ķieģeļu būvēm un metāla bunkuriem |
11 |
47 |
5 |
2 |
0 |
54 |
30 |
1 |
31 |
4 |
|
54. |
Kokapstrādes rūpnīcu bunkuru ietaises ar koka karkasiem, apšūtām koka karkasa būvēm un koka bunkuriem |
15 |
44 |
6 |
0 |
0 |
50 |
28 |
0 |
28 |
7 |
|
55. |
Celulozes un papīra rūpnīcu koka atkritumu (mizu, skaidu) bunkuru būves ar būvtilpumu līdz 400 m3 |
13 |
36 |
5 |
5 |
3 |
49 |
30 |
1 |
31 |
7 |
|
56. |
Celulozes un papīra rūpnīcu koka atkritumu (mizu, skaidu) bunkuru būves ar būvtilpumu, lielāku par 400 m3 |
12 |
36 |
5 |
5 |
3 |
49 |
30 |
1 |
31 |
8 |
|
57. |
Celulozes un papīra rūpnīcu skābju torņi ar dzelzsbetona konstrukcijām |
9 |
60 |
3 |
7 |
11 |
81 |
0 |
3 |
3 |
7 |
|
58. |
Celulozes un papīra rūpnīcu skābju torņi ar koka sienām |
9 |
58 |
3 |
7 |
11 |
79 |
0 |
4 |
4 |
8 |
|
59. |
Koksnes ķīmisko izstrādājumu ražotņu kokogļu noliktavas ar bunkuriem oglēm un galerijām |
18 |
39 |
5 |
5 |
13 |
62 |
13 |
3 |
16 |
4 |
|
60. |
Elevatoru augšējās savienojošās transportieru galerijas starp darba torni un silosu korpusu vai starp silosu korpusiem, kas sastāv no metāla konstrukciju karkasa, dzelzsbetona plātņu klāja un azbestcementa lokšņu sienām |
18 |
22 |
3 |
0 |
1 |
26 |
46 |
4 |
50 |
6 |
|
61. |
Elevatoru apakšējās savienojošās transportieru galerijas starp darba torni un silosu korpusu |
18 |
22 |
3 |
0 |
1 |
26 |
46 |
4 |
50 |
6 |
|
62. |
Elevatoru apakšējās savienojošās transportieru galerijas starp silosu korpusiem |
18 |
22 |
3 |
0 |
1 |
26 |
46 |
4 |
50 |
6 |
|
63. |
Skābbarības torņi |
9 |
60 |
3 |
7 |
11 |
81 |
0 |
3 |
3 |
7 |
|
64. |
Kompleksā ūdensvadu attīrīšanas staciju filtru un nosēdbaseinu būve ar dzelzsbetona vai ķieģeļu sienām, pārsegumiem, tilpnēm un ražīgumu 50000–80000 m3 diennaktī |
12 |
39 |
5 |
7 |
4 |
55 |
21 |
4 |
25 |
8 |
|
65. |
Kompleksā ūdensvadu attīrīšanas staciju filtru un nosēdbaseinu paviljonu būve ar dzelzsbetona vai ķieģeļu sienām, pārsegumiem, tilpnēm un ražīgumu 800000–160000 m3 diennaktī |
12 |
38 |
5 |
7 |
4 |
54 |
21 |
4 |
25 |
9 |
|
66. |
Kompleksā ūdensvadu attīrīšanas staciju filtru un nosēdbaseinu paviljonu būve ar dzelzsbetona vai ķieģeļu sienām, pārsegumiem, tilpnēm un ražīgumu 160000–320000 m3 diennaktī |
12 |
38 |
5 |
7 |
4 |
54 |
21 |
4 |
25 |
9 |
|
67. |
Ūdensvadu attīrīšanas staciju reaģentu saimniecības būve ar karkasu, sienām, tehnoloģiskajām tilpnēm, pārsegumiem un būves ražīgumu 50000–32000 m3 diennaktī |
15 |
32 |
4 |
4 |
9 |
49 |
22 |
5 |
27 |
9 |
|
68. |
Ūdensvadu attīrīšanas koagulācijas filtrstacija ar ķieģeļu sienām, dzelzsbetona filtriem, betona bāku, dzelzsbetona pārsegumu un ražīgumu 40–120 m3 diennaktī |
26 |
40 |
4 |
4 |
9 |
57 |
9 |
2 |
11 |
6 |
|
69. |
Ūdensvadu attīrīšanas filtru stacija bez koagulācijas, ar filtriem, sūkņu staciju, hlorētavu, dzelzsbetona šahtu, ķieģeļu sienām, dzelzsbetona filtriem, tilpnēm un ražīgumu 36–230 m3 diennaktī |
26 |
40 |
4 |
4 |
9 |
57 |
9 |
2 |
11 |
6 |
|
70. |
Pazemes saimniecisko ūdeņu un dzeramā ūdens mīkstināšanas stacija bez uzstādinājuma filtriem ar reaģentu saimniecību, filtru, otrā pacēluma sūkņu staciju, ražošanas un sadzīves telpām, sienām, tilpnēm, pārsegumiem un ražīgumu 2000–20000 m3 diennaktī |
19 |
38 |
4 |
4 |
14 |
60 |
7 |
6 |
13 |
8 |
|
71. |
Pazemes saimniecisko ūdeņu un dzeramā ūdens atfluorēšanas stacija ar reaģentu saimniecību, filtru, sūkņu kolonnām, pārsegumiem, segumiem tilpnēm un ražīgumu 5000–8000 m3 diennaktī |
20 |
39 |
4 |
5 |
14 |
62 |
6 |
4 |
10 |
8 |
|
72. |
Slēgto transformatoru apakšstacija |
22 |
37 |
20 |
4 |
4 |
65 |
5 |
3 |
18 |
5 |
|
73. |
Slēgto transformatoru apakšstaciju sadales punkts |
18 |
33 |
15 |
2 |
3 |
53 |
18 |
3 |
21 |
8 |
|
74. |
Transformatoru darbnīcas ar torni un eļļas saimniecību |
20 |
25 |
22 |
4 |
7 |
58 |
11 |
5 |
16 |
6 |
|
75. |
Transformatoru apakšstaciju kopējais vadības punkts |
20 |
25 |
22 |
4 |
7 |
58 |
11 |
5 |
16 |
6 |
|
76. |
Transformatoru apakšstaciju palīgnozīmes vienstāva būves |
20 |
25 |
22 |
4 |
7 |
58 |
11 |
5 |
16 |
6 |
|
77. |
Termoelektrostacijas ar jaudu 4000–25000 kW būves pazemes daļa |
24 |
35 |
6 |
5 |
12 |
58 |
12 |
6 |
18 |
0 |
|
78. |
Termoelektrostacijas ar jaudu, lielāku par 25000 kW, būves pazemes daļa |
26 |
34 |
6 |
5 |
5 |
50 |
19 |
5 |
24 |
0 |
|
79. |
Termoelektrostaciju galveno korpusu virszemes daļa |
14 |
28 |
10 |
7 |
16 |
61 |
12 |
5 |
17 |
8 |
|
80. |
Maksimālo slodžu ūdens sildīšanas katlumājas |
14 |
28 |
10 |
7 |
16 |
61 |
12 |
5 |
17 |
8 |
|
81. |
Galveno vadības pulšu galvenās sadales būves un dienesta korpusi |
14 |
28 |
10 |
7 |
16 |
61 |
12 |
5 |
17 |
8 |
|
82. |
Kurināmā atlaidināšanas un drupināšanas būves |
17 |
26 |
7 |
3 |
5 |
41 |
23 |
10 |
33 |
9 |
|
83. |
Slēgtās kurināmā izkraušanas būves |
32 |
31 |
4 |
3 |
12 |
50 |
12 |
0 |
12 |
6 |
|
84. |
Kurināmā padošanas pazemes galerijas |
28 |
32 |
1 |
3 |
4 |
40 |
28 |
4 |
32 |
0 |
|
85. |
Kurināmā pārbēršanas mezglu būves |
19 |
42 |
9 |
3 |
2 |
56 |
16 |
3 |
19 |
6 |
|
86. |
Ķīmiskās ūdens attīrīšanas būves |
21 |
23 |
8 |
4 |
30 |
65 |
4 |
3 |
7 |
7 |
|
87. |
Tehniskā ūdens apgādes krasta sūkņu staciju pazemes daļa |
22 |
38 |
0 |
2 |
27 |
67 |
8 |
3 |
11 |
0 |
|
88. |
Tehniskā ūdens apgādes krasta sūkņu staciju virszemes daļa |
0 |
34 |
3 |
5 |
25 |
67 |
14 |
4 |
18 |
15 |
|
89. |
Pārslēgšanas kameras pie sūkņu stacijām |
15 |
28 |
3 |
5 |
30 |
66 |
0 |
4 |
4 |
15 |
|
90. |
Elektrolīzeru būves |
17 |
31 |
10 |
4 |
13 |
58 |
10 |
6 |
16 |
9 |
|
91. |
Termoelektrostacijas (ar jaudu līdz 4000 kW) un tvaika turbīnu galvenie korpusi |
16 |
22 |
12 |
8 |
18 |
60 |
13 |
5 |
18 |
6 |
|
92. |
Elektrostaciju kurināmā drupināšanas nodaļu būves |
18 |
36 |
6 |
2 |
11 |
55 |
18 |
4 |
22 |
5 |
|
93. |
Elektrostaciju kolektoru būves |
19 |
27 |
9 |
3 |
10 |
49 |
18 |
6 |
24 |
8 |
|
94. |
Iebūvēto hidroelektrostaciju būves, uzmērītas pa iekšējo aprēķina kontūru |
20 |
31 |
8 |
3 |
8 |
50 |
14 |
8 |
22 |
8 |
|
95. |
Pazemes hidroelektrostaciju būves, uzmērītas pa iekšējo aprēķina kontūru |
24 |
35 |
6 |
5 |
12 |
58 |
12 |
6 |
18 |
0 |
|
96. |
Krasta hidroelektrostaciju būves, uzmērītas pa ārējo aprēķina kontūru |
21 |
31 |
8 |
6 |
11 |
56 |
11 |
5 |
16 |
7 |
|
97. |
Pie aizsprosta uzbūvēto hidroelektrostaciju būves, uzmērītas pa ārējo aprēķina kontūru, izņemot tās konstrukcijas, kuras uzņem spiedienu |
25 |
32 |
5 |
4 |
10 |
51 |
14 |
5 |
19 |
5 |
|
98. |
Laukakmeņu betona, betona un dzelzsbetona konstrukciju elektrostaciju ēku pazemes daļas |
24 |
35 |
6 |
5 |
12 |
58 |
12 |
6 |
18 |
0 |
|
99. |
Elektrostaciju virszemes daļas ar koka sienām |
18 |
37 |
7 |
6 |
11 |
61 |
10 |
5 |
15 |
6 |
|
100. |
Elektrostaciju virszemes daļas ar ķieģeļu sienām |
19 |
35 |
7 |
6 |
11 |
59 |
12 |
6 |
18 |
4 |
|
101. |
Hidroelektrostaciju ēku pazemes daļas pie aizsprostiem no koka, betona un laukakmeņu mūra |
24 |
35 |
6 |
5 |
12 |
58 |
12 |
6 |
18 |
0 |
|
102. |
Hidroelektrostaciju ēku pazemes daļas pie aizsprostiem no betona un dzelzsbetona saliekamām konstrukcijām |
24 |
35 |
6 |
5 |
12 |
58 |
12 |
6 |
18 |
0 |
|
103. |
Hidroelektrostaciju ēku virszemes daļas pie aizsprostiem ar mūra sienām, pārsegumiem un jumta konstrukcijām |
0 |
44 |
8 |
6 |
11 |
69 |
16 |
6 |
22 |
9 |
Tieslietu ministrs G.Bērziņš
37.pielikums
Ministru kabineta
2007.gada 20.marta noteikumiem Nr.182
Būves galvenā lietošanas veida noteikšanas kārtība
1. Būves galvenā lietošanas veida noteikšanai izmanto klasifikāciju (šī pielikuma 12.punkts), kas sastāv no:
1.1. 2 sekcijas (viencipara zīme);
1.2. 6 nodaļas (divciparu zīme);
1.3. 20 grupas (trīsciparu zīme);
1.4. 46 klases (četrciparu zīme).
2. Būves galvenā lietošanas veida noteikšanai:
2.1. būves iedala ēkās un inženierbūvēs;
2.2. sekciju ietvaros būves diferencē pēc to specifiskā lietojuma (piemēram, komercēkas, ceļu būves, hidrobūves, cauruļvadi);
2.3. būves izvietojums, īpašuma tiesības uz to un institūcija, kurai tā pieder, netiek uzskatīti par kritērijiem, pēc kuriem nosaka būves galveno lietošanas veidu;
2.4. inženierbūves klasificēšanai izmanto projekta datus, kas nosaka to lietošanas veidu.
3. Galvenā lietošanas veida noteikšanai:
3.1. par ēku nosaka atsevišķu, ilglaicīgi lietojamu apjumtu būvi, kurā var iekļūt cilvēki un kura ir noderīga vai paredzēta cilvēku un dzīvnieku patvērumam vai priekšmetu turēšanai;
3.2. par inženierbūvi nosaka visas būves, kas netiek klasificētas kā ēkas (piemēram, sliežu ceļus, ceļus, tiltus, šosejas, lidostu skrejceļus, dambjus).
4. Būvju kadastrālajā uzmērīšanā galveno lietošanas veidu nosaka patstāvīgai būvei.
5. Par patstāvīgu ēku nosaka jebkuru brīvi stāvošu ēku. Saistītās ēkās (piemēram, dvīņu vai terašu tipa ēkās) par patstāvīgu ēku uzskata jebkuru to sekciju, kas atdalīta no citām sekcijām ar ugunsdrošu sienu, kas sniedzas no jumta līdz pagrabam.
6. Ja nav izbūvēta ugunsdroša siena, savstarpēji savienotas ēku sekcijas būvju kadastrālajā uzmērīšanā tiek uzskatītas par patstāvīgām ēkām, ja tām ir atsevišķa ieeja, kā arī sava labierīcību sistēma, un tās ir patstāvīgi izmantojamas.
7. Nosakot būvei galveno lietošanas veidu:
7.1. par ēkām tiek uzskatītas arī patstāvīgi izmantojamas pazemes būves, kurās var iekļūt cilvēki un kuras ir noderīgas vai paredzētas cilvēku un dzīvnieku patvērumam vai priekšmetu turēšanai (piemēram, pazemes patvertnes, pazemes slimnīcas, pazemes tirdzniecības centri un darbnīcas, pazemes garāžas);
7.2. ēkas iedala dzīvojamās mājās un nedzīvojamās ēkās;
7.3. par dzīvojamo māju uzskata būvi, kurā vismaz puse no platības tiek izmantota dzīvošanai. Ja dzīvošanai tiek izmantots mazāk par pusi no ēkas kopējās platības, tā tiek noteikta kā nedzīvojamā ēka saskaņā ar tās projektā noteikto lietošanas veidu;
7.4. par nedzīvojamo ēku uzskata būvi, kura netiek izmantota vai nav paredzēta dzīvošanai. Ja vismaz puse no ēkas kopējās platības tiek izmantota dzīvošanai, tā tiek noteikta kā dzīvojamā māja.
8. Ēkas galvenā lietošanas veida noteikšanai izmanto ēkas kopējo platību un telpu grupas kopējo platību.
9. Galveno lietošanas veidu nosaka atsevišķai būvei (piemēram, ēka, ceļš, cauruļvads).
10. Ja kompleksās būves sastāv no vairākām ēkām, katru no tām klasificē kā atsevišķu vienību. Ja, piemēram, skola sastāv no mācību ēkas un mītnes ēkas, mācību ēku iekļauj klasē 1263, bet mītnes ēku klasē 1130.
11. Būves, kas tiek izmantotas vai projektētas vairākiem mērķiem (piemēram, kombinēta dzīvojamā, viesnīcas un biroju ēka), iekļauj vienā noteiktā klasifikācijas pozīcijā pēc to galvenā lietošanas veida. Galveno lietošanas veidu nosaka šādi:
11.1. aprēķina kopējās platības procentuālo sadalījumu pa atsevišķiem lietošanas veidiem un iegūto rezultātu attiecina uz noteiktām klasifikācijas pozīcijām;
11.2. būvi klasificē pēc metodes "no augšas uz leju". To vispirms attiecina uz ēkas vai inženierbūves viencipara sekciju, ņemot vērā lielāko kopējās platības daļu, pēc tam – uz to divciparu nodaļu (dzīvojamās mājas, nedzīvojamās ēkas, transporta infrastruktūras objekti), kurai attiecīgajā sekcijā ir lielākā kopējās platības daļa. Nākamajā pakāpē to attiecina uz to trīsciparu grupu, kurai iepriekš noteiktajā nodaļā ir lielākā kopējās platības daļa, pēc tam − uz to četrciparu klasi, kurai iepriekš noteiktajā grupā ir lielākā kopējās platības daļa.
Ēkas galvenā lietošanas veida noteikšanas piemērs
Ēkas kopējā platība sadalīta šādi:
|
Telpu grupas lietošanas veids |
Procentos no ēkas kopējās platības |
Klase |
|
Četri dzīvokļi Kredītiestādes birojs Aptieka un veikali Bibliotēka Ārsta pieņemamās telpas |
30 % 10 % 20 % 30 % 10 % |
1122 1220 1230 1262 1264 |
Šajā gadījumā ēku nepieciešams klasificēt:
1. divciparu nodaļā 12 "Nedzīvojamās ēkas", jo nedzīvojamās telpas aizņem lielāko ēkas platības daļu (70 %),
2. trīsciparu grupā 126 "Plašizklaides pasākumu, izglītības vai veselības aprūpes iestāžu ēkas", jo tai atbilst lielākā ēkas platības daļa (40 %) nodaļas 12 ietvaros,
3. četrciparu klasē 1262 "Muzeji un bibliotēkas", jo tai atbilst lielākā ēkas platības daļa (30 %) grupas 126 ietvaros.
12. Klasifikācijas struktūra:
|
1 |
ĒKAS |
||||||
|
11 |
Dzīvojamās mājas |
||||||
|
110 |
1101 |
Dzīvojamo māju palīgēkas Dzīvojamo māju palīgēkas |
|||||
|
111 |
1110 |
Viena dzīvokļa mājas Viena dzīvokļa mājas |
|||||
|
112 |
1121 1122 |
Divu vai vairāku dzīvokļu mājas Divu dzīvokļu mājas Triju un vairāku dzīvokļu mājas |
|||||
|
113 |
1130 |
Dažādu sociālo grupu kopdzīvojamās mājas Dažādu sociālo grupu kopdzīvojamās mājas |
|||||
|
12 |
Nedzīvojamās ēkas |
||||||
|
120 |
1201 |
Nedzīvojamo ēku palīgēkas Nedzīvojamo ēku palīgēkas |
|||||
|
121 |
1211 1212 |
Viesnīcas un tām līdzīga lietojuma ēkas Viesnīcu ēkas Citas īslaicīgas apmešanās ēkas |
|||||
|
122 |
1220 |
Biroju ēkas Biroju ēkas |
|||||
|
123 |
1230 |
Vairumtirdzniecības un mazumtirdzniecības ēkas Vairumtirdzniecības un mazumtirdzniecības ēkas |
|||||
|
124 |
1241 1242 |
Satiksmes un sakaru ēkas Sakaru ēkas, stacijas, termināļi un ar tām saistītās ēkas Garāžu ēkas |
|||||
|
125 |
1251 1252 |
Rūpnieciskās ražošanas ēkas un noliktavas Rūpnieciskās ražošanas ēkas Rezervuāri, bunkuri, silosi un noliktavas |
|||||
|
126 |
1261 1262 1263 1264 1265 |
Plašizklaides pasākumu, izglītības vai veselības Plašizklaides pasākumu ēkas Muzeji un bibliotēkas Skolas, universitātes un zinātniskās pētniecības ēkas Ārstniecības vai veselības aprūpes iestāžu ēkas Sporta ēkas |
|||||
|
127 |
1271 1272 1273 1274 |
Citas nedzīvojamās ēkas Lauku saimniecību nedzīvojamās ēkas Kulta ēkas Vēsturiskie vai aizsargājamie pieminekļi Citas iepriekš neklasificētas ēkas |
|||||
|
2 |
INŽENIERBŪVES |
||||||
|
21 |
Transporta būves |
||||||
|
211 |
2111 2112 |
Autoceļi un ielas Autoceļi Ielas |
|||||
|
212 |
2121 2122 |
Sliežu ceļi Dzelzceļi Pilsētas sliežu ceļi |
|||||
|
213 |
2130 |
Lidlauku skrejceļi Lidlauku skrejceļi |
|||||
|
214 |
2141 2142 |
Tilti, estakādes un tuneļi Tilti un estakādes Tuneļi |
|||||
|
215 |
2151 2152 2153 |
Ostas, ūdensceļi, dambji un citas hidrobūves Ostas un kuģojamie kanāli Dambji Akvedukti, apūdeņošanas un kultivācijas hidrobūves |
|||||
|
22 |
Cauruļvadi, sakaru un elektropārvades līnijas |
||||||
|
221 |
2211 2212 2213 2214 |
Maģistrālie
cauruļvadi, maģistrālās sakaru un Maģistrālie naftas un gāzes cauruļvadi Maģistrālie ūdens cauruļvadi Maģistrālās sakaru līnijas Maģistrālās elektropārvades līnijas |
|||||
|
222 |
2221 2222 2223 2224 |
Vietējie cauruļvadi un kabeļi Vietējie gāzapgādes cauruļvadi Vietējie ūdensapgādes cauruļvadi Vietējie notekūdeņu cauruļvadi Vietējie elektrokabeļi un sakaru kabeļi |
|||||
|
23 |
Rūpniecības kompleksās būves |
||||||
|
230 |
2301 2302 2303 2304 |
Rūpniecības kompleksās būves Iežguves būves Elektrostaciju būves Ķīmiskās rūpniecības būves Iepriekš neklasificētas smagās rūpniecības būves |
|||||
|
24 |
Citas inženierbūves |
||||||
|
241 |
2411 2412 |
Sporta un atpūtas būves Sporta laukumi Citas sporta un atpūtas būves |
|||||
|
242 |
2420 |
Citas iepriekš neklasificētas inženierbūves Citas iepriekš neklasificētas inženierbūves |
|||||
Tieslietu ministrs G.Bērziņš