
Jelgavas pilsētas domes lēmumi: Šajā laidienā 2 Pēdējās nedēļas laikā 0 Visi
Jelgavas valstspilsētas pašvaldības iestādes
"Centrālā pārvalde" lēmums Nr. 2.1-26.3/4491
Jelgavā 2024. gada 31. oktobrī
Detālplānojuma nekustamajam īpašumam Dobeles šosejā 118, Jelgavā, apstiprināšana
Jelgavas valstspilsētas pašvaldības (turpmāk – Pašvaldība) iestādē "Centrālā pārvalde" 2024. gada 28. augustā ir saņemts detālplānojuma nekustamajam īpašumam Dobeles šosejā 118, Jelgavā, (kadastra Nr. 0900 030 0378, platība 173 090 m2) (turpmāk – Detālplānojums) izstrādātājas SIA "METRUM" iesniegums (reģ. Nr. 2.1-26.3/24/4491) ar lūgumu apstiprināt Detālplānojuma projektu.
Ar Pašvaldības administrācijas 2022. gada 16. februāra lēmumu Nr. 2.1-26.3/304 "Detālplānojuma izstrādes uzsākšana nekustamajam īpašumam Dobeles šosejā 118, Jelgavā" tika uzsākta Detālplānojuma izstrāde. Detālplānojuma īstenotājs ir nekustamā īpašuma Dobeles šosejā 118, Jelgavā, īpašnieks SIA "Svētes krasti".
Detālplānojuma risinājumi paredz teritoriju sadalīt 74 (septiņdesmit četrās) jaunās zemes vienībās, no kurām 5 (piecas) zemes vienības paredzētas plānotajām ielām, 3 (trīs) zemes vienības paredzētas koplietošanas novadgrāvja nodalīšanai, 3 (trīs) publiskai ārtelpai, 62 (sešdesmit divas) zemes vienības paredzētas savrupmāju apbūvei un viena zemes vienība publiskai apbūvei.
Pašvaldības iestāde "Centrālā pārvalde" 2024. gada 23. maijā pieņēma lēmumu Nr. 2.1-26.3/2435 par Detālplānojuma projekta nodošanu publiskajai apspriešanai un atzinumu saņemšanai. Publiskā apspriešana norisinājās no 2024. gada 30. maija līdz 2024. gada 21. jūnijam neklātienes formā (attālināti).
Publiskās apspriešanas sanāksme video konferences režīmā ZOOM vidē notika 2024. gada 13. jūnijā un sanāksme par publiskās apspriešanas laikā saņemtajiem priekšlikumiem un institūciju atzinumiem norisinājās video konferences režīmā ZOOM vidē 2024. gada 16. augustā.
Sanāksmju protokoli un informācija par Detālplānojuma projekta publiskās apspriešanas norisi un saņemtajiem institūciju atzinumiem ietverti Detālplānojuma izstrādes vadītāja ziņojumā "Par detālplānojuma nekustamajam īpašumam Dobeles šosejā 118, Jelgavā projekta publiskās apspriešanas rezultātiem", kas publicēts valsts vienotajā ģeotelpiskās informācijas portālā https://geolatvija.lv/geo/tapis#document_23102.
Ņemot vērā iepriekš minēto un saskaņā ar Teritorijas attīstības plānošanas likuma 29. pantu, Ministra kabineta 2014. gada 14. oktobra noteikumu Nr. 628 "Noteikumi par pašvaldību teritorijas attīstības plānošanas dokumentiem" 119.1. apakšpunktu, 124 ., 125. punktu un Jelgavas valstspilsētas pašvaldības 2023. gada 23. februāra saistošo noteikumu Nr. 23-1 "Jelgavas valstspilsētas pašvaldības nolikums" 20. punktu,
Jelgavas valstspilsētas pašvaldības iestāde "Centrālā pārvalde" NOLEMJ:
1. Apstiprināt detālplānojuma projektu nekustamajam īpašumam Dobeles šosejā 118 (kadastra Nr. 0900 030 0378, platība 173 090 m2), Jelgavā (turpmāk – Detālplānojums).
2. Nekustamā īpašuma Dobeles šosejā 118, Jelgavā, īpašniekam SIA "Svētes krasti" slēgt administratīvo līgumu ar Jelgavas valstspilsētas pašvaldības iestādi "Centrālā pārvalde" par Detālplānojuma īstenošanu atbilstoši administratīvā līguma projektam (pielikumā) pēc šī lēmuma apstrīdēšanas termiņa beigām.
3. Publicēt paziņojumu par Detālplānojuma apstiprināšanu Teritorijas attīstības plānošanas informācijas sistēmā un pašvaldības tīmekļa vietnē www.jelgava.lv.
4. Kontroli par lēmuma izpildi uzdot Detālplānojuma projekta izstrādes vadītājam.
Saskaņā ar Teritorijas attīstības un plānošanas likuma 30. panta pirmo daļu, detālplānojumu Administratīvā procesa likumā noteiktajā kārtībā var pārsūdzēt administratīvajā tiesā mēneša laikā pēc tam, kad ir publicēts paziņojums par detālplānojuma apstiprināšanu, pieteikumu iesniedzot Administratīvās rajona tiesas namā pēc pieteicēja adreses (fiziskās personas – pēc deklarētās dzīvesvietas adreses, juridiskās personas – pēc juridiskās adreses) vai nekustamā īpašuma atrašanās vietas.
Detālplānojuma projekts pieejams valsts vienotajā ģeotelpiskās informācijas portālā https://geolatvija.lv/geo/tapis#document_30869.
Jelgavas valstspilsētas pašvaldības izpilddirektore I. Škutāne
Pielikums
Jelgavas valstspilsētas pašvaldības iestādes
"Centrālā pārvalde"
2024. gada 31. oktobra lēmumam Nr. 2.1-26.3/4491
PROJEKTS
ADMINISTRATĪVAIS LĪGUMS
Par detālplānojuma nekustamajam īpašumam Dobeles šosejā 118
(kad. Nr. 0900 030 0378), Jelgavā
īstenošanas kārtību
| Jelgavā, |
Datums skatāms laika zīmogā |
Jelgavas valstspilsētas pašvaldības iestāde "Centrālā pārvalde", reģistrācijas Nr. 90000042516, adrese: Lielā iela 11, Jelgava, LV-3001, Jelgavas valstspilsētas pašvaldības izpilddirektores Irēnas Škutānes personā, kura rīkojas saskaņā ar Pašvaldību likumu un Jelgavas valstspilsētas pašvaldības 2023. gada 23. februāra saistošajiem noteikumiem Nr. 23-1 "Jelgavas valstspilsētas pašvaldības nolikums" (turpmāk – Pašvaldība) no vienas puses un
SIA "Svētes krasti", reģ. Nr. 40203296643, juridiskā adrese Lielā iela 6, Jelgava, LV-3001, valdes locekļa Jāņa Melbārža personā, kurš rīkojas saskaņā ar statūtiem (turpmāk – Zemes īpašnieks), no otras puses, turpmāk tekstā katrs atsevišķi un kopā saukti Puse un Puses,
pamatojoties uz Teritorijas attīstības plānošanas likuma 31. panta pirmo un otro daļu, Jelgavas valstspilsētas pašvaldības administrācijas 2024. gada 31. oktobra lēmumu Nr. 2.1-26.3/4491 "Detālplānojuma projekta nekustamajam īpašumam Dobeles šosejā 118 (kad. Nr. 0900 030 0378), Jelgavā, apstiprināšana", Jelgavas pilsētas teritorijas plānojuma 2009.–2021. gadam grozījumiem (apstiprināti ar Jelgavas pilsētas domes 2017. gada 23. novembra lēmumu Nr. 13/2 "Jelgavas pilsētas teritorijas plānojuma 2009.–2021. gadam grozījumu apstiprināšana un saistošo noteikumu Nr. 17-32 "Teritorijas izmantošanas un apbūves noteikumu un grafiskās daļas apstiprināšana" izdošana") noslēdz šādu līgumu (turpmāk – Līgums):
1. LĪGUMA PRIEKŠMETS UN TERMIŅŠ
Līgums nosaka detālplānojuma nekustamajam īpašumam Dobeles šosejā 118, Jelgavā, (kadastra Nr. 09000300378, platība 173 090 m2) (turpmāk – Detālplānojums) īstenošanas kārtību un izpildes termiņus.
2. DETĀLPLĀNOJUMA ĪSTENOŠANAS KĀRTĪBA UN IZPILDES TERMIŅI
2.1. Zemes īpašnieks uzsāk Detālplānojuma īstenošanu līdz 2025. gada 30. jūnijam un to īsteno līdz 2035. gada 31. decembrim.
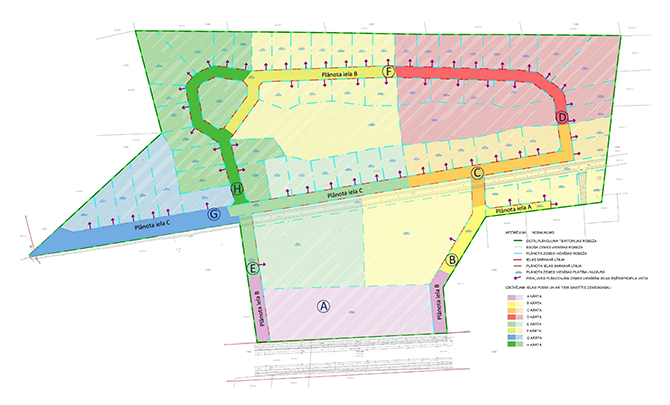
2.2. Detālplānojums tiek īstenots vairākās kārtās atbilstoši situācijas plāna skicei (pielikumā). Apbūves kārtas un to secību precizē būvniecības ieceres dokumentācijā. Par kārtām sākot no B kārtas, tiek slēgtas atsevišķas Vienošanās, kas tiek pievienotas šim administratīvajam līgumam.
2.3. Zemes īpašnieks A kārtā:
2.3.1. veic plānoto zemes vienību Nr. 65, 66 un 67 nodalīšanu;
2.3.2. veic būvprojekta/u izstrādi jaunveidojamo koplietošanas piebraucamo ceļu un inženiertīklu izbūvei, pieslēgumiem Dobeles šosejai. Secīgi vispirms projektē un izbūvē konkrētajai apbūves kārtai nepieciešamos piebraucamo ceļu posmus;
2.3.3. pirmajā kārtā izbūvē koplietošanas piebraucamos ceļus ar vismaz šķembu segumu B ielas posmus (plānotās zemes vienības Nr. 71 un 72), un pieejamos inženiertīklus, ietverot arī pievadu izbūvi un ierīkojot pagaidu apgriešanās laukumus strupceļu galos, kā arī lietus ūdeņu novades sistēmas (grāvjus vai ievalkas), nodrošinot teritorijā būvniecībai labvēlīgus mitruma apstākļus;
2.3.4. Teritorijas turpmākā būvprojektēšana un zemes ierīcība veicama secīgi, pa teritorijas daļām/apbūves kārtām (teritorijas daļām vai atsevišķām jaunveidojamajām zemes vienībām, t.sk. apbūves kārtā iekļaujot arī tās īstenošanai nepieciešamo satiksmes un inženiertehnisko apgādes infrastruktūru), nodrošinot projekta attīstību un atbilstoši pakāpenisku infrastruktūras izveidi, ko nosaka būvniecības ieceres dokumentācijā.
2.4. Detālplānojuma kārtas īstenošana uzskatāma par pabeigtu brīdī, kad Zemes īpašnieks atbilstoši būvniecību regulējošo normatīvo aktu prasībām ir nodevis ekspluatācijā Detālplānojuma teritorijā izbūvēto koplietošanas piebraucamo ceļu un inženiertīklus un veicis zemes vienību sadali.
2.5. Zemes īpašnieks Detālplānojuma kārtu realizācijas secību var mainīt var veikt vienlaicīgi.
2.6. Zemes īpašnieks apmaksā visus ar Detālplānojuma īstenošanu saistītos izdevumus.
3. PUŠU TIESĪBAS UN PIENĀKUMI
3.1. Zemes īpašnieks apņemas:
3.1.1. veikt Detālplānojuma īstenošanu Līgumā noteiktajā kārtībā un termiņos;
3.1.2. īstenot Detālplānojumu atbilstoši būvniecību regulējošo normatīvo aktu prasībām, tai skaitā saistošajiem noteikumiem par Jelgavas valstspilsētas administratīvās teritorijas izmantošanu un apbūvi, kā arī atbilstoši normatīvajiem aktiem, kas regulē vides aizsardzību un zemes ierīcību;
3.1.3. Detālplānojuma īstenošanas gaitā un savrupmāju apbūves gaitā nepasliktināt vides kvalitāti blakus savrupmāju teritorijās;
3.1.4. informēt Pašvaldību par Detālplānojuma īstenošanas procesu un Līguma 3.1.7. apakšpunktā minētajām darbībām uzreiz pēc to izpildes;
3.1.5. informēt Pašvaldību par kavējošiem vai traucējošiem faktoriem, kas var ietekmēt Detālplānojuma īstenošanu Līgumā noteiktajos termiņos;
3.1.6. Pašvaldības noteiktajā termiņā sniegt informāciju un paskaidrojumus par Līguma nosacījumu izpildē konstatētajiem trūkumiem un tos novērst;
3.1.7. noslēgt ar Detālplānojuma teritorijā izveidoto zemes vienību pircējiem vienošanos par izbūvētās transporta infrastruktūras turpmāko piederību (īpašumtiesībām) un apsaimniekošanu;
3.1.8. informēt nākamos zemes vienību īpašniekus par Līguma esamību un viņu pienākumu noslēgt ar Pašvaldību Līguma 3.3.2. apakšpunktā minēto pārjaunojuma līgumu;
3.1.9. ja zemes vienību apbūve netiek veikta, Detālplānojuma teritoriju uzturēt kārtībā.
3.2. Zemes īpašnieks ir atbildīgs par Pašvaldībai nodarītajiem zaudējumiem, ja tie radušies Zemes īpašnieka darbības vai bezdarbības, tai skaitā rupjas neuzmanības, ļaunā nolūkā izdarīto darbību vai nolaidības rezultātā.
3.3. Pašvaldība apņemas:
3.3.1. sniegt Zemes īpašniekam Līguma izpildei nepieciešamo informāciju, kas ir Pašvaldības rīcībā;
3.3.2. noslēgt pārjaunojuma līgumu ar personām, kuras iegūst īpašuma tiesības uz Detālplānojumā ietverto nekustamo īpašumu Detālplānojuma kārtu, kuras vēl nav realizētas Līguma darbības laikā, teritorijās;
3.3.3. nodrošināt Detālplānojuma īstenošanas uzraudzību saskaņā ar normatīvajiem aktiem.
3.4. Pašvaldībai ir tiesības pieprasīt no Zemes īpašnieka informāciju un paskaidrojumus par konstatētajiem pārkāpumiem Līguma nosacījumu izpildē un uzdot tos novērst.
3.5. Ja Zemes īpašnieks neievēro Detālplānojuma īstenošanas termiņus bez attaisnojoša iemesla, tad Pašvaldībai ir tiesības izskatīt jautājumu par Detālplānojuma atzīšanu par spēku zaudējušu.
3.6. Ja Līgums netiek pārjaunots ar personām, kuras iegūst īpašuma tiesības uz Detālplānojumā ietverto nekustamo īpašumu Līguma darbības laikā un tas būtiski ietekmē turpmāko Detālplānojuma īstenošanu, Pašvaldībai ir tiesības apturēt Detālplānojuma īstenošanu un izskatīt jautājumu par tā atzīšanu par spēku zaudējušu.
4. LĪGUMA GROZĪŠANAS UN IZBEIGŠANAS KĀRTĪBA
4.1. Līgumu var grozīt vai izbeigt Pusēm savstarpēji vienojoties. Jebkuras Līguma izmaiņas vai papildinājumi tiek noformēti rakstveidā un kļūst par Līguma neatņemamu sastāvdaļu.
4.2. Pašvaldībai ir tiesības vienpusēji izbeigt Līgumu, ja Zemes īpašnieks neievēro Līguma 2. sadaļā un 3.1. apakšpunktā noteiktās prasības un/vai normatīvos aktus, kas ir saistīti ar Līguma izpildi. Šādā gadījumā Pašvaldība nosūta Zemes īpašniekam rakstisku brīdinājumu par konstatēto Līguma noteikumu pārkāpumu, nosakot saprātīgu termiņu tā novēršanai. Gadījumā, ja Zemes īpašnieks termiņā nav novērsis pārkāpumu, Līgums tiek uzskatīts par izbeigtu, neslēdzot atsevišķu vienošanos. Par to tiek paziņots Zemes īpašniekam, iesniedzot vienpusēju atkāpšanās paziņojumu, kurā noteikts termiņš, ar kuru Līgums tiek izbeigts.
4.3. Līgums zaudē spēku, ja Detālplānojums tiek atzīts par spēku zaudējušu.
5. NEPĀRVARAMA VARA
5.1. Puses tiek atbrīvotas no atbildības par Līguma pilnīgu vai daļēju neizpildi, ja šāda neizpilde radusies nepārvaramas varas vai ārkārtēja rakstura apstākļu rezultātā, kuru darbība sākusies pēc Līguma noslēgšanas un kurus nevarēja iepriekš ne paredzēt, ne novērst. Pie nepārvaramas varas vai ārkārtēja rakstura apstākļiem pieskaitāmi: stihiskas nelaimes, avārijas, katastrofas, epidēmijas, kara darbība, streiki, iekšējie nemieri, blokādes, varas un pārvaldes institūciju rīcība, normatīvo aktu, kas būtiski ierobežo un aizskar Pušu tiesības un ietekmē uzņemtās saistības, pieņemšana un stāšanās spēkā.
5.2. Pusei, kura atsaucas uz nepārvaramas varas vai ārkārtēja rakstura apstākļu darbību, nekavējoties, bet ne vēlāk kā 3 (trīs) darba dienu laikā par šādiem apstākļiem rakstveidā jāziņo otrai Pusei. Ziņojumā jānorāda, kādā termiņā būs iespējama un paredzama viņa Līgumā paredzēto saistību izpilde, un, pēc pieprasījuma, šādam ziņojumam ir jāpievieno izziņa, kuru izsniegusi kompetenta institūcija un kura satur ārkārtējo apstākļu darbības apstiprinājumu un to raksturojumu. Nesavlaicīga paziņojuma gadījumā Puse netiek atbrīvota no Līguma saistību izpildes.
5.3. Nepārvaramas varas vai ārkārtēja rakstura apstākļu iestāšanās gadījumā Līguma darbības termiņš tiek pārcelts atbilstoši šādu apstākļu darbības laikam vai arī Puses vienojas par Līguma pārtraukšanu.
6. STRĪDU RISINĀŠANAS KĀRTĪBA
Jebkuras nesaskaņas, domstarpības vai strīdus saistībā ar Līgumu Puses risina savstarpēju sarunu ceļā. Gadījumā, ja Puses 30 (trīsdesmit) dienu laikā nespēj vienoties, strīds risināms tiesā, saskaņā ar normatīvajiem aktiem.
7. NOSLĒGUMA JAUTĀJUMI
7.1. Līguma spēkā stāšanās datums ir pēdējā pievienotā droša elektroniskā paraksta un tā laika zīmoga datums. Līgums ir saistošs Pušu tiesību un saistību pārņēmējiem.
7.2. Zemes īpašnieks ir informēts, ka Pašvaldība ir ieviesusi un darbojas saskaņā ar Kvalitātes pārvaldības sistēmas ISO standarta 9001, Vides pārvaldības sistēmas ISO standarta 14001 un Energopārvaldības sistēmas ISO 50001-2012 nosacījumiem, nodrošinot kvalitatīvus pakalpojumus, sekmējot dabas resursu ilgtspējīgu izmantošanu, veicinot videi draudzīgu un modernu tehnoloģiju izmantošanu.
7.3. Pašvaldības kontaktpersona Līguma izpildes laikā ir Dace Stūre, tālrunis: 63005493, e-pasts: dace.sture@jelgava.lv.
7.4. Zemes īpašnieka kontaktpersona Līguma izpildes laikā ir ……., e-pasts: …………...
7.5. Puses apņemas informēt savas kontaktpersonas, kuru personu dati (identificējoša informācija, kontaktinformācija) tiek nodoti otrai Pusei, par to, ka tās personas dati tiek apstrādāti šādam nolūkam, kā arī informēt par otras Puses nosaukumu, kontaktinformāciju un mērķi, kādiem nodotie personas dati varētu tikt izmantoti, t.i. Līguma saistību izpildei, kā arī par iespēju vērsties pie attiecīgās Puses, lai iegūtu papildu informāciju vai īstenotu savas kā datu subjekta tiesības.
7.6. Jautājumos, kas nav atrunāti Līgumā, Puses rīkosies saskaņā ar normatīvajiem aktiem.
7.7. Līgums sagatavots un parakstīts elektroniska dokumenta veidā, katra Puse Līgumu glabā savā lietvedībā elektroniskā dokumenta formā.
Pielikumā: Situācijas plāna skice.
8. PUŠU REKVIZĪTI UN PARAKSTI
| Jelgavas valstspilsētas pašvaldības iestāde "Centrālā pārvalde" Reģistrācijas Nr. 90000042516 juridiskā adrese: Lielā iela 11, Jelgava, LV-3001 |
SIA "Svētes krasti" Reģistrācijas Nr. 40203296643 Juridiskā adrese: Lielā iela 6, Jelgava, LV-3001 |
|
|
I. Škutāne |
J. Melbārdis |
ŠIS DOKUMENTS IR ELEKTRONISKI PARAKSTĪTS AR DROŠU ELEKTRONISKO PARAKSTU
UN SATUR LAIKA ZĪMOGU
Pielikums
Administratīvajam līgumam par detālplānojuma nekustamajam īpašumam
Dobeles šosejā 118, Jelgavā, (kadastra Nr. 09000300378), Jelgavā, īstenošanas kārtību
Situācijas plāna skice.