
Jūrmalas pilsētas domes saistošie noteikumi: Šajā laidienā 3 Pēdējās nedēļas laikā 6 Visi
Jūrmalas domes saistošie noteikumi Nr. 11
Jūrmalā 2024. gada 24. aprīlī (prot. Nr. 6, 19. p.)
Par Jūrmalas valstspilsētas pludmales un peldvietu izmantošanu Rīgas līča piekrastē
Precizēti ar Jūrmalas domes
2024. gada 27. jūnija lēmumu Nr. 278 (prot. Nr. 9, 27. p.)
Izdoti saskaņā ar Pašvaldību likuma
45. panta pirmās daļas 2. punktu
I. Vispārīgie jautājumi
1. Saistošie noteikumi "Par Jūrmalas valstspilsētas pludmales un peldvietu izmantošanu Rīgas līča piekrastē" (turpmāk – Noteikumi) nosaka:
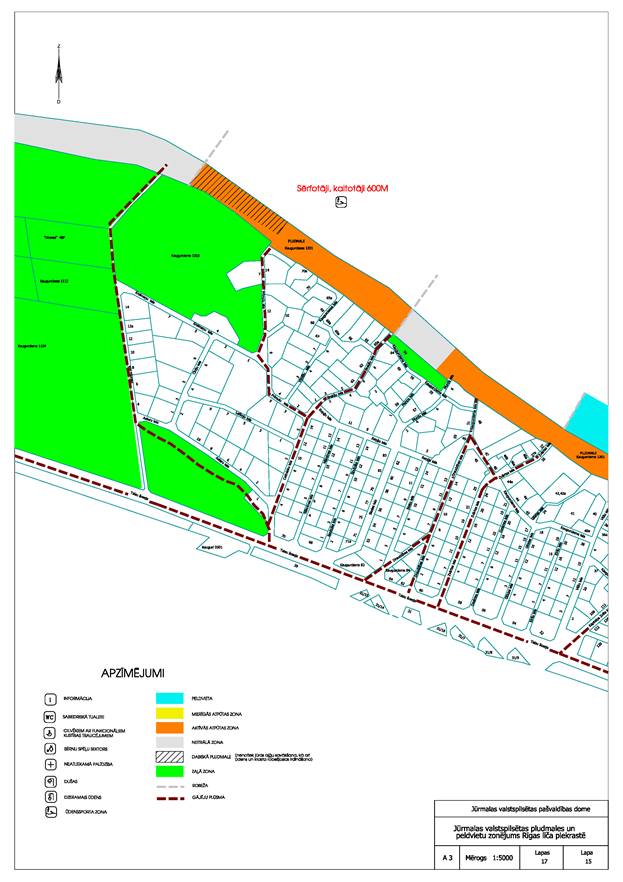
1.1. Rīgas līča pludmales (turpmāk – pludmale) zonu sadalījumu un Rīgas līča peldvietu (turpmāk – peldvieta) robežas (1. pielikums),
1.2. pludmales un peldvietu izmantošanu,
1.3. sezonas objektu, tajā skaitā pirmās grupas būvju, saskaņošanas, izvietošanas un izmantošanas kārtību pludmalē,
1.4. atļaujas saņemšanas kārtību iebraukšanai pludmalē ar mehāniskajiem transportlīdzekļiem,
1.5. atbildību par Noteikumu pārkāpšanu.
2. Noteikumos lietotie termini:
2.1. aktīvās atpūtas zona – paredzēta aktīvai atpūtai, tostarp bumbas, badmintona, volejbola, futbola un citām pludmalei piemērotām, arī sportiskām, aktivitātēm. Šajā zonā var atrasties bērnu rotaļu laukumi, sezonas objekti un īpaši aprīkotas sporta zonas (trenažieru aprīkojums, volejbola, futbola laukumi, tribīnes, laukumi sporta spēļu spēlēšanai un citām sporta aktivitātēm). Aktīvās atpūtas zonās pēc attiecīgas Jūrmalas valstspilsētas administrācijas (turpmāk – Centrālā administrācija) atļaujas saņemšanas pieļaujama arī publisku pasākumu organizēšana (diskotēkas, vasaras koncerti, sporta sacensības un citas aktivitātes vai pasākumi) un tirdzniecība;
2.2. gājēju koridors – teritorija pludmalē pretī ielām un nobrauktuvēm, 25 metrus no ielas ass uz abām pusēm, izņēmums – Vienības prospekts, Tirgoņu, Turaidas un Kaiju iela – 25 metrus uz abām pusēm no nobrauktuves, noejas malas. Šī zona paredzēta apmeklētāju netraucētai un drošai nokļūšanai pludmalē. Tajā netiek izvietoti sezonas objekti;
2.3. koridors ūdenī – speciāli ar bojām norobežots koridors ūdenī līdz peldēšanai paredzētās robežas, izvietojot bojas abās pusēs ik pēc 10 metriem, lai peldvietās nodrošinātu ūdens transportlīdzekļu un peldlīdzekļu (ūdens velosipēdu, ūdens motociklu, laivu, plostu, SUP dēļu u.c.) nokļūšanu tam paredzētajās vietās – aiz peldēšanai paredzētās ūdens teritorijas robežas (ūdens koridora platums ir 25 metri, sezonas objekta vajadzībām koridora platums 10 metri). Šajā zonā kategoriski aizliegts peldēties;
2.4. mierīgās atpūtas zona – paredzēta apmeklētājiem, kuri vēlas sauļoties un atpūsties. Šajā zonā var atrasties bērnu rotaļu laukumi, sezonas objekti. Mierīgās atpūtas zonās pēc attiecīgas Centrālās administrācijas atļaujas saņemšanas pieļaujama arī publisku pasākumu organizēšana, tirdzniecība;
2.5. neitrālā zona – pludmales daļa, kas paredzēta dabisku procesu norisei, mazāk antropogēni ietekmētā teritorija. Paredzēta apmeklētājiem, kuri vēlas sauļoties un peldēties. Var atrasties bērnu rotaļu laukumi, sezonas objekti. Pēc attiecīgas Centrālās administrācijas atļaujas saņemšanas pieļaujama arī publisku pasākumu organizēšana, tirdzniecība;
2.6. nobrauktuve – piekļuves vieta pludmalei pret ielām, kas atrodas kāpu zonā un pludmales daļā, ar cieto segumu, kuru var izmantot ar mehāniskajiem transportlīdzekļiem;
2.7. noeja – labiekārtota (koka dēļu laipas, trepes u.c.) piekļuves vieta pludmalei, peldvietai kāpu zonā un pludmales daļā, kas paredzēta gājējiem;
2.8. sezona – Noteikumu izpratnē kalendārā gada laika periods, kas attiecināms uz sezonas objektu izvietošanu un uzturēšanu (apsaimniekošanu) pludmalē: pavasara/vasaras sezona – laika periods gadā no 15. maija līdz 15. septembrim un rudens/ziemas sezona – laika periods gadā no 16. septembra līdz 14. maijam;
2.9. sezonas objekti – āra kafejnīcas (terases, nojumes, paviljoni, tirdzniecības kioski) un sporta laukumu aprīkojums – viegli uzstādāmas konstrukcijas vai objekti, kas paredzēti lietošanai konkrētā sezonā, ievērojot noteikto pludmales zonējumu.
II. Pludmales un peldvietu izmantošanas noteikumi
3. Saskaņā ar Noteikumu 1. pielikumu pludmalē tiek noteiktas oficiālo peldvietu robežas un pludmales zonējums. Pludmalē ir jāievēro attiecīgā zonējuma atļautā izmantošana.
4. Iebraukšana un atrašanās pludmalē ar mehāniskajiem transportlīdzekļiem, ūdens transportlīdzekļu un peldlīdzekļu izmantošana.
4.1. Nobrauktuves, kuras var izmantot piekļūšanai pludmalei ar mehāniskajiem transportlīdzekļiem, lai nogādātu līdz ūdenim ūdens transportlīdzekļus un peldlīdzekļus (aktīvai atpūtai, rūpnieciskai zvejai u.c.):
4.1.1. Lielupē, 36. līnija;
4.1.2. Dubultos, Kļavu iela;
4.1.3. Asaros, Dzimtenes iela;
4.1.4. Kauguros, Kapteiņa Zolta iela;
4.1.5. Jaunķemeros, Jaunķemeru ceļš.
4.2. Noteikumu 4.1. apakšpunktā minētajās vietās pret nobrauktuvēm ir pašvaldības izveidoti ūdens koridori (25 metru platumā), kas norobežoti ar bojām un izmantojami ūdens transportlīdzekļu un peldlīdzekļu nokļūšanai aiz peldēšanai paredzētās ūdens teritorijas robežas. Sezonas objektu vajadzībām nepieciešams veidot ūdens koridorus (10 metru platumā) saskaņā ar projektu.
4.3. Noteikumu 4.1. apakšpunktā noteiktajās vietās atļauts nobraukt pludmalē ar mehāniskajiem transportlīdzekļiem, kura vadīšanai nepieciešama B kategorijas vadītāja apliecība, tikai ūdens transportlīdzekļu, peldlīdzekļu pievešanai un aizvešanai, un apgriezties 10 metru rādiusā no ielas ass, ja saņemta rakstiska Centrālās administrācijas atļauja iebraukšanai pludmalē, izņēmums – mehānisko transportlīdzekļu pārvietošanās visā piekrastes tauvas joslā rūpnieciskās zvejas vajadzībām atļauta ziemas sezonā, no 1. decembra līdz 31. martam.
4.4. Nobrauktuves, kuras var izmantot piekļūšanai pludmalei ar mehāniskajiem transportlīdzekļiem, lai nodrošinātu pludmales apsaimniekošanu un uzturēšanu, kā arī, ja saņemta rakstiska Centrālās administrācijas atļauja – publisku pasākumu un tūrisma pakalpojumu nodrošināšanai, vides monitoringa un zinātnisko pētījumu veikšanai:
4.4.1. Lielupē, 36. līnija;
4.4.2. Bulduros, Vienības prospekts;
4.4.3. Majoros, Pilsoņu iela un Turaidas iela;
4.4.4. Dubultos, Baznīcas iela un Kļavu iela;
4.4.5. Asaros, Dzimtenes iela;
4.4.6. Kauguros, Kapteiņa Zolta iela;
4.4.7. Jaunķemeros, Jaunķemeru ceļš.
4.5. Rakstiska Centrālās administrācijas atļaujas saņemšanas kārtība, iebraukšanai pludmalē ar mehāniskajiem transportlīdzekļiem, noteikta Noteikumu IV nodaļā.
5. Ar ūdens sporta veidiem – kaitbordu, vindsērfingu atļauts nodarboties šādās, speciāli tam paredzētās, vietās (zonējumu skatīt 1. pielikumā):
5.1. Kauguros (no Brekšu ielas 600 metrus R virzienā);
5.2. Asaros (no peldvietas "Asari" robežas 600 metrus A virzienā);
5.3. Pumpuros (no Upes līdz Gundegas ielai);
5.4. Lielupē (no peldvietas "Lielupe" robežas uz Lielupes grīvas pusi 600 metrus A virzienā).
6. Pludmalē un peldvietās aizliegts:
6.1. peldēt tālāk par peldvietas norobežojošām zīmēm (bojām) un speciāli izveidotajos ūdens koridoros;
6.2. izmantot ūdens transportlīdzekļus un peldlīdzekļus oficiālo peldvietu robežās (ūdens daļā), izņemot speciāli izveidotos ūdens koridoros nokļūšanai aiz peldēšanai paredzētās robežas;
6.3. izvietot atrakcijas bez saskaņojuma ar Centrālo administrāciju;
6.4. ierīkot nakšņošanas vietas, celt teltis;
6.5. kurt ugunskurus, izņemot pašvaldības rīkotu pasākumu laikā, publisku pasākumu laikā, apsaimniekošanas darbu vajadzībām, kā arī iznomātajos pludmales nogabalos, nodrošinot atbilstoši iekārtotu ugunskura vietu un saskaņojot ar Centrālo administrāciju;
6.6. izmantot grilus, izņemot iznomātajos pludmales nogabalos;
6.7. smēķēt ārpus speciāli ierīkotām vietām.
III. Sezonas objektu saskaņošanas, izvietošanas un izmantošanas kārtība pludmalē
7. Sezonas objektu izvieto pludmalē pašvaldības iznomātajos pludmales nogabalos pēc saskaņošanas ar Centrālo administrāciju atbilstoši spēkā esošajiem būvnormatīviem, ievērojot Jūrmalas Teritorijas plānojuma apbūves noteikumus un šajos Noteikumos noteikto kārtību.
8. Ierosinātājs sezonas objektu izvieto uz vienu sezonu atbilstoši saskaņotam konkrētās sezonas projektam. Projektu elektroniski saskaņošanai iesniedz Centrālajā administrācijā, pievienojot šādus dokumentus un grafiskos pielikumus:
8.1. zemes gabala ģenerālplānu ar plānoto objektu un labiekārtojuma elementu izvietojumu (uz topogrāfiskā plāna ar apakšzemes inženierkomunikācijām, ielu sarkanajām līnijām un zemes gabala robežām – M 1:500), kas saskaņots ar atbildīgo dienestu, kura pieslēgums tiks izmantots;
8.2. zemes gabala īpašuma vai lietošanas tiesības apliecinošu dokumentu;
8.3. sezonas objekta ieceri ar izmēriem un piesaistēm – M 1:100 vai M 1:50 (plāns, fasādes, konstruktīvais risinājums, labiekārtojuma elementu dizains, tonālais risinājums);
8.4. sezonas objekta vizualizāciju vides kontekstā;
8.5. darba organizācijas plānu (t.sk. nosakot sezonas objekta izvietošanas periodu, montāžas un demontāžas laika periodu);
8.6. līgumus ar pakalpojumu sniedzējiem par sadzīves atkritumu izvešanu un sabiedrisko tualešu apsaimniekošanu.
9. Sezonas objektu un to piederumus (t.sk. saulessargus u.c.) novieto:
9.1. ne tuvāk kā 25 metrus no noejām uz pludmali;
9.2. ne mazāk kā septiņu metru attālumā no pamatkrasta kāpu līnijas (piekrastes kāpu līnijas);
9.3. ne mazāk kā piecu metru attālumā no pludmalē esošās kāpu veģetācijas, tostarp pludmalei piegulošās priekškāpas un embrionālās kāpas;
9.4. ne mazāk kā 30 metrus no dabā esošās ūdenslīnijas (izņemot zonu no Murdu ielas līdz Palu ielai, kurā iespējams šo attālumu samazināt, ņemot vērā dabā esošo ūdenslīniju, bet ne mazāk kā 15 metrus);
9.5. vismaz 25 metru attālumā no pludmalē ierīkotiem pašvaldības bērnu spēļu laukumiem un/vai atpūtas vietām;
9.6. ievērojot lineāru pieeju attiecībā pret blakus esošiem sezonas objektiem, lai nodrošinātu lineāras uztveres efektu visas pludmales kopskatā.
10. Nav atļauts izvietot sezonas objektu pludmalē:
10.1. ja tas neatbilst konkrētās sezonas klimatiskajiem apstākļiem un netiek nodrošināta tā darbība;
10.2. novietojot to pret nobrauktuvēm, noejām, ielām, gājēju koridoru robežās, izņēmumi vietās, kur gājēju plūsma nenotiek – Majoros, Vanagu iela un Bulduros, 3. līnija.
11. Pēc sezonas objekta izvietošanas projekta ierosinātājs iesniedz Centrālā administrācijā uz aktuāla topogrāfiskā plāna sagatavotu sertificēta mērnieka izpildmērījumu plāna ar būvju novietojumu pozitīva atzinuma saņemšanai būvju ekspluatācijas uzsākšanai.
12. Pludmales nogabala nomnieks sezonas laikā nodrošina sezonas objekta saimniecisko darbību atbilstoši saskaņotajam projektam, ja nepieciešams, saņemot Centrālās administrācijas atļauju tirdzniecībai.
13. Pēc saskaņotā termiņa beigām sezonas objektu demontē 2 (divu) nedēļu laikā vai saskaņā ar projektā norādītajiem termiņiem, sakārtojot teritoriju un rakstiski paziņojot Centrālajai administrācijai.
14. Sezonas objektu montāža un demontāža pludmalē ir jāveic atbilstoši sezonai un atbilstoši saskaņotajam projektam, pirms darbu veikšanas, saņemot rakstisku Centrālās administrācijas atļauju iebraukšanai pludmalē.
IV. Atļaujas saņemšanas kārtība iebraukšanai pludmalē ar mehāniskajiem transportlīdzekļiem
15. Atļaujas iebraukšanai pludmalē ar mehāniskajiem transportlīdzekļiem (turpmāk – Atļaujas) izsniedz Centrālā administrācija atbilstoši Noteikumu 2. pielikumam, Aizsargjoslu likumā noteiktajos gadījumos, kā arī, ja iebraukšana saistīta ar jūras zāļu savākšanu ar lietošanas mērķi – piemājas dārza mēslošanai.
16. Atļaujas saņemšanai persona iesniedz Centrālajā administrācijā iesniegumu, kurā norāda:
16.1. ziņas par iesniedzēju (fiziskai personai – vārds, uzvārds, personas kods, deklarētās dzīvesvietas adrese vai cita kontaktinformācija, kas palīdz sazināties ar iesniedzēju; juridiskai personai – nosaukums, reģistrācijas numurs, kontaktinformācija);
16.2. iemeslu, kādēļ iesniedzējam nepieciešama Atļauja:
16.2.1. rūpnieciskās zvejas vajadzībām saskaņā ar pašvaldības lēmumu par rūpnieciskās zvejas tiesību nomu;
16.2.2. publisko pasākumu nodrošināšanai, ja pašvaldība ir izsniegusi atļauju par publiska pasākuma rīkošanu;
16.2.3. ūdens sporta un kuģošanas līdzekļu pievešanai;
16.2.4. tūrisma pakalpojumu nodrošināšanai teritorijas plānojumā vai lokālplānojumā paredzētajās vietās saskaņā ar pašvaldības atļauju, tai skaitā, lai nodrošinātu piekļuvi sezonas objektam, kas izvietots pašvaldības iznomātajā pludmales nogabalā;
16.2.5. vides monitoringa un zinātnisko pētījumu veikšanai;
16.2.6. jūras zāļu savākšanai piemājas dārza mēslošanai.
16.3. nepieciešamo Atļauju skaitu;
16.4. iebraukšanas periodu un laikus;
16.5. izmantojamo nobrauktuvi vai iebraukšanas zonu;
16.6. transportlīdzekļa, kuram nepieciešama Atļauja, marku, modeli un valsts reģistrācijas numuru (ja Atļauju neizsniedz ar norādi "Uzrādītājam").
17. Iesniegumam pievieno Atļaujas nepieciešamību pamatojošus dokumentus.
18. Izsniedzot Atļauju, tajā norāda:
18.1. Atļaujas izsniedzēju, izdošanas datumu un reģistrācijas numuru;
18.2. Atļaujas saņēmēju un izsniegšanas pamatojumu;
18.3. Atļaujas derīguma termiņu, tai skaitā iebraukšanas perioda un laika ierobežojumus, ja tādi ir piemērojami;
18.4. iebraukšanas zonu vai tuvāko nobrauktuvi, pa kuru transportlīdzeklim ir tiesības nobraukt;
18.5. transportlīdzekļa marku, modeli un valsts reģistrācijas numuru vai norādi "Uzrādītājam".
19. Centrālā administrācija lēmumu par Atļaujas izsniegšanu vai pamatotu atteikumu izsniegt Atļauju pieņem piecu darba dienu laikā pēc iesnieguma saņemšanas.
20. Atļauju izsniedz klātienē papīra formā vai elektroniska dokumenta formā, nosūtot uz iesniedzēja iesniegumā norādīto elektroniskā pasta adresi vai e-adresi. Atļauju ar norādi "Uzrādītājam" izsniedz tikai papīra formā.
21. Iebraucot pludmalē, Atļauju ar norādi "Uzrādītājam" novieto redzama vietā aiz transportlīdzekļa priekšējā vējstikla. Konkrētam transportlīdzeklim izsniegtās Atļaujas novietošana šajā transportlīdzeklī nav obligāta.
22. Personai, kurai Atļauja ir izsniegta, ir pienākums nekavējoties informēt Centrālo administrāciju, ja ir mainījušies apstākļi, kas bija par pamatu Atļaujas izsniegšanai.
23. Ja Centrālā administrācija konstatē, ka apstākļi, kas bija par pamatu Atļaujas izsniegšanai ir mainījušies (zuduši), Atļauju anulē, par pieņemto lēmumu paziņojot personai, kurai Atļauja izsniegta, un norādot termiņu, kādā personai anulētā Atļauja ar norādi "Uzrādītājam" jānodod izsniedzējam.
V. Administratīvā atbildība par Noteikumu neievērošanu un to kontrole
24. Par Noteikumu neievērošanu, ja sods nav noteikts citos nozari regulējošajos normatīvajos aktos, fiziskām un juridiskām personām piemēro brīdinājumu vai naudas sodu šādā apmērā:
24.1. par atrakciju izvietošanu (par Noteikumu 6.3. apakšpunktā norādītās prasības neievērošanu) – fiziskai personai piemēro naudas sodu līdz sešdesmit naudas soda vienībām, juridiskai personai – līdz divi simti naudas soda vienībām;
24.2. par nakšņošanas un ugunskuru vietu ierīkošanu (par Noteikumu 6.4. un 6.5. apakšpunktos norādīto prasību neievērošanu) – fiziskai personai piemēro naudas sodu līdz sešdesmit naudas soda vienībām, juridiskai personai – līdz divi simti naudas soda vienībām;
24.3. par smēķēšanu pludmalē (par Noteikumu 6.7. apakšpunktā norādītās prasības neievērošanu) – fiziskai personai piemēro naudas sodu līdz divdesmit naudas soda vienībām.
25. Administratīvā pārkāpuma procesu par Noteikumu 24.1. un 24.2. apakšpunktos noteikto prasību neievērošanu līdz administratīvā pārkāpuma lietas izskatīšanai veic Jūrmalas pašvaldības policijas amatpersonas. Administratīvā pārkāpuma lietu izskata Jūrmalas Administratīvā komisija.
26. Administratīvā pārkāpuma procesu par Noteikumu 24.3. apakšpunktā noteiktās prasības neievērošanu veic Jūrmalas pašvaldības policijas amatpersonas.
VI. Noslēguma jautājumi
27. Ar Noteikumu spēkā stāšanos spēku zaudē Jūrmalas pilsētas domes 2017. gada 12. janvāra saistošie noteikumi Nr. 3 "Par Jūrmalas pilsētas pludmales un peldvietu izmantošanu".
28. Atļaujas, kas izsniegtas līdz Noteikumu spēkā stāšanās dienai, ir derīgas līdz tajās norādītā termiņa beigām, bet ne ilgāk kā līdz 2024. gada 31. decembrim.
Jūrmalas domes priekšsēdētāja R. Sproģe
2. pielikums
Jūrmalas domes
2024. gada 24. aprīļa saistošajiem noteikumiem Nr. 11
(prot. Nr. 6, 19. p.)
Iebraukšanas atļauju izsniegšanas nosacījumi
| Atļaujas pieprasītājs | Atļauju skaits | Atļaujas veids | Iebraukšanas periodu, laiku un zonu ierobežojumi |
| Zvejas tiesību nomnieks (Noteikumu 16.2.1. apakšpunkts) | 1 atļauja | Konkrētam transportlīdzeklim | Iebraukšanas zona saskaņā ar saistošo noteikumu 4.1. apakšpunktu |
| Publiska pasākuma rīkotājs (Noteikumu 16.2.2. apakšpunkts) | Saskaņā ar atļaujā par publiska pasākuma rīkošanu norādīto | Uzrādītājam | Saskaņā ar atļaujā par publiska pasākuma rīkošanu norādīto |
| Ūdens sporta un kuģošanas līdzekļu lietotājs (Noteikumu 16.2.3. apakšpunkts) | 1 atļauja | Konkrētam transportlīdzeklim | Iebraukšanas zona saskaņā ar saistošo noteikumu 4.1. apakšpunktu |
| Tūrisma pakalpojumu sniedzējs, tai skaitā pludmales nogabala nomnieks (Noteikumu 16.2.4. apakšpunkts) | Saskaņā ar pašvaldības atļaujā vai līgumā par pludmales nogabala nomu norādīto | Uzrādītājam/ konkrētam transportlīdzeklim | 1. Saskaņā ar pašvaldības atļaujā norādīto; 2. Pludmales nogabala nomniekam: 2.1. sezonas objekta un aprīkojuma montāžai/demontāžai: 2.1.1. pēc projekta saskaņošanas vai pēc būvniecības ieceres akcepta un būvdarbu uzsākšanas nosacījumu izpildes periodam, kas nav ilgāks kā divas nedēļas pirms un divas nedēļas pēc pavasara/vasaras sezonas sākuma vai beigām – darba dienās bez laika ierobežojuma; 2.1.2. pavasara/vasaras sezonā – saskaņā ar saskaņoto projektu uz laiku no plkst. 24.00 līdz 8.00; 2.2. pludmales nogabala apsaimniekošanai: 2.2.1. pavasara/vasaras sezonā – uz laiku no plkst. 24.00 līdz 8.00; 2.2.2. rudens/ziemas sezonā – bez laika ierobežojuma. |
| Kontrolējošā un uzraugošā valsts vai pašvaldību institūcija, zinātniskā pētījuma veicējs (Noteikumu 16.2.5. apakšpunkts) | Saskaņā ar iesniegto pamatojumu un līguma (ja tāds ir noslēgts) noteikumiem | Uzrādītājam/ konkrētam transportlīdzeklim | Saskaņā ar iesniegto pamatojumu un līguma (ja tāds ir noslēgts) noteikumiem |
| Fiziskā persona, kas nodarbojas ar jūras zāļu savākšanu (Noteikumu 16.2.6. apakšpunkts) | 1 atļauja | Konkrētam transportlīdzeklim | 1. Iebraukšanas periods bez laika
ierobežojuma:
1.1. no 1. oktobra līdz 30. novembrim; 1.2. no 1. marta līdz 30. aprīlim. 2. Iebraukšanas zona, nosakot jūras zāļu savākšanas teritoriju ne lielāku par 300 m attālumā uz katru pusi no minēto ielu asīm: 2.1. Lielupē – 36. līnija; 2.2. Dubultos – Kļavu iela; 2.3. Asaros – Dzimtenes iela; 2.4. Kauguros – Kapteiņa Zolta iela; 2.5. Jaunķemeros – Jaunķemeru ceļš. |
Paskaidrojuma raksts
Jūrmalas domes 2024. gada 24. aprīļa saistošajiem noteikumiem Nr. 11
"Par Jūrmalas valstspilsētas pludmales un peldvietu izmantošanu Rīgas līča
piekrastē"
| Paskaidrojuma raksta sadaļa | Norādāmā informācija |
| 1. Mērķis un nepieciešamības pamatojums | 1.1. Saistošie noteikumi izstrādāti
pamatojoties uz Pašvaldību likuma 45. panta pirmās daļas 2. punktu.
Saistošo noteikumu mērķis ir nodrošināt pludmales, peldvietu aizsardzību
un atbilstošu tās izmantošanu, tostarp higiēnas, kvalitātes un drošības
prasību nodrošināšanu, nosakot vienotu pludmales izmantošanas kārtību,
tai skaitā, paredzot pludmales zonu sadalījumu un nosakot peldvietu
robežas. Saistošie noteikumi noteic Jūrmalas valstspilsētas pludmales un
peldvietu izmantošanas prasības, kas jāievēro un jāņem vērā, uzturoties
pludmalē jebkuram pludmales apmeklētājam. Tāpat noteikumi attiecināmi uz
saimnieciskās darbības veikšanu, tostarp sezonas objektu saskaņošanas,
izvietošanas un izmantošanas kārtību pludmalē. Sasniedzot noteikto
mērķi, ieguvēji ir sabiedrība, kas vēlas pavadīt laiku drošā,
kvalitatīvā, veselā un tīrā vidē, kur tiek īstenoti ilgtspējīgi
piekrastes teritorijas izmantošanas un uzturēšanas principi, kas vērsti
uz vides saglabāšanu. 1.2. 2023. gada 1. janvārī stājās spēkā Pašvaldību likums, attiecīgi spēku zaudēja likums "Par pašvaldībām". Atbilstoši Oficiālo publikāciju un tiesiskās informācijas likuma 9. panta piektajai daļai, ja spēku zaudē normatīvā akta izdošanas tiesiskais pamats, tad spēku zaudē arī uz šā pamata izdotais normatīvais akts vai tā daļa, līdz ar to, ievērojot Pašvaldību likuma Pārejas noteikumu 6. punktu, izstrādāti jauni saistošie noteikumi "Par Jūrmalas valstspilsētas pludmales un peldvietu izmantošanu Rīgas līča piekrastē". 1.3. Atbilstoši Zemes pārvaldības likuma 15. panta otrajai daļai vietējā pašvaldība ir valdītājs tās administratīvajai teritorijai piegulošajiem jūras piekrastes ūdeņiem, kā arī tās administratīvajā teritorijā esošajai jūras piekrastes sauszemes daļai un iekšzemes publiskajiem ūdeņiem, kuru valdītājs nav par vides aizsardzību atbildīgā ministrija vai cita ministrija un kuri nav privātpersonu īpašumā. Rīgas līča piekrastes teritorija ir jutīga dabas teritorija, to ietekmē gan antropogēnā slodze, gan dažādi dabiskie faktori. Pludmales un peldvietu piegulošā teritorijā, atsevišķās peldvietu robežās, atrodas īpaši aizsargājamas dabas teritorijas, tostarp Latvijas un Eiropas nozīmes īpaši aizsargājami biotopi. Jūrmalas valstspilsētas Rīgas līča pludmale ir viena no apmeklētākajām pludmalēm, 24,206 km garumā ir izvietotas 11 oficiālas peldvietas, attiecīga slodze, īpaši peldsezonas laikā, atstāj būtisku ietekmi uz dabas vērtībām, vidi, kā arī pludmales apmeklētāju interesēm, to priekšstatiem. Lai peldvietu apsaimniekotājs nodrošinātu atbilstošu, ilgtspējīgu peldvietu uzturēšanu, drošības un higiēnas prasību ievērošanu pludmalē un peldvietās, tostarp nodrošinātu augstāk stāvošu normatīvo aktu prasību izpildi, tāpat mazinātu iespējamos riskus, saglabātu dabas vērtības piekrastē, sasniegtu saistošajos noteikumos noteikto mērķi, ir nepieciešams noteikt vienotas prasības pludmales un peldvietu izmantošanai, kas attiecināmas uz jebkuru pludmales apmeklētāju, saimnieciskās darbības veicēju u.c., izdodot saistošos noteikumus, tostarp paredzot administratīvo atbildību par to neievērošanu. Ministru kabineta 2017. gada 28. novembra noteikumu Nr. 692 "Peldvietas izveidošanas, uzturēšanas un ūdens kvalitātes pārvaldības kārtība" 11. punkts noteic, ka peldvietu apsaimniekotājam deleģētas tiesības izveidot funkcionālos sektorus. Saskaņā ar saistošo noteikumu 1. pielikumu Rīgas līča pludmale (24,206 km), tiek sadalīta vairākos funkcionālos sektoros, tiek noteikts zonējums (piemēram – aktīvās atpūtas, mierīgās atpūtas zonas u.c.), lai nodrošinātu pludmales apmeklējumu dažādām sabiedrības grupām, t.i. tiktu ievērotas dažādas pludmales lietotāju intereses un maksimāli tās sabalansētu, mazinot iespējamos riskus, piemēram – mazinātu dažādu sabiedrības grupu interešu konfliktus, vienlaicīgi, nodrošinot videi draudzīgu, racionālu pludmales apsaimniekošanu, piekrastes ainavas, dabas un atpūtai nepieciešamo resursu aizsardzību un saglabāšanu. Dabā attiecīgās zonas tiek norādītas ar informatīvām norādēm. Saistošo noteikumu 1. pielikumā ir norādītas katras oficiālās peldvietas robežas. Organizējot pludmales apsaimniekošanas un labiekārtošanas darbus, oficiālajām peldvietām ir prioritārs statuss, piemēram, organizējot jūras aļģu savākšanas un izvešanas darbus, plānojot labiekārtojumu, infrastruktūru u.c. Līdz šim noteiktais pludmales funkcionālais zonējums un oficiālo peldvietu robežas Rīgas līča piekrastē, Jūrmalas valstspilsētas administratīvās teritorijas robežās, paliek nemainīgs. Pludmales apsaimniekotājs ir pilnībā atbildīgs par higiēnas, kvalitātes un drošības prasību nodrošināšanu peldvietās atbilstoši augstāk stāvošiem normatīviem aktiem, attiecīgi saistošo noteikumu II. nodaļa nosaka pludmales izmantošanas kārtību, tostarp piekļuves iespējas pludmalē. Pašvaldība ir izvērtējusi konkrētas vietas pa kurām pludmalei var piekļūt ar mehāniskajiem transportlīdzekļiem, ņemot vērā, ka Aizsargjoslu likums paredz vairākus gadījumus, kad transportlīdzekļu kustība piekrastes joslā un pludmalē ārpus autoceļiem ir pieļaujama. Tāpat izvērtējot drošības apsvērumus, saistošo noteikumu II nodaļa noteic konkrētas vietas, kur pieļaujama ūdens transporta izmantošana, tostarp to pievešanas un aizvešanas kārtība. Ūdens sporta veidiem (veikbords, vindsērfings u.c.) Jūrmalas pludmalē ir paredzētas atsevišķas zonas, kas neatrodas peldvietas robežās, drošības apsvērumu dēļ. Saistošo noteikumu 4.3. apakšpunkts paredz izņēmumu, kas pieļauj pārvietoties ar mehāniskajiem transportlīdzekļiem visā piekrastes tauvas joslā ziemas sezonā, rūpnieciskās zvejas vajadzībām. Efektīvākai rūpnieciskās zvejas organizēšanai, no 1. decembra līdz 31. martam (salaku nozvejas periods), atļauta mehānisko transportlīdzekļu pārvietošanās, īslaicīga apstāšanās un īslaicīga stāvēšana piekrastes tauvas joslā rūpnieciskās zvejas vajadzībām. 1.4. Vienlaicīgi ar ilgtspējīgiem piekrastes teritorijas izmantošanas principiem, pašvaldība ar saistošajiem noteikumiem pludmalē nosaka vairākus aizliegumus, par to neievērošanu tiek paredzēta administratīvā atbildība. Pašvaldību likuma 45. panta pirmā un otrā daļa noteic, kādos gadījumos pašvaldības dome ir tiesīga izdot saistošos noteikumus un paredzēt administratīvo atbildību par to pārkāpšanu, piemērojot administratīvos sodus, ja likumos nav noteikts citādi. Izvērtējot radušās situācijas pludmalē, pašvaldība ir secinājusi, ka noteiktie aizliegumi ir racionāli un būs efektīvi saistošajos noteikumos noteiktā mērķa sasniegšanai. Kurt ugunskurus un celt teltis saskaņā ar Aizsargjoslu likumu ir aizliegts krasta kāpu aizsargjoslā, taču pašvaldības ieskatā, šādu darbību veikšana ir pieļaujama šim nolūkam speciāli ierīkotās vietās arī pludmales zonā, saskaņojot konkrētas vietas ar pašvaldību, piemēram – publisku pasākumu laikā, tā mazinot vairākus riskus, tostarp drošības, ņemot vērā apbūves tuvumu, pludmales apmeklējuma intensitāti, apsaimniekošanas pasākumu īstenošanu un citus faktorus. Ņemot vērā iepriekš minēto, pašvaldība saistošajos noteikumos nosaka aizliegumu kurt ugunskurus un celt teltis pludmalē Jūrmalas valstspilsētas administratīvās teritorijas robežās. Aizliegums nav attiecināms uz nelielām, atvērta tipa teltīm, kas tiek izmantotas dienas laikā saules aizsardzībai. Tabakas izstrādājumu, augu smēķēšanas produktu, elektronisko smēķēšanas ierīču un to šķidrumu aprites likuma 2. panta otrās daļas 3. punkts paredz smēķēšanas ierobežojumus publiskās un citās šajā likumā noteiktajās vietās. Savukārt no 4. punkta izriet, ka likums paredz kārtību, kādā tiek kontrolēta tabakas izstrādājumu, augu smēķēšanas produktu, elektronisko smēķēšanas ierīču un to uzpildes tvertņu aprite un smēķēšanas ierobežojumi publiskās un citās šajā likumā noteiktajās vietās. Minētā likuma 10. pants noteic smēķēšanas ierobežojumus. Saskaņā ar 10. panta otrās daļas 14. punktu – smēķēt aizliegts parkos, skvēros un peldvietās, izņemot vietas, kas speciāli ierīkotas smēķēšanai. Savukārt no 16. punkta izriet, ka smēķēt aizliegts jebkurā citā šajā pantā neminētā publiskā vietā citas personas klātbūtnē, ja šī persona pret to iebilst. Atbilstoši likumam, secināms, ka aizliegums attiecināms tikai uz 11 oficiālajām peldvietām, kas izvietotas Rīgas līča piekrastes 24,206 km garumā (t.i. aptuveni nepilnu 7 km garumā), pārējā pludmalē – aizliegums būtu attiecināms kā uz citu publisku vietu, ja smēķēšana ir personas klātbūtnē un persona pret to iebilst, taču, pašvaldības ieskatā, ņemot vērā pludmales apmeklējuma noslodzi, apmeklētāju plūsmu un intensitāti, aizliegums ir nosakāms un attiecināms uz visu Jūrmalas Rīgas līča pludmales zonu (24,206 km garumā, ne tikai peldvietu robežās), jo neskatoties uz to, ka ir noteiktas oficiālo peldvietu robežas, Rīgas līča pludmale, ņemot vērā dzīvojamo apkaimju tuvumu, kā arī pludmales apmeklētāju plūsmu, tiek izmantota rekreācijai, tostarp kā peldvieta, visā tās garumā ar blīvu apmeklējuma slodzi. Ņemot vērā iepriekš minēto, lai izslēgtu konfliktsituācijas, dažādu sabiedrības viedokļu sadursmes, kā arī radītu pludmalē drošu un veselu, tostarp sanitāri tīru vidi, saistošie noteikumi noteic aizliegumu smēķēt visā pludmalē, ne tikai peldvietu robežās. Aizliegums attiecināms uz visiem tabakas izstrādājumiem un jebkurām smēķēšanas ierīcēm, tai skaitā elektroniskām smēķēšanas ierīcēm. 1.5. Pašvaldībai ir pienākums nodrošināt publisko ūdeņu, tai skaitā jūras piekrastes joslas ilgtspējīgu apsaimniekošanu, pārvaldīšanu un saglabāšanu, ievērot normatīvajos aktos noteiktās vides aizsardzības, saimnieciskās darbības un citas prasības. Saskaņā ar Ministru kabineta 2014. gada 23. jūlija rīkojumu Nr. 373 "Par Jūrmalas pilsētas administratīvajā teritorijā esošās Lielupes daļas, Varkaļu kanāla un jūras piekrastes joslas nodošanu Jūrmalas pašvaldības valdījumā" Vides aizsardzības un reģionālās attīstības ministrija Jūrmalas pašvaldības valdījumā nodevusi Rīgas līča piekrastes joslu, Lielupes daļu un Varkaļu kanālu. Atbilstoši pašvaldības autonomām funkcijām saskaņā ar Pašvaldību likumu, pašvaldība savā administratīvajā teritorijā organizē labiekārtošanu un sanitāro tīrību, publiski pieejamo teritoriju apsaimniekošanu valdījumā nodotajās teritorijās, tostarp jūras piekrastes joslā minētā funkcija tiek pildīta izsoles kārtībā, slēdzot pludmales nogabalu nomas līgumus ar privātpersonām, kas paredz videi draudzīgu un racionālu pludmales apsaimniekošanu, piekrastes ainavas, dabas un atpūtai nepieciešamo resursu aizsardzību un saglabāšanu, pludmales iekārtojuma kvalitāti ar mērķi nodrošināt rekreācijai atbilstošu vidi, sabalansējot tūrisma attīstību ar vides aizsardzības principiem. Jūrmalas pilsētas Teritorijas plānojums, kurš apstiprināts ar Jūrmalas pilsētas domes 2012. gada 11. oktobra saistošajiem noteikumiem Nr. 42 "Par Jūrmalas pilsētas teritorijas plānojuma grafiskās daļas, teritorijas izmantošanas un apbūves noteikumu apstiprināšanu", kurā veikti grozījumi ar Jūrmalas pilsētas domes 2016. gada 24. marta saistošajiem noteikumiem Nr. 8 "Par Jūrmalas pilsētas teritorijas plānojuma grozījumu grafiskās daļas, teritorijas izmantošanas un apbūves noteikumu apstiprināšanu" Teritorijas izmantošanas un apbūves noteikumi, kā arī Jūrmalas pilsētas domes 2009. gada 1. oktobra saistošie noteikumi Nr. 63 "Par detālplānojuma pludmales labiekārtošanai un kāpu zonas nostiprināšanai Jūrmalas pilsētā projekta grafiskās daļas, teritorijas izmantošanas un apbūves noteikumu apstiprināšanu" un Jūrmalas pilsētas domes 2015. gada 11. jūnija saistošie noteikumi Nr. 26 "Par lokālplānojuma teritorijai Jūrmalā starp Ērgļu ielu, Madonas ielu, dzelzceļu un pludmali teritorijas izmantošanas un apbūves noteikumu, un grafiskās daļas apstiprināšanu" paredz, ka pludmales zonās atļauts izvietot pludmales infrastruktūru, vieglu konstrukciju īslaicīgas izmantošanas būves tirdzniecības objektiem, ēdināšanas objektiem, pludmales inventāra nomai un citiem atpūtnieku apkalpes objektiem, kas ir uzskatāmi par sezonas objektiem. Tā kā būvnormatīvi un Jūrmalas valstspilsētas teritorijas plānojums neregulē sezonas būvju vai objektu izvietošanas kārtību, lai nodrošinātu harmonisku publiskās ārtelpas attīstību, Jūrmalas domei ar saistošajiem noteikumiem ir jānosaka vides kvalitātes prasības un izvietošanas kritēriji, kā arī jāīsteno kontrole un uzraudzība pār sezonas objektiem publiskajā ārtelpā (tai skaitā peldvietās un pludmalē). 1.6. Jūrmalas valstspilsētas administrācijā saņemts Vides aizsardzības un reģionālās attīstības ministrijas atzinums ar iebildumiem – precizēt Jūrmalas domes 2024. gada 24. aprīļa saistošos noteikumus Nr. 11 "Par Jūrmalas valstspilsētas pludmales un peldvietu izmantošanu Rīgas līča piekrastē", tostarp precizēt saistošo noteikumu izdošanas tiesisko pamatojumu, svītrojot norādi uz Pašvaldību likuma 45. panta pirmās daļas 1., 3. un 7. punktu, kā arī svītrot saistošo noteikumu 2. punktu, kurā noteikts saistošo noteikumu mērķis, tāpat svītrot 6. punktu par ūdens transportlīdzekļu un peldlīdzekļu izmantošanu; svītrot 9. un 10. punktu, kas nosaka prasības publisku pasākumu organizēšanai; svītrot 11. un 12. punktu, kas noteic apsaimniekošanas prasības pludmalē; svītrot 13.7. apakšpunktu par smēķēšanas ierobežojumiem pludmalē un III nodaļu par sezonas objektu izmantošanas kārtību pludmalē, kā arī lūdz pārskatīt 13.4. un 13.5. apakšpunktu, kas noteic aizliegumu ierīkot nakšņošanas vietas un ugunskura vietas pludmalē. |
| 2. Fiskālā ietekme uz pašvaldības budžetu | 2.1. Saistošo noteikumu īstenošanas
fiskālās ietekmes prognoze uz pašvaldības budžetu: 2.1.1. saistošo noteikumu īstenošanas fiskālās ietekmes prognoze uz pašvaldības budžetu paredz budžeta ieņēmumus par šo Noteikumu prasību neievērošanu fiziskām un juridiskām personām. Ņemot vērā budžeta izdevumus piekrastes teritorijas apsaimniekošanā un uzturēšanā, paredzama budžeta izdevumu daļas palielināšana, līdzsvarojot finansējumu citās pozīcijās; 2.1.2. nav nepieciešami resursi sakarā ar jaunu institūciju vai darba vietu veidošanu, esošo institūciju kompetences paplašināšanai, lai nodrošinātu saistošo noteikumu izpildi. 2.2. saistošo noteikumu izpilde tiek nodrošināta piešķirtā budžeta ietvaros. |
| 3. Sociālā ietekme, ietekme uz vidi, iedzīvotāju veselību, uzņēmējdarbības vidi pašvaldības teritorijā, kā arī plānotā regulējuma ietekme uz konkurenci | 3.1. Sociālā ietekme – sagaidāma pozitīva
ietekme uz cilvēku dzīvesveidu, labsajūtu, sabiedrību kopumā, kā arī
ietekme uz konkrētām sabiedrības grupām, sabalansējot dažādās pludmales
apmeklētāju intereses, pludmalē nosakot dažādus zonējuma veidus, tāpat
paredzot atbilstošu labiekārtojumu un infrastruktūru, tiek nodrošināta
pludmales un peldvietu pieejamība cilvēkiem ar īpašām vajadzībām; 3.2. ietekme uz vidi – sagaidāma pozitīva ietekme uz vidi. Saistošajos noteikumos ietvertie ierobežojumi un noteiktā pludmales izmantošana ir vērsta uz vides saglabāšanu, tostarp bioloģiskās daudzveidības un raksturīgās ainavas saglabāšanu, peldvietu ūdens kvalitātes, tīras un veselas vides nodrošināšanu; 3.3. ietekme uz iedzīvotāju veselību – sagaidāma pozitīva ietekme uz iedzīvotāju veselību, ņemot vērā saistošo noteikumu mērķi un noteiktos ierobežojumus. Tāpat sakārtota un atbilstoši uzturēta vide, kas vērsta uz vides saglabāšanu, var uzlabot iedzīvotāju fizisko un garīgo veselību; 3.4. ietekme uz uzņēmējdarbības vidi pašvaldības teritorijā – ar saistošajiem noteikumiem tiks veicinātas uzņēmējdarbības aktivitātes, jaunu uzņēmumu veidošanās un esošo uzņēmumu attīstība un izaugsme, kā arī paaugstināta to konkurētspēja piekrastes teritorijā. Pašvaldībā tiek organizētas pludmales nogabala nomas izsoles, šajos saistošajos noteikumos ir noteikta kārtība sezonas objektu saskaņošanai, izvietošanai un izmantošanai pludmalē, tiek atbalstīta uzņēmējdarbības attīstība piekrastes teritorijā. Jebkuram saimnieciskās darbības veicējam, uzņēmējam ir saistoši šie saistošie noteikumi, tostarp, plānojot sezonas būvju izvietošanu un iznomātā pludmales nogabala apsaimniekošanu un uzturēšanu, kas vērsta uz ilgtspējīgiem apsaimniekošanas principiem. |
| 4. Ietekme uz administratīvajām procedūrām un to izmaksām | 4.1. Institūcija, kurā privātpersona var
vērsties saistošo noteikumu piemērošanā ir Jūrmalas valstspilsētas
administrācija; 4.2. sezonas objekta izvietošanai pludmalē jāizstrādā
un jāsaskaņo projekts Jūrmalas valstspilsētas administrācijā. Sezonas
objekta izvietošana tiek saskaņota uz vienu sezonu; 4.3. galvenie procedūras posmi un privātpersonām veicamās darbības, ko paredz saistošo noteikumu projekts – informācija regulāri tiek aktualizēta pašvaldības tīmekļvietnē www.jurmala.lv; 4.4. procesu administratīvā pārkāpuma lietā atbilstoši kompetencei veic Jūrmalas pašvaldības policija. Administratīvā pārkāpuma procesu līdz administratīvā pārkāpuma lietas izskatīšanai veic Jūrmalas pašvaldības policijas amatpersonas. Administratīvā pārkāpuma lietu izskata Jūrmalas Administratīvā komisija. |
| 5. Ietekme uz pašvaldības funkcijām un cilvēkresursiem | Pašvaldību funkcijas, kuru izpildei tiek izstrādāti šie saistošie noteikumi – gādāt par pašvaldības administratīvās teritorijas labiekārtošanu un sanitāro tīrību, kā arī noteikt teritoriju un būvju uzturēšanas prasības, ciktāl tas saistīts ar sabiedrības drošību, sanitārās tīrības uzturēšanu un pilsētvides ainavas saglabāšanu; veicināt dabas kapitāla ilgtspējīgu pārvaldību un apsaimniekošanu, kā arī noteikt publiskā lietošanā esoša pašvaldības īpašuma izmantošanas kārtību, ja likumos nav noteikts citādi. |
| 6. Informācija par izpildes nodrošināšanu | 6.1. Saistošo noteikumu izpildē ir
iesaistītas sekojošas Jūrmalas valstspilsētas administrācijas
struktūrvienības – Īpašumu pārvalde, kas nodrošina piekrastes
teritorijas labiekārtošanu, apsaimniekošanu un uzturēšanu, organizē
pludmales nogabalu nomas izsoles; Attīstības pārvalde, kas nodrošina
ielu tirdzniecības un sabiedriskās ēdināšanas organizēšanu publiskās
vietās, kā arī saskaņo publisku pasākumu rīkošanu; Jūrmalas pašvaldības
policija, kas atbilstoši kompetencei nodrošina pludmales un peldvietu
izmantošanas un lietošanas noteikumu kontroli, uzsāk administratīvā
pārkāpuma procesu vai piemēro sodu par administratīvo pārkāpumu, kā arī
Jūrmalas Administratīvā komisija, kas izskata administratīvā pārkāpuma
lietu; 6.2. nav paredzēta jaunu institūciju izveide, esošo likvidācija vai reorganizācija. |
| 7. Prasību un izmaksu samērīgums pret ieguvumiem, ko sniedz mērķa sasniegšana | Saistošie noteikumi ir piemēroti iecerētā mērķa sasniegšanas nodrošināšanai un paredz tikai to, kas ir vajadzīgs minētā mērķa sasniegšanai un pašvaldības izraudzītie līdzekļi ir piemēroti leģitīma mērķa sasniegšanai, un pašvaldības rīcība ir atbilstoša. |
| 8. Izstrādes gaitā veiktās konsultācijas ar privātpersonām un institūcijām | 8.1. Sabiedrības viedokļa noskaidrošana
veikta atbilstoši Pašvaldību likuma 46. panta trešajā daļā noteiktajam –
saistošo noteikumu projekts un paskaidrojuma raksts no 2024. gada
8. marta līdz 22. martam tika publicēts pašvaldības oficiālajā
tīmekļvietnē www.jurmala.lv sabiedrības viedokļa noskaidrošanai.
Minētajā termiņā saņemti divi iesniegumi. 8.2. Iedzīvotāja viedoklis izskatīts un pieņemts zināšanai: Par nakšņošanas vietu ierīkošanu un iespēju celt teltis – vietu noteikti jāierobežo un jāveido mazapdzīvotās pilsētas vietās kā Lielupe, Jaunķemeri, kā arī nepiekrīt veidot komerciālā tipa vietas, kur uzņēmumi izvieto teltis un izīrē tās. Un kategoriski nepiekrīt atļaut smēķēšanu pludmalē. Ar saistošajiem noteikumiem šādu nakšņošanas vietu ierīkošana pludmalē netiek paredzēta, izvērsts skaidrojums noteiktajam aizliegumam ir norādīts saistošo noteikumu paskaidrojuma rakstā. Ar saistošo noteikumu 6.7. apakšpunktu tiek noteikts aizliegums pludmalē smēķēt. 8.3. SIA "MADU" priekšlikums – rast iespēju turpmāk saistošajos noteikumos paredzēt zvejniekiem ziemas sezonā pārvietot un novietot stāvēšanai savu transportlīdzekli tauvas joslā zvejas darbu laikā, jo zvejniekam piekļuve jūrā, dēļ ledus un vēja radītiem viļņiem, nav iespējama tikai nobrauktuvju vietās. Transportlīdzeklis nepieciešams, lai izvilktu laivu no ledus, ātri ieceltu tajā lomu, pasargājot lomu no putniem un citiem ziņkārīgajiem, kā arī transportlīdzeklis kalpo kā uzgaidīšanas vieta, kurā tiek uzmanīti roņu uzbrukumi tīkliem, tāpat zvejas laikā tiek uzraudzīts, lai ledus ar straumi neievelk tīklus jūrā, ar iespēju ātri reaģēt un novērst draudus vai zaudējumus. Priekšlikums ņemts vērā un papildināts saistošo noteikumu 4.3. apakšpunkts un paskaidrojuma raksta 1.3. apakšpunkts, nosakot izņēmumu, kas pieļauj ar mehāniskajiem transportlīdzekļiem pārvietoties (tai skaitā atļauta īslaicīga apstāšanās un stāvēšana) piekrastes tauvas joslā ziemas sezonā, no 1. decembra līdz 31. martam, rūpnieciskās zvejas vajadzībām, ja saņemta rakstiska Jūrmalas valstspilsētas administrācijas atļauja. |
Jūrmalas domes priekšsēdētāja R. Sproģe