
Siguldas novada domes saistošie noteikumi: Šajā laidienā 5 Pēdējās nedēļas laikā 0 Visi
Siguldas novada pašvaldības domes saistošie noteikumi Nr. 25
Siguldā 2024. gada 23. maijā
Par ēku numerācijas, māju un ielu nosaukumu plākšņu izvietošanas kārtību Siguldas novadā
Apstiprināti ar Siguldas novada pašvaldības domes
2024. gada 23. maija lēmumu (prot. Nr. 9, 8. §)
Izdoti saskaņā ar Pašvaldību likuma
44. panta otro daļu
I. Vispārīgie jautājumi
1. Saistošie noteikumi (turpmāk – Noteikumi) nosaka kārtību, kādā izvieto ēku numerācijas, māju un ielu nosaukumu plāksnes Siguldas novada pašvaldības (turpmāk – Pašvaldība) administratīvajā teritorijā.
2. Noteikumi ir saistoši visām fiziskām un juridiskām personām, kuru īpašumā vai valdījumā Pašvaldības administratīvajā teritorijā atrodas nekustamais īpašums.
3. Ēku numerācijas, māju un ielu nosaukumu plāksnēm ir jābūt labā tehniskā un vizuālā stāvoklī ar skaidri salasāmiem uzrakstiem valsts valodā un labi saskatāmiem no ielas (ceļa).
II. Ēku numerācijas, māju un ielu nosaukumu plākšņu izvietošanas nosacījumi
4. Ielu nosaukumu plāksnes izgatavo, izvieto un uztur Pašvaldība.
5. Ēku numerācijas un māju nosaukumu plākšņu izgatavošanu, uzstādīšanu un uzturēšanu nodrošina Noteikumu 2. punktā minētās personas.
6. Ēku numerācijas, mājas un ielu nosaukumu plāksnes tiek izgatavotas un uzstādītas atbilstoši Noteikumu pielikumos norādītajiem paraugiem un ievērojot šādus nosacījumus:
6.1. Siguldā, Siguldas pagastā, Mores pagastā, Allažu pagastā (plāksnes paraugi Noteikumu 1. pielikumā):
6.1.1. ēkas numerācijas plāksnes izmēri ir: platums 300 mm, augstums 400 mm;
6.1.2. ēkas numerācijas plāksnes fona krāsa ir balta, informācija uz numerācijas plāksnes veidota ar zaļiem burtiem valsts valodā, atbilstoši tonim PANTONE 3425 C;
6.1.3. uz ēkas numerācijas plāksnes tiek rakstīts ielas nosaukums, mājas numurs. Ielas nosaukums rakstāms ar lieliem burtiem, šrifts: Helvetica Condensed Bold. Uz numerācijas plāksnes var norādīt ēkas piederību, piederības nosaukumu rakstot ar lielo sākuma burtu, šrifts: Helvetica Condensed Plain;
6.1.4. mājas un ielas nosaukuma plāksnes izmēri ir: platums 600 mm, augstums 200 mm. Izmēru var mainīt, ja nosaukums ir garš un to nevar ietilpināt standarta plāksnē, saskaņojot plāksnes izmēru ar Pašvaldības iestādes "Siguldas novada pašvaldības centrālā pārvalde" Būvniecības kontroles pārvaldes (turpmāk – Buvniecības kontroles pārvalde) galveno arhitektu, būvvaldes vadītāja vietnieku;
6.1.5. mājas un ielas nosaukuma plāksnes fona krāsa ir balta, informācija uz plāksnes veidota ar zaļiem burtiem valsts valodā, atbilstoši tonim PANTONE 3425 C;
6.1.6. uz mājas un ielas nosaukuma plāksnes tiek rakstīts tās nosaukums. Šrifts: Helvetica Condensed Bold;
6.1.7. ēkas numerācijas un māju nosaukumu plāksnes piestiprināmas pie ēkas fasādes daļas no ēkas ārpuses, kura ir vērsta pret ielu vai ceļu, vai piestiprināmas pie žoga tā, lai nosaukums vai numurs būtu labi saskatāms no ielas. Ēku numerācijas un māju nosaukumu plāksnes uzstādamas ne zemāk kā 2,0 m augstumā no zemes un ne augstāk kā 2,5 m no zemes;
6.1.8. vietās, kur ēkas siena vai žogs nav piemēroti nosaukuma vai numerācijas plāksnes uzstādīšanai atbilstoši Noteikumiem vai ēka atrodas tālāk no ceļa, plāksne piestiprināma speciāli izgatavotam stabam, ievērojot Noteikumu 6.1.7. punktā norādītos plāksnes uzstādīšanas augstumus;
6.1.9. viensētu nosaukuma plāksnes var uzstādīt arī pie piebraucamā ceļa. Gadījumā, ja vairākām viensētām ir kopējs piebraucamais ceļš, uz viena staba ir atļauts izvietot vairākas nosaukuma plāksnes. Par šādu nosaukumu plākšņu izvietošanas veidu un uzstādīšanu vienojas attiecīgie viensētu īpašnieki vai valdītāji, ievērojot ceļu apsaimniekošanas un uzturēšanas normatīvo aktu prasības;
6.1.10. ja viensētai ir vairāki piebraucamie ceļi, īpašnieks vai valdītājs pēc izvēles pie vismaz viena no ceļiem uzstāda vienu nosaukuma plāksni;
6.1.11. daudzdzīvokļu dzīvojamo namu dzīvokļu numuru plāksnes izvieto ēkas ārpusē virs ieejas kāpņu telpā – plāksne, uz kuras norādīti dzīvokļu numuri attiecīgajā kāpņu telpā. Plāksnes izmēri ir: platums 200 mm, augstums 100 mm; uz katra dzīvokļa ārdurvīm – individuālais dzīvokļa numurs.
7.1. Mālpils pagastā (plāksnes paraugi Noteikumu 2. pielikumā):
7.1.1. ēkas numerācijas plāksnes izmēri ir: platums 220 mm, augstums 320 mm;
7.1.2. ēkas numerācijas plāksnes fona krāsa ir tumši zila atbilstoši tonim RAL 5011 un informācija uz plāksnes veidota ar baltiem burtiem valsts valodā. Šrifts: Helvetica Condensed Bold;
7.1.3. uz ēkas numerācijas plāksnes tiek rakstīts ielas nosaukums, mājas numurs;
7.1.4. uz ēkas numerācijas plāksnes var norādīt ēkas piederību;
7.1.5. mājas un ielas nosaukuma plāksnes izmēri – platums 560 mm, augstums 165 mm. Izmēru var mainīt, ja nosaukums ir garš un to nevar ietilpināt standarta plāksnē, saskaņojot plāksnes izmēru ar Būvniecības kontroles pārvaldes galveno arhitektu, būvvaldes vadītāja vietnieku;
7.1.6. mājas un ielas nosaukuma plāksnes fona krāsa ir tumši zila atbilstoši tonim RAL 5011 un informācija uz plāksnītes veidota ar baltiem burtiem valsts valodā. Helvetica Condensed Bold;
7.1.7. uz mājas un ielas nosaukuma plāksnes tiek rakstīts tās nosaukums. Šrifts: Helvetica Condensed Bold;
7.1.8. ēku numerācijas un māju nosaukuma plāksnes piestiprināmas pie ēkas fasādes daļas no ēkas ārpuses, kura ir vērsta pret ielu vai ceļu, vai piestiprināmas pie žoga tā, lai nosaukums vai numurs būtu labi saskatāms no ielas. Ēku numerācijas un māju nosaukumu plāksnes uzstādamas ne zemāk kā 2,0 m augstumā no zemes un ne augstāk kā 2,5 m no zemes. Ja ēku numerācijas vai māju nosaukuma plāksne nav skaidri saskatāma no ceļa, plāksnei jābūt arī pie žoga vārtiņiem zemesgabalā vai piebraucamā ceļa, ne zemāk kā 1,7 m augstumā no zemes;
7.1.9. vietās, kur ēkas siena vai žogs nav piemēroti ēkas numerācijas vai mājas nosaukuma plāksnes uzstādīšanai, atbilstoši Noteikumu prasībām, vai ēka atrodas tālāk no ceļa, plāksne piestiprināma speciāli izgatavotam stabam, ievērojot Noteikumu 7.1.8. punktā norādītos plāksnes uzstādīšanas augstumus;
7.1.10. viensētu nosaukuma plāksnes var uzstādīt arī pie piebraucamā ceļa. Gadījumā, ja vairākām viensētām ir kopējs piebraucamais ceļš, uz viena staba ir atļauts izvietot vairākas nosaukuma plāksnes. Par šādu nosaukumu plākšņu izvietošanas veidu un uzstādīšanu vienojas attiecīgie viensētu īpašnieki vai valdītāji, ievērojot ceļu apsaimniekošanas un uzturēšanas normatīvo aktu prasības;
7.1.11. ja viensētai ir vairāki piebraucamie ceļi, īpašnieks vai valdītājs pēc izvēles pie vismaz viena no ceļiem uzstāda vienu nosaukuma plāksni.
7.3. Lēdurgas pagastā, Krimuldas pagastā (plākšņu paraugi Noteikumu 3. pielikumā):
7.3.1. ēkas numerācijas plāksnes izmēri ir:
7.3.1.1. platums 300 mm, augstums 400 mm;
7.3.1.2. platums 220 mm, augstums 320 mm;
7.3.2. ēkas numerācijas plāksnes ir profilētas, zaļā krāsā ar baltu apmali (noapaļotiem stūriem) un uzrakstiem baltā krāsā, latviešu valodā. Šrifts: Arial Black;
7.3.3. uz ēkas numerācijas plāksnes ir jānorāda ielas nosaukums (rakstāms pilns ielas nosaukums ar lielajiem burtiem, vārds "iela" – ar mazajiem burtiem, piemēram EMIĻA MELNGAIĻA iela), ēkas numurs (ja ēkas numurs satur gan ciparu, gan alfabēts burtu, tad ēkas numurzīmē lietojams cipars un lielais burts, piemēram 5B). Uz ēkas numerācijas plāksnes var norādīt ēkas piederību;
7.3.4. mājas un ielas nosaukuma plāksnes izmēri:
7.3.4.1. platums 430 mm, augstums 160 mm;
7.3.4.2. platums 530 mm, augstums 160 mm;
7.3.4.3. platums 630 mm, augstums 160 mm;
7.3.4.4. nosaukuma izvietošanai nepieciešamais garums (šādā gadījumā plāksnes izmēru saskaņo ar Būvniecības kontroles pārvaldes galveno arhitektu, būvvaldes vadītāja vietnieku);
7.3.5. mājas un ielas nosaukuma plāksnes ir zaļā krāsā ar baltu apmali (noapaļotiem stūriem) un uzrakstiem baltā krāsā, latviešu valodā. Šrifts: Arial Black;
7.3.6. uz ielas nosaukuma plāksnes ir jānorāda ielas nosaukums (rakstāms pilns ielas nosaukums ar lielajiem burtiem, vārds "iela" – ar mazajiem burtiem, piemēram, EMIĻA MELNGAIĻA iela);
7.3.7. uz mājas nosaukuma plāksnes ir jānorāda mājas nosaukums (rakstāms pilns nosaukums ar lielajiem burtiem);
7.3.8. ēkas numerācijas un mājas nosaukuma plāksnes novietojamas uz ēkas fasādes, kas vērsta pret ielu 2500–3000 mm augstumā un 500–1000 mm attālumā no ēkas stūra, kas tuvāks blakus ēkai ar mazāku kārtas numuru;
7.3.9. ja piekļūšanai zemes vienībai noteikts ceļa servitūts, tad nosaukuma vai numerācijas plāksni uzstāda tā, lai tā būtu redzama no ielas;
7.3.10. daudzdzīvokļu dzīvojamām mājām virs katras kāpņu telpas ārdurvīm uzstāda informācijas zīmi ar dzīvokļa numuriem, kas izgatavota pēc vienota parauga. Dzīvokļu informācijas zīme tiek veidota zaļā krāsā ar baltu apmali (noapaļotiem stūriem) un uzrakstiem baltā krāsā (plāksnes izmēri: platums 200 mm, augstums 100 mm), šrifts: Arial Black;
7.3.11. ja daudzdzīvokļu dzīvojamai mājai tiek izstrādāta ēkas fasādes apliecinājuma karte vai ēkas atjaunošanas, vai pārbūves tehniskais projekts, tehniskās dokumentācijas ietvaros var izstrādāt individuālu, ēkas fasādes risinājumam stilistiski atbilstošu dzīvokļu numuru informācijas zīmi;
7.3.12. ja no valsts vai pašvaldības ceļa atzarojas piebraucamais ceļš uz vairākām dzīvojamajām mājām, pie šī atzara ir uzstādāmas nekustamo īpašumu nosaukumu norādes plāksnes. Norādes plāksnes izvietojamas uz brīvi stāvošiem, vienota stila (metāla caurules) stabiņiem 2500–3000 mm augstumā, plāksnes ir zaļā krāsā baltu apmali un uzrakstiem baltā krāsā, latviešu valodā. Šrifts: Arial Black. Plākšņu pieļaujamie izmēri ir: 160 x 430 mm, 160 x 530 mm vai 160 x 630 mm.
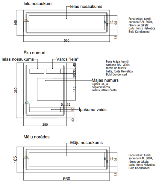
7.4. Inčukalna pagastā (plākšņu paraugi Noteikumu 4. pielikumā):
7.4.1. ēkas numerācijas plāksnes izmēri:
7.4.1.1. platums 280 mm, augstums 360 mm; plāksnes fona krāsa ir tumši sarkana atbilstoši tonim RAL 3004 un informācija uz plāksnes rakstīta ar baltiem, gaismu atstarojošiem burtiem. Šrifts: Helvetica Condensed Bold;
7.4.1.2. Inčukalna pagasta dārzkopības sabiedrību ēku numerācijas plāksnes izmēri ir: platums 220 mm, augstums 320 mm; plāksnes fona krāsa ir zaļa atbilstoši tonim RAL 6029, un informācija uz plākses rakstīta ar baltiem, gaismu atstarojošiem burtiem. Šrifts: Helvetica Condensed Bold;
7.4.2. ēkas numerācijas plāksne novietojama pie ēkas fasādes vai žoga ielas pusē tā, lai uzraksts uz tās būtu labi saskatāms. Uz ēkas fasādes plāksne izvietojama ne zemāk kā 2,0 m augstumā no zemes un ne augstāk kā 2,5 m no zemes, uz žoga ne zemāk kā 1,7 m augstumā no zemes;
7.4.3. mājas un ielas nosaukuma plāksnes izmēri ir:
7.4.3.1. platums 560 mm, augstums 165 mm. Plāksnes fona krāsa ir tumši sarkana atbilstoši tonim RAL 3004 un informācija uz plāksnes rakstīta ar baltiem, gaismu atstarojošiem burtiem. Šrifts: Helvetica Condensed Bold;
7.4.3.2. Inčukalna pagasta dārzkopības sabiedrībām ielu nosaukumu plāksnes izmēri ir: platums 420 mm, augstums 160 mm. Plāksnes fona krāsa ir zaļa, atbilstoši tonim RAL 6029, un informācija uz plākses rakstīta ar baltiem, gaismu atstarojošiem burtiem. Šrifts: Helvetica Condensed Bold;
7.4.4. ielu nosaukumu plāksnes izvietojamas ielu krustojumos, lai neatkarīgi no braukšanas virziena būtu iespējams izlasīt šķērsojamās ielas nosaukumu. Plāksnes izvietojamas ne zemāk kā 1,7 m augstumā no zemes un ne augstāk kā 2,5 m no zemes;
7.4.5. vietās, kur pret ielu vērstās ēkas siena vai žogs ir piemēroti ielu nosaukuma plāksnes uzstādīšanai, ielu nosaukumu plāksnes piestiprināmas, iepriekš saskaņojot ar nekustamā īpašuma īpašnieku, ēkas sienai vai žogam 30 cm attālumā no ēkas vai žoga stūra;
7.4.6. vietās, kur pret ielu vērstās ēkas siena vai žogs nav piemēroti ielu nosaukuma plāksnes uzstādīšanai, ielu nosaukuma plāksnes piestiprināmas speciāli izgatavotiem stabiem, kas tiek izvietoti ceļu aizsargjoslā. Stabs ir metāla caurule ar diametru 50–80 mm, un garumu 3,2 m. Staba pamatne iebetonējama 0,7 m dziļumā. (Pieļaujams arī cits nostiprināšanas veids, ja tas nodrošina pret nejaušu staba izkustināšanu). Ielu nosaukuma plāksnīte piestiprināma pie staba uz atbilstoša izmēra metāla vai mitrumizturīga koka pamatnes. Staba krāsa ir pelēka;
7.4.7. vietās, kur ēkas fasāde vai žogs nav piemēroti (redzamību apgrūtina koki vai krūmi, ēka vai žogs atrodas tālāk par 15 m no braucamās daļas u.tml. gadījumi) plāksnes izvietošanai, plāksne piestiprināma šim nolūkam piemērotam stabam, kas izvietots nekustamā īpašuma robežās pie nobrauktuves no ielas vai no ceļa. Stabs ir metāla caurule ar diametru 50–80 mm, un garumu 3,2 m. Staba pamatne iebetonējama 0,7 m dziļumā. (Pieļaujams arī cits nostiprināšanas veids, ja tas nodrošina pret nejaušu staba izkustināšanu). Ielu nosaukuma plāksne piestiprināma pie staba uz atbilstoša izmēra metāla vai mitrumizturīga koka pamatnes. Staba krāsa ir pelēka. Staba novietošana jāsaskaņo ar Būvniecības kontroles pārvaldes galveno arhitektu, būvvaldes vadītāja vietnieku, ja plāksne izvietojama ārpus īpašuma robežām;
7.4.8. aizliegts stiprināt plāksnes pie žoga kustīgajām daļām – vērtnēm;
7.4.9. daudzdzīvokļu dzīvojamo namu dzīvokļu numuru plāksnes izvieto ēkas ārpusē virs ieejas kāpņu telpā – plāksne, uz kuras norādīti dzīvokļu numuri attiecīgajā kāpņu telpā. Plāksnes izmēri ir: platums 200 mm, augstums 100 mm; uz katra dzīvokļa ārdurvīm – individuālais dzīvokļa numurs;
7.4.10. dzīvokļu numuru plāksnes ēkas ārpusē fona krāsa Inčukalna pagasta teritorijā ir sarkanbrūna (krāsas tonis Latvijas sarkanais), numuri rakstīti ar baltiem arābu cipariem;
7.4.11. ja daudzdzīvokļu dzīvojamai ēkai ir divas vai vairākas ieejas, dzīvokļu numuru plāksnes ārpusē tiek izvietotas pie visām ieejām kāpņu telpās.
8. Pašvaldības teritorijā ir atļauts uzstādīt mākslinieciski noformētas māju nosaukuma plāksnes, iepriekš saskaņojot tās dizainu un izvietošanas vietu ar Būvniecības kontroles pārvaldes galveno arhitektu, būvvaldes vadītāja vietnieku.
9. Gadījumā, ja ēkas sarežģītā arhitektoniskā veidojuma vai citu apstākļu dēļ nav iespējams izpildīt prasības par ēkas numerācijas plāksnes izvietošanu, tad tās izvietojums jāsaskaņo ar Būvniecības kontroles pārvaldes galveno arhitektu, būvvaldes vadītāja vietnieku.
10. Par ēku numerācijas un māju nosaukumu plākšņu (tai skaitā stabu) izgatavošanu, izvietošanu un uzstādīšanu atbilstoši Noteikumiem ir atbildīgs ēkas īpašnieks vai tiesiskais valdītājs.
11. Par dzīvokļu numuru plāksnes izvietošanu ēkas ārpusē ir atbildīgs nama apsaimniekotājs
12. Par individuālo dzīvokļa numura izvietošanu uz dzīvokļa ārdurvīm, atbilstoši Noteikumiem, ir atbildīgs dzīvokļa īpašnieks vai tiesiskais valdītājs.
13. Ja adresācijas objekta nosaukums mainīts vai mainījies ēkas īpašnieks vai īpašuma forma, precizētās ēkas numerācijas un nosaukumu plāksnes nomaina viena mēneša laikā no jauno tiesisko apstākļu iestāšanās dienas.
III. Noteikumu izpildes kontrole
14. Kontroli par Noteikumu izpildi savas kompetences ietvaros nodrošina Būvniecības kontroles pārvalde un Siguldas novada Pašvaldības policija.
15. Konstatējot Noteikumu prasību neievērošanu, Būvniecības kontroles pārvalde un Siguldas novada Pašvaldības policija var izdot administratīvo aktu, kas uzliek adresātam pienākumu veikt noteiktas darbības Noteikumu izpildes nodrošināšanai.
IV. Noslēguma jautājumi
16. Atzīt par spēku zaudējušiem Siguldas novada pašvaldības domes 2022. gada 18. augusta saistošos noteikumus Nr. 37 "Par ēku, ielu nosaukumu un numerācijas plākšņu izvietošanas kārtību Siguldas novadā".
17. Noteikumi ir piemērojami attiecībā uz jaunu ēku numerācijas, māju un ielu nosaukumu plākšņu izvietošanu.
18. Ēku numerācijas, māju un ielu nosaukumu plāksnes, kuras ir uzstādītas pirms Noteikumu spēkā stāšanās, nav jāmaina līdz brīdim, kad mainās objekta adrese vai plāksnes neatbilst Noteikumu 3. punktam. Mainot ēku numerācijas, māju un ielu nosaukumu plāksnes minētajos gadījumos, tās noformējamas atbilstoši Noteikumos noteiktajām prasībām.
Siguldas novada pašvaldības domes priekšsēdētājs L. Kumskis
1. pielikums
Siguldas novada pašvaldības domes
2024. gada 23. maija saistošajiem noteikumiem Nr. 25
"Par ēku numerācijas, māju un ielu nosaukumu
plākšņu izvietošanas kārtību Siguldas novadā"
Ēku numerācijas plāksnes paraugs Siguldā, Siguldas pagastā, Mores pagastā, Allažu pagastā
Mājas un ielas nosaukuma plāksnes paraugs Siguldā, Siguldas pagastā, Mores pagastā, Allažu pagastā
2. pielikums
Siguldas novada pašvaldības domes
2024. gada 23. maija saistošajiem noteikumiem Nr. 25
"Par ēku numerācijas, māju un ielu nosaukumu
plākšņu izvietošanas kārtību Siguldas novadā"
Ēku numerācijas, mājas un ielas nosaukuma plāksnes paraugs Mālpils pagastā
3. pielikums
Siguldas novada pašvaldības domes
2024. gada 23. maija saistošajiem noteikumiem Nr. 25
"Par ēku numerācijas, māju un ielu nosaukumu
plākšņu izvietošanas kārtību Siguldas novadā"
Ēku numerācijas plāksnes paraugs Lēdurgas un Krimuldas pagastā
Mājas un ielas nosaukuma plāksnes paraugs Lēdurgas un Krimuldas pagastā
Informācijas zīmes ar dzīvokļu numuriem paraugs Lēdurgas un Krimuldas pagastā
4. pielikums
Siguldas novada pašvaldības domes
2024. gada 23. maija saistošajiem noteikumiem Nr. 25
"Par ēku numerācijas, māju un ielu nosaukumu
plākšņu izvietošanas kārtību Siguldas novadā"
Ēku numerācijas, mājas un ielas nosaukuma plāksnes paraugs Inčukalna pagastā
Plāksnes paraugs Inčukalna pagasta dārzkopības sabiedrībām
Paskaidrojuma raksts
Siguldas novada pašvaldības domes saistošajiem noteikumiem Nr. 25 "Par ēku
numerācijas, māju un ielu nosaukumu plākšņu izvietošanas kārtību Siguldas
novadā"
|
Paskaidrojuma raksta sadaļa |
Norādāmā informācija |
| 1. Mērķis un nepieciešamības pamatojums | 1.1. Saistošo noteikumu mērķis ir noteikt
vienotas prasības, kā noformējamas un izvietojamas ēku numerācijas, māju
un ielu nosaukumu plāksnes Siguldas novada pašvaldībā, tādējādi
nodrošinot vienota vizuālā tēla uzturēšanu, kā arī nekustamā īpašuma
atrašanās vietas noteikšanu. 1.2. Pašvaldību likuma 44. panta otrā daļa paredz tiesības pašvaldībai izdot saistošos noteikumus, lai nodrošinātu pašvaldības autonomo funkciju izpildi, ievērojot likumos vai Ministru kabineta noteikumos paredzēto funkciju izpildes kārtību. Savukārt šī panta trešā daļa noteic, ka saistošajos noteikumos, kas nodrošina pašvaldības autonomo funkciju izpildi, var paredzēt pašvaldības tiesības izdot tiesiskus pienākumus nosakošus administratīvos aktus, ciktāl tie nepieciešami saistošajos noteikumos ietverto normu īstenošanai. 1.3. Šobrīd ir spēkā Siguldas novada pašvaldības domes 2022. gada 18. augusta saistošie noteikumi Nr. 37 "Par ēku, ielu nosaukumu un numerācijas plākšņu izvietošanas kārtību Siguldas novadā", kas izdoti saskaņā ar likuma "Par pašvaldībām" 43. panta pirmās daļas 5. punktu. Saskaņā ar Pašvaldību likuma Pārejas noteikumu 6. punktu dome izvērtē uz likuma "Par pašvaldībām" normu pamata izdoto saistošo noteikumu atbilstību Pašvaldību likumam. Līdz jaunu saistošo noteikumu spēkā stāšanās dienai, bet ne ilgāk kā līdz 2024. gada 30. jūnijam piemērojami uz likuma "Par pašvaldībām" normu pamata izdotie saistošie noteikumi, ciktāl tie nav pretrunā ar šo likumu. 1.4. Pašlaik spēkā esošie Siguldas novada pašvaldības domes 2022. gada 18. augusta saistošie noteikumi Nr. 37 "Par ēku, ielu nosaukumu un numerācijas plākšņu izvietošanas kārtību Siguldas novadā" ir spēkā līdz 2024. gada 30. jūnijam. Alternatīva, kas nodrošinātu ēku numerācijas, māju un ielu nosaukumu plākšņu izskatu un izvietošanu, nepastāv. Atbilstoši minētajam, Siguldas novada pašvaldība izdod jaunus saistošos noteikumus atbilstoši Pašvaldību likumā ietvertajam pilnvarojumam. |
| 2. Fiskālā ietekme uz pašvaldības budžetu | 2.1. Ielu nosaukumu plāksnes izgatavo un
uzstāda Siguldas novada pašvaldība. Līdz ar to, veicot ielu nosaukumu
uzstādīšanu un maiņu, kā arī ēku, kurām Siguldas novada pašvaldība ir
īpašnieks vai tiesiskais valdītājs, numerācijas plākšņu izvietošanu vai
nomaiņu, tas atstās ietekmi uz pašvaldības budžetu, palielinot
pašvaldības budžeta izdevumu daļu.
2.2. Saistošo noteikumu izpilde tiks īstenota esošo cilvēkresursu ietvaros, papildus resursi sakarā ar jaunu institūciju vai darba vietu veidošanu un esošo institūciju kompetences paplašināšana, lai nodrošinātu saistošo noteikumu izpildi, nav nepieciešama. |
| 3. Sociālā ietekme, ietekme uz vidi, iedzīvotāju veselību, uzņēmējdarbības vidi pašvaldības teritorijā, kā arī plānotā regulējuma ietekme uz konkurenci | 3.1. Noteikumi ir saistoši visām fiziskām
un juridiskām personām, kuru īpašumā vai valdījumā Siguldas novada
pašvaldības administratīvajā teritorijā atrodas nekustamais īpašums un
kuras vēlas izvietot ēku numerācijas, māju un ielu nosaukumu plāksnes
Siguldas novadā.
3.2. Sociālā ietekme: tiešas ietekmes nav, bet vienotas prasības ēku numerācijas, māju un ielu nosaukumu plāksnēm veicinās vienota vizuālā tēla uzturēšanu Siguldas novadā. 3.3. Ietekme uz vidi: nav. 3.4. Ietekme uz iedzīvotāju veselību: nav. 3.5. Ietekme uz uzņēmējdarbības vidi: nav. 3.6. Ietekme uz konkurenci: nav. 3.7. Saistošo noteikumu tiesiskais regulējums neradīs mērķgrupai jaunas tiesības, bet uzliks jaunus pienākumus izvietot ēku numerācijas, māju un ielu nosaukumu plāksnes pēc vienota dizaina. |
| 4. Ietekme uz administratīvajām procedūrām un to izmaksām | 4.1. Institūcija, kurā privātpersona var
vērsties saistošo noteikumu piemērošanā: Siguldas novada pašvaldība. 4.2. Saskaņā ar Pašvaldību likuma 44. panta trešo daļu saistošajos noteikumos, kas nodrošina pašvaldības autonomo funkciju izpildi, var paredzēt pašvaldības tiesības izdot tiesiskus pienākumus nosakošus administratīvos aktus, ciktāl tie nepieciešami saistošajos noteikumos ietverto normu īstenošanai. Ņemot vērā minēto, saistošo noteikumu izpildi kontrolēs Būvniecības kontroles pārvalde un Siguldas novada pašvaldības policija. Konstatējot saistošo noteikumu prasību neievērošanu, Būvniecības kontroles pārvalde un Siguldas novada Pašvaldības policija var izdot administratīvo aktu, kas uzliek adresātam pienākumu veikt noteiktas darbības saistošo noteikumu izpildes nodrošināšanai. |
| 5. Ietekme uz pašvaldības funkcijām un cilvēkresursiem | 5.1. Saistošie noteikumi izstrādāti
Pašvaldību likuma 44. panta otrajā daļā ietvertā pilnvarojuma ietvaros. 5.2. Saistošo noteikumu izpilde neietekmēs pašvaldībai pieejamos cilvēkresursus, un tie tiks īstenoti esošo funkciju un resursu ietvaros. |
| 6. Informācija par izpildes nodrošināšanu | 6.1. Saistošo noteikumu izpildes
nodrošināšanā netiek paredzēta jaunu institūciju izveide, esošo
likvidācija vai reorganizācija. 6.2. Saistošo noteikumu izpildi nodrošinās esošās pašvaldības institūcijas: Būvniecības kontroles pārvalde un Siguldas novada Pašvaldības policija. |
| 7. Prasību un izmaksu samērīgums pret ieguvumiem, ko sniedz mērķa sasniegšana | 7.1. Saistošo noteikumu prasības un tā
izpilde radīs izmaksas, kas saistītas ar jaunu ēku numerācijas, māju un
ielu nosaukumu plākšņu izvietošanu vai esošo nomaiņu.
7.2. Saistošie noteikumi paredz tikai saistošo noteikumu mērķa sasniegšanai nepieciešamos nosacījumus pašvaldībā pieejamo resursu ietvaros. |
| 8. Izstrādes gaitā veiktās konsultācijas ar privātpersonām un institūcijām | 8.1. Atbilstoši Pašvaldību likuma 46. panta
trešajai daļai, saistošo noteikumu projekts no 07.05.2024. līdz
21.05.2024. publicēts Siguldas novada pašvaldības tīmekļa vietnē
www.sigulda.lv. 8.2. Par saistošo noteikumu projektu saņemts viens juridiskās personas viedoklis par to, ka saistošo noteikumu 3. pielikumā ietvertās prasības par plākšņu specifikāciju rada priekšrocības konkrētiem uzņēmumiem, kas var nodrošināt nepieciešamo pakalpojumu. Minētais viedoklis ņemts vērā daļēji, precizējot saistošo noteikumu 3. pielikumu, saglabājot numerācijas un nosaukumu plākšņu pamatnes izmērus, bet nenorādot konkrēti izmantojamus materiālus, no kā ir izgatavojamas šīs plāksnes. |
Siguldas novada pašvaldības domes priekšsēdētājs L. Kumskis