
Rēzeknes novada domes saistošie noteikumi: Šajā laidienā 2 Pēdējās nedēļas laikā 1 Visi
Rēzeknes novada pašvaldības domes saistošie noteikumi Nr. 28
Rēzeknē 2022. gada 3. februārī
Prasības regulējamā Rāznas ezera hidrotehniskās būves ekspluatācijas režīmam plūdu draudu novēršanai un administratīvā atbildība par šo prasību pārkāpšanu
APSTIPRINĀTI
Rēzeknes novada domes
2022. gada 3. februāra sēdē (prot. Nr. 4, 1. §)
Izdoti saskaņā ar Ministru kabineta 2011. gada 12. jūlija
noteikumu Nr. 549 "Noteikumi par ūdens objektiem,
kuru hidroloģiskais režīms ir regulējams
ar hidrotehniskajām būvēm" 7. un 9. punktu
1. Saistošie noteikumi apstiprina Rāznas ezera ekspluatācijas (apsaimniekošanas) noteikumus (Pielikums) un nosaka prasības regulējamā Rāznas ezera hidrotehniskās būves ekspluatācijas režīmam plūdu draudu novēršanai, kā arī administratīvo atbildību par šo prasību pārkāpšanu.
2. Regulējamā Rāznas ezera hidrotehnisko būvju apsaimniekotājam plūdu draudu novēršanai jāievēro šādas noteiktās hidrotehnisko būvju ekspluatācijas režīma prasības:
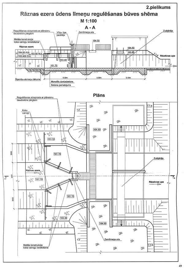
2.1. nodrošināt pirmspalu nostrādes līmeņa uzturēšanu, atbilstoši dispičergrafikam pa datumiem:
2.1.1. no 01.01. līdz 15.02. – no atzīmes 163,83 līdz atzīmei 163,63 m Latvijas normālo augstumu sistēmā (turpmāk tekstā – LAS – 2000,5);
2.1.2. no 16.02. līdz 10.04. – atzīmē 163,63 m LAS – 2000,5;
2.1.3. no 11.04. līdz 30.04. – no atzīmes 163,63 m līdz atzīmei 163,83 m LAS – 2000,5;
2.1.4. no 01.05. līdz gada beigām – atzīmē 163,83 m LAS – 2000,5.
2.2. nodrošināt hidrotehniskās būves pārgāznes uzturēšanu ūdens līmeņa regulēšanai atbilstošā tehniskā stāvoklī;
2.3. veikt hidrotehniskās būves stāvokļa regulārus novērojumus, tos dokumentējot, Rāznas ezera ūdens līmeņu nostrādes palu un plūdu caurplūdumu novadīšanas laikā;
2.4. nepieļaut hidrotehniskās būves ailu nosprostošanos ar peldošiem sanešiem, t.sk. ledus gabaliem, niedrēm, koka zariem, u.tml.
2.5. palu laikā nodrošināt diennakts dežūru hidrotehniskajā būvē;
2.6. noskaidrojot Valsts sabiedrības ar ierobežotu atbildību "Latvijas Vides, ģeoloģijas un meteoroloģijas centrs" prognozi par pavasara paliem vai vasaras – rudens plūdiem ar noteci lielāku par 10 % varbūtību, veikt Rāznas ezera līmeņa nostrādi līdz atzīmei 163,53 m LAS – 2000,5;
2.7. nekavējoties informēt Valsts ugunsdzēsības un glābšanas dienesta Latgales reģiona brigādes Rēzeknes daļu, A/S "Latgales enerģētika" pārvaldnieku, Valsts policiju, neatliekamo medicīnisko palīdzību, Rēzeknes novada pašvaldību un Rēzeknes pilsētas pašvaldību, par plūdu caurplūdumu novadīšanas uzsākšanu, avārijas draudiem vai jau par notikušu avāriju.
3. Administratīvā pārkāpuma procesu par prasību regulējamā Rāznas ezera hidrotehniskās būves ekspluatācijas režīmam plūdu draudu novēršanai pārkāpumiem, līdz administratīvā pārkāpuma lietas izskatīšanai veic:
3.1. Rēzeknes novada pašvaldības Centrālās administrācijas (turpmāk – administrācijas) Administratīvā inspekcija (turpmāk – Administratīvā inspekcija);
3.2. administrācijas Zemes un publisko ūdeņu pārvaldības dienesta vecākais vides aizsardzības speciālists.
4. Administrācijas Zemes un publisko ūdeņu pārvaldības dienesta vecākais vides aizsardzības speciālists un Administratīvā inspekcija ir tiesīgi uzsākt administratīvā pārkāpuma procesu, pamatojoties uz kompetentu valsts institūciju (amatpersonu) akta par Rāznas ezera ekspluatācijas (apsaimniekošanas) noteikumu pārkāpumiem pamata.
5. Administratīvā pārkāpuma lietu izskata Rēzeknes novada pašvaldības Administratīvā komisija.
6. Par regulējamā Rāznas ezera hidrotehnisko būvju ekspluatācijas režīmam plūdu draudu novēršanai prasību pārkāpumiem piemēro naudas sodu no 14 (četrpadsmit) līdz 70 (septiņdesmit) naudas soda vienībām.
7. Atzīt par spēku zaudējušiem Rēzeknes novada pašvaldības 2013. gada 17. janvāra saistošos noteikumus Nr. 94 "Par Rāznas ezera ekspluatācijas (apsaimniekošanas) noteikumiem".
Rēzeknes novada pašvaldības domes priekšsēdētājs M. Švarcs
Paskaidrojuma raksts
Rēzeknes novada pašvaldības saistošajiem noteikumiem "Prasības regulējamā Rāznas
ezera hidrotehniskās būves ekspluatācijas režīmam plūdu draudu novēršanai un
administratīvā atbildība par šo prasību pārkāpšanu"
| Paskaidrojuma raksta sadaļas | Norādāmā informācija |
| 1. Projekta nepieciešamības pamatojums | Šobrīd prasības regulējamā Rāznas ezera
hidrotehniskās būves ekspluatācijas režīmam plūdu draudu novēršanai, kā
arī administratīvo atbildību par šo prasību pārkāpšanu nosaka Rēzeknes
novada pašvaldības 2013. gada 17. janvāra saistošie noteikumi Nr. 94
"Par Rāznas ezera ekspluatācijas (apsaimniekošanas) noteikumiem",
turpmāk – Saistošie noteikumi Nr. 94, kuri spēkā no 2013. gada
23. februāra (publicēti Rēzeknes novada pašvaldības bezmaksas izdevumā
"Rēzeknes Vēstis" 2013. gada 22. februārī Nr. 23 (10952)).
Saskaņā ar Administratīvo teritoriju un apdzīvotu vietu likuma Pārejas noteikumu 17. punktu, 2021. gada pašvaldību vēlēšanās ievēlētā novada dome izvērtē novadu veidojošo bijušo pašvaldību pieņemtos saistošos noteikumus un pieņem jaunus novada saistošos noteikumus. Līdz novada saistošo noteikumu spēkā stāšanās dienai, bet ne ilgāk kā līdz 2022. gada 1. jūnijam, ir spēkā novadu veidojošo bijušo pašvaldību saistošie noteikumi, izņemot saistošos noteikumus par teritorijas plānojumu, kurus izstrādā līdz 2025. gada 31. decembrim. Ņemot vērā Rēzeknes novada pašvaldībā notikušās darba organizācijas un strukturālās izmaiņas saistībā ar administratīvi teritoriālo reformu, lietderīgi izdot jaunus saistošos noteikumus, kas reglamentētu prasības regulējamā Rāznas ezera hidrotehniskās būves ekspluatācijas režīmam plūdu draudu novēršana un administratīvo atbildību par šo prasību pārkāpšanu. |
|
2. Īss projekta satura izklāsts |
Rēzeknes novada pašvaldības saistošie
noteikumi "Par Rāznas ezera ekspluatācijas (apsaimniekošanas)
noteikumiem" izdoti saskaņā ar Ministru kabineta 2011. gada 12. jūlija
noteikumu Nr. 549 "Noteikumi par ūdens objektiem, kuru hidroloģiskais
režīms ir regulējams ar hidrotehniskajām būvēm" 7. un 9. punkta
deleģējumu.
Saistošie noteikumi apstiprina Rāznas ekspluatācijas (apsaimniekošanas) noteikumus, kas izstrādāti 2012. gadā, ievērojot Ministru kabineta 2011. gada 12. jūlija noteikumu Nr. 549 "Noteikumi par ūdens objektiem, kuru hidroloģiskais režīms ir regulējams ar hidrotehniskajām būvēm" noteiktos termiņus un kārtību. Saistošie noteikumi nosaka prasības regulējamā Rāznas ezera hidrotehniskās būves ekspluatācijas režīmam plūdu draudu novēršanai, paredz administratīvo atbildību par šo prasību pārkāpšanu un nosaka amatpersonas, kas veic administratīvo procesu. |
| 3. Informācija par plānoto projekta ietekmi uz pašvaldības budžetu | Saistošo noteikumu īstenošana neietekmē
pašvaldības budžetu.
Lai nodrošinātu saistošo noteikumu izpildi nav nepieciešams veidot jaunas institūcijas vai radīt jaunas darba vietas. |
| 4. Informācija par plānoto projekta ietekmi uz uzņēmējdarbības vidi pašvaldības teritorijā | Saistošie noteikumi attiecināmi uz
Rāznas ezera hidrotehnisko būvju īpašnieku vai tiesisko valdītāju. Uzņēmējdarbības vidi pašvaldības teritorijā Saistošie noteikumi neskars. |
| 5. Informācija par administratīvajām procedūrām | Personas Saistošo noteikumu projekta
piemērošanas jautājumos var griezties Rēzeknes novada pašvaldības
Centrālās administrācijas Administratīvajā inspekcijā. Saistošie noteikumi neskar administratīvās procedūras. |
| 6. Informācija par konsultācijām ar privātpersonām | Sabiedrības līdzdalība Saistošo noteikumu projekta izstrādāšanā netika nodrošināta. |
Rēzeknes novada pašvaldības domes priekšsēdētājs M. Švarcs