
Rīgas domes lēmumi: Šajā laidienā 17 Pēdējās nedēļas laikā 0 Visi
Rīgas pašvaldības dzīvojamo māju privatizācijas komisijas lēmums Nr.26
Rīgā 2019.gada 7.janvārī (prot. Nr.1, 1.§)
Par dzīvojamai mājai Slokas ielā 205, Rīgā, funkcionāli nepieciešamā zemesgabala apstiprināšanu
Pamatojoties uz likuma "Par valsts un pašvaldību dzīvojamo māju privatizāciju" 85.panta piekto daļu, Administratīvā procesa likuma 70.panta pirmo daļu, 76.panta otro daļu, 79.panta pirmo daļu, Paziņošanas likuma 11.panta otro un trešo daļu, Rīgas domes 03.11.2015. saistošo noteikumu Nr.177 "Dzīvojamai mājai funkcionāli nepieciešamā zemesgabala pārskatīšanas saistošie noteikumi" 2., 11. un 12.punktu, ņemot vērā Rīgas domes 21.11.2018. lēmumu Nr.1694 "Par kvartāla starp Zentenes ielu, Auru ielu, Dammes ielu un Anniņmuižas bulvāri tematiskā plānojuma apstiprināšanu", Rīgas pašvaldības dzīvojamo māju privatizācijas komisija nolemj:
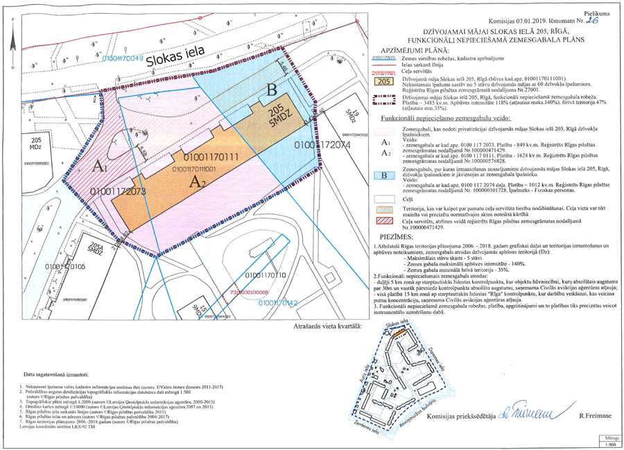
1. Apstiprināt dzīvojamai mājai Slokas ielā 205, Rīgā, funkcionāli nepieciešamā zemesgabala plānu (sk. pielikumu).
2. Noteikt, ka dzīvojamai mājai Slokas ielā 205, Rīgā, funkcionāli nepieciešamā zemesgabala platība ir 3485 m2.
3. Uzdot Privatizācijas objektu sagatavošanas nodaļai divu nedēļu laikā no šī lēmuma pieņemšanas dienas nodrošināt lēmuma publicēšanu oficiālajā izdevumā "Latvijas Vēstnesis", Rīgas pilsētas pašvaldības portālā www.riga.lv un Rīgas pašvaldības dzīvojamo māju privatizācijas komisijas mājas lapā www.rdzmpk.lv.
4. Lēmums stājas spēkā nākamajā dienā pēc paziņojuma publicēšanas oficiālajā izdevumā "Latvijas Vēstnesis".
5. Septiņu darba dienu laikā no šī lēmuma spēkā stāšanās dienas nosūtīt lēmumu Valsts zemes dienestam.
6. Privatizācijas objektu sagatavošanas nodaļa ir atbildīga par lēmuma izpildi.
7. Lēmumu var apstrīdēt pie Rīgas domes priekšsēdētāja Rātslaukumā 1, Rīgā, viena mēneša laikā no tā spēkā stāšanās dienas.
Komisijas priekšsēdētāja R.Freimane