
Rīgas domes lēmumi: Šajā laidienā 23 Pēdējās nedēļas laikā 1 Visi
Rīgas pašvaldības dzīvojamo māju privatizācijas komisijas lēmums Nr.2386
Rīgā 2018.gada 26.oktobrī (prot. Nr.40, 7.§)
Par dzīvojamai mājai Mirdzas Ķempes ielā 5, Rīgā, funkcionāli nepieciešamā zemesgabala apstiprināšanu
Pamatojoties uz likuma "Par valsts un pašvaldību dzīvojamo māju privatizāciju" 85.panta piekto daļu, Administratīvā procesa likuma 70.panta pirmo daļu, 76.panta otro daļu, 79.panta pirmo daļu, Paziņošanas likuma 11.panta otro un trešo daļu, Rīgas domes 03.11.2015. saistošo noteikumu Nr.177 "Dzīvojamai mājai funkcionāli nepieciešamā zemesgabala pārskatīšanas saistošie noteikumi" 2., 11. un 12.punktu, ņemot vērā Rīgas domes 05.07.2016. lēmumu Nr.4072 "Par kvartāla starp Kokneses prospektu, Mirdzas Ķempes ielu un Līgatnes ielu tematiskā plānojuma izstrādes uzsākšanu", Rīgas pašvaldības dzīvojamo māju privatizācijas komisija nolemj:
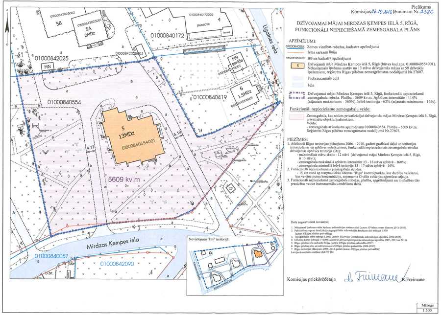
1. Apstiprināt dzīvojamai mājai Mirdzas Ķempes ielā 5, Rīgā, funkcionāli nepieciešamā zemesgabala plānu (sk. pielikumu).
2. Noteikt, ka dzīvojamai mājai Mirdzas Ķempes ielā 5, Rīgā, funkcionāli nepieciešamā zemesgabala platība ir 5609 m2.
3. Septiņu darba dienu laikā no šī lēmuma pieņemšanas nosūtīt lēmumu Valsts zemes dienestam.
4. Uzdot Privatizācijas objektu sagatavošanas nodaļai divu nedēļu laikā no šī lēmuma pieņemšanas dienas nodrošināt lēmuma publicēšanu oficiālajā izdevumā "Latvijas Vēstnesis", Rīgas pilsētas pašvaldības portālā www.riga.lv un Rīgas pašvaldības dzīvojamo māju privatizācijas komisijas mājas lapā www.rdzmpk.lv.
5. Lēmums stājas spēkā nākamajā dienā pēc paziņojuma publicēšanas oficiālajā izdevumā "Latvijas Vēstnesis".
6. Privatizācijas objektu sagatavošanas nodaļa ir atbildīga par lēmuma izpildi.
7. Lēmumu var apstrīdēt pie Rīgas domes priekšsēdētāja Rātslaukumā 1, Rīgā, viena mēneša laikā no tā spēkā stāšanās dienas.
Komisijas priekšsēdētāja R.Freimane