
Jūrmalas pilsētas domes saistošie noteikumi: Šajā laidienā 1 Pēdējās nedēļas laikā 4 Visi
Jūrmalas pilsētas domes saistošie noteikumi Nr.3
Jūrmalā 2017.gada 12.janvārī (prot. Nr.1, 14.p.)
Par Jūrmalas pilsētas pludmales un peldvietu izmantošanu
Izdoti saskaņā ar likuma "Par pašvaldībām"
43.panta pirmās daļas 2. un 4.punktu
I. Vispārīgie jautājumi
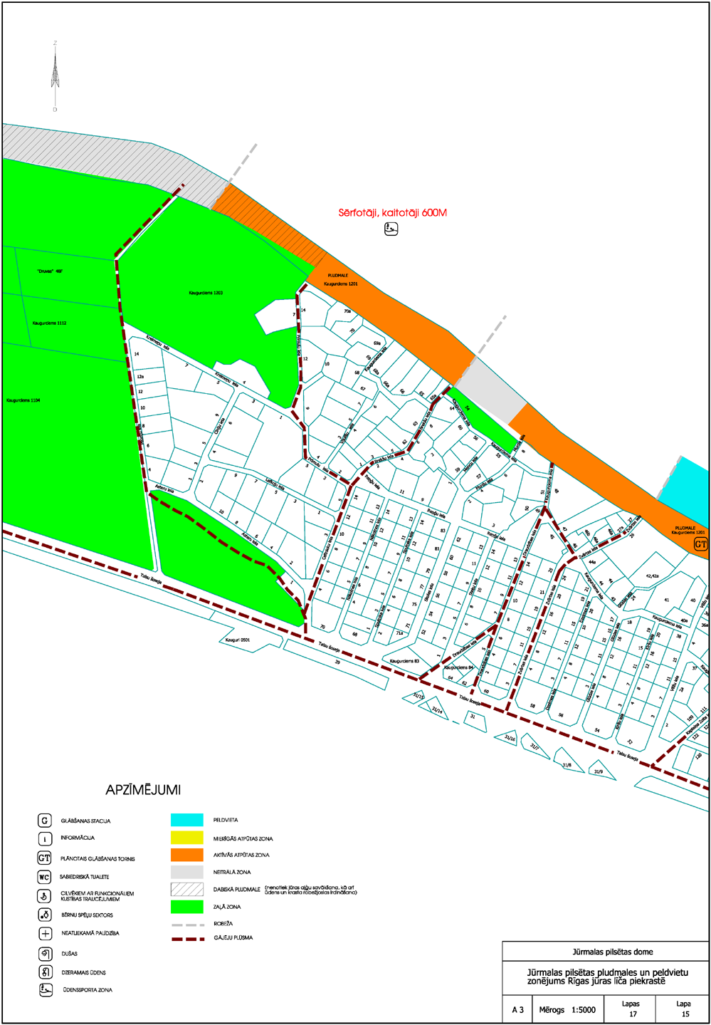
1. Saistošie noteikumi "Par Jūrmalas pilsētas pludmales un peldvietu izmantošanu" (turpmāk – Noteikumi) nosaka Jūrmalas pilsētas pludmales un peldvietu zonu sadalījumu (pielikums), to izmantošanas prasības, kas jāievēro un jāņem vērā uzturoties pludmalē, peldvietās, peldēšanai izmantojamās ūdenstilpēs un ūdenstecēs, kas atbilstoši Ministru kabineta 2002.gada 22.janvāra noteikumiem Nr.34 "Noteikumi par piesārņojošo vielu emisiju ūdenī" minētas kā peldēšanai un citiem rekreācijas pasākumiem piemēroti ūdeņi un atrodas Jūrmalas pilsētas administratīvajā teritorijā.
2. Šo Noteikumu mērķis ir nodrošināt pludmales un peldvietu aizsardzību un uzturēšanu nosakot, tās izmantošanas kārtību.
3. Šajos Noteikumos lietotie termini:
3.1. aktīvās atpūtas zona – paredzēta bumbas, badmintona un citu pludmalei piemērotu spēļu spēlēšanai. Šajā zonā var atrasties arī bērnu rotaļu laukumi, sezonas objekti un īpaši aprīkotas sporta zonas (trenažieru aprīkojums, volejbola, futbola laukumi, tribīnes, laukumi sporta spēļu spēlēšanai, un citām sporta aktivitātēm). Aktīvās atpūtas zonās pēc attiecīgas Jūrmalas pilsētas pašvaldības (turpmāk – Pašvaldība) atļaujas saņemšanas pieļaujama arī publisku pasākumu organizēšana (diskotēkas, vasaras koncerti, sporta sacensības un citas aktivitātes un pasākumi);
3.2. mierīgās atpūtas zona – paredzēta apmeklētājiem, kuri vēlas sauļoties un/vai atpūsties kopā ar bērniem. Šajā zonā var atrasties arī bērnu rotaļu laukumi, sezonas objekti. Mierīgās atpūtas zonās pēc attiecīgas Pašvaldības atļaujas saņemšanas pieļaujama arī publisku pasākumu organizēšana;
3.3. neitrālā zona – pludmales daļa, kas paredzēta dabisko procesu norisei, mazāk ietekmētā teritorija. Paredzēta apmeklētājiem, kuri vēlas sauļoties un peldēties. Var atrasties bērnu rotaļu laukumi, sezonas objekti. Pēc attiecīgas Pašvaldības atļaujas saņemšanas pieļaujama arī publisku pasākumu organizēšana;
3.4. gājēju koridors – teritorija pretī ielām un nobrauktuvēm uz peldvietu 25 metrus no ielas ass, izņēmums Tirgoņu, Vienības, Turaidas ielas un 16.līnija (Paula Stradiņa iela) – 25 metrus uz abām pusēm no nobrauktuves (noejas) malas. Šī zona paredzēta apmeklētāju netraucētai un drošai nokļūšanai pludmalē. Tajā netiek izvietoti sezonas objekti;
3.5. koridors ūdenī – speciāli ar bojām norobežots koridors ūdenī līdz peldēšanai paredzētās robežas, izvietojot bojas abās pusēs ik pēc 10 metriem, lai peldvietās nodrošinātu peldlīdzekļu (katamarānu, ūdens motociklu u.c.) nokļūšanu tam paredzētajās vietās, aiz peldēšanai paredzētās ūdens teritorijas robežas, ūdens koridora platums ir 25 metri, sezonas objekta vajadzībām koridora platums 10 metri (tikai katamarāniem);
3.6. katamarāns – nemotorizēts peldlīdzeklis, kas konstruktīvi paredzēts atpūtai uz ūdens un nesasniedz normatīvajos aktos noteikto izmēru, lai to varētu kvalificēt kā atpūtas kuģi. Katamarānam jābūt aprīkotam ar glābšanas līdzekļiem – glābšanas vestēm, kuru skaits atbilst cilvēku skaitam peldlīdzeklī un glābšanas riņķi;
3.7. kaitbords – ūdens sporta veids, kurā sportists ar pūķa palīdzību virzās pa ūdeni uz speciāli veidota dēļa;
3.8. vindsērfings – ūdens sporta veids, kurā izmanto vējdēli ar buru, kura izmanto vēja spēku;
3.9. sezona – šo Noteikumu izpratnē kalendārā gada laika periods, kas iedalīts pavasara/vasaras sezonā – laika periods gadā no 15.aprīļa līdz 31.oktobrim un rudens/ziemas sezona – laika periods gadā no 1.novembra līdz 14.aprīlim;
3.10. sezonas objekti – āra kafejnīcas (terases, nojumes, paviljoni, tirdzniecības kioski) un sporta laukumu aprīkojums – viegli uzstādāmas konstrukcijas vai objekti, kas paredzēti lietošanai konkrētā sezonā, ievērojot noteikto pludmales zonējumu.
II. Sabiedriskās kārtības noteikumi pludmalē un peldvietās
4. Nobrauktuves, kas minētas šo Noteikumu 6. punktā un ved uz Rīgas jūras līča pludmali, var tikt izmantotas piebraukšanai, lai pievestu peldvietai nepieciešamo aprīkojumu, izceltu ūdens motociklus un citus peldlīdzekļus (aktīvai atpūtai, zvejai), kuru izmantošana atļauta aiz peldēšanai paredzētās ūdens teritorijas robežas. Minēto ielu galos atļauts nobraukt pludmalē ar "B" kategorijas autotransportu peldlīdzekļu pievešanai vai aizvešanai un apgriezties 10 metru rādiusā no ielas ass.
5. Nobrauktuves, kas ved uz Rīgas jūras līča pludmali, var tikt izmantotas transportlīdzekļu piekļūšanai, lai nodrošinātu pludmales apsaimniekošanu un uzturēšanu, operatīvajiem transportlīdzekļiem, kā arī sezonas objektu apkalpošanai, un tās ir:
5.1. Lielupē, 36.līnija;
5.2. Bulduros, Vienības prospekts;
5.3. Majoros, Pilsoņu iela un Turaidas iela;
5.4. Dubultos, Baznīcas iela un Kļavu iela;
5.5. Asaros, Dzimtenes iela;
5.6. Kauguros, Kapteiņa Zolta iela;
5.7. Jaunķemeros, Jaunķemeru ceļš.
6. Pludmalē un peldvietā nav pieļaujama motorizēto ūdens transportlīdzekļu (motorlaivu, kuteru, kuģu, ūdens motociklu) atrašanās un izmantošana, izņemot glābšanas dienestu transportlīdzekļus, valsts un pašvaldības organizētajai kontrolei un apsaimniekošanai paredzētos transportlīdzekļus, kā arī peldlīdzekļi aktīvai atpūtai, zvejai, kuri izmantojami šim nolūkam atvēlētajās vietās, un tās ir:
6.1. Lielupē – 36.līnija;
6.2. Dubultos – Kļavu iela;
6.3. Asaros – Dzimtenes iela;
6.4. Kauguros – Kapteiņa Zolta iela;
6.5. Jaunķemeros – Jaunķemeru ceļš.
7. Šo Noteikumu 6.punktā minētajās vietās ikviens var nogādāt ūdens transportlīdzekli (ūdens motociklu, katamarānu, laivu u.c.) pludmalē, līdz ūdenim, nolaišanai un izcelšanai, telefoniski informējot par šādu darbību Jūrmalas pilsētas Pašvaldības policijas dežūrdaļu.
8. Šo Noteikumu 6.punktā minētajās vietās, peldvietās, pret nobrauktuvēm ir pašvaldības izveidoti ūdens koridori (25 metru platumā), ūdens transportlīdzekļu nokļūšanai aiz peldēšanai paredzētās ūdens teritorijas robežas; sezonas objektu vajadzībām nepieciešams veidot ūdens koridorus (10 metru platumā), saskaņā ar projektu.
9. Peldvietās, kas atrodas Rīgas jūras līča piekrastē ir jāievēro attiecīgā zonējuma atļautā izmantošana.
10. Ar ūdenssporta veidiem (kaitbordu un vindsērfingu) atļauts nodarboties šādās, speciāli tam paredzētās vietās:
10.1. Kauguros (no Brekšu ielas 600 metrus R virzienā);
10.2. Asaros (no peldvietas "Asari" robežas 600 metrus A virzienā);
10.3. Pumpuros (no Upes līdz Gundegas ielai);
10.4. Lielupē (no peldvietas "Lielupe" robežas uz Lielupes grīvas pusi 600 metrus A virzienā).
11. Pludmalē pēc publiska pasākuma rīkošanas pasākumu organizatoram nekavējoties jāsakārto teritorija.
12. Tikai pludmales apsaimniekotājs (pašvaldības izvēlēts) veic pludmales apsaimniekošanas darbus visā pludmales garumā, slapjo smilšu irdināšanu, smilšu sijāšanu un jūras aļģu savākšanu, laika posmā no 24.00 līdz 8.00, atbilstoši Noteikumu pielikumam, izņēmuma gadījumos – apsaimniekotājs (ja apsaimniekotājs nav Pašvaldība) darbus var veikt, saskaņojot ar Pašvaldību visu diennakti.
13. Tādus apsaimniekošanas darbus, kā atkritumu izvešanu un tualešu apsaimniekošanu, atļauts veikt tikai laikā no 24.00 līdz 8.00, izņēmuma gadījumos – apsaimniekotājs darbus var veikt saskaņojot ar Pašvaldību visu diennakti.
14. Pludmalē, tai skaitā peldvietās, aizliegts:
14.1. peldēt tālāk par peldvietas norobežojošām zīmēm (bojām) un speciāli izveidotajos ūdens koridoros;
14.2. peldēties apreibinošo vai psihotropo vielu ietekmē;
14.3. novietot stāvēšanai šo Noteikumu 4.punktā minēto transportlīdzekli pēc peldvietai nepieciešamā aprīkojuma, ūdens motociklu un citus peldlīdzekļu pievešanas vai aizvešanas;
14.4. izvietot šautuves, autodromus un piepūšamus rotaļu laukumus;
14.5. peldvietās izmantot radiovadāmus lidmodeļus (helikopterus, dronus un citas ierīces), izņemot publisku pasākumu laikā, kā arī Pašvaldības vajadzībām.
III. Sezonas objektu saskaņošanas, izvietošanas un izmantošanas kārtība pludmalē
15. Ierosinātājs pludmalē izvietojamiem sezonas objektiem izstrādā projektu atbilstoši apbūves noteikumiem un saskaņo to ar Jūrmalas pilsētas domes Būvvaldes komisiju.
16. Sezonas objektu izvieto uz vienu sezonu atbilstoši saskaņotam konkrētās sezonas projektam.
17. Projekta dokumentāciju (noformētu atbilstoši būvnormatīviem) sezonas objektu izvietošanai ierosinātājs iesniedz Jūrmalas pilsētas domes Pilsētplānošanas nodaļā. Priekšlikumam pievieno šādus dokumentus un grafiskos pielikumus:
17.1. zemes gabala ģenerālplānu ar plānoto objektu un labiekārtojuma elementu izvietojumu (uz topogrāfiskā plāna ar apakšzemes inženierkomunikācijām, ielu sarkanajām līnijām un zemes gabala robežām – M 1:500), kas saskaņots ar atbildīgo dienestu, kura pieslēgums tiks izmantots;
17.2. zemes gabala īpašuma vai lietošanas tiesības apliecinošu dokumentu;
17.3. sezonas objekta ieceri ar izmēriem un piesaistēm – M 1:100 vai M 1:50 (plāns, fasādes, konstruktīvais risinājums, labiekārtojuma elementu dizains, tonālais risinājums);
17.4. sezonas objekta vizualizāciju vides kontekstā;
17.5. darba organizācijas plānu (t.sk. nosakot sezonas objekta izvietošanas periodu, montāžas un demontāžas laika periodu).
18. Sezonas objektu ekspluatāciju var uzsākt pēc Jūrmalas pilsētas domes Pilsētplānošanas nodaļas pozitīva atzinuma saņemšanas. Gadījumos, kad ierosināts būvniecības process, pēc būvvaldes atbildīgās amatpersonas atzīmes par būvdarbu pabeigšanu saņemšanas.
19. Sezonas objekts, pēc saskaņotā termiņa beigām, jādemontē 2 (divu) nedēļu laikā vai saskaņā ar projektā norādītajiem termiņiem, sakārtojot teritoriju.
20. Par sezonas objekta demontāžu jāpaziņo Jūrmalas pilsētas domes Pilsētplānošanas nodaļai, lai saņemtu izziņu par demontāžas faktu.
21. Jebkuru sezonas objektu (t.sk. reklāmas slietņus, sauļošanās krēslus, saulessargus) novieto:
21.1. ne tuvāk kā 25 metrus no noejām uz pludmali;
21.2. ne mazāk kā septiņu metru attālumā no pamatkrasta kāpu līnijas (piekrastes kāpu līnijas);
21.3. ne mazāk kā piecu metru attālumā no pludmalē esošās kāpu veģetācijas (pludmales zonā no priekškāpu un embrionālo kāpu fragmentiem);
21.4. ne mazāk kā 30 metrus no dabā esošās ūdenslīnijas (izņemot zonu no Kapteiņa Zolta ielas līdz Murdu ielai, kurā iespējams šo attālumu samazināt, ņemot vērā dabā esošo ūdenslīniju, bet ne mazāk kā 15 metrus);
21.5. vismaz 25 metru attālumā no pludmalē ierīkotiem pašvaldības bērnu spēļu laukumiem un/vai atpūtas vietām.
22. Sezonas objekts pludmalē jāizvieto ievērojot lineāru pieeju attiecībā pret blakus esošiem sezonas objektiem, lai nodrošinātu lineāras uztveres efektu visas pludmales kopskatā.
23. Sezonas objekti netiek izvietoti pret nobrauktuvēm, noejām/ielām, gājēju koridoru robežās, izņēmumi vietās, kur gājēju plūsma nenotiek – Majoros, Vanagu iela; Bulduros, 3.līnija.
24. Sezonas objektu pludmalē nav atļauts izvietot, ja tas neatbilst konkrētās sezonas klimatiskajiem apstākļiem un netiek nodrošināta to darbība.
25. Sezonas laikā jānodrošina sezonas objekta saimnieciskā darbība atbilstoši saskaņotajam projektam, saņemot pašvaldības izsniegtu atļauju.
IV. Atbildība par Noteikumu neievērošanu un to kontrole
26. Par šo Noteikumu 6.–14.punktā (izņemot 14.3.apakšpunktu) un 15.–25.punktā noteikto prasību neievērošanu – izsaka brīdinājumu vai uzliek naudas sodu fiziskajām personām līdz 350 euro, bet juridiskajām personām līdz 1400 euro.
27. Noteikumu izpildi kontrolē Jūrmalas pilsētas pašvaldības policija. Administratīvos pārkāpumus saskaņā ar sastādītajiem administratīvā pārkāpuma protokoliem izskata Jūrmalas pilsētas domes Administratīvā komisija.
V. Noslēguma jautājumi
28. Ar šo Noteikumu spēkā stāšanos spēku zaudē:
28.1. Jūrmalas pilsētas pašvaldības 2014.gada 12.jūnija saistošie noteikumi Nr.15 "Par Jūrmalas pilsētas pludmales un peldvietu izmantošanu";
28.2. Jūrmalas pilsētas domes 2008.gada 11.decembra lēmums Nr.1077 "Par Jūrmalas pilsētas Rīgas jūras līča piekrastes peldvietu zonējuma apstiprināšanu".
29. Ar šo Noteikumu spēkā stāšanos tiek atcelti Jūrmalas pilsētas pašvaldības 2016.gada 20.oktobra saistošie noteikumi Nr.36 "Par Jūrmalas pilsētas pludmales un peldvietu izmantošanu".
30. Pludmales nogabalu iznomātājiem ar kuriem Pašvaldība noslēgusi nomas līgumu, līdz nomas līguma termiņa beigām, piemērojami noteikumi atbilstoši nomas līgumā noteiktajam.
Jūrmalas pilsētas domes priekšsēdētāja vietniece R.Sproģe
Pielikums
Jūrmalas pilsētas domes 2017.gada 12.janvāra
saistošajiem noteikumiem Nr.3 (prot. Nr.1, 14.p.)
Paskaidrojuma raksts
Jūrmalas pilsētas pašvaldības 2017.gada 12.janvāra saistošajiem noteikumiem Nr.3
"Par Jūrmalas pilsētas pludmales un peldvietu izmantošanu"
|
Paskaidrojuma raksta sadaļas |
Norādāmā informācija |
| 1. Projekta nepieciešamības pamatojums | Likuma "Par pašvaldībām" 43.panta pirmās
daļas 2.punkts noteic, ka dome ir tiesīga izdot saistošus noteikumus,
paredzot administratīvo atbildību par to pārkāpšanu, ja tas nav
paredzēts likumos par publiskā lietošanā esošo mežu un ūdeņu, kā arī par
republikas pilsētas vai novada īpaši aizsargājamo dabas un kultūras
objektu aizsardzību un uzturēšanu. Līdz šim Jūrmalas pilsētas administratīvajā teritorijā bija spēkā Jūrmalas pilsētas pašvaldības 2014.gada 12.jūnija saistošie noteikumi Nr.15 "Par Jūrmalas pilsētas pludmales un peldvietu izmantošanu", kas noteica Jūrmalas pilsētas pludmales un peldvietu izmantošanas prasības, kas jāievēro un jāņem vērā uzturoties pludmalē, peldvietās, peldēšanai izmantojamās ūdenstilpēs un ūdenstecēs, kas atbilstoši Ministru kabineta 2002.gada 22.janvāra noteikumiem Nr.34 "Noteikumi par piesārņojošo vielu emisiju ūdenī" minētas kā peldēšanai un citiem rekreācijas pasākumiem piemēroti ūdeņi un atrodas Jūrmalas pilsētas administratīvajā teritorijā. Minētajos saistošajos noteikumos netika noteikts Jūrmalas pilsētas pludmales un peldvietu zonu sadalījumu. Šobrīd ir izstrādāts kartogrāfiskais materiāls, kas iekļaujams saistošajos noteikumos. Iekļaujot šo materiālu saistošajos noteikumos būtu nepieciešams izdarīt Jūrmalas pilsētas domes 2014.gada 12.jūnija saistošajos noteikumos Nr.15 "Par Jūrmalas pilsētas pludmales un peldvietu izmantošanu" vairāk kā 50% grozījumus. Atbilstoši juridiskās tehnikas prasībām saistošo noteikumu grozījumu projektu nesagatavo, ja tā normu apjoms pārsniegtu pusi no spēkā esošo saistošo noteikumu normu apjoma. Šādā gadījumā sagatavo jaunus saistošos noteikumus. Saskaņā ar Civillikuma 1102.pantu pie publiskajiem ūdeņiem pieder jūras piekrastes josla, kā arī šī panta pielikumā uzskaitītie ezeri un upes. Saskaņā ar Civillikuma 1104.pantu publiskie ūdeņi ir valsts īpašums, jūras piekraste pieder valstij līdz tai vietai, kuru sasniedz jūras augstākās bangas. Civillikuma 1102.panta pielikumā Jūrmalas administratīvajā teritorijā publisko ezeru sarakstā ir norādīts Slokas ezers ar platību 250 ha un publisko upju sarakstā ir norādīta Lielupe un tās atzarojumi – visā garumā. Slokas ezers atrodas Vides aizsardzības un reģionālās attīstības ministrijas valdījumā un Dabas aizsardzības pārvaldes Pierīgas reģionālās administrācijas turējumā/apsaimniekošanā (saskaņā ar Ķemeru nacionālā parka dabas aizsardzības plānu Slokas ezers iekļauts dabas lieguma zonā un jūras pusē skar ainavu aizsardzības zonu). Atbilstoši Zemes pārvaldības likuma 15.panta otrajai daļai vietējā pašvaldība ir valdītājs tās administratīvajai teritorijai piegulošajiem jūras piekrastes ūdeņiem, kā arī tās administratīvajā teritorijā esošajai jūras piekrastes sauszemes daļai un iekšzemes publiskajiem ūdeņiem, kuru valdītājs nav par vides aizsardzību atbildīgā ministrija vai cita ministrija un kuri nav privātpersonu īpašumā. Jūrmalas pilsētas dome ir izmantojusi Ministru kabineta 2012.gada 10.janvāra noteikumu Nr.38 "Peldvietas izveidošanas un uzturēšanas kārtība" 10.punktā deleģētās tiesības izveidot funkcionālos sektorus. Ar saistošajiem noteikumiem tiek noteiktas aktīvās atpūtas un mierīgās atpūtas zonas, lai nodrošinātu pludmales apmeklētājiem un vienlaicīgi videi draudzīgu, kā arī racionālu pludmales apsaimniekošanu, piekrastes ainavas, dabas un atpūtai nepieciešamo resursu aizsardzību un saglabāšanu. Starptautiskās glābēju asociācijas (ILSE) vadlīnijas "Drošība Eiropas peldvietās" nosaka, ka peldvietas nepieciešams norobežot, izmantojot ISO (the International Organization for Standardization) standartu sistēmu. Glābšanas dienesta uzraudzības zonu nosaka līdz 200 metriem, lai nodrošinātu efektīvu peldētāju novērošanu glābšanas torņu vai glābšanas staciju tuvumā. ILSE Riska vadības vadlīnijas nosaka, ka peldvietā, kurā norīkoti glābēji, to skaits nedrīkst būt mazāks par 2 (diviem) kvalificētiem glābējiem uz 200 metriem norobežotā zonā. Ja pludmales operators vēlas noteikt garāku peldvietas daļu, tad jāizmanto ILSE kalkulācijas modeli, lai noteiktu glābēju skaitu nodrošinot alternatīvus risinājumu. |
| 2. Īss projekta satura izklāsts | Saistošo noteikumu mērķis ir nodrošināt
pludmales un peldvietu aizsardzību un uzturēšanu, nosakot peldvietu zonu
sadalījumu un to izmantošanas kārtību. Saistošie noteikumi nosaka
Jūrmalas pilsētas pludmales un peldvietu izmantošanas prasības, kas
jāievēro un jāņem vērā, uzturoties pludmalē, peldvietās, peldēšanai
izmantojamās ūdenstilpēs un ūdenstecēs, kas atbilstoši Ministru kabineta
2002.gada 22.janvāra noteikumiem Nr.34 "Noteikumi par piesārņojošo vielu
emisiju ūdenī" minētas kā peldēšanai un citiem rekreācijas pasākumiem
piemēroti ūdeņi un atrodas Jūrmalas pilsētas administratīvajā teritorijā. Atbilstoši likuma "Par pašvaldībām" 43.panta trešajai daļai dome var pieņemt saistošos noteikumus arī, lai nodrošinātu pašvaldības autonomo funkciju un brīvprātīgo iniciatīvu izpildi. Pašvaldībai ir pienākums nodrošināt publisko ūdeņu, tai skaitā jūras piekrastes joslas, ilgtspējīgu apsaimniekošanu, pārvaldīšanu un saglabāšanu, ievērot normatīvajos aktos noteiktās vides aizsardzības, saimnieciskās darbības un citas prasības. Jūrmalas pilsētas dome, pildot pašvaldības autonomo funkciju atbilstoši likuma "Par pašvaldībām" 15.panta pirmās daļas 2.punktam, šobrīd gādā par savas administratīvās teritorijas labiekārtošanu un sanitāro tīrību, publiski pieejamo teritoriju apsaimniekošanu gan piekrastes joslā, gan Lielupes un Varkaļu kanāla teritorijās. Minētā funkcija tiek pildīta, izsoles kārtībā slēdzot pludmales nogabalu nomas līgumus ar privātpersonām, kas nodrošina videi draudzīgu un racionālu pludmales apsaimniekošanu, piekrastes ainavas, dabas un atpūtai nepieciešamo resursu aizsardzību un saglabāšanu, pludmales iekārtojuma kvalitāti, kas padarītu pludmali pievilcīgāku, krāšņāku un ērtāk izmantojamu Jūrmalas pilsētas iedzīvotājiem un viesiem. Jūrmalas pilsētas pludmale ir viena no iecienītākajām pilsētas atpūtas vietām. Līdz ar to pludmali nepieciešams aprīkot un iekārtot ar sezonas infrastruktūru (piemēram, labierīcības, pārģērbšanās kabīnes, nojumes utt.). Jūrmalas pilsētas Teritorijas plānojums, kurš apstiprināts ar Jūrmalas pilsētas domes 2012.gada 11.oktobra saistošajiem noteikumiem Nr.42 "Par Jūrmalas pilsētas teritorijas plānojuma grafiskās daļas, teritorijas izmantošanas un apbūves noteikumu apstiprināšanu", kurā veikti grozījumi ar Jūrmalas pilsētas domes 2016.gada 24.marta saistošajiem noteikumiem Nr.8 "Par Jūrmalas pilsētas teritorijas plānojuma grozījumu grafiskās daļas, teritorijas izmantošanas un apbūves noteikumu apstiprināšanu". Teritorijas izmantošanas un apbūves noteikumi paredz, ka pludmales zonās atļauts izvietot pludmales infrastruktūru, vieglu konstrukciju īslaicīgas izmantošanas būves tirdzniecības objektiem, ēdināšanas objektiem, pludmales inventāra nomai un citiem atpūtnieku apkalpes objektiem, kas ir uzskatāmi par sezonas objektiem. Tā kā būvnormatīvi un Jūrmalas pilsētas teritorijas plānojums neregulē sezonas būvju vai objektu izvietošanas kārtību, lai nodrošinātu harmonisku publiskās ārtelpas attīstību, Jūrmalas pilsētas domei ar saistošajiem noteikumiem ir jānosaka vides kvalitātes prasības un izvietošanas kritēriji, kā arī jāīsteno kontrole un uzraudzība pār sezonas objektiem publiskajā ārtelpā (t.sk. peldvietās un pludmalē). |
| 3. Informācija par plānoto projekta ietekmi uz pašvaldības budžetu | Tiešas ietekmes nav. |
| 4. Informācija par plānoto projekta ietekmi uz uzņēmējdarbības vidi pašvaldības teritorijā | Saistošie noteikumi ir saistoši jebkurai
fiziskajai un juridiskajai personai, kā arī personai, kurai noslēgts
pludmales nogabalu nomas līgums ar Jūrmalas pilsētas domi. Saistošo noteikumu tiesiskais regulējums personām uzliks pienākumus ievērot Jūrmalas pilsētas pludmales un peldvietu izmantošanas noteikumus, kas nodrošinās vienlīdzīgas tiesības. |
| 5. Informācija par administratīvajām procedūrām | Sezonas objekta izvietošanai pludmalē
jāizstrādā un jāsaskaņo projekts ar Jūrmalas pilsētas domes būvvaldes komisiju. Atļauja sezonas objekta izvietošanai tiek izsniegta uz vienu sezonu. Projekta dokumentāciju par sezonas objekta izvietošanu jāiesniedz Jūrmalas pilsētas domes Pilsētplānošanas nodaļā. Par saistošo noteikumu pārkāpumu sastādīt administratīvā pārkāpumu protokolu ir pilnvarotas Jūrmalas pilsētas pašvaldības policijas amatpersonas. Lietvedību administratīvo pārkāpumu lietās veic Jūrmalas pilsētas Administratīvā komisija Latvijas Administratīvo pārkāpuma kodeksā noteiktajā kārtībā. No saistošajos noteikumos iekļautajām normām Jūrmalas pilsētas pašvaldības policijas un Administratīvās komisijas funkcijas un uzdevumi netiek paplašināti vai sašaurināti. Saistošo noteikumu piemērošanā privātpersona var vērsties Jūrmalas pilsētas pašvaldības policijā vai Jūrmalas pilsētas domē. |
| 6. Informācija par konsultācijām ar privātpersonām | Saistošo noteikumu izstrādes procesā notikušas konsultācijas Jūrmalas pilsētas domes izveidotajā darba grupā, kurā piedalījušies Jūrmalas pilsētas pašvaldības policijas, Glābšanas dienesta, Pilsētplānošanas nodaļas, Īpašumu pārvaldes, Inženierbūvju un ģeodēzijas nodaļas, Attīstības pārvaldes, Vides nodaļas, Sporta servisa centra un Juridiskā nodrošinājuma nodaļas pārstāvji. Ņemti vērā Latvijas Kaitsērfinga asociācijas priekšlikumi attiecībā uz pludmales zonējumu par vietām, kur atļaut nodarboties ar kaitbordu un vindsērfingu. |
Jūrmalas pilsētas domes priekšsēdētāja vietniece R.Sproģe