
Ministru kabineta rīkojumi: Šajā laidienā 9 Pēdējās nedēļas laikā 2 Visi
Ministru kabineta rīkojums Nr.188
Rīgā 2013.gada 8.maijā (prot. Nr.27 17.§)
Par valsts nekustamā īpašuma Višķu ielā 21K un Višķu ielā 21R, Daugavpilī, daļas nodošanu Daugavpils pilsētas pašvaldības īpašumā
1. Saskaņā ar Publiskas personas mantas atsavināšanas likuma 43.pantu atļaut valsts akciju sabiedrībai "Privatizācijas aģentūra" nodot bez atlīdzības Daugavpils pilsētas pašvaldības īpašumā šādus valstij piederošos nekustamos īpašumus, kas ierakstīti zemesgrāmatā uz valsts vārda valsts akciju sabiedrības "Privatizācijas aģentūra" personā:
1.1. nekustamā īpašuma (nekustamā īpašuma kadastra Nr. 0500 007 1610) Višķu ielā 21K, Daugavpilī, sastāvā esošās zemes vienības (kadastra apzīmējums 0500 007 1609) daļu 4577 m2 platībā. Atsavināmās daļas robežu shēma un robežlīnijas robežpunktu koordinātas ir minētas šā rīkojuma 1. un 2.pielikumā;
1.2. nekustamā īpašuma (nekustamā īpašuma kadastra Nr. 0500 007 1617) Višķu ielā 21R, Daugavpilī, sastāvā esošās zemes vienības (kadastra apzīmējums 0500 007 1617) daļu 1467 m2 platībā. Atsavināmās daļas robežu shēma un atsavināmās daļas robežlīnijas robežpunktu koordinātas ir attēlotas šā rīkojuma 3. un 4.pielikumā.
2. Valsts akciju sabiedrībai "Privatizācijas aģentūra" nodot bez atlīdzības Daugavpils pilsētas pašvaldības īpašumā šā rīkojuma 1.punktā minētos nekustamos īpašumus pēc nekustamā īpašuma (nekustamā īpašuma kadastra Nr. 0500 007 1610) Višķu ielā 21K, Daugavpilī, un nekustamā īpašuma (nekustamā īpašuma kadastra Nr. 0500 007 1617) Višķu ielā 21R, Daugavpilī, sadalīšanas.
3. Daugavpils pilsētas pašvaldībai saskaņā ar Publiskas personas mantas atsavināšanas likuma 42.panta pirmo daļu šā rīkojuma 1.punktā minētos nekustamos īpašumus:
3.1. izmantot pašvaldības funkcijas nodrošināšanai – gādāt par pašvaldības administratīvās teritorijas labiekārtošanu un sanitāro tīrību (ielu, ceļu un laukumu būvniecība, rekonstrukcija un uzturēšana);
3.2. bez atlīdzības nodot valstij, ja tie vairs netiek izmantoti šā rīkojuma 3.1.apakšpunktā minētās funkcijas nodrošināšanai.
Ministru prezidents V.Dombrovskis
Vides aizsardzības un
reģionālās attīstības ministrs E.Sprūdžs
1.pielikums
Ministru kabineta
2013.gada 8.maija
rīkojumam Nr.188
Nekustamā īpašuma (nekustamā īpašuma kadastra Nr. 0500 007 1610) Višķu ielā 21K, Daugavpilī, atsavināmās daļas robežu shēma
Vides aizsardzības un
reģionālās attīstības ministrs E.Sprūdžs
2.pielikums
Ministru kabineta
2013.gada 8.maija
rīkojumam Nr.188
Nekustamā īpašuma (nekustamā īpašuma kadastra Nr. 0500 007 1610) Višķu ielā 21K, Daugavpilī, atsavināmās daļas robežlīnijas robežpunktu koordinātas
Koordinātu sistēma LKS-92 TM
|
Nr. |
X |
Y |
|
7 |
197717,60 |
660071,34 |
|
283 |
197718,99 |
660075,70 |
|
252 |
197680,39 |
660088,48 |
|
13 |
197681,80 |
660092,79 |
|
12 |
197663,18 |
660099,19 |
|
11 |
197658,11 |
660108,08 |
|
6 |
197662,30 |
660120,63 |
|
291 |
197658,41 |
660122,00 |
|
290 |
197676,20 |
660174,24 |
|
283 |
197671,38 |
660175,88 |
|
277 |
197664,21 |
660177,95 |
|
239 |
197651,44 |
660183,07 |
|
234 |
197636,14 |
660138,23 |
|
238 |
197628,74 |
660117,10 |
|
4 |
197619,21 |
660113,85 |
|
237 |
197616,73 |
660113,00 |
|
236 |
197573,60 |
660127,39 |
|
233 |
197571,25 |
660120,17 |
|
14 |
197607,32 |
660108,02 |
|
232 |
197637,30 |
660097,91 |
|
278 |
197614,54 |
660029,79 |
|
15 |
197622,57 |
660027,39 |
|
10 |
197631,19 |
660024,81 |
|
9 |
197650,69 |
660083,40 |
|
8 |
197663,03 |
660089,57 |
Vides aizsardzības un
reģionālās attīstības ministrs E.Sprūdžs
3.pielikums
Ministru kabineta
2013.gada 8.maija
rīkojumam Nr.188
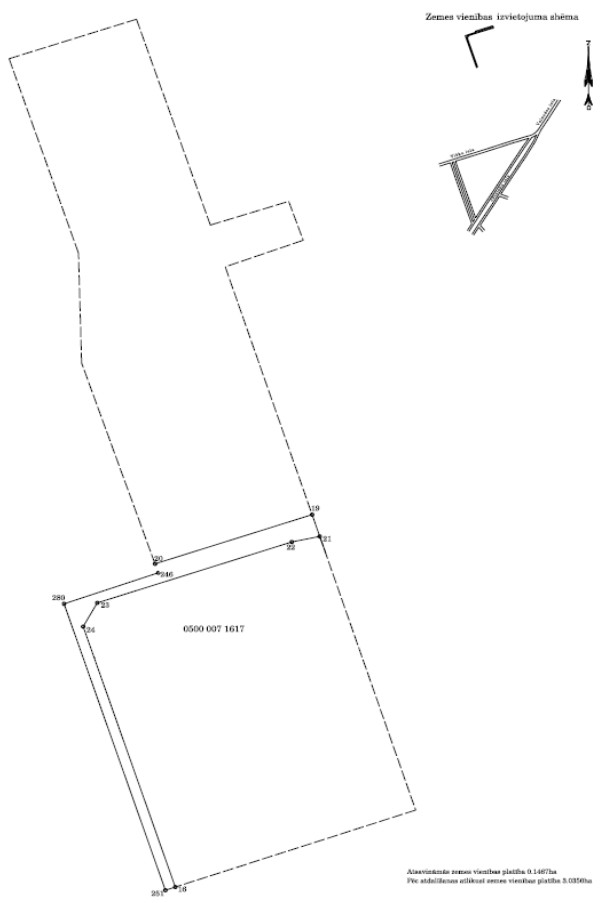
Nekustamā īpašuma (nekustamā īpašuma kadastra Nr. 0500 007 1617) Višķu ielā 21R, Daugavpilī, atsavināmās daļas robežu shēma
Vides aizsardzības un
reģionālās attīstības ministrs E.Sprūdžs
4.pielikums
Ministru kabineta
2013.gada 8.maija
rīkojumam Nr.188
Nekustamā īpašuma (nekustamā īpašuma kadastra Nr. 0500 007 1617) Višķu ielā 21R, Daugavpilī, atsavināmās daļas robežlīnijas robežpunktu koordinātas
Koordinātu sistēma LKS-92 TM
|
Nr. |
X |
Y |
|
20 |
198131,14 |
659982,87 |
|
19 |
198153,46 |
660050,10 |
|
21 |
198143,55 |
660053,38 |
|
22 |
198141,09 |
660041,43 |
|
23 |
198113,45 |
659958,15 |
|
24 |
198102,74 |
659952,09 |
|
16 |
197984,71 |
659991,54 |
|
251 |
197983,28 |
659987,31 |
|
280 |
198113,04 |
659943,91 |
|
246 |
198127,08 |
659984,27 |
Vides aizsardzības un
reģionālās attīstības ministrs E.Sprūdžs