
Rīgas domes saistošie noteikumi: Šajā laidienā 1 Pēdējās nedēļas laikā 1 Visi
Rīgas domes saistošie noteikumi Nr. RD-23-201-sn
Rīgā 2023. gada 31. maijā (prot. Nr. 90, 8. §)
Par reklāmas, reklāmas objektu un citu informatīvo materiālu izvietošanas un afišu stabu un stendu izmantošanas kārtību Rīgā
Precizēti
Rīgas domes 2024. gada 17. aprīļa sēdē Nr. 117
Precizēti
Rīgas domes 2024. gada 21. februāra sēdē Nr. 113
Izdoti saskaņā ar Pašvaldību likuma 45. panta otrās daļas
4. punktu,
Reklāmas likuma 7. panta trešo daļu, Priekšvēlēšanu aģitācijas likuma
22.1 panta otro daļu un Ministru kabineta 2012. gada 30. oktobra
noteikumu Nr. 732 "Kārtība, kādā saņemama atļauja reklāmas
izvietošanai publiskās vietās vai vietās, kas vērstas
pret publisku vietu" 28. un 45. punktu
I. Vispārīgie jautājumi
1. Saistošie noteikumi nosaka reklāmas, priekšvēlēšanas aģitācijas materiālu, citu informatīvo materiālu (turpmāk – reklāma) un reklāmas objektu izvietošanas kārtību, vietas, kurās aizliegta reklāmas un reklāmas objektu izvietošana, afišu stabu un stendu izmantošanas kārtību, kā arī kārtību, kādā veicama reklāmas un reklāmas objektu izvietošanas uzraudzība un kontrole.
2. Saistošo noteikumu mērķis ir veidot harmoniski attīstītu pilsētvidi, nosakot reklāmas un reklāmas objektu izvietošanu, afišu stabu un stendu izmantošanas kārtību un ekspluatācijas prasības publiskās vietās Rīgas valstspilsētas pašvaldības (turpmāk arī – pašvaldība) administratīvajā teritorijā, kā arī vietās, kas vērstas pret publisku vietu.
3. Tiesības izvietot reklāmu un reklāmas objektu ir visām personām, kas Ministru kabineta noteiktajā kārtībā Rīgas valstspilsētas pašvaldības Pilsētas attīstības departamentā (turpmāk – Departaments) saņēmušas reklāmas izvietošanas atļauju, kā arī samaksājušas pašvaldības nodevu par reklāmas izvietošanu publiskās vietās vai vietās, kas vērstas pret publisku vietu (turpmāk – pašvaldības nodeva). Patvaļīga reklāmas un reklāmas objekta izvietošana, eksponēšana un patvaļīga reklāmas grafiskā dizaina maiņa ir aizliegta.
4. Par grafiskā dizaina maiņu netiek uzskatīta kultūras iestāžu repertuāra maiņa, ja objekts atrodas uz kultūras iestādes ēkas fasādes un ja reklāmas objektam, uz kura tiek izvietota šī informācija, ir saņemta reklāmas izvietošanas atļauja.
5. Departaments izvērtē, vai, izvietojot reklāmu un reklāmas objektu, tiek:
5.1. nodrošināta Rīgas pilsētai raksturīgās arhitektūras un vides saglabāšana;
5.2. saglabāts konkrētās pilsētvides zonas apbūves raksturs un mērogs saskaņā ar teritorijas plānojumu, lokālplānojumu, detālplānojumu un teritorijas izmantošanas un apbūves noteikumiem;
5.3. valsts aizsargājamā kultūras pieminekļa teritorijā un aizsardzības zonā nodrošināts, lai to izvietojums un veids netraucē valsts aizsargājamā kultūras pieminekļa vizuālo uztveri, neizjauc kultūrvēsturiskās vides tēlu, kā arī vērtību kopuma radīto noskaņu.
6. Izvietojot reklāmu, kas atbrīvota no pašvaldības nodevas, ziņas par pasākumu sponsoriem un atbalstītājiem (logotipi, komersantu firmas, juridisku personu nosaukumi, preču zīmes) nedrīkst aizņemt vairāk par 20 % no reklāmas kopējās vizuālās informācijas platības; šo informāciju izvieto norobežotā laukumā plakāta malā.
7. Aizliegts:
7.1. izvietot reklāmu un reklāmas objektu, kas nav realizēts atbilstoši vizualizācijai, kas pievienota reklāmas izvietošanas atļaujai;
7.2. izvietot reklāmu un reklāmas objektu, kurā nav izpildīti reklāmas izvietošanas atļaujā norādītie nosacījumi;
7.3. eksponēt mehāniski vai korozijas bojātu, saplaisājušu, notraipītu, krāsojuma detaļu vai izgaismojuma defektus saturošu reklāmu un reklāmas objektu;
7.4. izvietot izkārtni, ja izkārtnē norādītā saimnieciskā darbība vai sniegtais pakalpojums neatbilst attiecīgās būves vai telpu grupas, kurā tiek veikta saimnieciskā darbība, lietošanas veidam vai tiek sniegts patvaļīgi uzbūvētā būvē;
7.5. reklāmu un reklāmas objektu stiprināt pie kokiem;
7.6. uzkrāsot, uzlīmēt, gravēt, izklāt reklāmu uz ceļa seguma (izņemot tirdzniecības centru un universālveikalu teritorijas ārpus Rīgas vēsturiskā centra);
7.7. izmantot reklāmas objektu ar skaņas efektiem:
7.7.1. diennakts tumšajā laikā (no plkst. 23.00 līdz plkst. 6.00);
7.7.2. mobilajās reklāmās;
7.7.3. tuvāk par 100 m no izglītības, veselības un kultūras iestāžu zemes vienību robežām;
7.7.4. Rīgas vēsturiskajā centrā un tā aizsardzības zonā, apbūves aizsardzības teritorijās un valsts nozīmes pilsētbūvniecības pieminekļu teritorijā vai uz būves, kas iekļauta valsts aizsargājamo kultūras pieminekļu sarakstā;
7.7.5. ārpus teritorijām, kuru plānotā (atļautā) izmantošana saskaņā ar Rīgas domes 2021. gada 15. decembra saistošajiem noteikumiem Nr. 103 "Rīgas teritorijas izmantošanas un apbūves saistošie noteikumi" apstiprinātās Rīgas teritorijas plānojuma grafiskās daļas karti "Funkcionālais zonējums" noteikta kā jauktas centra apbūves teritorija (JC4), rūpnieciskās apbūves teritorija (R), tehniskās apbūves teritorija (TA1 un TA2), kā arī tuvāk par 100 m no esošajām dzīvojamām mājām un minēto funkcionālo zonu robežām ar funkcionālajām zonām, kurās atļauta dzīvojamā apbūve;
7.8. reklāmā izmantot gaismas iekārtas ar bākuguns veida efektu;
7.9. izvietot reklāmu un reklāmas objektu, kas novilkti starp kokiem, stabiem, ēkām, inženierbūvēm un citām konstrukcijām;
7.10. bez speciāli izgatavotām nesošajām konstrukcijām izvietot (apsiet, aplīmēt u. tml.) reklāmu ap apgaismes, elektropiegādes un citiem stabiem un balstiem;
7.11. azartspēļu organizēšanas vietā vai izklaides un pasākumu norises vietās, kurās notiek intīma rakstura izklaides, reklāmā izmantot gaismas specefektus (piemēram, mirgojošas gaismas, gaismas vadus) un digitālos ekrānus;
7.12. izvietot reklāmu un reklāmas objektu uz tiltiem pār Daugavu, tajā skaitā kādreizējā Dzelzs tilta balstiem, un Pilsētas kanālu (uz to konstrukcijām, balstiem, apgaismes stabiem, tramvaju un trolejbusu gaisa līniju balstiem, kā arī uz tiem projektēt speciālas konstrukcijas reklāmas objektu uzstādīšanai) posmos, kas projicējas pret ūdeni;
7.13. izvietot reklāmas objektu uz ūdens, arī izmantojot dažādus peldlīdzekļus (pontonus, plostus, kuģus, laivas u. tml.) un reklāmas izvietošanas palīglīdzekļus. Aizliegums neattiecas uz tūrisma un maršruta kuģiem un publiska pasākuma, ja tas norisinās uz ūdens, reklāmu.
8. Reklāmas devējs veic reklāmas un reklāmas objekta (izņemot izkārtnes) demontāžu, sakārtojot zemesgabalu vai būvi, uz kuras bija izvietots reklāmas objekts, tajā skaitā veicot reklāmas konstrukciju un pamatu demontāžu, ja beidzies reklāmas izvietošanas atļaujas termiņš.
9. Reklāmas devējs veic izkārtnes demontāžu pēc reklāmas devēja saimnieciskās darbības veikšanas beigām zemesgabalā vai būvē, uz kuras izvietota izkārtne, sakārtojot izkārtnes izvietošanas vietu, tajā skaitā veicot reklāmas konstrukciju un pamatu demontāžu.
10. Ja reklāmas objekts apdraud trešo personu dzīvību, veselību vai mantu, reklāmas devējam, bet, ja tāda nav vai tāds nav atrodams, tad zemesgabala vai būves, uz kuras izvietots reklāmas objekts, īpašniekam vai tiesiskajam valdītājam ir pienākums nekavējoties veikt reklāmas objekta sakārtošanu vai demontāžu.
II. Reklāmas un reklāmas objekta bez piesaistes zemei izvietošanas nosacījumi
11. Aizliegts:
11.1. izvietot uz ēkām reklāmu un reklāmas objektu, kas pārveido ēkas siluetu vai traucē kultūrvēsturisku vērtību uztveri;
11.2. aizsegt ar reklāmu un reklāmas objektu arhitektoniskas detaļas (logus, dzegas, fasādes dekorus u. c.);
11.3. izvietot reklāmu un reklāmas objektus uz erkeriem, balkoniem, lodžijām, ja tajos nav speciāli paredzēta vieta reklāmas izvietošanai;
11.4. pārblīvēt ēkas fasādi un ēkai piesaistīto apkārtējo vidi ar dažāda veida un kolorīta reklāmām un reklāmas objektiem;
11.5. izvietot izkārtni uz iekārtām, kuru novietošana nav saskaņota, patvaļīgi uzbūvētām būvēm vai būvēm, kurās konstatēta patvaļīga fasādes vai inženierbūves pārbūve vai atjaunošana;
11.6. izvietot reklāmu uz dekoratīvā pārsega, ja dekoratīvais pārsegs pilnībā nenosedz ēkas attiecīgās fasādes laukumu;
11.7. izvietot reklāmu un reklāmas objektu, ja reklāmas izvietošanai paredzētā konkrētā fasāde, tās daļa vai inženierbūve ir nesakoptā stāvoklī (piemēram, nodrupis dekoratīvais apmetums u. tml.) vai apzīmēta ar grafiti zīmējumiem.
12. Reklāmu un reklāmas objektu, kas ir saistīts ar nekustamā īpašuma, kurā izvietota reklāma, pārdošanu, iznomāšanu vai izīrēšanu, ir atļauts izvietot uz ēkas balkona margām vai lodžijas margām, ja ēka atrodas ārpus Rīgas vēsturiskā centra un ēka nav iekļauta valsts aizsargājamo kultūras pieminekļu sarakstā. Izvietotā reklāma un reklāmas objekts nedrīkst negatīvi ietekmēt ēkas arhitektonisko veidolu un publiskās ārtelpas kvalitāti.
13. Saistošo noteikumu 11.2. un 11.3. apakšpunktā minētie ierobežojumi neattiecas uz Rīgas cirka ēku, akreditēto muzeju, Kultūras ministrijas un/vai pašvaldības padotībā esošo teātru, koncertzāļu un izstāžu zāļu reklāmu par to organizētiem pasākumiem, kas norisinās ēkā, pie kuras tiek izvietots reklāmas objekts.
14. Izvietojot reklāmu un reklāmas objektu, ievēro:
14.1. ēkas arhitektonisko kompozīciju, proporcijas un fasādes tekstūru, un tonālo risinājumu;
14.2. fasādes dalījumu ar logiem, durvīm, dzegām u. c. arhitektoniskiem elementiem, kā arī, stiprinot reklāmas objektu pie ēkas fasādes, nodrošina pēc iespējas mazākus fasādes bojājumus;
14.3. materiālu, no kā veidota reklāma un reklāmas objekts, kvalitāti un saderību ar ēkas fasādi, lai tie būtu kvalitatīvi un veidotu ar ēkas fasādi vienotu arhitektūras kompozīciju un stilistiku;
14.4. iedibināto dizainiski augstvērtīgu reklāmas objektu izvietojumu ielas perspektīvā pie būvēm, veidojot vienotu kompozicionālu un stilistiski saskanīgu vizuālo risinājumu (izmēru, mērogu, dizainu) atbilstoši saistošo noteikumu 5. pielikumā norādītajiem paraugiem;
14.5. nosacījumu, ka nedrīkst būt redzami reklāmas montāžas stiprinājumi;
14.6. nosacījumu, ka elektropiegādes kabeļi nedrīkst būt redzami ēkas fasādē, ja reklāmas objekts pievienots elektrosistēmai.
15. Reklāmu uz sieta, kas izvietots uz fasādes sastatnēm, var izvietot ne ilgāk kā vienu gadu, savukārt reklāmas izvietošanas uz ēkas fasādes dekoratīvā pārsega termiņš nedrīkst pārsniegt atļaujā par dekoratīvā pārsega izvietošanu noteikto dekoratīvā pārsega izvietošanas maksimālo termiņu. Reklāmas laukums uz sieta vai dekoratīvā pārsega nedrīkst pārsniegt 50 % no pārsega vienas fasādes laukuma.
16. Ja reklāmas objekts izvietots perpendikulāri ēkas fasādei:
16.1. aizliegts izmantot digitālos ekrānus;
16.2. maksimāli pieļaujamais reklāmas objekta izvirzījums ir 1,3 m, ja attālums no reklāmas ārējās malas līdz brauktuvei nav mazāks par 0,7 m un netiek aizsegta ielas perspektīva;
16.3. tā apakšējā mala nedrīkst atrasties zemāk par 3 m. Zemāki izvirzījumi līdz 2,5 m ir atļauti, ja ēkas fasādes arhitektoniskais risinājums un proporcijas neļauj ievērot 3 m augstumu, izvirzījums nav lielāks par 0,5 m un ietves platums no reklāmas objekta ārējās malas līdz brauktuvei ir ne mazāks kā 1,5 m.
17. Izvietojot reklāmas objektu paralēli ēkas fasādei, audumu vai citu elastīgu materiālu (PVC audumu u. tml.) pie fasādes atļauts izmantot tikai nospriegotā veidā.
18. Uz ēku stikla fasādēm:
18.1. atļauts izvietot reklāmu un reklāmas objektu, kura laukums nepārsniedz 25 % no vienas fasādes plaknes;
18.2. atļauts izvietot reklāmas objektus starpstāvu seguma līnijā atbilstoši fasādes dalījumam, veidojot kompleksu risinājumu.
19. Izvietojot reklāmu loga, skatloga un durvju vērtņu stiklotajās daļās, aizliegts aizlīmēt vairāk par 25 % no katras rūts laukuma.
20. Atļauts aizlīmēt logus, skatlogus un durvju vērtņu stiklotās daļas telpu remonta, pārbūves, atjaunošanas vai restaurācijas laikā ar reklāmu par veikalu, iestādi u. tml., kas attiecīgajās telpās tiks iekārtota pēc būvdarbu vai remontdarbu pabeigšanas, uz periodu, kas nepārsniedz trīs mēnešus.
21. Izvietojot reklāmu un reklāmas objektu uz žoga vai vārtiem:
21.1. atļauts aizsegt ne vairāk par 25 % no caurredzama žoga vai vienas vārtu sekcijas laukuma;
21.2. reklāmas objektu atļauts izvirzīt virs žoga vai vārtiem ne vairāk par 30 % no žoga vai vārtu augstuma;
21.3. aizliegts izvietot reklāmas objektu, ja žogs vai vārti ir kalti vai mākslinieciski veidoti, izņemot izkārtni, kura sastāv no metāla plāksnes (līdz A3 formātam), telpiskiem burtiem vai telpiskiem logotipiem;
21.4. reklāmai paredzēto audumu vai citu elastīgu materiālu (PVC audumu u. tml.) atļauts izmantot tikai nospriegotā veidā.
22. Izvietojot reklāmu un reklāmas objektu Rīgas vēsturiskajā centrā un tā aizsardzības zonā, apbūves aizsardzības teritorijās un valsts nozīmes pilsētbūvniecības pieminekļu teritorijā, vai uz būves, kas iekļauta valsts aizsargājamo kultūras pieminekļu sarakstā, papildus ievēro šādus nosacījumus:
22.1. aizliegts izvietot reklāmas objektu perpendikulāri fasādei, izņemot izkārtni;
22.2. jāizvieto mākslinieciski augstvērtīgs reklāmas objekts, un tas nedrīkst pazemināt pieminekļa kultūrvēsturisko vērtību;
22.3. aizliegts izvietot reklāmas objektu, kas projicējas jumtu ainavā;
22.4. aizliegts izkārtnē izmantot audumu vai citu elastīgu materiālu (PVC audumu, karogus u. tml.), izņemot izkārtnes, kas izvietotas uz kultūras un sporta iestāžu ēkas fasādēm, kā arī uz tirdzniecības centriem;
22.5. reklāmās uz ēkas fasādes (tajā skaitā uz sienas un jumta) atļauts izvietot tikai telpiskus burtus un logotipus bez fona pamatnes vai ar fona pamatni bez tonējuma (caurspīdīgu) vai fasādes tonī (izņemot Rīgas vēsturiskā centra daļu "Vecrīga" (turpmāk – Vecrīga), kur nav atļauta fona pamatne fasādes tonī), vai materiālā (metālā, kokā, stiklā u. c.) atveidotus burtus vai uz fasādes krāsotus burtus, ja to izvietojums uz ēkas fasādes netraucē ēkas vizuālo uztveri un nemazina ēkas kultūrvēsturisko vērtību, kā arī ir atbilstošs konkrētās pilsētvides zonas apbūves raksturam un mērogam.
23. Saistošo noteikumu 22.5. apakšpunktā minētie nosacījumi neattiecas uz:
23.1. reklāmu, ko izvieto uz ēkas fasādes sienas, kurā nav logu, vai ēkas fasādes sienas daļā, kurā nav logu, ja attiecīgās fasādes vienlaidu (horizontāli vai vertikāli) daļas laukums, ko neaizņem logi un kurā var izvietot reklāmu, ir lielāks par 30 % no fasādes kopējā laukuma (izvietojums saskaņā ar saistošo noteikumu 7. pielikumā norādītajiem paraugiem);
23.2. izkārtni uz kultūras, sporta iestāžu un tirdzniecības centru ēku fasādes;
23.3. izkārtni (plāksnīti), kura satur informāciju par personām, kuras ēkā veic saimniecisko darbību (atbilstoši saistošo noteikumu 6. pielikumam);
23.4. izkārtni, kuru izvieto perpendikulāri ēkas fasādei.
24. Izvietojot reklāmu un reklāmas objektu Vecrīgā, papildus ievēro šādus nosacījumus:
24.1. reklāma un reklāmas objekts nedrīkst dominēt pār apkārtējo apbūvi, kolorītu un izgaismojumu;
24.2. reklāma nedrīkst būt veidota spilgtos toņos, ieteicams ir klusināts vai monohroms kolorīts;
24.3. reklāmas kompozīcijai jābūt līdzsvarotai, tā nedrīkst būt agresīva un tajā nedrīkst izmantot hipertrofētus elementus;
24.4. perpendikulāra reklāmas objekta izvirzījums nedrīkst būt lielāks par 0,9 m un nedrīkst pārsniegt ietves platumu;
24.5. aizliegta reklāmas un reklāmas objekta izvietošana pie stabiem;
24.6. aizliegta gaismas projekciju izmantošana reklāmā.
25. Ēkā, kurā saimniecisko darbību veic vairākas personas, izkārtnes (plāksnītes) pie ieejas uz fasādes jāizvieto secīgi, atbilstoši saistošo noteikumu 6. pielikumā norādītajiem paraugiem.
26. Rīgas vēsturiskajā centrā aizliegts izvietot digitālos ekrānus uz būvēm, izņemot sabiedriskā transporta pieturvietu nojumes.
III. Reklāmas objektu ar piesaisti zemei izvietošanas nosacījumi
27. Izvietojot reklāmas objektu ar piesaisti zemei, ievēro šādus nosacījumus:
27.1. tas nedrīkst aizsegt skatu uz pilsētas panorāmu, pieminekļiem, valsts aizsargājamo kultūras pieminekļu sarakstā ietvertiem objektiem, baznīcām un ielu perspektīvu;
27.2. izvietojot reklāmas objektu bez pamatiem, aizliegta redzamu atsvaru, redzamu pamatnes balstu un atsaišu lietošana;
27.3. viena skata perspektīvā reklāmas objektiem jābūt vizuāli saskanīgiem;
27.4. to aizliegts izvietot parkos, skvēros (aizliegums neattiecas uz valsts un pašvaldībai piederošiem reklāmas objektiem, pašvaldībai piederošiem afišu stabiem un stendiem un pašvaldības sniegto informāciju);
27.5. veicot inženierkomunikāciju izbūvi vai ielu atjaunošanu vai pārbūvi, pēc pašvaldības pieprasījuma reklāmas objekta, kas izvietots ielu sarkanajās līnijās, īpašnieks par saviem līdzekļiem reklāmas objektu demontē 10 darba dienu laikā. Ja pēc būvdarbu veikšanas reklāmas objekta atjaunošana iepriekšējā vietā ir iespējama, to atļauts izvietot pēc būves nodošanas ekspluatācijā.
28. Izvietojot reklāmas objektu uz pašvaldībai piederošas vai tiesiskajā valdījumā esošas zemes (turpmāk – pašvaldības zeme), papildus ievēro šādus nosacījumus:
28.1. reklāmas objektu pie nobrauktuves uz iestādes, organizācijas vai saimnieciskās darbības veikšanas vietu, kas satur norādi uz attiecīgās iestādes, organizācijas vai privātpersonas saimnieciskās darbības veikšanas vietu, ielu sarkanajās līnijās ieteicams izvietot atbilstoši saistošo noteikumu 1., 2. vai 3. pielikumā noteiktajam paraugam;
28.2. tūrisma transporta pieturvietu zīmes ieteicams izvietot atbilstoši saistošo noteikumu 4. pielikumā noteiktajam aprakstam;
28.3. ja nav iespējams izvietot izkārtni konstruktīvā saistībā ar būvi (objekts, kurā tiek veikta saimnieciskā darbība, atrodas pagrabstāvā, pagalmā, augstāk par 1. stāva līmeni u. c.), tad pie iestādes, organizācijas vai saimnieciskās darbības veikšanas vietas tikai tās darba laikā var izvietot pārvietojamu reklāmas objektu, kura augstums nepārsniedz 1,5 m un platums nepārsniedz 0,9 m, ne tālāk kā 2 m attālumā no ieejas objektā vai pagalmā, kurā tiek veikta saimnieciskā darbība, ar nosacījumu, ka pie vienas ieejas atļauts izvietot ne vairāk kā divus reklāmas objektus; izvietojot šādu reklāmas objektu, gājēju plūsmai atstāj 75 % no ietves platuma, bet ne mazāk kā 1,5 m (izņemot, ja reklāmas objekts tiek izvietots uz gājēju ielas).
29. Izvietojot reklāmas objektu ar piesaisti zemei Rīgas vēsturiskajā centrā, papildus ievēro šādus nosacījumus:
29.1. aizliegts izvietot reklāmas objektu, kura platums pārsniedz 1,8 m un augstums – 4,5 m; reklāmas izmēru ierobežojumi neattiecas uz pašvaldībai piederošiem reklāmas objektiem, informāciju par pilsētu, kā arī valsts un pašvaldības organizēto pasākumu reklāmu;
29.2. aizliegts Rīgas vēsturiskā centra teritorijā esošajos laukumos izvietot reklāmas objektus, izņemot izkārtnes, valstij un pašvaldībai piederošas reklāmas, valsts un pašvaldības organizēto pasākumu reklāmas, informāciju par Rīgas pilsētu;
29.3. aizliegts izvietot reklāmas objektus Brīvības bulvāra posmā starp Zigfrīda Annas Meierovica bulvāri un Raiņa bulvāri;
29.4. izkārtni ar piesaisti zemei atļauts izvietot gadījumos, ja būve vai ēka ir iekļauta valsts aizsargājamo kultūras pieminekļu sarakstā un nav iespējams izvietot izkārtni, nebojājot fasādi.
30. Digitālos ekrānus ar piesaisti zemei, ņemot vērā saistošajos noteikumos noteiktos izvietošanas nosacījumus, Vecrīgā atļauts izvietot:
30.1. Krišjāņa Valdemāra ielas, Zigfrīda Annas Meierovica bulvāra, Aspazijas bulvāra, 13. janvāra ielas un 11. novembra krastmalas piegulošo teritoriju daļā;
30.2. valsts un pašvaldības iestādēm informācijas sniegšanai.
IV. Mobilās reklāmas un reklāmas objektu izvietošanas nosacījumi
31. Uz sabiedriskā transporta izvietotā reklāma drīkst aizsegt ne vairāk par 50 % no katra loga laukuma, un tā veidojama, izmantojot perforēto un transparento līmplēvi. Šie ierobežojumi neattiecas uz sabiedriskā transporta aizmugurējo logu.
32. Mobilās reklāmas objektus (izņemot reklāmas uz sabiedriskā transporta un taksometra) aizliegts novietot stāvēšanai pilsētas ielu teritorijā, autostāvvietās, laukumos u. c. vietās, kas pārredzamas no publiskas ārtelpas. Īslaicīgas apstāšanās laikā reklāmu aizsedz.
V. Digitālās reklāmas izvietošanas nosacījumi
33. Izvietojot digitālo ekrānu, tā izvietojuma leņķi un izmērus iekļauj pilsētvidē un tās arhitektūrā.
34. Digitālos ekrānus nodrošina ar gaismas sensora vadības sistēmu, kura digitālā ekrāna darbības laikā automātiski pielāgo tā spilgtuma intensitāti ārējās vides gaismas apstākļiem vai nepieciešamības gadījumā samazina tā spilgtuma intensitāti.
35. Digitālajās reklāmās aizliegts izmantot strauji mainīgus, pēkšņus un intensīvus gaismas efektus.
36. Departamentam, izsniedzot digitālās reklāmas izvietošanas atļauju un izvērtējot apbūves un satiksmes plūsmas intensitāti, ir tiesības ierobežot digitālā ekrāna izstarotās gaismas intensitāti diennakts tumšajā laikā (no plkst. 23.00 līdz plkst. 6.00).
VI. Reklāmas objektu izvietošanas nosacījumi publiska pasākuma norises vietā un laikā
37. Ja pasākums tiek organizēts vietā, kurā saistošajos noteikumos noteikts reklāmas objektu izvietošanas aizliegums, tad pasākuma norises vietā uz pasākuma norises laiku pieļaujams izvietot pasākuma un tā sponsora reklāmu.
38. Ja pasākuma norises vietā un laikā paredzēts izvietot reklāmas objektu, kura platums pārsniedz 1,5 m un augstums pārsniedz 3 m, tad pasākuma organizators iesniedz sertificēta būvinženiera apliecinājumu, ka reklāmas objekts neradīs reālus draudus cilvēku drošībai.
39. Ja pasākums noris Vecrīgā, tad pasākuma norises laikā un vietā (izņemot Doma laukumu, Rātslaukumu, Latviešu strēlnieku laukumu, Alberta laukumu) aizliegts izvietot reklāmas objektu ar piesaisti zemei, kura platums pārsniedz 1,8 m un augstums – 4,5 m.
40. Publiska pasākuma organizators nodrošina reklāmas objekta demontāžu pēc atļaujas termiņa beigām.
VII. Tīkla reklāmas objektu izvietošanas nosacījumi
41. Tīkla reklāmas objektu izvietošanai pašvaldības administratīvajā teritorijā ir slēdzams līgums ar Departamentu.
42. Pie apgaismes stabiem, satiksmes balstiem ielu sarkanajās līnijās, atsevišķos ceļa posmos atļauts izvietot reklāmas objektus, kas pārskatāmā ceļa posmā veido grupu no vismaz trīs identiskiem reklāmas objektiem.
43. Uz tīkla reklāmas objektiem laikā, kad uz tiem netiek izvietotas reklāmas, visā reklāmas izvietošanai paredzētajā laukumā izvieto reklāmas, kas informē par iespēju izvietot reklāmu konkrētajā vietā, plakātu, sociālo reklāmu vai cita veida valsts vai pašvaldības sniegto informāciju, kas atbrīvota no pašvaldības nodevas maksājumiem.
44. Tīkla reklāmas objektus reģistrē Departaments, pamatojoties uz to īpašnieka iesniegumu, kurā noteikts reklāmas objekta reģistrācijas numurs (kods).
VIII. Afišu izvietošanas uz pašvaldībai piederošiem afišu stabiem un stendiem kārtība
45. Uz pašvaldībai piederošajiem afišu stabiem un stendiem atļauts eksponēt tikai plakātus un paziņojumus (turpmāk – afišas), kas satur šādu informāciju:
45.1. sociālo reklāmu;
45.2. svētku vizuālo identitāti;
45.3. mākslas darbus un mākslas reprodukcijas;
45.4. par labdarības pasākumiem, ko organizē Latvijas Republikā reģistrētās biedrības, nodibinājumi un reliģiskās organizācijas, kurām piešķirts sabiedriskā labuma organizācijas statuss saskaņā ar Sabiedriskā labuma organizāciju likumu, kā arī citu informāciju, kas veicina minēto organizāciju mērķu sasniegšanu;
45.5. par vides aizsardzību un ar to saistītiem pasākumiem, ja netiek reklamēts konkrēta ražotāja produkts vai pakalpojums;
45.6. par veselības aizsardzību vai ar to saistītiem pasākumiem, ja netiek reklamēts konkrēta ražotāja produkts vai pakalpojums;
45.7. par valsts un pašvaldības organizētajiem pasākumiem (valsts un pilsētas svētki, Vispārējie latviešu Dziesmu un deju svētki, sporta svētki un citi līdzīgi pasākumi), starptautiskajiem pasākumiem, kā arī pasākumiem, kuri tiek organizēti diplomātisko attiecību ietvaros;
45.8. kas nepieciešama valsts un pašvaldības normatīvajos aktos norādīto funkciju vai deleģēta pārvaldes uzdevuma izpildes nodrošināšanai;
45.9. kas nepieciešama Rīgas pilsētai – norādes, informatīvās kartes, shēmas u. c.;
45.10. par Rīgas pilsētā sporta jomā organizētajiem pasākumiem, kas veicina iedzīvotāju iesaistīšanos sportiskajās aktivitātēs, veicina fizisko un garīgo spēju attīstīšanu un izkopšanu, kā arī veicina veselīgu dzīvesveidu Rīgas pilsētā;
45.11. par Rīgas pilsētā kultūras un izglītības jomā organizētajiem pasākumiem, kas veicina Rīgas pilsētas iedzīvotāju profesionālās un amatiermākslas jaunrades procesu un radošās darbības kultūras un mākslas nozarēs, kā arī profesionālo un interešu izglītību.
46. Par afišu izvietošanu uz pašvaldībai piederošajiem afišu stabiem un stendiem ir atbildīgs Rīgas valstspilsētas pašvaldības Izglītības, kultūras un sporta departaments sadarbībā ar Rīgas valstspilsētas pašvaldības Centrālās administrācijas Komunikācijas pārvaldi. Iesniegumu par afišu izvietošanu uz pašvaldībai piederošajiem afišu stabiem un stendiem kopā ar izvietošanas grafiku iesniedz Rīgas valstspilsētas pašvaldības Izglītības, kultūras un sporta departamentam ne vēlāk kā trīs mēnešus pirms plānotās afišas izvietošanas. Termiņa neievērošanas gadījumā afišu izvieto tad, ja ir brīva vieta uz pašvaldībai piederošajiem afišu stabiem un stendiem un informācijas izvietošana ir saistīta ar valsts vai pašvaldības normatīvajos aktos norādīto funkciju, deleģēta pārvaldes uzdevuma izpildes nodrošināšanu vai pasākumiem, kuri tiek organizēti diplomātisko attiecību ietvaros.
47. Uz pašvaldībai piederošajiem afišu stabiem un stendiem izvieto afišas:
47.1. vertikālā formātā, nepārsniedzot A1 (0,594 m x 0,841 m) izmēru;
47.2. nestandarta horizontālā formātā, pielāgojot afišas izmēru konkrētam afišu stabam vai stendam un nodrošinot tās iederību pilsētvidē;
47.3. kas izgatavotas no papīra materiāla, kura svars nav mazāks par 115 g/m2 un kurš ir ārpustelpu apstākļiem piemērots materiāls;
47.4. kurās ziņas par pasākumu sponsoriem un atbalstītājiem (to logotipi, uzņēmumu nosaukumi, preču zīmes) aizņem ne vairāk par 20 % no kopējās vizuālās informācijas platības, to izvietojot afišas apakšējā malā.
48. Rīgas valstspilsētas pašvaldības Izglītības, kultūras un sporta departaments pirms afišas izvietošanas apstiprināšanas ir tiesīgs:
48.1. pieprasīt kompetentas iestādes saskaņojumu par afišas atbilstību Valsts valodas likumam un Reklāmas likumam, kā arī citiem normatīvajiem aktiem;
48.2. pieprasīt papildu informāciju iesniedzējam, lai pārliecinātos par afišas atbilstību saistošo noteikumu 45. punktam;
48.3. informējot iesniedzēju, koriģēt afišas izvietošanas datumu līdz piecām darba dienām, kā arī afišas izvietošanas vietas, termiņu un skaitu, ja trūkst vietu afišu izvietošanai.
49. Minimālais afišas eksponēšanas termiņš ir septiņas dienas. Minimālais izvietojamais afišu skaits – 50 vienības.
50. Rīgas valstspilsētas pašvaldības Izglītības, kultūras un sporta departaments nodrošina afišu izvietošanu un pašvaldībai piederošo afišu stabu un stendu uzturēšanu pašvaldības budžetā paredzēto finanšu līdzekļu ietvaros un reizi trijos mēnešos sagatavo afišu izvietošanas grafiku, prioritāri iekļaujot tajā saistošo noteikumu 45.2., 45.7., 45.8, 45.9. apakšpunktā norādīto informāciju, un publicē to tīmekļvietnē https://iksd.riga.lv/lv/rd-iksd.
51. Aizliegta patvaļīga afišu izvietošana.
IX. Saistošo noteikumu izpildes kontrole un administratīvā atbildība par saistošo noteikumu neievērošanu
52. Par reklāmas un reklāmas objektu atbilstību saistošo noteikumu prasībām ir atbildīgs reklāmas devējs.
53. Par reklāmas un reklāmas objektu izvietošanu un eksponēšanu bez reklāmas izvietošanas atļaujas un par patvaļīgu reklāmas grafiskā dizaina maiņu fiziskajām personām piemēro brīdinājumu vai naudas sodu no četrām līdz 70 naudas soda vienībām, juridiskajām personām piemēro brīdinājumu vai naudas sodu no 20 līdz 280 naudas soda vienībām.
54. Par saistošo noteikumu 7.3. apakšpunktā, 17., 19. punktā un 21.4. apakšpunktā noteikto prasību neievērošanu fiziskajām personām piemēro brīdinājumu vai naudas sodu no divām līdz 14 naudas soda vienībām, juridiskajām personām piemēro brīdinājumu vai naudas sodu no četrām līdz 28 naudas soda vienībām.
55. Par saistošo noteikumu 8., 9., 32., 40., 43. un 51. punktā noteikto prasību neievērošanu fiziskajām personām piemēro brīdinājumu vai naudas sodu no četrām līdz 28 naudas soda vienībām, juridiskajām personām piemēro brīdinājumu vai naudas sodu no 14 līdz 200 naudas soda vienībām.
56. Administratīvā pārkāpuma procesu par saistošo noteikumu prasību neievērošanu līdz administratīvā pārkāpuma lietas izskatīšanai veic:
56.1. Departamenta amatpersonas;
56.2. Rīgas valstspilsētas pašvaldības policijas amatpersonas.
57. Saistošo noteikumu 56. punktā minēto amatpersonu lēmumus var pārsūdzēt tās iestādes, kuras amatpersona pieņēmusi lēmumu, augstākai amatpersonai.
58. Administratīvā pārkāpuma lietu izskata Departamenta amatpersona. Departamenta amatpersonas lēmumu var pārsūdzēt Departamenta direktora vietniekam administratīvajos jautājumos.
59. Departaments kontrolē saistošo noteikumu izpildi. Departaments, konstatējot saistošo noteikumu 7.1., 7.2., 7.7., 7.8., 7.11. apakšpunktā, 10. punktā, 14.5., 14.6., 24.6., 27.2., 27.5. apakšpunktā, 31., 34. un 35. punktā noteikto prasību neievērošanu, ir tiesīgs izdot administratīvo aktu, kas uzliek adresātam pienākumu veikt noteiktas darbības saistošo noteikumu izpildes nodrošināšanai.
X. Noslēguma jautājumi
60. Reklāmas objektus, kas neatbilst saistošo noteikumu 22.5. apakšpunkta prasībām, atļauts eksponēt līdz 2028. gada 1. janvārim.
61. Digitālie ekrāni, kas neatbilst saistošo noteikumu 34. punkta prasībām, līdz 2024. gada 1. jūlijam jānodrošina ar gaismas sensora vadības sistēmu.
62. Atzīt par spēku zaudējušiem Rīgas domes 2013. gada 26. novembra saistošos noteikumus Nr. 77 "Par reklāmu, izkārtņu un citu informatīvo materiālu izvietošanas un afišu stabu un stendu izmantošanas kārtību Rīgā" (Latvijas Vēstnesis, 2014, Nr. 3, Nr. 113; 2015, Nr. 41, Nr. 159; 2016, Nr. 2, Nr. 206; 2020, Nr. 4; 2021, Nr. 123; 2022, Nr. 137).
Rīgas domes priekšsēdētājs V. Ķirsis
1. pielikums
Rīgas domes 2023. gada 31. maija
saistošajiem noteikumiem Nr. RD-23-201-sn
Paraugs
Reklāmas objekts
Rīgas domes priekšsēdētājs V. Ķirsis
2. pielikums
Rīgas domes 2023. gada 31. maija
saistošajiem noteikumiem Nr. RD-23-201-sn
Paraugs
Reklāmas objekts
Rīgas domes priekšsēdētājs V. Ķirsis
3. pielikums
Rīgas domes 2023. gada 31. maija
saistošajiem noteikumiem Nr. RD-23-201-sn
Paraugs
Reklāmas objekts
Rīgas domes priekšsēdētājs V. Ķirsis
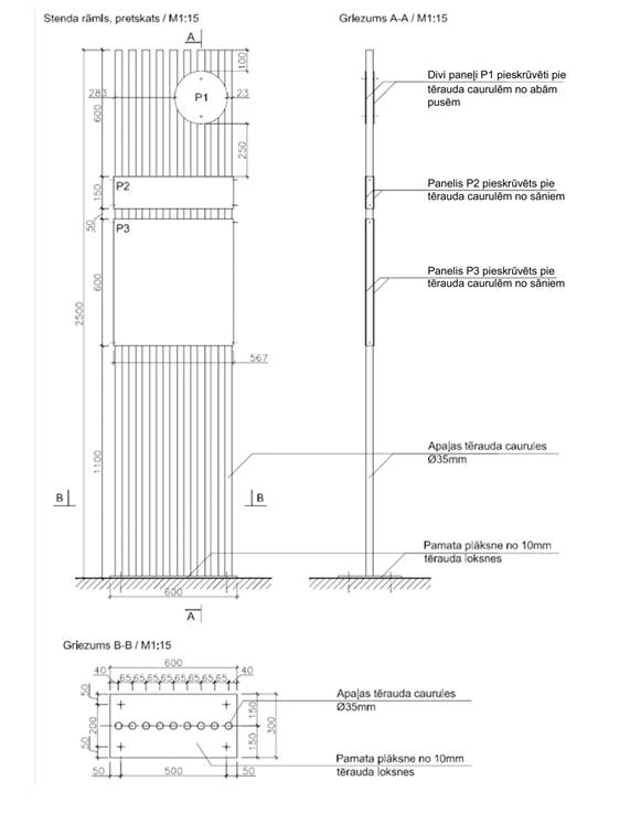
4. pielikums
Rīgas domes 2023. gada 31. maija
saistošajiem noteikumiem Nr. RD-23-201-sn
Tūrisma transporta pieturvietu zīmes izgatavošanas apraksts
35 mm apaļu tērauda cauruļu rāmis, kas metināts pie pamata plāksnes (10 mm tērauda loksnes). Rāmis kvalitatīvi krāsots ar pulverkrāsu.
Pie rāmja piestiprināti informatīvie paneļi. Paneļi izgatavoti no kompozītalumīnija materiāla (piemēram, Neobond), aplīmēti ar apdrukātu līmplēvi (ar antigrafiti pārklājumu).
Divi paneļi P1 tiek skrūvēti pie stenda tērauda caurulēm no abām pusēm.
Paneļi P2 un P3 sastāv no divām loksnēm, aplokāmi ap stenda rāmi un skrūvējami pie tērauda caurulēm.
Visām skrūvēm jābūt vienā tonī.
Visiem izmantojamajiem materiāliem, tehnikai, stiprinājumiem, konstruktīvajam risinājumam jāatbilst nosacījumiem drošai ekspluatēšanai ārtelpā jebkuros klimatiskajos apstākļos, un tiem jābūt izturīgiem pret vēja brāzmām.
Paraugs
Tūrisma transporta pieturvietu zīmes logotips
Tūrisma transporta pieturvietu zīmes konstrukciju risinājums
Tūrisma transporta pieturvietu zīmē esošās informācijas izvietošanas variācijas
Tūrisma transporta pieturvietu zīmes paneļu grafiskais risinājums
Tūrisma transporta pieturvietu zīmes konstrukciju stiprināšana pie pamatnes
Tūrisma transporta pieturvietu zīmes risinājums sasaistē ar sabiedriskā transporta pieturvietas zīmi
Rīgas domes priekšsēdētājs V. Ķirsis
5. pielikums
Rīgas domes 2023. gada 31. maija
saistošajiem noteikumiem Nr. RD-23-201-sn
Paraugs
Izkārtnes
Rīgas domes priekšsēdētājs V. Ķirsis
6. pielikums
Rīgas domes 2023. gada 31. maija
saistošajiem noteikumiem Nr. RD-23-201-sn
Paraugs
Plāksnītes
Rīgas domes priekšsēdētājs V. Ķirsis
7. pielikums
Rīgas domes 2023. gada 31. maija
saistošajiem noteikumiem Nr. RD-23-201-sn
Paraugs
Reklāma uz ēkas fasādes
Rīgas domes priekšsēdētājs V. Ķirsis
Paskaidrojuma raksts
Rīgas domes 2023. gada 31. maija saistošajiem noteikumiem Nr. RD-23-201-sn
(precizēts 2024. gada 17. aprīļa sēdē Nr. 117; 2024. gada 21. februāra sēdē Nr. 113) "Par reklāmas, reklāmas objektu un citu informatīvo materiālu izvietošanas
un afišu stabu un stendu izmantošanas kārtību Rīgā"
| 1. Mērķi un nepieciešamības pamatojums, tostarp
raksturojot iespējamās alternatīvas, kas neparedz tiesiskā regulējuma
izstrādi Saskaņā ar Pašvaldību likuma, kas stājās spēkā 2023. gada 1. janvārī, pārejas noteikumu 6. punktu "dome izvērtē uz likuma "Par pašvaldībām" normu pamata izdoto saistošo noteikumu atbilstību šim likumam un izdod jaunus saistošos noteikumus atbilstoši šajā likumā ietvertajam pilnvarojumam. Līdz jaunu saistošo noteikumu spēkā stāšanās dienai, bet ne ilgāk kā līdz 2024. gada 30. jūnijam, piemērojami uz likuma "Par pašvaldībām" normu pamata izdotie saistošie noteikumi, ciktāl tie nav pretrunā ar šo likumu". Ņemot vērā, ka ir nepieciešams izdarīt grozījumus Rīgas domes 2013. gada 26. novembra saistošajos noteikumos Nr. 77 "Par reklāmu, izkārtņu un citu informatīvo materiālu izvietošanas un afišu stabu un stendu izmantošanas kārtību Rīgā" (turpmāk – Saistošie noteikumi Nr. 77) un pašvaldība nav tiesīga pēc Pašvaldību likuma stāšanās spēkā izdarīt grozījumus saistošajos noteikumos, kas izdoti uz likuma "Par pašvaldībām" normu pamata, piemērojot Pašvaldību likuma pārejas noteikumu 6. punktu, ir sagatavoti jauni saistošie noteikumi "Par reklāmu, reklāmas objektu un citu informatīvo materiālu izvietošanas un afišu stabu un stendu izmantošanas kārtību Rīgā". Saistošo noteikumu mērķis ir veidot harmoniski attīstītu pilsētvidi, nosakot reklāmas un reklāmas objektu izvietošanu, afišu stabu un stendu izmantošanas kārtību un ekspluatācijas prasības publiskās vietās Rīgas valstspilsētas pašvaldības administratīvajā teritorijā, kā arī vietās, kas vērstas pret publisku vietu. Saistošajos noteikumos lielā mērā saglabātas līdz šim spēkā esošo Saistošo noteikumu Nr. 77 normas, kas attiecas uz vides prasībām, kā arī noteikti jauni ierobežojumi un prasības. Aizliegts izvietot transparentus, kas novilkti starp kokiem, stabiem, ēkām, būvēm un citām konstrukcijām, lai pilsētvidi nepiesārņotu ar dažāda veida un pārspīlētām reklāmām. Aizliegts arī pārblīvēt ēkas fasādi un ēkai piesaistīto apkārtējo vidi ar dažāda veida un kolorīta reklāmām. Izvietojot reklāmu, nedrīkst būt redzami montāžas stiprinājumi. Aizliegts izvietot reklāmu uz ēkas fasādes vai inženierbūves, ja tā ir nesakoptā stāvoklī, apzīmēta ar grafiti. Iepriekšminētie aizliegumi nepieciešami, lai veidotu harmonisku un nepārspīlētu reklāmu izvietojumu pie ēkām, lai reklāmas nenomāktu ēku arhitektūras un pilsētvides uztveršanu kopumā. Turklāt šādā veidā tiks veicināta kvalitatīvas pilsētvides attīstība un kopēja sabiedrības izpratne par sakārtotu un sakoptu pilsētvidi. Papildināti un precizēti nosacījumi reklāmu izvietošanai uz ēku fasādes, piemēram, Rīgas vēsturiskā centra daļā "Vecrīga" atļauts izvietot tikai telpiskus burtus un logotipus bez fona pamatnes vai ar fona pamatni bez tonējuma (caurspīdīgu) vai materiālā (metālā, kokā, stiklā u. c.) atveidotus burtus, vai uz fasādes krāsotus burtus, ja to izvietojums uz ēkas fasādes netraucē ēkas vizuālo uztveri un nemazina ēkas kultūrvēsturisko vērtību, kā arī ir atbilstošs konkrētās pilsētvides zonas apbūves raksturam un mērogam. Rīgas vēsturiskā centra saglabāšanas un aizsardzības likuma 5. panta pirmajā daļā ir noteikts, ka Rīgas vēsturiskajā centrā un tā aizsardzības zonā aizliegta jebkāda darbība, kas var izraisīt tajā esošo un aizsargājamo kultūrvēsturisko vērtību iznīcināšanu vai bojāšanu. Tā paša panta otrajā daļā ir noteikts, ka Rīgas vēsturiskajā centrā un tā aizsardzības zonā saglabājamas un aizsargājamas šādas tajā esošās autentiskās kultūrvēsturiskās vērtības: 1) vēsturiskā plānojuma struktūra (ar vēlākos laikos veiktiem kvalitatīviem pārveidojumiem); 2) panorāma un siluets, skatu perspektīvas; 3) vēsturiskā apbūve (īpaši – viduslaiku, jūgendstila un koka apbūve), tās mērogs un raksturs; 4) arheoloģiskais kultūrslānis; 5) publiskā ārtelpa; 6) zaļumu un zaļo zonu sistēma; 7) vēsturiskās ūdensteces un ūdenstilpes; 8) vēsturiskais zemes virsmas iesegums (bruģa segumi, grants celiņi u. c.); 9) vēsturiskie labiekārtojuma elementi. Lai tiktu ievērotas iepriekšminētās Rīgas vēsturiskā centra saglabāšanas un aizsardzības likuma prasības, saistošajos noteikumos ir iekļauta norma, ka Vecrīgā izvietotā reklāma nedrīkst būt veidota spilgtos toņos, ieteicams klusināts vai monohroms kolorīts. Tā kā digitālo reklāmu izvietošana kļūst arvien populārāka, saistošajos noteikumos ir izveidota jauna nodaļa ar nosacījumiem digitālo ekrānu izvietošanai. Reklāmas likuma 7. panta trešajā daļā ir noteikts, ka pašvaldībai, ievērojot šī likuma un citu normatīvo aktu noteikumus reklāmas jomā, ir tiesības izdot saistošos noteikumus par reklāmas izvietošanu publiskās vietās un vietās, kas vērstas pret publisku vietu, paredzot ierobežojumus reklāmas izmēram, veidam, gaismas un skaņas efektiem atbilstoši videi, ēku un būvju arhitektūrai. Saskaņā ar iepriekšminēto pašvaldība nevar noteikt skaņas reklāmas vispārēju aizliegumu, bet var noteikt teritorijas, kurās skaņas efekti ir aizliegti. Tādējādi saistošajos noteikumos precizēta norma par reklāmu ar skaņas efektiem izvietošanu. Saistošajos noteikumos noteikts, par kādiem saistošo noteikumu prasību pārkāpumiem paredzēta administratīvā atbildība, kā arī norādītas saistošo noteikumu prasības, kuru izpildes nodrošināšanai pašvaldībai ir tiesības izdot administratīvo aktu. |
| 2. Fiskālā ietekme uz pašvaldības budžetu, iekļaujot
attiecīgus aprēķinus Paredz iekasēt naudas sodus par administratīvajiem pārkāpumiem un piespiedu naudu par pienākuma, kas uzlikts ar administratīvo aktu, labprātīgu nepildīšanu. |
| 3. Sociālā ietekme, ietekme uz vidi, iedzīvotāju
veselību, uzņēmējdarbības vidi pašvaldības teritorijā, kā arī plānotā
regulējuma ietekme uz konkurenci (aktuālā situācija, prognozes tirgū un
atbilstība brīvai un godīgai konkurencei) Saistošo noteikumu mērķis ir veicināt kvalitatīvas pilsētvides attīstību un kopēju sabiedrības izpratni par sakārtotu un sakoptu pilsētvidi, tādā veidā iegūst gan uzņēmējdarbības vide, gan pilsētvide, gan sabiedrība kopumā. Konkurenci neietekmē. Amatpersona, kura ir tiesīga kontrolēt saistošo noteikumu prasību ievērošanu, administratīvā pārkāpuma procesa vietā ir tiesīga izvēlēties Administratīvā procesa likumā noteiktās darbības, ja atzīst tās par konkrētai situācijai piemērotākām, uzliekot privātpersonai pienākumu veikt vai pārtraukt konkrētas darbības saistošo noteikumu prasību izpildes nodrošināšanai. Saistošo noteikumu mērķis nav sodīt, bet informēt, kādas var būt sekas, ja netiks ievērota noteiktā tiesiskā kārtība, un atturēt no pārkāpumu izdarīšanas, rēķinoties, ka pretējā gadījumā var tikt piemērots sods. Neparedzot administratīvo sodu par saistošo noteikumu prasību neievērošanu, bet tikai veicot Administratīvā procesa likumā noteiktās darbības, situācijās, kad persona veic vairākus apzinātus un atkārtotus pārkāpumus, kuru novēršana nerada pārkāpējam nekādas sekas, tiks veicināts saistošo noteikumu prasību pārkāpumu straujš pieaugums. |
| 4. Ietekme uz administratīvajām procedūrām un to
izmaksām gan attiecībā uz saimnieciskās darbības veicējiem, gan
fiziskajām personām un nevalstiskā sektora organizācijām, gan budžeta
finansētām institūcijām Neietekmē. |
| 5. Ietekme uz pašvaldības funkcijām un
cilvēkresursiem Neietekmē. |
| 6. Izpildes nodrošināšana Saistošo noteikumu prasību ievērošanu uzrauga Rīgas valstspilsētas pašvaldības Pilsētas attīstības departaments. |
| 7. Prasību un izmaksu samērīgums pret ieguvumiem, ko
sniedz mērķa sasniegšana Prasības ir samērīgas, jo no saistošo noteikumu nosacījumu ievērošanas iegūst gan pilsētvide, gan sabiedrība kopumā. |
| 8. Izstrādes gaitā veiktās konsultācijas ar
privātpersonām un institūcijām, tostarp sabiedrības viedokļa
noskaidrošanā gūtā informācija Konsultācijas notikušas ar Vides reklāmas asociāciju, Latvijas Reklāmas asociāciju un Nacionālā kultūras mantojuma pārvaldi. Nacionālā kultūras mantojuma pārvaldei nebija priekšlikumu par saistošo noteikumu projektu. Savukārt vairāki Vides reklāmas asociācijas un Latvijas Reklāmas asociācijas priekšlikumi tika iekļauti saistošajos noteikumos. Piemēram, tika svītrota norma, kas noteica, ka aizliegts pārsātināt reklāmu ar tekstuālo un grafisko informāciju, saistošo noteikumu tekstā redakcionāli precizēts terminu "reklāma" un "reklāmas objekts" lietojums. Atbilstoši Pašvaldību likuma 46. panta trešajai daļai saistošo noteikumu projekts no 2023. gada 1. marta līdz 2023. gada 15. martam tika publicēts Rīgas valstspilsētas pašvaldības tīmekļvietnē www.riga.lv sabiedrības viedokļa noskaidrošanai. Noteiktajā termiņā netika saņemts neviens viedoklis vai priekšlikums. Precizēto saistošo noteikumu projektā ir ņemti vērā visi Vides aizsardzības un reģionālās attīstības ministrijas 2023. gada 22. jūnija atzinumā Nr. 1-18/3575 un 2024. gada 29. februāra atzinumā Nr. 1-18/1338 izteiktie iebildumi un veikti atbilstoši labojumi. |
Rīgas domes priekšsēdētājs V. Ķirsis