
Ministru kabineta rīkojumi: Šajā laidienā 13 Pēdējās nedēļas laikā 13 Visi
Ministru kabineta rīkojums Nr. 655
Rīgā 2015. gada 27. oktobrī (prot. Nr.56 14. §)
Par kūrorta statusa piešķiršanu Liepājas pilsētas daļai
1. Ministru kabinets (adrese – Brīvības bulvāris 36, Rīga, LV-1520) ir izskatījis Liepājas pilsētas domes (adrese – Rožu iela 6, Liepāja, LV-3401) (turpmāk – pašvaldība) Ekonomikas ministrijā 2015. gada 11. martā iesniegto pieteikumu par kūrorta statusa piešķiršanu Liepājas pilsētas daļai un pieteikumam pievienotos dokumentus, kā arī Kūrorta statusa izvērtēšanas komisijas 2015. gada 12. augusta atzinumu par kūrorta statusa piešķiršanu Liepājas pilsētas daļai (pielikums).
2. Saskaņā ar Tūrisma likuma 6.1 panta pirmo daļu kūrorta statusu piešķir teritorijai, kura atbilst visiem šiem nosacījumiem:
2.1. tajā ir pieejami dabas dziednieciskie resursi;
2.2. tajā darbojas vismaz viena kūrorta ārstniecības iestāde;
2.3. dabas dziednieciskie resursi tiek izmantoti, lai nodrošinātu attiecīgajā teritorijā esošās kūrorta ārstniecības iestādes darbību;
2.4. vides kvalitātes rādītāji atbilst normatīvajos aktos noteiktajām prasībām;
2.5. tajā ir izveidota atbilstoša tūrisma infrastruktūra;
2.6. tās attīstība tiek mērķtiecīgi plānota.
3. Saskaņā ar Ministru kabineta 2012. gada 18. decembra noteikumu Nr. 905 "Kūrorta statusa piešķiršanas un anulēšanas kārtība" 9. punktu Ekonomikas ministrija iesniedz Ministru kabinetā rīkojuma projektu par kūrorta statusa piešķiršanu attiecīgajai teritorijai, ja saņemts Kūrorta statusa izvērtēšanas komisijas atzinums, ka teritorija atbilst visiem Tūrisma likuma 6.1 panta pirmajā daļā minētajiem nosacījumiem.
4. Pamatojoties uz Ekonomikas ministrijas iesniegtajiem dokumentiem, kas saņemti no pašvaldības atbilstoši Tūrisma likuma 6.1 panta trešās daļas 1., 2., 3., un 4. apakšpunktam, un Kūrorta statusa izvērtēšanas komisijas atzinumu, Ministru kabinets konstatē, ka šā rīkojuma 1. punktā minētā Liepājas pilsētas daļa atbilst visiem Tūrisma likuma 6.1 panta pirmajā daļā minētajiem nosacījumiem.
5. Ievērojot minētos apsvērumus, kā arī saskaņā ar Tūrisma likuma 6.1 panta pirmo, otro un trešo daļu un Ministru kabineta 2012. gada 18. decembra noteikumu Nr. 905 "Kūrorta statusa piešķiršanas un anulēšanas kārtība" 9. punktu Ministru kabinets nolemj piešķirt šā rīkojuma 1. punktā minētajai Liepājas pilsētas daļai kūrorta statusu.
6. Saskaņā ar Tūrisma likuma 6.1 panta ceturto daļu kūrorta statusu šā rīkojuma 1. punktā minētā Liepājas pilsētas daļa iegūst ar dienu, kad Ministru kabinets pieņēmis attiecīgu lēmumu.
7. Saskaņā ar Tūrisma likuma 6.1 panta ceturto daļu pašvaldība ne retāk kā reizi divos gados Ministru kabineta noteiktajā kārtībā sniedz pārskatu par teritorijas attīstības plānošanas dokumentos paredzēto kūrorta attīstību un vides kvalitātes rādītājiem.
8. Šo rīkojumu saskaņā ar Administratīvā procesa likuma 76. panta otro daļu, 188. panta pirmo un otro daļu un 189. panta pirmo daļu var pārsūdzēt Administratīvajā rajona tiesā mēneša laikā no šā rīkojuma spēkā stāšanās dienas.
Ministru prezidente Laimdota Straujuma
Ekonomikas ministre Dana Reizniece-Ozola
Pielikums
Ministru kabineta
2015. gada 27. oktobra
rīkojumam Nr. 655
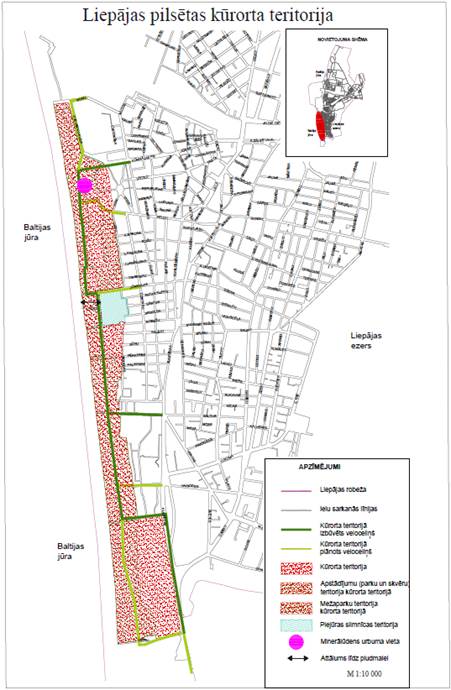
Liepājas pilsētas administratīvās teritorijas daļa, kurai tiek noteikts kūrorta statuss
I. Robežu shēma
II. Robežpunktu koordinātas
|
Nr. |
Sākuma/beigu robežpunkta numurs |
X koordināta |
Y koordināta |
| 1. | 1 | 314727,845 | 267363,930 |
| 2. | 2 | 314841,307 | 267379,298 |
| 3. | 3 | 314853,482 | 267370,900 |
| 4. | 4 | 314859,477 | 267345,120 |
| 5. | 5 | 314887,543 | 267237,999 |
| 6. | 6 | 314889,533 | 267230,404 |
| 7. | 7 | 314948,778 | 266985,971 |
| 8. | 8 | 314959,735 | 266941,062 |
| 9. | 9 | 315167,423 | 266855,454 |
| 10. | 10 | 315172,685 | 266849,171 |
| 11. | 11 | 315167,063 | 266849,041 |
| 12. | 12 | 315164,324 | 266846,723 |
| 13. | 13 | 315186,473 | 266774,083 |
| 14. | 14 | 315188,003 | 266763,457 |
| 15. | 15 | 315191,729 | 266739,897 |
| 16. | 16 | 315197,122 | 266704,581 |
| 17. | 17 | 315197,358 | 266703,201 |
| 18. | 18 | 315207,263 | 266652,005 |
| 19. | 19 | 315208,941 | 266643,306 |
| 20. | 20 | 315204,447 | 266642,804 |
| 21. | 21 | 315209,033 | 266587,043 |
| 22. | 22 | 315221,546 | 266550,855 |
| 23. | 23 | 315225,505 | 266525,371 |
| 24. | 24 | 315219,291 | 266496,180 |
| 25. | 25 | 315226,922 | 266496,161 |
| 26. | 26 | 315218,780 | 266478,751 |
| 27. | 27 | 315211,661 | 266463,831 |
| 28. | 28 | 315235,116 | 266356,430 |
| 29. | 29 | 315250,864 | 266258,683 |
| 30. | 30 | 315284,244 | 266020,437 |
| 31. | 31 | 315310,469 | 265834,011 |
| 32. | 32 | 315106,324 | 265805,045 |
| 33. | 33 | 315109,434 | 265789,303 |
| 34. | 34 | 315107,721 | 265787,121 |
| 35. | 35 | 315120,345 | 265658,912 |
| 36. | 36 | 315134,581 | 265514,333 |
| 37. | 37 | 315278,126 | 265529,086 |
| 38. | 38 | 315276,269 | 265546,372 |
| 39. | 39 | 315307,232 | 265549,636 |
| 40. | 40 | 315307,788 | 265544,360 |
| 41. | 41 | 315326,280 | 265546,469 |
| 42. | 42 | 315327,520 | 265535,030 |
| 43. | 43 | 315322,645 | 265534,438 |
| 44. | 44 | 315321,631 | 265534,322 |
| 45. | 45 | 315316,642 | 265533,721 |
| 46. | 46 | 315316,385 | 265533,690 |
| 47. | 47 | 315311,225 | 265533,403 |
| 48. | 48 | 315313,005 | 265520,641 |
| 49. | 49 | 315317,391 | 265492,746 |
| 50. | 50 | 315317,827 | 265489,975 |
| 51. | 51 | 315306,778 | 265488,548 |
| 52. | 52 | 315306,878 | 265454,982 |
| 53. | 53 | 315306,928 | 265438,480 |
| 54. | 54 | 315307,043 | 265399,980 |
| 55. | 55 | 315307,156 | 265362,254 |
| 56. | 56 | 315298,696 | 265361,935 |
| 57. | 57 | 315299,490 | 265263,549 |
| 58. | 58 | 315299,201 | 265250,512 |
| 59. | 59 | 315295,077 | 265063,839 |
| 60. | 60 | 315268,384 | 265064,714 |
| 61. | 61 | 315266,020 | 264992,605 |
| 62. | 62 | 315255,496 | 264992,916 |
| 63. | 63 | 315252,567 | 264894,023 |
| 64. | 64 | 315275,779 | 264893,334 |
| 65. | 65 | 315275,747 | 264881,330 |
| 66. | 66 | 315275,557 | 264810,201 |
| 67. | 67 | 315253,258 | 264810,225 |
| 68. | 68 | 315253,200 | 264788,670 |
| 69. | 69 | 315253,164 | 264775,166 |
| 70. | 70 | 315289,948 | 264773,588 |
| 71. | 71 | 315279,252 | 264581,870 |
| 72. | 72 | 315335,933 | 264576,984 |
| 73. | 73 | 315337,813 | 264559,953 |
| 74. | 74 | 315341,109 | 264530,079 |
| 75. | 75 | 315346,063 | 264485,194 |
| 76. | 76 | 315349,619 | 264452,779 |
| 77. | 77 | 315353,176 | 264420,738 |
| 78. | 78 | 315358,112 | 264376,008 |
| 79. | 79 | 315379,816 | 264302,602 |
| 80. | 80 | 315381,528 | 264269,982 |
| 81. | 81 | 315383,223 | 264237,658 |
| 82. | 82 | 315384,949 | 264206,515 |
| 83. | 83 | 315384,924 | 264205,254 |
| 84. | 84 | 315392,671 | 264205,647 |
| 85. | 85 | 315393,848 | 264183,211 |
| 86. | 86 | 315394,850 | 264164,747 |
| 87. | 87 | 315397,555 | 264164,894 |
| 88. | 88 | 315397,123 | 264134,450 |
| 89. | 89 | 315407,203 | 264093,321 |
| 90. | 90 | 315431,161 | 263908,447 |
| 91. | 91 | 315432,574 | 263897,538 |
| 92. | 92 | 315501,150 | 263907,441 |
| 93. | 93 | 315629,874 | 263926,863 |
| 94. | 94 | 315639,818 | 263857,640 |
| 95. | 95 | 315651,996 | 263788,691 |
| 96. | 96 | 315670,370 | 263682,633 |
| 97. | 97 | 315695,080 | 263552,670 |
| 98. | 98 | 315711,644 | 263468,840 |
| 99. | 99 | 315726,216 | 263471,323 |
| 100. | 100 | 315755,531 | 263320,730 |
| 101. | 101 | 315762,895 | 263251,186 |
| 102. | 102 | 315747,902 | 263250,008 |
| 103. | 103 | 315751,796 | 263194,943 |
| 104. | 104 | 315756,669 | 263142,764 |
| 105. | 105 | 315763,958 | 263098,814 |
| 106. | 106 | 315773,823 | 263051,518 |
| 107. | 107 | 315784,160 | 263001,966 |
| 108. | 108 | 315797,919 | 262936,006 |
| 109. | 109 | 315586,045 | 262886,392 |
| 110. | 110 | 315580,807 | 262927,248 |
| 111. | 111 | 315484,282 | 262914,873 |
| 112. | 112 | 315485,851 | 262884,914 |
| 113. | 113 | 315263,617 | 262859,309 |
| 114. | 114 | 315242,323 | 263329,635 |
| 115. | 115 | 315190,939 | 263854,568 |
| 116. | 116 | 315189,769 | 263866,521 |
| 117. | 117 | 315180,105 | 263965,253 |
| 118. | 118 | 315081,922 | 264782,514 |
| 119. | 119 | 315080,326 | 264796,087 |
| 120. | 120 | 315068,462 | 264894,458 |
| 121. | 121 | 315065,149 | 264947,651 |
| 122. | 122 | 315049,776 | 265045,074 |
| 123. | 123 | 315035,703 | 265220,865 |
| 124. | 124 | 315033,642 | 265235,354 |
| 125. | 125 | 315031,746 | 265248,690 |
| 126. | 126 | 315020,392 | 265328,533 |
| 127. | 127 | 315015,149 | 265381,805 |
| 128. | 128 | 315010,453 | 265403,292 |
| 129. | 129 | 315002,229 | 265488,119 |
| 130. | 130 | 315001,636 | 265493,805 |
| 131. | 131 | 315000,063 | 265500,964 |
| 132. | 132 | 314990,928 | 265542,539 |
| 133. | 133 | 314975,428 | 265658,364 |
| 134. | 134 | 314964,221 | 265771,486 |
| 135. | 135 | 314965,429 | 265771,486 |
| 136. | 136 | 314962,895 | 265784,873 |
| 137. | 137 | 314940,387 | 265919,836 |
| 138. | 138 | 314939,172 | 266045,449 |
| 139. | 139 | 314916,071 | 266247,370 |
| 140. | 140 | 314913,306 | 266271,537 |
| 141. | 141 | 314906,482 | 266331,183 |
| 142. | 142 | 314894,650 | 266441,522 |
| 143. | 143 | 314865,446 | 266604,152 |
| 144. | 144 | 314821,171 | 266835,025 |
| 145. | 145 | 314812,519 | 266918,375 |
Robežpunktu koordinātas norādītas Latvijas ģeodēzisko koordinātu sistēmā LKS-92.
Ekonomikas ministre Dana Reizniece-Ozola